Скачать Серия 3.403-2 Выпуск 3. Пространственные опоры. Чертежи КМДата актуализации: 01.01.2021
|
| Обозначение: | Серия 3.403-2 |
| Обозначение англ: | Series 3.403-2 |
| Статус: | не действует |
| Название рус.: | Выпуск 3. Пространственные опоры. Чертежи КМ |
| Дата добавления в базу: | 01.09.2013 |
| Дата актуализации: | 01.01.2021 |
| Дата введения: | 01.10.1969 |
| Дата окончания срока действия: | 01.05.1999 |
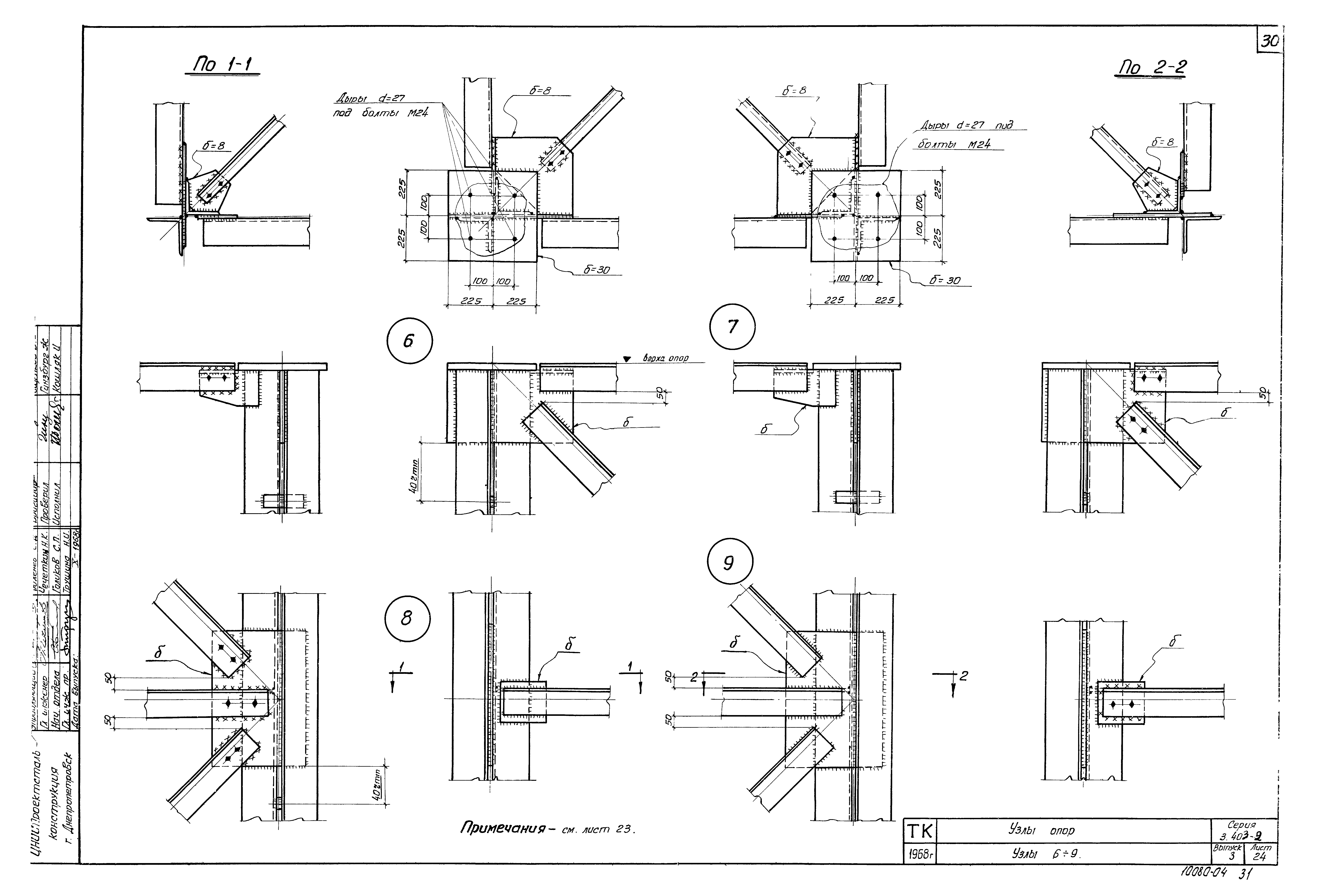
| Оглавление: | Пояснительная записка Опоры h = 4,8 м; h = 10,8 м; а = в = 2,4 м. Номограмма №1 для определения Рх, Ру Опоры h = 6,0 м; h = 8,4 м; а = в = 2,4 м. Номограмма №2 для определения Рх, Ру Опоры h = 7,2 м; h = 9,6 м; а = в = 2,4 м. Номограмма №3 для определения Рх, Ру Опоры h = 4,8; 6,0; 7,2; 8,4; 9,6; 10,8 м; а = в = 2,4 м. Номограмма №4 для определения марок ветвей опор Опоры h = 4,8; 6,0; 7,2; 8,4; 9,6; 10,8 м; а = в = 2,4 м. Номограмма №5 для определения усилий в анкерах Опоры h = 4,8 м; а = 2,4 м. Схемы. Сортаменты Опоры h = 6,0 м; а = 2,4 м. Схемы. Сортаменты Опоры h = 7,2 м; а = 2,4 м. Схемы. Сортаменты Опоры h = 8,4 м; а = 2,4 м. Схемы. Сортаменты Опоры h = 9,6 м; а = 2,4 м. Схемы. Сортаменты Опоры h = 10,8 м; а = 2,4 м. Схемы. Сортаменты Опоры h = 4,8 м; h = 10,8 м; а = 1,2 м; в = 2,4 м. Номограмма №6 для определения Рх, Ру Опоры h = 6,0 м; h = 8,4 м; а = 1,2 м; в = 2,4 м. Номограмма №7 для определения Рх, Ру Опоры h = 7,2 м; h = 9,6 м; а = 1,2 м; в = 2,4 м. Номограмма №8 для определения Рх, Ру Опоры h = 4,8; 6,0; 7,2; 8,4; 9,6; 10,8 м; а = 1,2 м. Номограмма №9 для определения марок ветвей опор Опоры h = 4,8; 6,0; 7,2; 8,4; 9,6; 10,8 м; а = 1,2 м; в = 2,4 м. Номограмма №10 для определения усилий в анкерах Опоры h = 4,8 м; а = 1,2 м. Схемы. Сортаменты Опоры h = 6,0 м; а = 1,2 м. Схемы. Сортаменты Опоры h = 7,2 м; а = 1,2 м. Схемы. Сортаменты Опоры h = 8,4 м; а = 1,2 м. Схемы. Сортаменты Опоры h = 9,6 м; а = 1,2 м. Схемы. Сортаменты Опоры h = 10,8 м; а = 1,2 м. Схемы. Сортаменты Узлы опор. Узлы 1 - 4 Узлы опор. Узлы 6 - 9 Узлы опор. Узел 5 Узлы опор. Узел 10 Базы опор. Сортамент баз Базы опор. Спецификация Пространственные опоры. Спецификация стали опор шириной а = 2,4 м Пространственные опоры. Спецификация стали опор шириной а = 1,2 м |
| Разработан: | ЦНИИпроектстальконструкция |
| Утверждён: | 04.07.1969 Госстрой СССР (Государственный комитет Совета Министров СССР по делам строительства) (USSR Gosstroy 79) |












































