Скачать Типовой проект 271-23-17.84 Альбом I. Архитектурно-строительные решения. Технология и механизация. ВитражиДата актуализации: 01.01.2021
|
| Обозначение: | Типовой проект 271-23-17.84 |
| Обозначение англ: | 271-23-17.84 |
| Статус: | не определен законодательством |
| Название рус.: | Альбом I. Архитектурно-строительные решения. Технология и механизация. Витражи |
| Дата добавления в базу: | 01.09.2013 |
| Дата актуализации: | 01.01.2021 |
| Дата введения: | 30.01.1985 |
| Дата окончания срока действия: | 30.06.2003 |
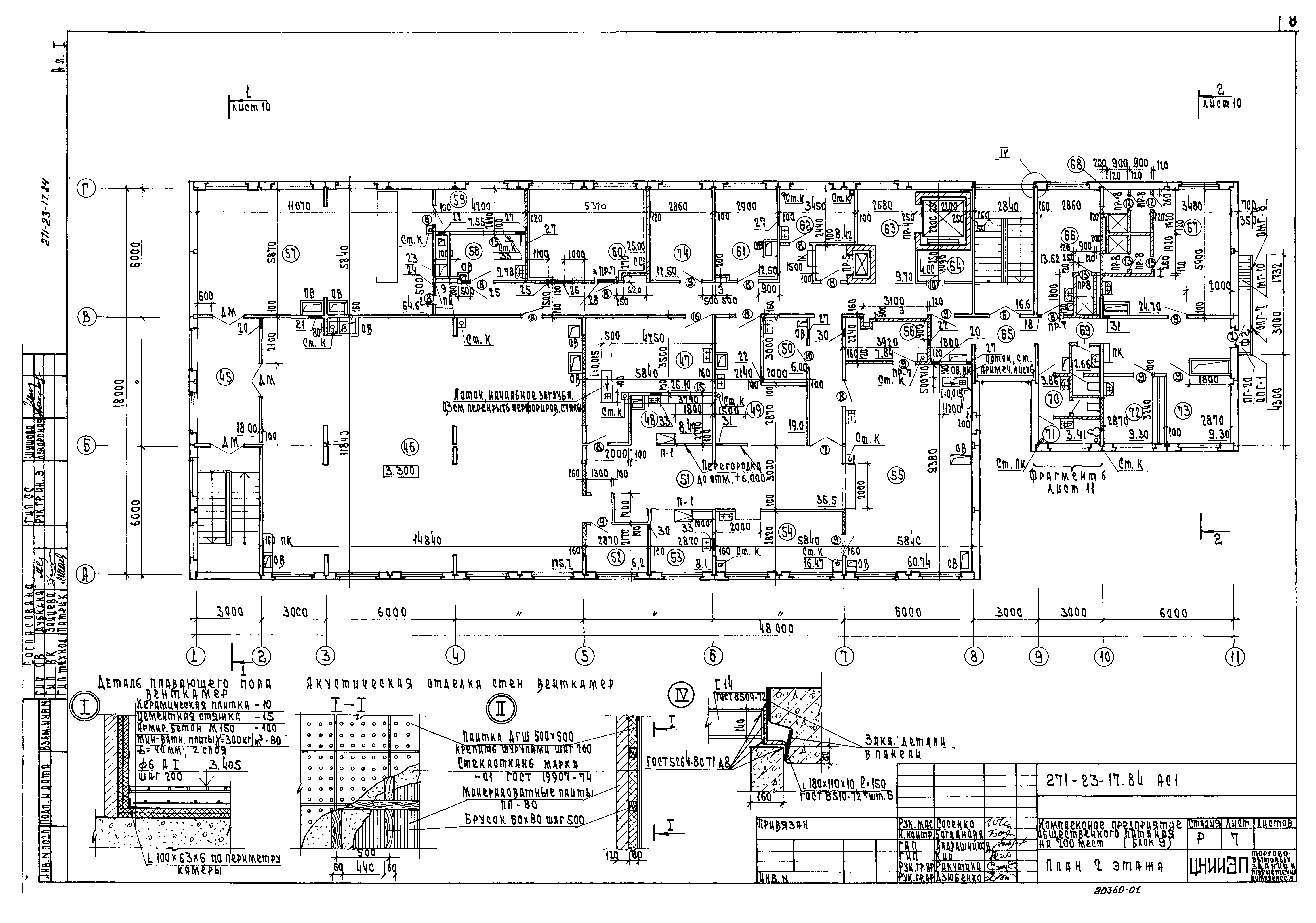
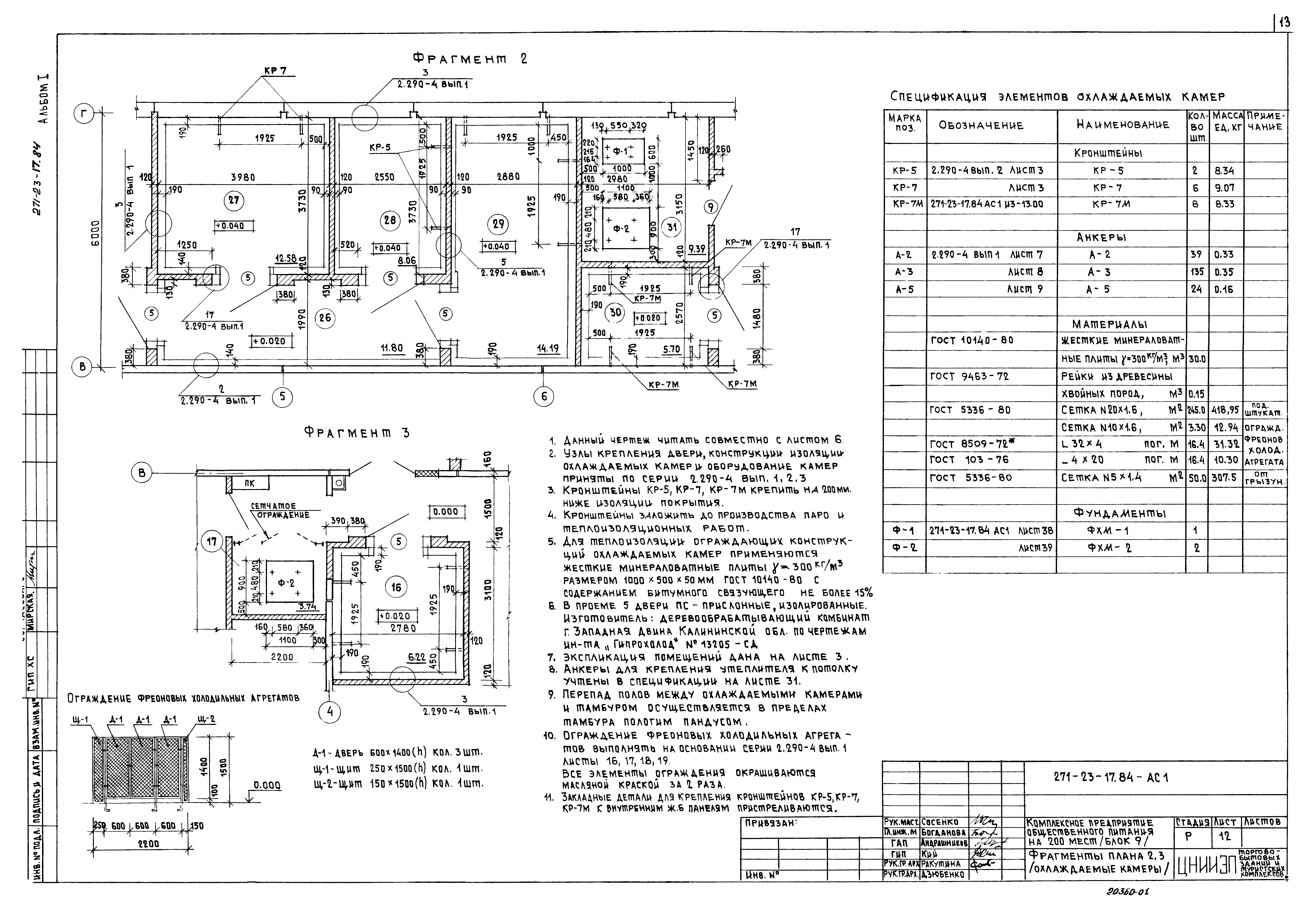
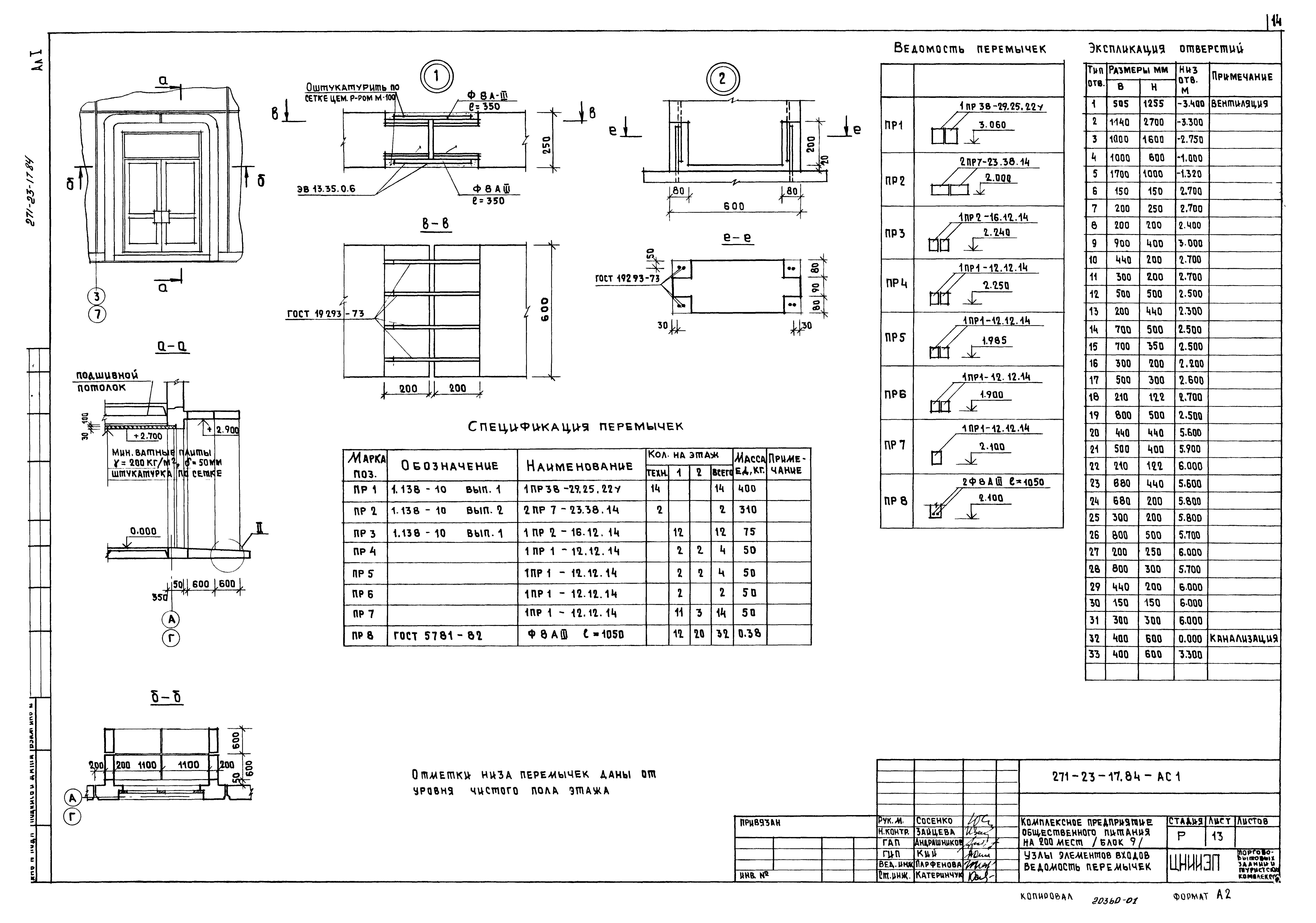
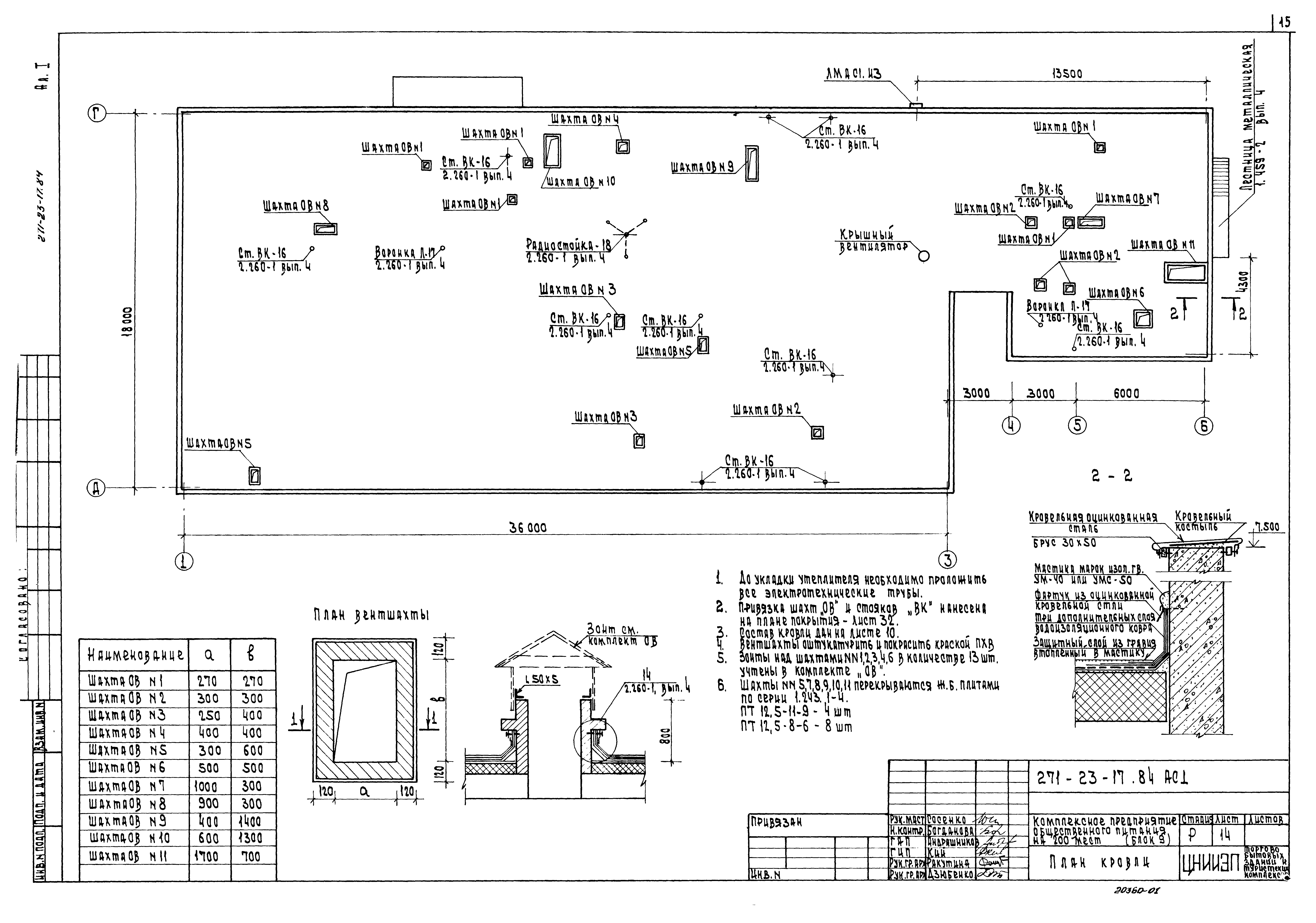
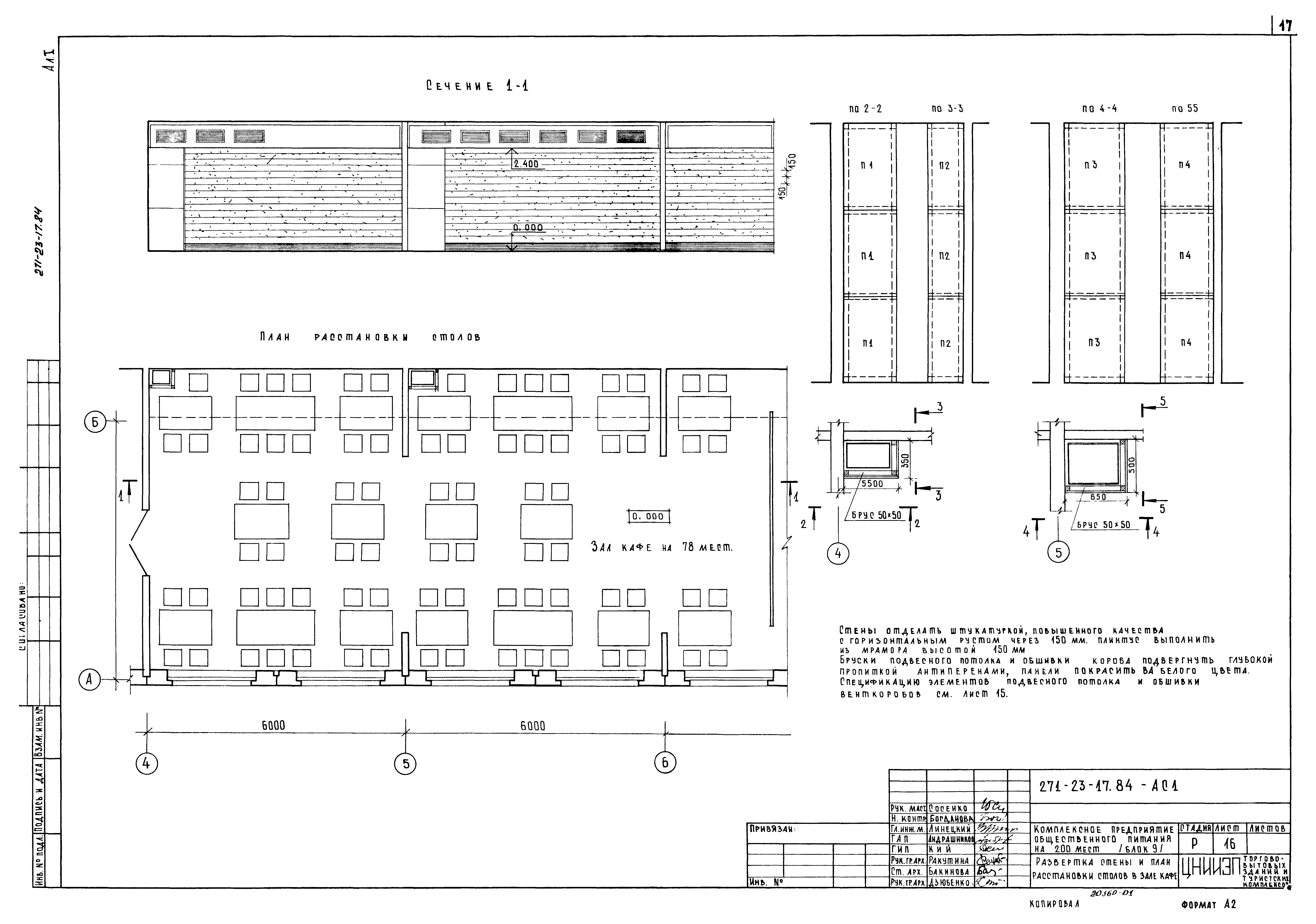
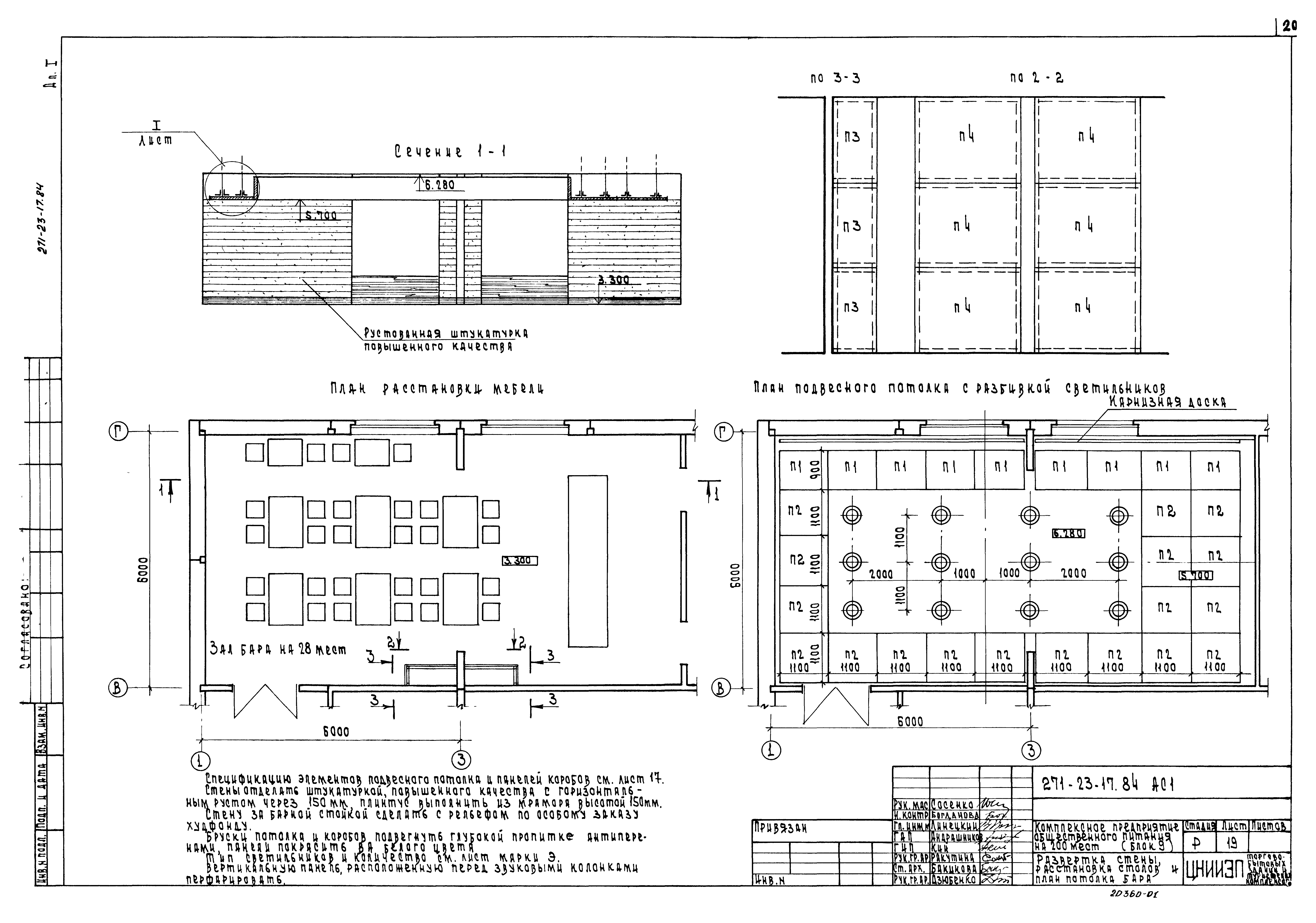
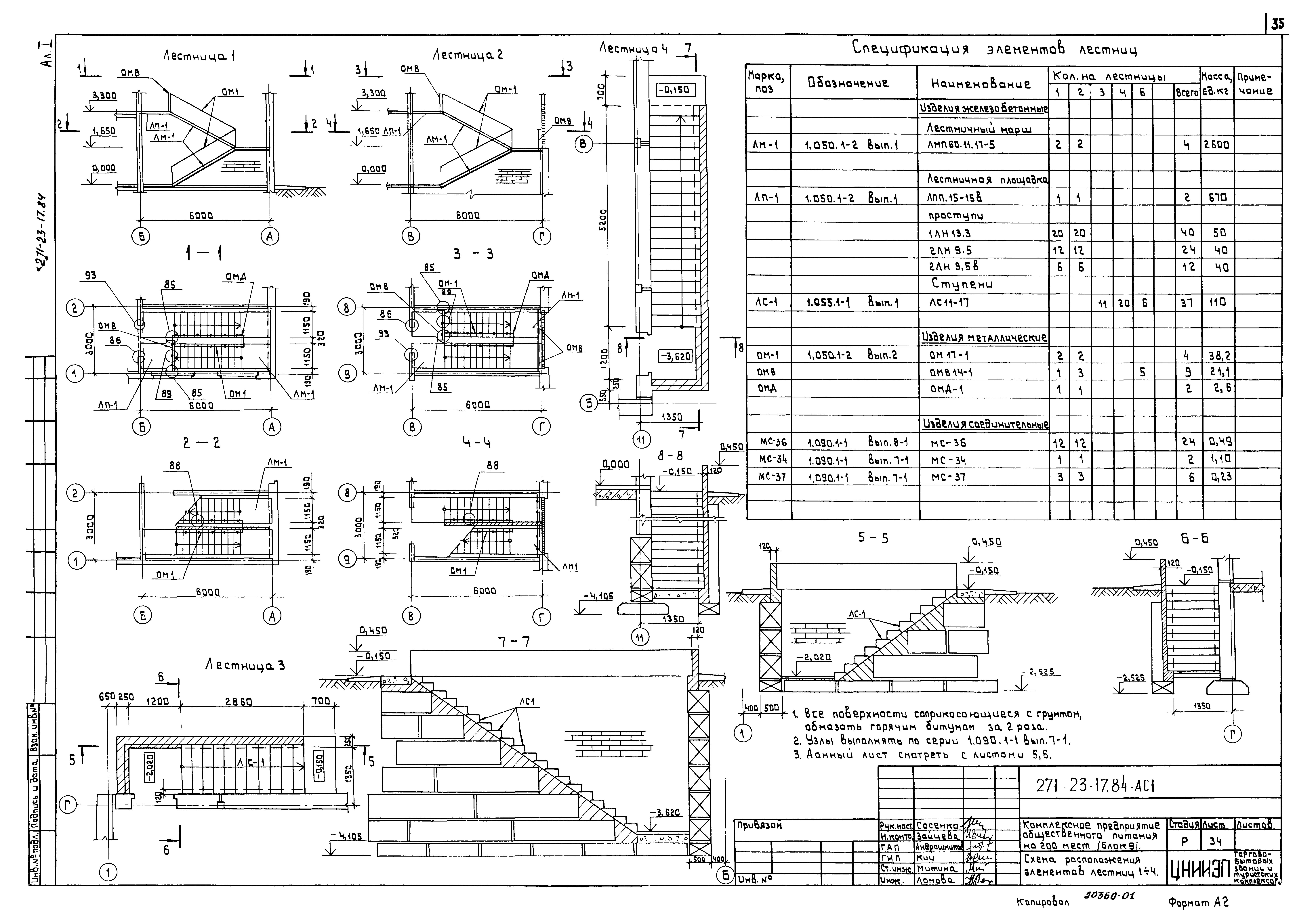
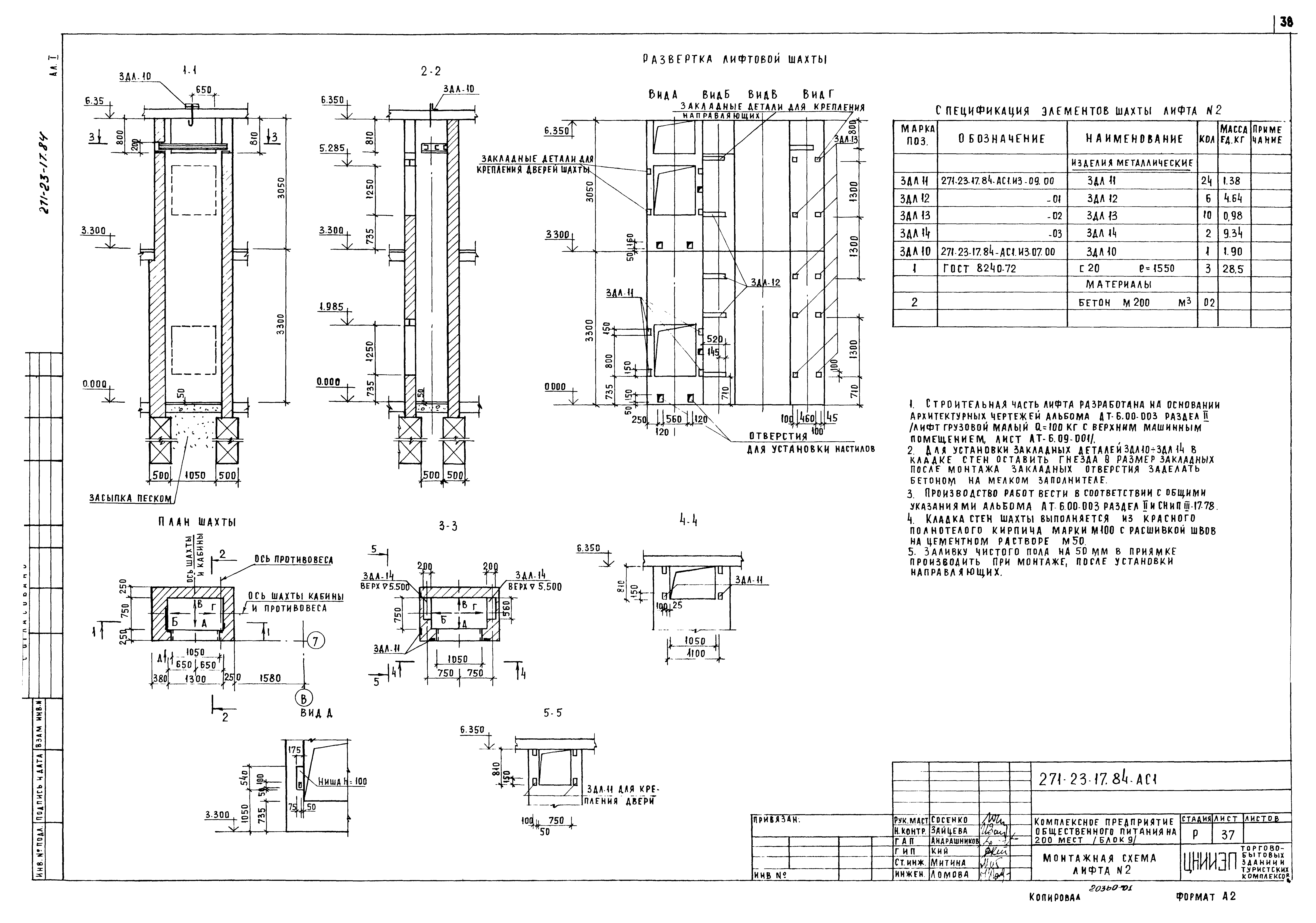
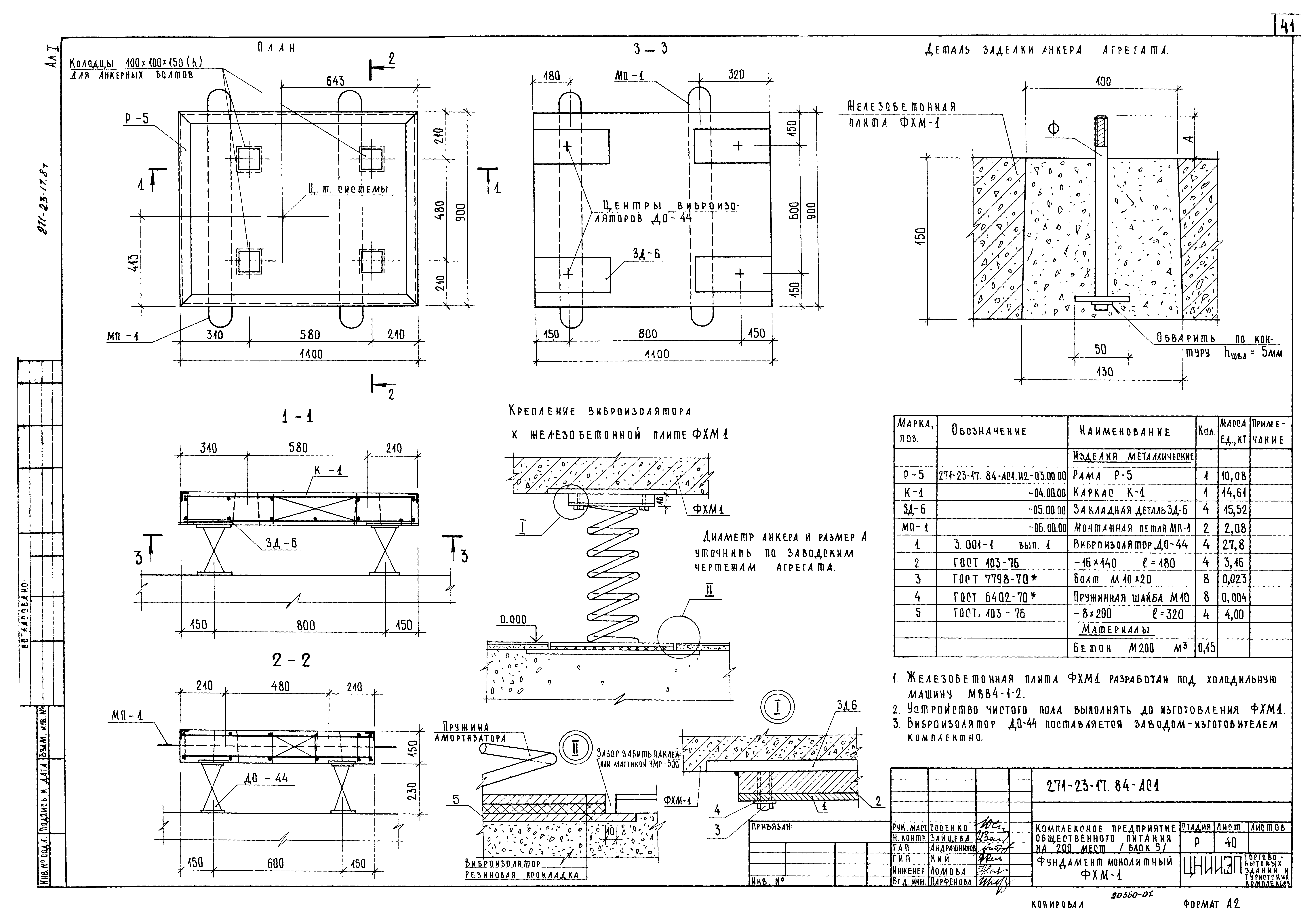
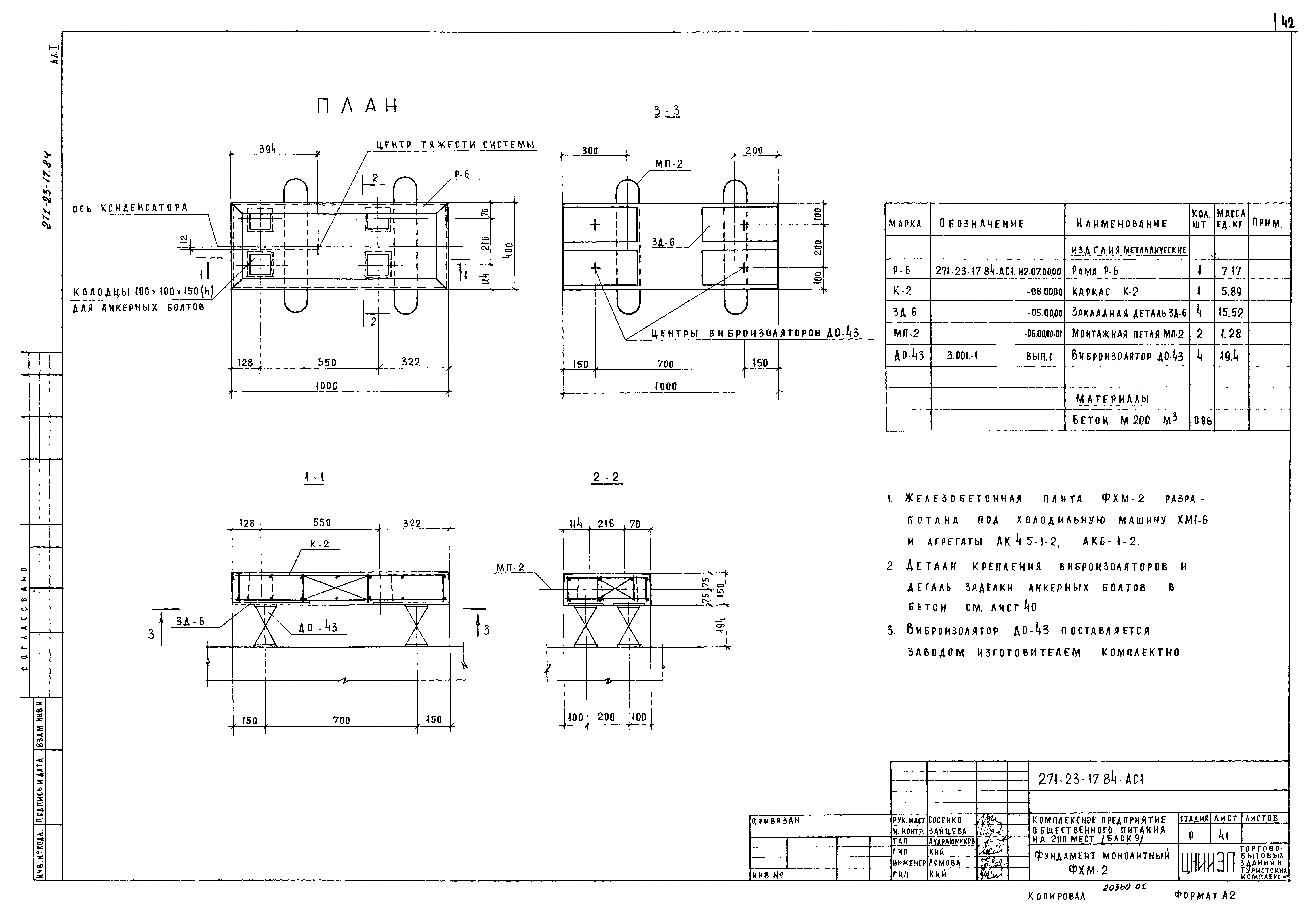
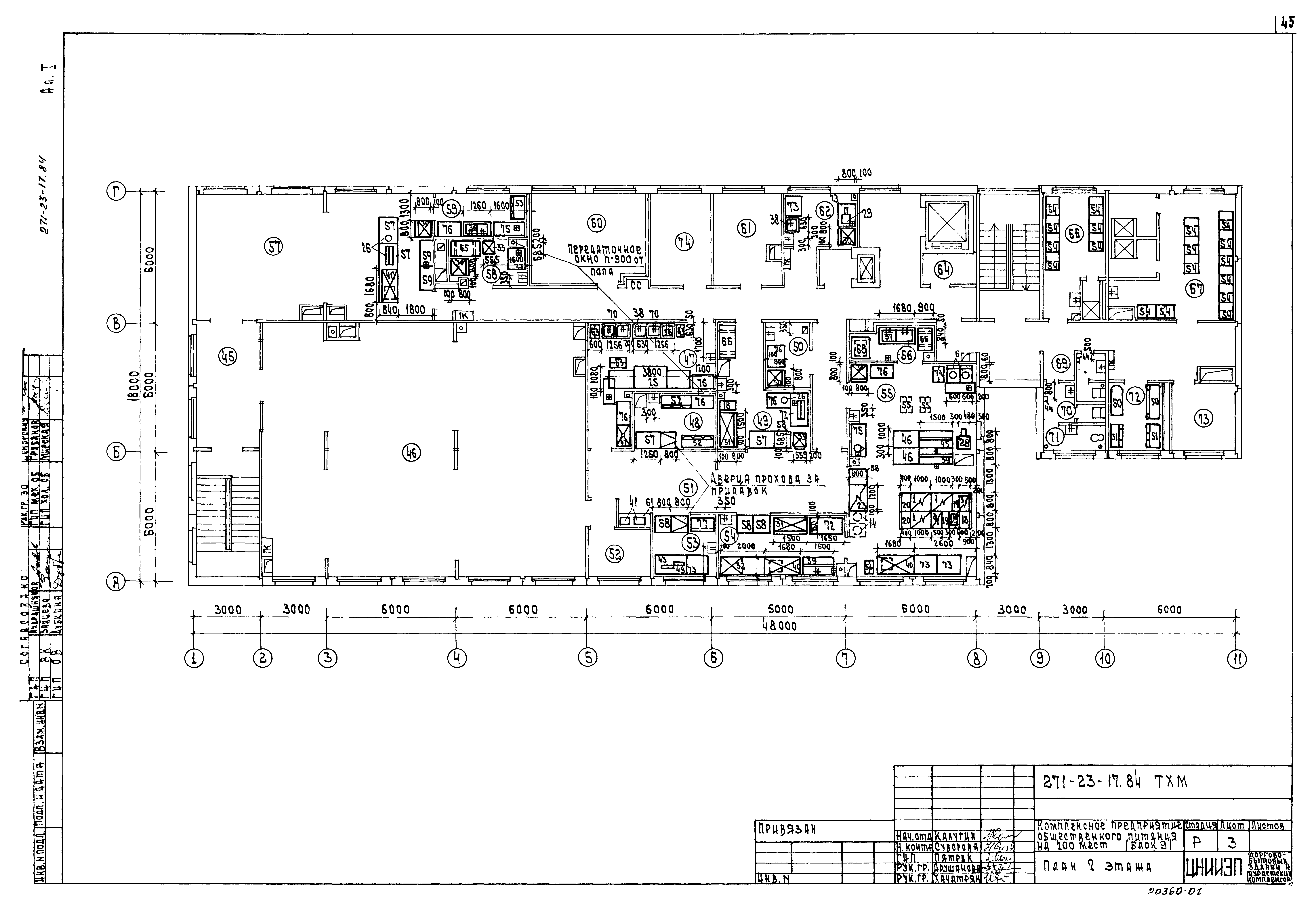
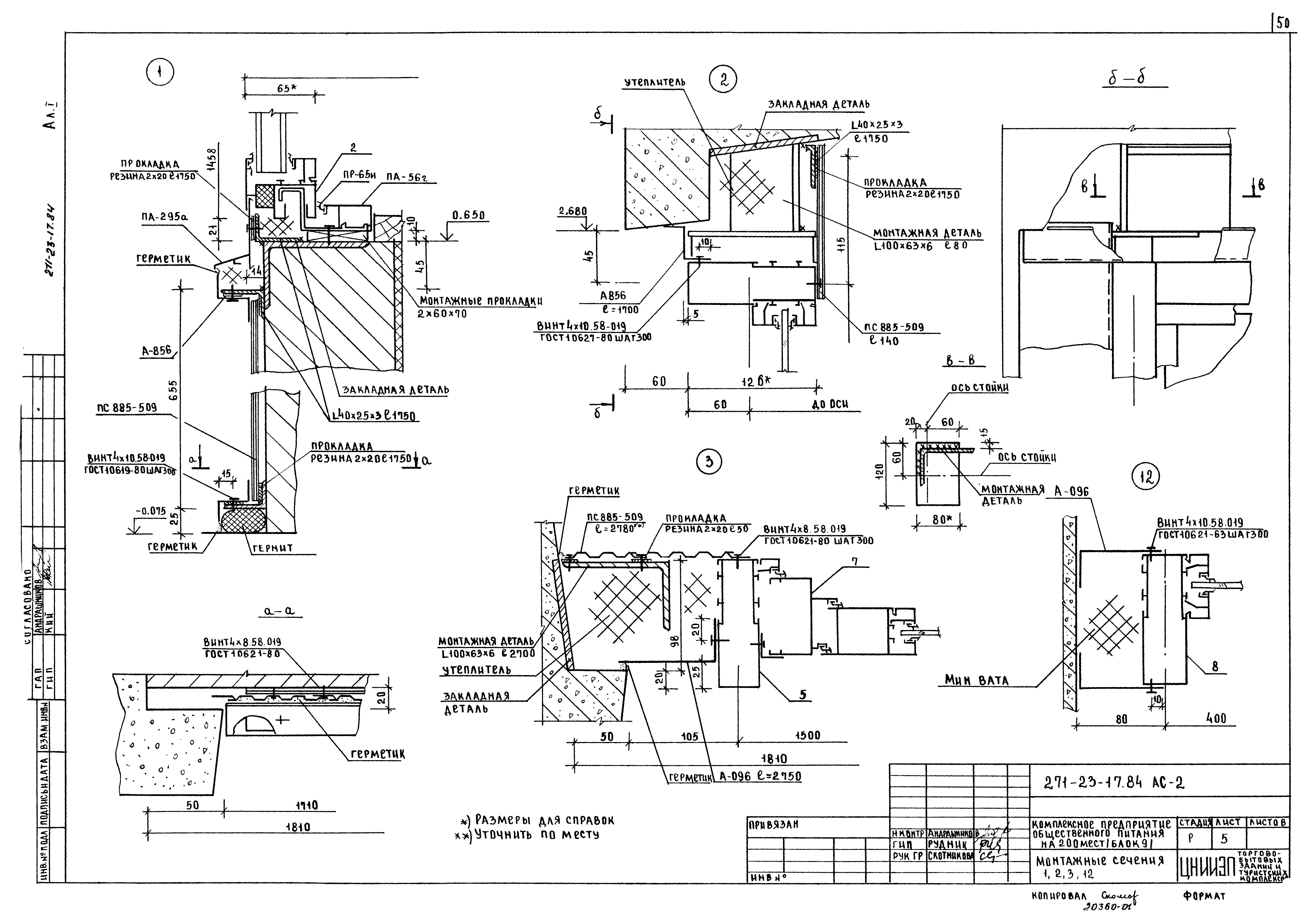
| Оглавление: | Архитектурно-строительные решения Общие данные План технического подполья План 1 этажа План 2 этажа Фасады 1 - 11, 11 - 1 Фасады А - Г, Г - А Разрезы 1-1, 2-2. Фрагменты фасадов 1, 2, 3 Фрагменты плана 1, 4, 5, 6 Фрагменты плана 2, 3 (охлаждаемые камеры) Узлы элементов входов, ведомость перемычек План кровли План потолка зала кафе Развертка стены и план расстановки столов в зале кафе План потолка зала ресторана Развертка стены и план расстановки столов в зале ресторана Развертка стены и план расстановки столов и план потолка бара Заполнение ж/б рам. Узлы перегородок Звено асбестоцементного воздуховода Схема нагрузок на элементы фундаментов и схема нагрузок на элементы перекрытий и покрытия Схема расположения элементов фундаментов Сечения к схемам расположения элементов фундаментов Схемы расположения наружных и внутренних стен техподполья и элементов парапета Схемы расположения элементов наружных и внутренних стен 1 и 2 этажа Спецификация к схемам расположения стеновых панелей при толщине наружных стен 400 мм Схема расположения элементов перекрытия на отм. 0.000 Схема расположения элементов перекрытия на отм. 3.300 Схема расположения элементов покрытия Спецификация к схемам расположения элементов перекрытий и покрытия Схема расположения элементов лестниц 1 - 4 Монтажная схема лифта №1 Чертеж на заказ лифта №1 Монтажная схема лифта №2 Чертеж на заказ лифта №2 Монтажная схема расположения закладных деталей для крепления витражей Фундамент монолитный ФХМ-1 Фундамент монолитный ФХМ-2 Технология и механизация Общие данные План 1 этажа План 2 этажа Витражи Общие данные Спецификация элементов оконных блоков и тамбуров Схема расположения оконных блоков и тамбуров в осях 1 - 11 (1 этаж) Схема расположения оконных блоков и тамбуров в осях 1 - 11 и тамбуров в осях В - б (2 этаж). Тамбур в осях В - Б (1 этаж) Монтажные сечения 1, 2, 3, 12 Монтажные сечения 4, 5, 6, 7, 8, 9, 10, 11, 13 |
| Разработан: | ЦНИИЭП торгово-бытовых зданий и туристских комплексов |
| Утверждён: | 12.11.1981 Госгражданстрой (Gosgrazhdanstroy 317) |



















































