Скачать Типовой проект 409-28-38 Альбом IV. Отопление и вентиляция. Внутренние водопровод и канализацияДата актуализации: 01.01.2021
|
| Обозначение: | Типовой проект 409-28-38 |
| Обозначение англ: | 409-28-38 |
| Статус: | действует |
| Название рус.: | Альбом IV. Отопление и вентиляция. Внутренние водопровод и канализация |
| Дата добавления в базу: | 01.09.2013 |
| Дата актуализации: | 01.01.2021 |
| Дата введения: | 17.10.1979 |
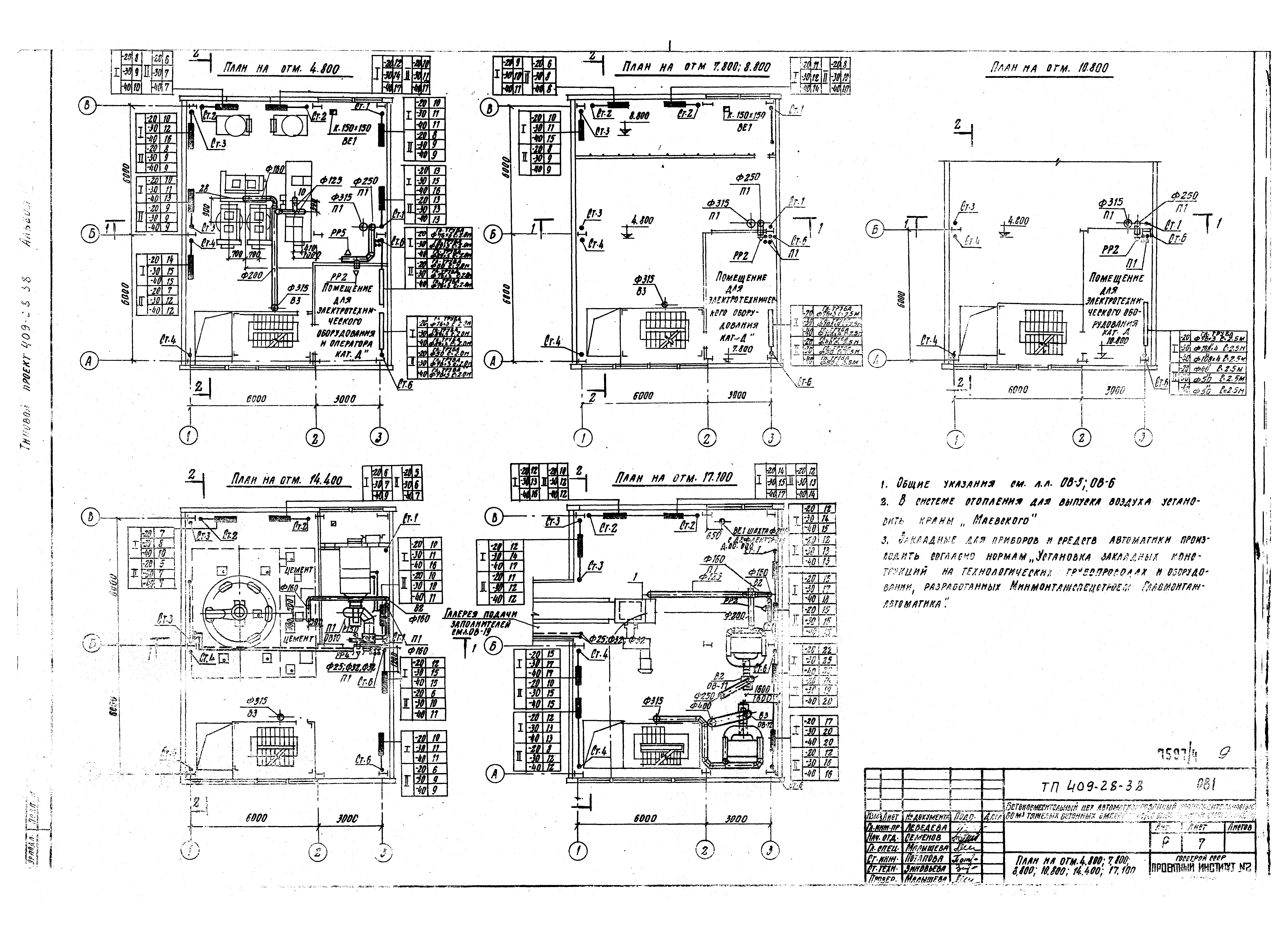
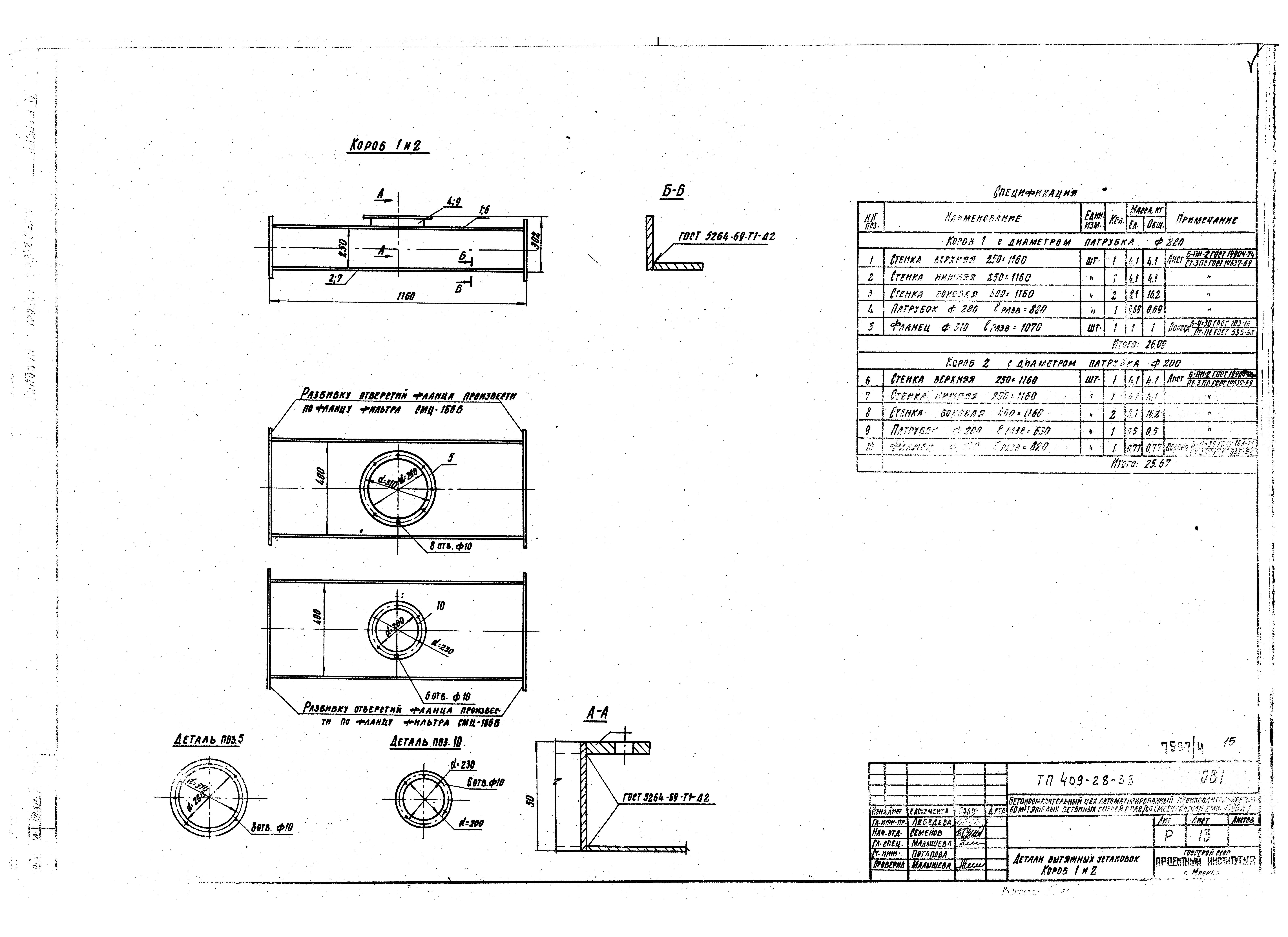
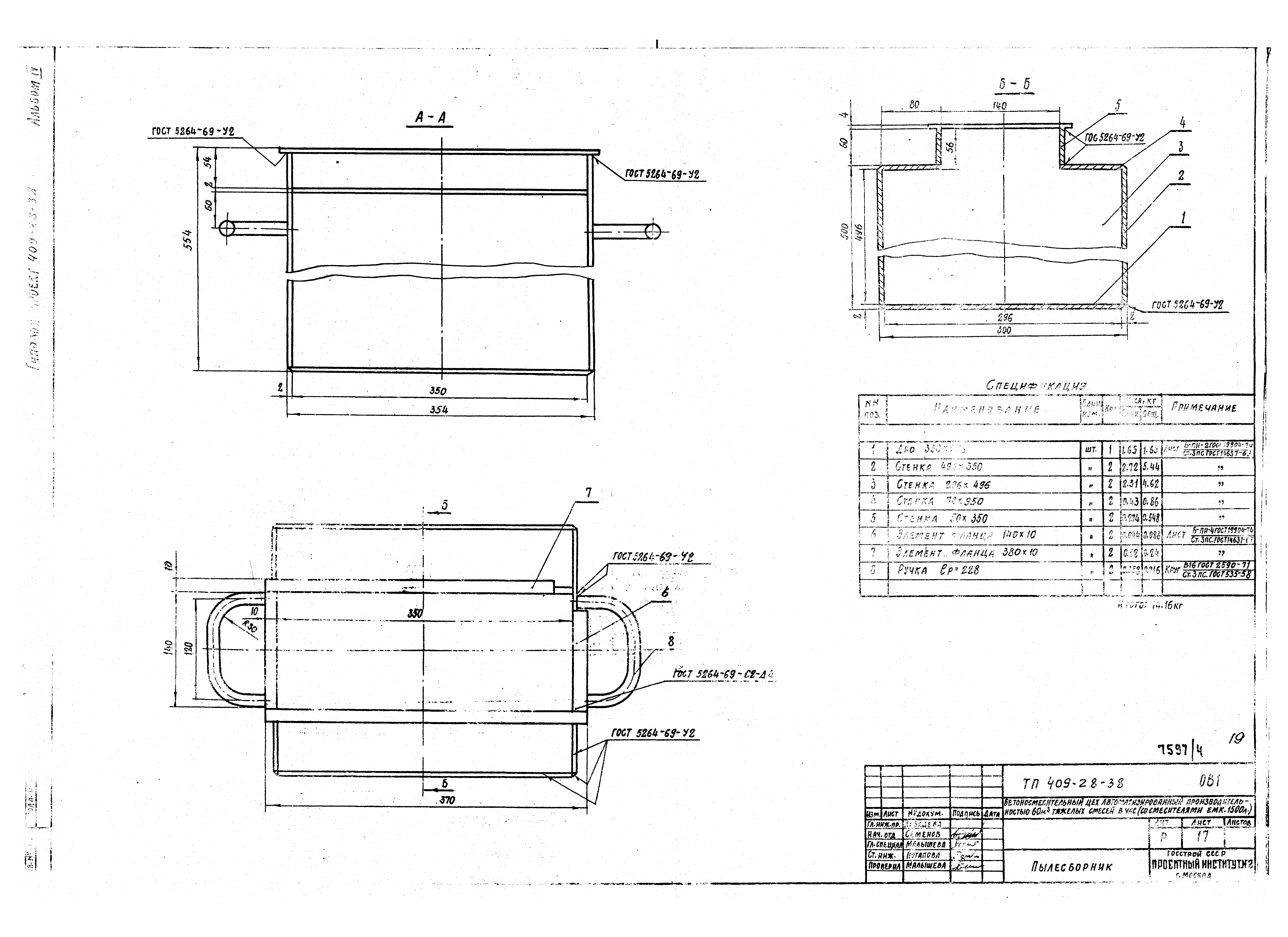
| Оглавление: | Содержание альбома Отопление и вентиляция Общие данные План систем отопления и вентиляции на отм. - 9.000; - 4.300; 20.000. Узел управления План систем отопления и вентиляции на отм. 4.800; 7.800; 8.800; 10.800; 14.400; 17.100 Разрез 1-1, 2-2 Система отопления. Схема обвязки водоподогревателя. Система снабжения установки П1 Установка системы П1. Разрез 1-1. Схема системы П1 Установка системы В2. Разрез 1-1. Схема системы В2 Установка системы В3. Разрез 1-1. Схема системы В3 Детали вытяжных установок. Короб 1 и 2 Детали вытяжных установок. Короб 4 и отвод. Диффузор Детали вытяжных установок. Короб 3 Детали вытяжных установок. Короб 5 и 6 Пылесборник Шибер к пылесборнику Галерея. План системы отопления. Разрез 1-1. Система отопления Внутренние водопровод и канализация Общие данные Планы на отм. 0.000; 4.800; 7.800; 14.400; 17.100 с сетями систем В1, В9, К1, К2, К3 План на отм. - 9.000, план кровли с сетями систем В1, В9, Т3, К1, К2. Схемы систем В1, В9, Т3, К1, К2, К3 |
| Разработан: | Гипростроммаш |
| Утверждён: | 23.09.1979 Госстрой СССР (Государственный комитет Совета Министров СССР по делам строительства) (USSR Gosstroy 43) |

























