Скачать Типовой проект 409-28-38 Альбом XI. Часть 1. Чертежи нестандартизированного оборудованияДата актуализации: 01.01.2021
|
| Обозначение: | Типовой проект 409-28-38 |
| Обозначение англ: | 409-28-38 |
| Статус: | действует |
| Название рус.: | Альбом XI. Часть 1. Чертежи нестандартизированного оборудования |
| Дата добавления в базу: | 01.09.2013 |
| Дата актуализации: | 01.01.2021 |
| Дата введения: | 17.10.1979 |
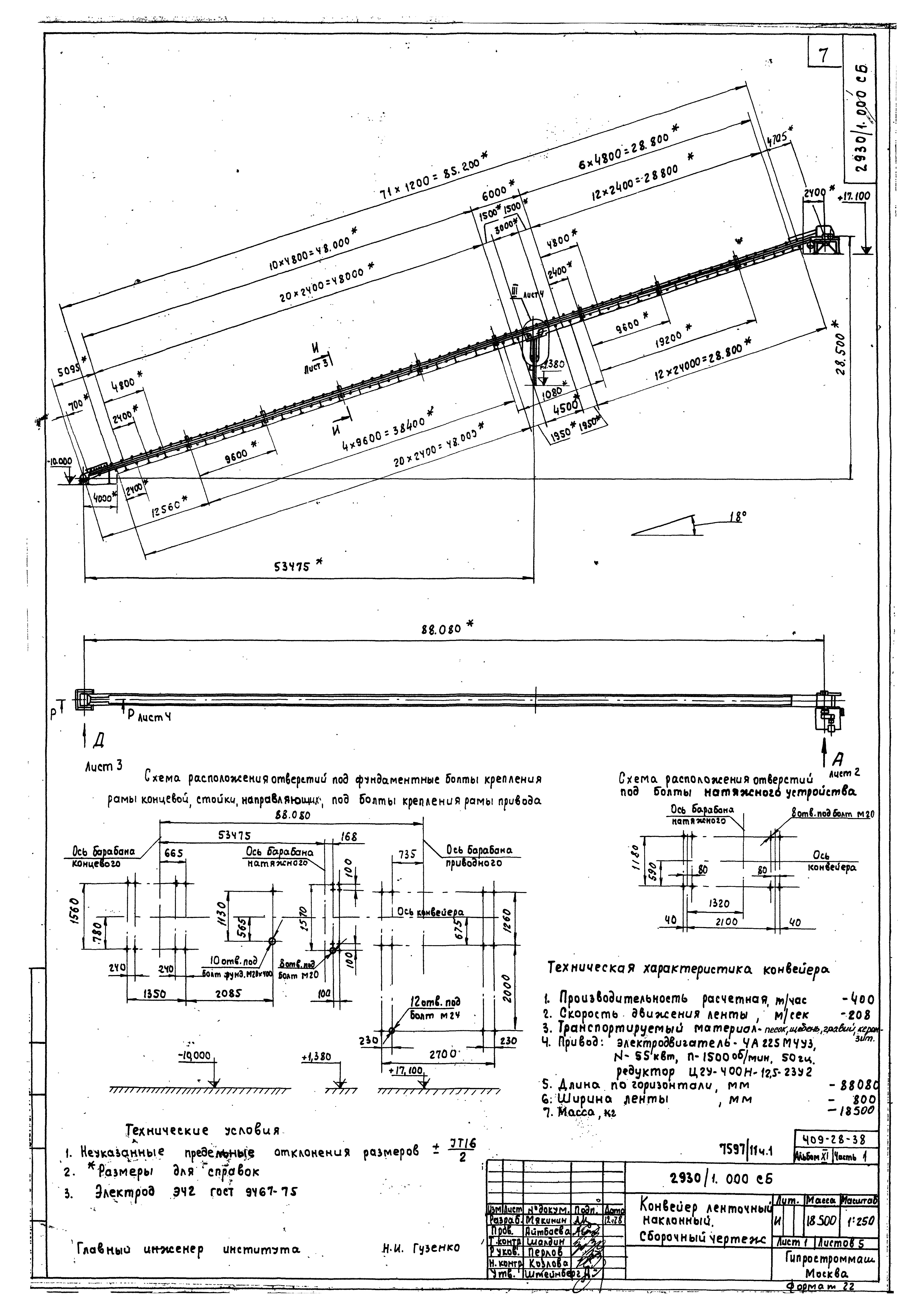
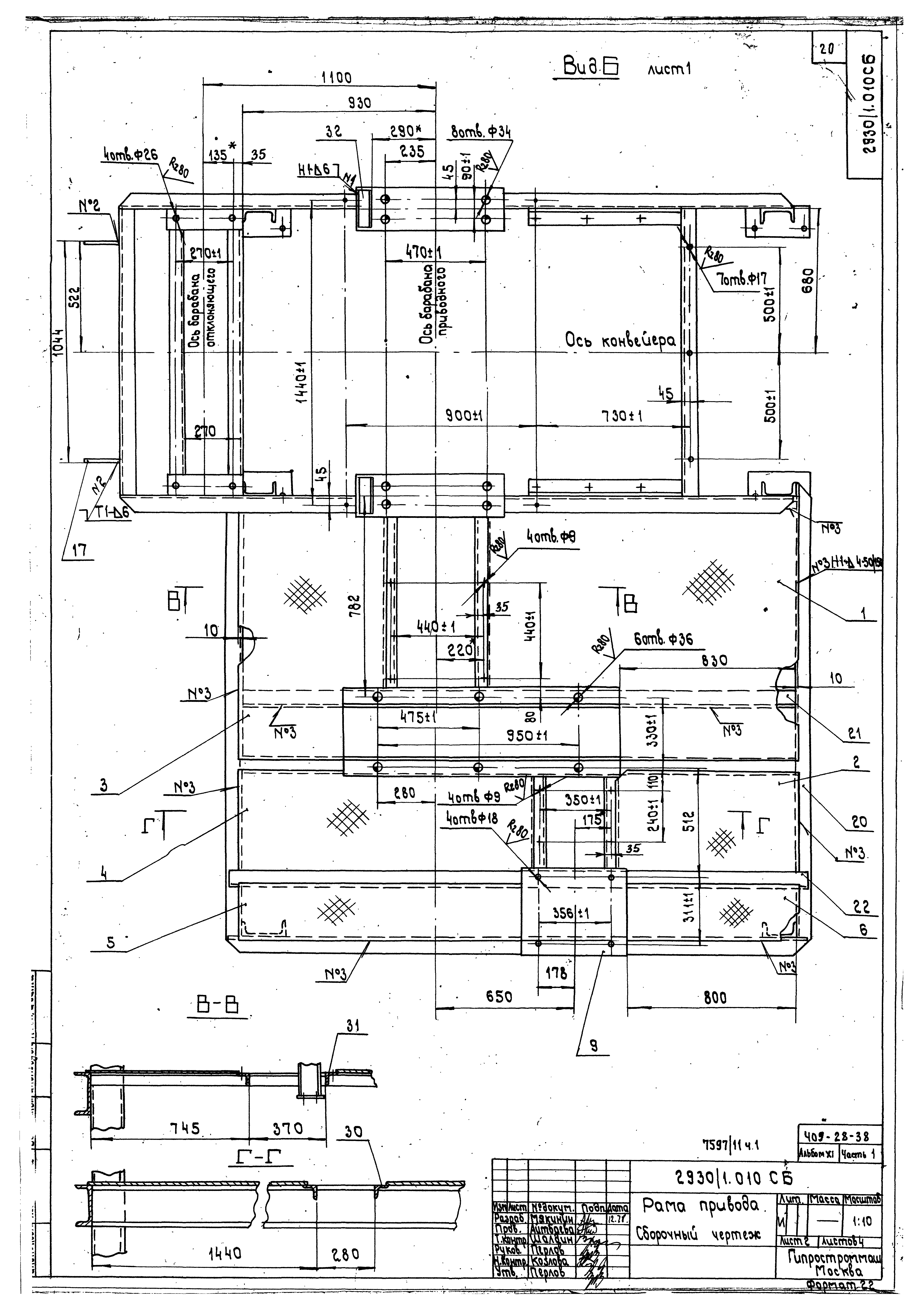
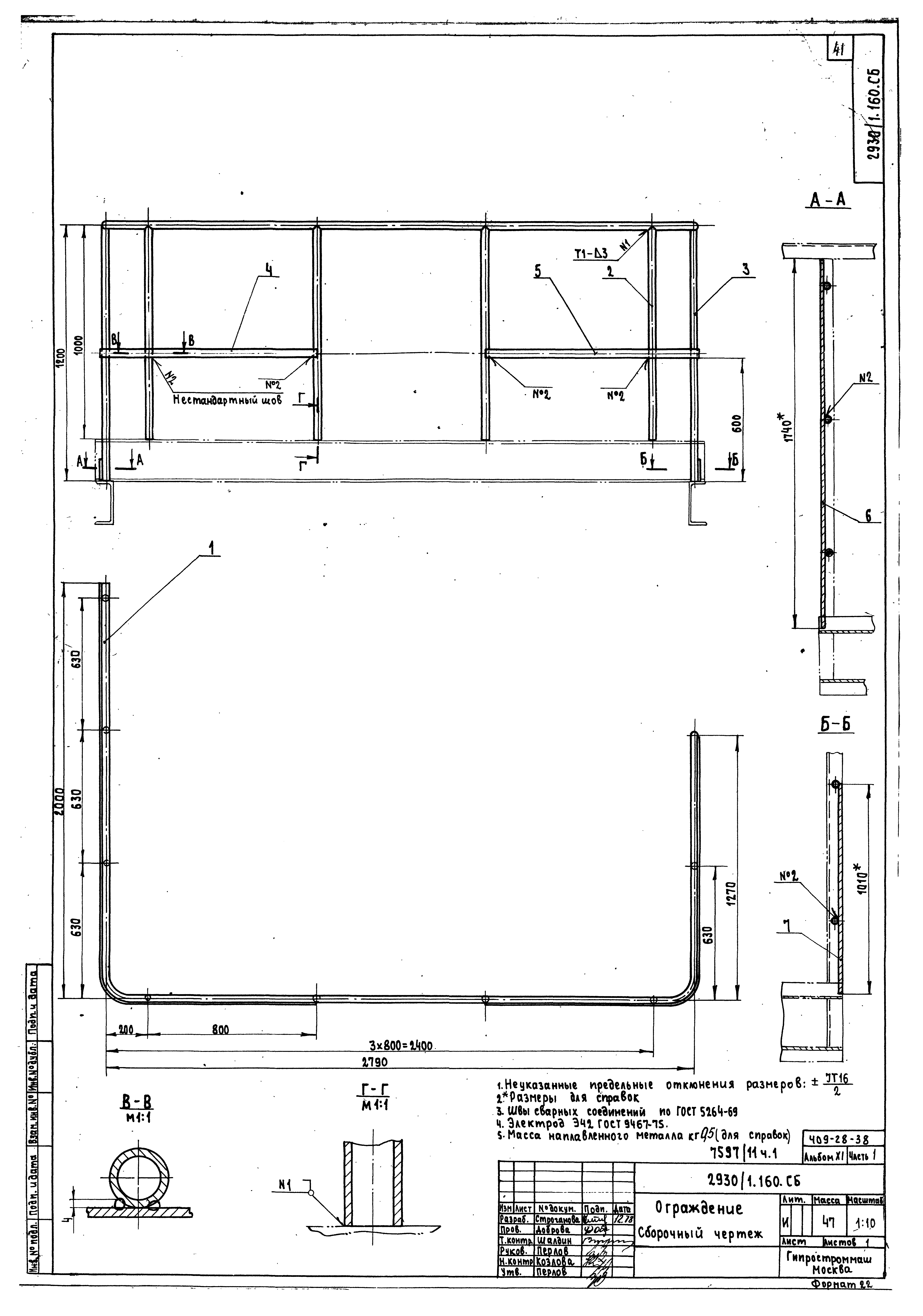
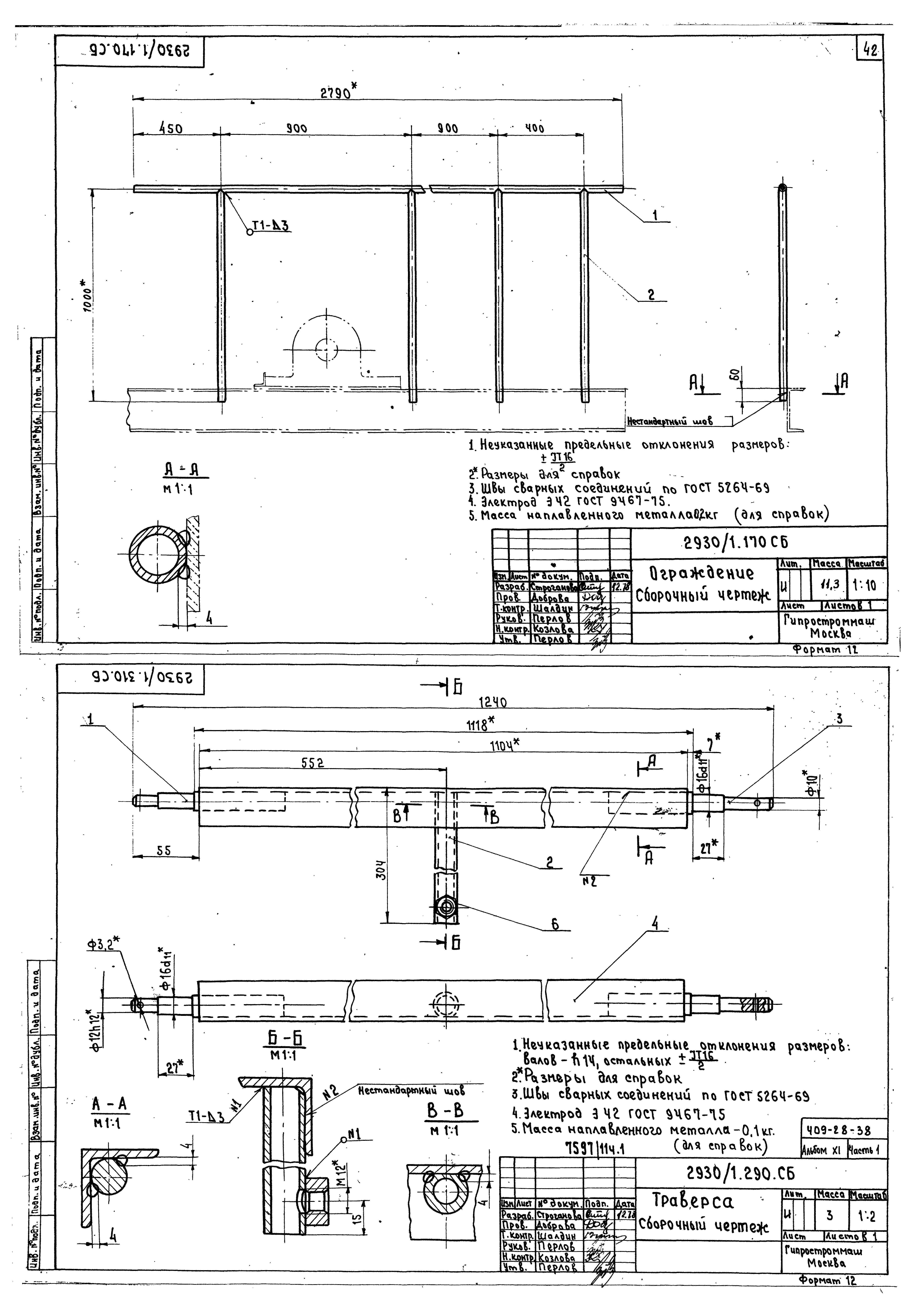
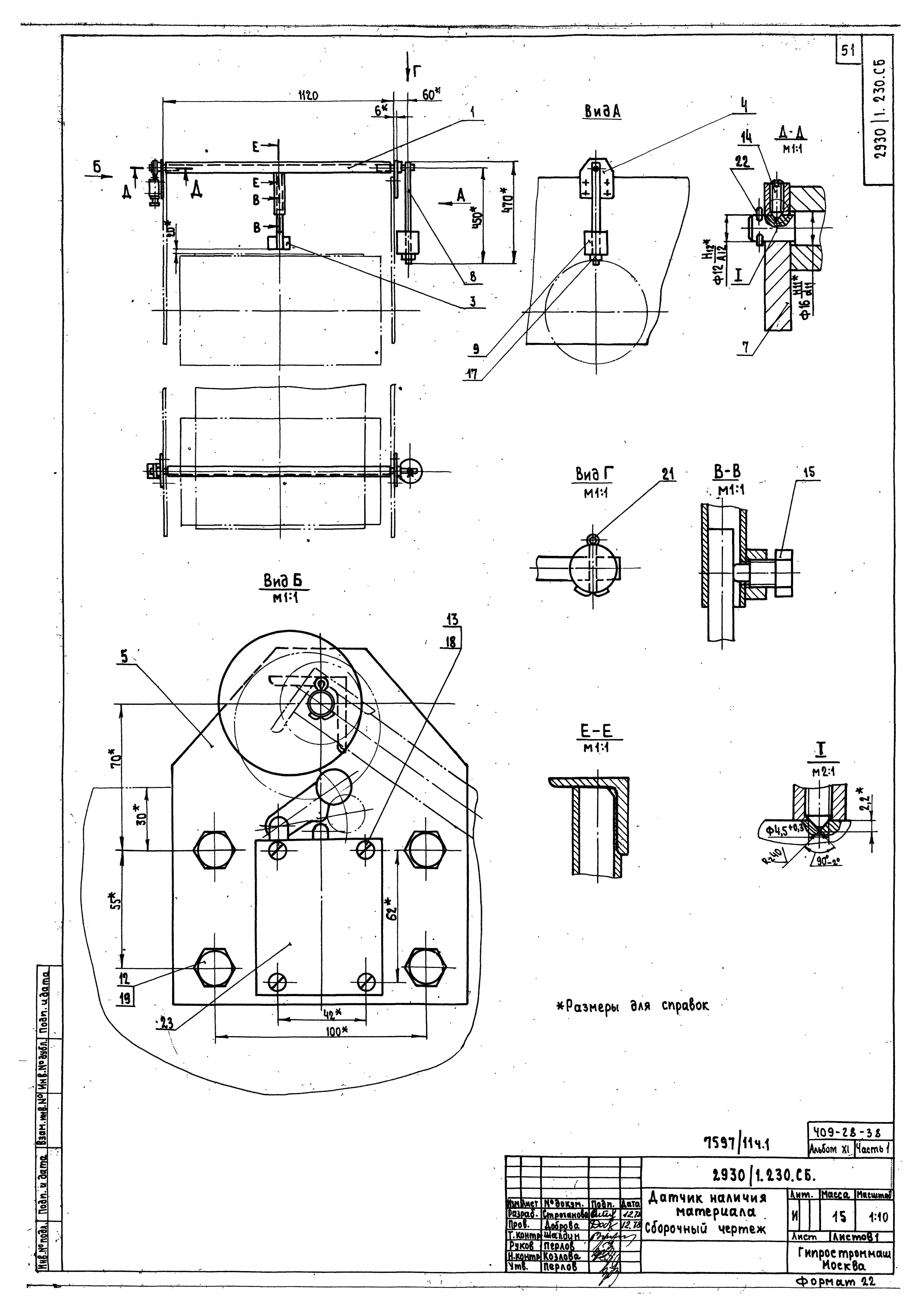
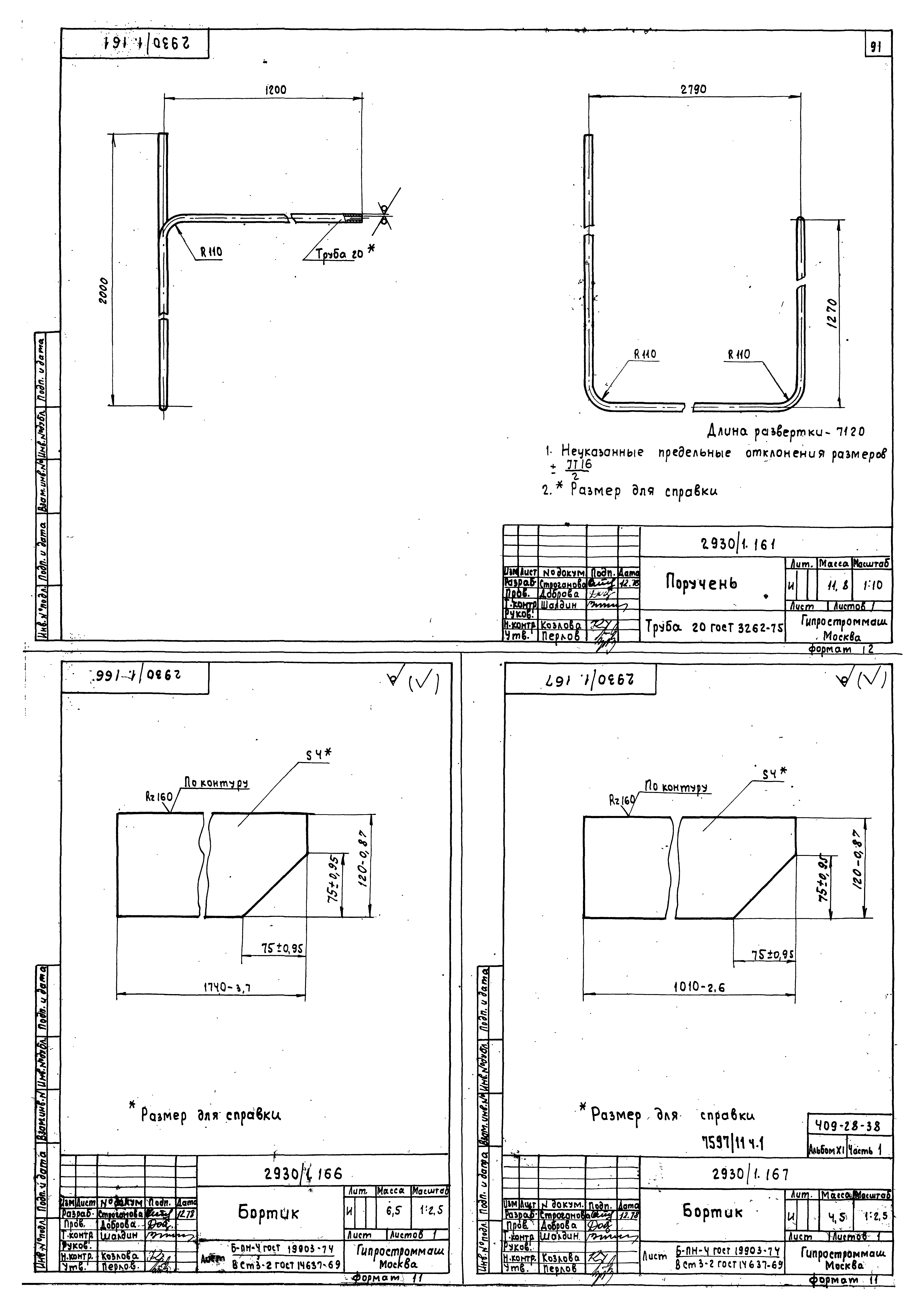
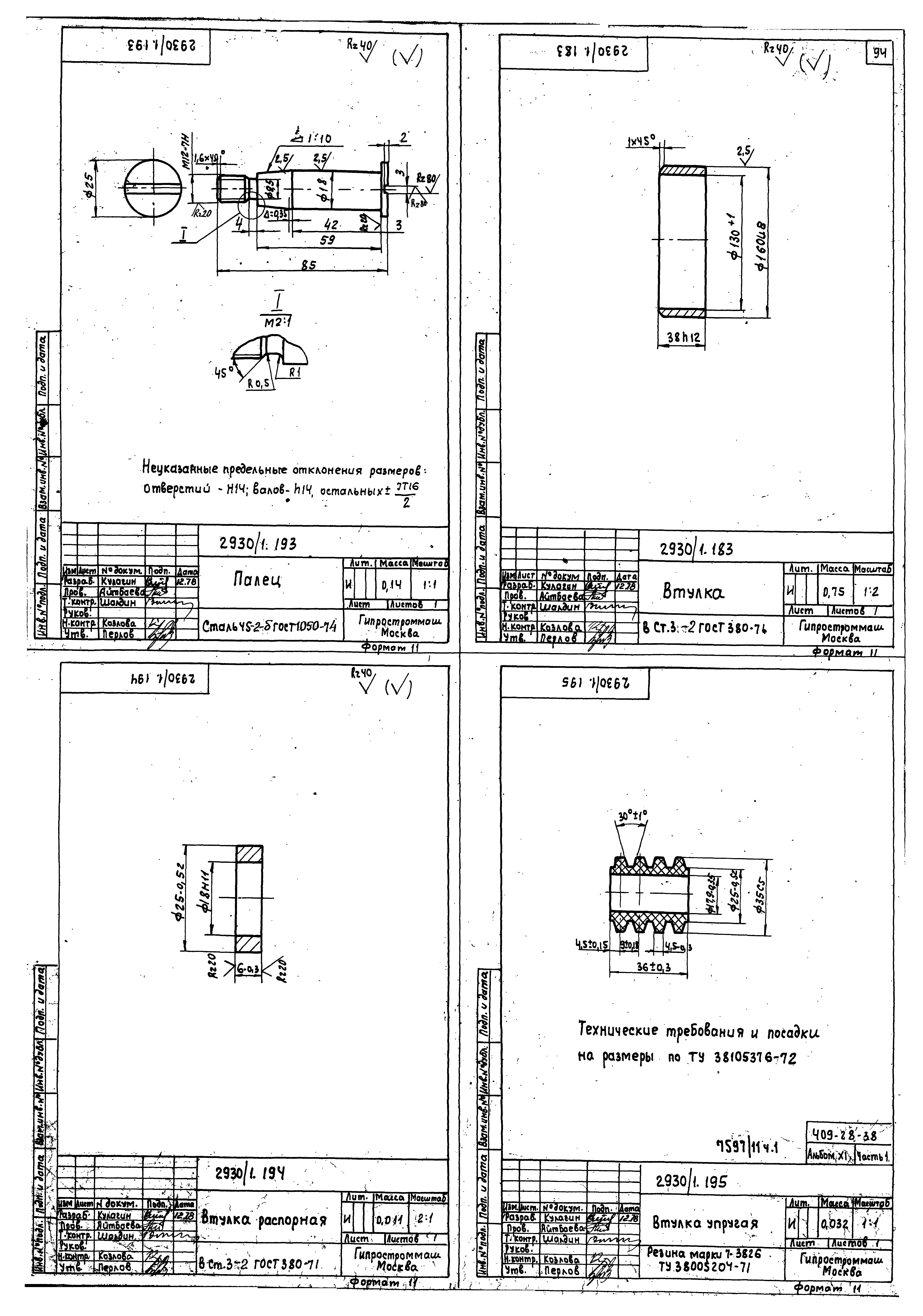
| Оглавление: | Перечень чертежей 2930/1.000 Конвейер ленточный наклонный 2930/1.000СБ Конвейер ленточный наклонный 2930/1.000ЭЧ Схема электрическая соединений 2930/1.000ВС Ведомость спецификаций 2930/1.000ВП Ведомость покупных изделий 2930/1.000ВМ Ведомость материалов 2930/1.000Д1 Опросный лист 2930/1.010 Рама привода 2930/1.010СБ Рама привода 2930/1.020 Рама концевая 2930/1.020СБ Рама концевая 2930/1.030 Направляющая 2930/1.030СБ Направляющая 2930/1.040 Направляющая 2930/1.040СБ Направляющая 2930/1.050 Секция концевая 2930/1.050СБ Секция концевая 2930/1.060 Секция промежуточная 2930/1.060СБ Секция промежуточная 2930/1.070 Секция промежуточная 2930/1.070СБ Секция промежуточная 2930/1.080 Секция головная 2930/1.080СБ Секция головная 2930/1.090 Стойка 2930/1.090СБ Стойка 2930/1.100 Стойка 2930/1.100СБ Стойка 2930/1.110 Рама натяжного устройства 2930/1.110СБ Рама натяжного устройства 2930/1.120 Воронка 2930/1.120СБ Воронка 2930/1.130 Ограждение 2930/1.130СБ Ограждение 2930/1.140 Ограждение 2930/1.140СБ Ограждение 2930/1.150 Лестница 2930/1.150СБ Лестница 2930/1.160 Ограждение 2930/1.160СБ Ограждение 2930/1.170 Ограждение 2930/1.170СБ Ограждение 2930/1.180 Муфта кулачково-дисковая 2930/1.180СБ Муфта кулачково-дисковая 2930/1.190 Муфта упругая-втулочно-пальцевая 2930/1.190СБ Муфта упругая-втулочно-пальцевая 2930/1.200 Кронштейн 2930/1.200СБ Кронштейн 2930/1.210 Лоток загрузочный 2930/1.210СБ Лоток загрузочный 2930/1.220 Лоток концевой 2930/1.220СБ Лоток концевой 2930/1.230 Датчик наличия материала 2930/1.230СБ Датчик наличия материала 2930/1.240 Электрооборудование 2930/1.240СБ Электрооборудование 2930/1.250 Стенка боковая 2930/1.250СБ Стенка боковая 2930/1.260 Стенка боковая 2930/1.260СБ Стенка боковая 2930/1.270 Стенка 2930/1.270СБ Стенка 2930/1.280 Стенка 2930/1.280СБ Стенка 2930/1.290 Траверса 2930/1.290СБ Траверса 2930/1.300 Поплавок 2930/1.300СБ Поплавок 2930/1.310 Плита 2930/1.310СБ Плита 2930/1.320 Плита 2930/1.320СБ Плита 2930/1.330 Коробка клеммная 2930/1.330СБ Коробка клеммная 2930/1.340 Тройниковое соединение 2930/1.340СБ Тройниковое соединение 2930/1.350 Корпус 2930/1.350СБ Корпус 2930/1.360 Концевое соединение К13 2930/1.360СБ Концевое соединение К13 2930/1.370 Ввод трубы 1 2930/1.370СБ Ввод трубы 1 2930/1.380 Тройник 2930/1.380СБ Тройник 2930/1.390 Концевое соединение 2930/1.390СБ Концевое соединение 2930/1.001 Крышка 2930/1.002 Прокладка 2930/1.003 Пластина 2930/1.004 Болт фундаментный м20х400 2930/1.011 Настил 2930/1.012 Настил 2930/1.013 Настил 2930/1.014 Настил 2930/1.015 Настил 2930/1.016 Настил 2930/1.017 Плита 2930/1.018 Прокладка 2930/1.019 Плита 2930/1.021 Платик 2930/1.022 Ребро 2930/1.023 Ребро 2930/1.024 Косынка 2930/1.025 Косынка 2930/1.026 Платик 2930/1.027 Платик 2930/1.028 Платик 2930/1.029 Балка 2930/1.031 Балка 2930/1.032 Балка 2930/1.033 Балка 2930/1.034 Балка 2930/1.035 Стойка 2930/1.036 Стояк 2930/1.037 Связь 2930/1.038 Связь 2930/1.039 Связь 2930/1.041 Раскос 2930/1.042 Раскос 2930/1.043 Связь 2930/1.044 Связь 2930/1.045 Упор 2930/1.046 Стойка 2930/1.047 Ребро 2930/1.048 Балка 2930/1.049 Упор 2930/1.051 Стойка 2930/1.052 Плита 2930/1.053 Связь 2930/1.054 Упор 2930/1.055 Ребро 2930/1.056 Плита 2930/1.057 Связь 2930/1.058 Стойка 2930/1.059 Плита 2930/1.061 Ребро 2930/1.062 Плита 2930/1.063 Балка 2930/1.064 Связь 2930/1.065 Балка 2930/1.066 Полоса 2930/1.071 Балка 2930/1.081 Балка 2930/1.091 Стойка 2930/1.092 Стойка 2930/1.093 Связь 2930/1.094 Кронштейн 2930/1.095 Основание 2930/1.101 Стойка 2930/1.102 Стойка 2930/1.103 Связь 2930/1.111 Балка 2930/1.112 Ребро 2930/1.113 Плита 2930/1.114 Ребро 2930/1.115 Упор 2930/1.116 Балка 2930/1.121 Стенка 2930/1.122 Ребро 2930/1.123 Стенка 2930/1.124 Крышка 2930/1.125 Опора 2930/1.126 Лапка 2930/1.127 Крышка 2930/1.128 Платик 2930/1.129 Стенка 2930/1.131 Ребро 2930/1.132 Обечайка 2930/1.133 Стенка 2930/1.141 Обечайка 2930/1.142 Стенка 2930/1.151 Планка 2930/1.152 Перила 2930/1.153 Опора 2930/1.154 Пруток 2930/1.155 Пруток 2930/1.156 Плита 2930/1.161 Поручень 2930/1.162 Стойка 2930/1.163 Стойка 2930/1.164 Перемычка 2930/1.165 Перемычка 2930/1.166 Бортик 2930/1.167 Бортик 2930/1.171 Поручень 2930/1.181 Полумуфта 2930/1.182 Диск 2930/1.183 Втулка 2930/1.184 Полумуфта 2930/1.191 Полумуфта 2930/1.192 Полумуфта 2930/1.193 Палец 2930/1.194 Втулка распорная 2930/1.195 Втулка упругая 2930/1.201 Кронштейн 2930/1.202 Ребро 2930/1.203 Платик 2930/1.211 Стенка 2930/1.212 Фартук 2930/1.213 Накладка 2930/1.214 Фартук 2930/1.215 Накладка 2930/1.216 Стойка 2930/1.221 Накладка 2930/1.222 Фартук 2930/1.231 Кулачок 2930/1.232 Тяга 2930/1.233 Груз 2930/1.241 Плита 2930/1.242 Скоба 2930/1.243 Скоба 2930/1.244 Скоба 2930/1.245 Скоба 2930/1.251 Стенка 2930/1.252 Проушина 2930/1.261 Стенка 2930/1.271 Стенка 2930/1.272 Косынка 2930/1.281 Стенка 2930/1.291 Ось 2930/1.292 Патрубок 2930/1.293 Ось 2930/1.294 Связь 2930/1.301 Штанга 2930/1.302 Платик 2930/1.311 Плита 2930/1.312 Бобышка 2930/1.321 Планка 2930/1.331 Крышка 2930/1.332 Прокладка 2930/1.351 Платик 2930/1.352 Бобышка 2930/1.353 Обечайка 2930/1.354 Пояс 2930/1.355 Дно 2930/1.361 Корпус 2930/1.362 Штуцер 2930/1.363 Шайба 2930/1.364 Прокладка 2930/1.371 Втулка 2930/1.381 Корпус 2930/1.382 Крышка 2930/1.383 Прокладка 2930/1.391 Корпус |
| Разработан: | Гипростроммаш |
| Утверждён: | 23.09.1979 Госстрой СССР (Государственный комитет Совета Министров СССР по делам строительства) (USSR Gosstroy 43) |






























































































