Скачать Типовой проект 409-28-38 Альбом XI. Часть 3. Чертежи нестандартизированного оборудованияДата актуализации: 01.01.2021
|
| Обозначение: | Типовой проект 409-28-38 |
| Обозначение англ: | 409-28-38 |
| Статус: | действует |
| Название рус.: | Альбом XI. Часть 3. Чертежи нестандартизированного оборудования |
| Дата добавления в базу: | 01.09.2013 |
| Дата актуализации: | 01.01.2021 |
| Дата введения: | 17.10.1979 |
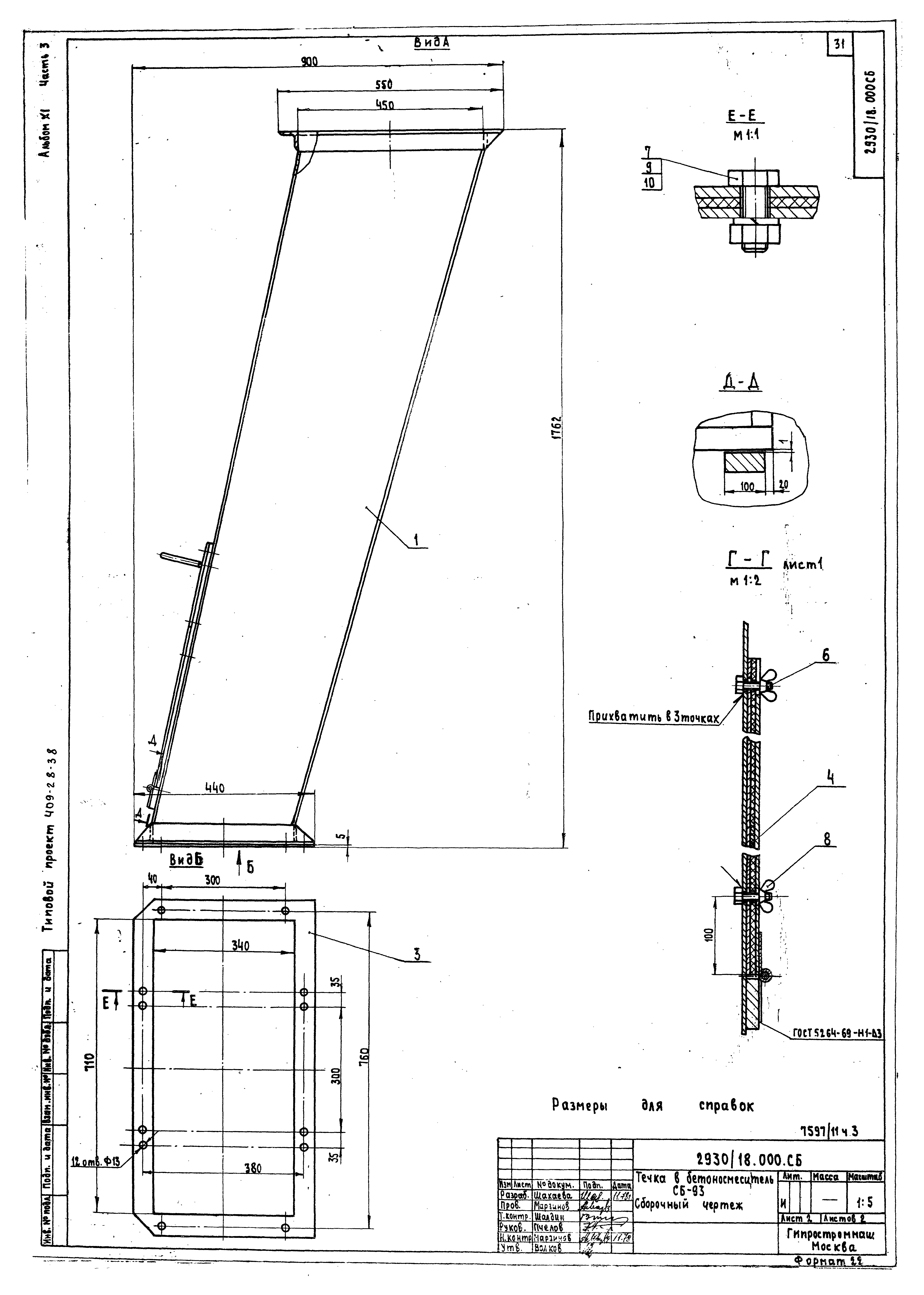
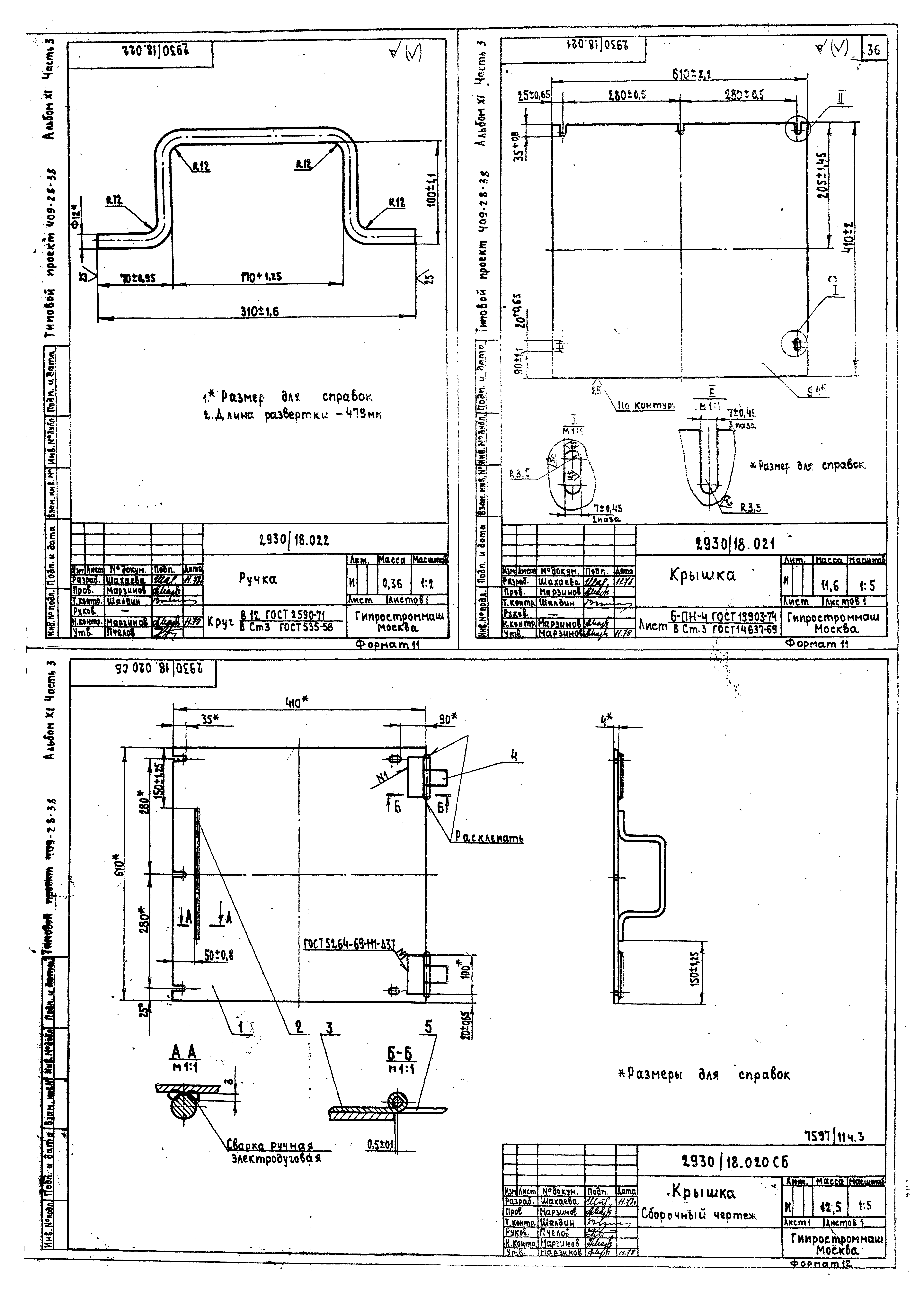
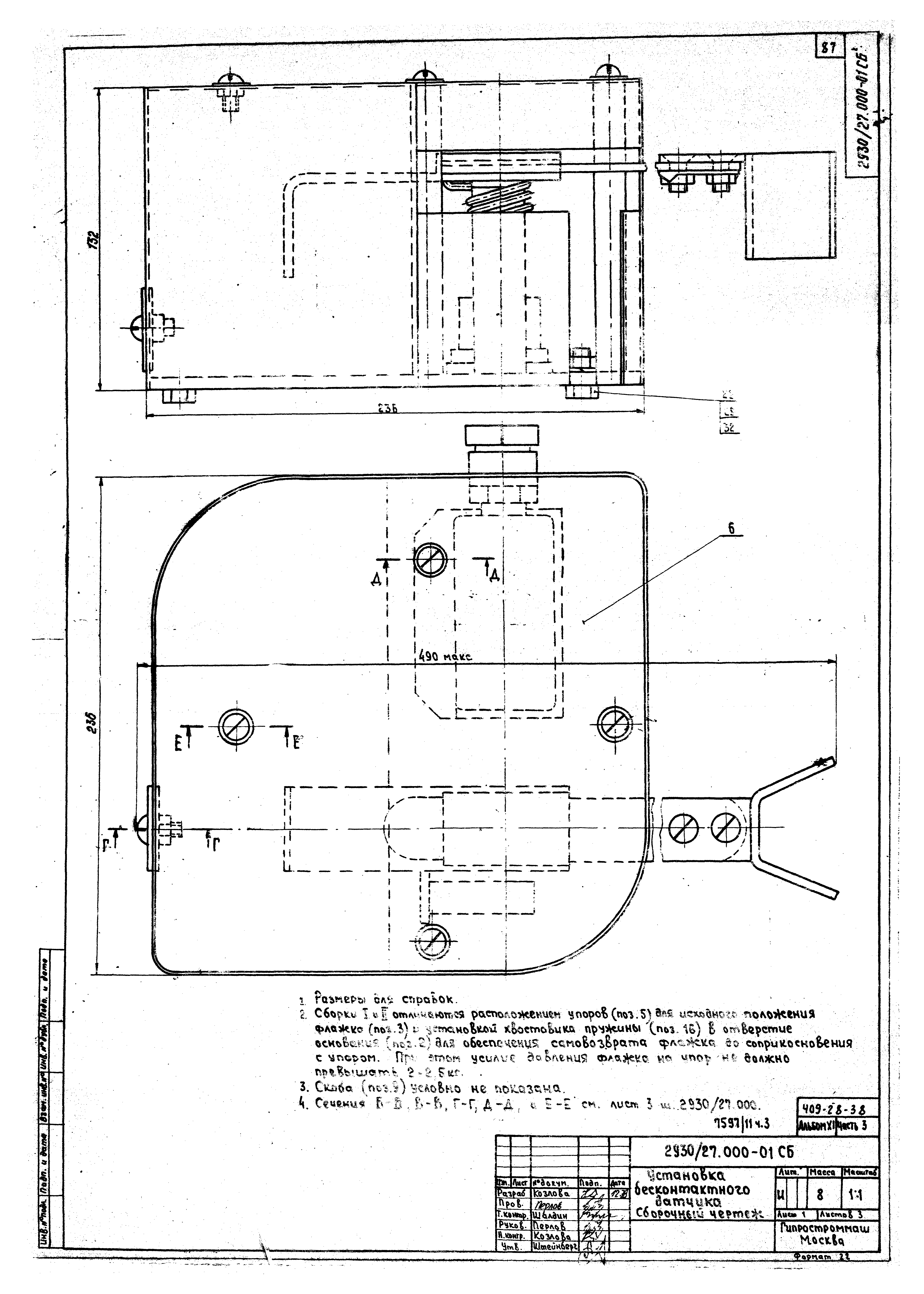
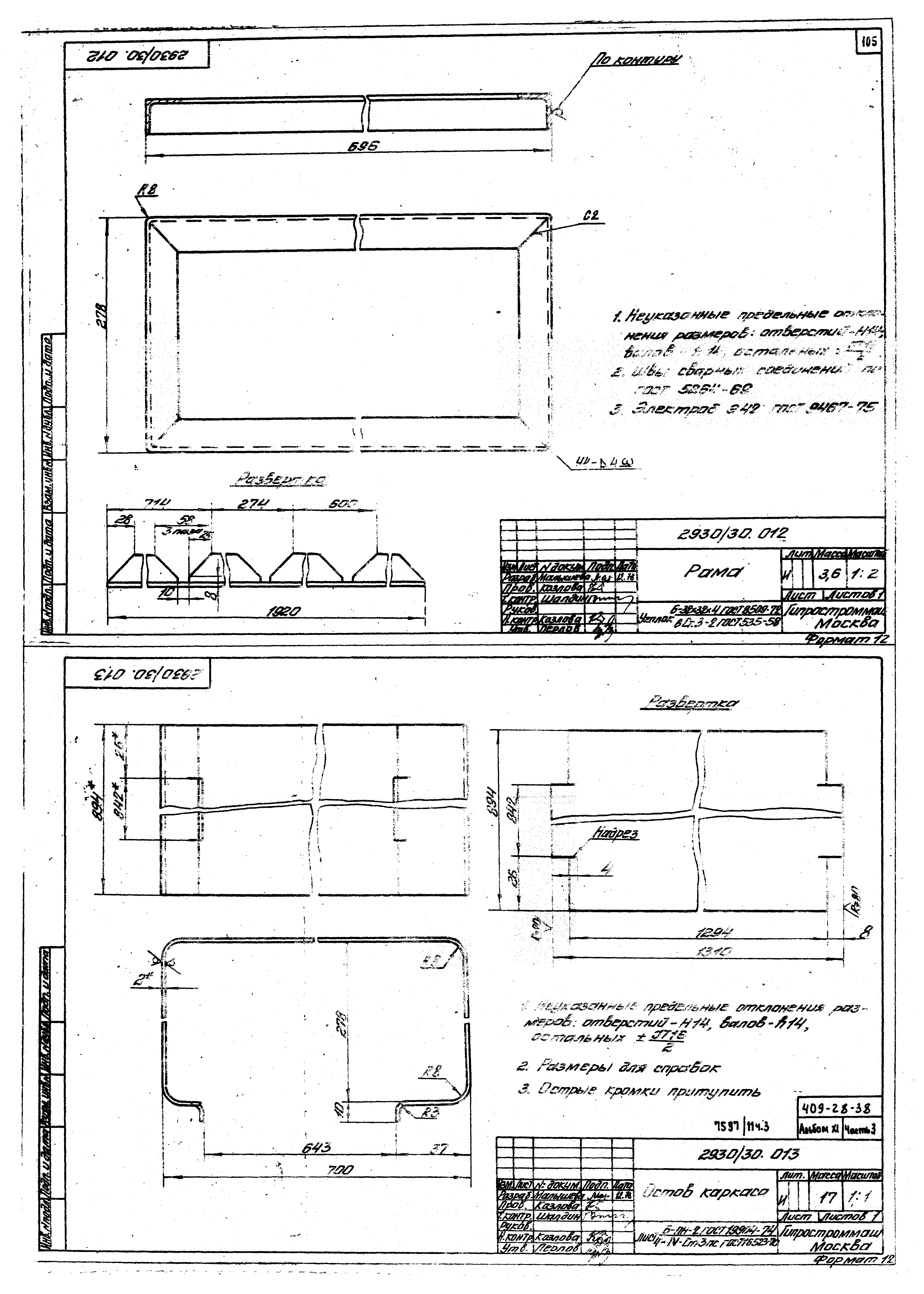
| Оглавление: | Перечень чертежей 2930/12.000 Рама под улавливатель цемента 2930/12.000СБ Рама под улавливатель цемента 2930/12.000ВС Ведомость спецификаций 2930/12.000ВП Ведомость покупных изделий 2930/12.010 Рама 2930/12.010СБ Рама 2930/12.014 Связь 2930/12.015 Балка 2930/13.000 Рама под циклон 2930/13.000СБ Рама под циклон 2930/13.000ВС Ведомость спецификаций 2930/13.000ВП Ведомость покупных изделий 2930/13.010 Рама 2930/13.010СБ Рама 2930/13.014 Связь 2930/13.015 Связь 2930/15.000 Течки от распределителя цемента 2930/15.000СБ Течки от распределителя цемента 2930/15.000ВС Ведомость спецификаций 2930/15.000ВП Ведомость покупных изделий 2930/15.010 Течка левая 2930/15.010СБ Течка левая 2930/15.020 Течка 2930/15.020СБ Течка 2930/15.030 Патрубок 2930/15.030СБ Патрубок 2930/15.011 Пластина 2930/15.012 Полухомут 2930/15.021 Патрубок 2930/15.022 Патрубок 2930/15.023 Патрубок 2930/15.024 Кольцо 2930/15.025 Пластина 2930/16.000 Течка от распределителя цемента 2930/16.000СБ Течка от распределителя цемента 2930/16.000ВС Ведомость спецификаций 2930/16.000ВП Ведомость покупных изделий 2930/16.010 Течка левая 2930/16.010СБ Течка левая 2930/16.020 Течка 2930/16.020СБ Течка 2930/16.030 Патрубок 2930/16.030СБ Патрубок 2930/16.011 Пластина 2930/16.012 Полухомут 2930/16.021 Конус 2930/16.022 Переходник 2930/16.023 Патрубок 2930/16.024 Кольцо 2930/16.025 Кольцо 2930/16.026 Пластина 2930/16.027 Пластина 2930/16.031 Патрубок 2930/16.032 Фланец 2930/18.000 Течка в бетоносмеситель СБ-93 2930/18.000СБ Течка в бетоносмеситель СБ-93 2930/18.000ВС Ведомость спецификаций 2930/18.000ВП Ведомость покупных изделий 2930/18.010 Течка 2930/18.010СБ Течка 2930/18.020 Крышка 2930/18.020СБ Крышка 2930/18.001 Прокладка 2930/18.002 Прокладка 2930/18.011 Стенка 2930/18.012 Стенка 2930/18.013 Стенка 2930/18.014 Связь 2930/18.021 Крышка 2930/18.022 Ручка 2930/18.023 Петля 2930/18.024 Петля 2930/20.000 Воронка выдачи бетона 2930/20.000СБ Воронка выдачи бетона 2930/20.000ВС Ведомость спецификаций 2930/20.000ВП Ведомость покупных изделий 2930/20.010 Воронка 2930/20.010СБ Воронка 2930/20.020 Кронштейн 2930/20.020СБ Кронштейн 2930/20.001 Стенка 2930/20.002 Стенка 2930/20.003 Стенка 2930/20.005 Боковина 2930/20.011 Ребро 2930/20.012 Боковина 2930/20.013 Основание 2930/25.000 Рама под циферблатные указатели 2930/25.000СБ Рама под циферблатные указатели 2930/25.000ВС Ведомость спецификаций 2930/25.000ВП Ведомость покупных изделий 2930/25.010 Стойка 2930/25.010СБ Стойка 2930/25.020 Опора правая 2930/25.020СБ Опора правая 2930/25.030 Опора левая 2930/25.030СБ Опора левая 2930/25.040 Коробка клеммная 2930/25.040СБ Коробка клеммная 2930/25.050 Корпус 2930/25.050СБ Корпус 2930/25.060 Концевое соединение КС-В 2930/25.060СБ Концевое соединение КС-В 2930/25.070 Ввод трубы "1" 2930/25.070СБ Ввод трубы "1" 2930/25.001 Болт фундаментный 2930/25.011 Стойка 2930/25.012 Перемычка 2930/25.013 Пята 2930/25.014 Перемычка 2930/25.021 Стойка 2930/25.041 Крышка 2930/25.042 Прокладка 2930/25.051 Платик 2930/25.052 Бобышка 2930/25.053 Обечайка 2930/25.054 Пояс 2930/25.055 Дно 2930/25.061 Корпус 2930/25.062 Штуцер 2930/25.063 Шайба 2930/25.064 Прокладка 2930/25.071 Втулка 2930/26.000 Установка бесконтактных датчиков 2930/26.000СБ Установка бесконтактных датчиков 2930/26.000СХ1 Схема установки бесконтактных датчиков на распределителе цемента У5690.01.000 2930/26.000СХ2 Схема установки бесконтактных датчиков на поворотной воронке У5640.04.000 2930/26.000СХ3 Схема установки бесконтактных датчиков на двухрукавной течке с перекидным клапаном 2637/4 2930/26.000СХ4 Схема установки бесконтактных датчиков на воронке сборной с течками У5640.02.000.123 2930/26.000СХ5 Схема установки бесконтактных датчиков на установке двухходового переключателя 2930/26.000СХ6 Схема установки бесконтактных датчиков на бетоносмесителе принудительного действия СБ-93 2930/26.000СХ7 Схема установки бесконтактных датчиков на течке двухрукавной 2930/4 2930/26.000ВС Ведомость спецификаций 2930/26.000ВП Ведомость покупных изделий 2930/26.000ВМ Ведомость материалов 2930/26.010 Основание 2930/26.010СБ Основание 2930/26.020 Флажок 2930/26.020СБ Флажок 2930/26.030 Соединение концевое 2930/26.030СБ Соединение концевое 2930/26.040 Упор 2930/26.040СБ Упор 2930/26.050 Кожух 2930/26.050СБ Кожух 2930/26.060 Скоба в сборе 2930/26.060СБ Скоба в сборе 2930/26.070 Кожух 2930/26.070СБ Кожух 2930/26.001 Платик 2930/26.002 Прокладка 2930/26.003 Планка отгибная 2930/26.004 Планка отгибная 2930/26.005 Пружина 2930/26.007 Винт 2930/26.011 Плита 2930/26.012 Штырь 2930/26.013 Стойка 2930/26.021 Направляющая 2930/26.022 Скоба 2930/26.023 Втулка 2930/26.031 Корпус 2930/26.032 Штуцер 2930/26.033 Шайба 2930/26.034 Прокладка 2930/26.041 Пластина 2930/26.042 Ось 2930/26.043 Опора 2930/26.051 Обечайка 2930/26.052 Крышка 2930/26.053 Стенка 2930/26.054 Обечайка 2930/26.061 Планка 2930/26.062 Скоба 2930/27.000 Установка бесконтактного датчика 2930/27.000СБ Установка бесконтактного датчика 2930/27.000СХ1 Схема установки бесконтактного датчика на воронке поворотной У5640.04.000 2930/27.000СХ2 Схема установки бесконтактного датчика наличия материала на ленте транспортера 2931/1 2930/27.000ВМ Ведомость материалов 2930/27.000ВП Ведомость покупных изделий 2930/27.000ВМ Ведомость материалов 2930/27.010 Основание 2930/27.010СБ Основание 2930/27.020 Основание 2930/27.020СБ Основание 2930/27.001 Скоба 2930/27.002 Заглушка 2930/27.003 Шайба 2930/27.011 Плита 2930/30.000 Шкаф аппаратный 2930/30.000СБ Шкаф аппаратный 2930/30.000ВС Ведомость спецификаций 2930/30.000ВП Ведомость покупных изделий 2930/30.000ВМ Ведомость материалов 2930/30.010 Каркас 2930/30.010СБ Каркас 2930/30.020 Дверь 2930/30.020СБ Дверь 2930/30.030 Петля 2930/30.030СБ Петля 2930/30.040 Ось 2930/30.040СБ Ось 2930/30.001 Дно 2930/30.003 Пластина II-9 2930/30.004 Таблица прижимная 2930/30.005 Щеколда 2930/30.006 Ось 2930/30.011 Крышка 2930/30.012 Рама 2930/30.013 Остов каркаса 2930/30.014 Стенка передняя 2930/30.015 Упор 2930/30.016 Планка 2930/30.021 Остов двери 2930/30.022 Обойма 2930/30.023 Обойма 2930/30.024 Планка 2930/30.025 Втулка 2930/30.031 Петля 2930/30.041 Стержень 2930/30.042 Шайба 2930/31.000 Рама под вентилятор Ц10-28 №4 2930/31.000СБ Рама под вентилятор Ц10-28 №4 2930/31.000 Балка |
| Разработан: | Гипростроммаш |
| Утверждён: | 23.09.1979 Госстрой СССР (Государственный комитет Совета Министров СССР по делам строительства) (USSR Gosstroy 43) |










































































































