Скачать Типовой проект 409-28-38 Альбом XII. Часть 1. Вариант электротехнической части с пневматической системой управления блоками Б3Дата актуализации: 01.01.2021
|
| Обозначение: | Типовой проект 409-28-38 |
| Обозначение англ: | 409-28-38 |
| Статус: | действует |
| Название рус.: | Альбом XII. Часть 1. Вариант электротехнической части с пневматической системой управления блоками Б3 |
| Дата добавления в базу: | 01.09.2013 |
| Дата актуализации: | 01.01.2021 |
| Дата введения: | 17.10.1979 |
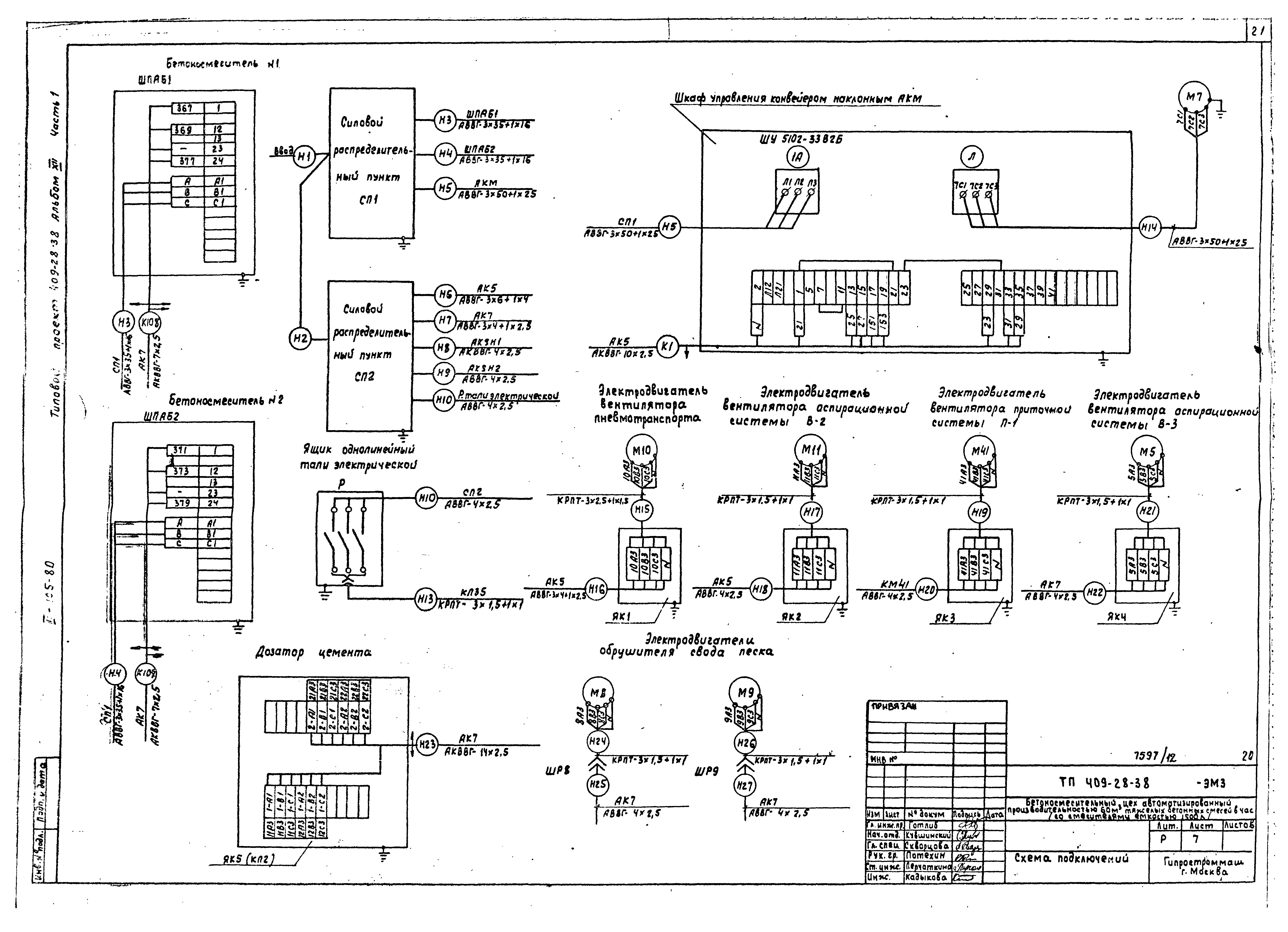
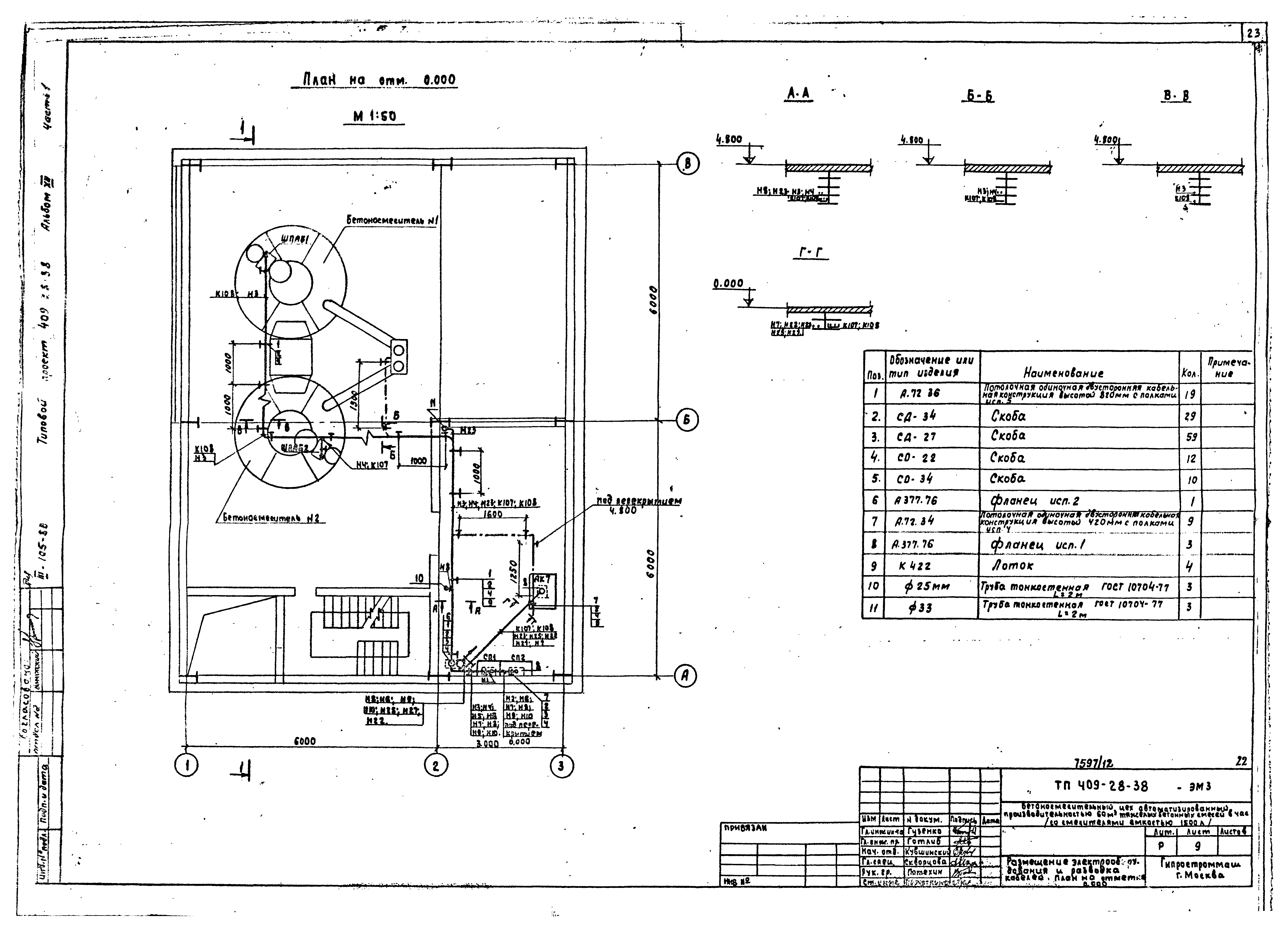
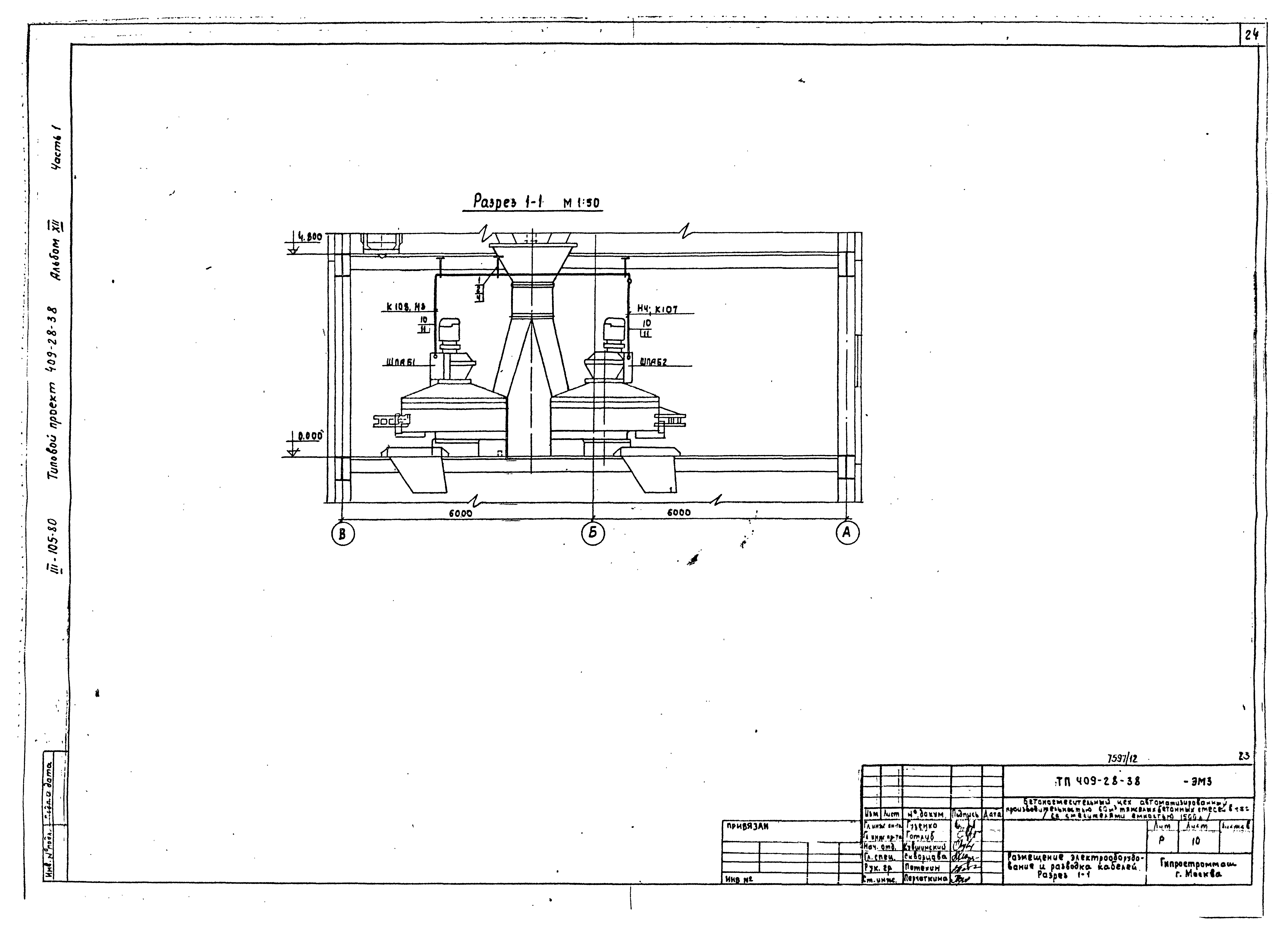
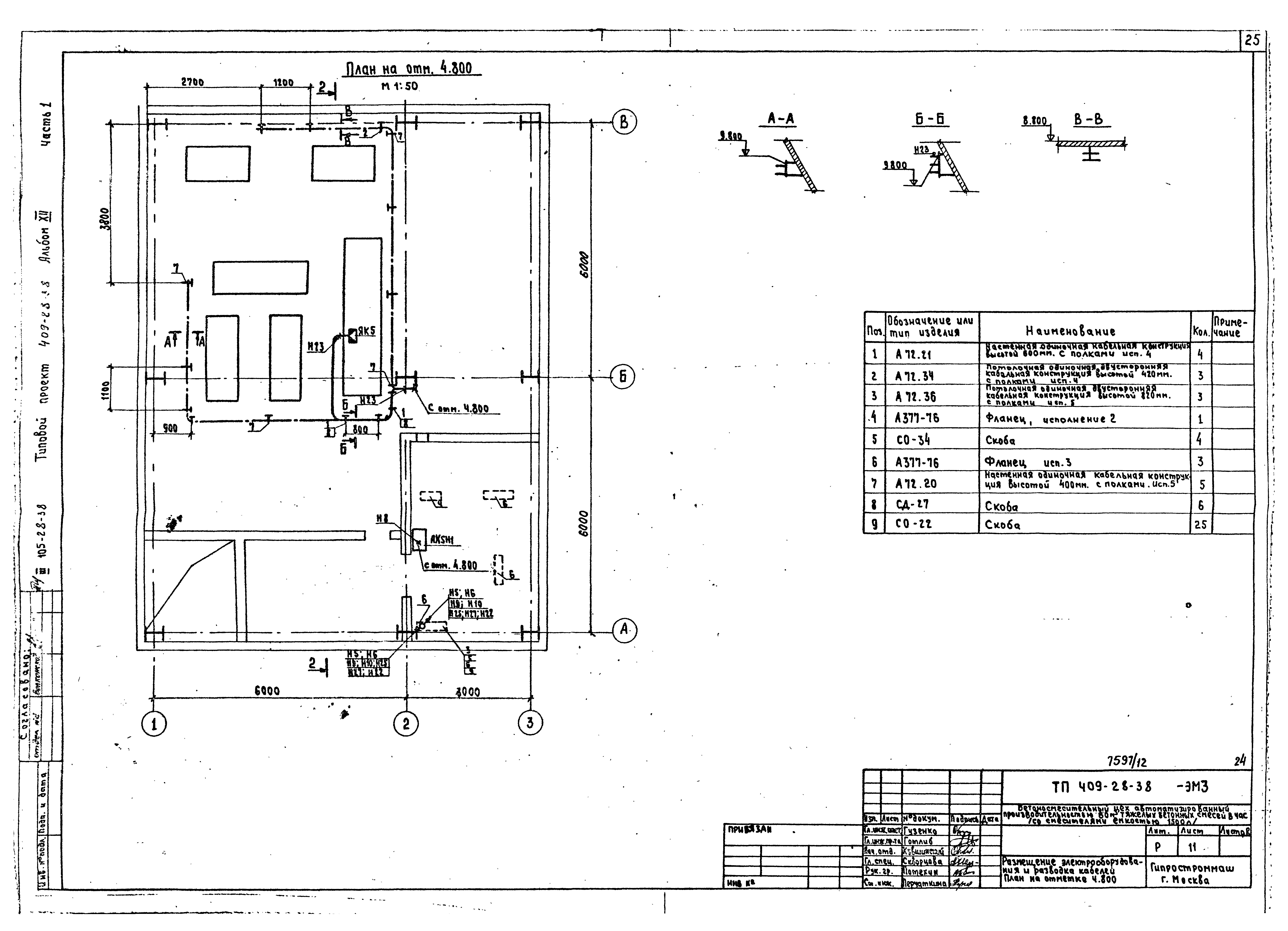
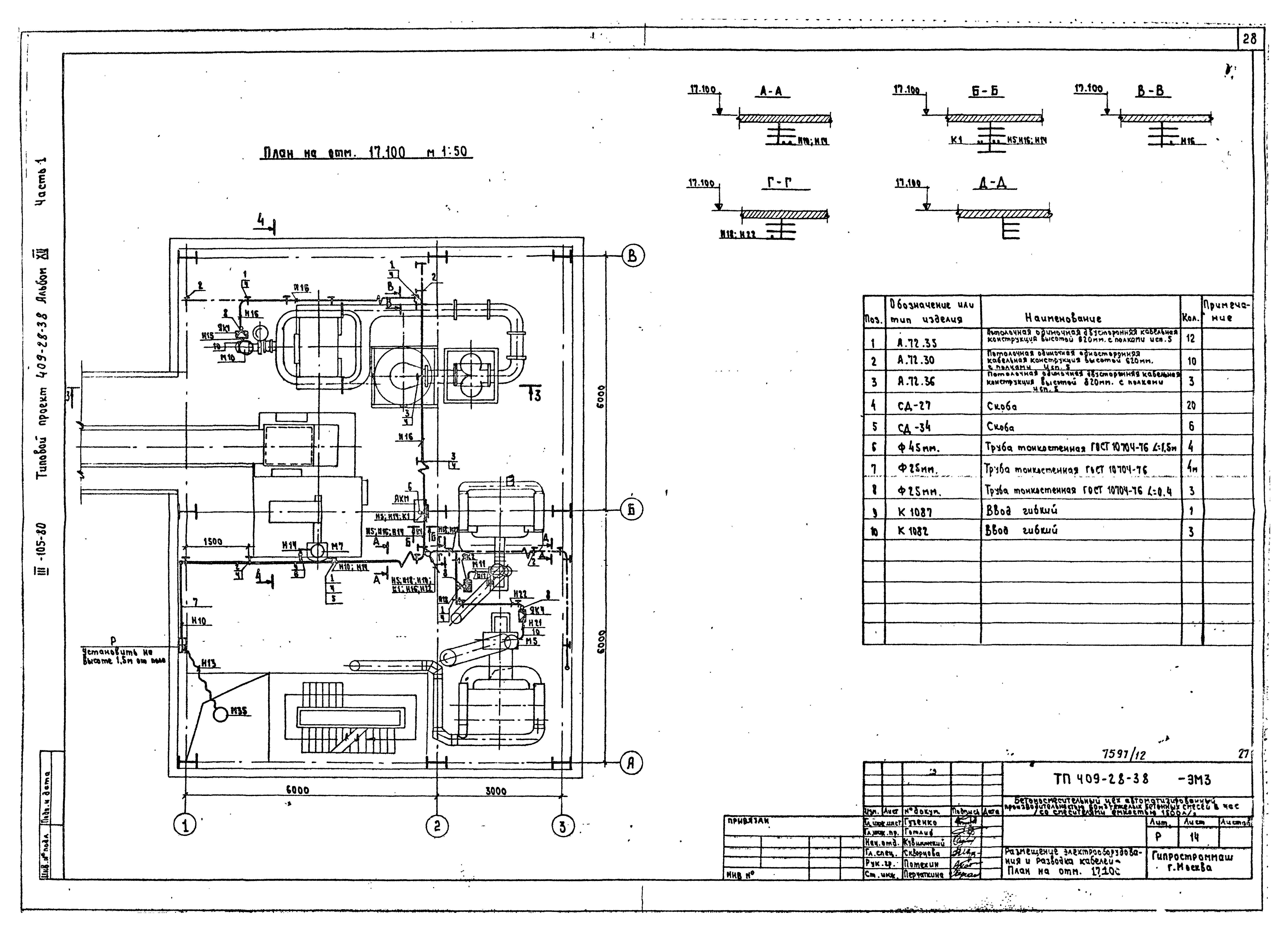
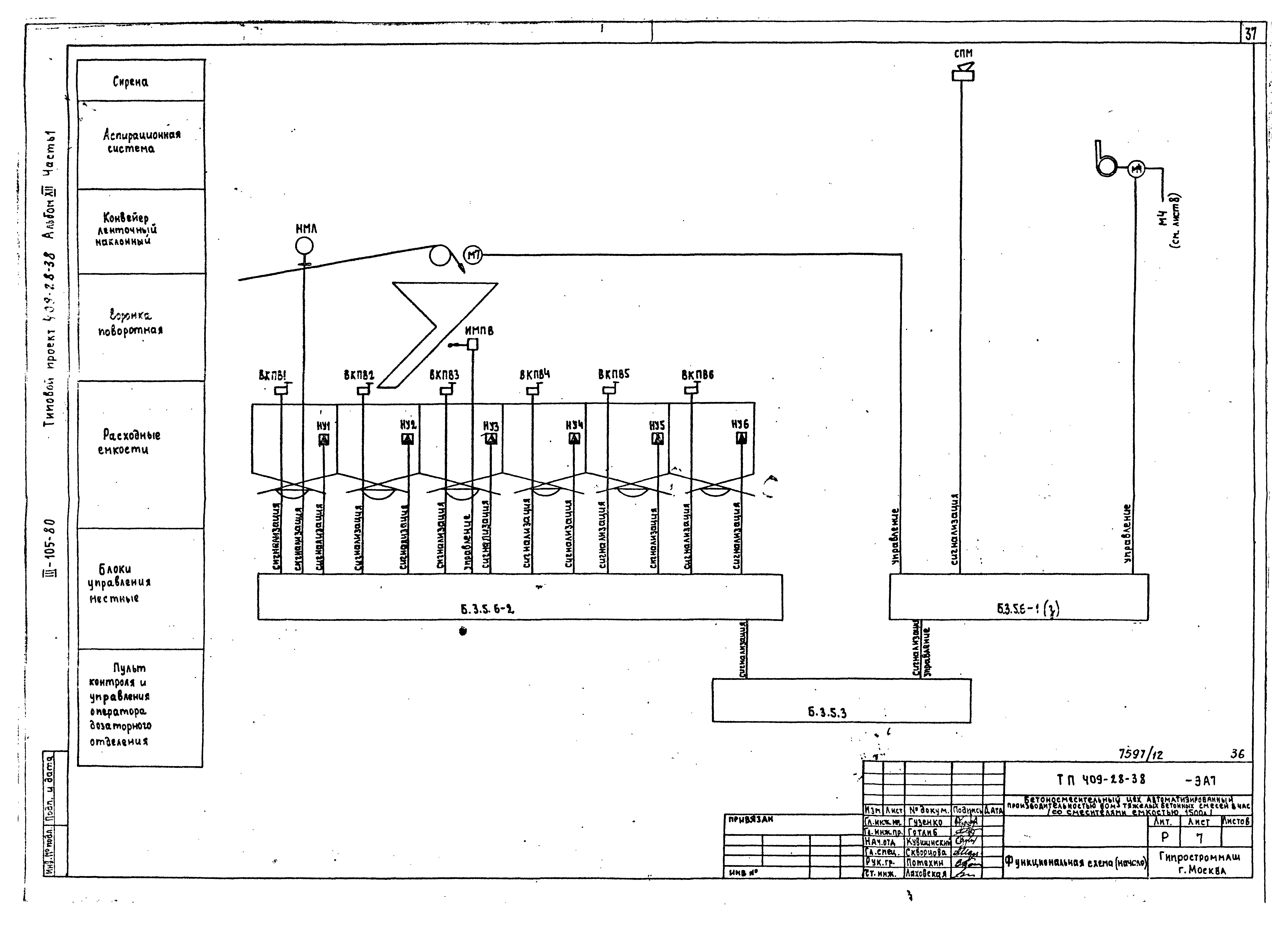
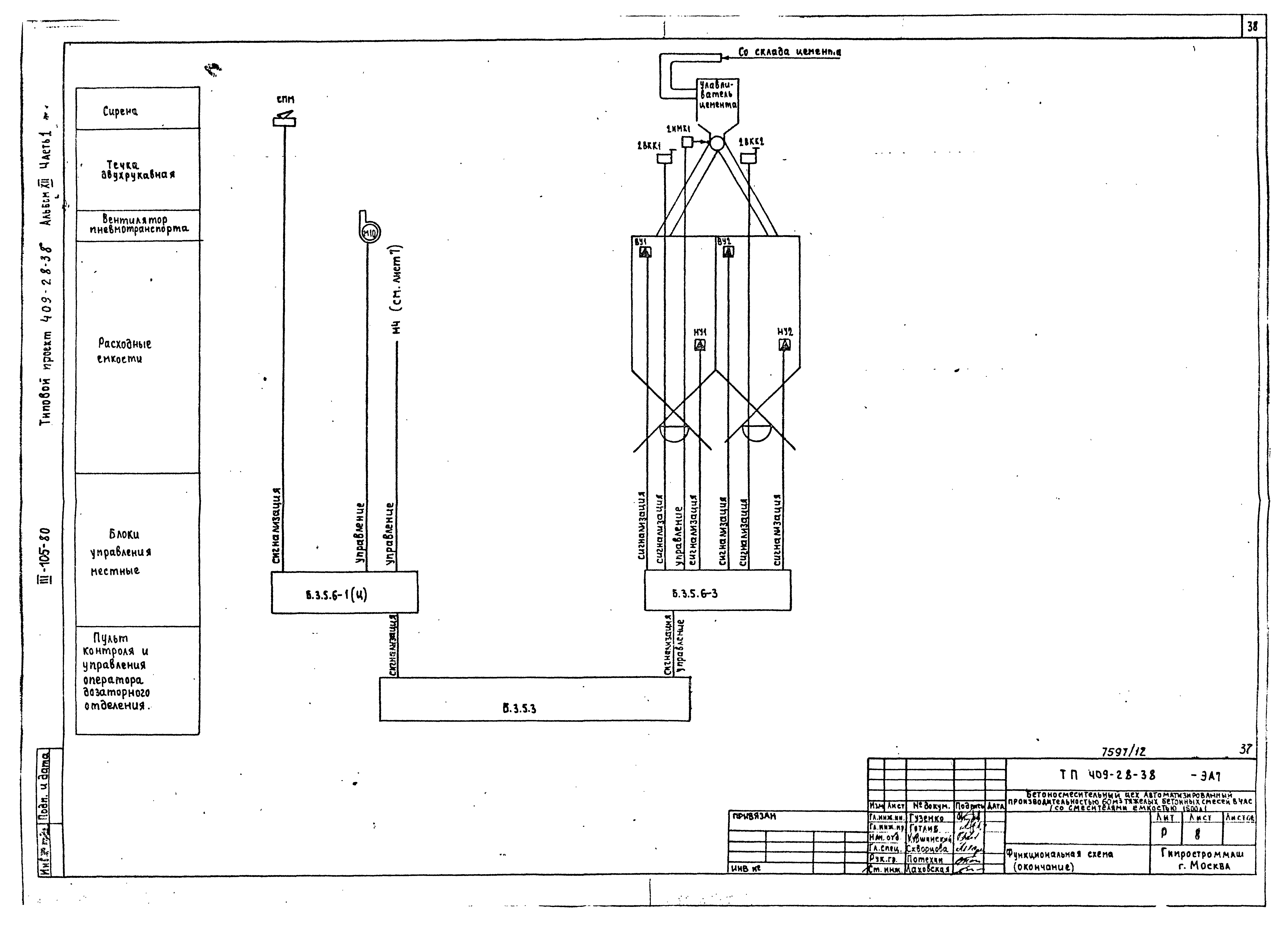
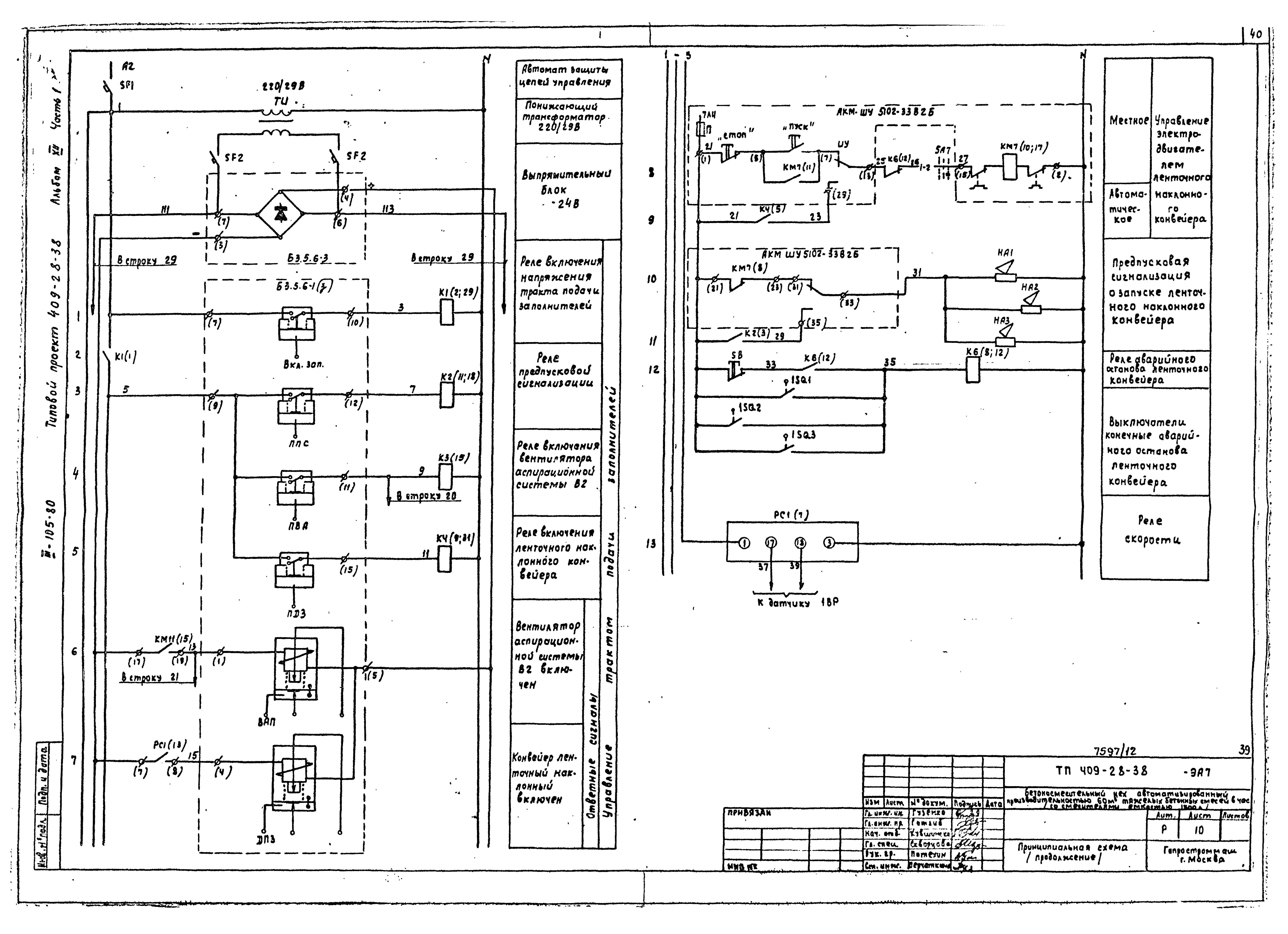
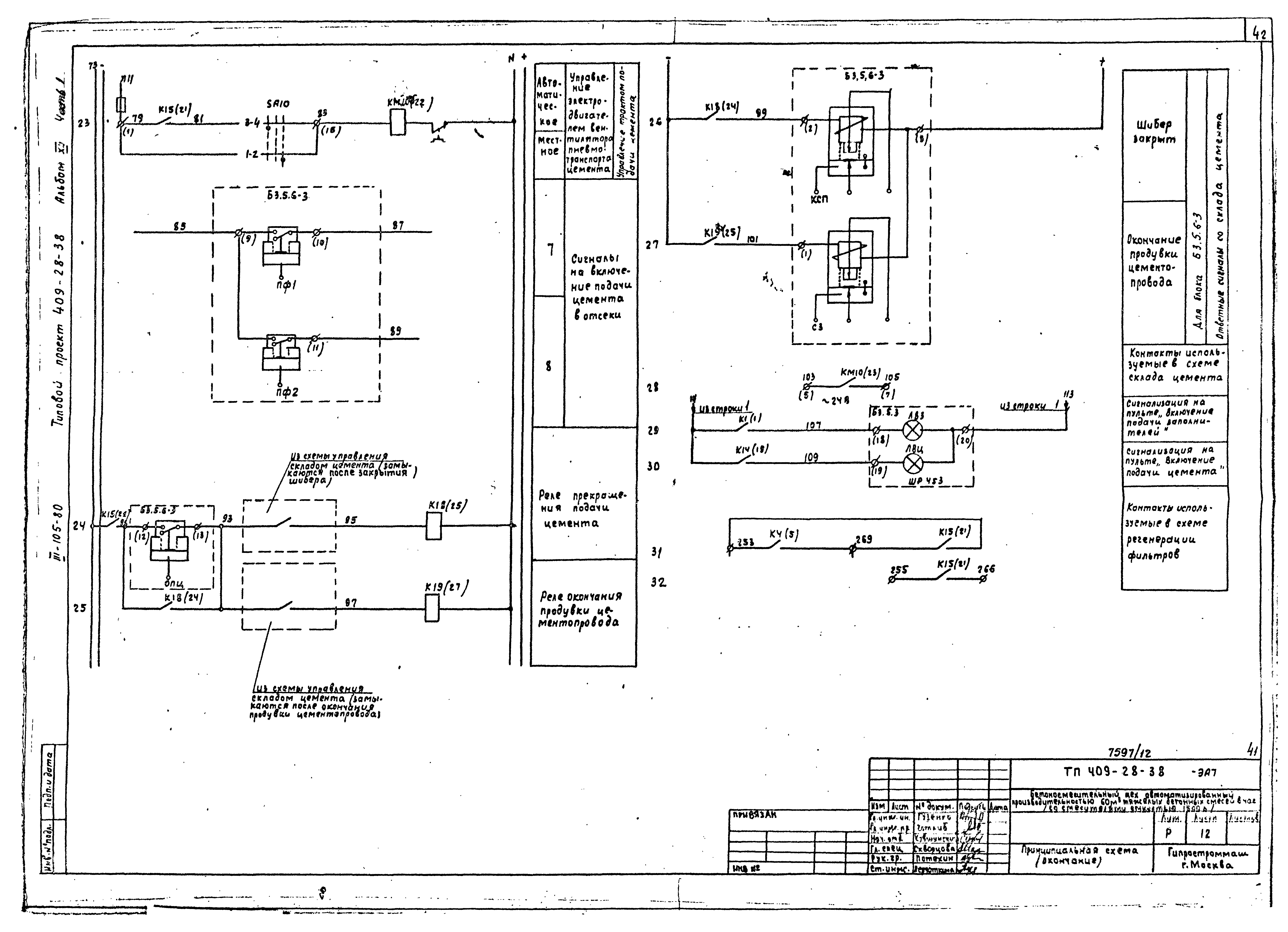
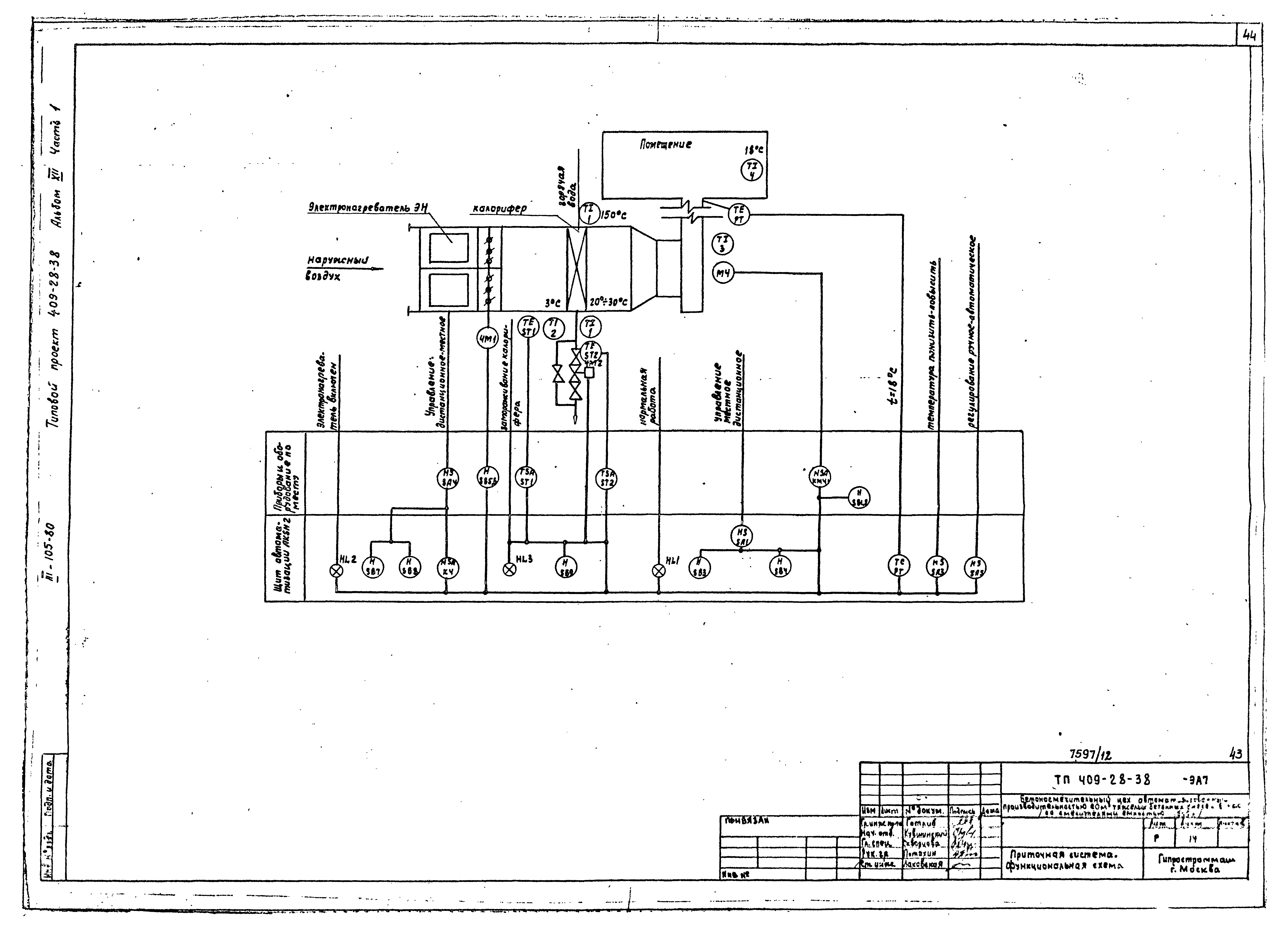
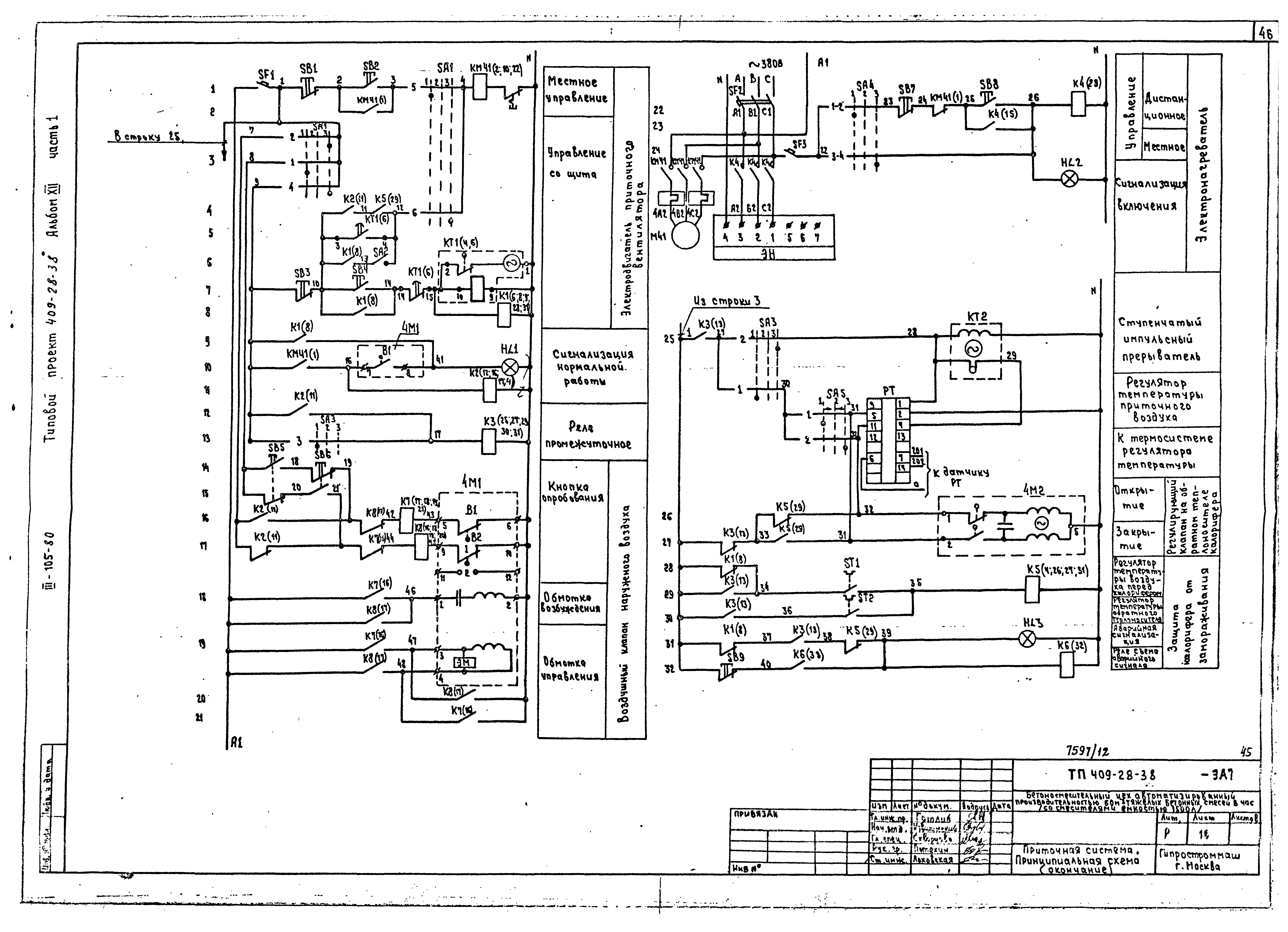
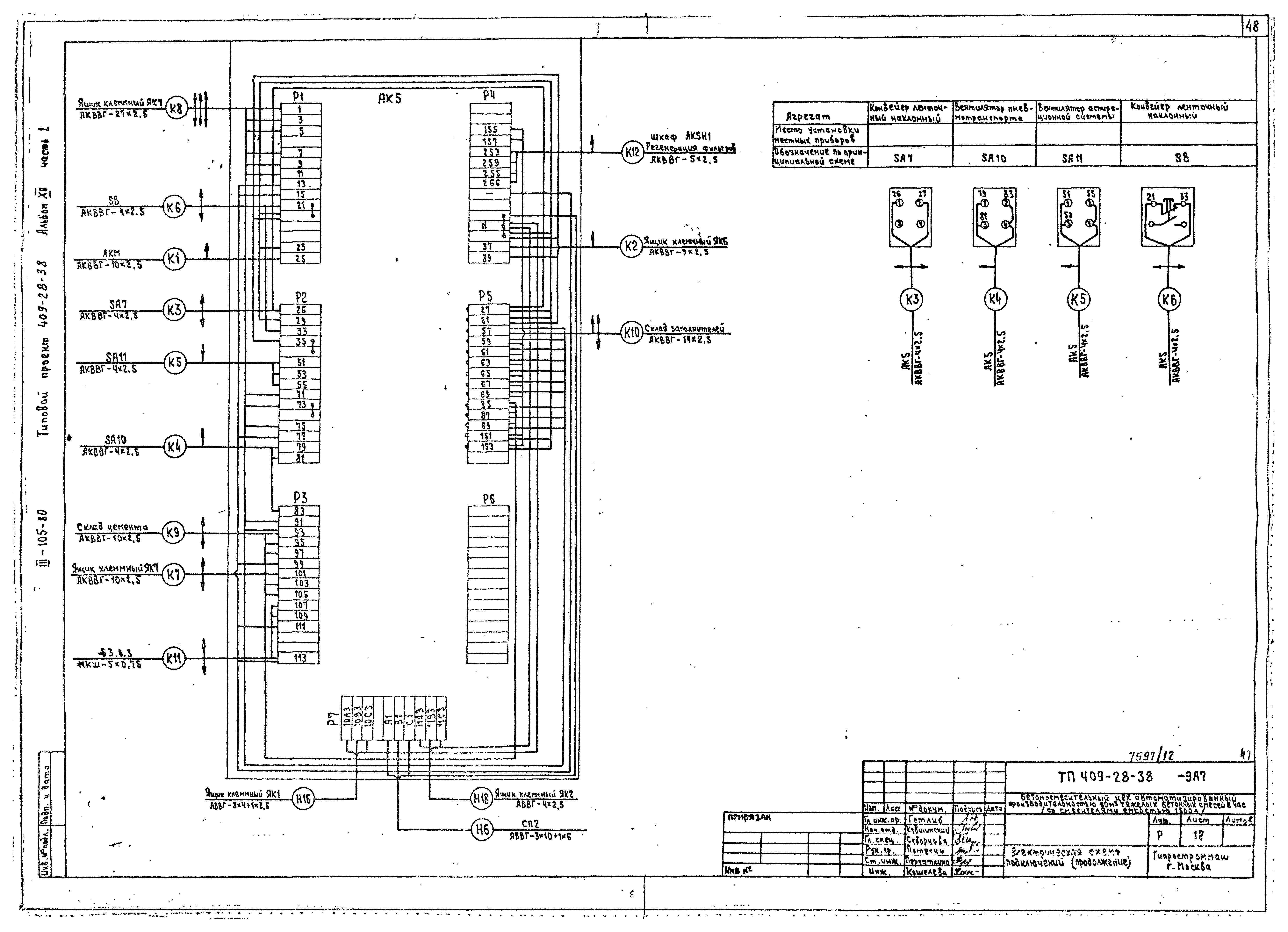
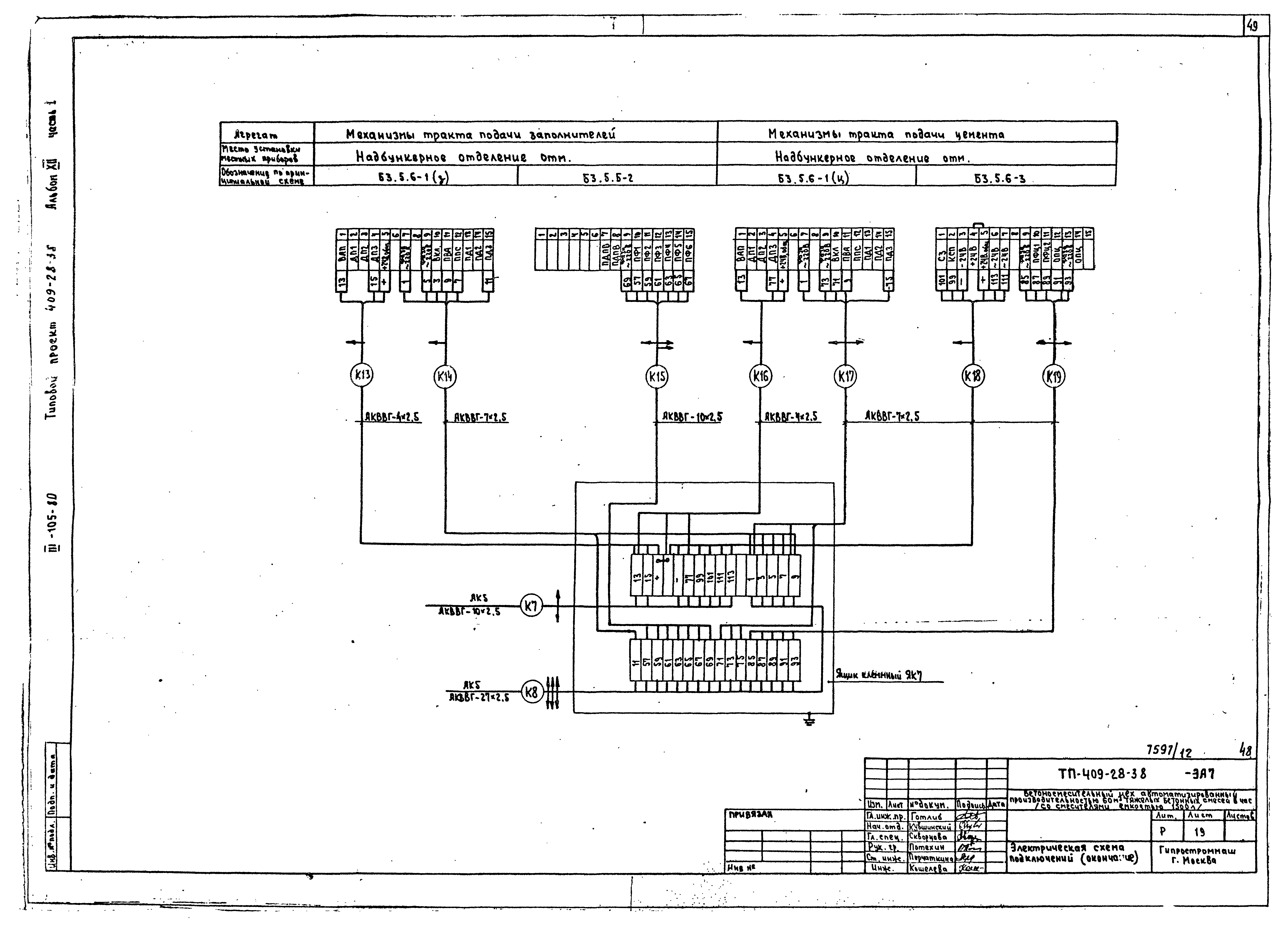
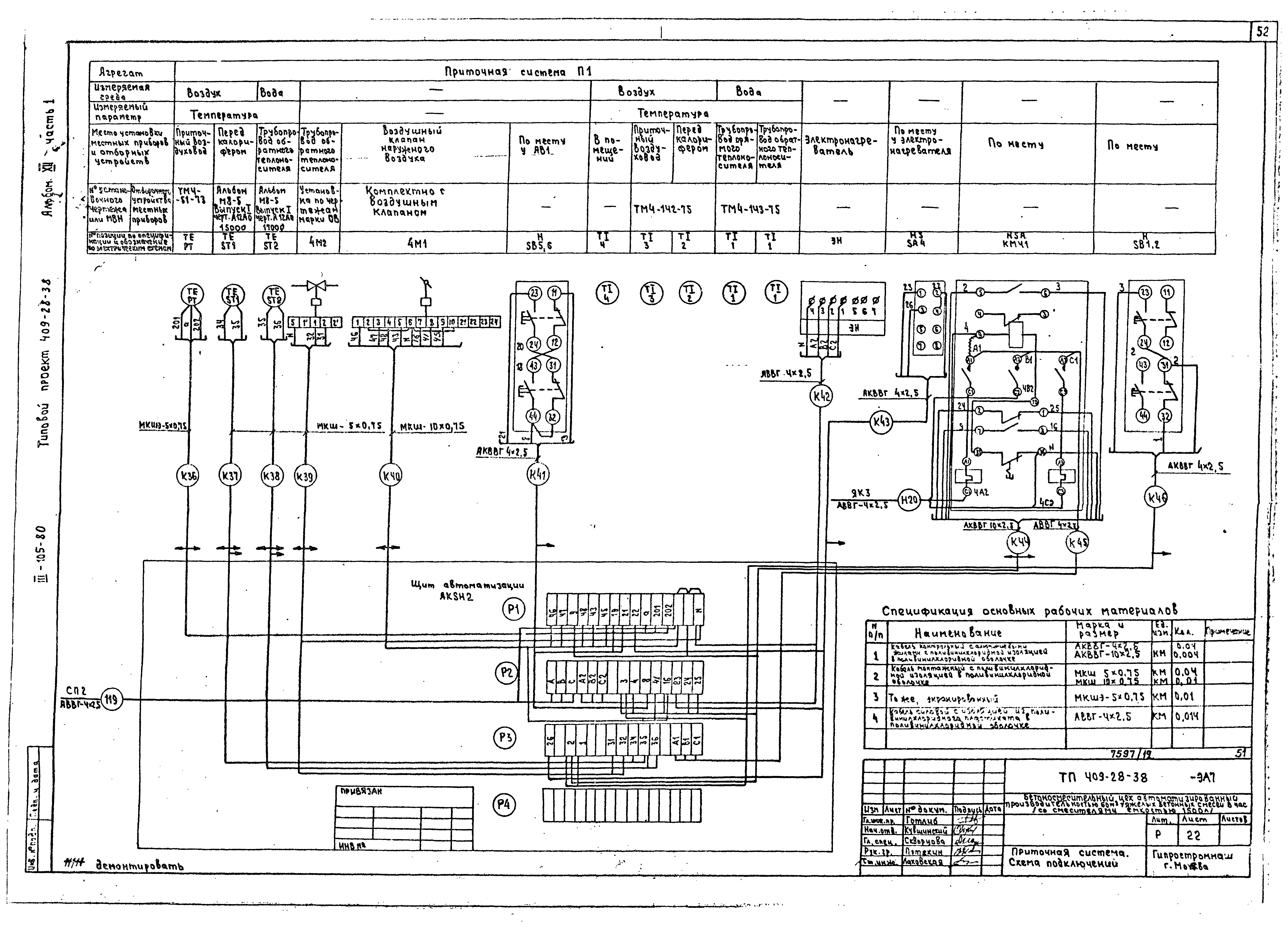
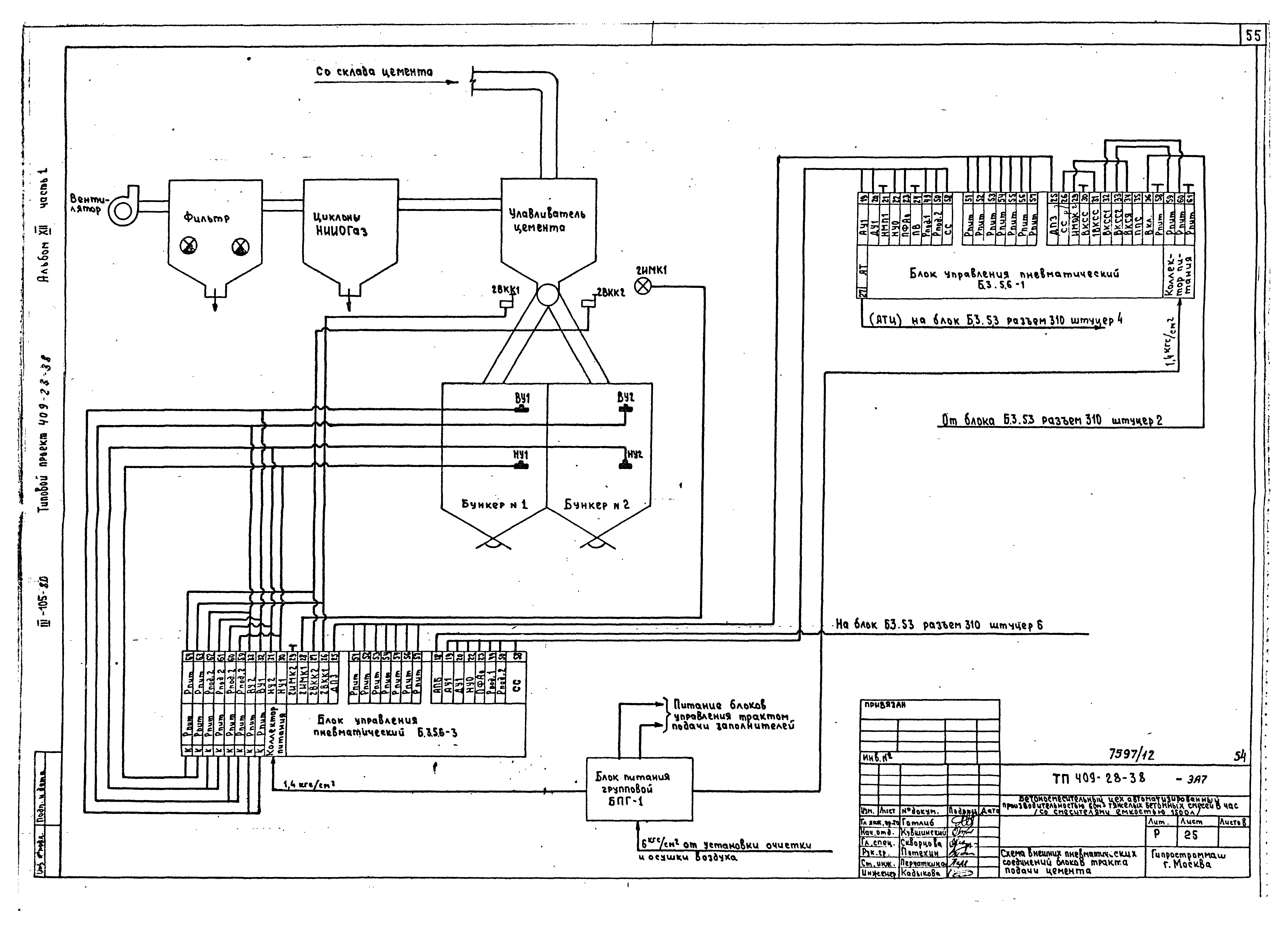
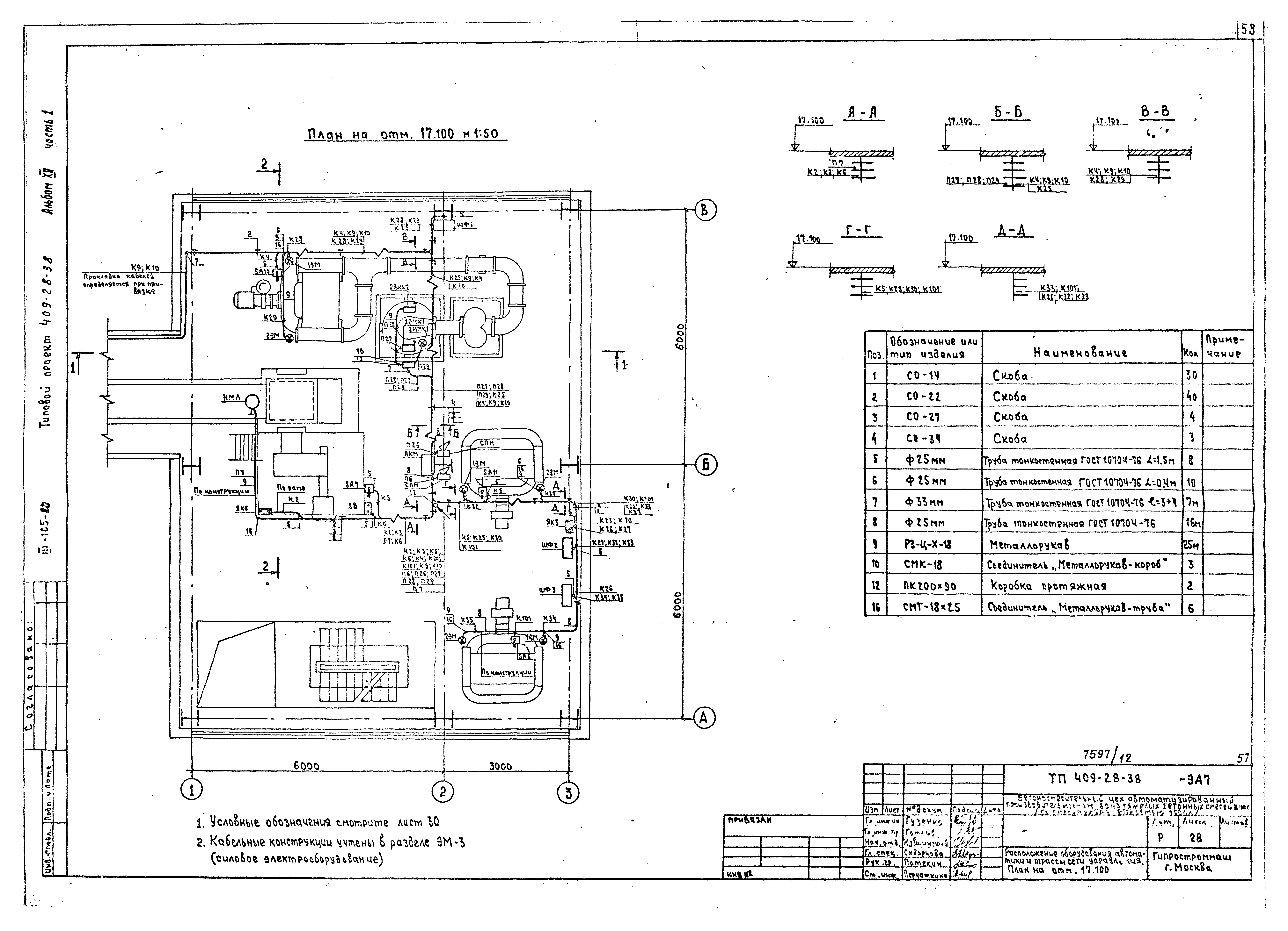
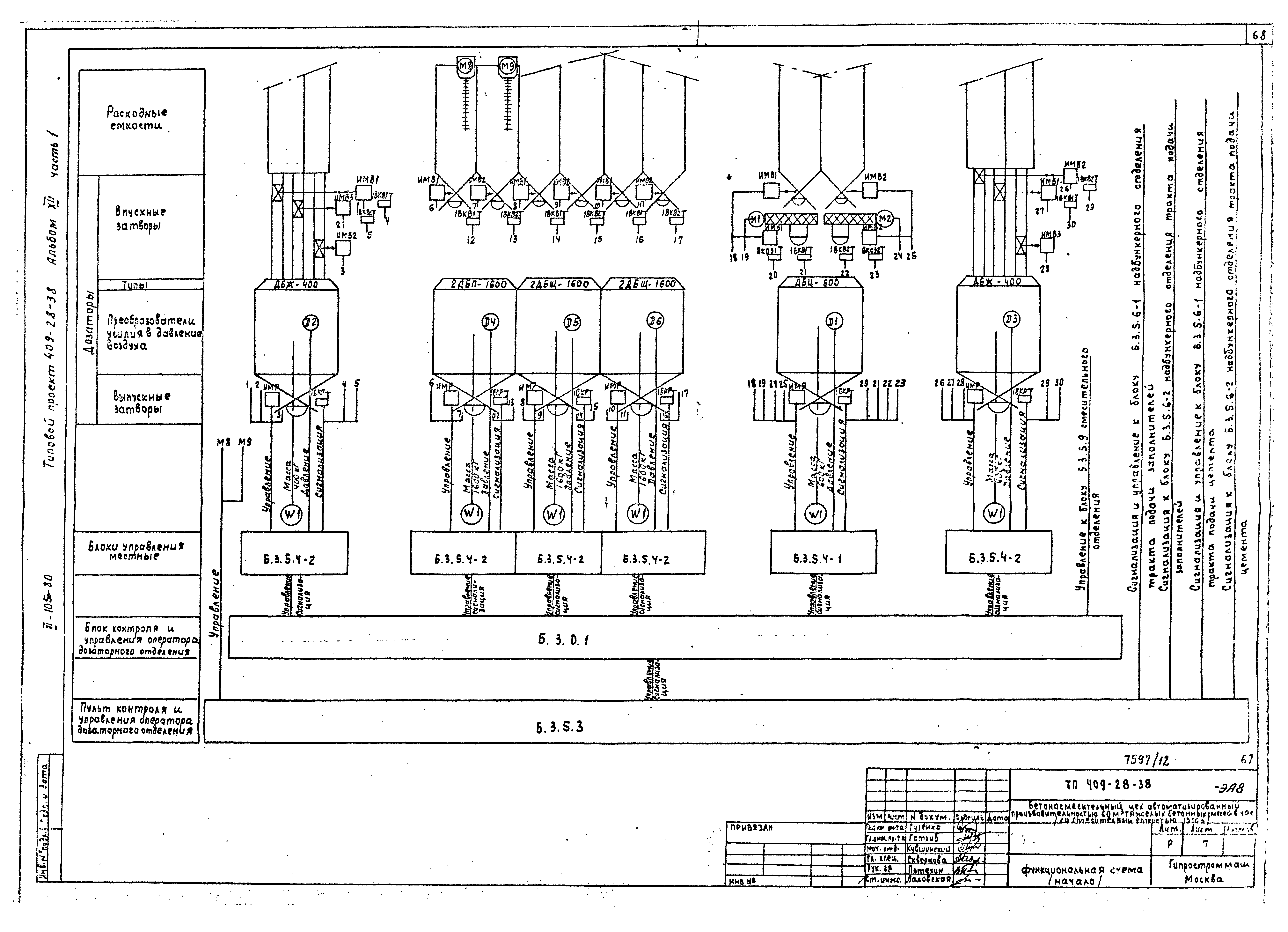
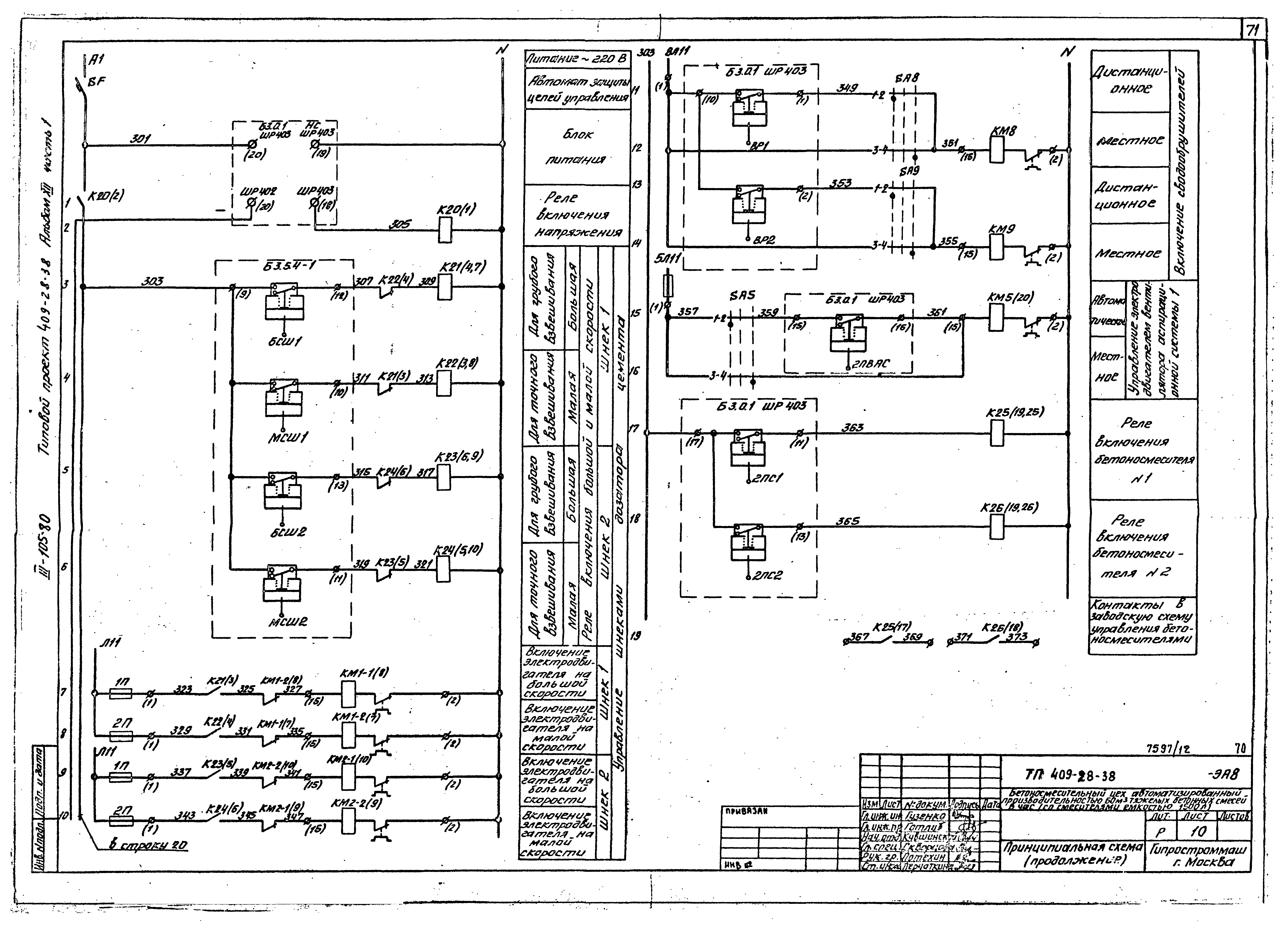
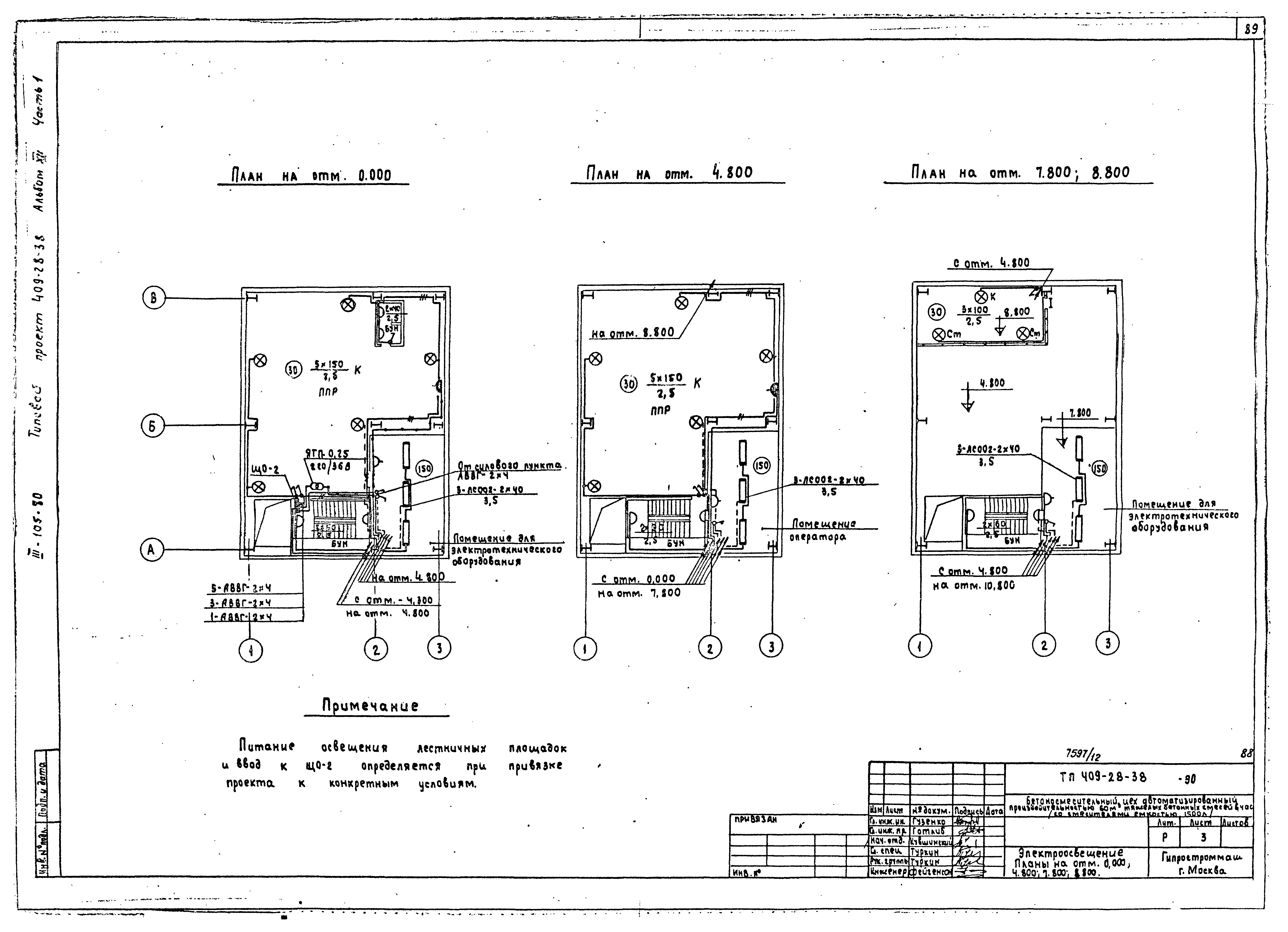
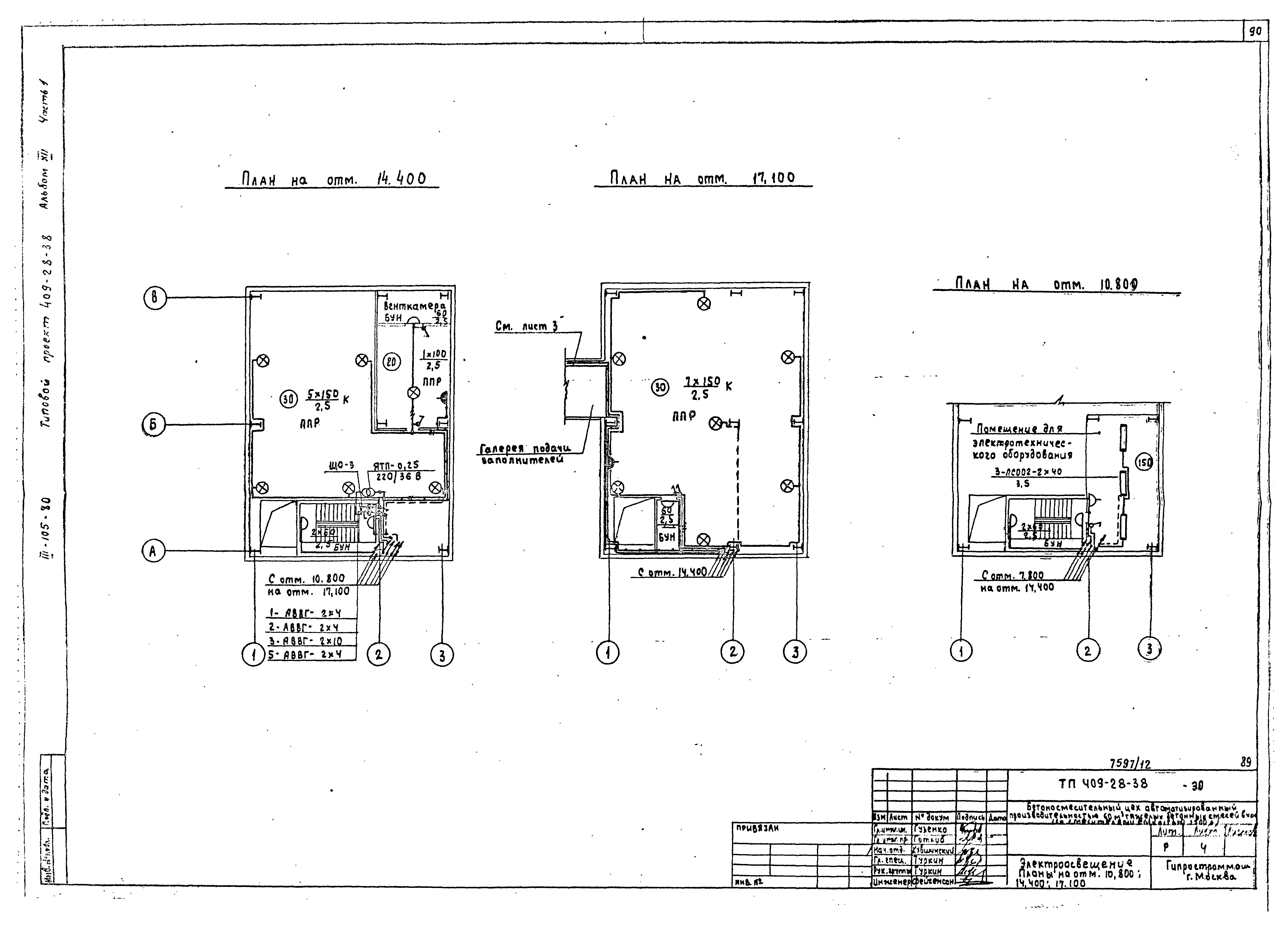
| Оглавление: | Общие данные Пояснительная записка Чертежи основного комплекта марки ЭМ3 Общие данные Схема силовой сети Схема подключений Кабельный журнал Размещение электрооборудования и разводка кабелей. План на отм. 0.000 Размещение электрооборудования и разводка кабелей. Разрез 1-1 Размещение электрооборудования и разводка кабелей. План на отм. 4.800 Размещение электрооборудования и разводка кабелей. Разрез 2-2 Размещение электрооборудования и разводка кабелей. Планы на отм. 7.800; 10.800; 14.400 Размещение электрооборудования и разводка кабелей. План на отм. 17.100 Размещение электрооборудования и разводка кабелей. Разрез 3-3, 4-4 Коробка клеммная Чертежи основного комплекта марки ЭА7 Общие данные Технологическая схема с расстановкой элементов автоматики Функциональная схема Принципиальная схема Регенерация фильтров типа СМЦ-166Б. Принципиальная схема Приточная система. Функциональная схема Приточная система. Принципиальная схема Электрическая схема подключений Регенерация фильтров типа СМЦ-166Б. Схема подключений Приточная система. Схема подключений Пневматическая схема подключений Схема внешних пневматических соединений блоков тракта подачи цемента Кабельный журнал Расположение оборудования автоматики и трассы сети управления. План на отм. 17.100 Расположение оборудования автоматики и трассы сети управления. План на отм. 14.400; 10.800; 7.800 Расположение оборудования автоматики и трассы сети управления. Разрезы 1-1 и 2-2 Схема трассы стальных коробов проводок автоматики Чертежи основного комплекта марки ЭА8 Общие данные Технологическая схема с расстановкой элементов автоматики Функциональная схема Принципиальная схема Пневматическая схема подключений Электрическая схема подключений Кабельный журнал Расположение оборудования автоматики и трассы сети управления. План на отм. 4.800 Расположение оборудования автоматики и трассы сети управления. План на отм. 0.000 Расположение оборудования автоматики и трассы сети управления. Разрезы 1-1, 2-2 Расположение оборудования автоматики и трассы сети управления. План на отм. 8.800. Разрезы 3-3, 4-4 Расположение оборудования автоматики и трассы сети управления. Разрезы 5-5, 6-6 Схема трассы стальных коробов проводок автоматики Чертежи основного комплекта марки ЭО Общие данные Электроосвещение. Планы на отм. 0.000; 4.800; 7.800; 8.800 Электроосвещение. Планы на отм. 10.800; 14.400; 17.100 Электроосвещение. Галерея подачи заполнителей Электроосвещение. Расчетная схема. Условные обозначения Чертежи основного комплекта марки ЭУ Общие данные Скелетная схема Сети на планах Чертежи основного комплекта марки ЭС Общие данные Таблицы расчета потребной мощности и расход электроэнергии |
| Разработан: | Гипростроммаш |
| Утверждён: | 23.09.1979 Госстрой СССР (Государственный комитет Совета Министров СССР по делам строительства) (USSR Gosstroy 43) |






























































































