Скачать Типовой проект 409-28-39 Альбом III. Часть 2. Чертежи стальных конструкцийДата актуализации: 01.01.2021
|
| Обозначение: | Типовой проект 409-28-39 |
| Обозначение англ: | 409-28-39 |
| Статус: | действует |
| Название рус.: | Альбом III. Часть 2. Чертежи стальных конструкций |
| Дата добавления в базу: | 01.09.2013 |
| Дата актуализации: | 01.01.2021 |
| Дата введения: | 17.10.1979 |
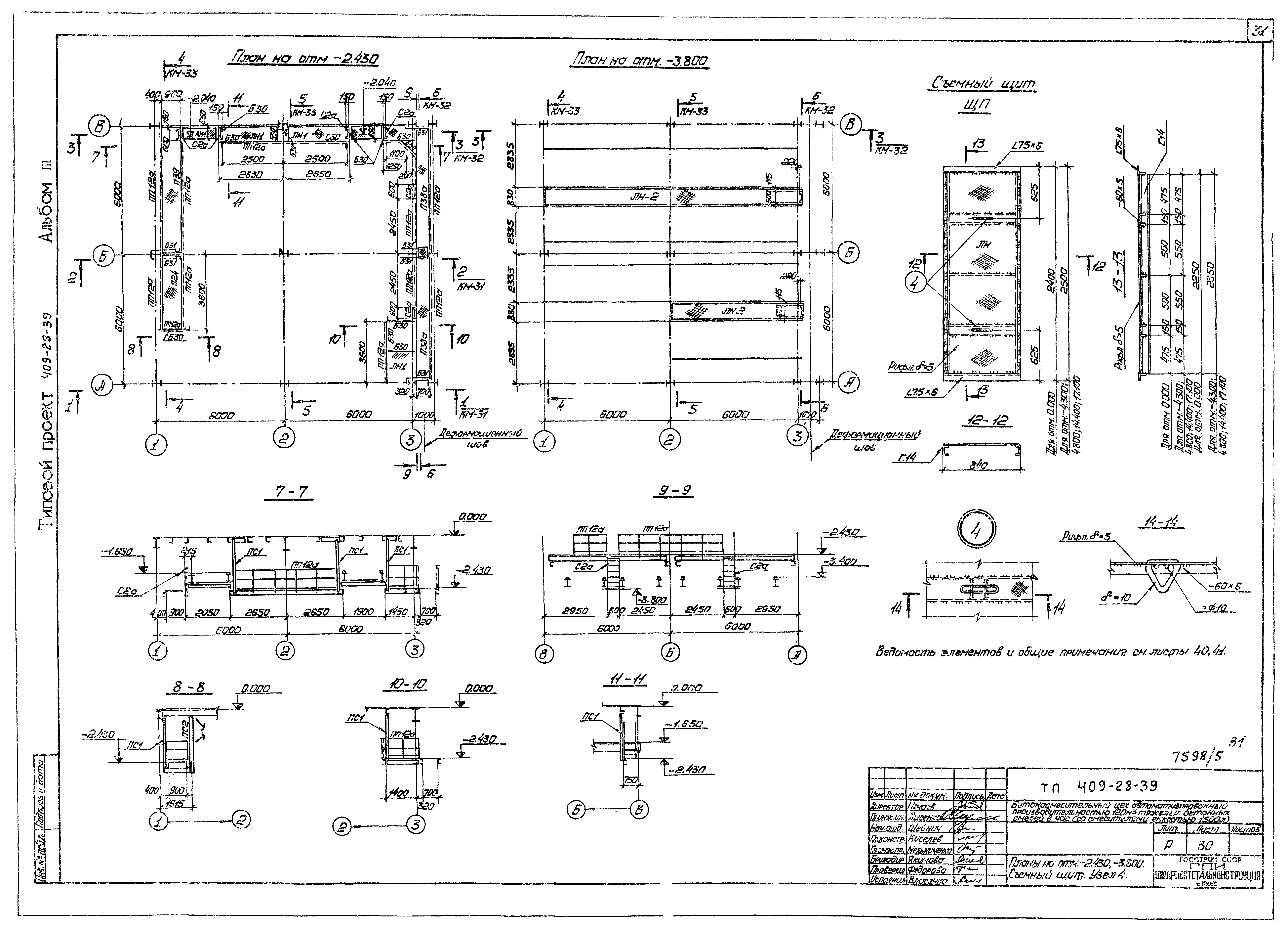
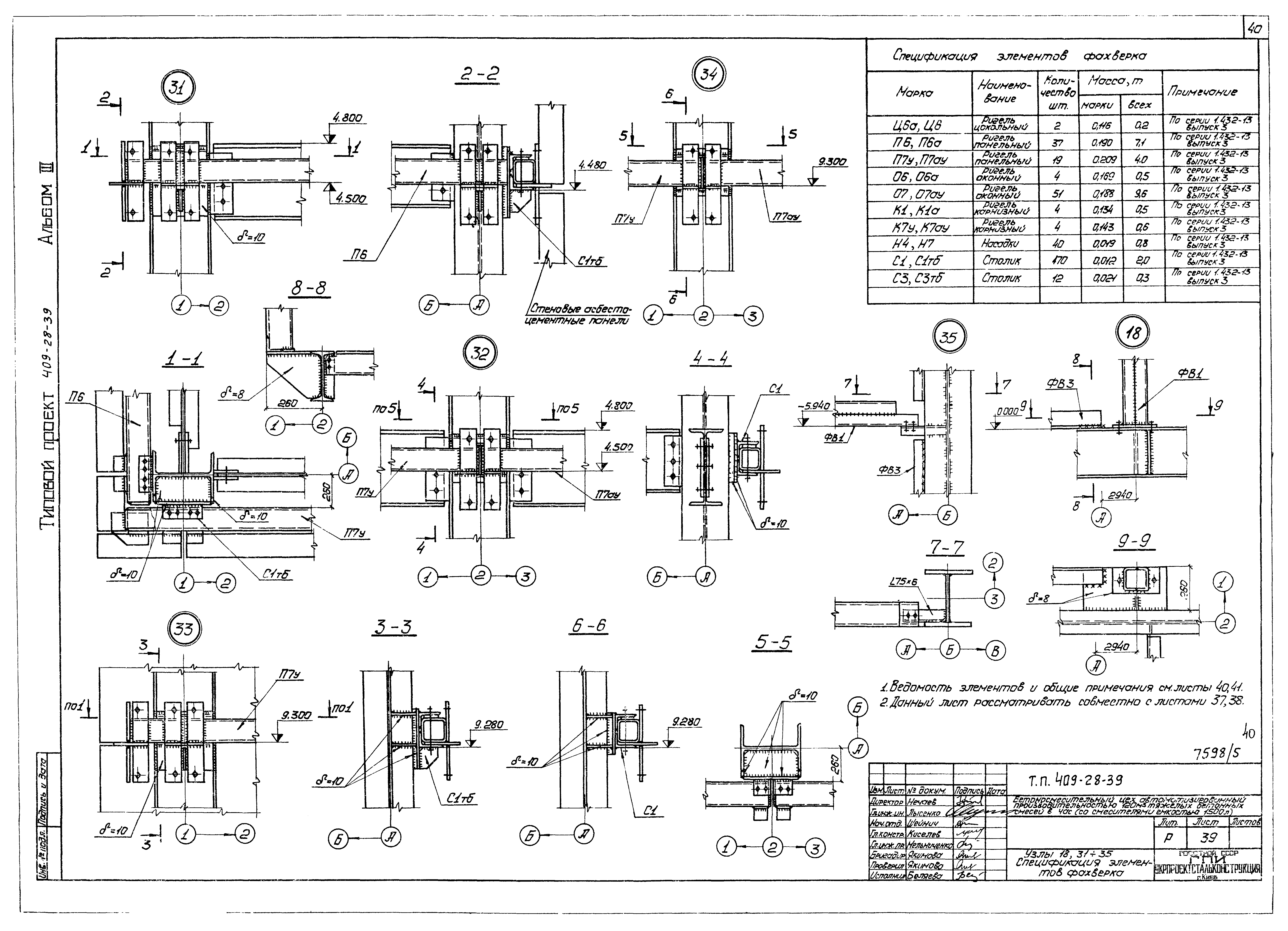
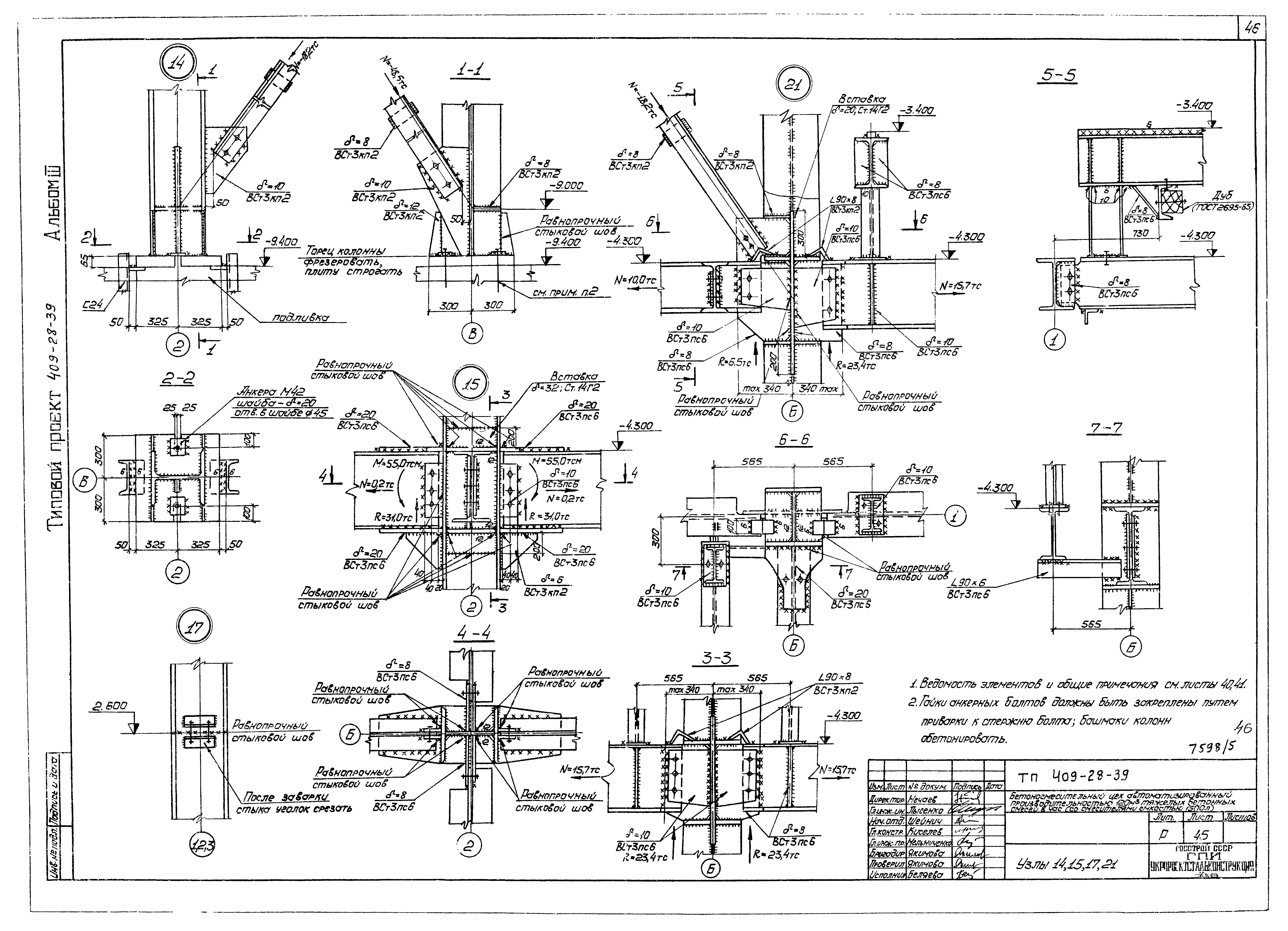
| Оглавление: | Бетоносмесительный цех Общие данные Таблица расчетных нагрузок Техническая спецификация стали для варианта стен из керамзитобетонных панелей Ведомость металлоконструкций по видам профилей для варианта стен из керамзитобетонных панелей Техническая спецификация стали для варианта стен из асбестоцементных панелей Ведомость металлоконструкций по видам профилей для варианта стен из асбестоцементных панелей Техническая спецификация металла на лестницы и площадки План анкерных болтов. Таблица расчетных нагрузок на фундаменты Расчетные схемы постоянных нагрузок по осям "А", "Б" и "В" Расчетные схемы временных нагрузок по осям "А", "Б" и "В" Расчетные схемы постоянных нагрузок по осям "1", "2" и "3" Расчетные схемы временных нагрузок по осям "1", "2" и "3" Планы проемов и отверстий на отм. 17.100; 14.400; 10.800; 8.800; 7.800. Вариант с применением электронной системы управления Планы проемов и отверстий на отм. 17.100; 14.400; 10.800; 8.800; 7.800. Вариант с применением релейно-контактной системы управления Планы проемов и отверстий на отм. 0.000; 4.800. Вариант с применением электронной и релейно-контактной системы управления. Узлы 1, 2, 3 Планы на отм. 23.100; 17.100; 8.800 Планы на отм. 14.400 и 13.448 Планы на отм. 0.000; 4.800; 7.800; 10.800. Вариант с применением электронной системы управления Планы на отм. 0.000; 4.800; 7.800; 10.800. Вариант с применением релейно-контактной системы управления Планы на отм. - 1.650; - 2.040; - 3.400; - 4.300 для варианта выдачи бетонной смеси раздаточными бункерами Планы на отм. - 2.800; - 4.300 для варианта выдачи бетонной смеси конвейерами Планы на отм. - 2.430; - 3.800. Съемный щит. Узел 4 Разрезы 1-1, 2-2. Узел 41 Разрезы 3-3, 6-6. Узел 40 Разрезы 4-4, 5-5 Лестница. Узлы 28, 29, 30 Лестница. Ведомость элементов Схемы столиков для варианта стен из керамзитобетонных панелей Схемы фахверка для варианта стен из асбестоцементных панелей Схемы фахверка для внутренних стен Узлы 8; 31 - 35. Спецификация элементов фахверка Ведомость элементов каркаса План фланцев расходных бункеров. Узлы 9 - 12 Узлы 5, 6 Узлы 7, 8 Узлы 14, 15, 17, 21 Узлы 16, 19, 20, 22, 36, 37, 38 Узлы 13, 23 - 27, 39 Галерея подачи заполнителей План анкерных болтов. Таблица расчетных нагрузок на фундаменты Схема галереи. Вариант I: стены - керамзитобетонные панели, покрытие - железобетонные плиты Схема галереи. Вариант II: стены - асбестоцементные панели, покрытие - асбестоцементные плиты Башня натяжного устройства. Ведомость элементов. Узлы 6, 7 Схема фахверка для варианта стен из асбестоцементных панелей. Узлы 9 - 14 Узлы 1 - 5; 8 |
| Разработан: | Гипростроммаш |
| Утверждён: | 23.09.1979 Госстрой СССР (Государственный комитет Совета Министров СССР по делам строительства) (USSR Gosstroy 43) |





















































