Скачать Типовой проект 501-3-10 Альбом II. Выпуск 1. Архитектурно-строительные решения. Каркасно-панельный вариантДата актуализации: 01.01.2021
|
| Обозначение: | Типовой проект 501-3-10 |
| Обозначение англ: | 501-3-10 |
| Статус: | действует |
| Название рус.: | Альбом II. Выпуск 1. Архитектурно-строительные решения. Каркасно-панельный вариант |
| Дата добавления в базу: | 01.09.2013 |
| Дата актуализации: | 01.01.2021 |
| Дата введения: | 28.04.1981 |
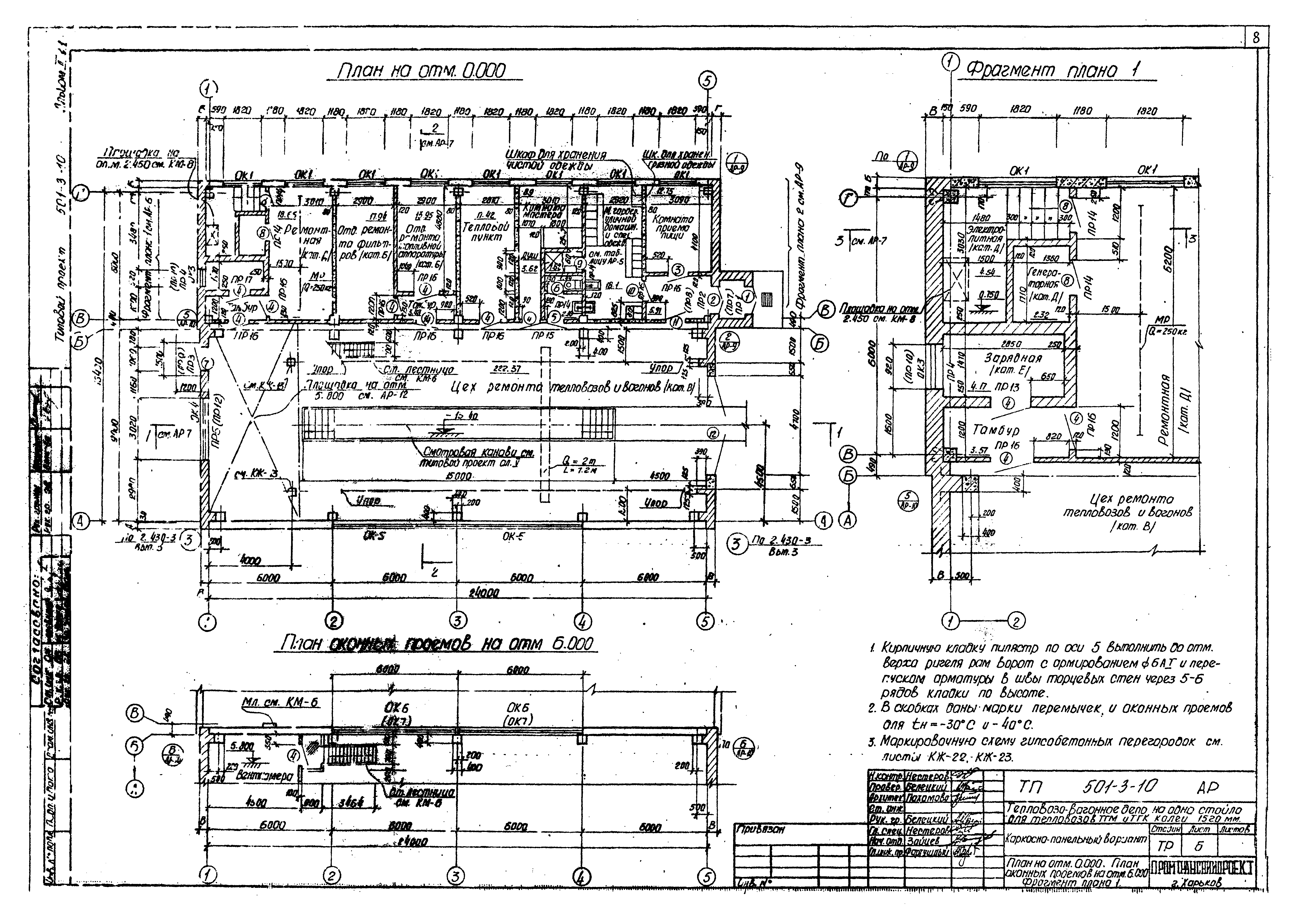
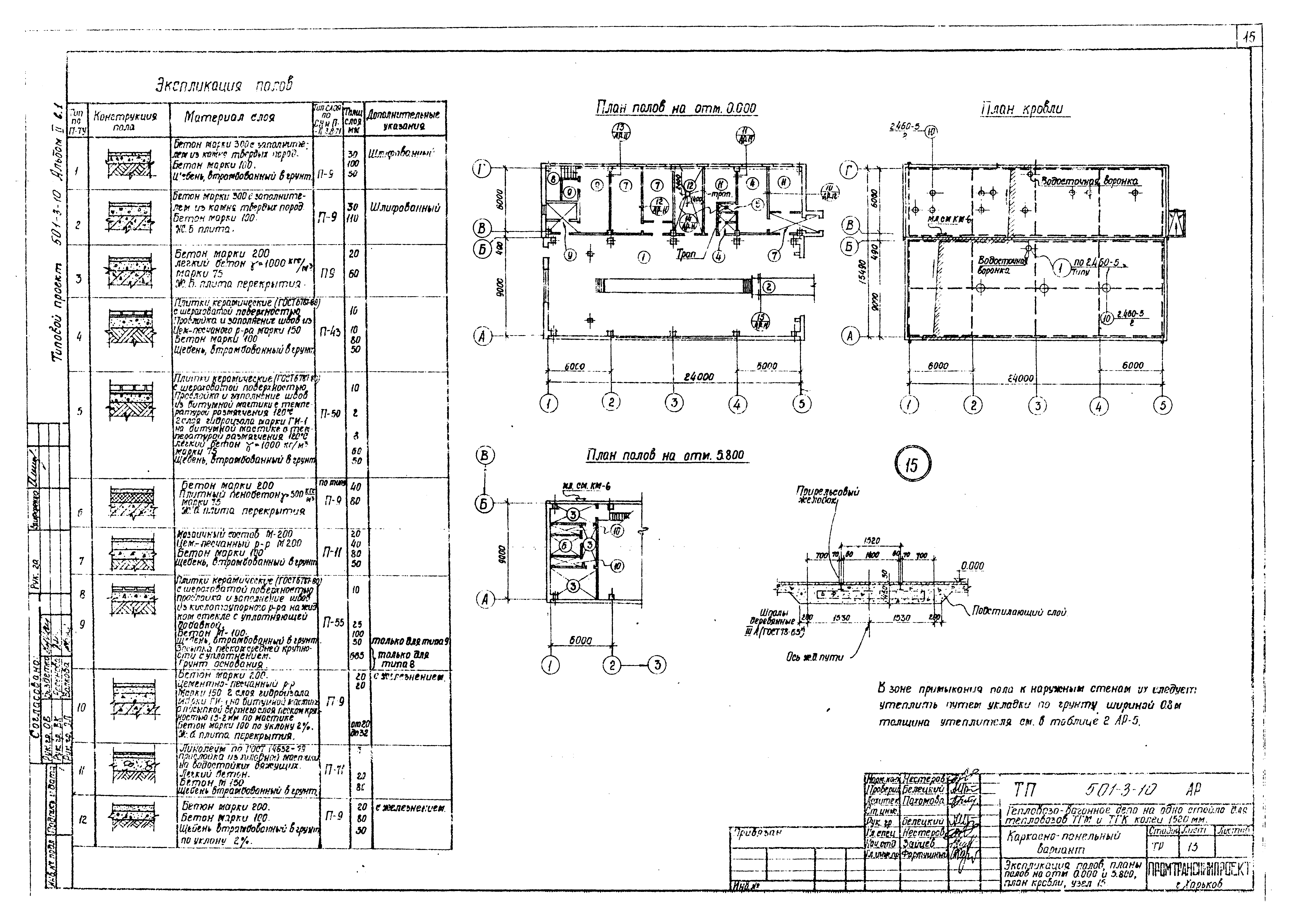
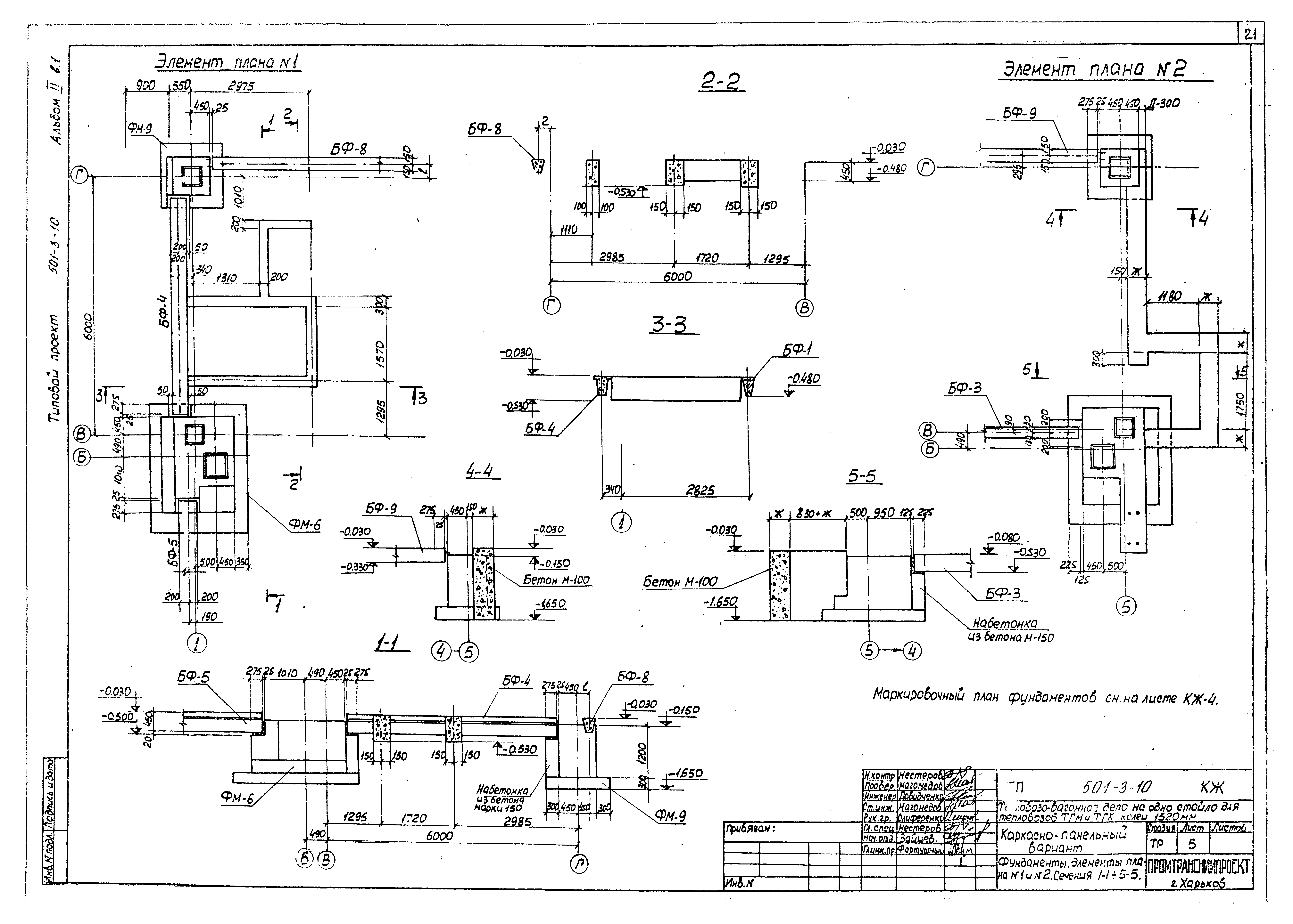
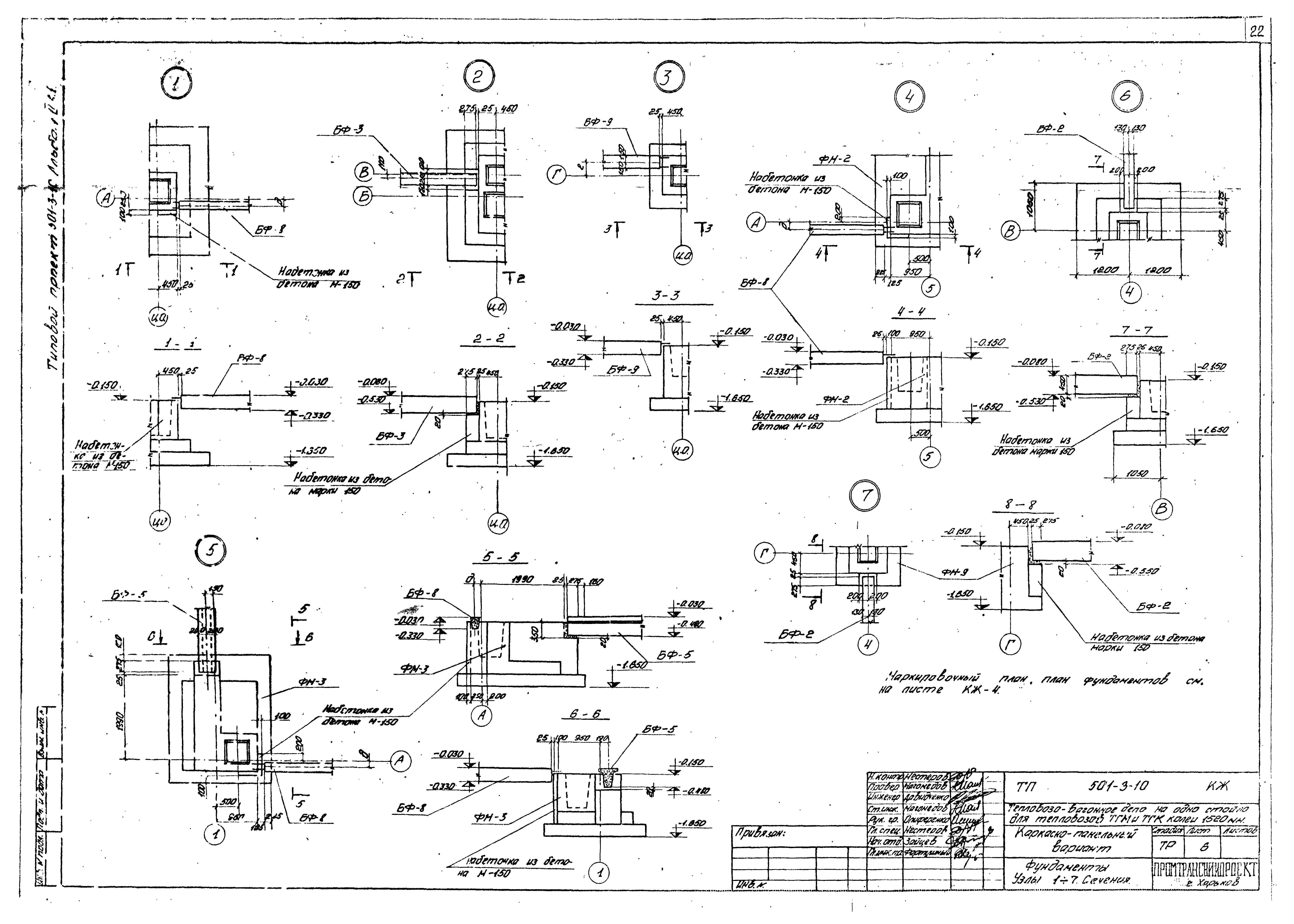
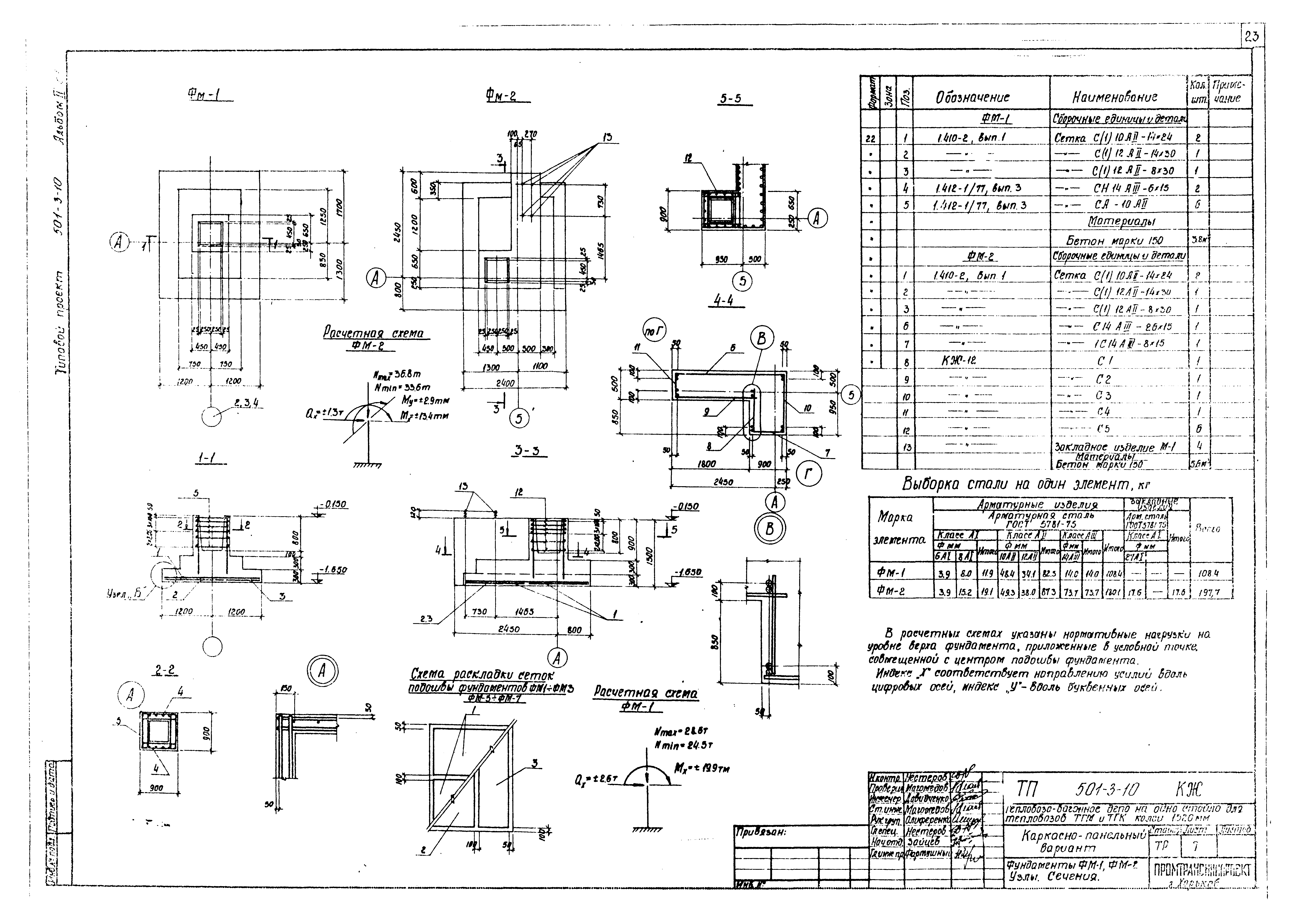
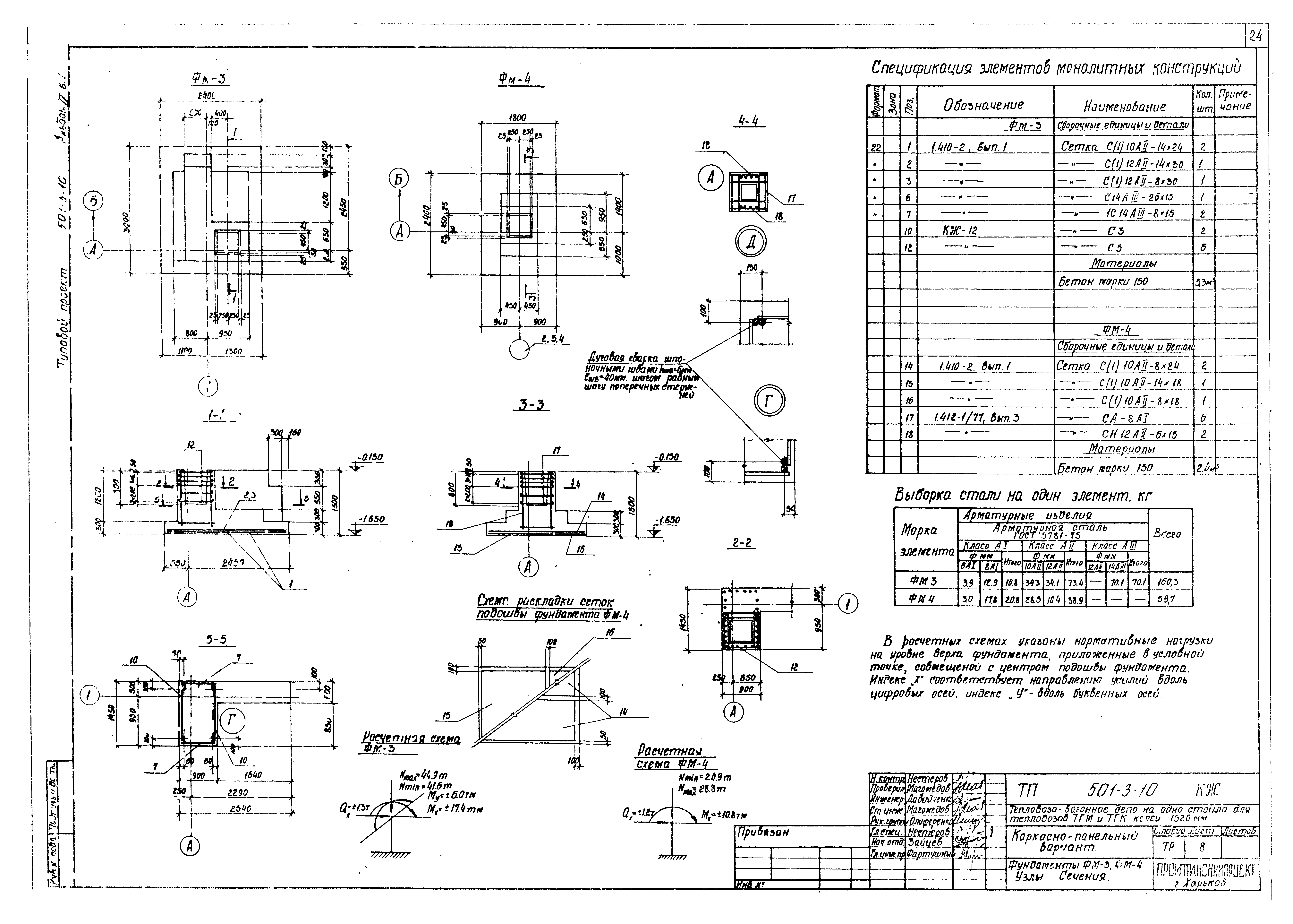
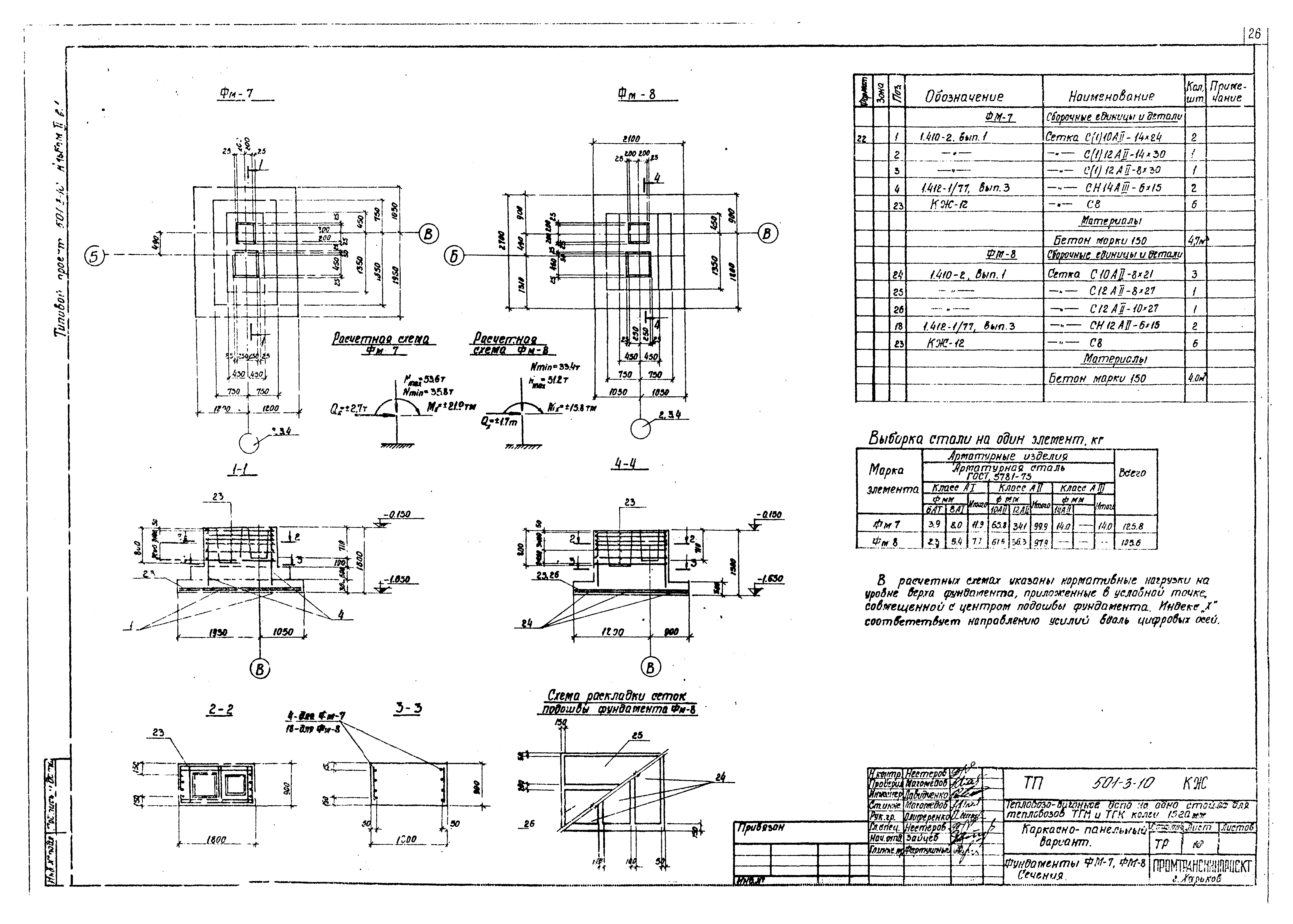
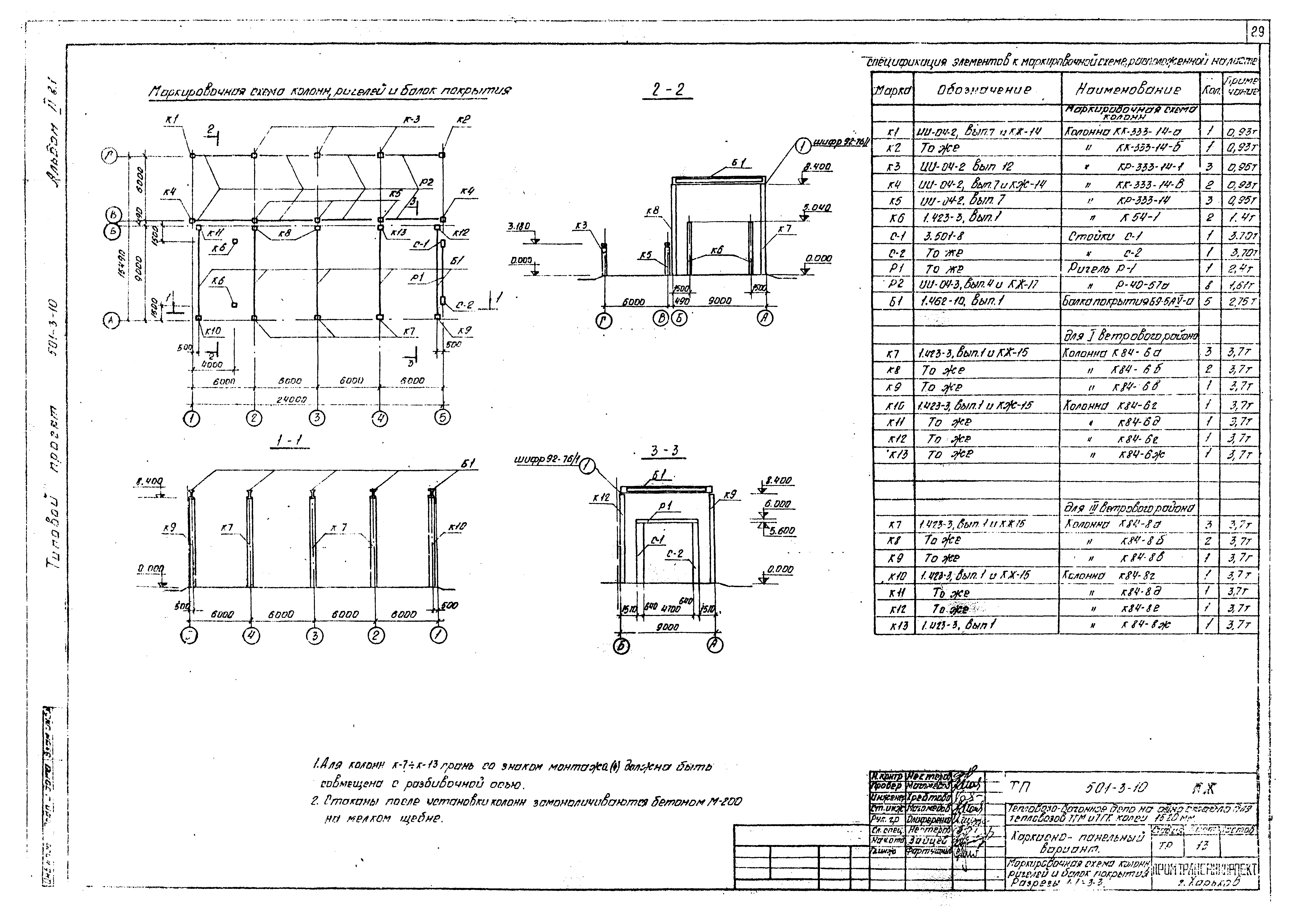
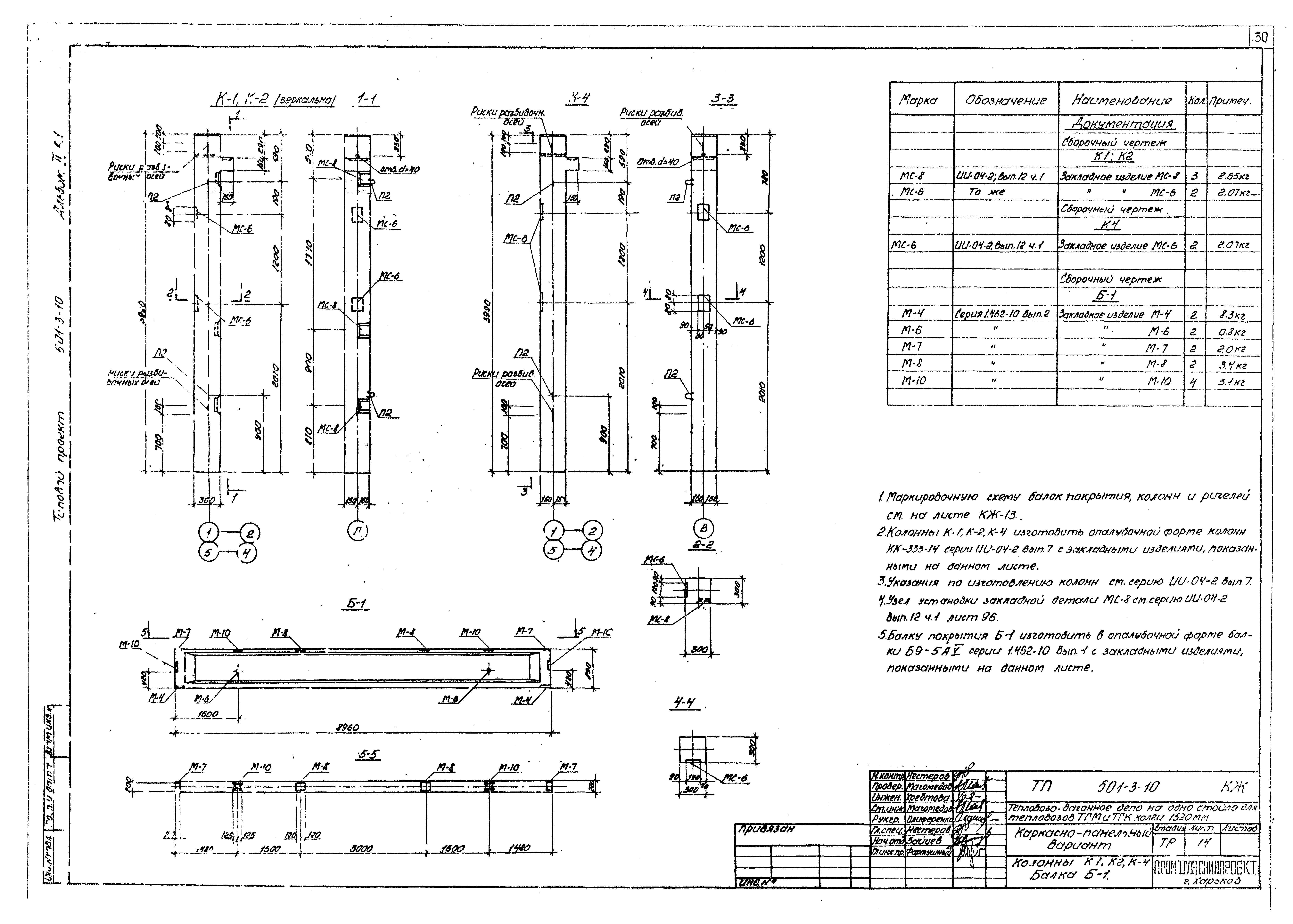
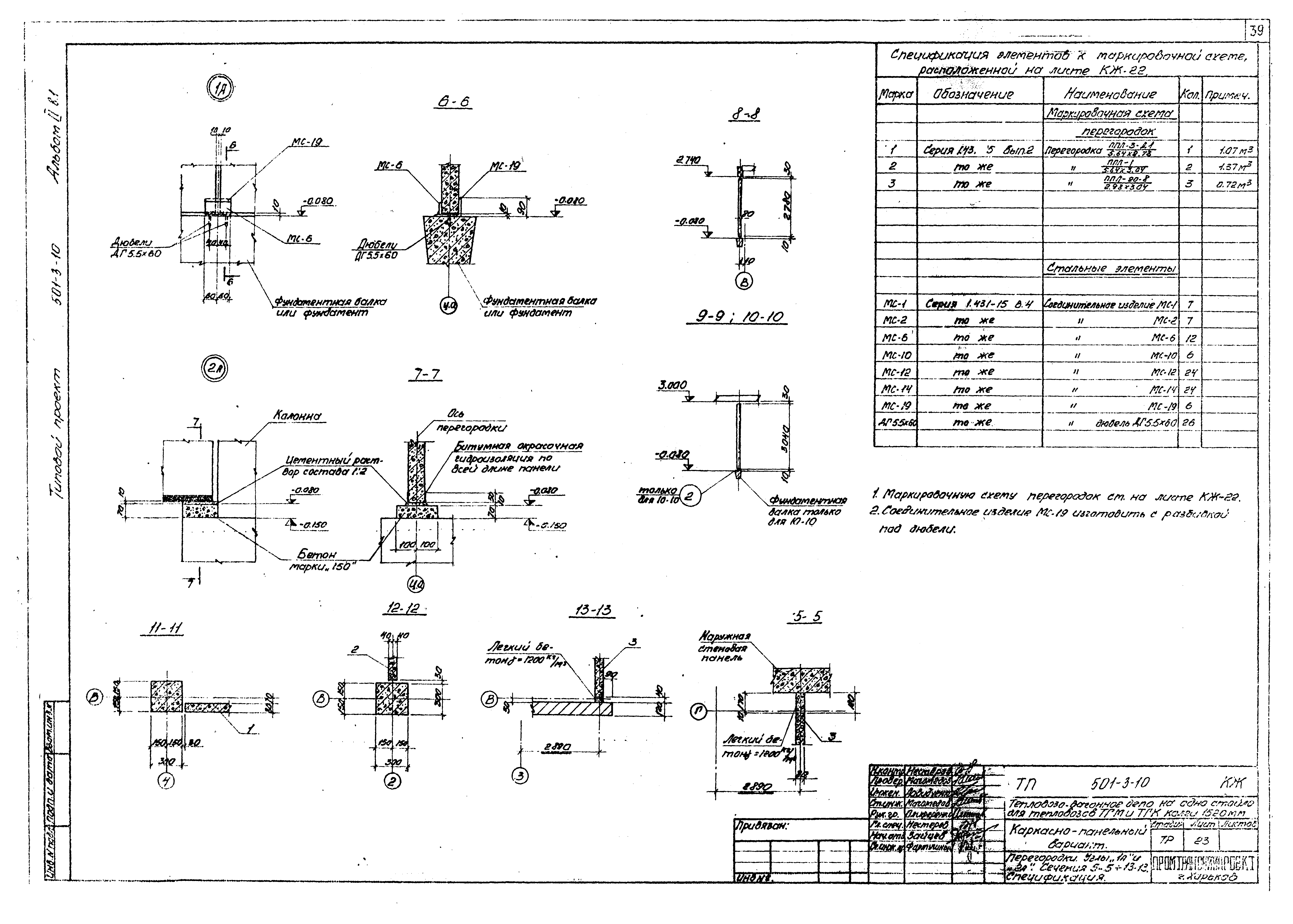
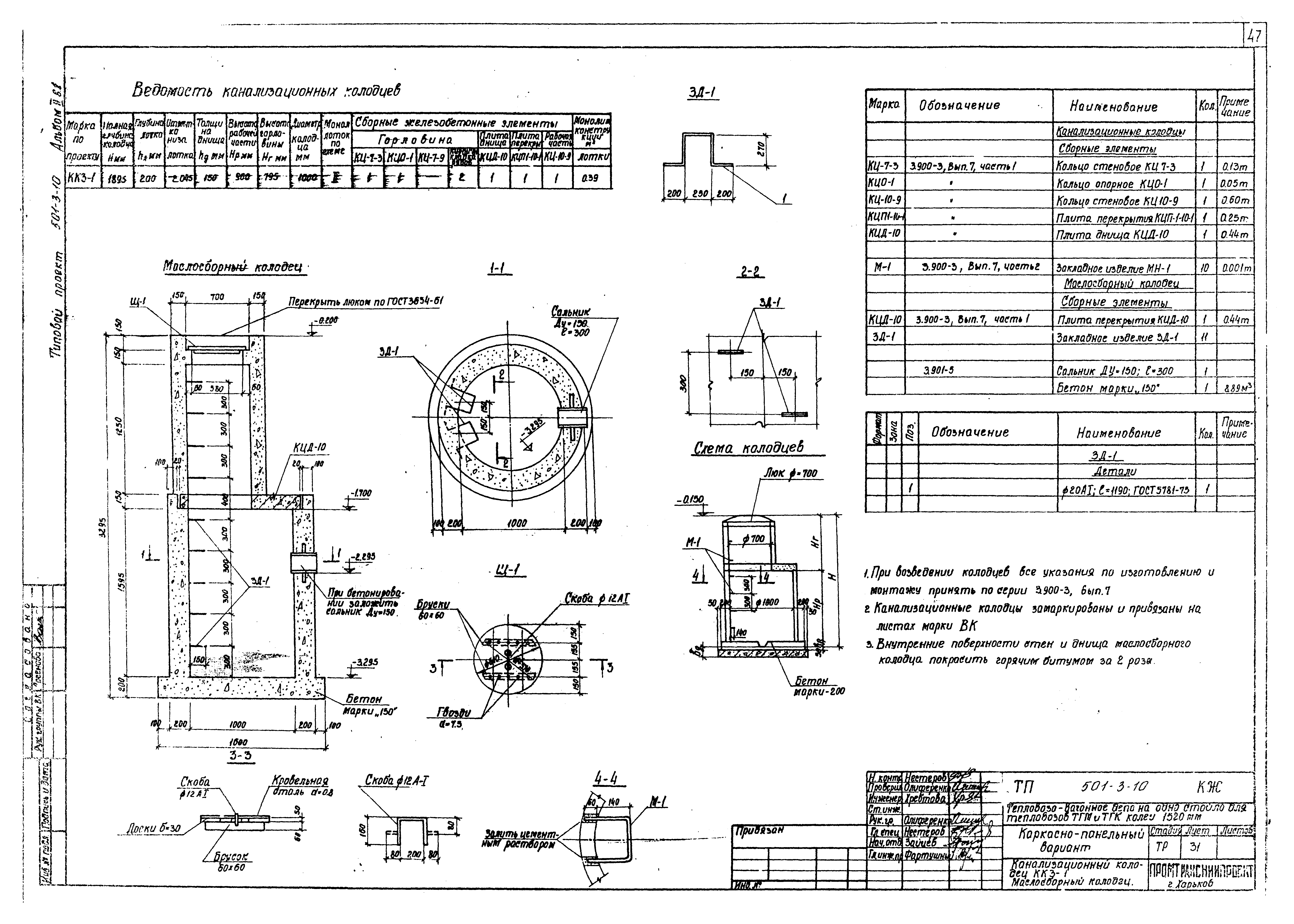
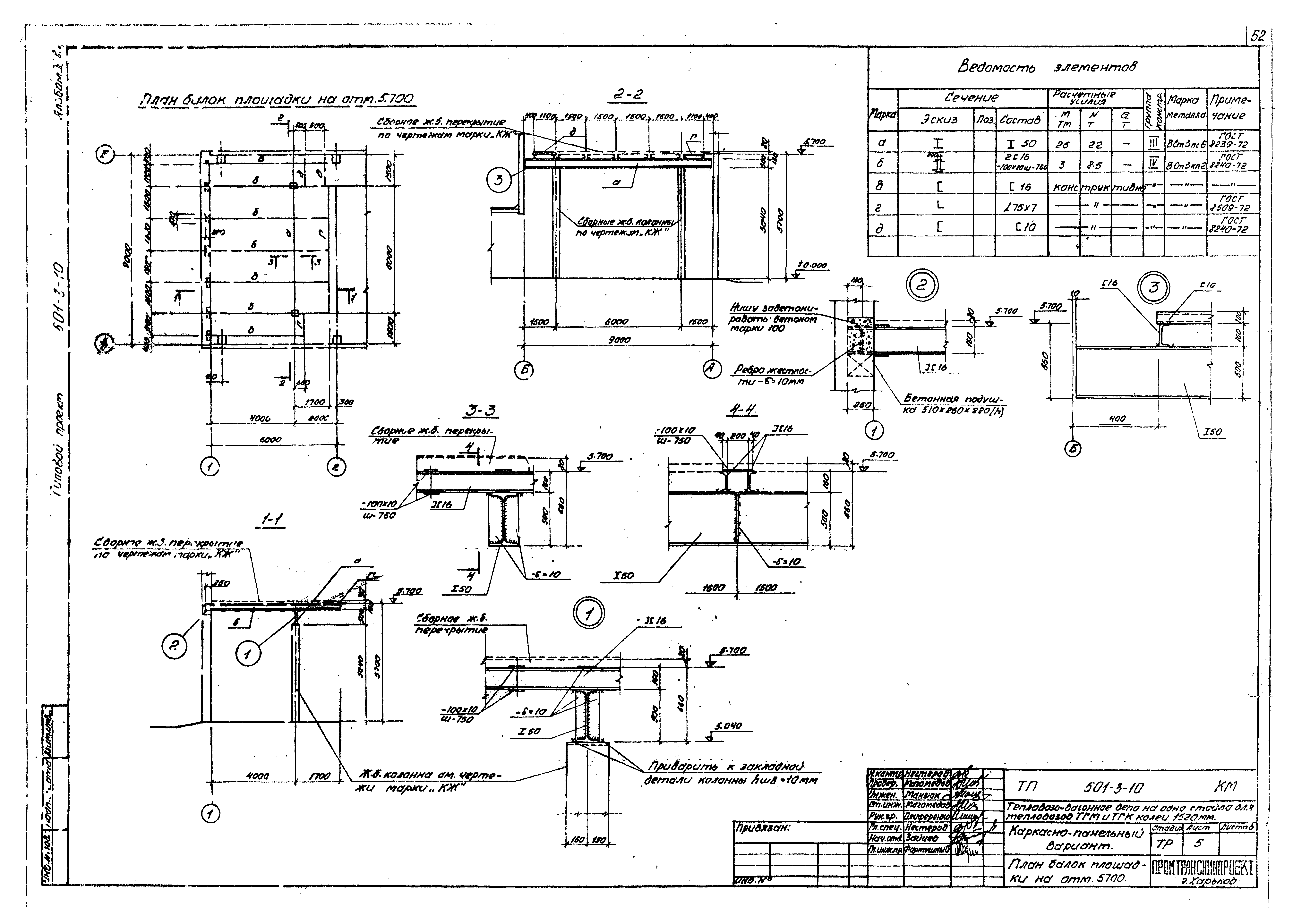
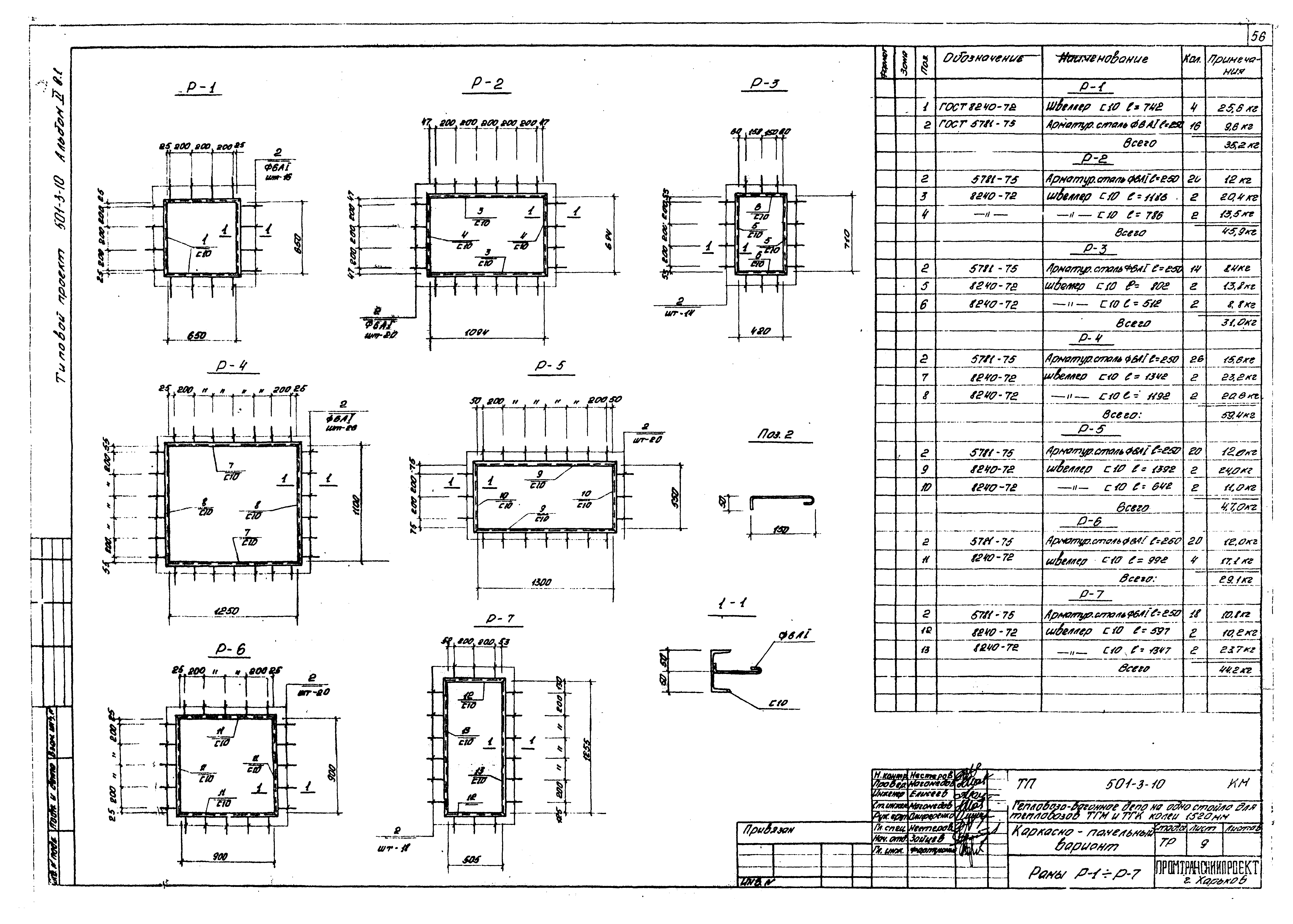
| Оглавление: | Содержание альбома Чертежи основного комплекта марки АР Общие данные План на отм. 0.000. План оконных проемов на отм. 0.000. Фрагмент плана 1 Разрезы 1-1 - 4-4 Фасады 1 - 5; 5 - 1; А - Г; Г - А. Фрагмент фасада 1 Фрагмент плана 2. Разрез 5-5. Узлы 1 - 4. Спецификация оборудования Спецификация заполнения оконных проемов. Спецификация стекла. Схемы заполнения оконных проемов. Узлы 5, 6 Узлы 7 - 14 План венткамеры на отм. 5.800. Разрезы 6-6; 7-7. Виды А, Б, В. Узлы 15 - 17 Экспликация полов, планы полов на отм. 0.000 и 5.800. План кровли. Узел 15 Планы отверстий в перегородках на отм. 0.000 и 5.800. Таблица отверстий Чертежи основного комплекта марки КЖ Общие данные Маркировочная схема фундаментов и фундаментных балок Фундаменты. Элементы плана №1, №2. Сечения 1-1 - 5-5 Фундаменты. Узлы 1 - 7. Сечения Фундаменты ФМ-1, ФМ-2. Узлы. Сечения Фундаменты ФМ-3, ФМ-4. Узлы. Сечения Фундаменты ФМ-5, ФМ-6. Узлы. Сечения Фундаменты ФМ-7, ФМ-8. Сечения Фундаменты ФМ-9 - ФМ-14, ФМ-16. Узлы 8, 9 Фундаменты. Сетки С-1 - С-8. Спецификация Маркировочная схема колонн, ригелей и балок покрытия. Разрезы 1-1 - 3-3 Колонны К-1, К-2, К-4. Балка Б-1 Колонны К-5 - К-10; К-12 Маркировочная схема плит покрытия Плиты покрытия П-9 - П-14; П-17. Узлы 1 - 3. Ригель Р-40-57а Маркировочные схемы стеновых панелей по ряду "А". Фрагмент маркировочной схемы Маркировочные схемы стеновых панелей по ряду "Б". Фрагменты маркировочной схемы стеновых панелей Маркировочные схемы стеновых панелей по ряду "Г". Спецификация элементов к маркировочным схемам Спецификация элементов к маркировочным схемам расположенным на листах КЖ-8, КЖ-19 Маркировочная схема перегородок. Разрезы 1-1 - 5-5 Перегородки. Узлы "1а" и "2а". Спецификация. Сечения 5-5 - 13-13 План венткамеры на отм. 5.800. Сечения 1-1 - 6-6. Узлы 1, 2 Маркировочная схема подземного хозяйства Маркировочная схема плит перекрытия на отм. 5.800. Сечения Грязеотстойник. План. Разрезы 1-1 - 2-2 Грязеотстойник. Армирование Грязеотстойник. Закладные детали ЗД-1 - ЗД-3. Узлы 1 - 2. Щиты Щ-1 - Щ-3. Сетки С-1 - С-2 Грязеотстойник. Сетки С-3 - С-8 Канализационный колодец ККЗ-1. Маслосборный колодец Чертежи основного комплекта марки КМ Общие данные Техническая спецификация стали Пути под подвесной кран на отм. 7.900 и монорельс на отм. 2.550 План балок площадки на отм. 5.700 Наружная металлическая лестница. Внутренняя металлическая лестница. Узлы. Спецификация План расположения кронштейнов и креплений трубопроводов. Вид по А. Сечения 1-1 - 10-10. Спецификация План съемного щита на отм. 0.000. Площадка на отм. 2.450 Рамы Р-1 - Р-7 Фильтр ВФ-1 |
| Разработан: | Промтрансниипроект |
| Утверждён: | 12.03.1981 Госстрой СССР (Государственный комитет Совета Министров СССР по делам строительства) (USSR Gosstroy 14) |

























































