Скачать Типовой проект 501-3-10 Альбом II. Выпуск 2. Архитектурно-строительные решения. Кирпичный вариантДата актуализации: 01.01.2021
|
| Обозначение: | Типовой проект 501-3-10 |
| Обозначение англ: | 501-3-10 |
| Статус: | действует |
| Название рус.: | Альбом II. Выпуск 2. Архитектурно-строительные решения. Кирпичный вариант |
| Дата добавления в базу: | 01.09.2013 |
| Дата актуализации: | 01.01.2021 |
| Дата введения: | 28.04.1981 |
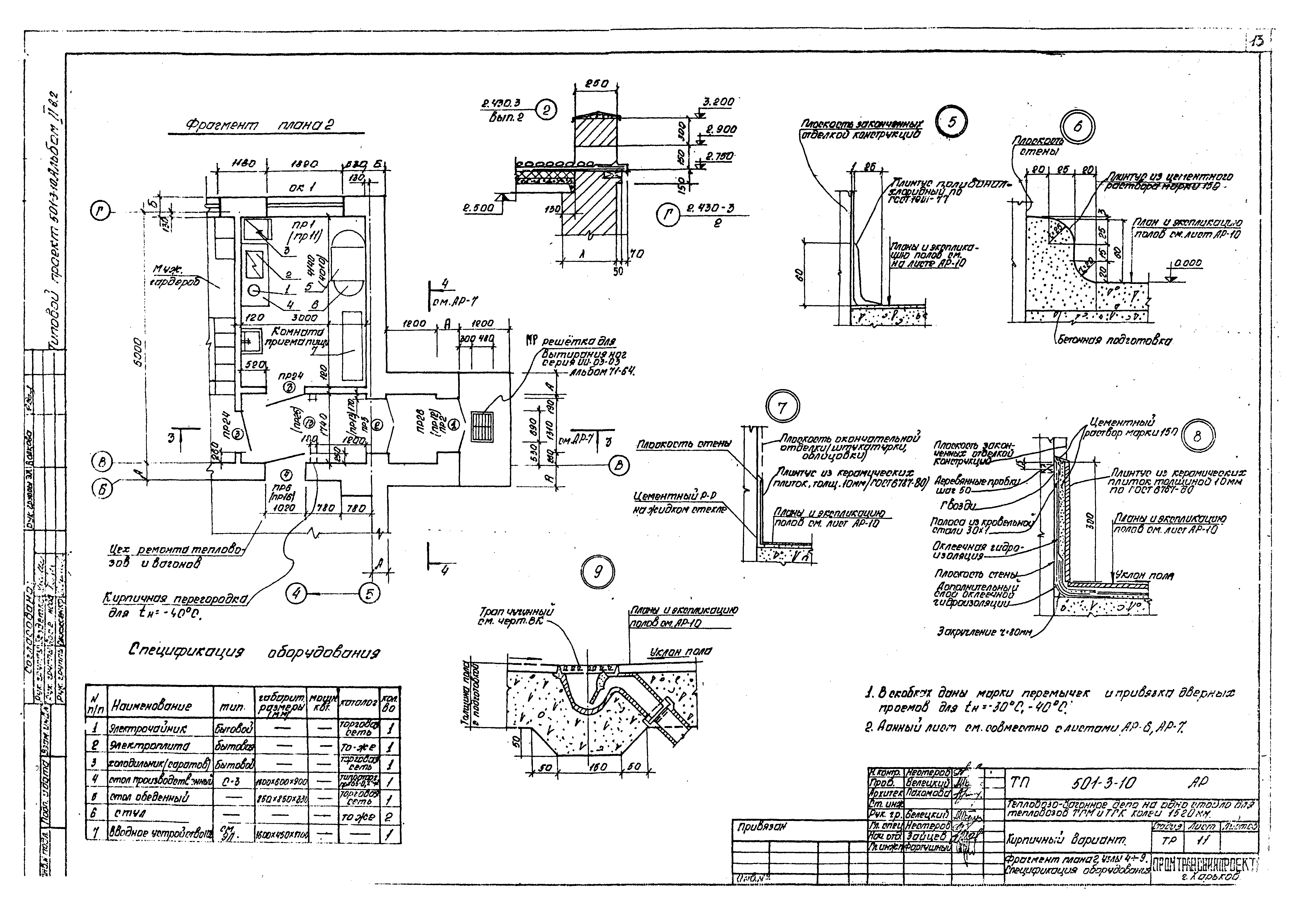
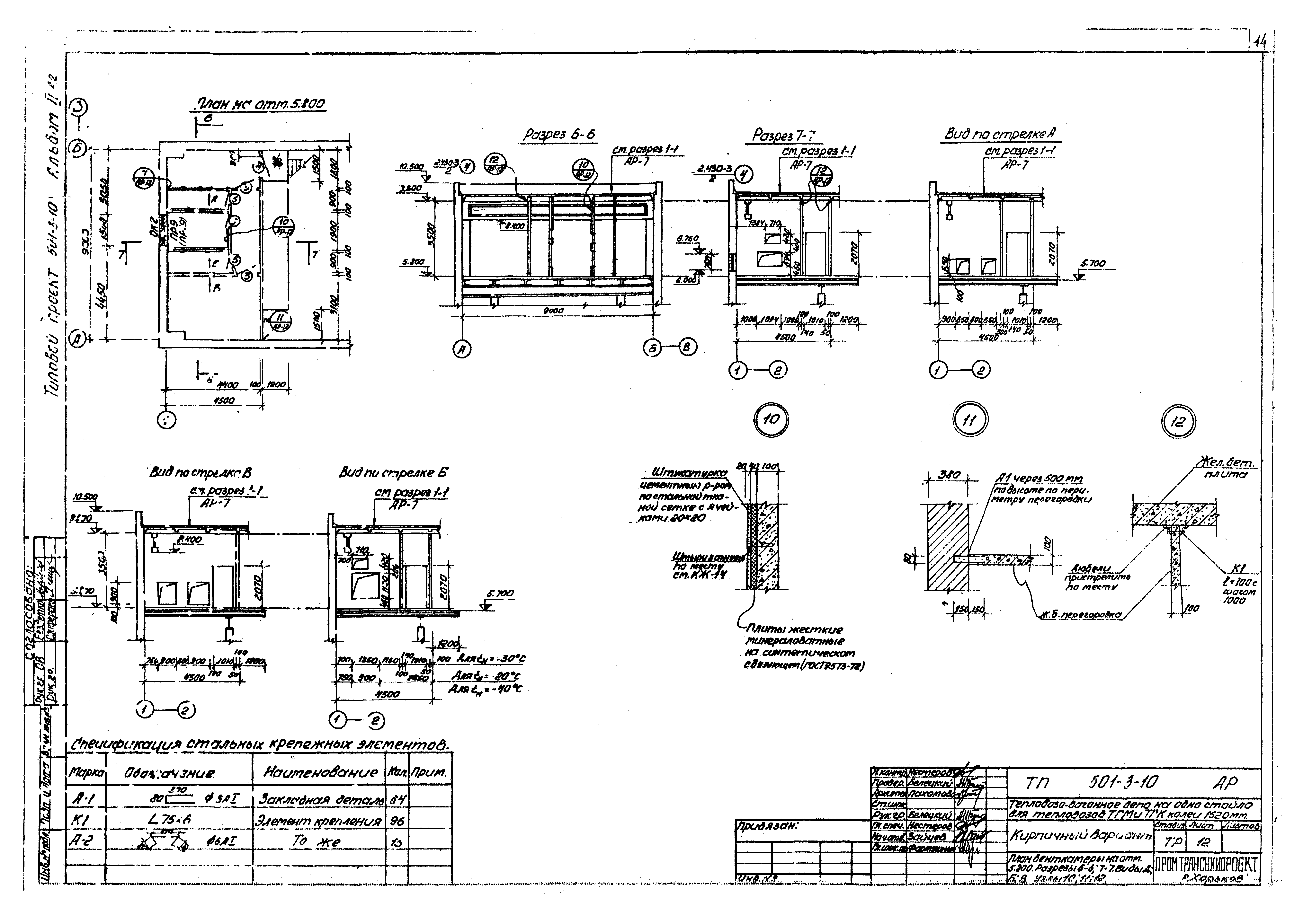
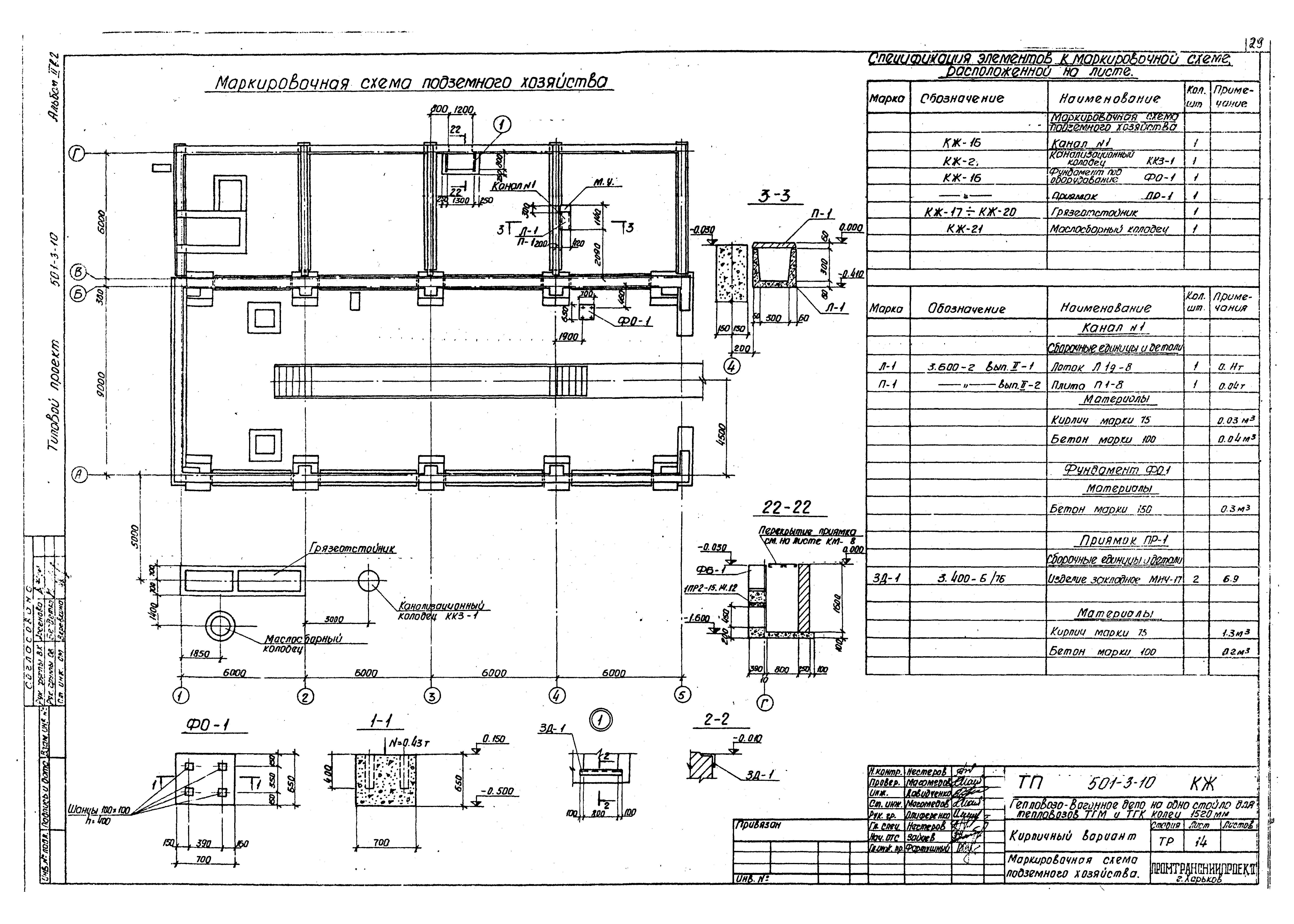
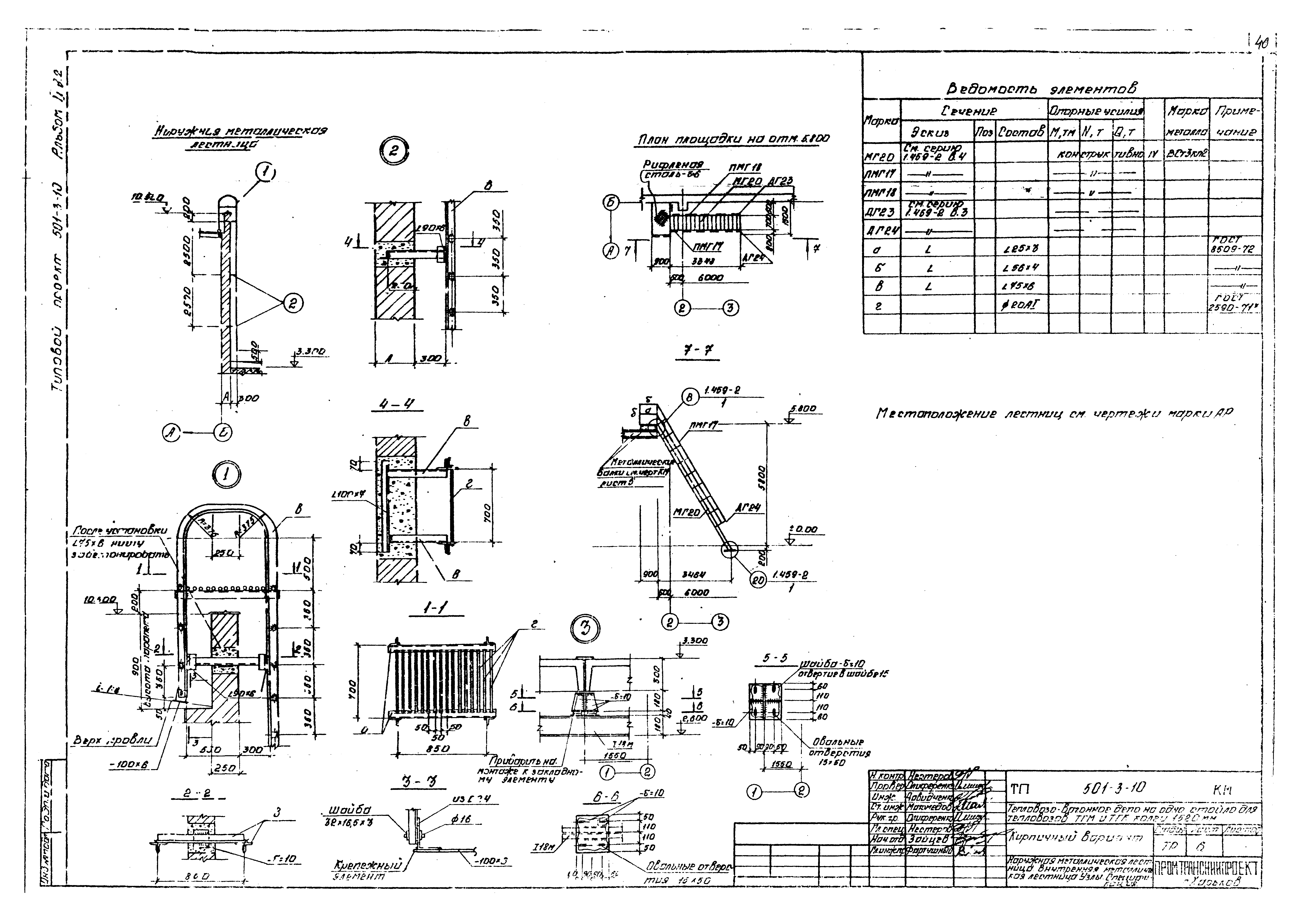
| Оглавление: | Содержание альбома Чертежи основного комплекта марки АР Общие данные План на отм. 0.000. План оконных проемов на отм. 6.000. Фрагмент плана 1 Разрезы 1-1 - 5-5 Фасады 1 - 5; 5 - 1; А - Г; Г - А. Фрагмент фасада 1 Спецификация оконных проемов. Спецификация стекла. Схемы заполнения оконных проемов. Узлы 1, 2 Планы полов на отм. 0.000; план полов на отм. 5.800. План кровли. Экспликация полов. Узел 3 Фрагмент плана 2. Узлы 4 - 9. Спецификация оборудования План венткамеры на отм. 5.800. Разрезы 6-6; 7-7. Виды А, Б, В. Узлы 10, 11, 12 Планы отверстий в перегородках на отм. 0.000; 5.800. Таблица отверстий Чертежи основного комплекта марки КЖ Общие данные Маркировочная схема фундаментов. Сечения 1-1 - 4-4 и 21-21. Спецификация Фундаменты. Сечения 5-5 - 12-12 Фундаменты. Сечения 13-13 - 17-17 Фундаменты ФМ-1, ФМ-2. Сечения 18-18 - 20-20 Маркировочная схема балок покрытия, колонн и рамы ворот. Балка Б-1. Сетка С-1, С-2. Анкера М-1, М-2 Маркировочная схема плит покрытия Плиты покрытия П-8, П-10, П-12 Окаймляющее армирование отверстий в плитах П-8 и П-12 Окаймляющее армирование отверстий в плите П-10. Спецификации Маркировочная схема плит перекрытия на отм. 5.800. Сечения План венткамеры на отм. 5.800. Сечения 1-1 - 6-6. Узлы 1, 2 Маркировочная схема подземного хозяйства Грязеотстойник. План. Разрезы 1-1 - 2-2 Грязеотстойник. Армирование Грязеотстойник. Закладные детали ЗД-1 - ЗД-3. Узлы 1 - 2. Щиты Щ-1 - Щ-3. Сетки С-1 - С-2 Грязеотстойник. Сетки С-3 - С-8 Канализационный колодец ККЗ-1. Маслосборный колодец Чертежи основного комплекта марки КМ Общие данные Техническая спецификация стали Пути под подвесной кран на отм. 7.900 и монорельс на отм. 2.600 План балок площадки на отм. 5.700 Наружная металлическая лестница. Внутренняя металлическая лестница. Узлы. Спецификация План расположения кронштейнов и креплений трубопроводов. Вид по А. Сечения 1-1 - 10-10. Спецификация План съемного щита на отм. 0.000. Площадка на отм. 2.450 Рамы Р-1 - Р-7 Фильтр ВФ-1 |
| Разработан: | Промтрансниипроект |
| Утверждён: | 12.03.1981 Госстрой СССР (Государственный комитет Совета Министров СССР по делам строительства) (USSR Gosstroy 14) |












































