Скачать Типовой проект 503-1-83.91 Альбом I. Общая пояснительная записка. Технология. Архитектурно-строительные решения. Строительные изделияДата актуализации: 01.01.2021
|
| Обозначение: | Типовой проект 503-1-83.91 |
| Обозначение англ: | 503-1-83.91 |
| Статус: | не определен законодательством |
| Название рус.: | Альбом I. Общая пояснительная записка. Технология. Архитектурно-строительные решения. Строительные изделия |
| Дата добавления в базу: | 01.09.2013 |
| Дата актуализации: | 01.01.2021 |
| Дата введения: | 30.01.1991 |
| Дата окончания срока действия: | 30.06.2003 |
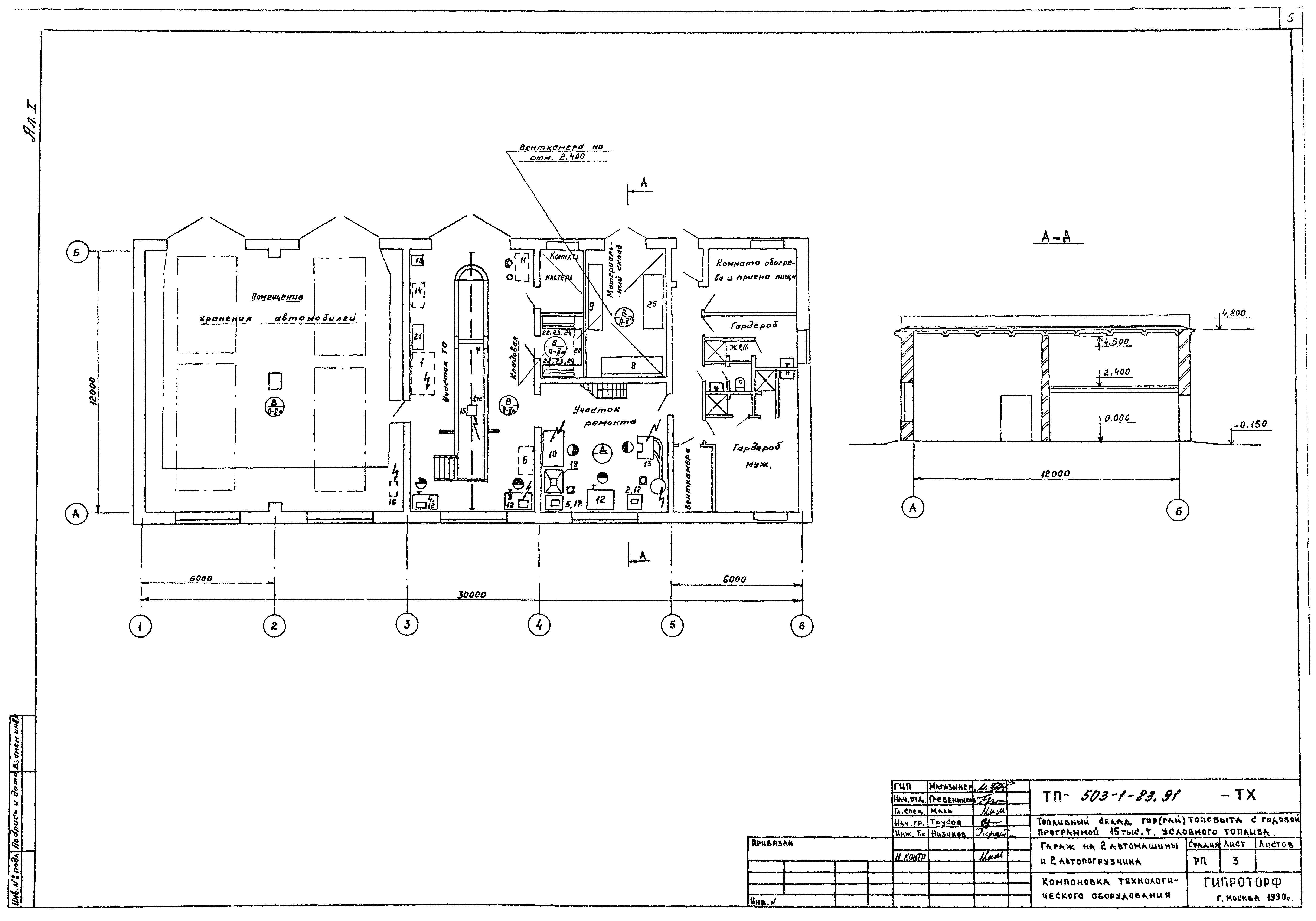
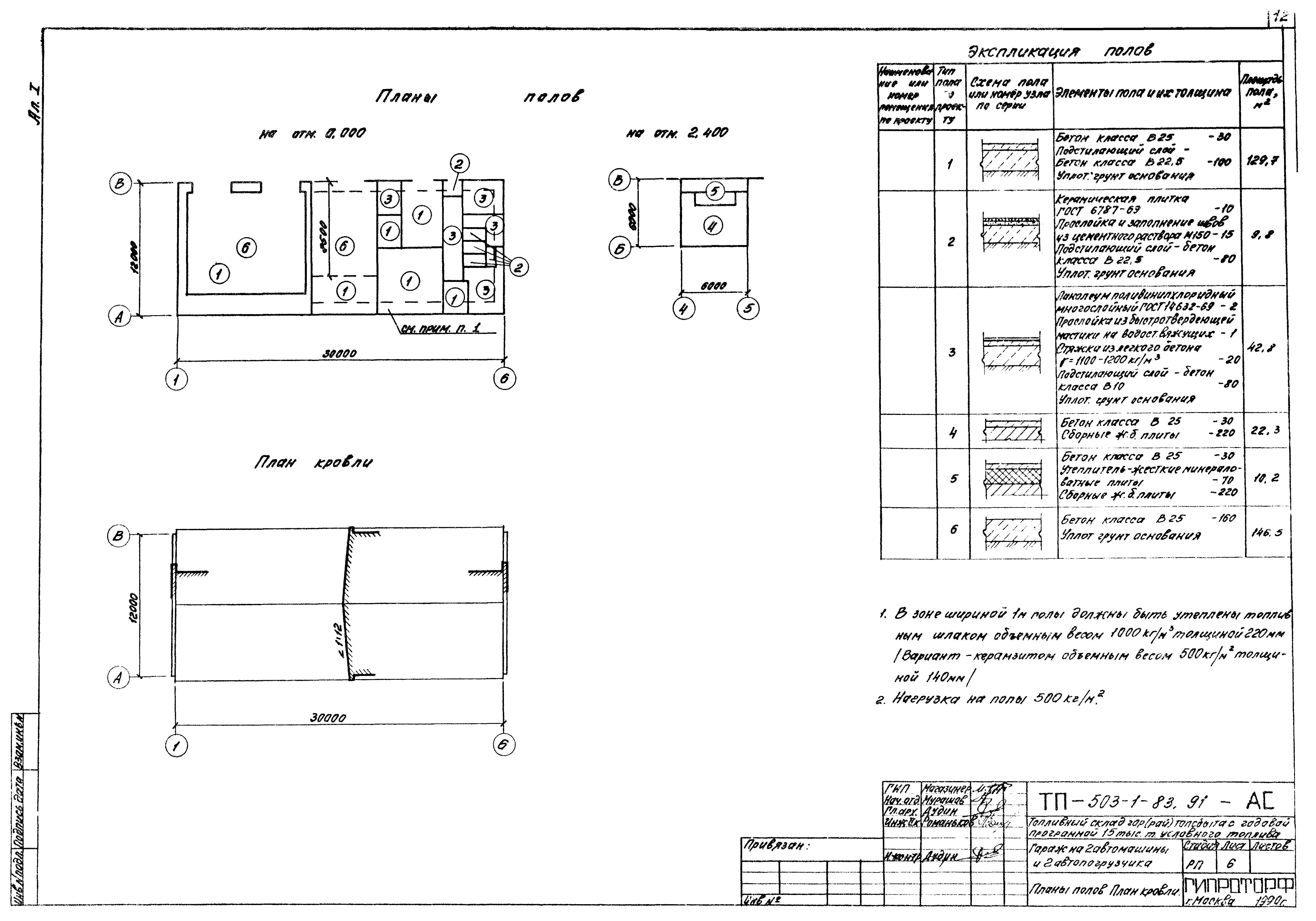
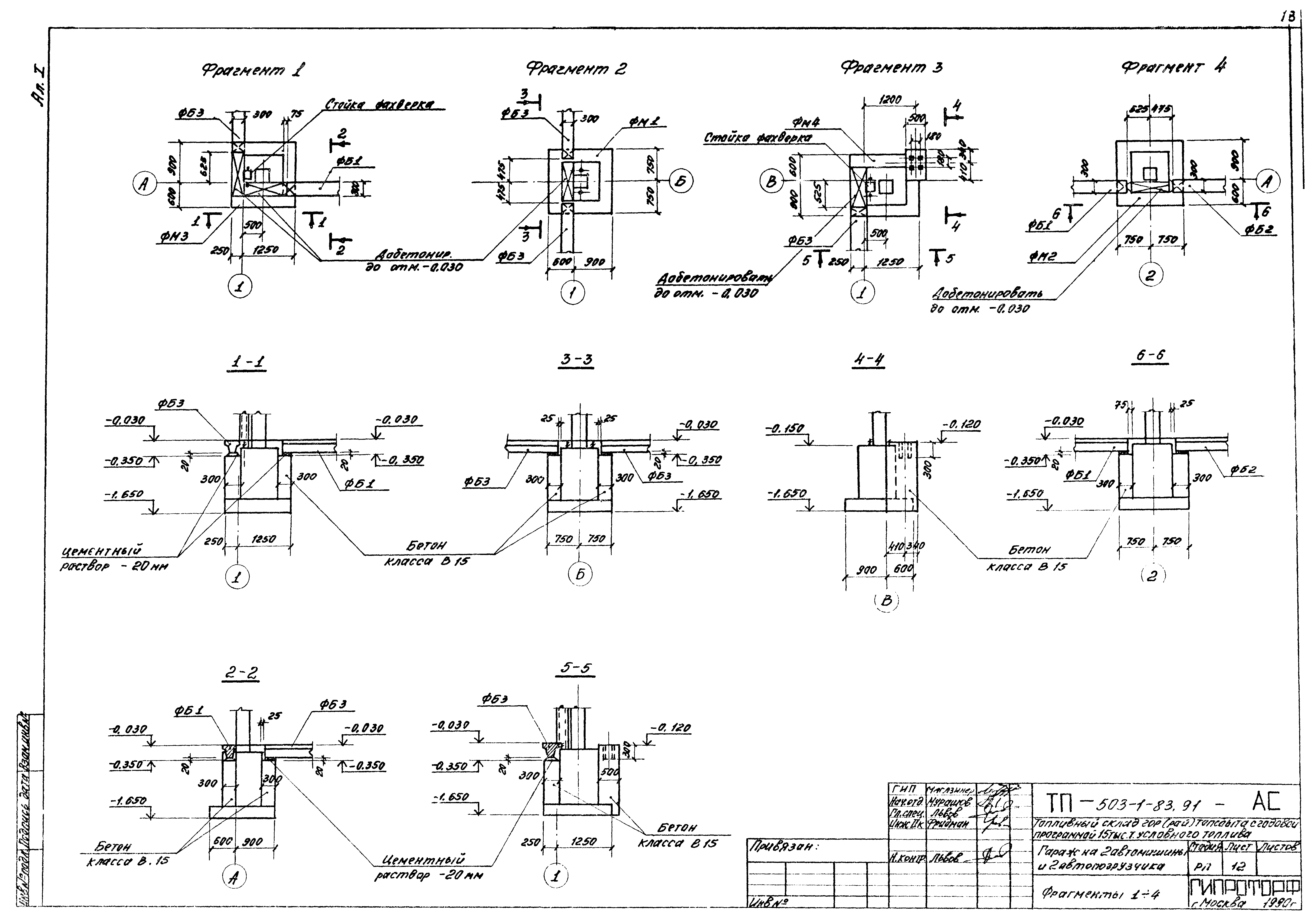
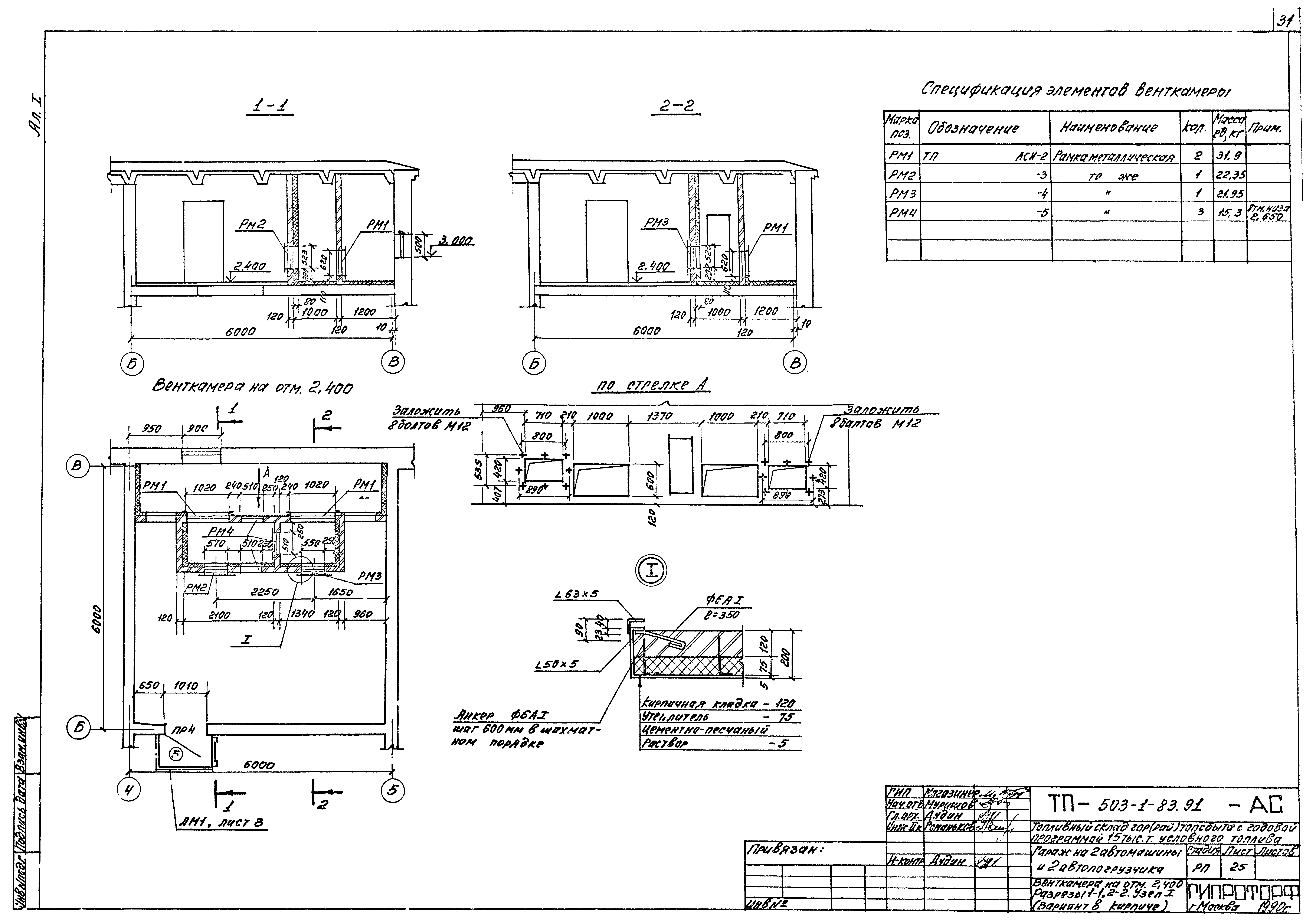
| Оглавление: | Общая пояснительная записка Чертежи основного комплекта марки ТХ Общие данные Компоновка технологического оборудования Чертежи основного комплекта марки АС Общие данные План на отм. 0.000 Разрезы 1-1, 2-2, 3-3 Фасады 1 - 6, 6 - 1, А - В, В - А Планы полов. План кровли Венткамера на отм. 2.400. Разрезы 1-1, 2-2. Узел I Лестница ЛМ1 План подземного хозяйства. Фрагменты плана 1 - 4 План смотровой канавы. Сечения. Узлы Схема расположения элементов фундаментов. Развертки по осям 3, 4, 5 Фрагменты 1 - 4 Фрагменты 5 - 7 Фрагменты 8 и 9 Фундамент ФФ1-1 Фундамент Ф1.1.1 Фундамент Ф1.1.1, а, б, в, г Фундамент Фм7. Ведомость расхода стали Схема расположения колонн и балок покрытия, плит покрытия и перекрытия Схемы расположения стеновых панелей Схема расположения элементов подвесного транспорта. Сечения. Узлы План на отм. 0.000 (Вариант в кирпиче) Разрезы 1-1, 2-2, 3-3 (Вариант в кирпиче) Фасады 1 - 6, 6 - 1, А - Б, Б - А (Вариант в кирпиче) Венткамера на отм. 2.400. Разрезы 1-1, 2-2. Узел I (Вариант в кирпиче) Схема расположения элементов фундаментов. Сечения 1-1 - 6-6 (Вариант в кирпиче) Развертка фундаментов (Вариант в кирпиче) Схемы расположения плит покрытия и перекрытия (Вариант в кирпиче) Технические требования. Рамка металлическая РМ1. Рамка металлическая РМ2 Рамка металлическая РМ3. Рамка металлическая РМ4. Изделия закладные МН1, Мн2. Изделие закладное МН8 Изделие закладное МН9. Сетка С1. Изделие закладное РШ1. Изделие закладное РШ2 Железобетонные колонны К36-3-а, б, в и 1КФ43-1. Сборочные чертежи |
| Разработан: | Гипроторф |
| Утверждён: | 20.10.1990 Ростоппром (27) |







































