Скачать Типовой проект 503-2-10.84 Альбом I. Общая пояснительная записка. Технологические чертежиДата актуализации: 01.01.2021
|
| Обозначение: | Типовой проект 503-2-10.84 |
| Обозначение англ: | 503-2-10.84 |
| Статус: | действует |
| Название рус.: | Альбом I. Общая пояснительная записка. Технологические чертежи |
| Дата добавления в базу: | 01.09.2013 |
| Дата актуализации: | 01.01.2021 |
| Дата введения: | 01.01.1984 |
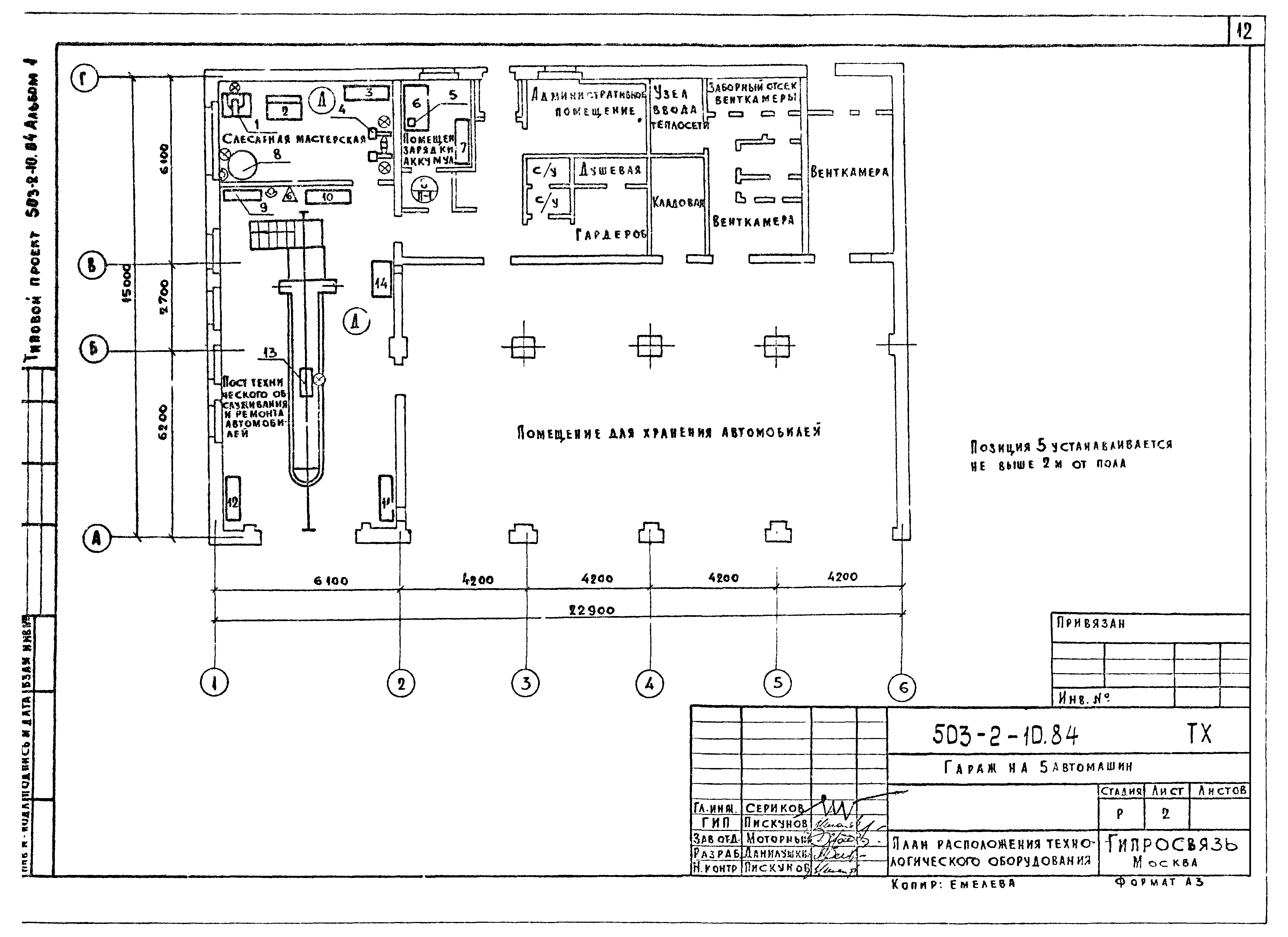
| Оглавление: | Содержание альбома Общие данные Пояснительная записка Чертежи основного комплекта марки ТХ Общие данные План расположения технологического оборудования Спецификация к плану расположения оборудования |
| Разработан: | Гипросвязь |
| Утверждён: | 02.08.1983 Министерство связи СССР |














