Скачать Типовой проект 509-28.87 Альбом 3. Сборные железобетонные элементы и металлические изделияДата актуализации: 01.01.2021
|
| Обозначение: | Типовой проект 509-28.87 |
| Обозначение англ: | 509-28.87 |
| Статус: | не определен законодательством |
| Название рус.: | Альбом 3. Сборные железобетонные элементы и металлические изделия |
| Дата добавления в базу: | 01.10.2014 |
| Дата актуализации: | 01.01.2021 |
| Дата введения: | 14.04.1987 |
| Дата окончания срока действия: | 30.06.2003 |
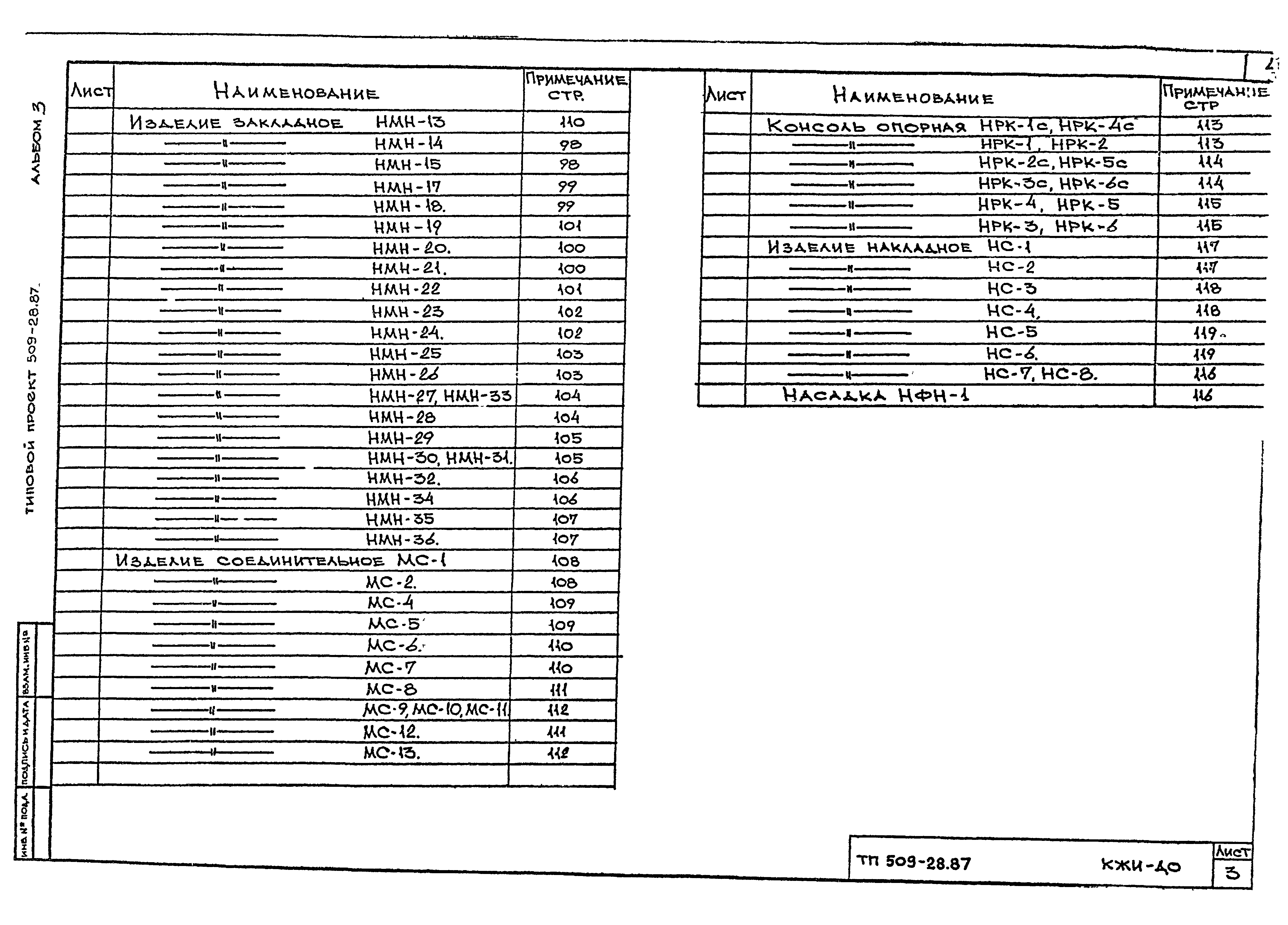
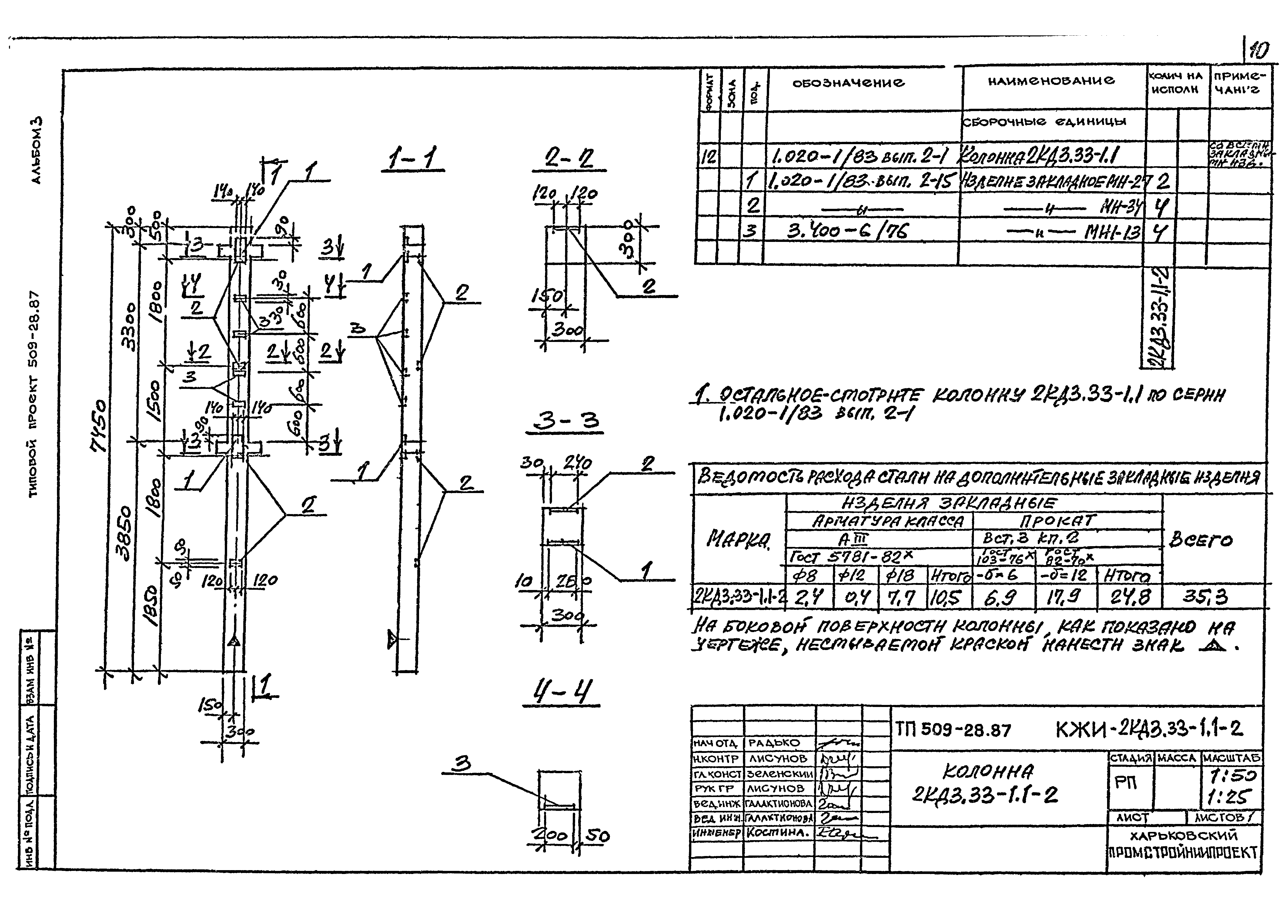
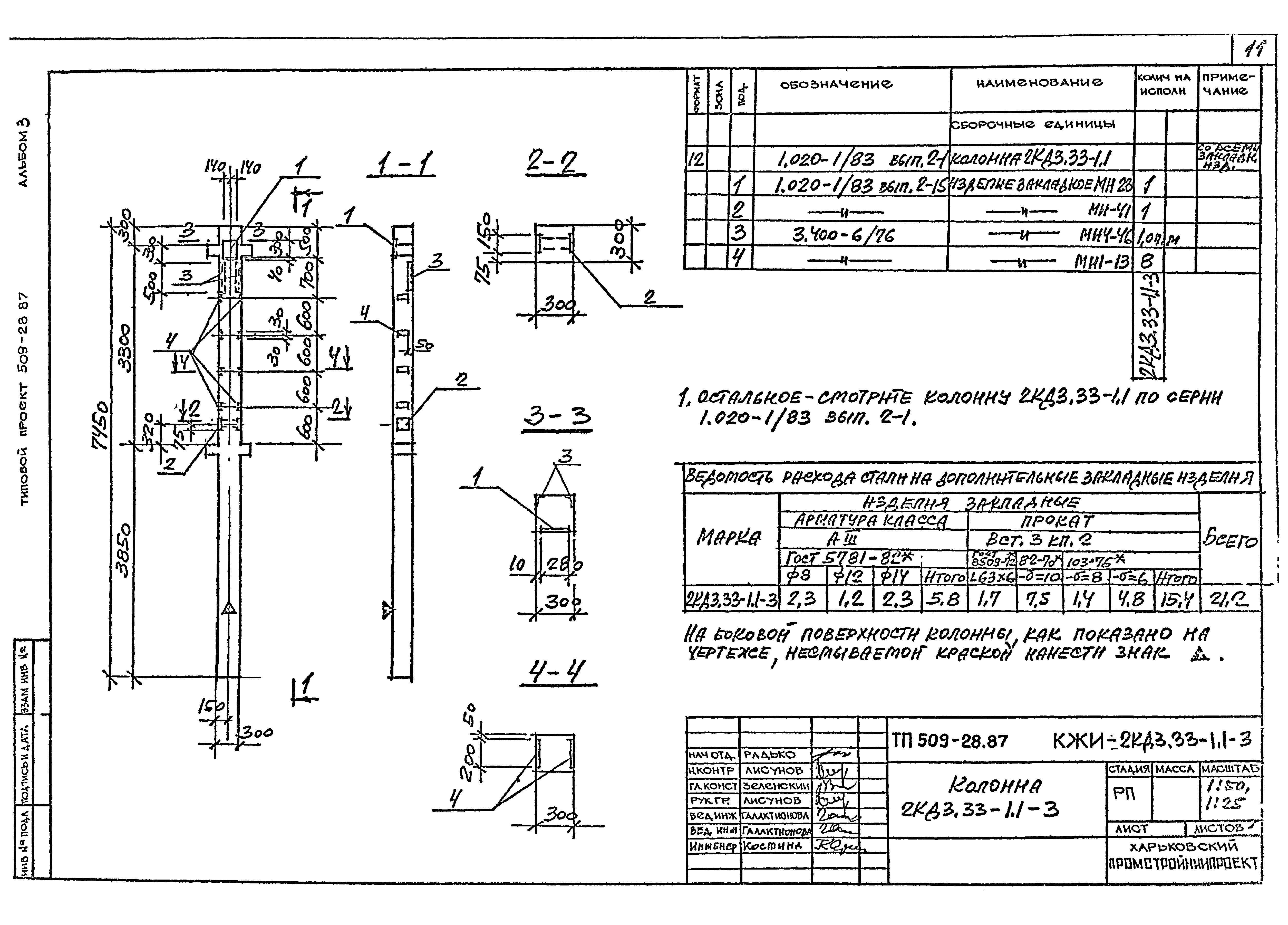
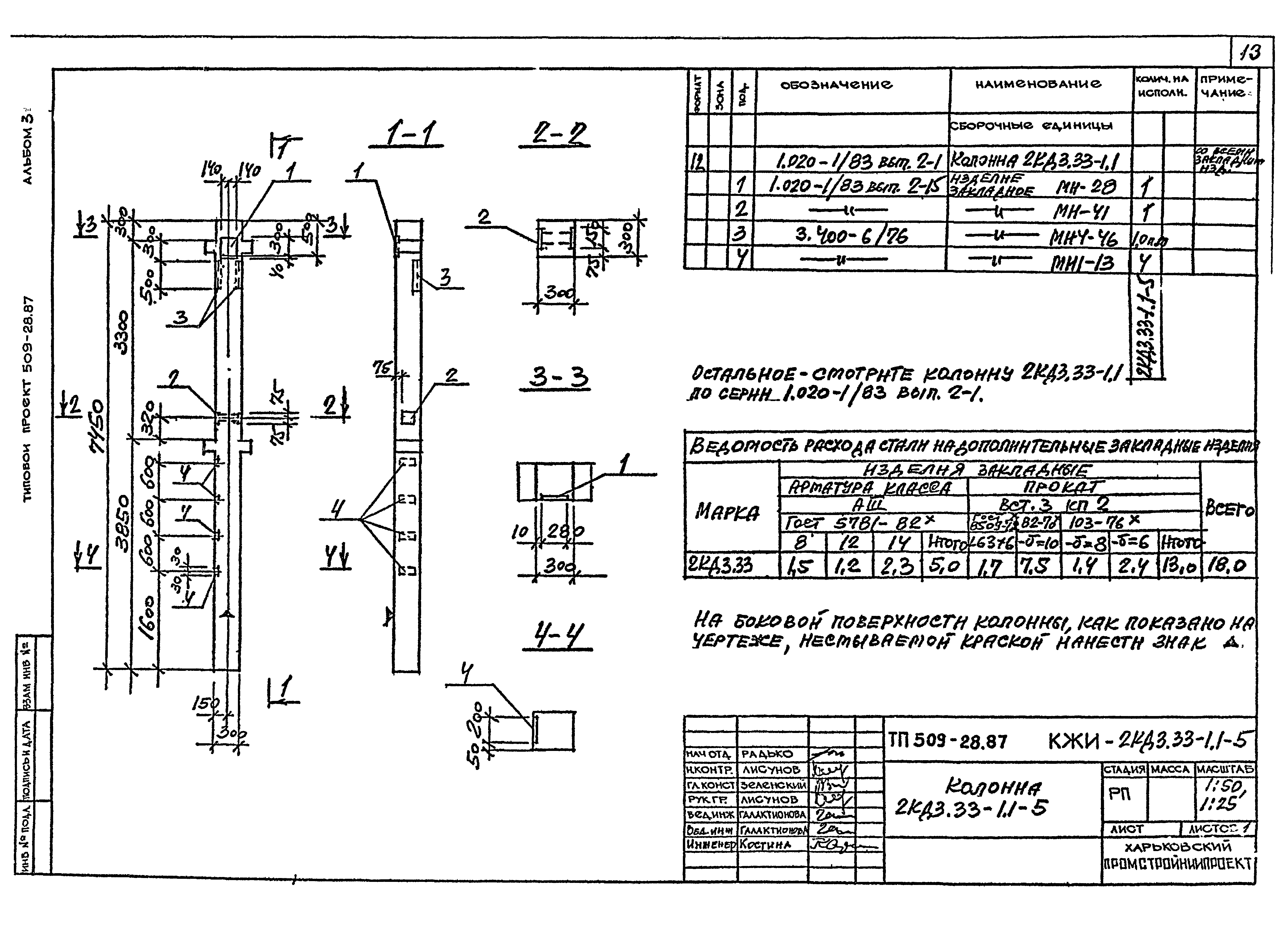
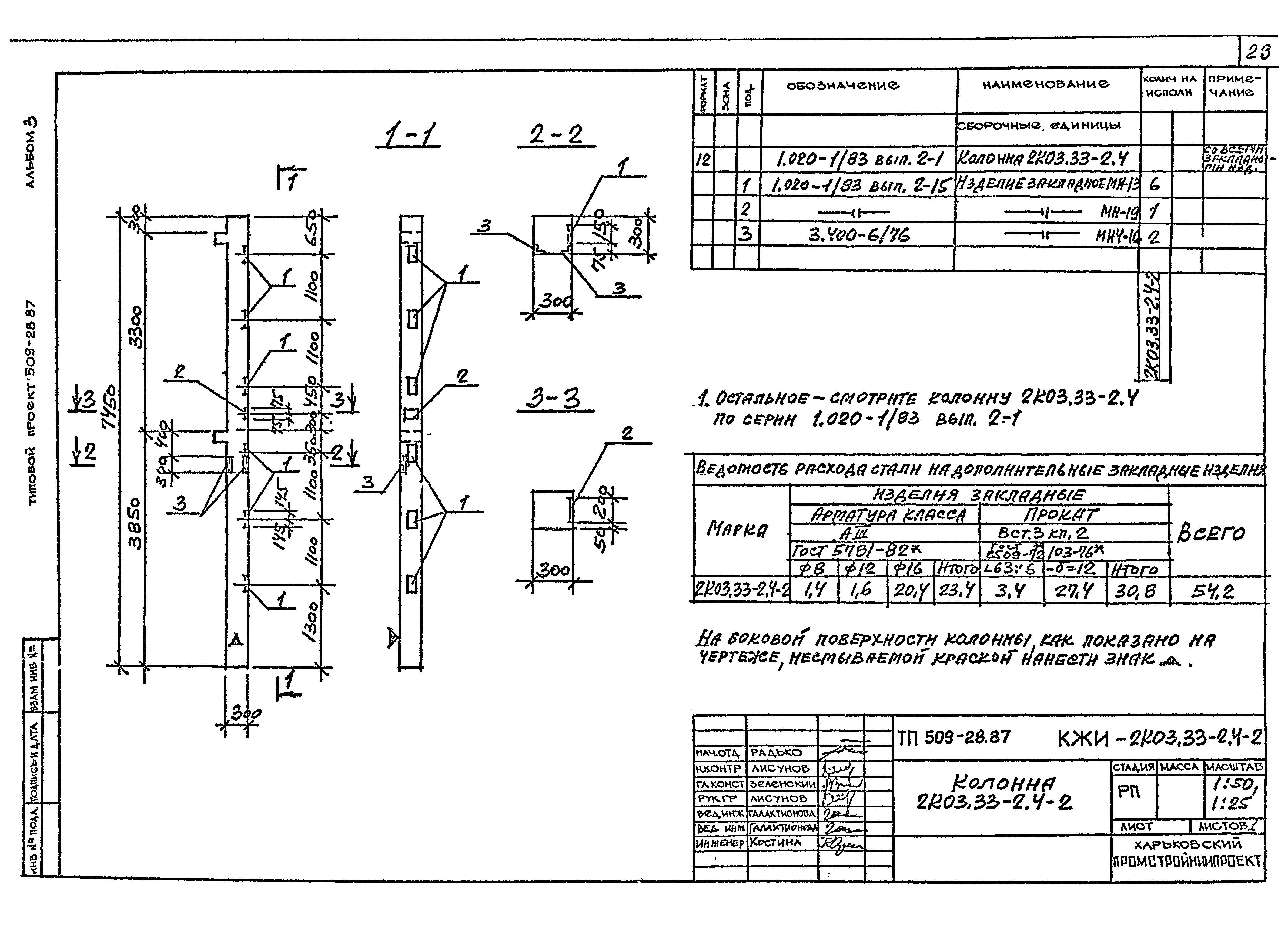
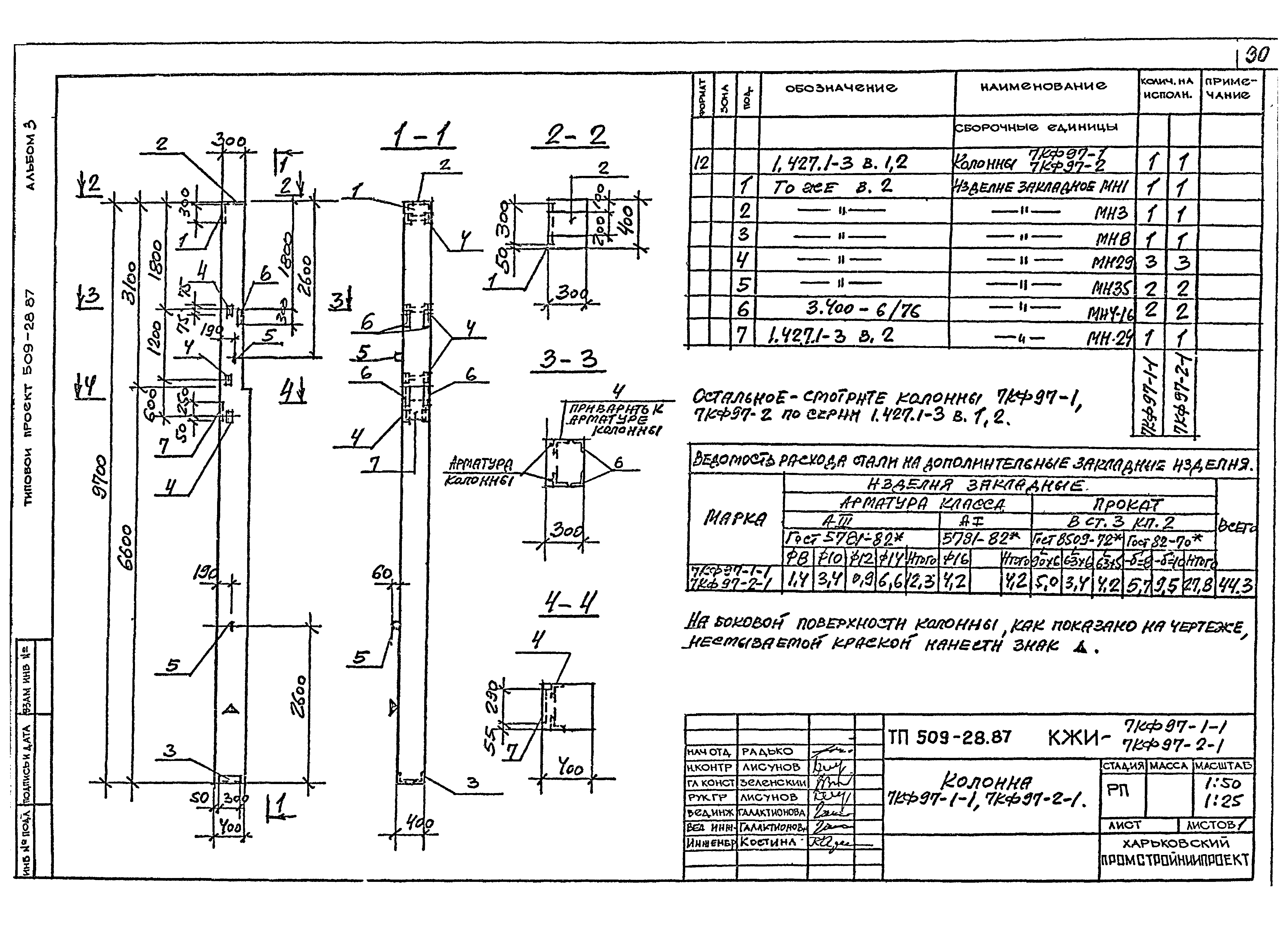
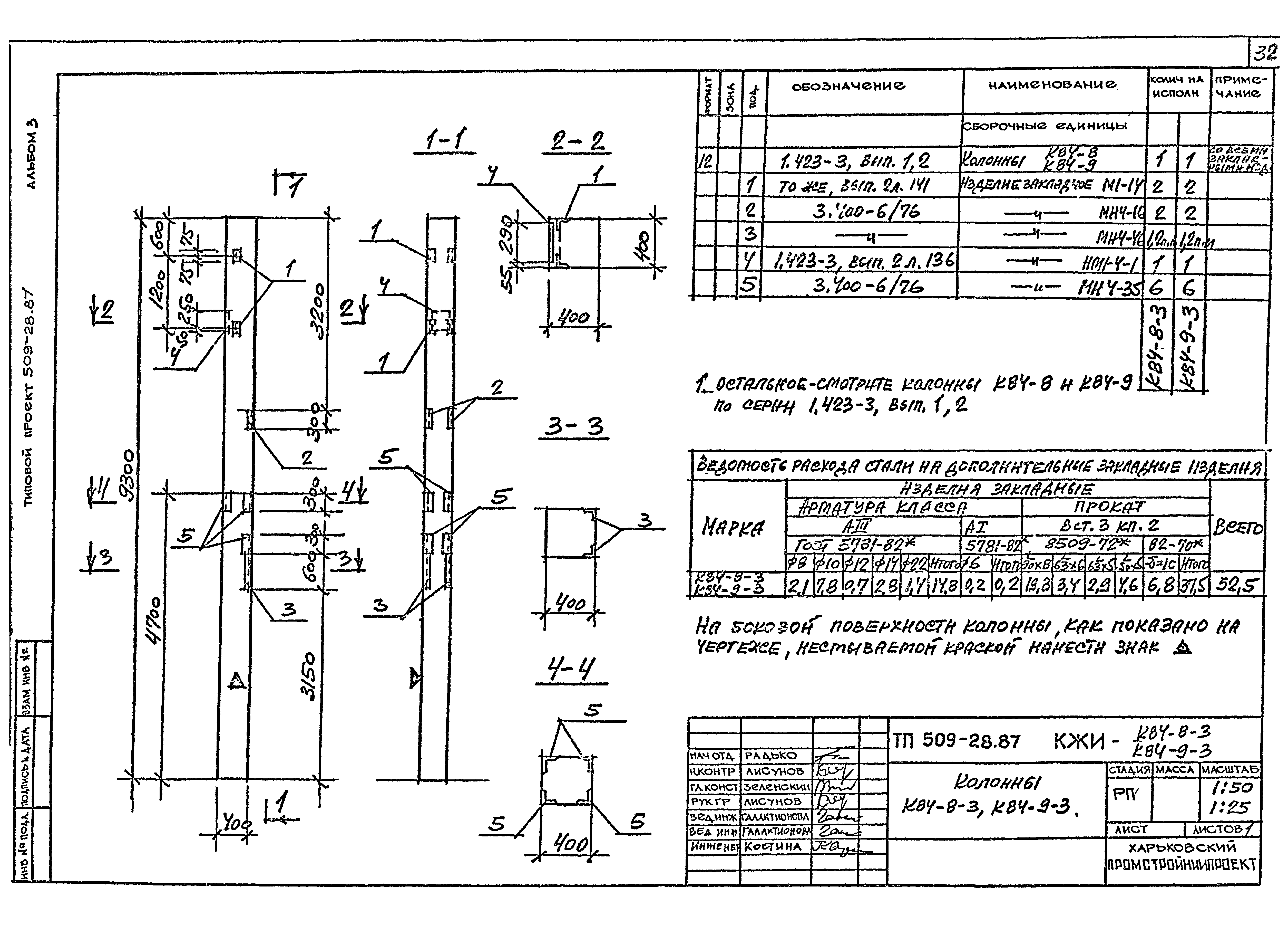
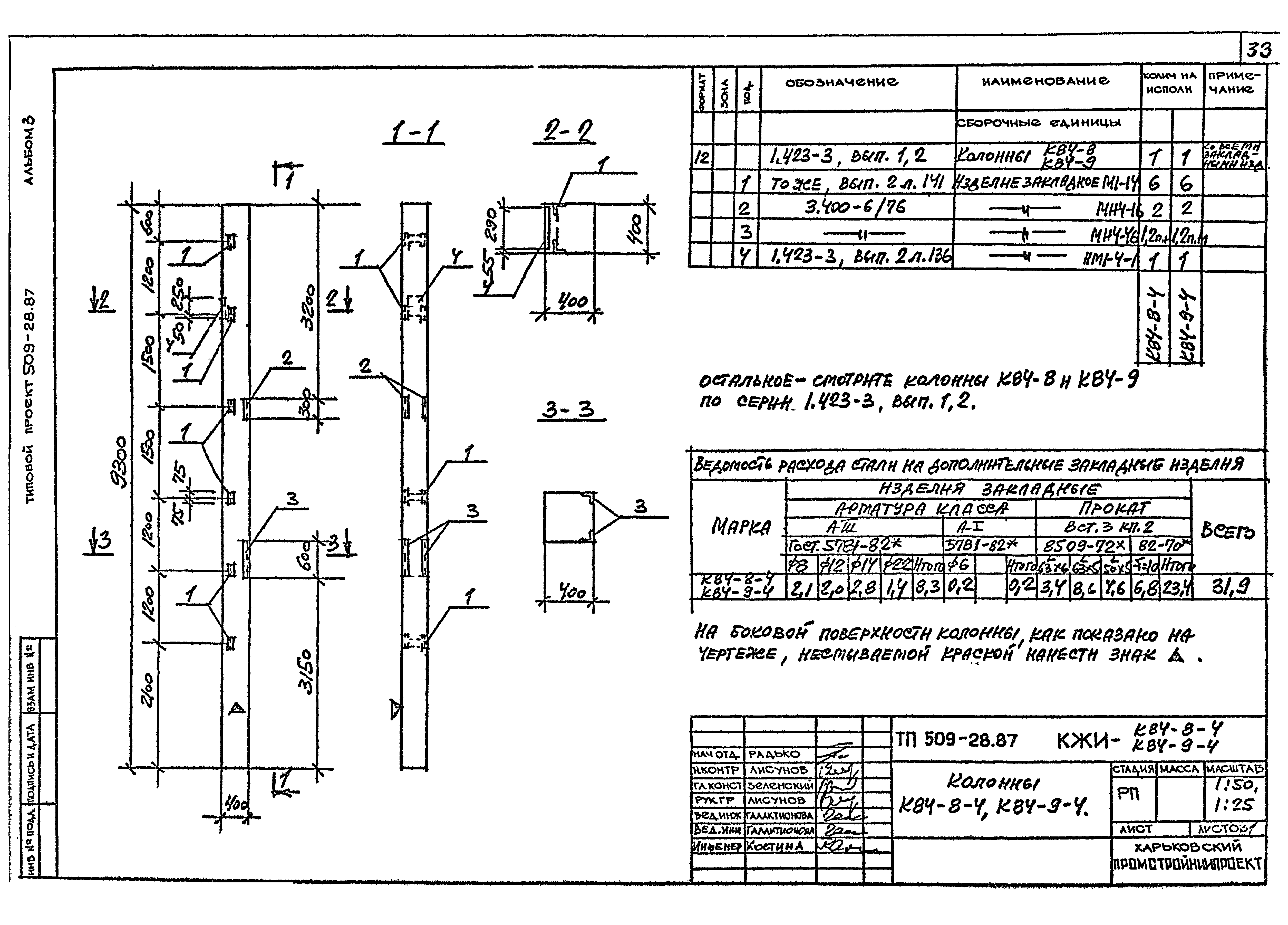
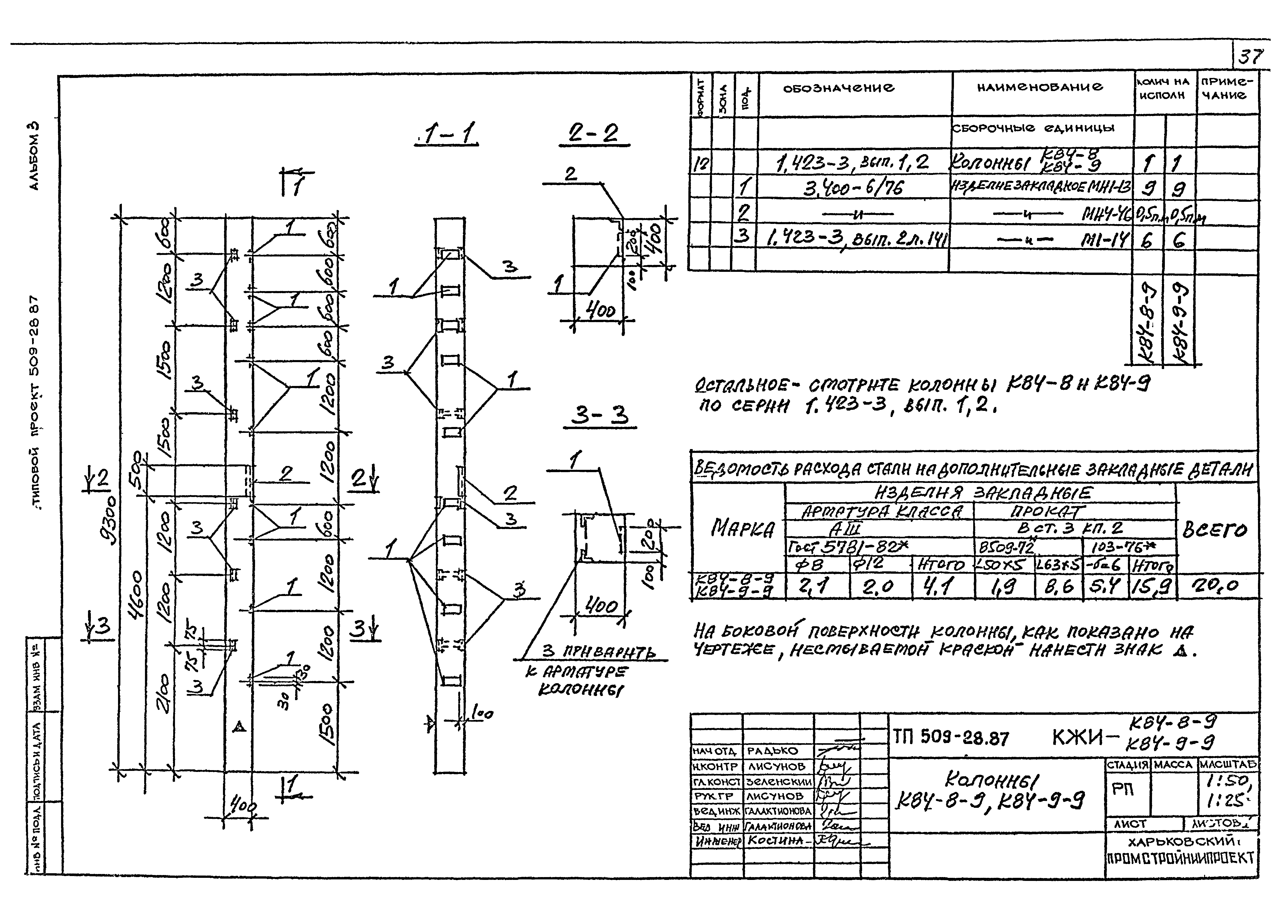
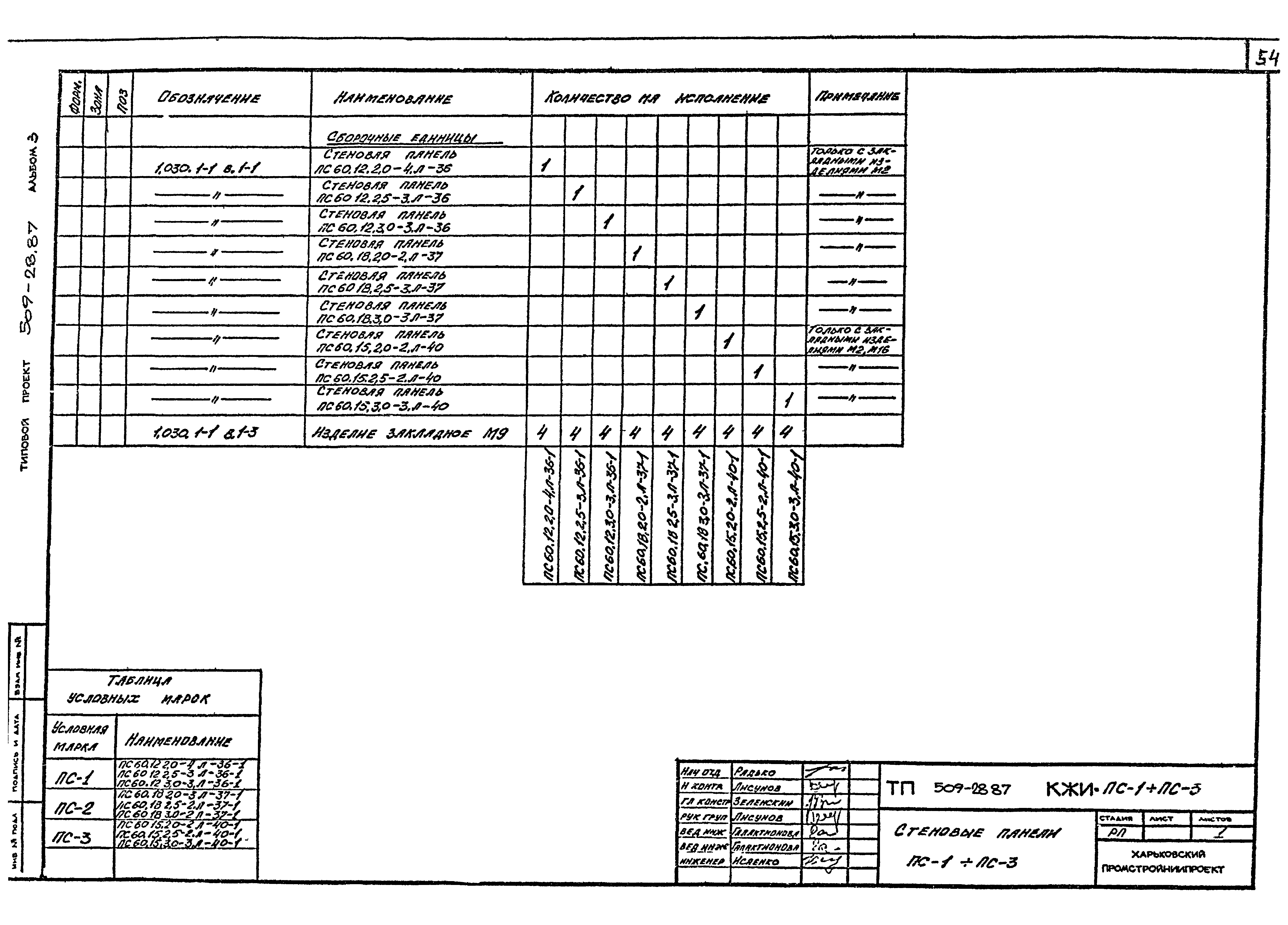
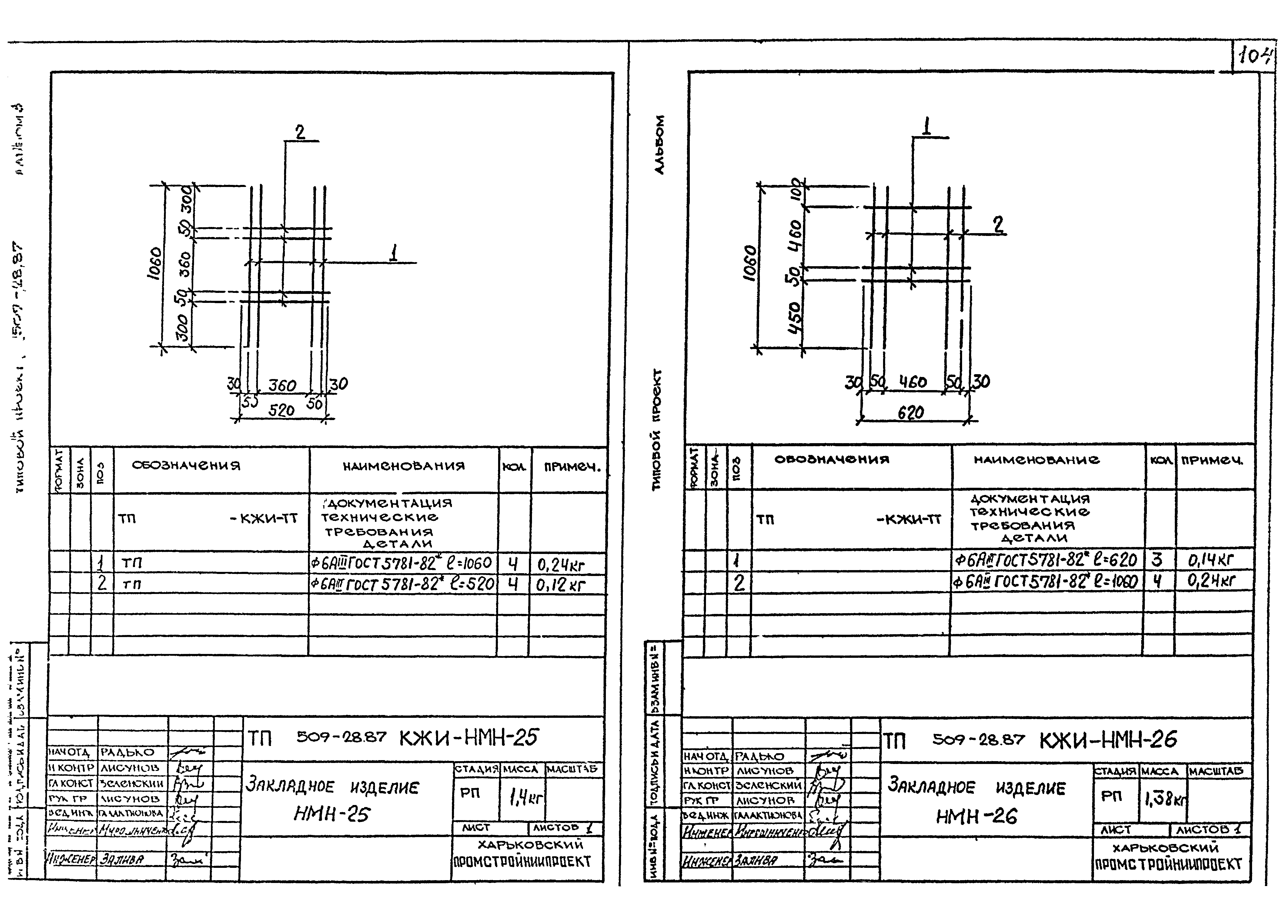
| Оглавление: | Ведомость чертежей Технические требования Балка СБ1 Плита ПП1 Козырек КВ1 Колонна 2КД3.33-11-1 Колонна 2КД3.33-11-2 Колонна 2КД3.33-11-3 Колонна 2КД3.33-11-4 Колонна 2КД3.33-11-5 Колонна 2КД3.33-2.3-1 Колонна 2КД3.33-2.3-2 Колонна 2КО3.33-2.1-1 Колонна 2КО3.33-2.1-2 Колонна 2КО3.33-2.1-3 Колонна 2КО3.33-2.1-4 Колонна 2КО3.33-2.1-5 Колонна 2КО3.33-2.1-6 Колонна 2КО3.33-2.4-1 Колонна 2КО3.33-2.4-2 Колонна 2К3.33-1-1 Колонна 2К3.33-4-1 Колонны 7КФ94-1-1, 7КФ94-2-1 Колонны 7КФ94-1-2, 7КФ94-2-2 Колонны 7КФ94-1-3, 7КФ94-2-3 Колонны 7КФ94-1-4, 7КФ94-2-4 Колонны 7КФ97-1-1, 7КФ97-2-1 Колонны К84-8-1, К84-9-1, К84-8-2, К84-9-2 Колонны К84-8-3, К84-9-3 Колонны К84-8-4, К84-9-4 Колонны К84-8-5, К84-9-5 Колонны К84-8-6, К84-8-7, К84-9-6, К84-9-7 Колонны К84-8-8, К84-9-8 Колонны К84-8-9, К84-9-9 Колонны К84-8-10, К84-9-10 Балки 1БСД18-6АIVВ-1 - 1БСД18-6АIVВ-4 Плиты покрытий 1ПГ-2АтVт-аЛ-400-1-4; 2ПВ6-2АтVт-4-аЛ-400-1-5; 2ПВ6-2АтVт-7-аЛ-400-1-1; 1ПГ6-1АтVт-аЛ-400-1 Плиты ПРС56.15-10АIVт-1 - ПРС56.15-10АIVт-10; ПРС56.15-16АIVт-1 - ПРС56.15-16АIVт-5. Ригель РОП4.57-30-1 Диафрагмы жесткости 2Д56.33-1, 2ДПК56.33-1 Плиты 2П1-2АIVт-А, 2П1-2АIVт-3-А, Стеновые панели ПС-1 - ПС-3 Стеновые панели ПС-4 - ПС-12 Стеновые панели ПС-13 - ПС-19 Стеновые панели НПС-1-1, НПС-2-1, НПС-3-1 Стеновые панели НПС-1-2, НПС-2-2, НПС-3-2 Стеновые панели НПС-4-1, НПС-5-1, НПС-6-1 Стеновые панели НПС-4-2, НПС-5-2, НПС-6-2 Стеновые панели НПС-7, НПС-8, НПС-9 Панели перегородок П2-1, П2-2, П2-3, П12, П12-1, П13, П16, П16-1, П17, П21, П24, П28, П31 Панели перегородок П3, П4, П5, П6, П7, П18, П19, П20 Панели перегородок П10, П22, П23, П25, П26, П27, П29, П30 Ведомость расхода стали Фундамент 1Ф21.9-1-1 Каркас пространственный КП-1 Каркас пространственный КП-2 Каркас пространственный КП-3 Каркас пространственный КП-4 Каркас пространственный КП-5 Каркас пространственный КП-6 Каркас пространственный КП-7 Каркас плоский КР-1 Каркас плоский КР-2 Каркас плоский КР-3 Каркас плоский КР-4 Каркас плоский КР-5 Каркас плоский КР-6 Каркас плоский КР-7 Сетка арматурная С-1 Сетка арматурная С-2 Сетка арматурная С-3 Сетка арматурная С-4 Сетка арматурная С-5 Сетка арматурная С-6 Сетка арматурная С-7 Сетка арматурная С-8 Сетка арматурная С-9 Сетка арматурная С-10 Сетка арматурная С-11 Сетка арматурная С-12, С-13 Сетка арматурная С-14, С-15 Сетка арматурная С-16 Сетка арматурная С-17 Сетка арматурная С-18, С-19 Сетка арматурная С-20 Сетка арматурная С-21 Сетка арматурная С-22 Изделие закладное НМН-1 Изделие закладное НМН-2 Изделие закладное НМН-3 Изделие закладное НМН-4 Изделие закладное НМН-5 Изделие закладное НМН-6 Изделие закладное НМН-7 Изделие закладное НМН-8 Изделие закладное НМН-9 Изделие закладное НМН-10 Изделие закладное НМН-11 Изделие закладное НМН-12 Изделие закладное НМН-13 Изделие закладное НМН-14 Изделие закладное НМН-15 Изделие закладное НМН-17 Изделие закладное НМН-18 Изделие закладное НМН-19 Изделие закладное НМН-20 Изделие закладное НМН-21 Изделие закладное НМН-22 Изделие закладное НМН-23 Изделие закладное НМН-24 Изделие закладное НМН-25 Изделие закладное НМН-26 Изделие закладное НМН-27, НМН-33 Изделие закладное НМН-28 Изделие закладное НМН-29 Изделие закладное НМН-30, НМН-31 Изделие закладное НМН-32 Изделие закладное НМН-34 Изделие закладное НМН-35 Изделие закладное НМН-36 Изделие соединительное МС-1 Изделие соединительное МС-2 Изделие соединительное МС-4 Изделие соединительное МС-5 Изделие соединительное МС-6 Изделие соединительное МС-7 Изделие соединительное МС-8 Изделие соединительное МС-9, МС-10, МС-11 Изделие соединительное МС-12 Изделие соединительное МС-13 Консоль опорная НРК-1с, НРК-4с Консоль опорная НРК-1, НРК-2 Консоль опорная НРК-2с, НРК-5с Консоль опорная НРК-3с, НРК-6с Консоль опорная НРК-4, НРК-5 Консоль опорная НРК-3, НРК-6 Изделие накладное НС-1 Изделие накладное НС-2 Изделие накладное НС-3 Изделие накладное НС-4 Изделие накладное НС-5 Изделие накладное НС-6 Изделие накладное НС-7, НС-8 Насадка НФН-1 |
| Разработан: | Харьковский Промстройниипроект |
| Утверждён: | 14.04.1987 Госстрой СССР (Государственный комитет Совета Министров СССР по делам строительства) (USSR Gosstroy АЧ-39) |
























































































































