Скачать Типовой проект 509-28.87 Альбом 5. Силовое электрооборудование. Электрическое освещение. Автоматизация отопления и вентиляции. Автоматизация водопровода и канализации. Связь и сигнализацияДата актуализации: 01.01.2021
|
| Обозначение: | Типовой проект 509-28.87 |
| Обозначение англ: | 509-28.87 |
| Статус: | не определен законодательством |
| Название рус.: | Альбом 5. Силовое электрооборудование. Электрическое освещение. Автоматизация отопления и вентиляции. Автоматизация водопровода и канализации. Связь и сигнализация |
| Дата добавления в базу: | 01.09.2013 |
| Дата актуализации: | 01.01.2021 |
| Дата введения: | 14.04.1987 |
| Дата окончания срока действия: | 30.06.2003 |
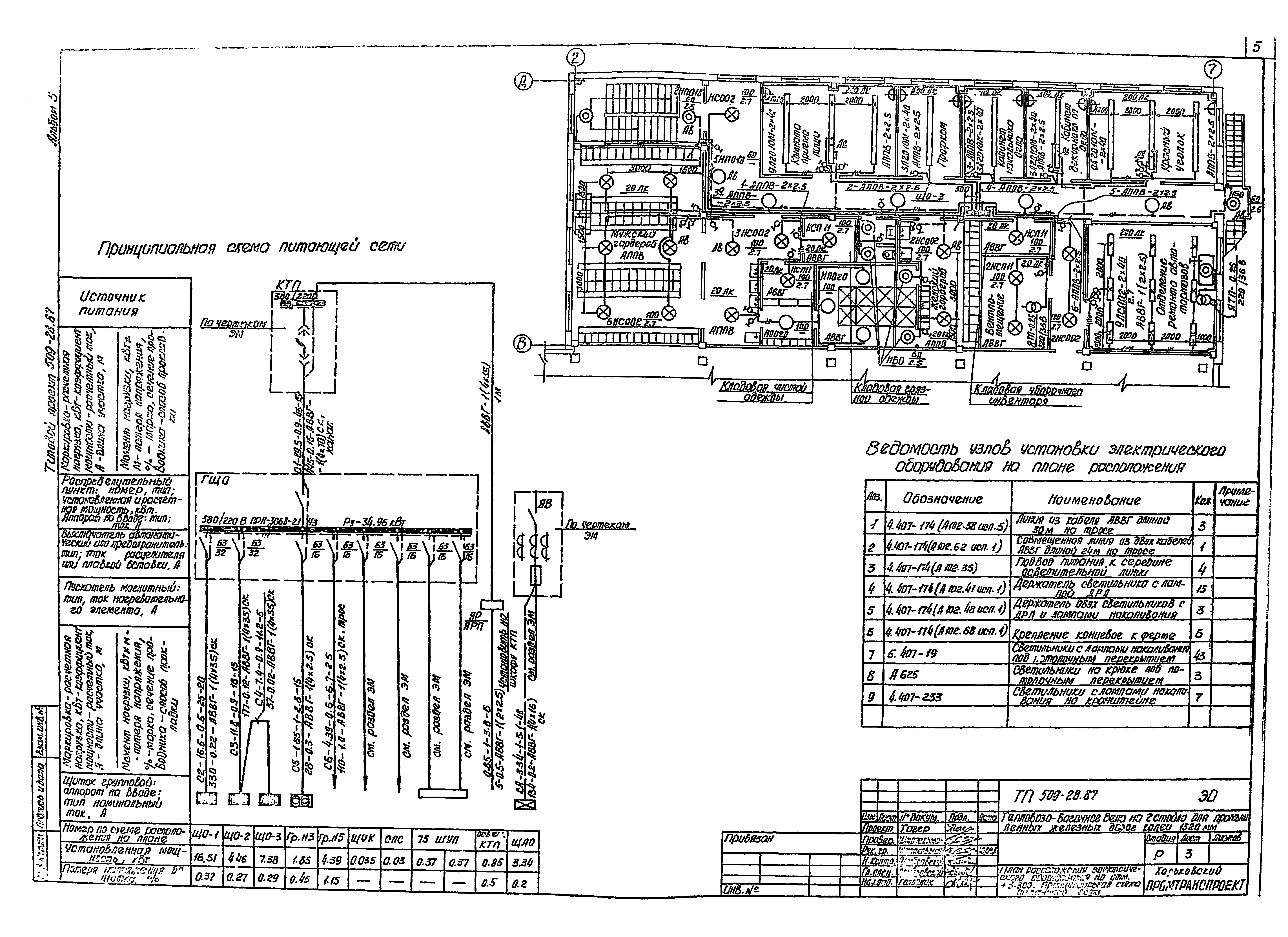
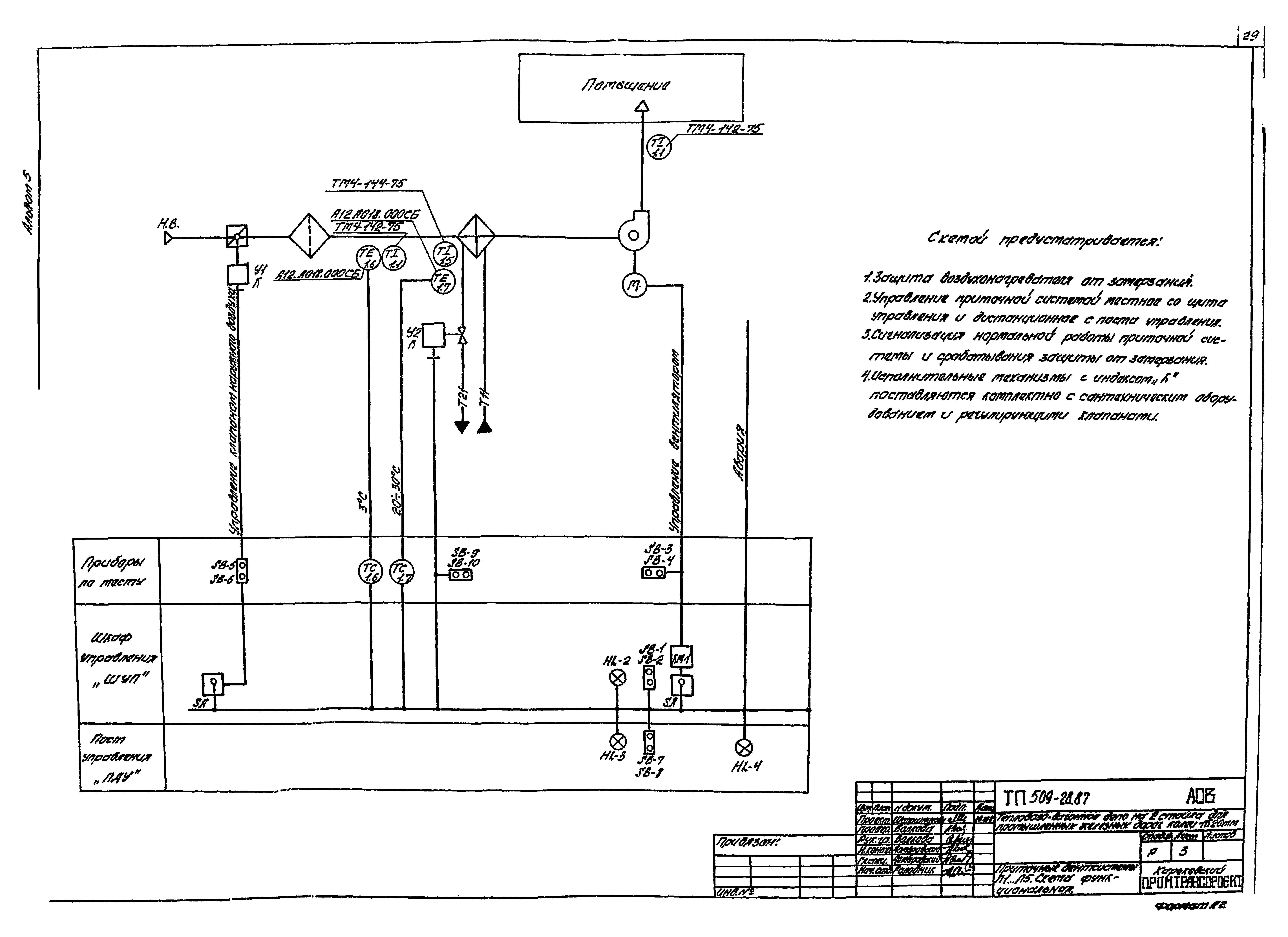
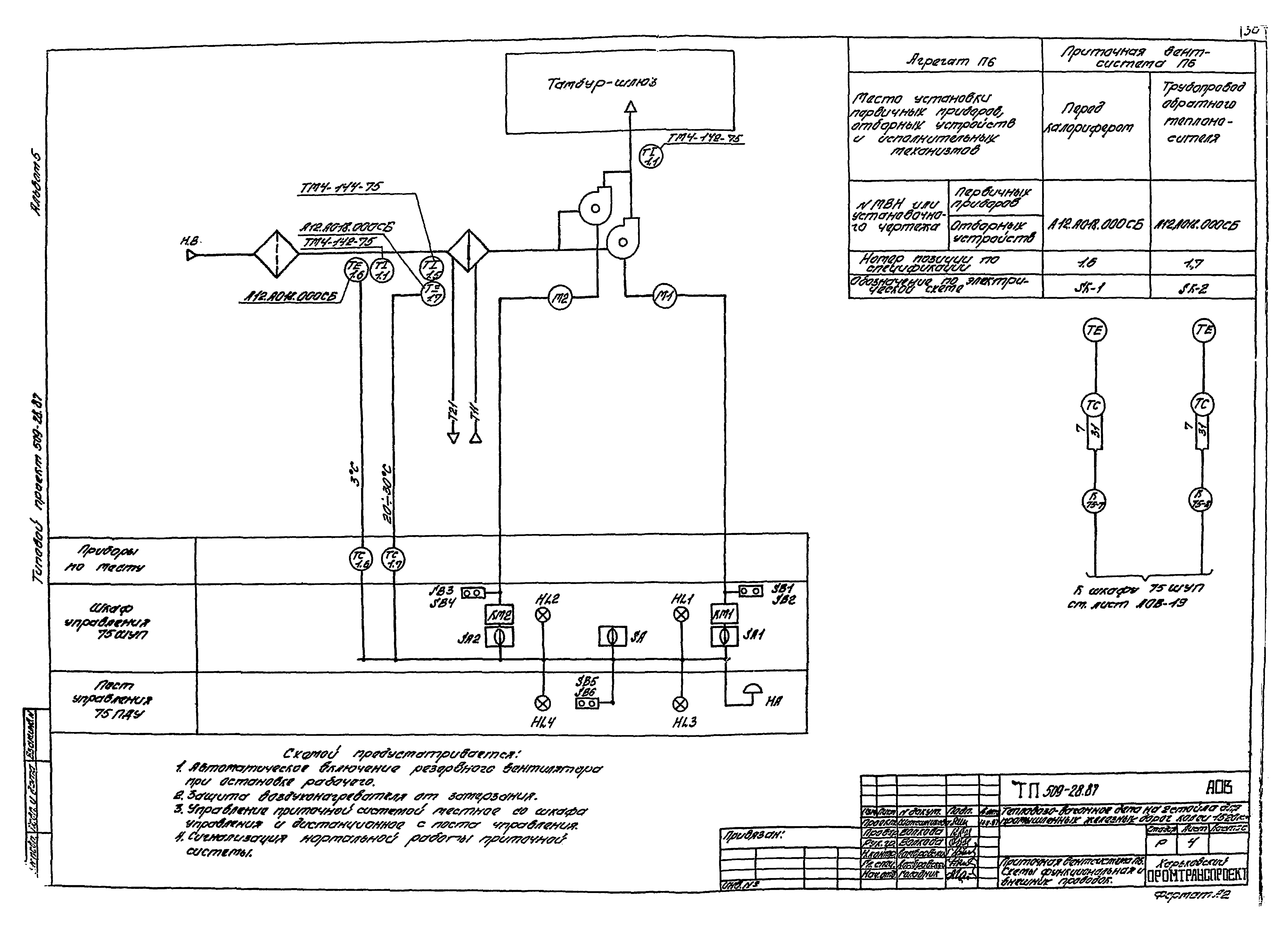
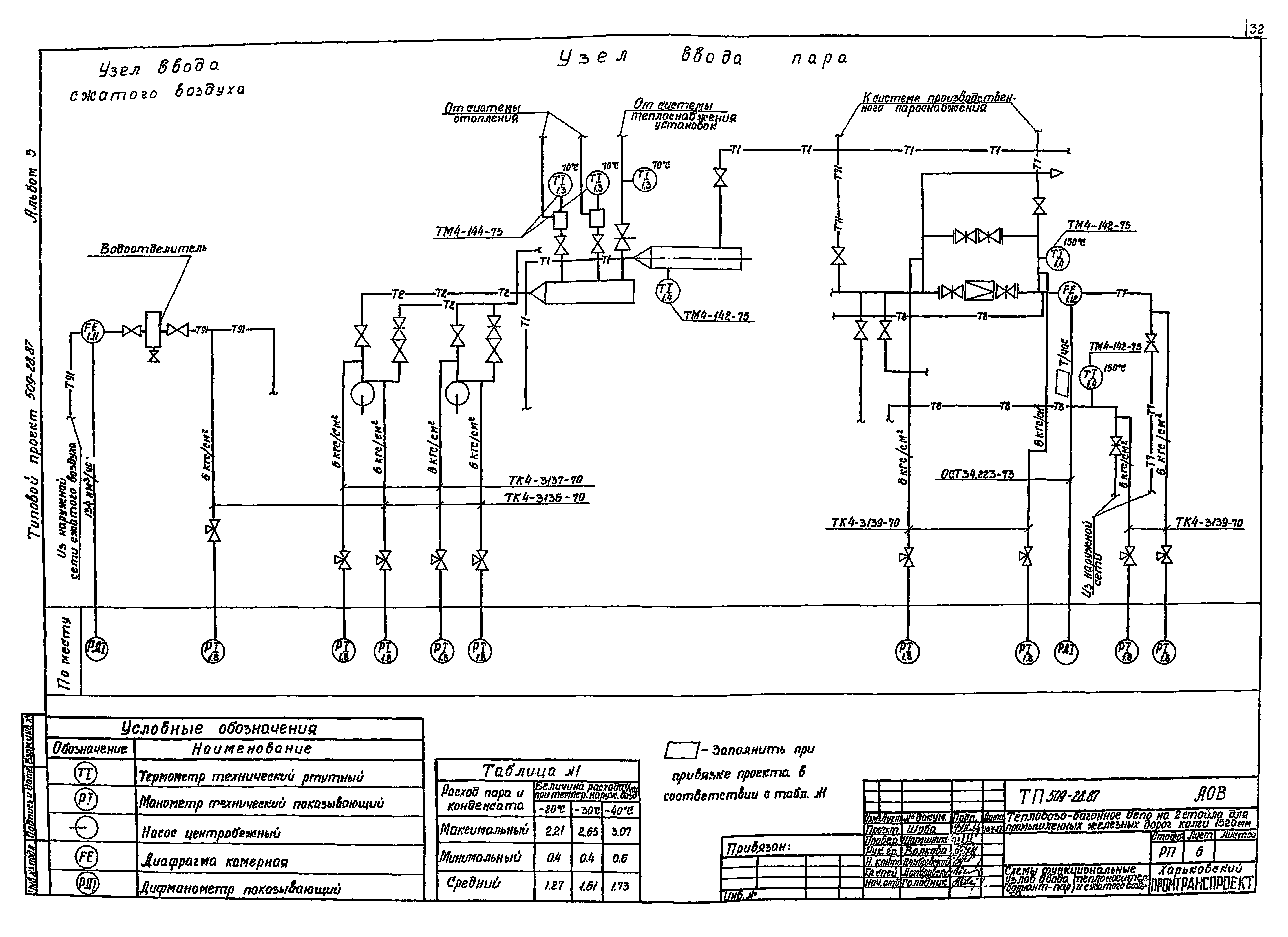
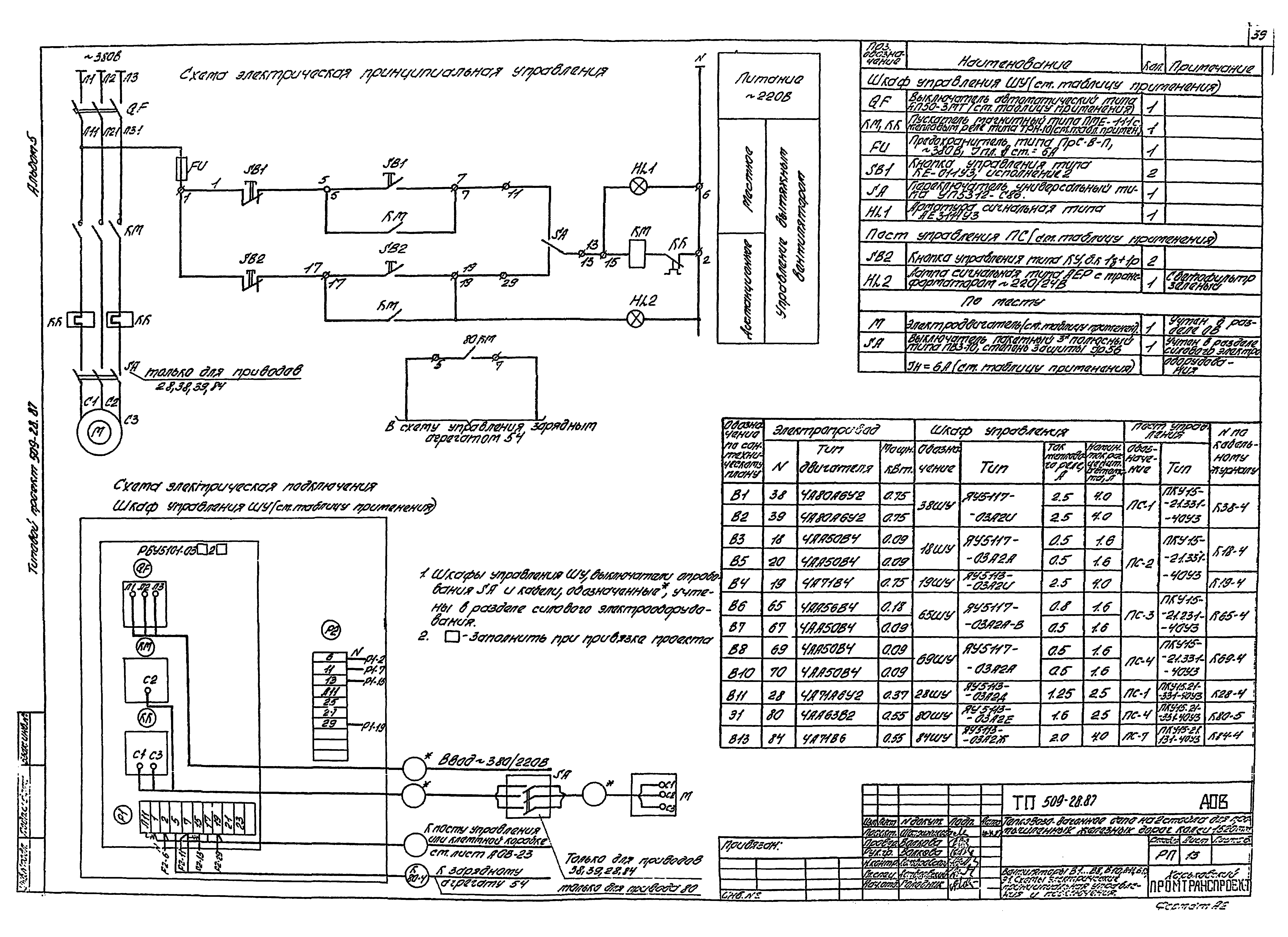
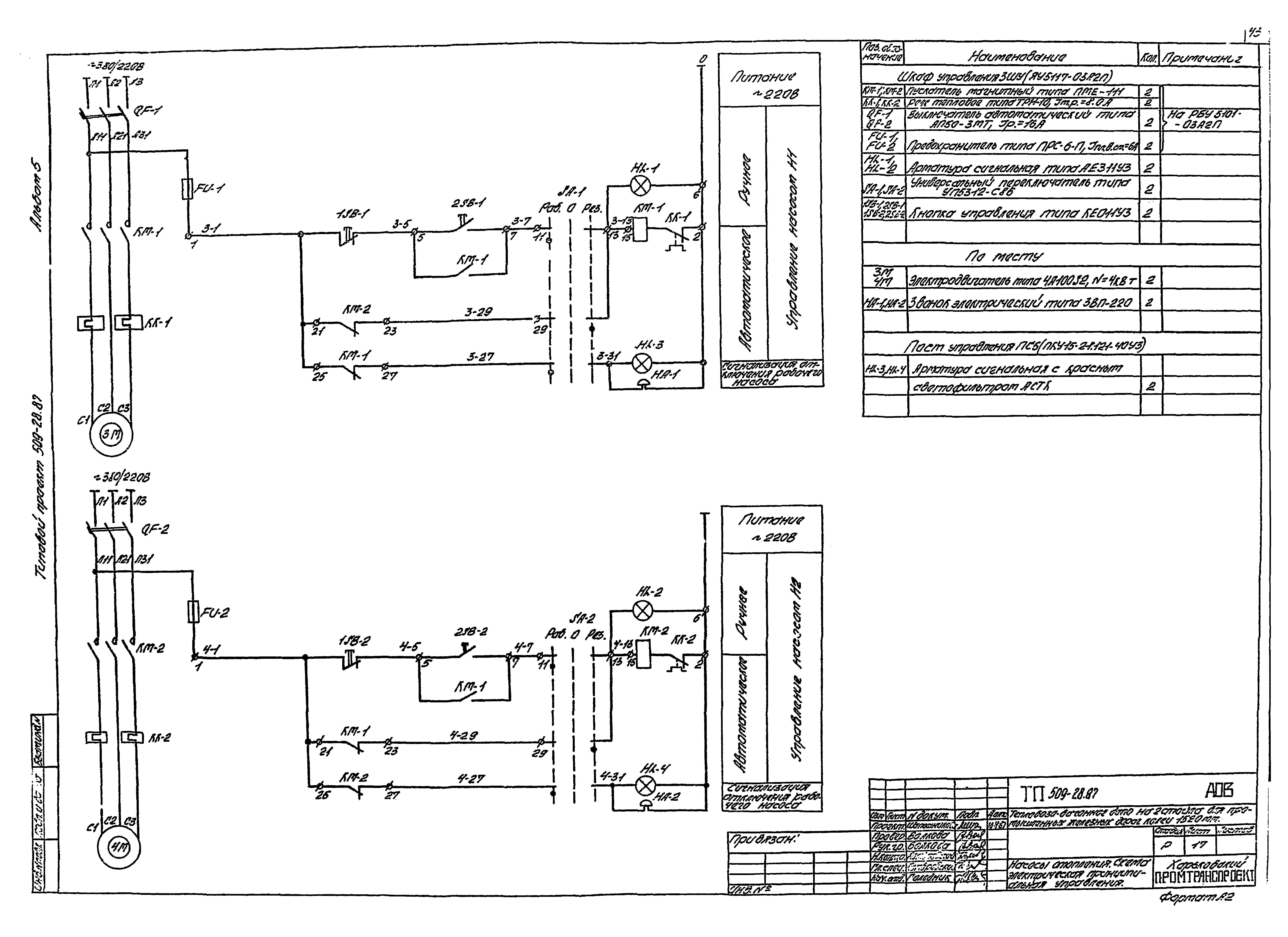
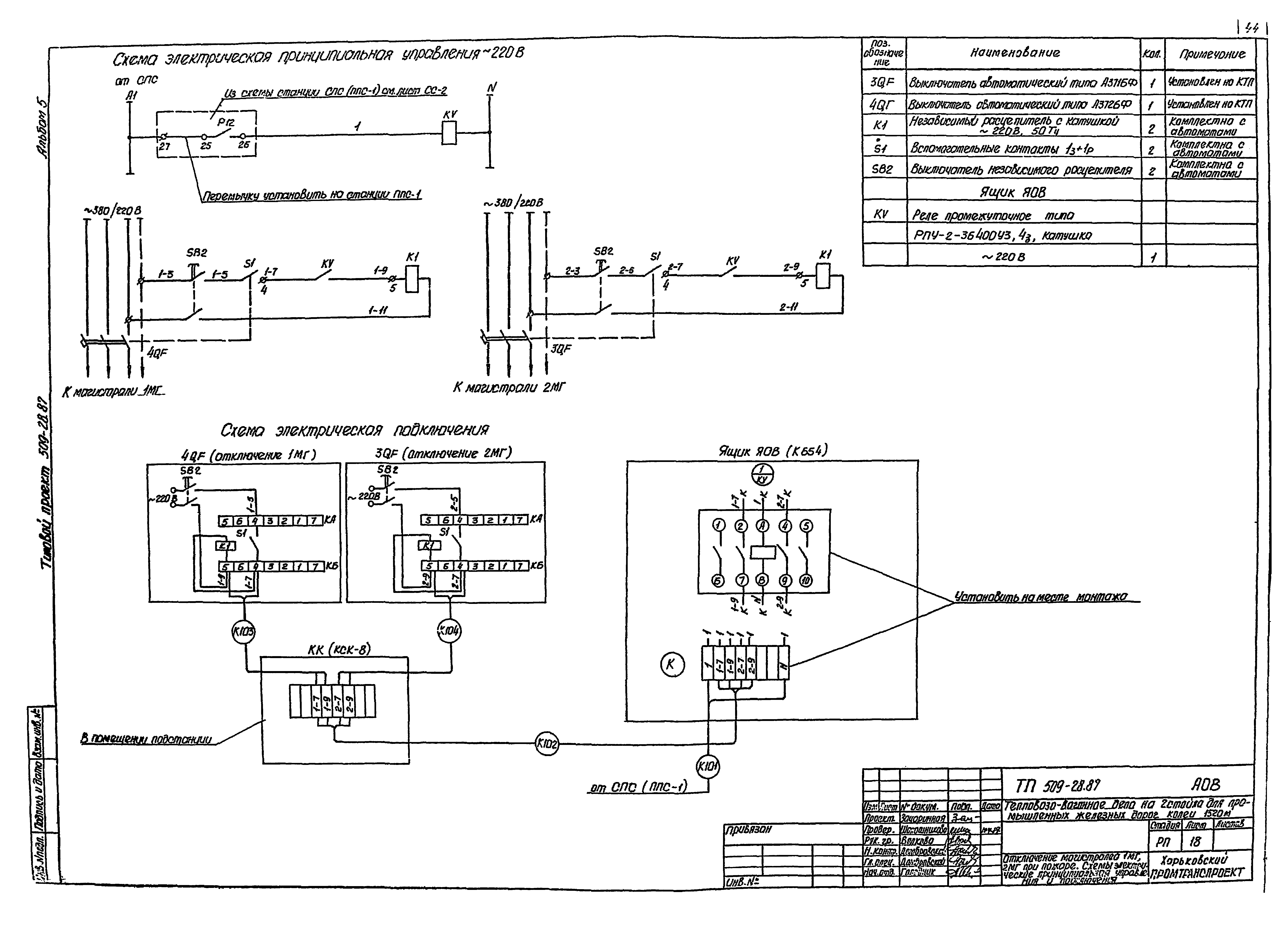
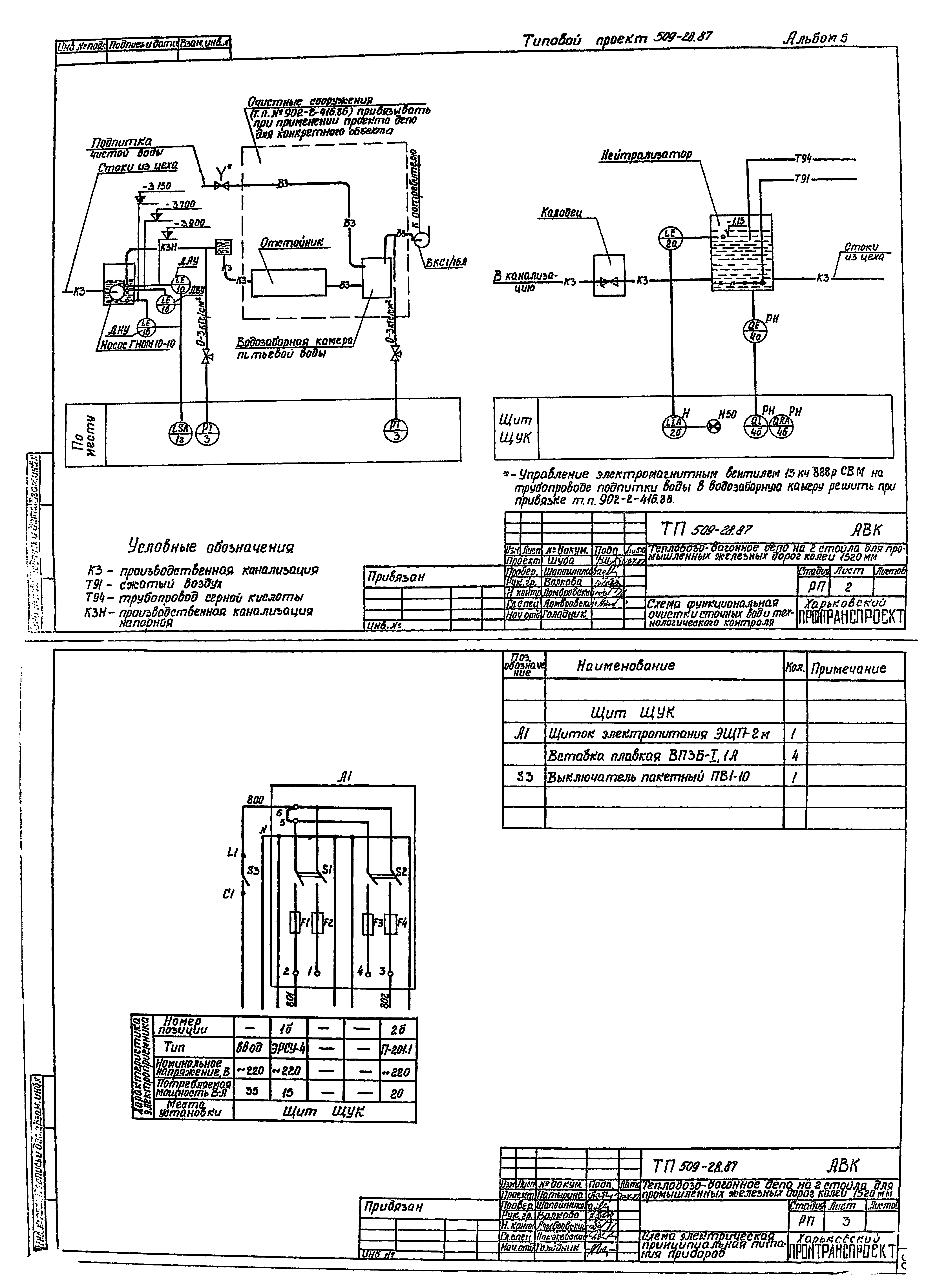
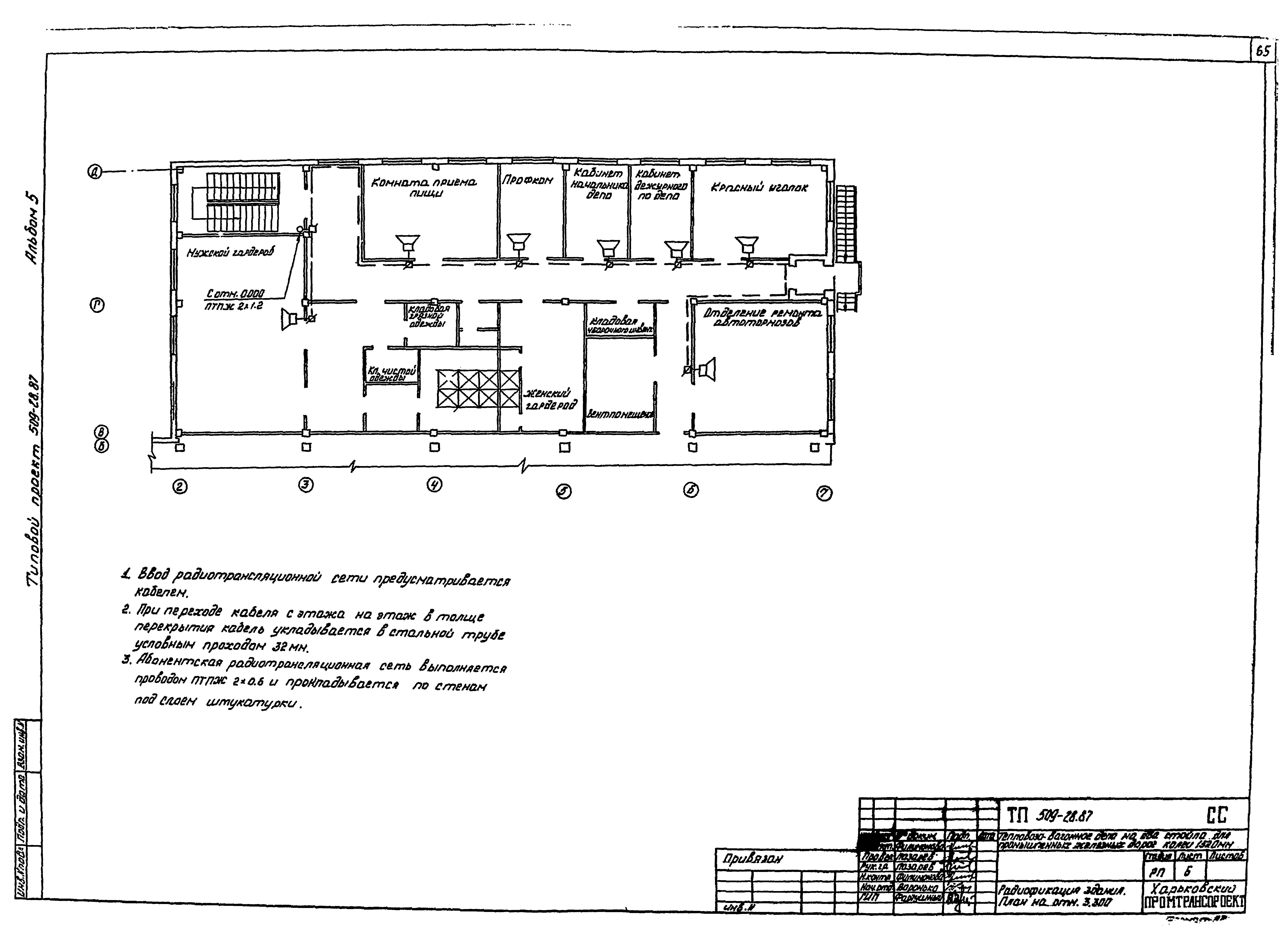
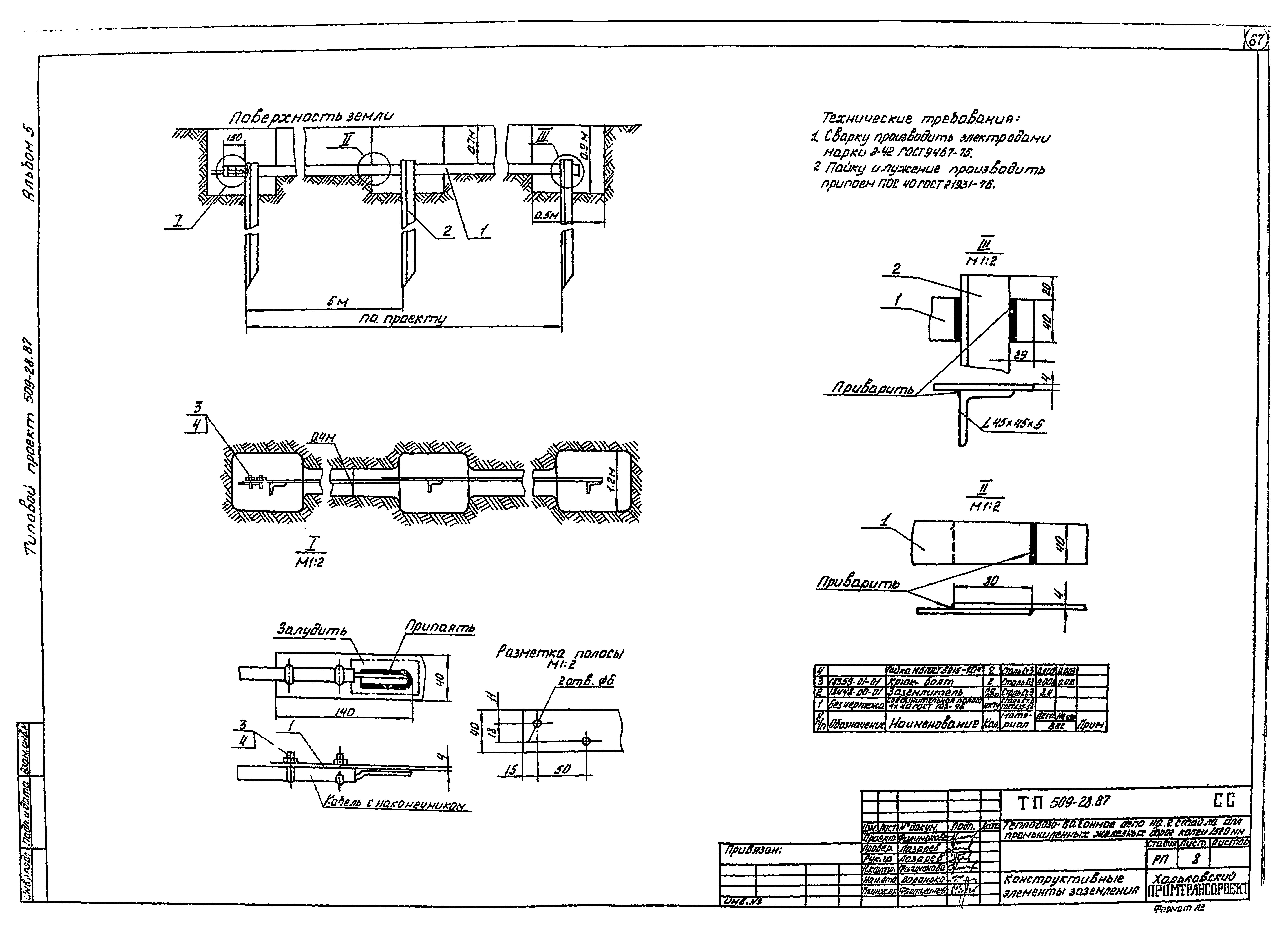
| Оглавление: | Содержание альбома Чертежи основного комплекта ЭО Общие данные Планы расположение электрического оборудования на отм. 0.000 и 5.400 Планы расположение электрического оборудования на отм. 3.300. принципиальная схема питающей сети Чертежи основного комплекта ЭМ Общие данные Установка КТП и заземление Опросный лист для заказа КТП-250 Однолинейная схема питающей сети 380/220 В Магистраль 1МГ. Однолинейная схема распределительной сети 380/220 В, 36В Магистраль 2МГ. Однолинейная схема распределительной сети 380/220 В, 36В Конвейер. Схемы электрические принципиальные управления и подключения Ворота. Схема электрическая принципиальная управления и кабельная разводка Ворота. Схема электрическая подключения Кабельный журнал План питающей сети контура заземления и троллейных линий План на отм. 0.000. Вариант ввода тепловозов с гидропередачей План на отм. 0.000. Вариант ввода тепловозов с электропередачей Планы на отм. 3.300 и 5.400 План прокладки шинопроводов 1МГ, 2МГ Молниезащита. План кровли Чертежи основного комплекта АОВ Общие данные Приточные вентсистемы П1 - П5. Схема функциональная Приточная вентсистема П6. Схемы функциональная и внешних проводок Схемы функциональные узлов ввода теплоносителя (вариант - вода) и сжатого воздуха Схемы функциональные узлов ввода теплоносителя (вариант - пар) и сжатого воздуха Воздушные завесы У1 - У4. Схема функциональная Отопительные агрегаты А1 - А5. Схемы функциональная и внешних проводок Приточные вентсистемы П1 - П5. Схема электрическая принципиальная управления Приточная вентсистема П6. Схема электрическая принципиальная управления Вентиляторы В1 - в8, В10, В11, В13, Э1. Схемы электрические принципиальная управления и подключения Вентиляторы В9, В9а. Схема электрическая принципиальная управления Воздушные завесы У1 - У4. Схемы электрические принципиальная управления и подключения Отопительные агрегаты А1 - А5. Схемы электрические принципиальная управления и подключения Насосы отопления. Схема электрическая принципиальная управления Отключение магистралей 1МГ, 2МГ при пожаре. Схемы электрические принципиальная управления и подключения Приточные вентсистемы П1 - П6. Схемы электрические подключения Приточные вентсистемы П1 - П5. Схема внешних электрических и трубных проводок Вентиляторы В9, В9а. Схема электрическая подключения Насосы отопления. Схема электрическая подключения Дистанционное управление вентиляторами В1 - В8, В10, В11, В13, Э1. Схемы электрические подключения Воздушные завесы У1 - У4. Схема внешних проводок Кабельный журнал План расположения средств автоматизации и электрических проводок на отм. 0.000 Планы расположения средств автоматизации и электрических проводок на отм. 3.300 и 5.400 Чертежи основного комплекта АВК Общие данные Схема функциональная очистки сточных вод и технологического контроля Схема электрическая принципиальная питания приборов Схемы электрические принципиальные контроля и измерений Схемы соединений внешних проводок Насос ГНОМ10-10. Схемы электрические принципиальная управления и подключения Расположение оборудования и проводок Чертежи основного комплекта СС Общие данные Схема связи Устройство комплексной телефонной сети. План на отм. 0.000 Устройство комплексной телефонной сети. План на отм. 3.300 Радиофикация здания. План на отм. 0.000 Радиофикация здания. План на отм. 3.300 Устройство заземления Конструктивные элементы заземления |
| Разработан: | Харьковский Промтранспроект Харьковский Промстройниипроект |
| Утверждён: | 14.04.1987 Госстрой СССР (Государственный комитет Совета Министров СССР по делам строительства) (USSR Gosstroy АЧ-39) |



































































