Скачать Типовой проект 709-9-77.87 Альбом I. Общая пояснительная записка. Технологическая, электротехническая части. Связь, сигнализация. Отопление и вентиляция. Водоснабжение и канализацияДата актуализации: 01.01.2021
|
| Обозначение: | Типовой проект 709-9-77.87 |
| Обозначение англ: | 709-9-77.87 |
| Статус: | действует |
| Название рус.: | Альбом I. Общая пояснительная записка. Технологическая, электротехническая части. Связь, сигнализация. Отопление и вентиляция. Водоснабжение и канализация |
| Дата добавления в базу: | 01.09.2013 |
| Дата актуализации: | 01.01.2021 |
| Дата введения: | 28.10.1987 |
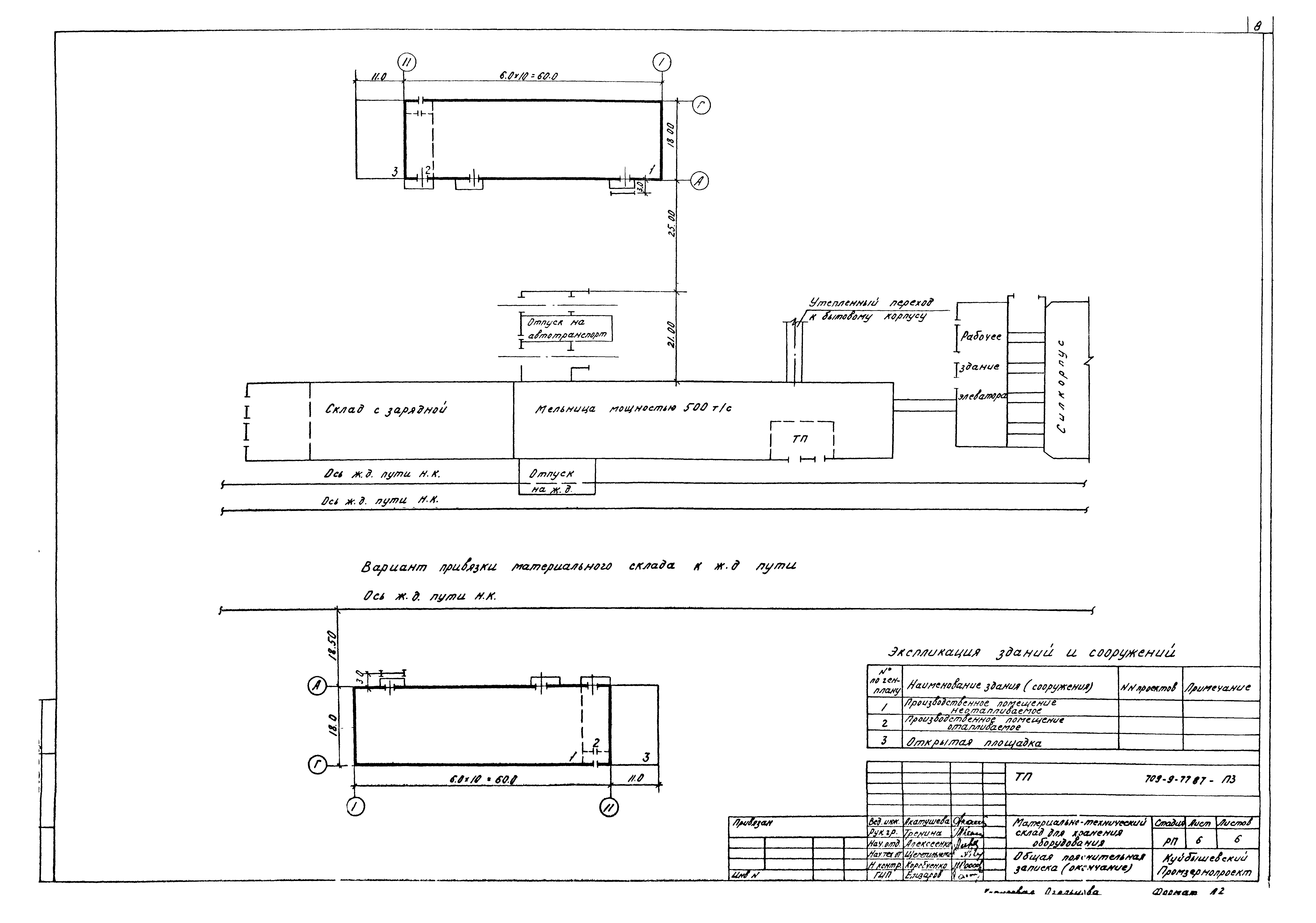
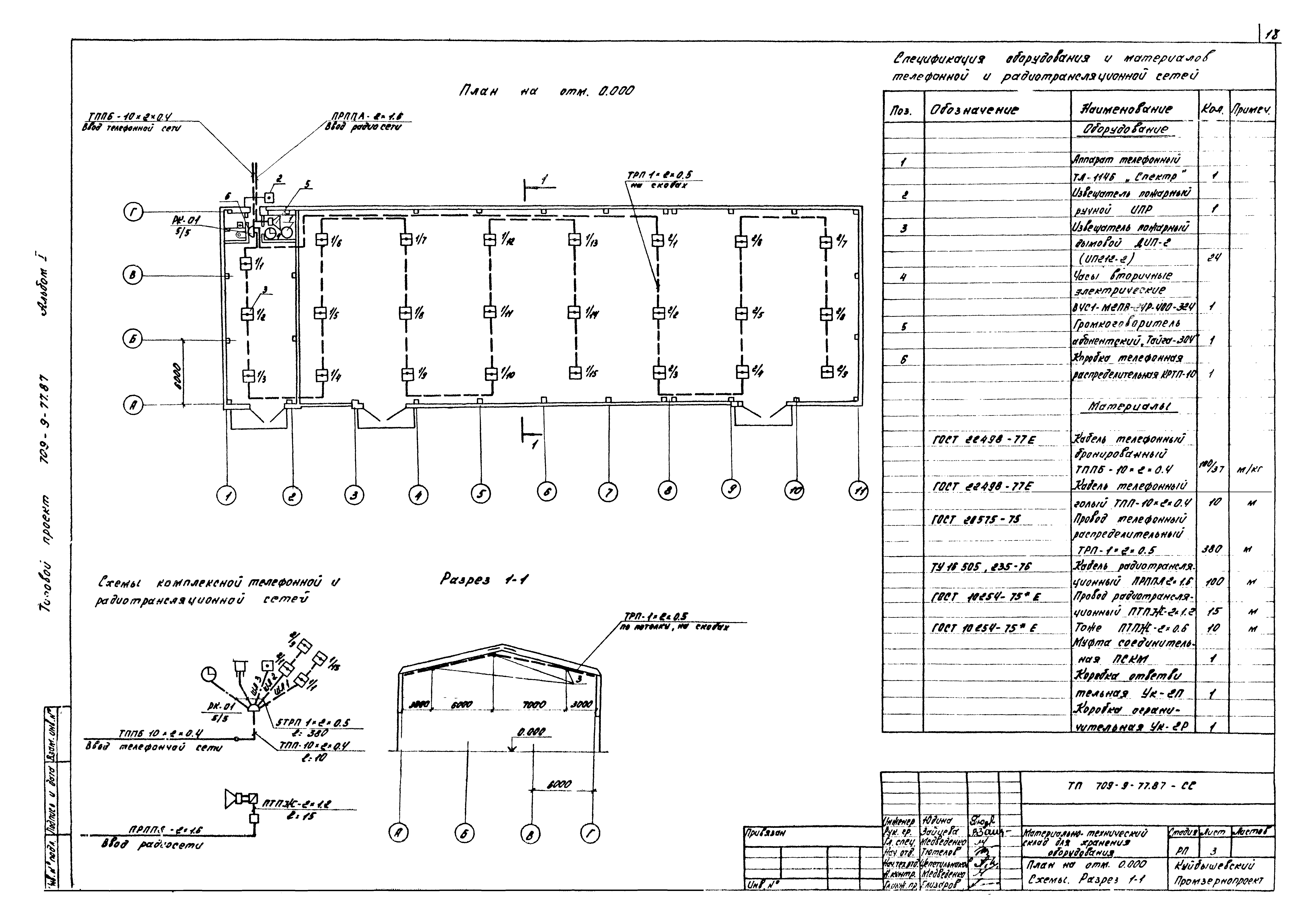
| Оглавление: | Общая пояснительная записка Чертежи основного комплекта марки ТХ Общие данные План на отм. 0.000. Разрезы 1-1, 2-2, 3-3 Подкрановые пути. Сборочный чертеж Монорельс. Сборочный чертеж Подкрановые пути. Спецификация Монорельс. Спецификация Чертежи основного комплекта марки ЭМ Общие данные План на отм. 0.000. Щитки освещения №1, №2 Молниезащита. План на отм. 6.900. Фасад в осях "А" - "Г" Чертежи основного комплекта марки СС Общие данные План на отм. 0.000. Схемы. Разрез 1-1 Чертежи основного комплекта марки ОВ Общие данные План в осях 1 - 2. схемы систем отопления и вентиляции ВЕ1, ВЕ2 Чертежи основного комплекта марки ВК Общие данные План на отм. 0.000. План в осях 1 - 2 на отм. 0.000 с сетями ВО, В2, К1 Схемы систем В1, ВО, К1 |
| Разработан: | Куйбышевский Промзернопроект |
| Утверждён: | 28.10.1987 Министерство хлебопродуктов СССР (USSR Ministry of Bakery Products 16) |
























