Скачать Типовой проект 709-9-77.87 Альбом II. Архитектурно-строительные решения. Конструкции железобетонные. Конструкции металлическиеДата актуализации: 01.01.2021
|
| Обозначение: | Типовой проект 709-9-77.87 |
| Обозначение англ: | 709-9-77.87 |
| Статус: | действует |
| Название рус.: | Альбом II. Архитектурно-строительные решения. Конструкции железобетонные. Конструкции металлические |
| Дата добавления в базу: | 01.09.2013 |
| Дата актуализации: | 01.01.2021 |
| Дата введения: | 28.10.1987 |
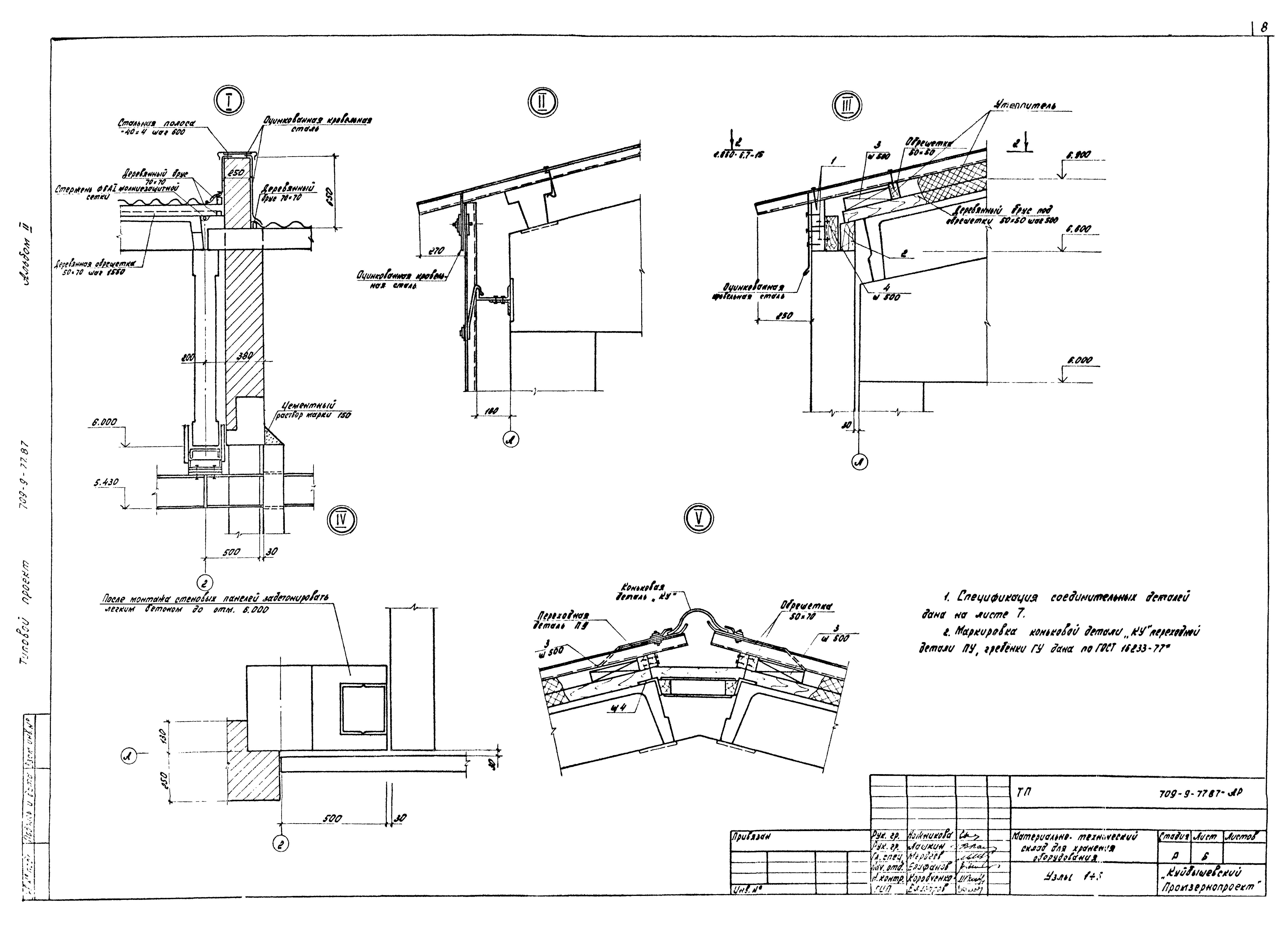
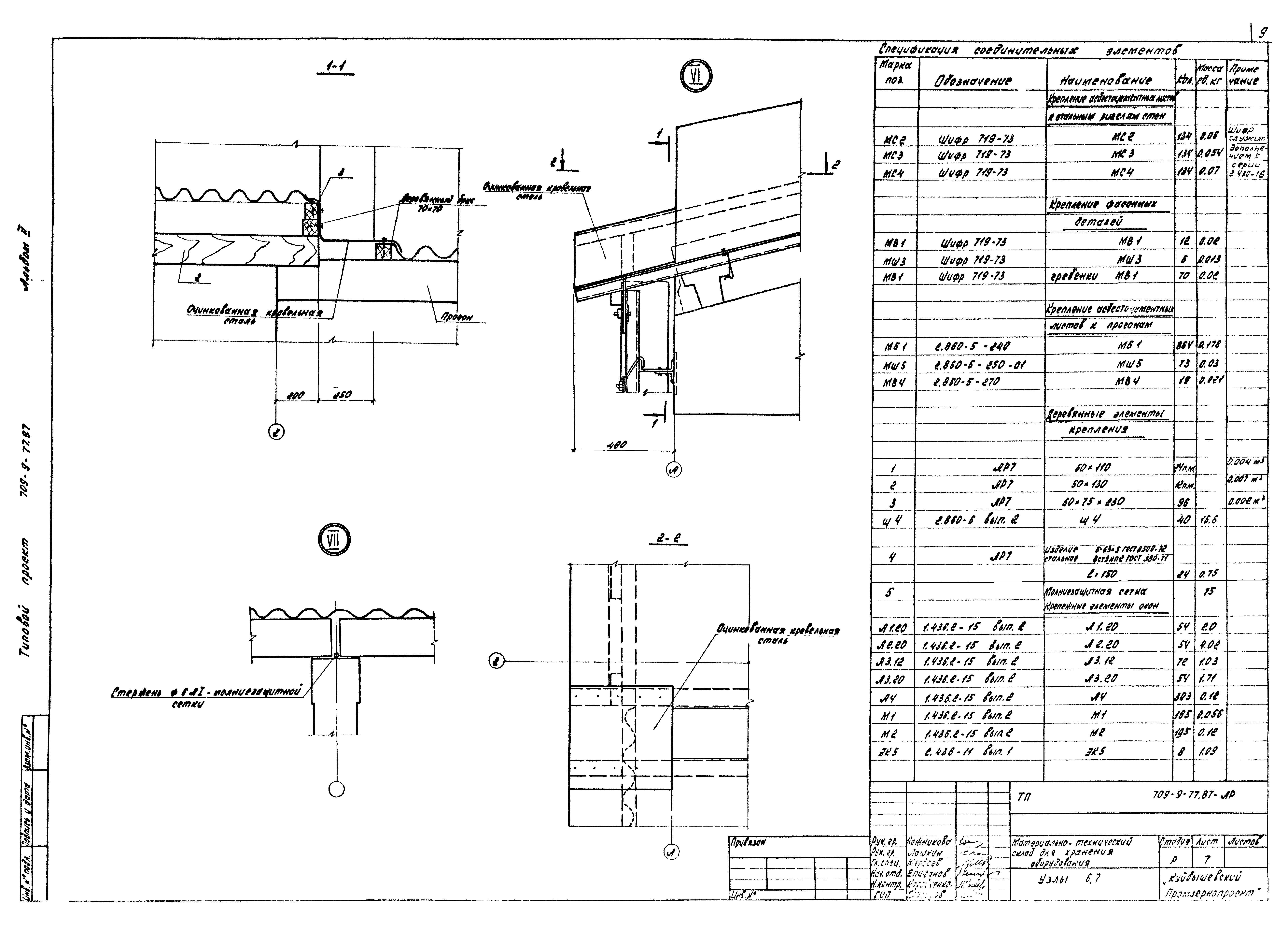
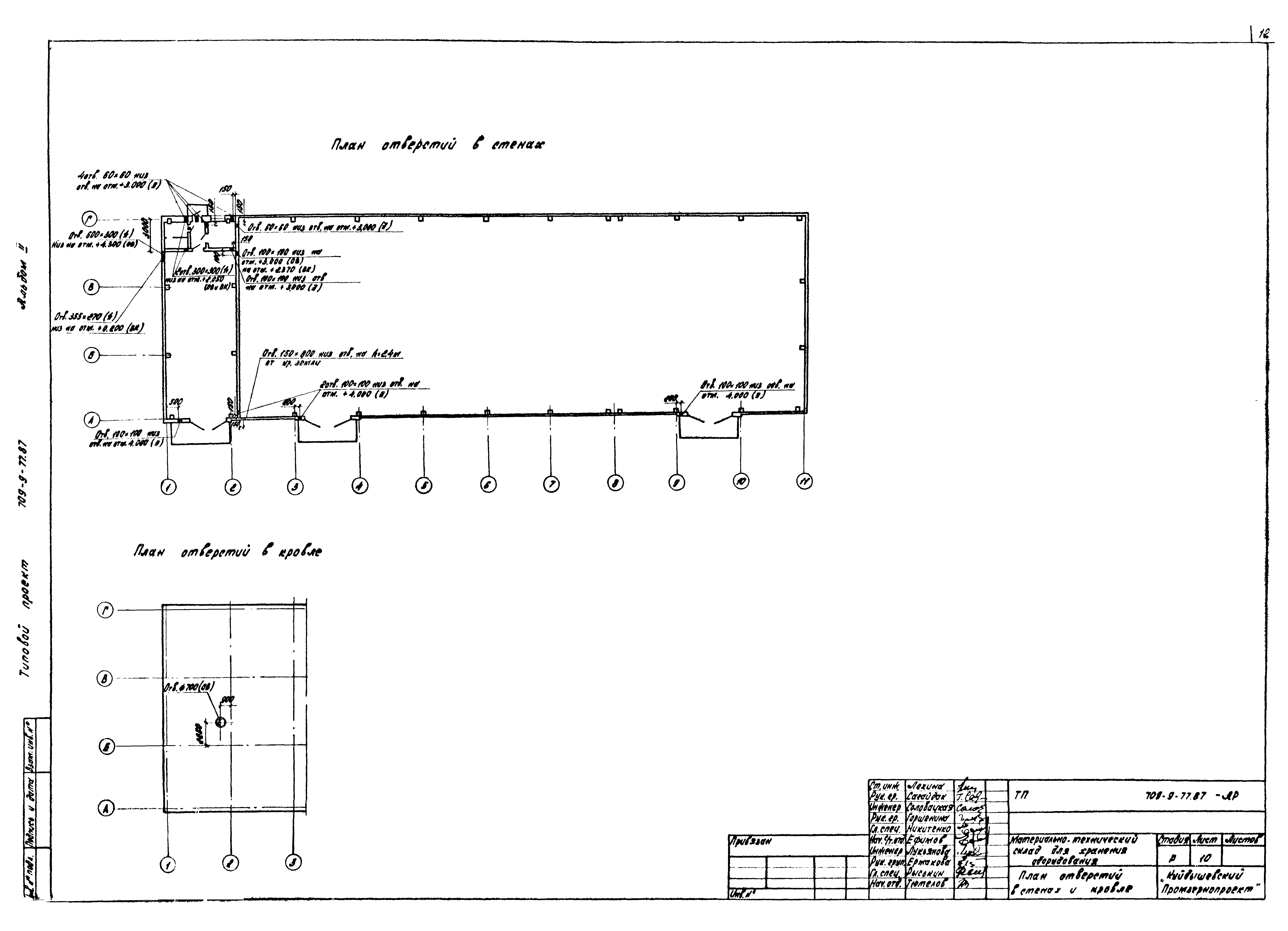
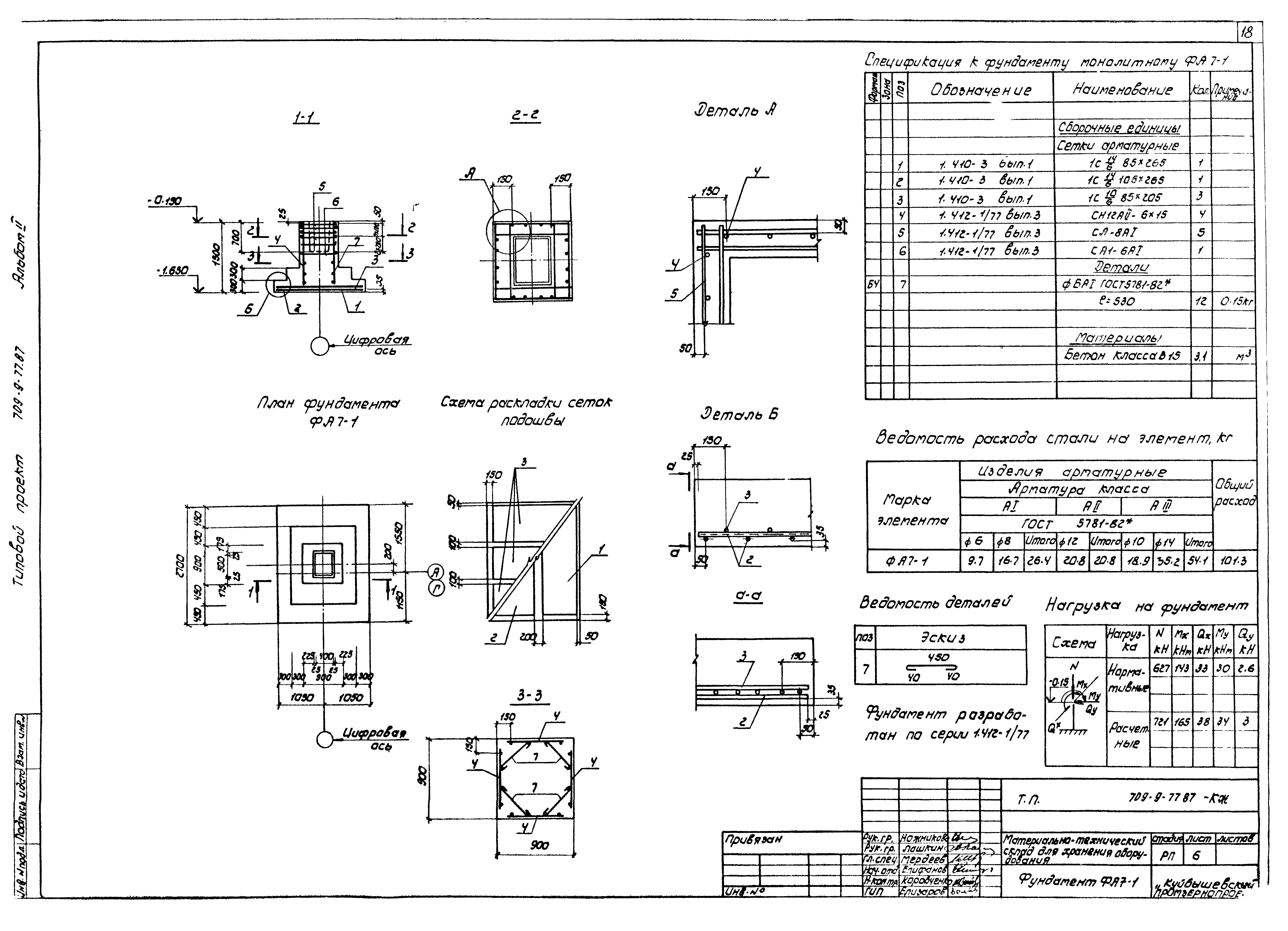
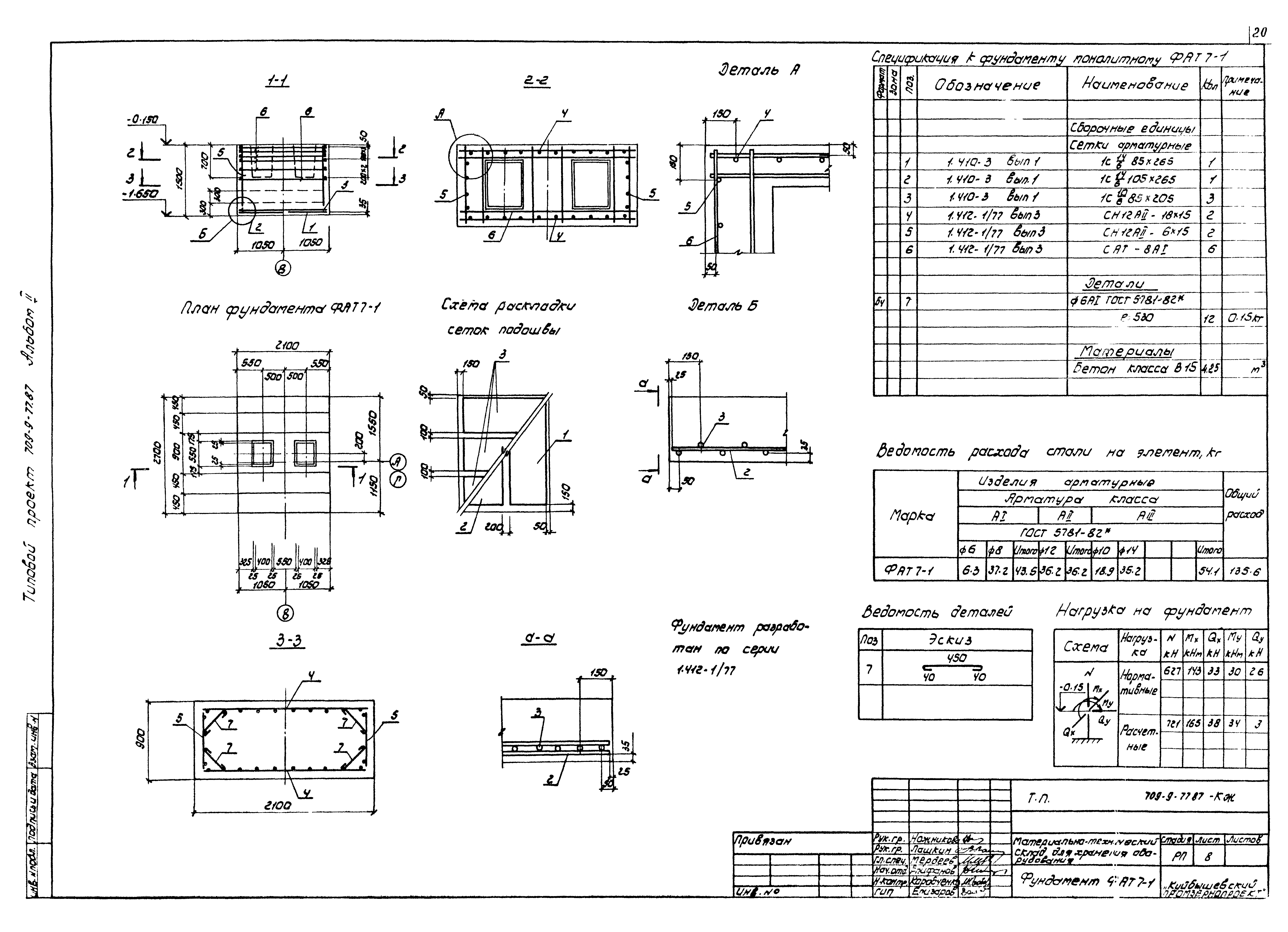
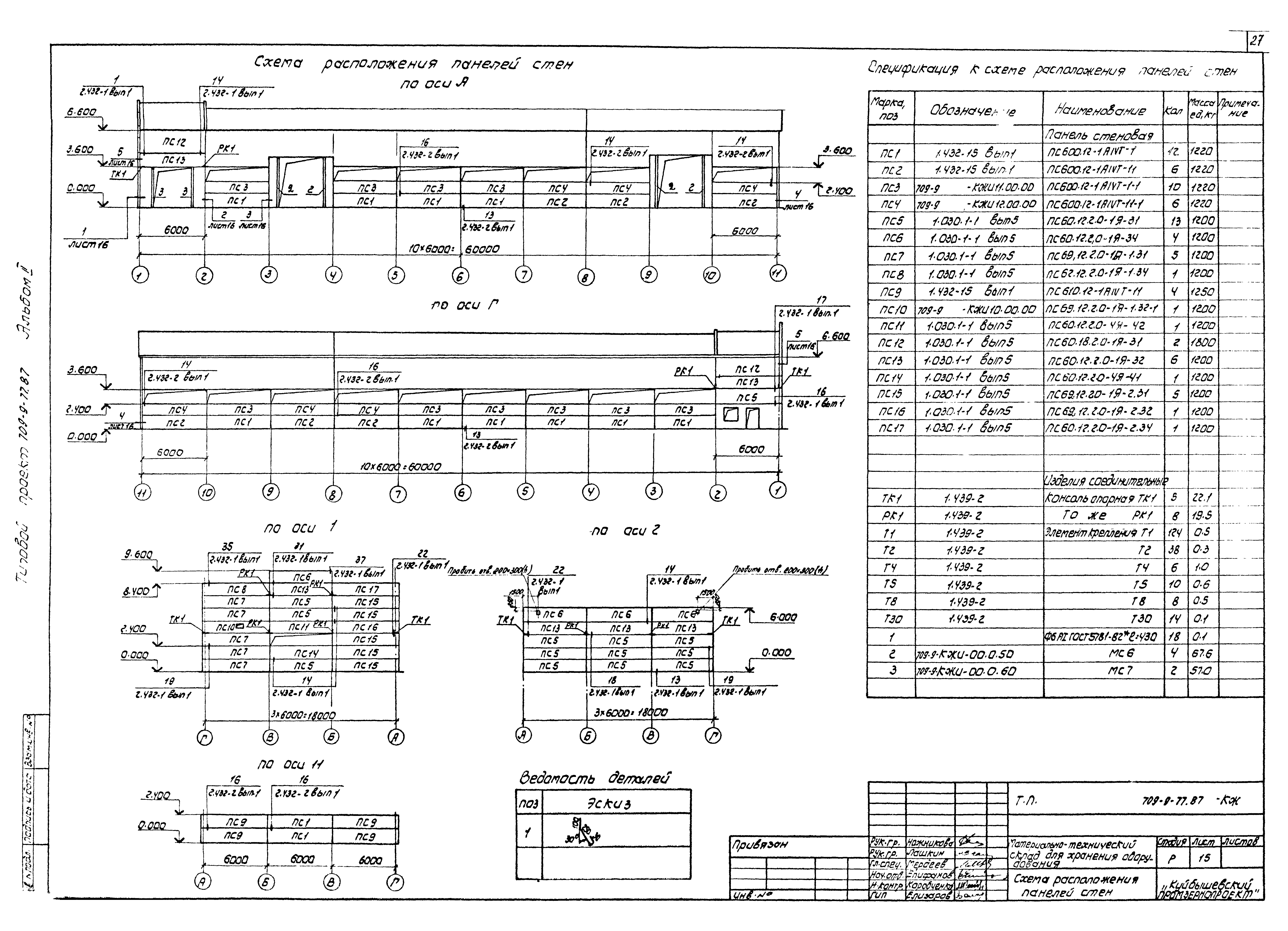
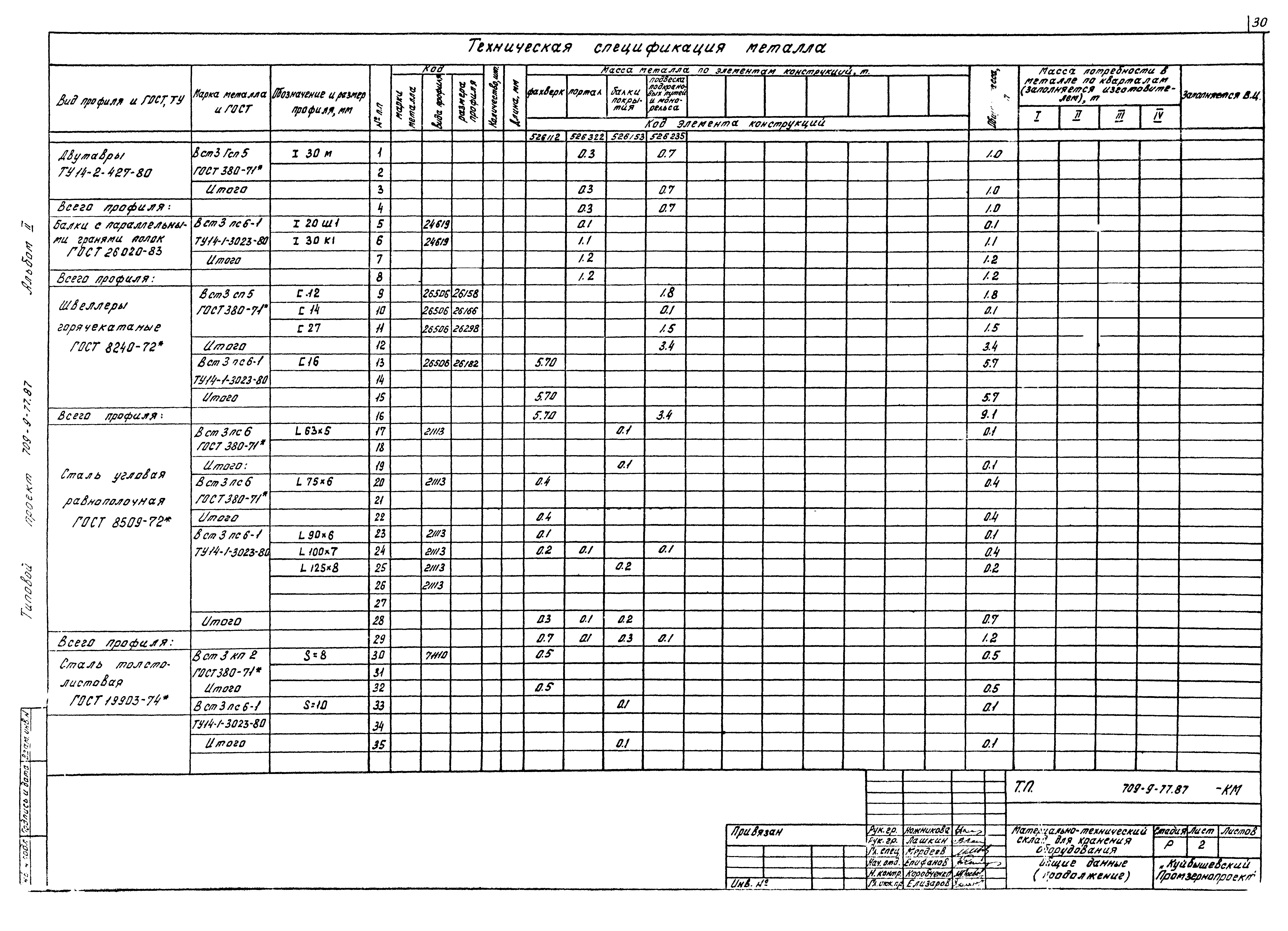
| Оглавление: | Архитектурные решения Общие данные План на отм. 0.000 План кровли. Фрагменты 1, 2, 3 Разрезы 1-1, 2-2, 3-3 Узлы 1 - 5 Узлы 6, 7 Фасады План полов. Экспликация полов. Схемы заполнения оконных проемов План отверстий в стенах и кровле Конструкции железобетонные Общие данные Фундаменты. Схема расположения элементов. Фрагменты 1, 1а Фундаменты. Фрагменты 2, 3, 4. Сечение 2-2 Фундаменты. Фрагмент 5 Фундамент ФА7-1 Фундамент ФА7-1-1 Фундамент ФАТ7-1 Фундамент ФА1-1 Фундамент ФА1-1-1 Фундамент Фм-5 Схема расположения элементов каркаса и связей Схема расположения элементов каркаса и связей. Узлы 1, 2 Схема расположения плит покрытия и прогонов Схема расположения панелей стен Схема расположения панелей стен. Узлы Конструкции металлические Общие данные Схема расположения элементов фахверка Схема расположения путей подвесного крана и монорельса. Узлы 1, 2, 3 Схема расположения путей подвесного крана и монорельса. Узлы 4, 5 Схема портала. Узлы. Схема расположения балок. Узлы |
| Разработан: | Куйбышевский Промзернопроект |
| Утверждён: | 28.10.1987 Министерство хлебопродуктов СССР (USSR Ministry of Bakery Products 16) |




































