Скачать Типовой проект 903-4-33.85 Альбом 2. Архитектурно-строительные решения. Отопление, вентиляция, внутренний водопровод и канализация. Кирпичный вариантДата актуализации: 01.01.2021
|
| Обозначение: | Типовой проект 903-4-33.85 |
| Обозначение англ: | 903-4-33.85 |
| Статус: | действует |
| Название рус.: | Альбом 2. Архитектурно-строительные решения. Отопление, вентиляция, внутренний водопровод и канализация. Кирпичный вариант |
| Дата добавления в базу: | 01.09.2013 |
| Дата актуализации: | 01.01.2021 |
| Дата введения: | 26.04.1985 |
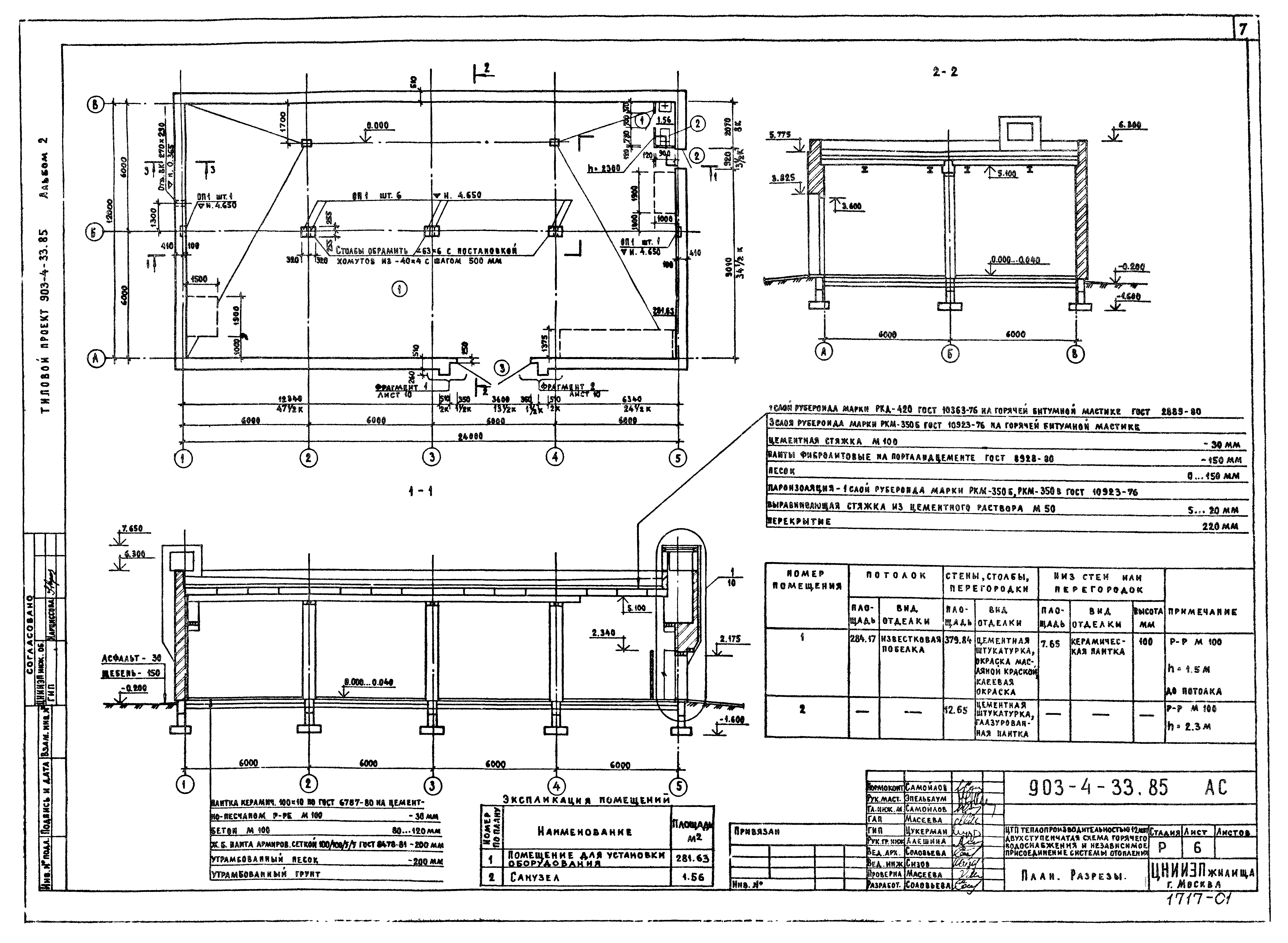
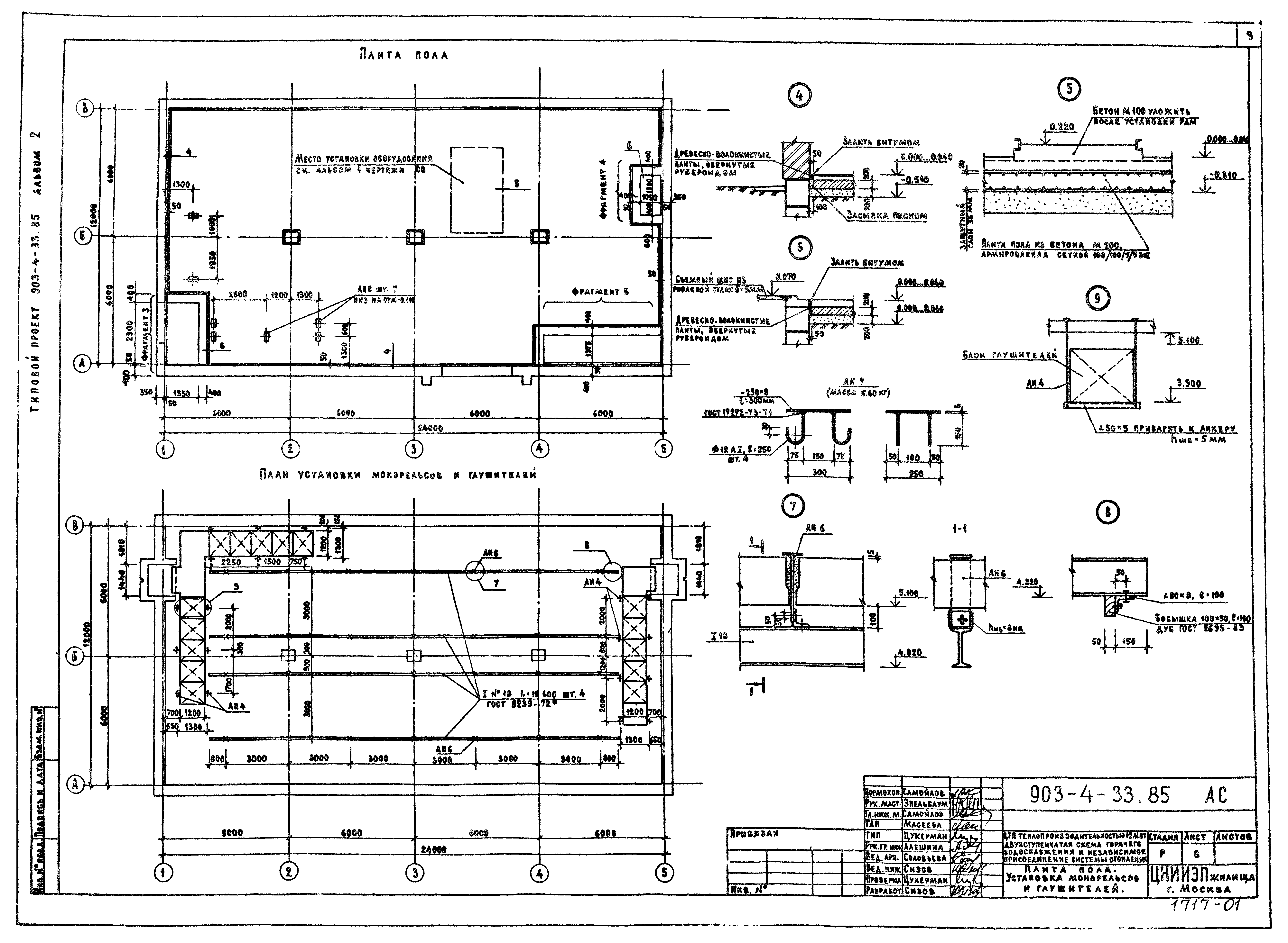
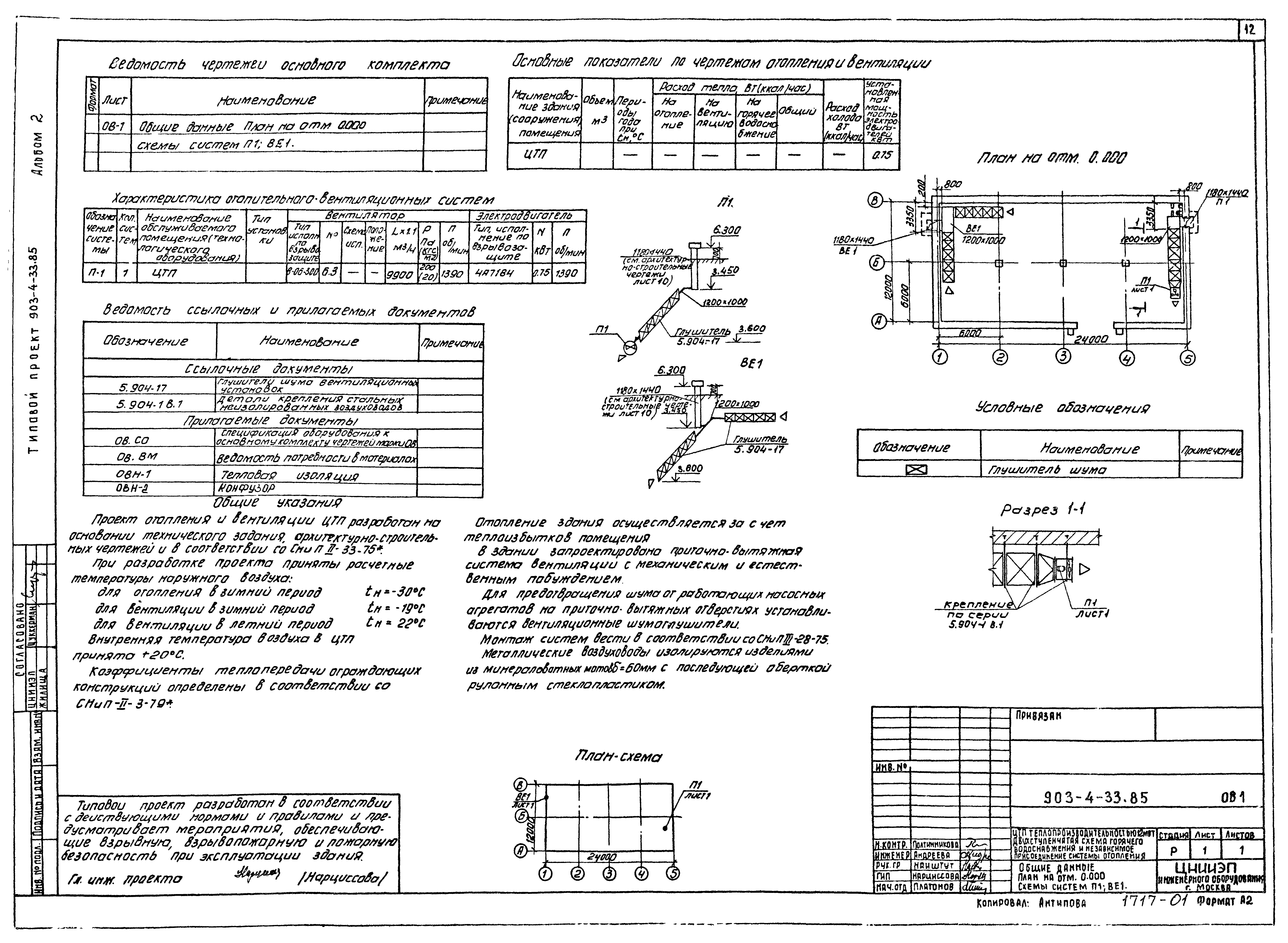
| Оглавление: | Архитектурно-строительные решения Общие данные Основные положения по производству строительных и монтажных работ Спецификация Фасады, генплан Варианты фасадов 2, 3 План, разрезы План фундаментов. Развертки стен Плита пола. Установка монорельсов и глушителей План покрытия. План кровли. Сечения Фрагменты кладки Отопление и вентиляция Общие данные. План на отм. 0.000. Схема систем П1, ВЕ1 Тепловая изоляция Конфузор Внутренний водопровод и канализация Общие данные. Фрагмент плана на отм. 0.400. выкопировка из плана кровли по оси Б. Схемы В1, Т3, К1, К2 |
| Разработан: | ЦНИИЭП ЦНИИЭП жилища |
| Утверждён: | 27.01.1985 Госгражданстрой (Gosgrazhdanstroy 19) |
















