Скачать Серия ИИЭ29-4 Разные стальные конструктивные элементы этажерок. Лестницы и ограждения. Чертежи КМДДата актуализации: 01.01.2021
|
| Обозначение: | Серия ИИЭ29-4 |
| Обозначение англ: | Series ИИЭ29-4 |
| Статус: | не действует |
| Название рус.: | Разные стальные конструктивные элементы этажерок. Лестницы и ограждения. Чертежи КМД |
| Дата добавления в базу: | 01.09.2013 |
| Дата актуализации: | 01.01.2021 |
| Дата окончания срока действия: | 01.10.1989 |
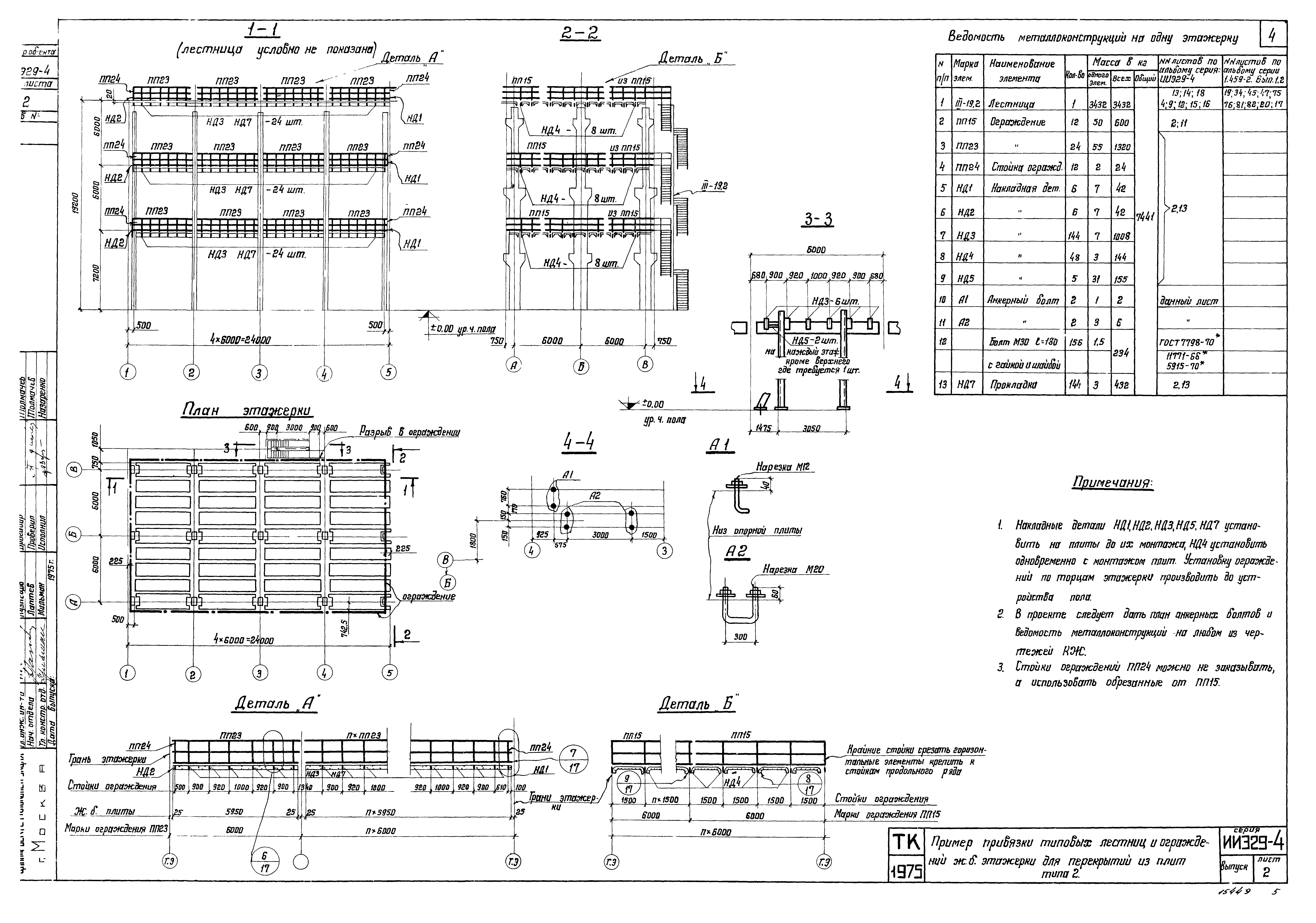
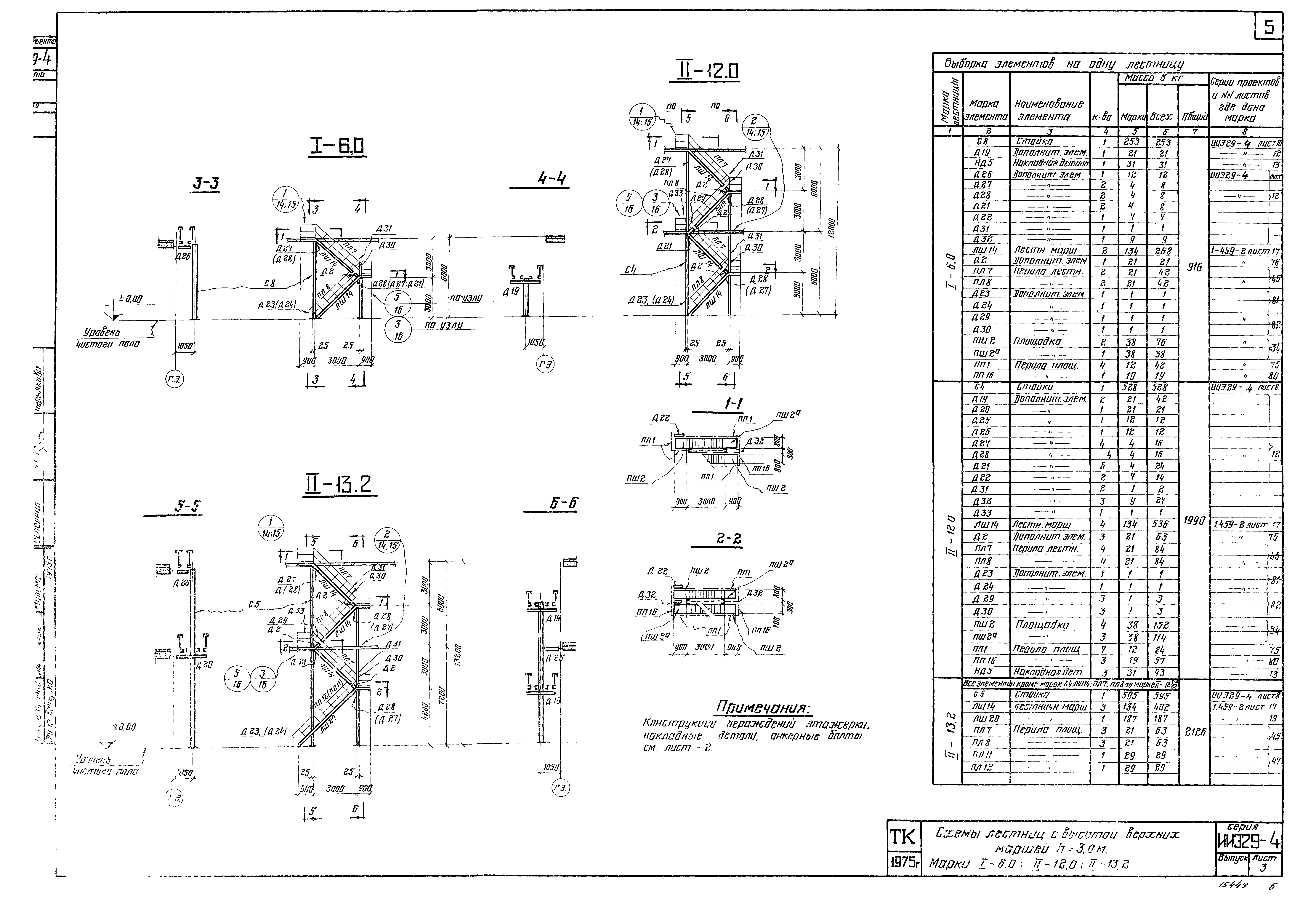
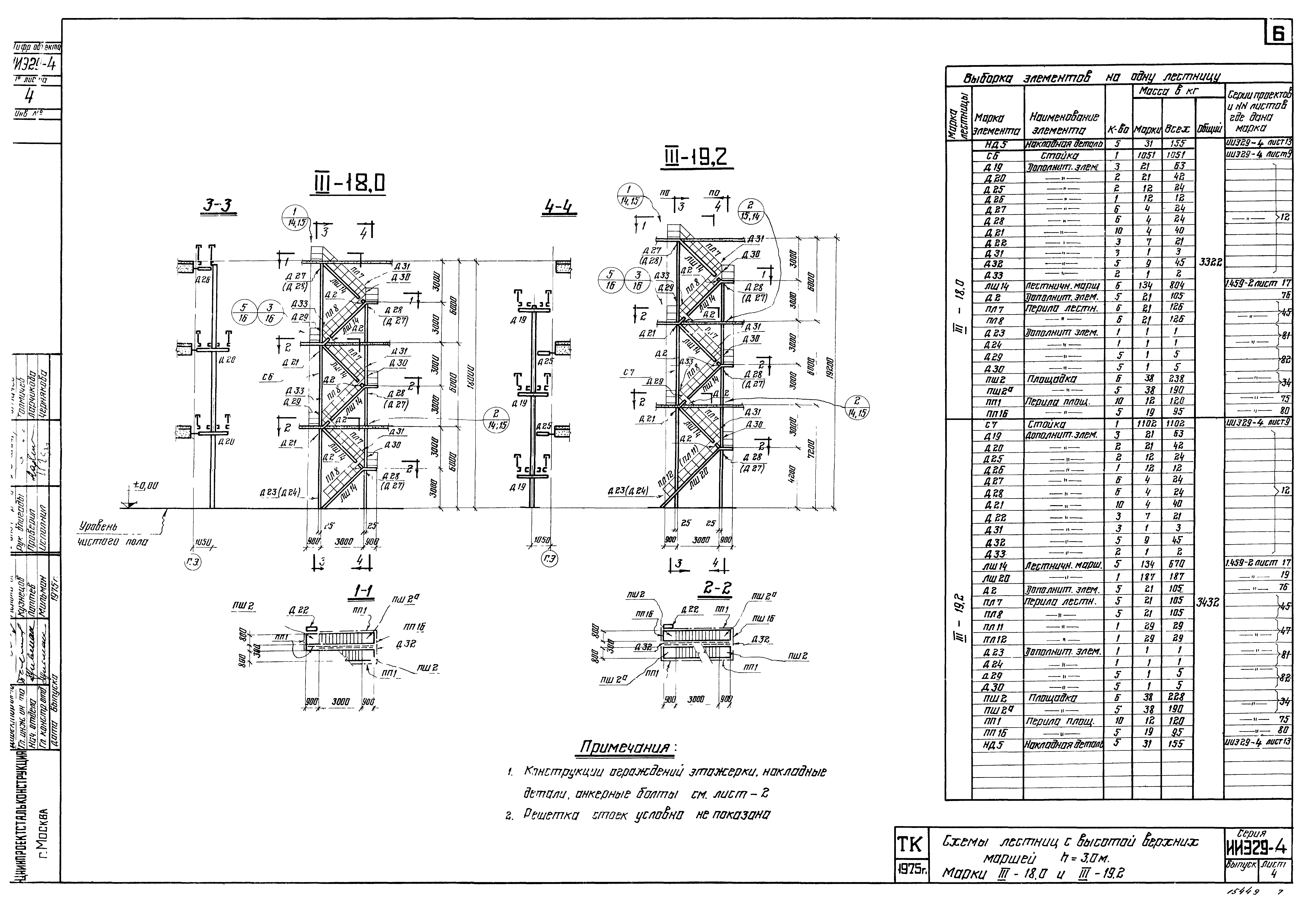
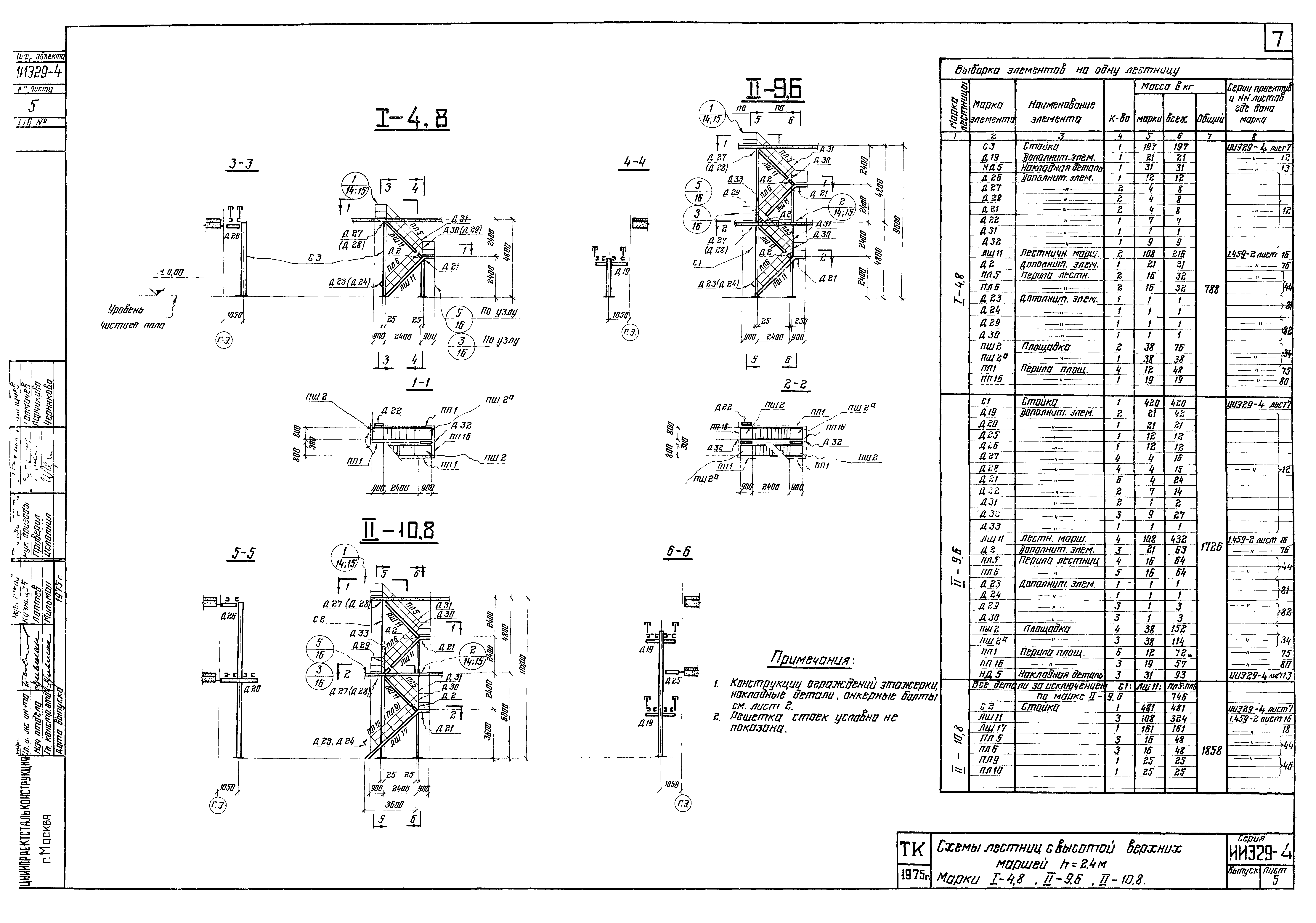
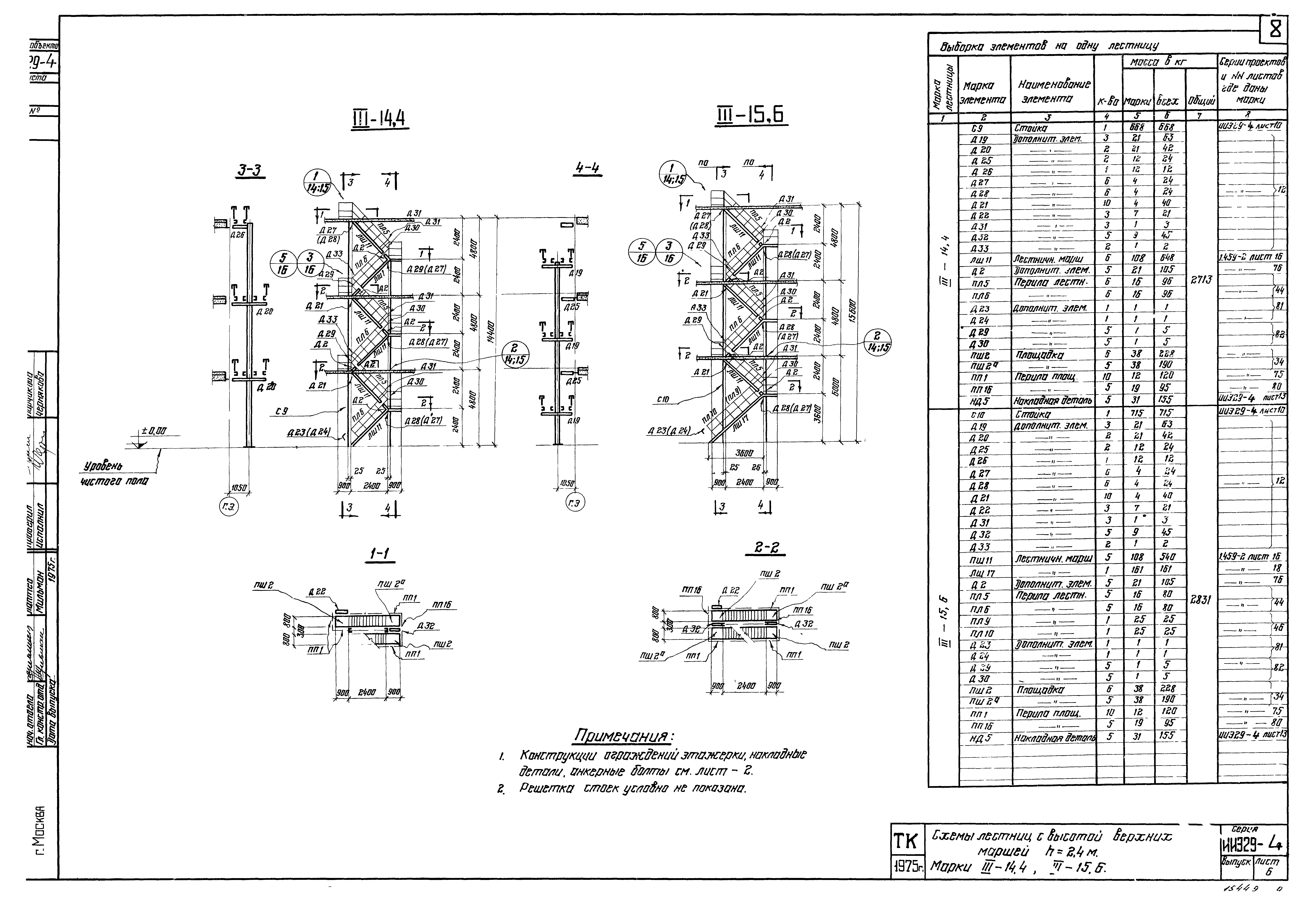
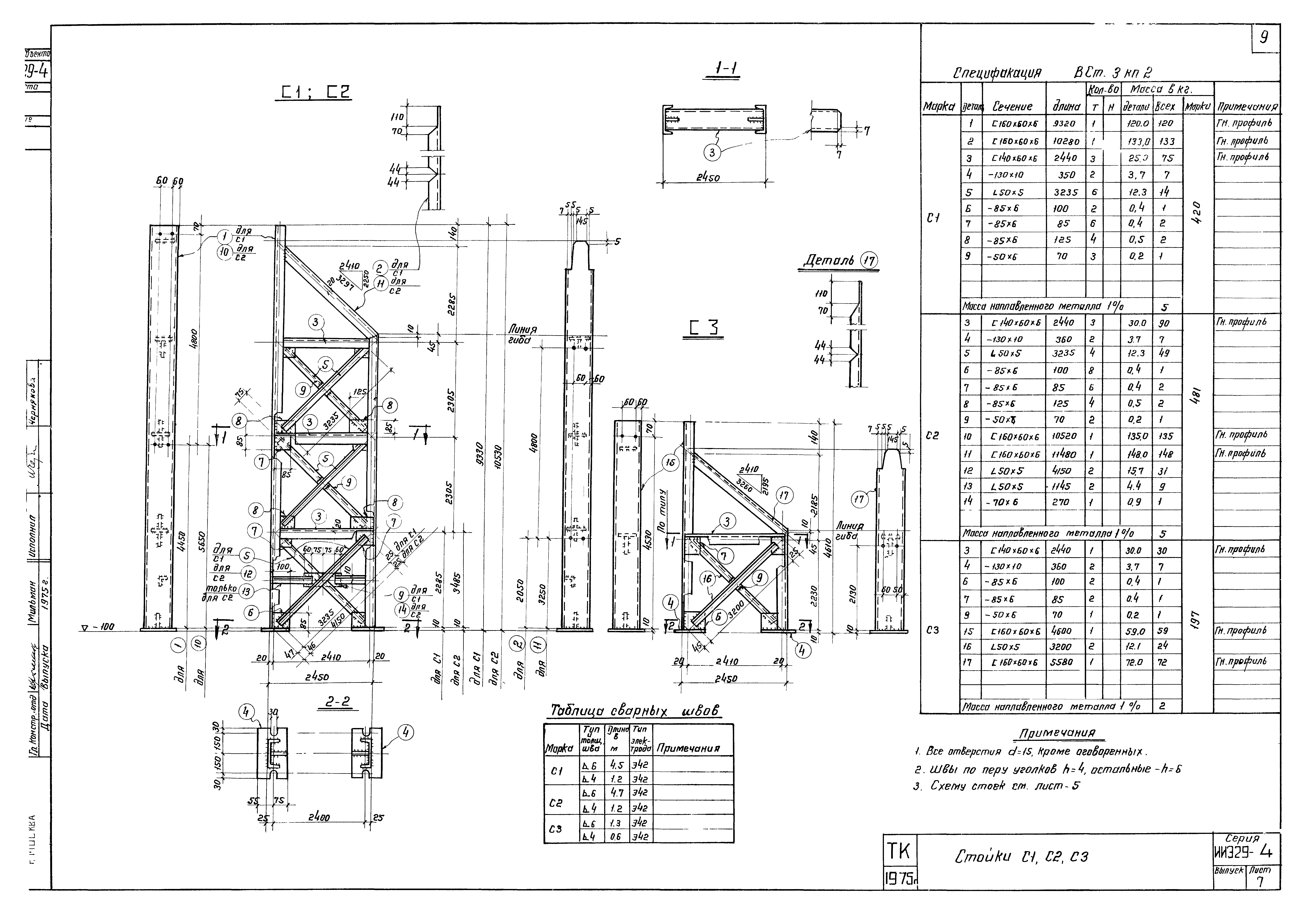
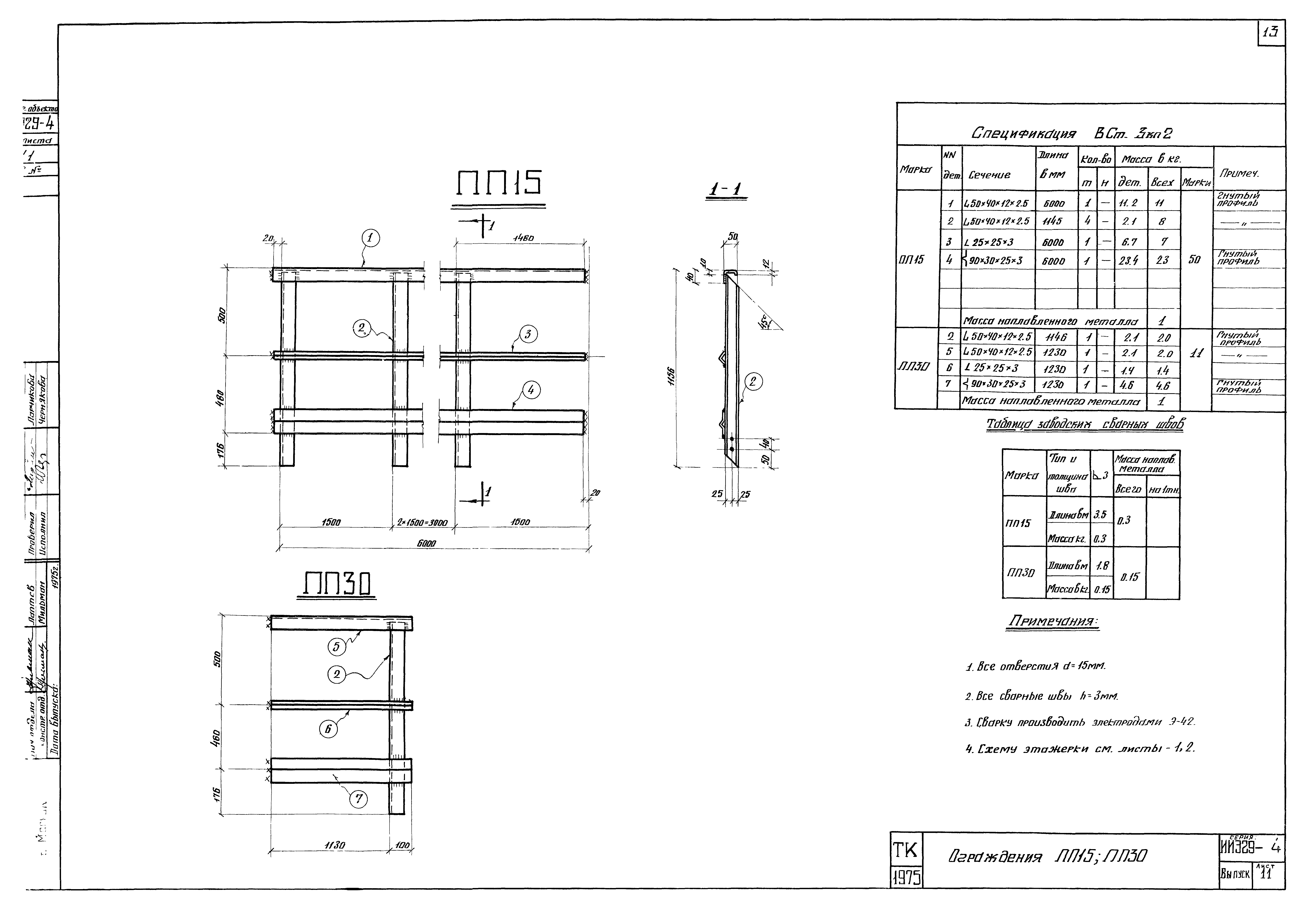
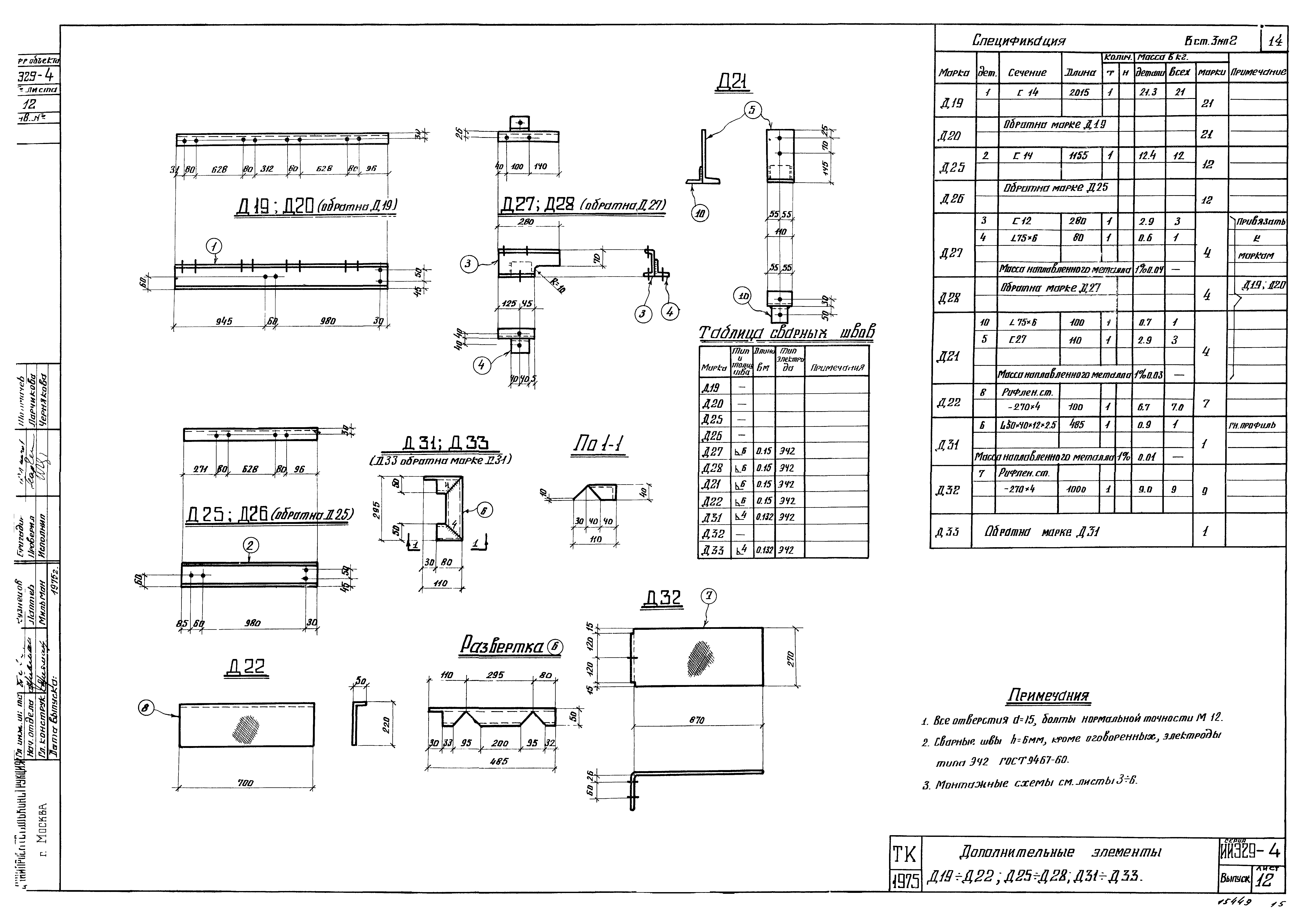
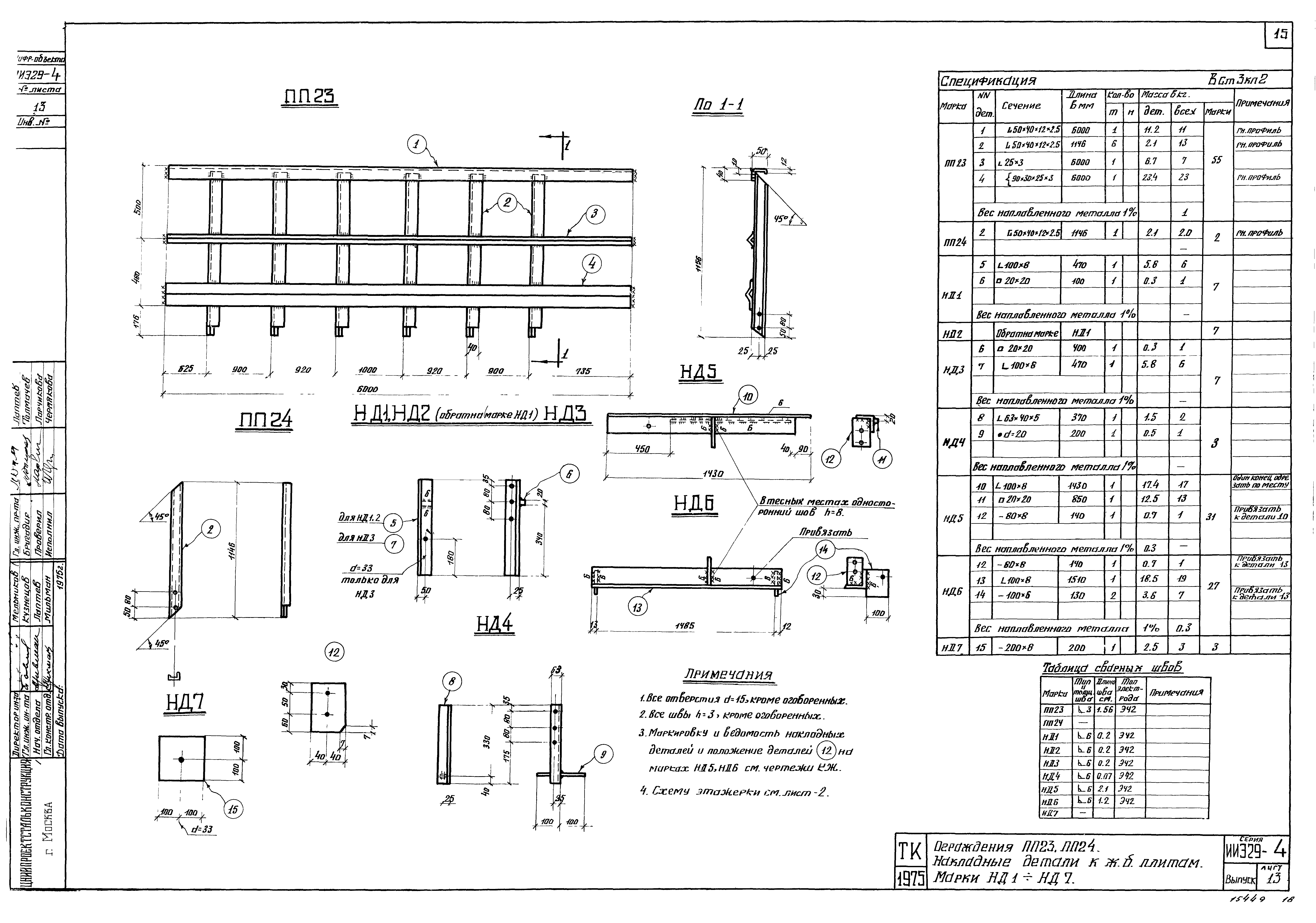
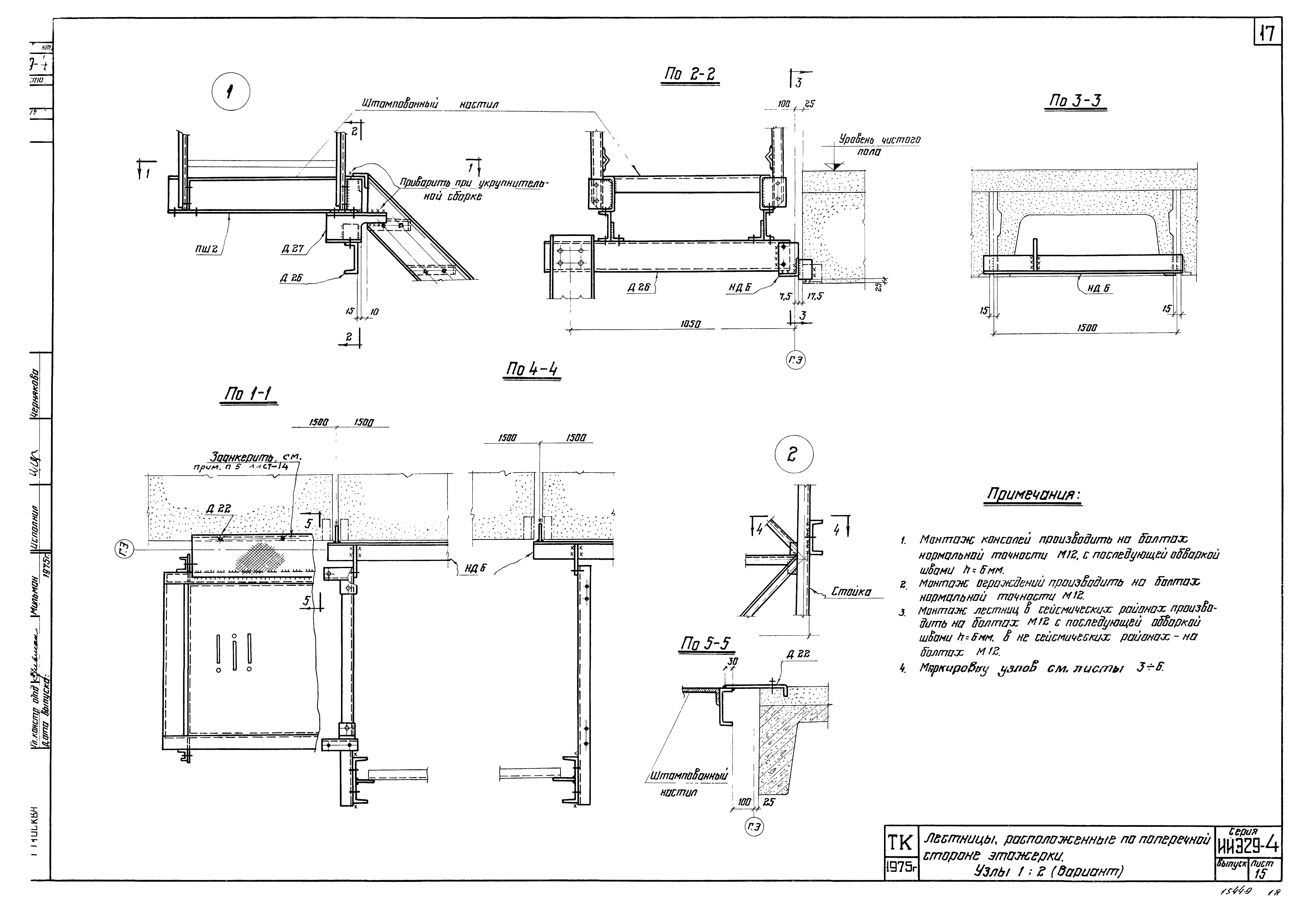
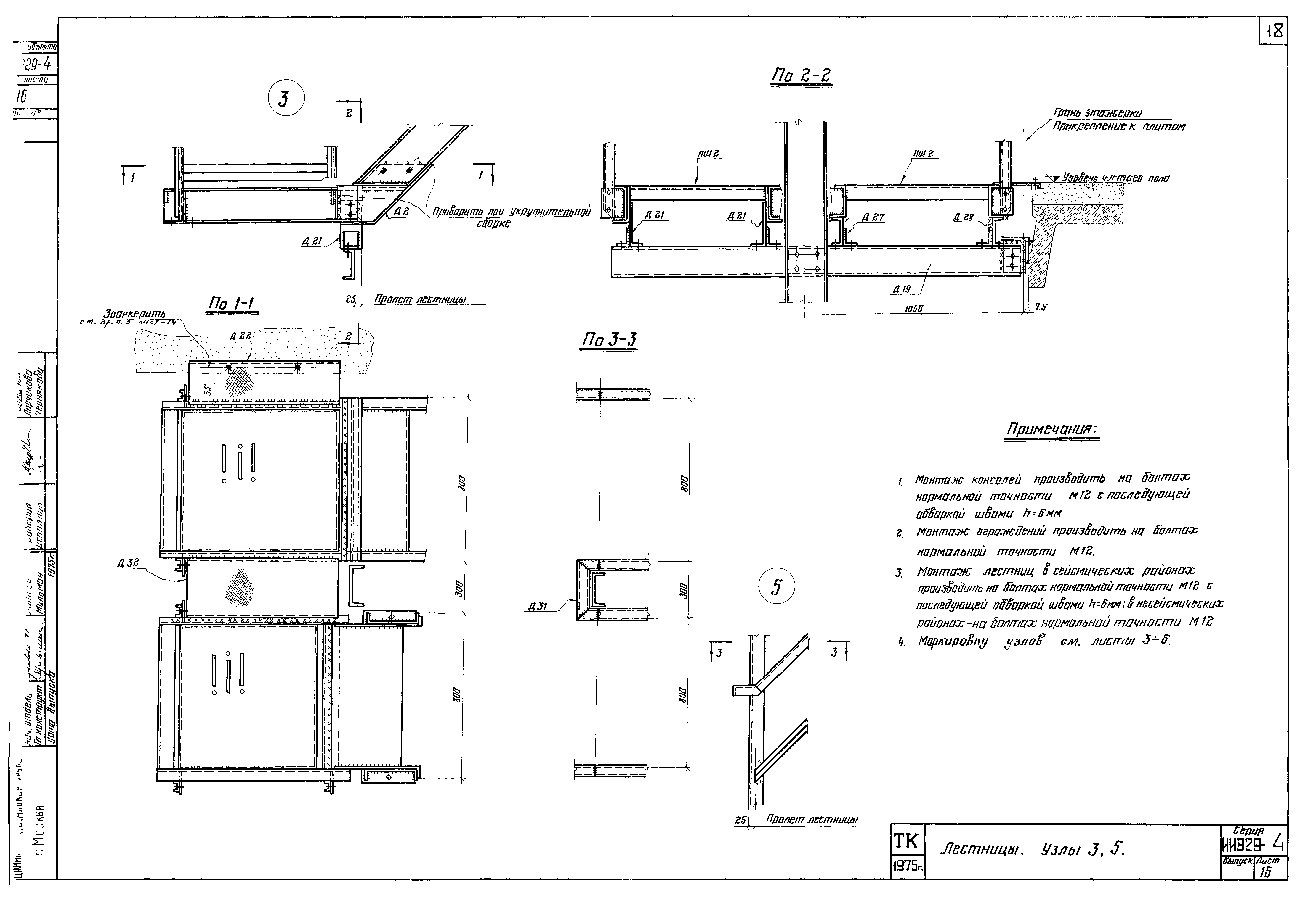
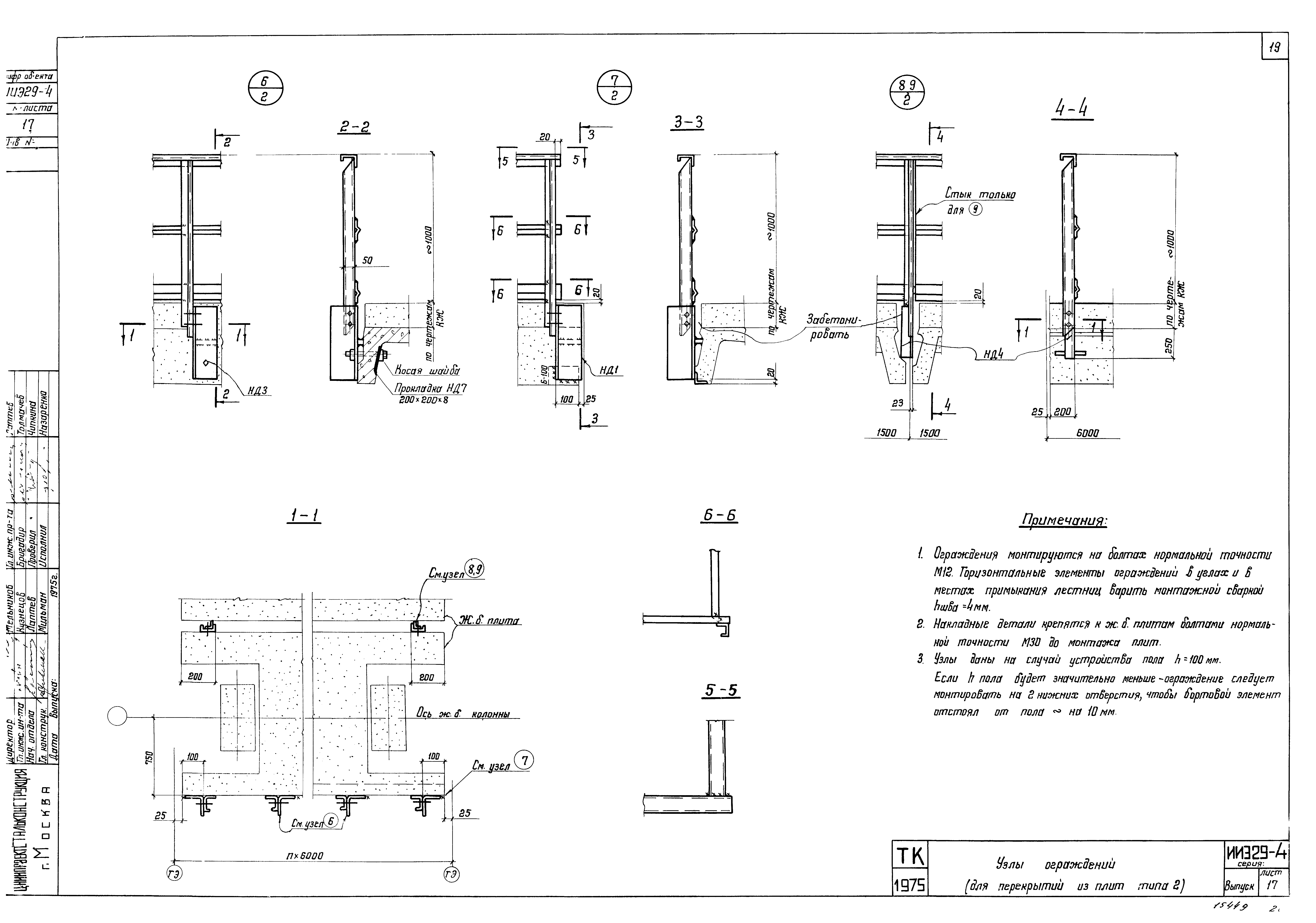
| Оглавление: | Пояснительная записка и содержание Пример привязки типовых лестниц и ограждений ж/б этажерки для перекрытий из плит типа 1 Пример привязки типовых лестниц и ограждений ж/б этажерки для перекрытий из плит типа 2 Схемы лестниц с высотой верхних маршей h = 3,0 м. Марки I-6,0, II-12,0, III-13,2 Схемы лестниц с высотой верхних маршей h = 3,0 м. Марки II-18,0, III-19,2 Схемы лестниц с высотой верхних маршей h = 2,4 м. Марки I-4,8, II-9,6, III-10,8 Схемы лестниц с высотой верхних маршей h = 2,4 м. Марки III-14,4, III-15,6 Стойки С1, С2, С3 Стойки С4, С5 Стойки С6, С7 Стойки С8, С9, С10 Ограждения ПП15, ПП30 Дополнительные элементы Д19 - Д22, Д25 - Д28, Д31 - Д33 Ограждения ПП23, ПП24. Накладные детали и ж/б плиты. Марки НД1, НД7 Лестницы, расположенные по продольной стороне этажерки. Узлы 1, 2 Лестницы, расположенные по продольной стороне этажерки. Узлы 1, 2 (вариант) Лестницы, узлы 3, 5 Узлы ограждений (для перекрытий из плит типа 2) Ограждения марки ПП25 - ПП29 |
| Разработан: | ЦНИИпромзданий ЦНИИпроектстальконструкция |
| Утверждён: | 17.12.1976 Госстрой СССР (Государственный комитет Совета Министров СССР по делам строительства) (USSR Gosstroy 112) |



















