Скачать Серия 3.505-11 Выпуск 1. Деревянные знакиДата актуализации: 01.01.2021
|
| Обозначение: | Серия 3.505-11 |
| Обозначение англ: | Series 3.505-11 |
| Статус: | не действует |
| Название рус.: | Выпуск 1. Деревянные знаки |
| Дата добавления в базу: | 01.09.2013 |
| Дата актуализации: | 01.01.2021 |
| Дата введения: | 25.05.1972 |
| Дата окончания срока действия: | 01.10.1977 |
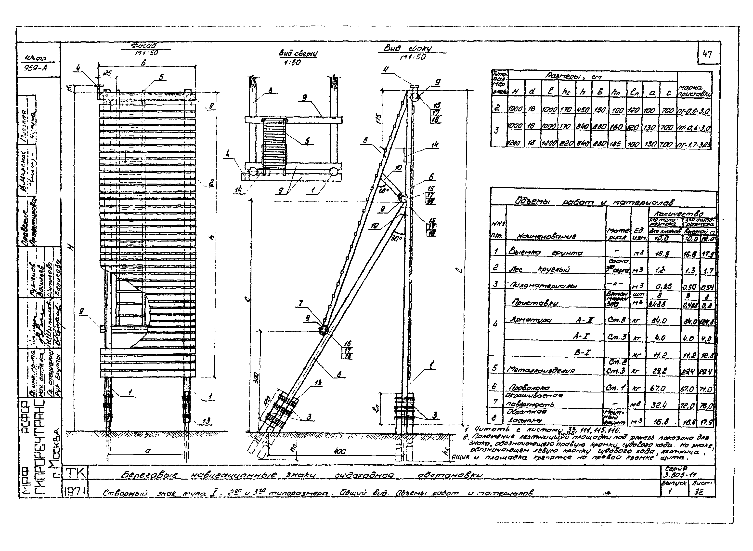
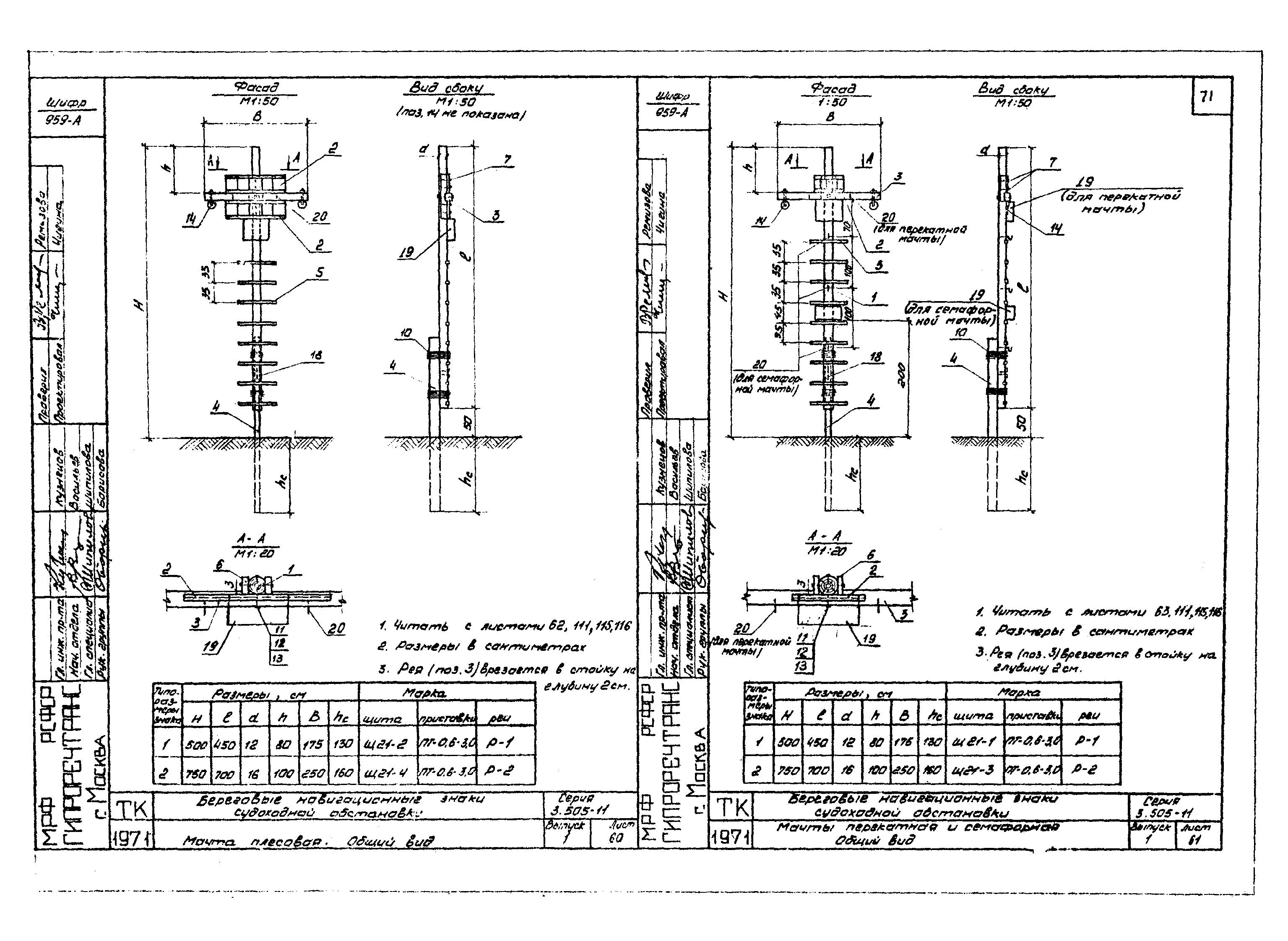
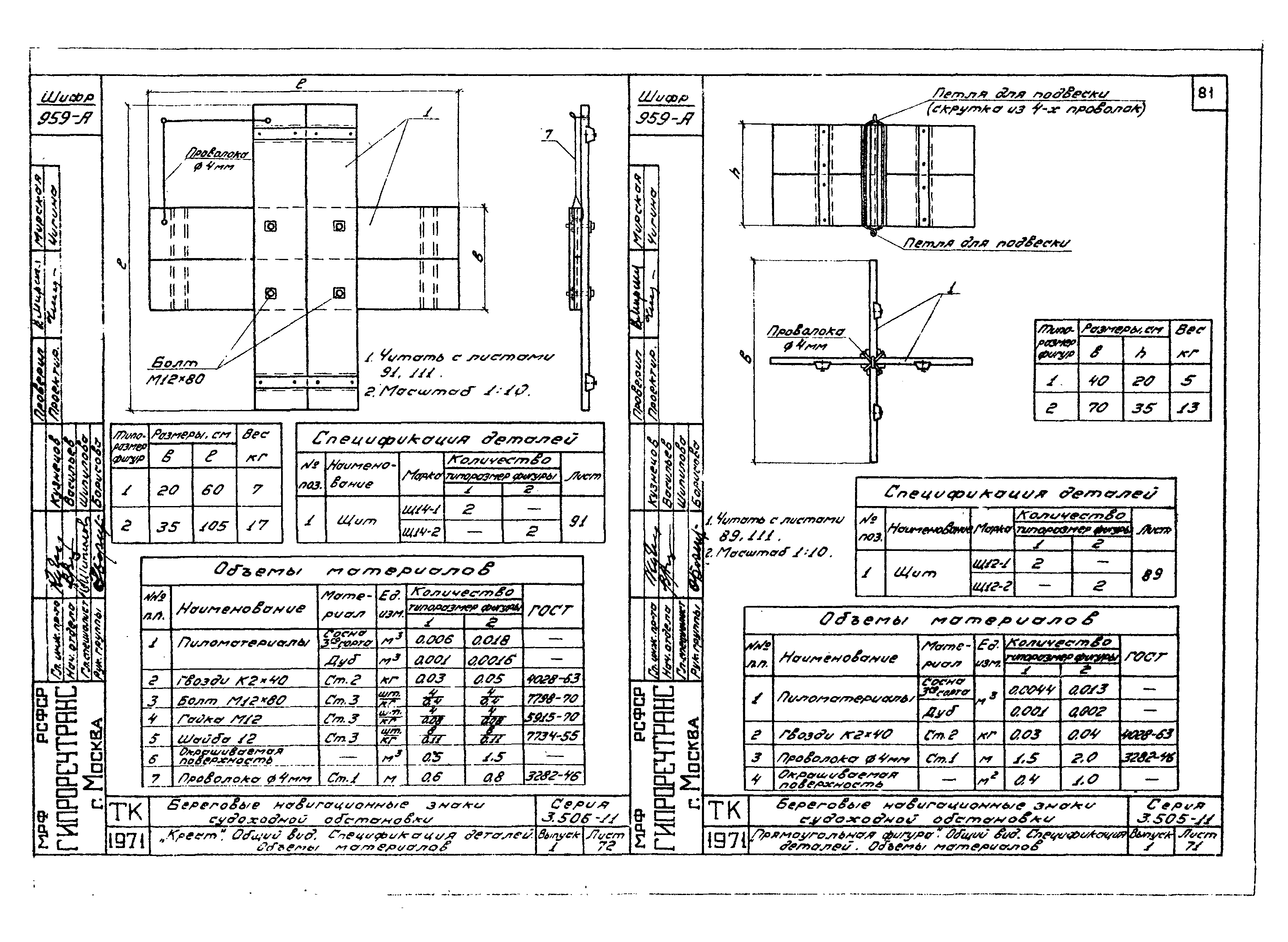
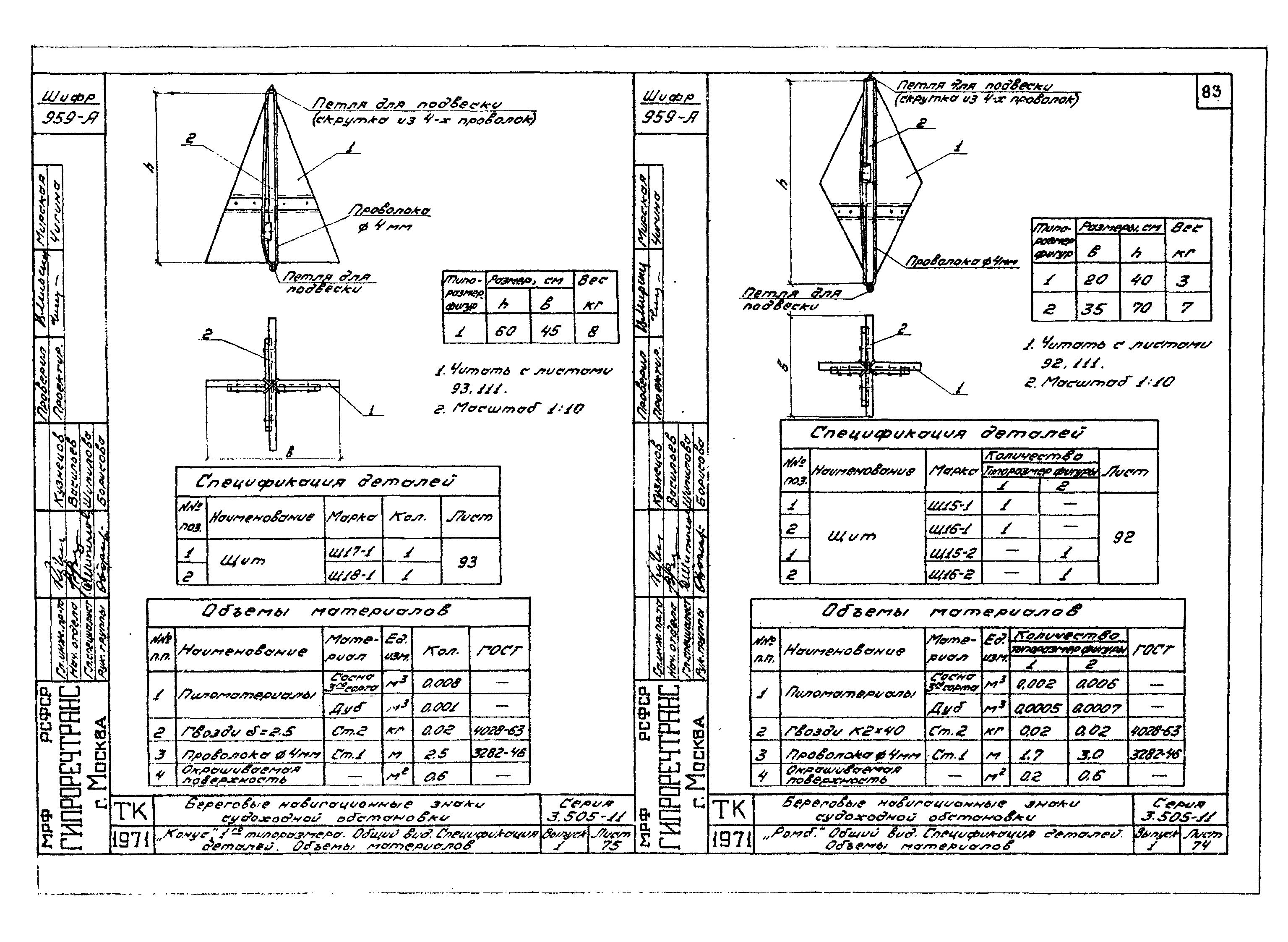
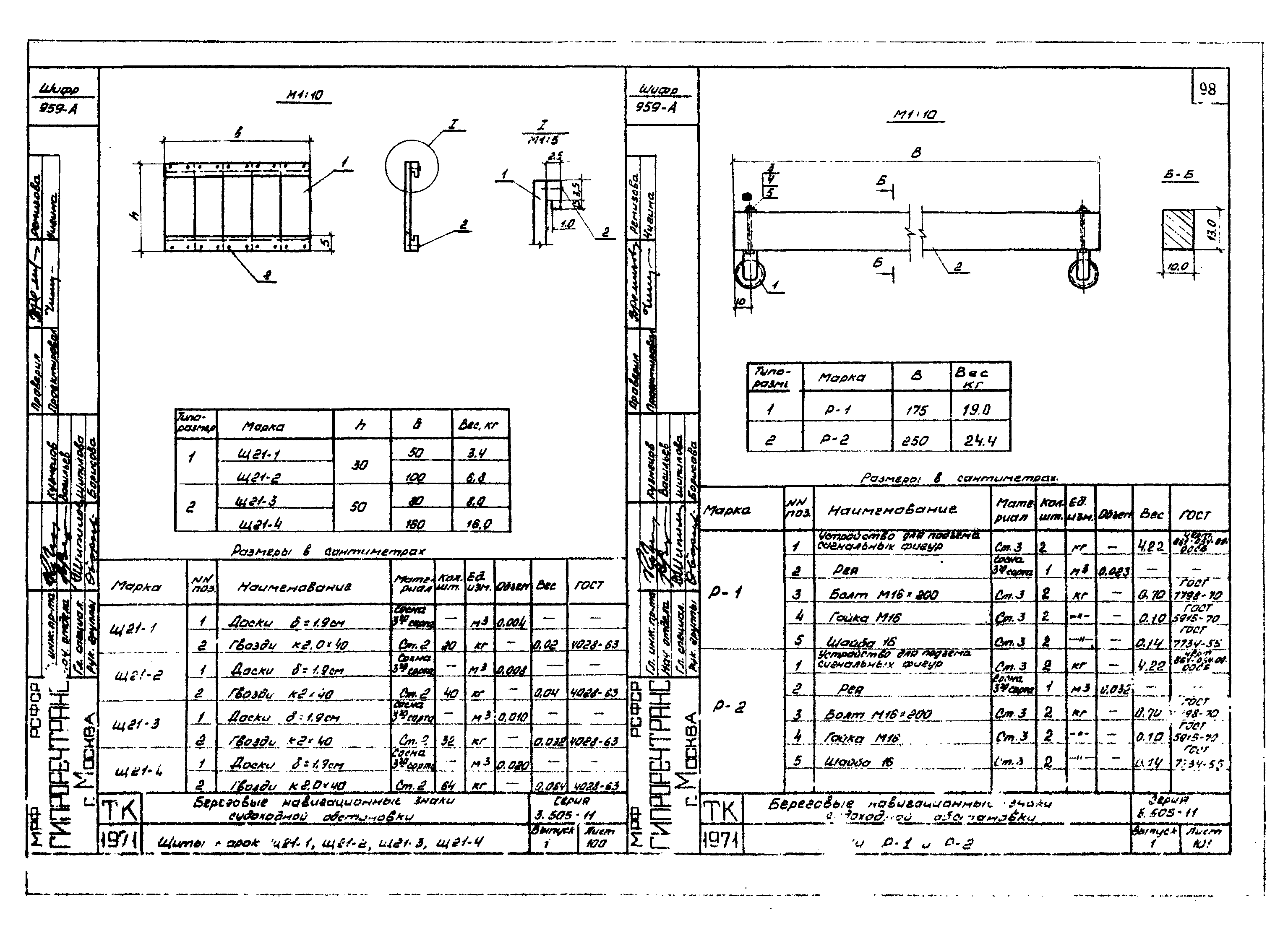
| Оглавление: | Введение 1. Указания о порядке применения рабочих чертежей при проектировании 1.1. Назначение и область применения 1.2. Номенклатура и типоразмеры знаков. Показатели расхода материалов 1.3. Расчетные схемы, расчетные нагрузки и их сочетания 1.4. Рекомендации по защите конструкций от гниения и коррозии 1.5. Привязка типовых конструкций знаков к конкретным условиям 2. Пояснительная записка 2.1. Описание конструкций знаков 2.2. Светосигнальное оборудование знаков 2.3. Требования к строительным материалам и технология изготовления 2.4. Указания о способах перевозки и монтажа конструкций. Правила приемки и контроль за качеством 2.5. Техника безопасности Чертежи Номенклатура знаков, основные размеры и технико-экономические показатели Створный знак типа I. Общий вид Ходовой знак. Вариант 1. Общий вид Створный знак типа I. Спецификация деталей. Спецификация металлоизделий. Объемы работ и материалов Ходовой знак. Вариант 1. Спецификация деталей. Спецификация металлоизделий. Объемы работ и материалов Створный знак типа II, высотой 4,75 м. Общий вид Створный знак типа II, высотой 4,75 м. Спецификация деталей. Спецификация металлоизделий. Объемы работ и материалов Створный знак типа III, высотой 9,25 м. Общий вид Створный знак типа III, высотой 9,25 м. Спецификация деталей. Спецификация металлоизделий. Объемы работ и материалов Створный знак типа III, 1-го и 2-го типоразмеров. Общий вид. Объемы работ и материалов Створный знак типа III, 1-го и 2-го типоразмеров. Спецификация деталей. Спецификация металлоизделий Створный знак типа III, 3-го и 4-го типоразмеров. Общий вид. Объемы работ и материалов Створный знак типа III, 3-го типоразмера. Спецификация деталей. Спецификация металлоизделий Створный знак типа III, 4-го типоразмера. Спецификация деталей. Спецификация металлоизделий Створные знаки типа IV, высотой 15,0 и 13,0 м. Общий вид. Фасад Створные знаки типа IV, высотой 15,0 и 13,0 м. Общий вид. Вид сбоку Створные знаки типа IV, высотой 15,0 и 13,0 м. Общий вид. Разрезы Створные знаки типа IV, высотой 15,0 м. Спецификация деталей. Спецификация металлоизделий. Объемы работ и материалов Створные знаки типа IV, высотой 13,0 м. Спецификация деталей. Спецификация металлоизделий. Объемы работ и материалов Створные знаки типа IV, высотой 11,0 и 9,25 м. Общий вид. Фасад Створные знаки типа IV, высотой 11,0 и 9,25 м. Общий вид. Вид сбоку Створные знаки типа IV, высотой 11,0 и 9,25 м. Общий вид. Разрезы Створный знак типа IV, высотой 11,0 м. Спецификация деталей. Спецификация металлоизделий. Объемы работ и материалов Створный знак типа IV, высотой 9,25 м. Спецификация деталей. Спецификация металлоизделий. Объемы работ и материалов Створный знак типа V, 1-го типоразмера. Общий вид. Объемы работ и материалов Створный знак типа V, 1-го типоразмера. Спецификация деталей. Спецификация металлоизделий Створный знак типа V, 2-го типоразмера. Общий вид Створный знак типа V, 2-го типоразмера. Спецификация деталей. Спецификация металлоизделий. Объемы работ и материалов Створный знак типа V, 2-го и 3-го типоразмеров. Общий вид. Объемы работ и материалов Створный знак типа V, 2-го и 3-го типоразмеров. Спецификация деталей. Спецификация металлоизделий Створный знак типа VI, 1-го типоразмера. Общий вид. Объемы работ и материалов Створный знак типа VI, 1-го типоразмера. Спецификация деталей. Спецификация металлоизделий Створный знак типа VI, 2-го типоразмера. Общий вид. Объемы работ и материалов Створный знак типа VI, 2-го типоразмера. Спецификация деталей. Спецификация металлоизделий Створный знак типа VI, 3-го типоразмера. Общий вид Створный знак типа VI, 3-го типоразмера. Спецификация деталей. Объемы работ и материалов Перевальный знак типа I. Общий вид Мачта флажная. Общий вид. Объемы работ и материалов Перевальный знак типа I. Спецификация деталей. Спецификация металлоизделий. Объемы работ и материалов Перевальный знак типа II, высотой 9,25 м. Общий вид. Фасад Перевальный знак типа II, высотой 9,25 м. Общий вид. Вид сбоку Перевальный знак типа II, высотой 9,25 м. Спецификация деталей. Спецификация металлоизделий. Объемы работ и материалов Перевальный знак типа II, высотой 4,75 м. Общий вид Перевальный знак типа II, высотой 4,75 м. Спецификация деталей. Спецификация металлоизделий. Объемы работ и материалов Знак "Ориентир" типа I (весенний для правого берега). Вариант 1. Общий вид Знак "Ориентир" типа II (весенний для правого берега). Вариант 1. Общий вид Знак "Ориентир" типа I (весенний для правого берега). Вариант 1. Спецификация деталей. Спецификация металлоизделий. Объемы работ и материалов Знак "Ориентир" типа II (весенний для правого берега). Вариант 1. Спецификация деталей. Спецификация металлоизделий. Объемы работ и материалов Знаки подводный и надводный переходы. Общий вид Знак "Сигнал". Общий вид Знаки подводный и надводный переходы. Спецификация деталей. Спецификация металлоизделий Знак "Сигнал". Спецификация деталей. Спецификация металлоизделий. Объемы работ и материалов Рейдовые знаки. Общий вид Знак "Внимание". Общий вид Рейдовые знаки. Спецификация деталей. Спецификация металлоизделий. Объемы работ и материалов Знак "Внимание". Спецификация деталей. Спецификация металлоизделий. Объемы работ и материалов Мачта плесовая. Общий вид Мачты перекатная и семафорная. Общий вид Мачта плесовая. Спецификация деталей. Спецификация металлоизделий. Объемы работ и материалов Мачты перекатная и семафорная. Спецификация деталей. Спецификация металлоизделий. Объемы работ и материалов Знаки указания местности и километража. Общий вид. Спецификация деталей. Объемы работ и материалов Ходовой знак. Вариант 2. Общий вид Ходовой знак. Вариант 2. Спецификация деталей. Спецификация металлоизделий. Объемы работ и материалов Знак "Ориентир" типа I (весенний для правого берега). Вариант 2. Общий вид Знак "Ориентир" типа I (весенний для правого берега). Вариант 2. Спецификация деталей. Спецификация металлоизделий. Объемы работ и материалов Знак "Ориентир" типа II (весенний для правого берега). Вариант 2. Общий вид Знак "Ориентир" типа II (весенний для правого берега). Вариант 1. Спецификация деталей. Спецификация металлоизделий. Объемы работ и материалов Прямоугольная фигура. Общий вид. Спецификация деталей. Объемы материалов "Крест". Общий вид. Спецификация деталей. Объемы материалов "Большой шар" и "Малый шар". Общий вид. Спецификация деталей. Объемы материалов "Ромб". Общий вид. Спецификация деталей. Объемы материалов "Конус", 1-го типоразмера. Общий вид. Спецификация деталей. Объемы материалов "Конус", 2-го типоразмера. Общий вид. Спецификация деталей. Объемы материалов "Цилиндр". Общий вид. Спецификация деталей. Объемы материалов Щиты марок Щ1-1, Щ1-2, Щ1-3 Щиты марок Щ11-1, Щ11-2, Щ11-3 Щит марки Щ2-1 Щит марки Щ2-2 Щиты марок Щ3-1, Щ3-2, Щ3-3, Щ3-4 Щиты марок Щ10-1, Щ10-2 Щиты марок Щ4-1, Щ5-1 Щиты марок Щ20-1, Щ20-2, Щ20-3, Щ20-4, Щ20-5, Щ20-6 Щиты марок Щ6-1, Щ6-2, Щ6-3 Щиты марок Щ9-1, Щ9-2, Щ9-3 Щиты марок Щ7-1, Щ7-2, Щ7-3, Щ8-1, Щ8-2, Щ8-3 Щиты марок Щ12-1, Щ12-2 Щиты марок Щ13-1, Щ13-2, Щ13-3 Щиты марок Щ14-1, Щ14-2 Щиты марок Щ15-1, Щ15-2, Щ16-1, Щ16-2 Щиты марок Щ17-1, Щ18-1 Щиты марок Щ19-1, Щ19-2 Щиты марок Щ17-2, Щ18-2 Щит марки Щ22-1 Щит марки Щ22-2 Щиты марок Щ23-1, Щ23-2 Щиты марок Щ24-1, Щ24-2 Щиты марок Щ21-1, Щ21-2, Щ21-3, Щ21-4 Реи Р-1, Р-2 Ручица Площадка под фонарь Лестница Приставки ПТ-0,6-3,0 и ПТ-0,8-3,25. Опалубочный чертеж Приставки ПТ-0,6-3,0 и ПТ-0,8-3,25. Арматурные каркасы Приставки ПТ-1,2-3,25 и ПТ-1,7-3,25. Опалубочный чертеж Приставки ПТ-1,2-3,25 и ПТ-1,7-3,25. Арматурные каркасы Приставки ПТ-1,7-4,25 и ПТ-2,2-4,25. Опалубочный чертеж Приставки ПТ-1,7-4,25 и ПТ-2,2-4,25. Арматурные каркасы Технические условия на изготовление знаков Щиты стальные для створного знака тип I. Спецификация Щиты стальные для створного знака тип I. Сборочный чертеж Щиты стальные для знаков: "Подводный переход", "Надводный переход", "Сигнал". Спецификация Щиты стальные для знаков: "Подводный переход", "Надводный переход", "Сигнал". Сборочный чертеж Щиты стальные для знаков: "Внимание", "Рейдовый знак". Спецификация Щиты стальные для знаков: "Внимание", "Рейдовый знак". Сборочный чертеж Щиты стальные для знака "Ориентир". Спецификация Щиты стальные для знака "Ориентир". Сборочный чертеж Щиты стальные для знака "Ориентир". Щит Щиты стальные для знака "Ориентир". Растяжка Стремянка. Спецификация Стремянка. Сборочный чертеж Стремянка. Башмак Щиты стальные для знака "Ходовой". Спецификация Щиты стальные для знака "Ходовой". Сборочный чертеж Щиты стальные для знака "Ходовой". Щит Ящик для источника питания емкостью на четыре батареи. Спецификация Ящик для источника питания емкостью на четыре батареи. Сборочный чертеж Ящик для источника питания емкостью на две батареи. Спецификация Ящик для источника питания емкостью на две батареи. Сборочный чертеж Ящик для источника питания емкостью на две батареи. Уголок тыловой Ящик для источника питания емкостью на две батареи. Ручка Ящик для источника питания емкостью на две батареи. Проушина Устройство для подъема сигнальных фигур. Спецификация Устройство для подъема сигнальных фигур. Сборочный чертеж Устройство для подъема сигнальных фигур. Ролик Устройство для подъема сигнальных фигур. Скоба Устройство для подъема сигнальных фигур. Палец Болт Накладка Хомут Узлы соединения деталей Сводная спецификация для выбора светосигнального оборудования навигационных знаков Электрооборудование. Схемы внешних соединений Схема монтажа сварных знаков типа IV. Боковой вид Схема монтажа сварных знаков типа IV. План Перечень ГОСТов, технических условий и других нормативно-технических документов Паспорт |
| Разработан: | Гипроречтранс |
| Утверждён: | 25.05.1972 Министерство речного флота РСФСР |
| Чем заменён: |
|






















































































































































