Скачать Серия 3.505-11 Выпуск 2. Альбом II. Стальные конструкции. Знаки одноопорныеДата актуализации: 01.01.2021
|
| Обозначение: | Серия 3.505-11 |
| Обозначение англ: | Series 3.505-11 |
| Статус: | не действует |
| Название рус.: | Выпуск 2. Альбом II. Стальные конструкции. Знаки одноопорные |
| Дата добавления в базу: | 01.09.2013 |
| Дата актуализации: | 01.01.2021 |
| Дата введения: | 29.03.1974 |
| Дата окончания срока действия: | 01.09.1981 |
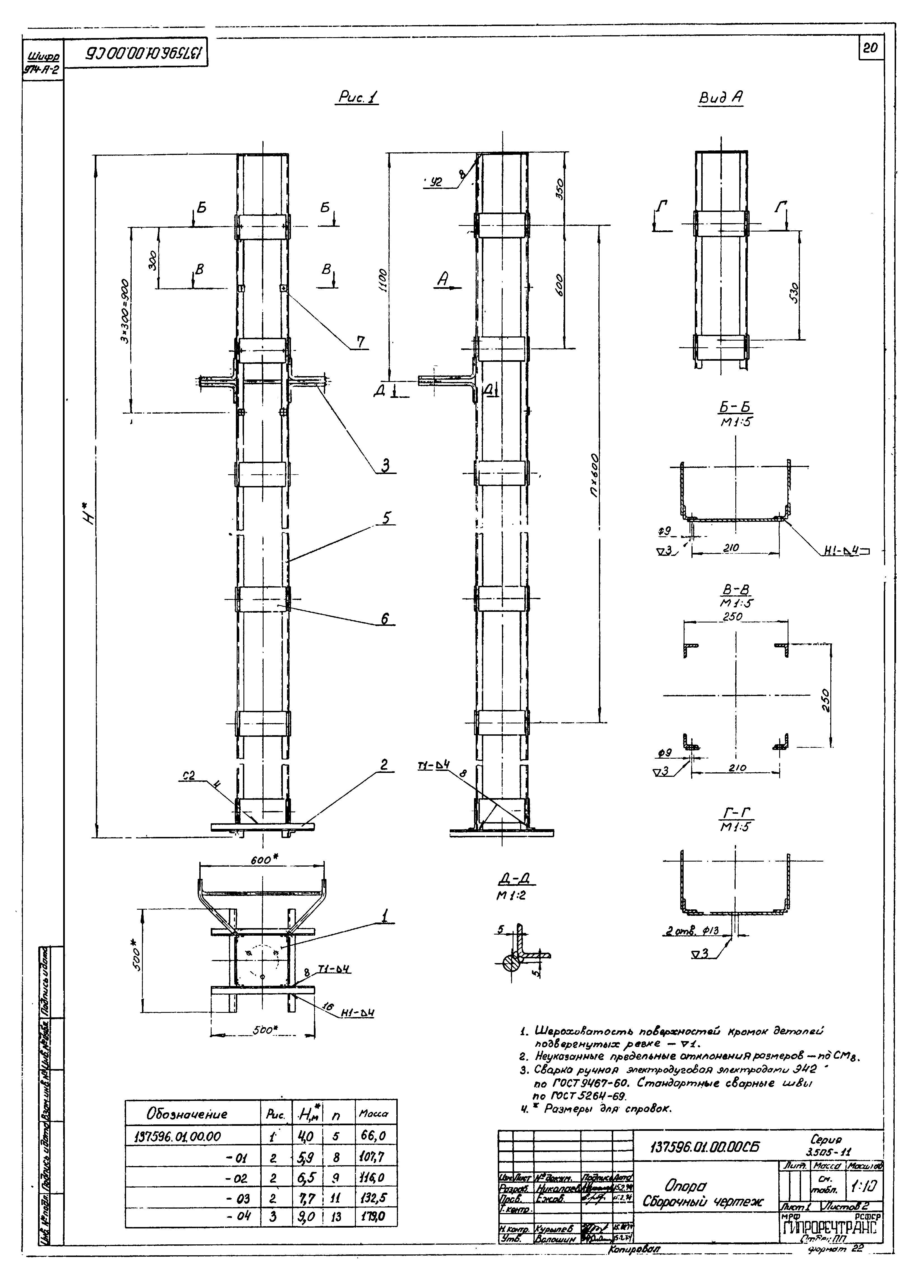
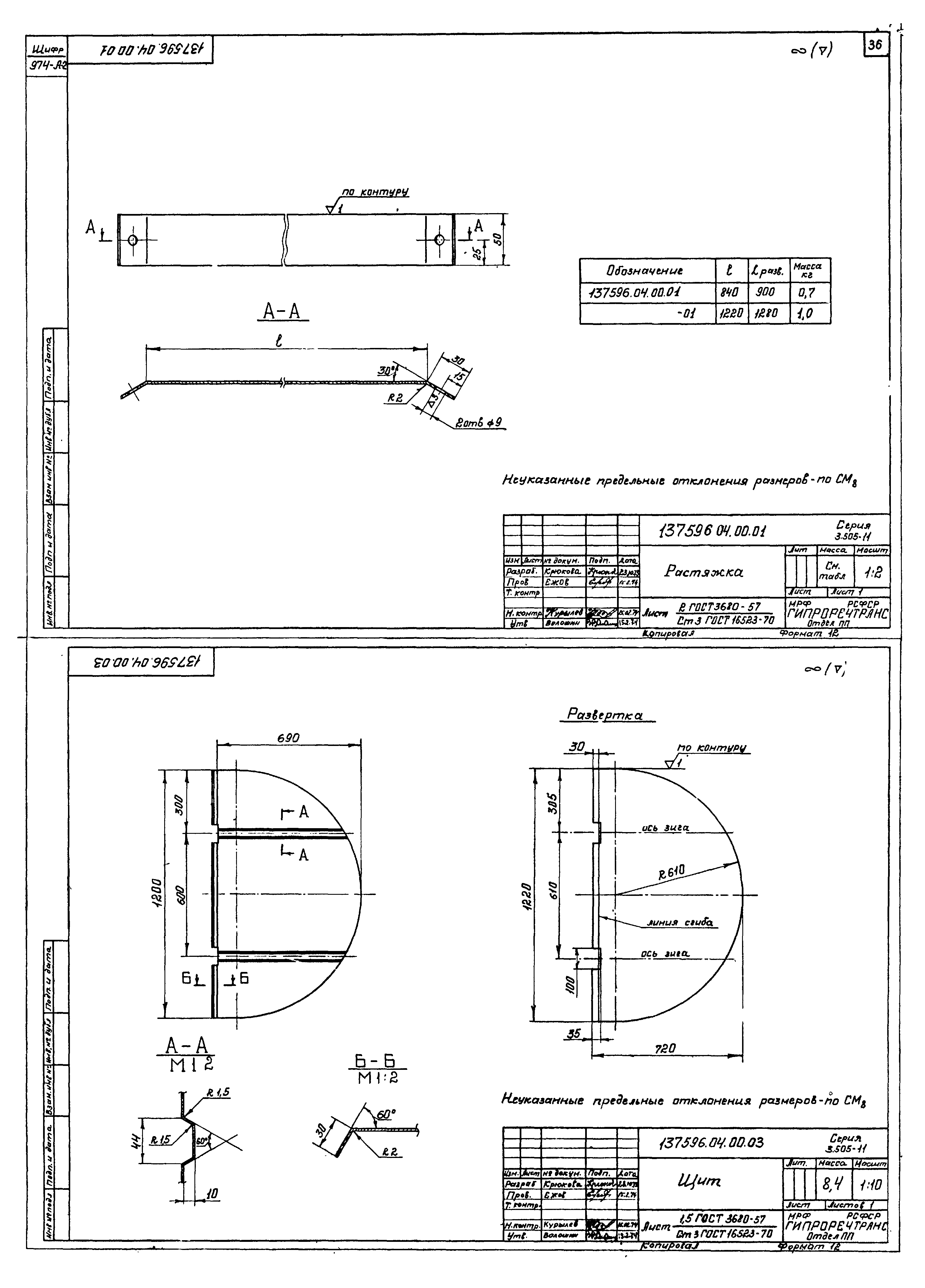
| Оглавление: | 137596ДС Содержание альбома II 137596ТБ Таблица подбора чертежей знаков по исполнениям 137596.00.00.00 Знак одноопорный (спецификация) 137596.00.00.00СБ Знак одноопорный. Сборочный чертеж 137596.00.00.01 Щит знака "Внимание" и рейдового 137596.00.00.02 Щит створного знака I 137596.00.00.03 Щит створного знака I 137596.00.00.04 Щит знака подводный и надводный переход, "Сигнал" 137596.01.00.00 Опора (спецификация) 137596.01.00.00СБ Опора. Сборочный чертеж 137596.01.00.01 Пластина 137596.01.00.09 Шайба 137596.01.01.00 Упор (спецификация) 137596.01.01.00СБ Упор. Сборочный чертеж 137596.01.02.00 Площадка (спецификация) 137596.01.01.01 Скоба 137596.01.01.02 Кронштейн 137596.01.02.00СБ Площадка. Сборочный чертеж 137596.01.02.01 Перила 137596.01.02.02 Кронштейн 137596.01.02.03 Кронштейн 137596.01.02.04 Связь 137596.02.00.00 Опора (спецификация) 137596.02.00.01 Площадка 137596.02.00.00СБ Опора. Сборочный чертеж 137596.02.00.05 Ребро 137596.02.00.06 Скоба 137596.02.01.00 Упор 137596.02.01.01 Кронштейн 137596.02.02.00 Площадка (спецификация) 137596.02.02.00СБ Площадка. Сборочный чертеж 137596.02.02.03 Основание 137596.02.02.01 Перила 137596.02.02.02 Кронштейн 137596.03.00.00 Щит перевального знака I (спецификация) 137596.03.00.01 Планка 137596.03.01.00 Связь (спецификация) 137596.03.00.00СБ Щит перевального знака I. Сборочный чертеж 137596.03.01.00СБ Связь. Сборочный чертеж 137596.03.01.01 Жесткость 137596.03.01.02 Планка 137596.04.00.00 Щит знака "Ориентир I" (спецификация) 137596.04.00.02 Щит 137596.04.00.00СБ Щит знака "Ориентир I". Сборочный чертеж 137596.04.00.01 Растяжка 137596.04.00.03 Щит 137596.04.00.04 Щит 137596.04.00.05 Щит 137596.05.00.00 Щит знака "Ориентир II" (спецификация) 137596.05.00.01 Щит 137596.05.00.00СБ Щит знака "Ориентир II". Сборочный чертеж 137596.05.00.02 Щит 137596.05.00.03 Щит 137596.05.00.04 Щит 137596.06.00.00 Щит ходового знака (спецификация) 137596.06.00.00СБ Щит ходового знака. Сборочный чертеж 137596.06.00.01 Щит 137596.06.00.02 Щит 137596.06.00.03 Щит 137596.06.00.04 Щит 137596.06.00.05 Щит 137596.06.00.06 Щит 137596.07.00.00 Полка 137596.07.00.01 Пластина 137596.07.00.02 Ребро 137596.08.00.00 Полка (спецификация) 137596.08.00.00СБ Полка. Сборочный чертеж 137596.08.00.01 Пластина 137596.08.00.02 Кронштейн 137596.09.00.00 Полка 137596.09.00.01 Пластина 137596 ДВМ Знак одноопорный. Ведомость заказа материалов |
| Разработан: | Гипроречтранс |
| Утверждён: | 28.03.1974 Министерство речного флота РСФСР |
| Чем заменён: |
|

















































