Скачать Серия 3.505-11 Выпуск 2. Альбом IV. Стальные конструкции. Створные знаки III с опорой сечением 0,8х0,8 мДата актуализации: 01.01.2021
|
| Обозначение: | Серия 3.505-11 |
| Обозначение англ: | Series 3.505-11 |
| Статус: | не действует |
| Название рус.: | Выпуск 2. Альбом IV. Стальные конструкции. Створные знаки III с опорой сечением 0,8х0,8 м |
| Дата добавления в базу: | 01.09.2013 |
| Дата актуализации: | 01.01.2021 |
| Дата введения: | 29.03.1974 |
| Дата окончания срока действия: | 01.09.1981 |
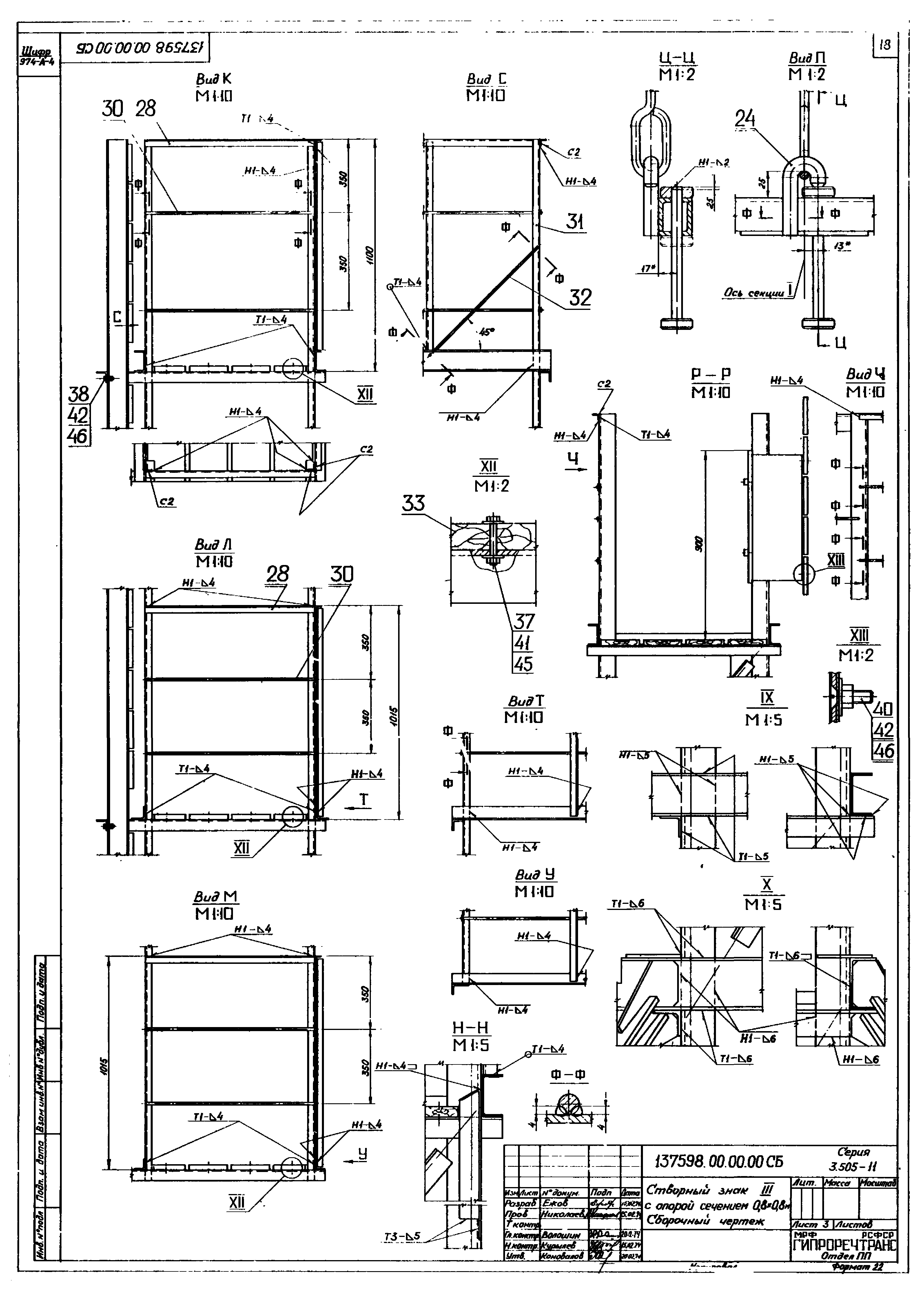
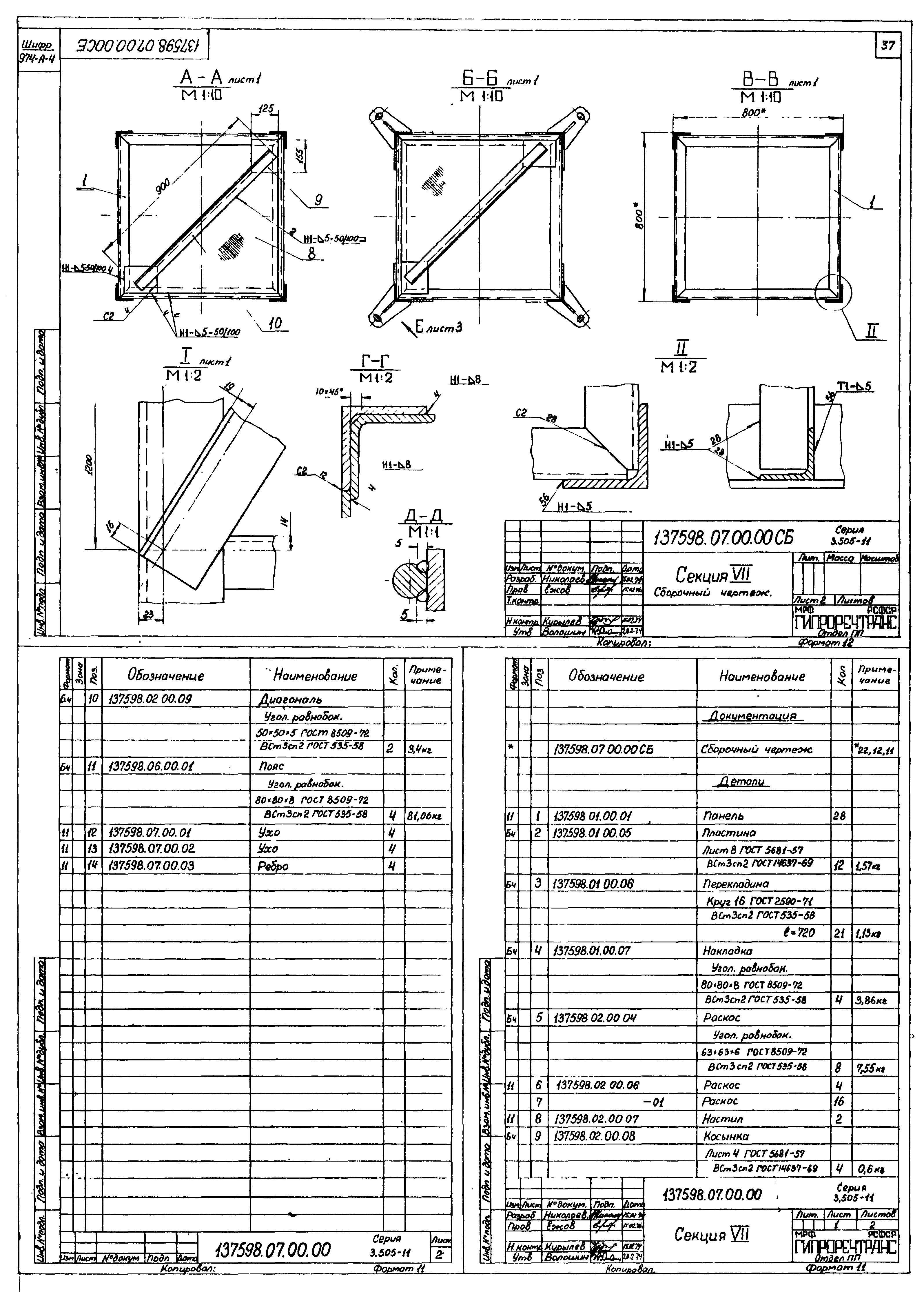
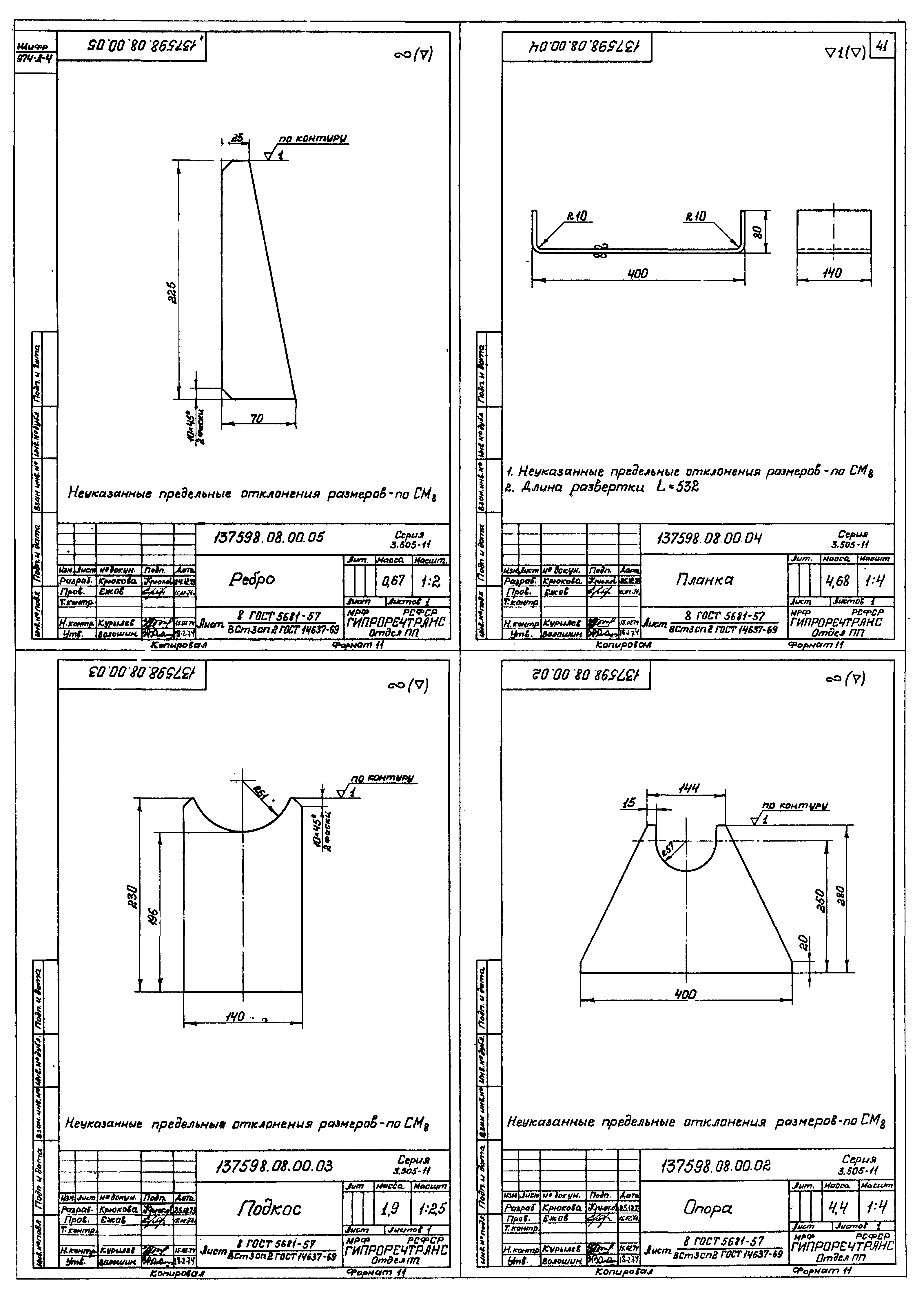
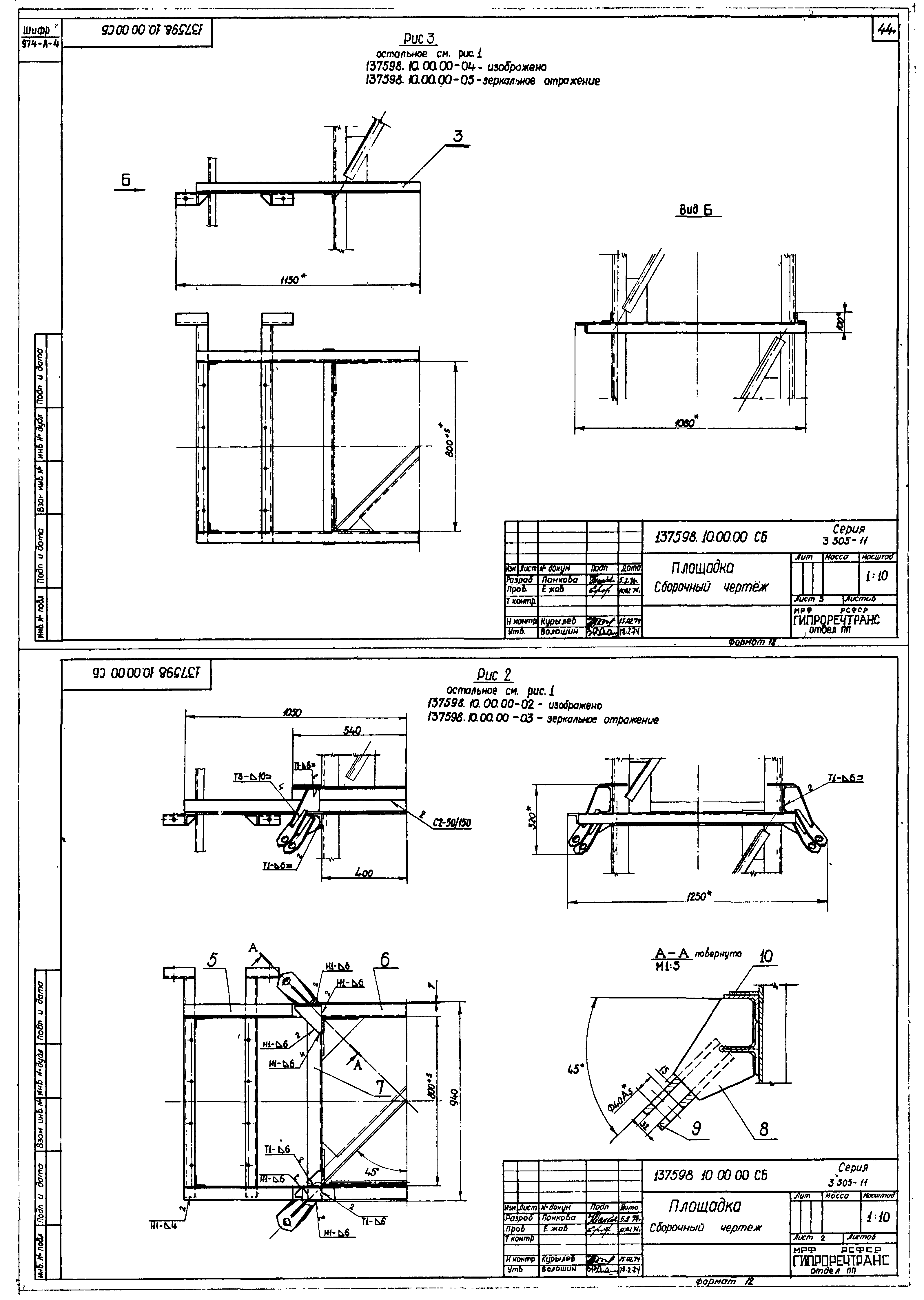
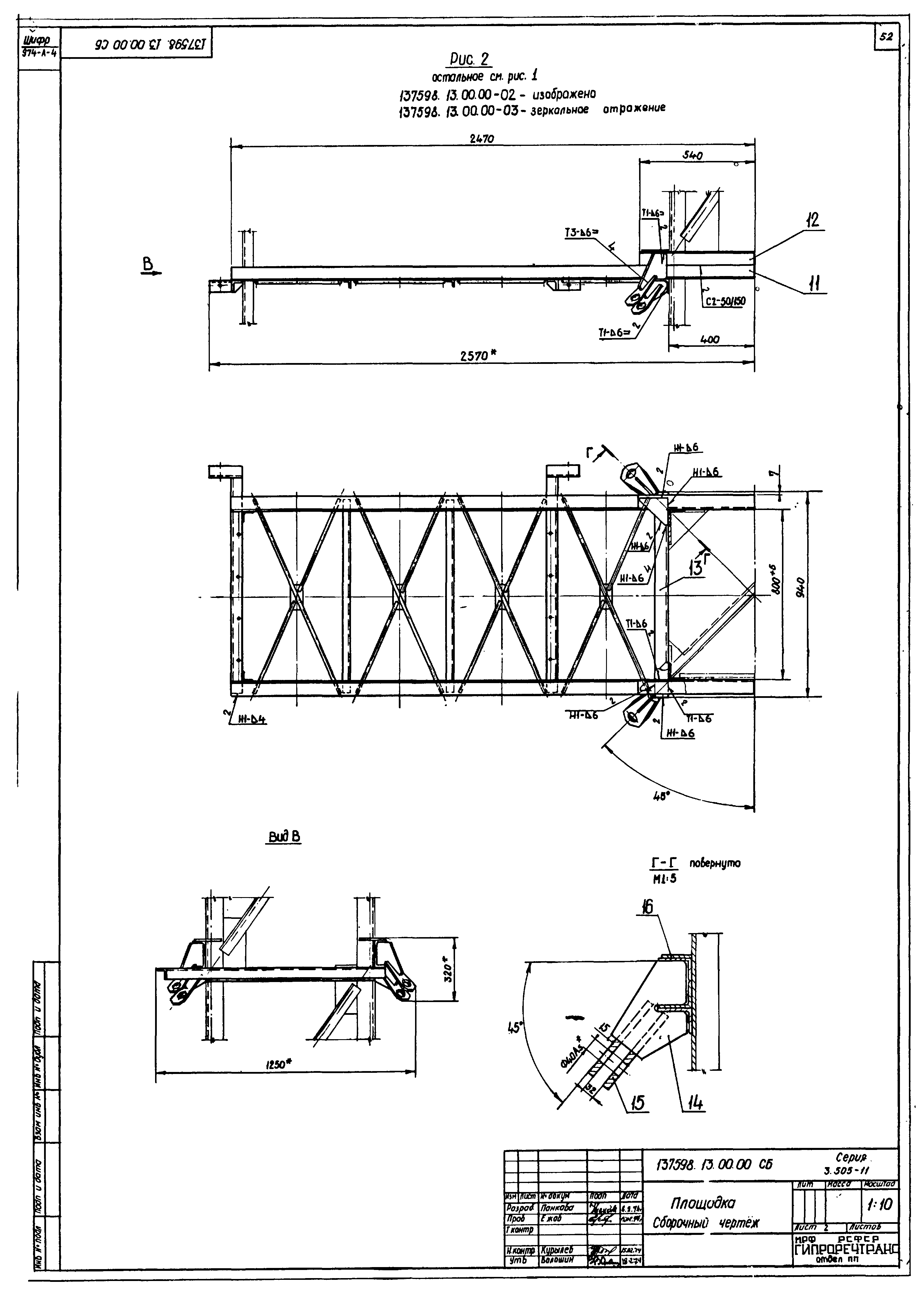
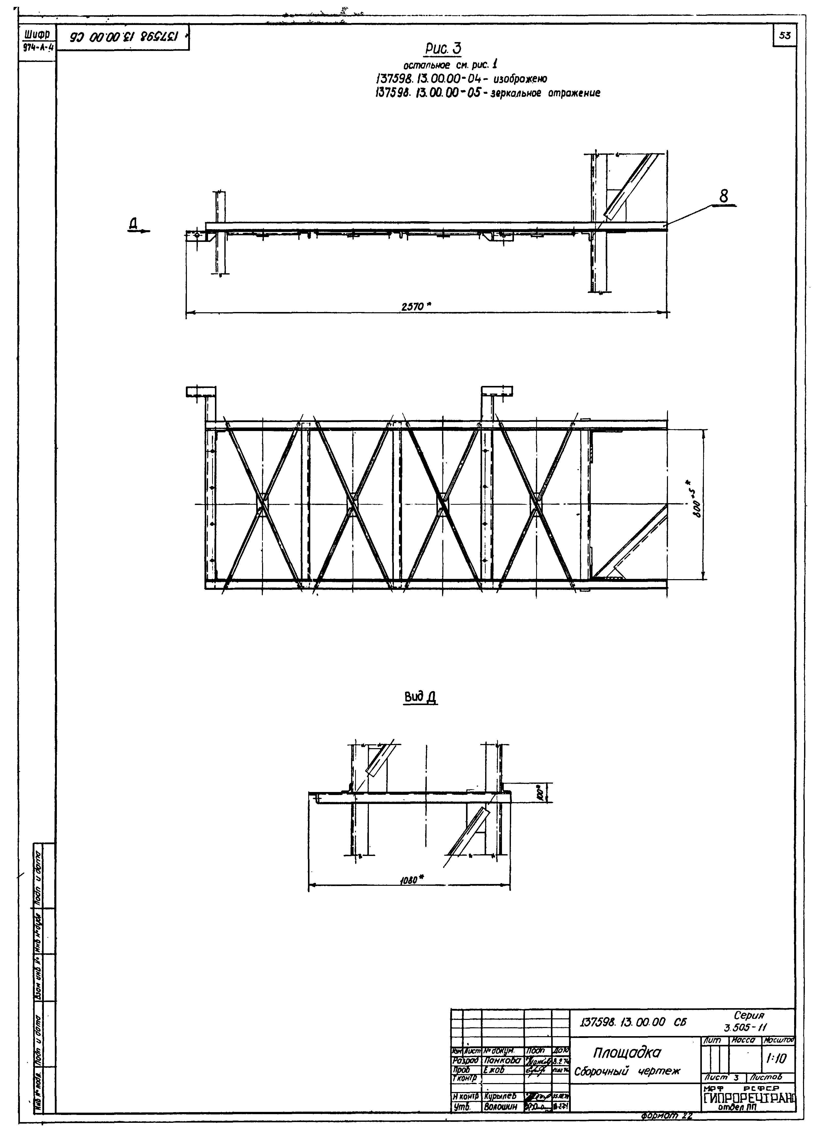
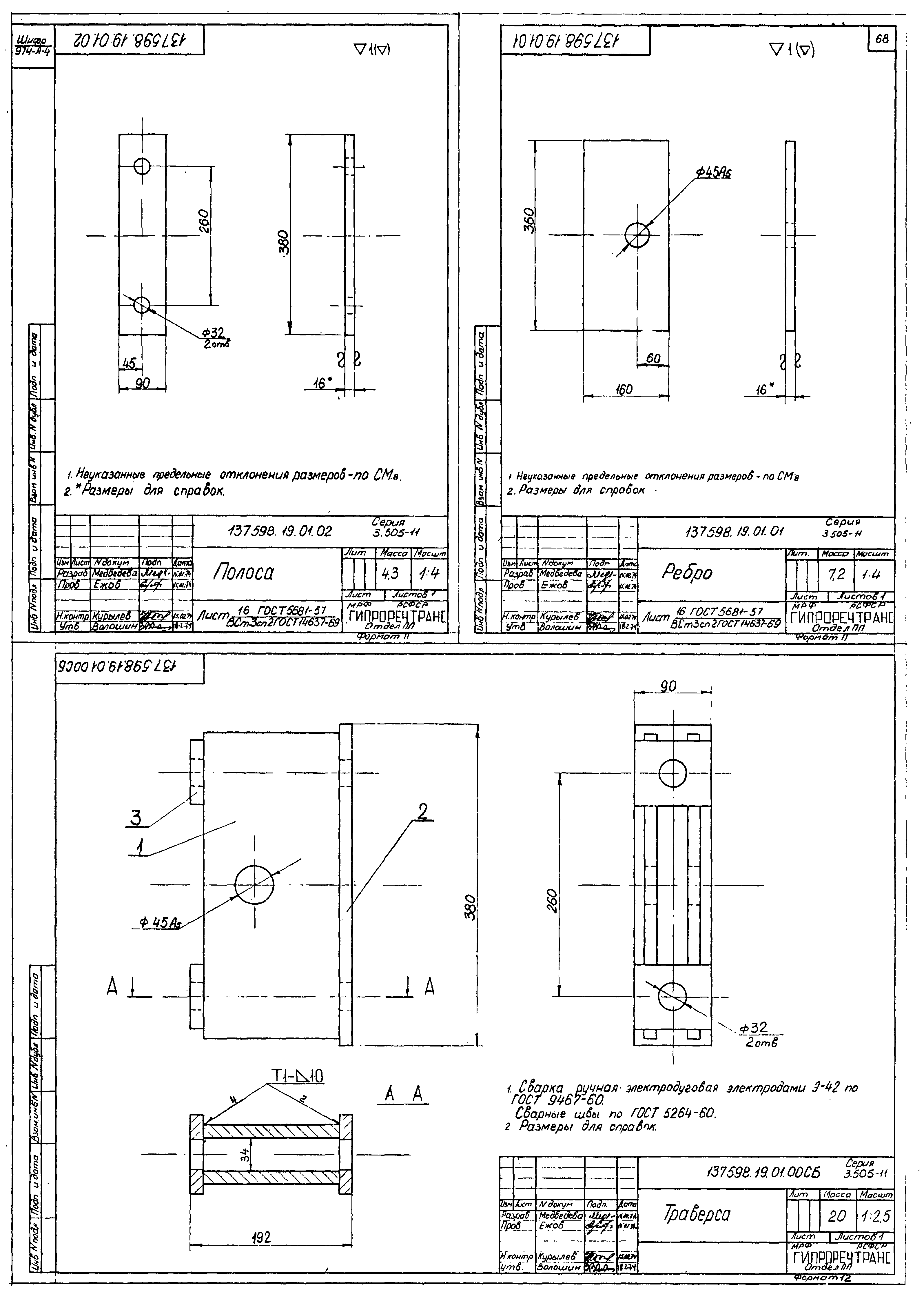
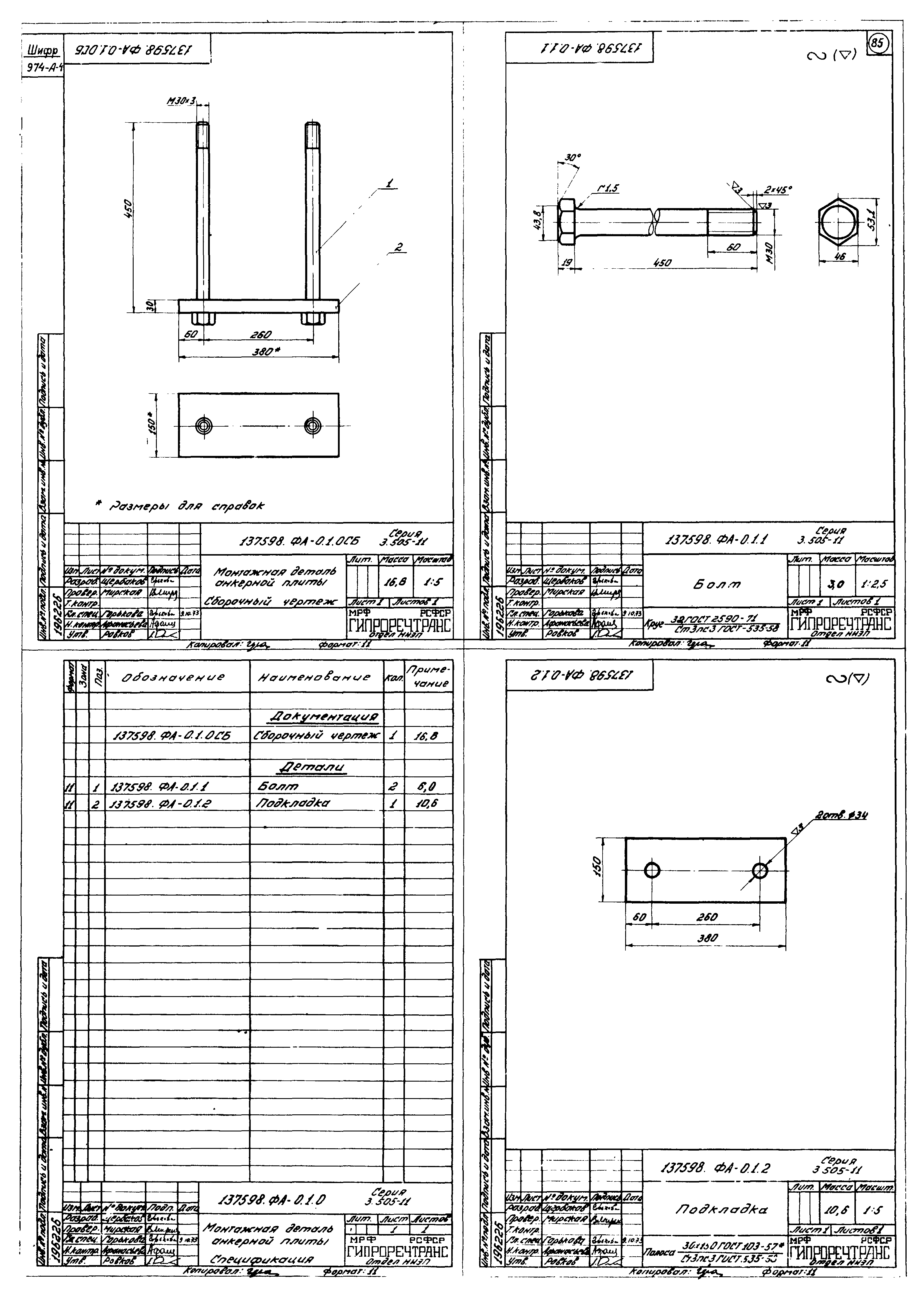
| Оглавление: | 137598ДС Содержание альбома IV 137598ТБ Таблица подбора чертежей знаков по исполнениям 137598.00.00.00 Створный знак III с опорой 0,8х0,8 м (спецификация) 137598.00.00.00СБ Створный знак III с опорой 0,8х0,8 м. Сборочный чертеж 137598.01.00.00 Секция I (спецификация) 137598.01.00.01 Панель 137598.01.00.00СБ Секция I. Сборочный чертеж 137598.01.00.02 Диафрагма 137598.01.00.03 Настил 137598.01.00.08 Ось 137598.01.00.09 Шайба 137598.01.00.10 Консоль 137598.01.00.11 Плита 137598.01.00.12 Диафрагма 137598.01.00.13 Перила 137598.02.00.00 Секция II (спецификация) 137598.02.00.01 Раскос 137598.02.00.00СБ Секция II. Сборочный чертеж 137598.02.00.07 Настил 137598.03.00.00 Секция III (спецификация) 137598.03.00.02 Ребро 137598.03.00.03 Ребро 137598.03.00.00СБ Секция III. Сборочный чертеж 137598.03.00.04 Ребро 137598.03.00.05 Ребро 137598.03.00.06 Панель 137598.03.00.07 Щека 137598.03.00.08 Ребро 137598.03.00.09 Ребро 137598.03.00.10 Скоба 137598.03.00.11 Ложемент 137598.04.00.00 Секция IV (спецификация) 137598.05.00.00 Секция V (спецификация) 137598.04.00.00СБ Секция IV. Сборочный чертеж 137598.05.00.00СБ Секция V. Сборочный чертеж 137598.06.00.00 Секция VI (спецификация) 137598.06.00.00СБ Секция VI. Сборочный чертеж 137598.07.00.00 Секция VII (спецификация) 137598.07.00.00СБ Секция VII. Сборочный чертеж 137598.07.00.01 Ухо 137598.07.00.02 Ухо 137598.07.00.03 Ребро 137598.08.00.00 Подпятник (спецификация) 137598.08.00.00СБ Подпятник. Сборочный чертеж 137598.08.00.01 Ложемент 137598.08.00.02 Опора 137598.08.00.03 Подкос 137598.08.00.04 Планка 137598.08.00.05 Ребро 137598.09.00.00 Крестовина (спецификация) 137598.09.00.00СБ Крестовина. Сборочный чертеж 137598.09.00.01 Скоба 137598.10.00.00 Площадка (спецификация) 137598.10.00.00СБ Площадка. Сборочный чертеж 137598.10.00.01 Кронштейн 137598.10.00.07 Ребро 137598.10.00.08 Ухо 137598.10.00.09 Косынка 137598.11.00.00 Площадка (спецификация) 137598.11.00.00СБ Площадка. Сборочный чертеж 137598.12.00.00 Площадка (спецификация) 137598.12.00.03 Подкос 137598.12.00.00СБ Площадка. Сборочный чертеж 137598.13.00.00 Площадка (спецификация) 137598.13.00.00СБ Площадка. Сборочный чертеж 137598.14.00.00 Перила (спецификация) 137598.14.00.00СБ Перила. Сборочный чертеж 137598.17.00.00 Оттяжка (спецификация) 137598.15.00.00 Секция щита (спецификация) 137598.15.00.01 Панель 137598.15.00.00СБ Секция щита. Сборочный чертеж 137598.15.01.00 Связь (спецификация) 137598.15.01.00СБ Связь. Сборочный чертеж 137598.16.00.00 Секция щита (спецификация) 137598.16.00.01 Панель 137598.16.01.00 Связь (спецификация) 137598.16.00.00СБ Секция щита. Сборочный чертеж 137598.16.01.00СБ Связь. Сборочный чертеж 137598.17.00.00СБ Оттяжка. Сборочный чертеж 137598.17.01.00 Муфта (спецификация) 137598.17.01.00СБ Муфта. Сборочный чертеж 137598.17.01.01 Гайка 137598.17.02.00 Вилка 137598.17.02.01 Скоба 137598.17.02.02 Шпилька 137598.18.00.00 Оттяжка (спецификация) 137598.18.00.00СБ Оттяжка. Сборочный чертеж 137598.19.00.00 Тяга анкерная (спецификация) 137598.19.00.00СБ Тяга анкерная. Сборочный чертеж 137598.19.00.01 Серьга 137598.19.01.00 Траверса (спецификация) 137598.19.01.00СБ Траверса. Сборочный чертеж 137598.19.01.01 Ребро 137598.19.01.02 Полоса 137598.19.01.03 Шайба 137598.19.02.00 Тяга (спецификация) 137598.19.02.00СБ Тяга. Сборочный чертеж 137598.19.02.01 Серьга 137598.19.02.04 Серьга 137598.19.03.00 Тяга 137598.19.03.01 Серьга 137598 ДВМ Створный знак III с опорой 0,8х0,8 м. Ведомость заказа материалов 137598.Ф-ОН Фундаменты и анкерные плиты. Номенклатура. Таблица применения 137598.Ф-ООВ Фундаменты и анкерные плиты. Общий вид. Объемы работ 137598.Ф-4.0.0СБ Фундамент 137598.Ф-5.0.0СБ Фундамент 137598.Ф-6.0.0СБ Фундамент 137598.Ф-7.0.0СБ Фундамент 137598.Ф-8.0.0СБ Фундамент 137598.ФА-2.0.0СБ Анкерная плита 137598.ФА-3.0.0СБ Анкерная плита 137598.Ф-0.1.0 Закладная деталь фундамента (спецификация) 137598.Ф-0.1.0СБ Закладная деталь фундамента. Сборочный чертеж 137598.Ф-0.1.1 Анкерный болт 137598.Ф-0.1.2 Рамка 137598.ФА-0.1.0 Монтажная деталь анкерной плиты (спецификация) 137598.ФА-0.1.0СБ Монтажная деталь анкерной плиты. Сборочный чертеж 137598.ФА-0.1.1 Болт 137598.ФА-0.1.2 Подкладка |
| Разработан: | Гипроречтранс |
| Утверждён: | 28.03.1974 Министерство речного флота РСФСР |
| Чем заменён: |
|






















































































