Скачать Типовой проект 903-4-10 Альбом II. Архитектурно-строительная часть - вариант БДата актуализации: 01.01.2021
|
| Обозначение: | Типовой проект 903-4-10 |
| Обозначение англ: | 903-4-10 |
| Статус: | не действует |
| Название рус.: | Альбом II. Архитектурно-строительная часть - вариант Б |
| Дата добавления в базу: | 01.09.2013 |
| Дата актуализации: | 01.01.2021 |
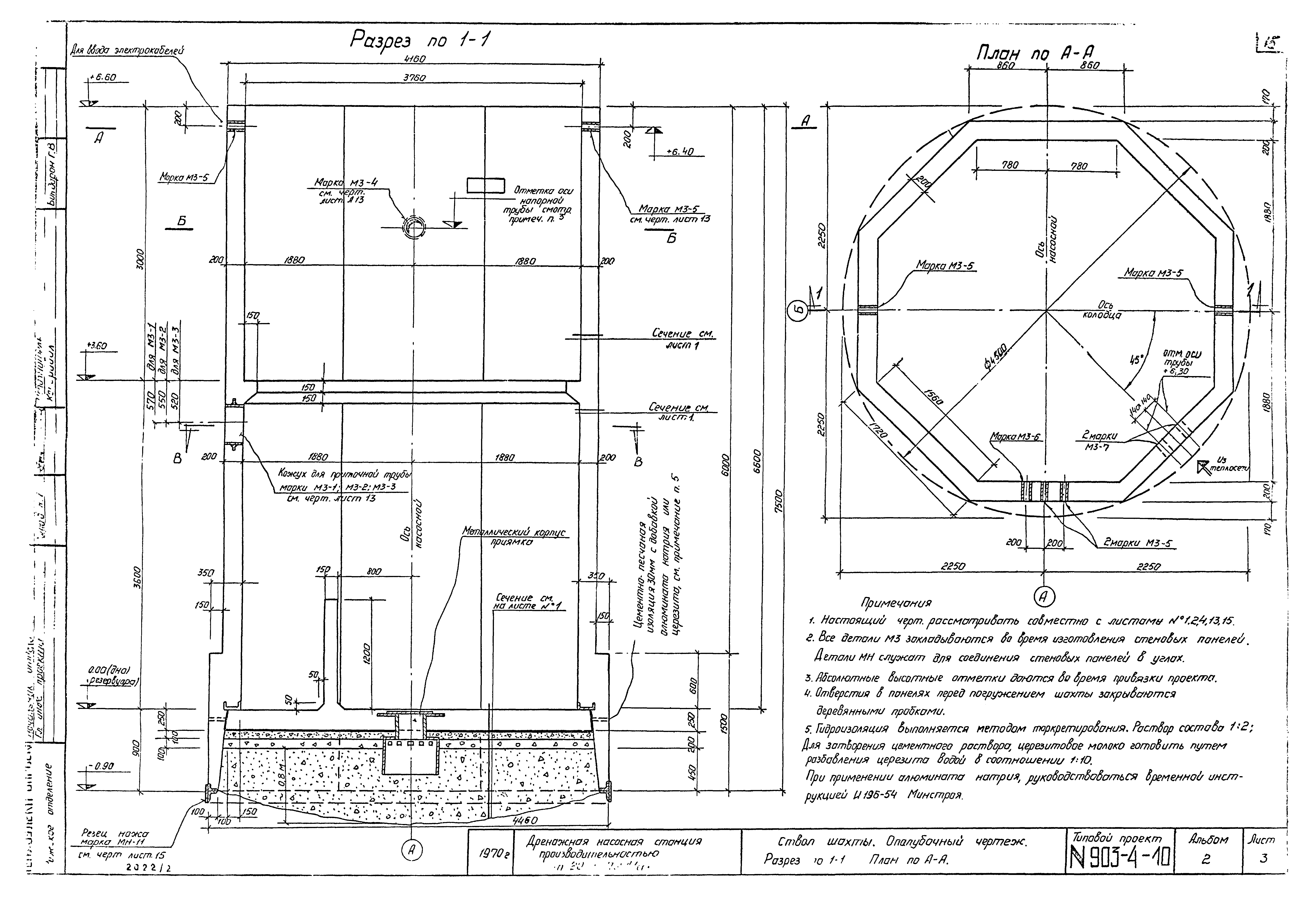
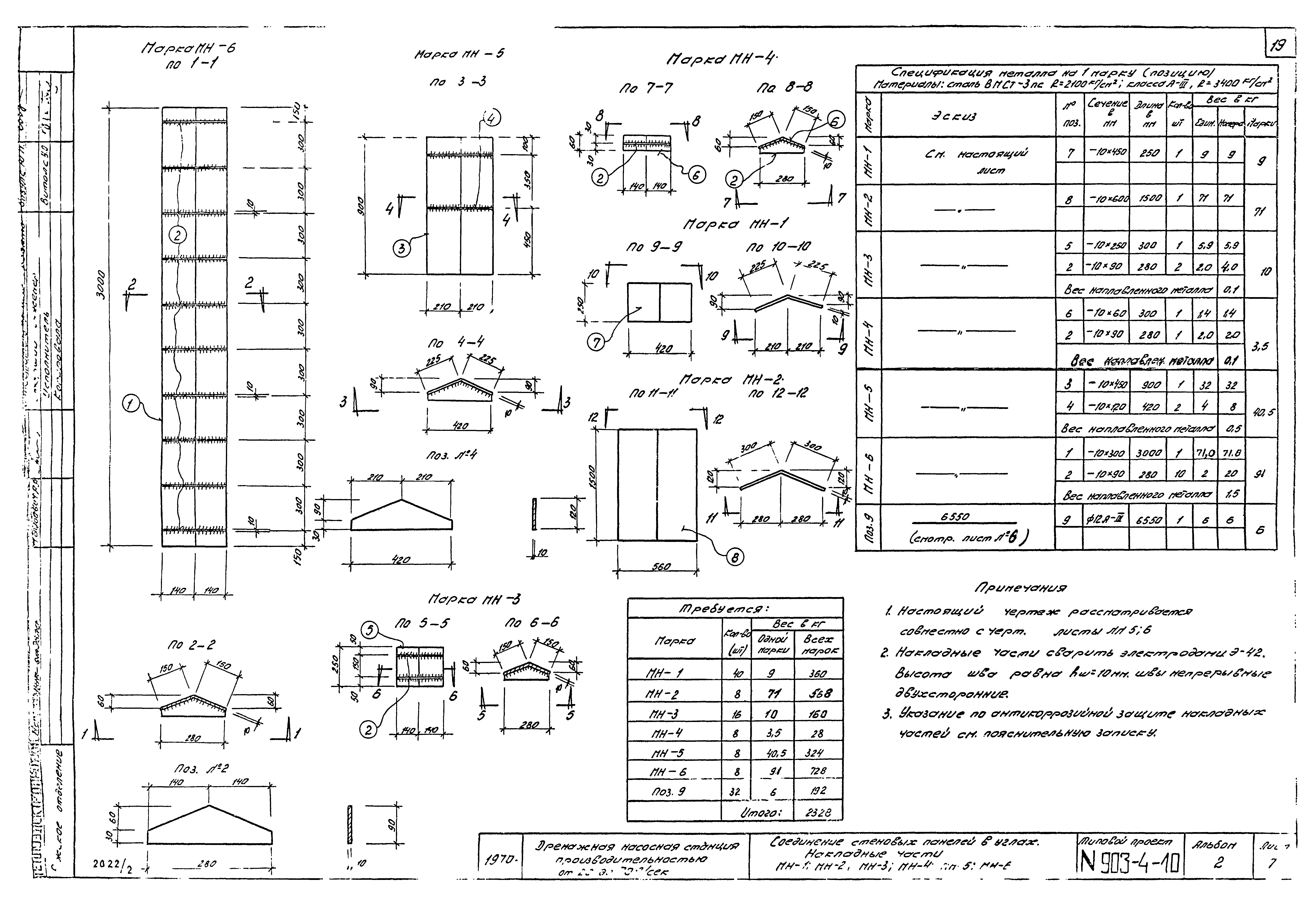
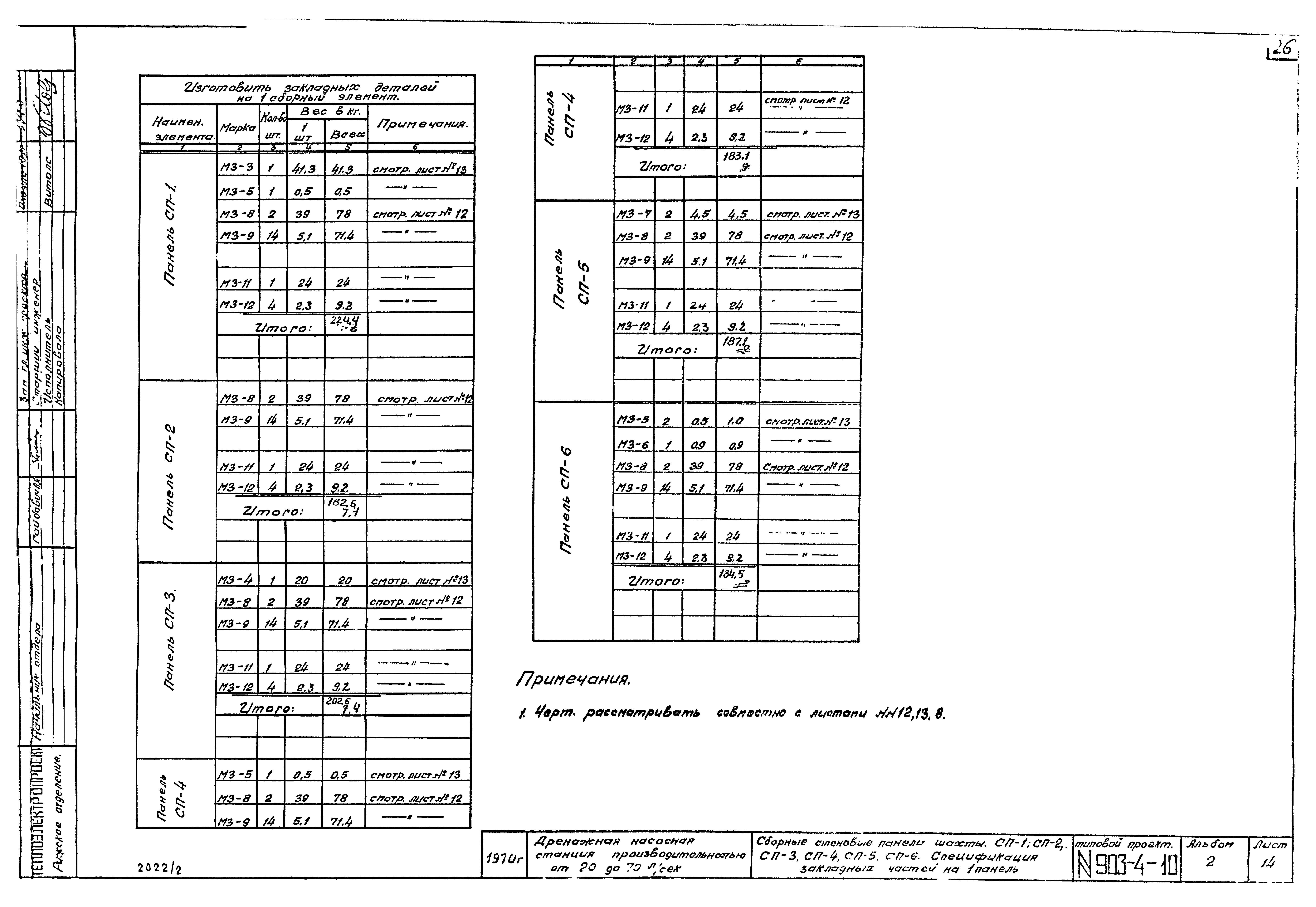
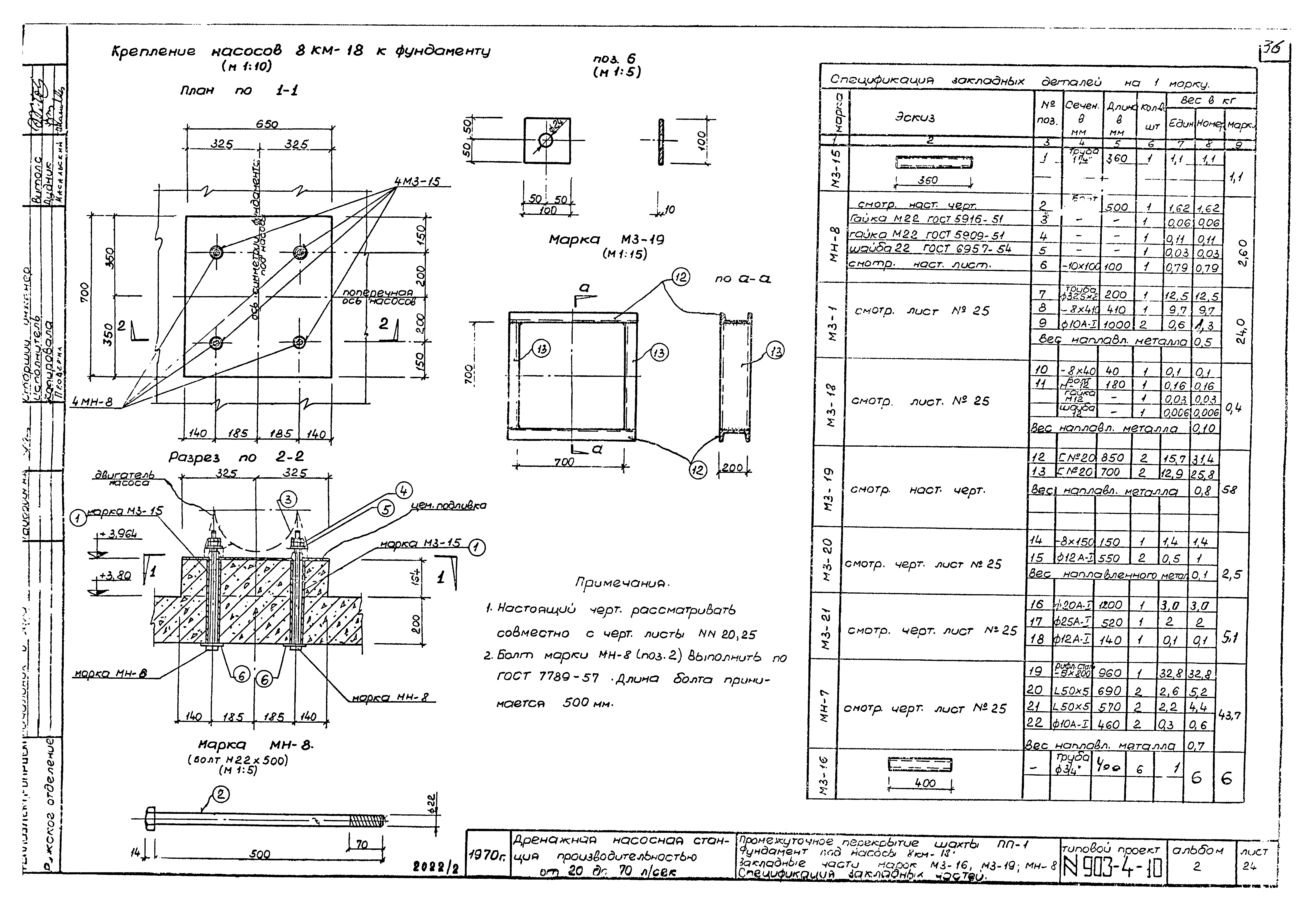
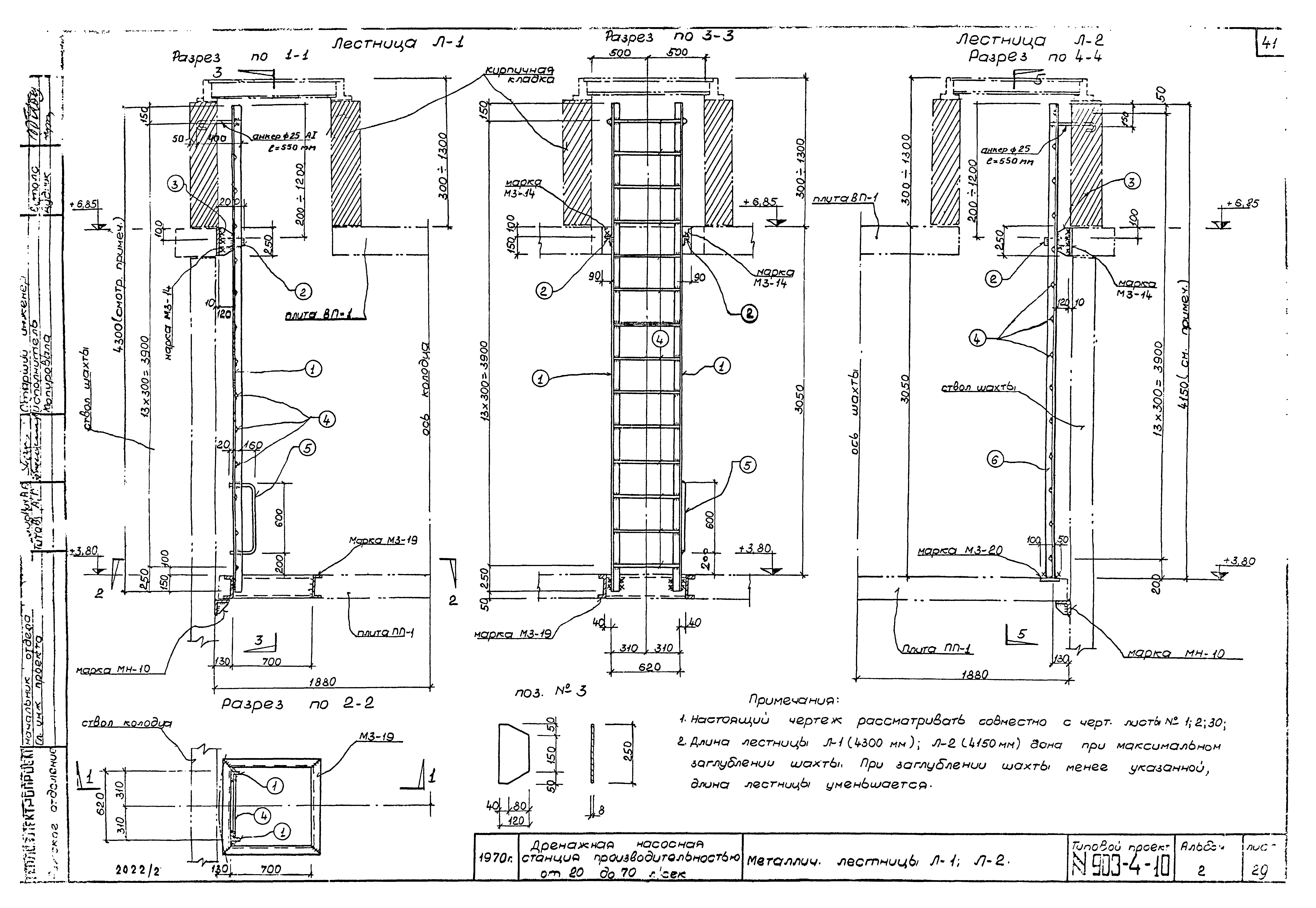
| Оглавление: | Заглавный лист Содержание альбома и перечень примененных стандартов и типовых чертежей Пояснительная записка Вариант Б Подземная сборная станция. Общий вид. Разрезы по 1-1, по 2-2 Подземная сборная станция. Общий вид. Планы по 3-3, по 4-4, по 5-5 Ствол шахты. Опалубочный чертеж. Разрез по 1-1. План по А-А Опалубочный чертеж ствола шахты. План по Б-Б, по В-В Маркировка стеновых панелей ствола. План. Соединение стеновых панелей в углах Соединение стеновых панелей в углах Соединение стеновых панелей в углах. Накладные части МН-1, МН-2, МН-3, МН-4, МН-5, МН-6 Сборные стеновые панели шахты. Опалубка панелей СП-1, СП-2, СП-3, СП-4, СП-5, СП-6 Сборные стеновые панели шахты СП-1, СП-2, СП-3, СП-4, СП-5, СП-6. Армирование Сборные стеновые панели шахты. Арматурные каркасы К-1, К-2, К-3, К-4. Узлы "1" и "2" Сборные стеновые панели шахты СП-1, СП-2, СП-3, СП-4, СП-5, СП-6. Спецификация арматуры. Выборка стали. Расход железобетона Сборные стеновые панели шахты. Закладные детали М3-8, М3-9, М3-10, М3-11, М3-12. Спецификация закладных деталей Сборные стеновые панели шахты. Сальники для ввода труб и кабелей чрез стеновые панели. Марки М3-1, М3-2, М3-3, М3-4, М3-5, М3-6, М3-7 Сборные стеновые панели шахты СП-1, СП-2, СП-3, СП-4, СП-5, СП-6. Спецификация закладных частей на одну панель Резец ножа, марка МН-11. Спецификация и разрезы Армирование консоли стеновых блоков СП-1 - СП-6. Спецификация арматуры Верхнее перекрытие шахты ВП-1. Арматурно-опалубочный чертеж Верхнее перекрытие шахты ВП-1. Спецификация арматуры Верхнее перекрытие шахты ВП-1. Объемы работ. Спецификация закладных частей М3-17, М3-13, М3-14 Промежуточное перекрытие шахты ПП-1. Арматурно-опалубочный чертеж Промежуточное перекрытие шахты ПП-1. Арматурно-опалубочный чертеж. Раскладка каркасов К-1, К-2. Спецификация арматуры Промежуточное перекрытие шахты ПП-1. Спецификация арматуры. Расход материалов Промежуточное перекрытие шахты ПП-1. Фундамент под насосы 6км-12к Промежуточное перекрытие шахты ПП-1. Фундамент под насосы 8км-18. Закладные части марок М3-16, М3-19, МН-8. Спецификация закладных частей Промежуточное перекрытие шахты ПП-1. Закладные части марок М3-17, М3-18, М3-20, М3-21, МН-7 Плита днища шахты ПД-1. Арматурно-опалубочный чертеж Плита днища шахты ПД-1. Спецификация арматуры и закладных деталей, расход материалов Плита днища шахты ПД-1. Металлический корпус приямка Металлические лестницы Л-1, Л-2 Металлические лестницы Л-1, Л-2, Л-3. Спецификация металла Сводная ведомость на металл и сборный железобетон Объемы работ Проект производства работ Металлический кондуктор МК для сборки блоков опускного колодца Детали, узлы форшахты и инъекционных труб сборного опускного колодца Монтаж и замоноличивание швов сборного опускного колодца Опорное кольцо Календарный план производства работ |
| Разработан: | Теплоэлектропроект |
| Утверждён: | 29.12.1971 Минэнерго СССР (USSR Minenergo 409) |
















































