Скачать Типовой проект 503-9-24.88 Альбом I. Пояснительная записка. Технология производства. Конструкции железобетонные. Конструкции металлическиеДата актуализации: 01.01.2021
|
| Обозначение: | Типовой проект 503-9-24.88 |
| Обозначение англ: | 503-9-24.88 |
| Статус: | не определен законодательством |
| Название рус.: | Альбом I. Пояснительная записка. Технология производства. Конструкции железобетонные. Конструкции металлические |
| Дата добавления в базу: | 01.09.2013 |
| Дата актуализации: | 01.01.2021 |
| Дата введения: | 20.01.1989 |
| Дата окончания срока действия: | 30.06.2003 |
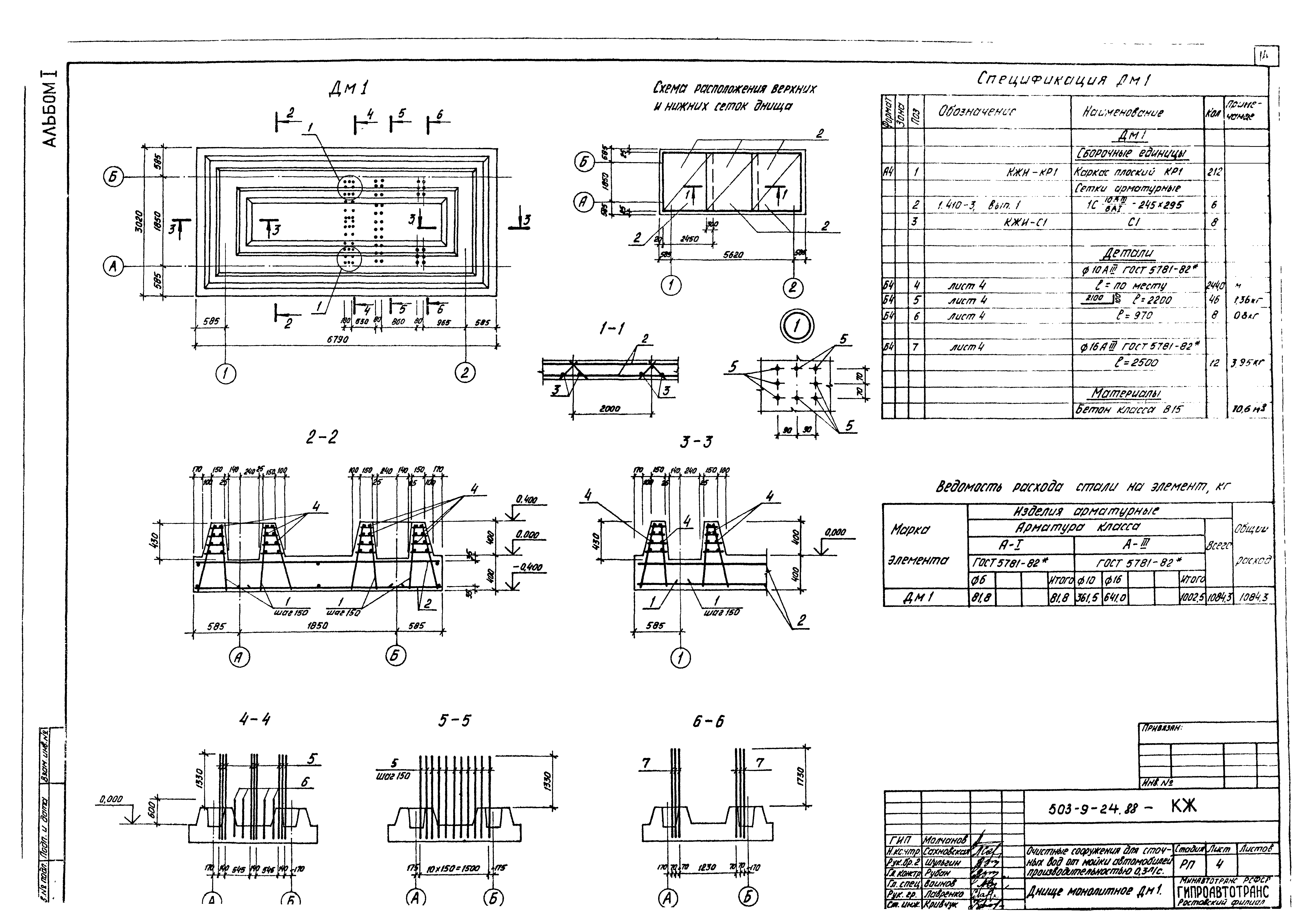
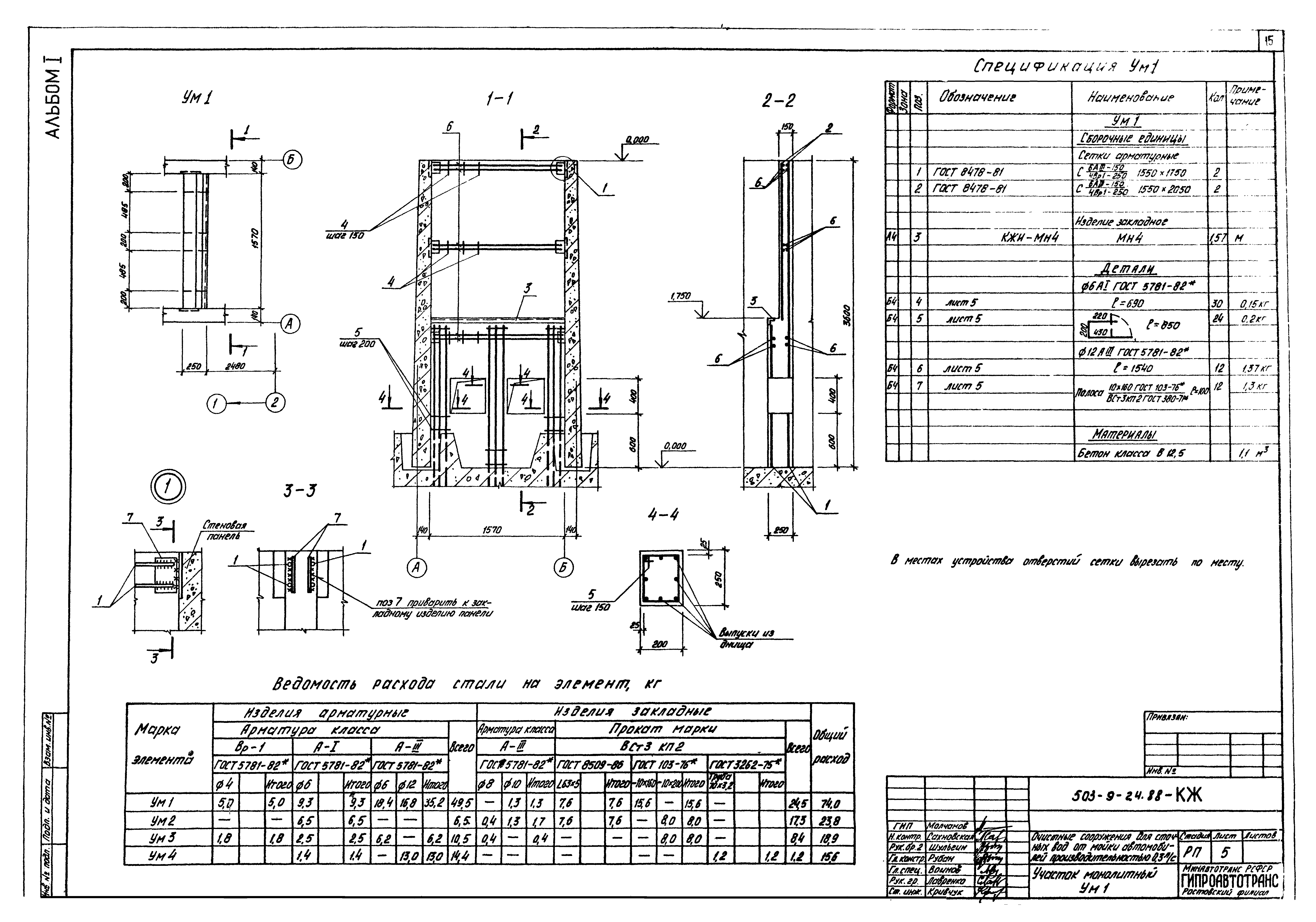
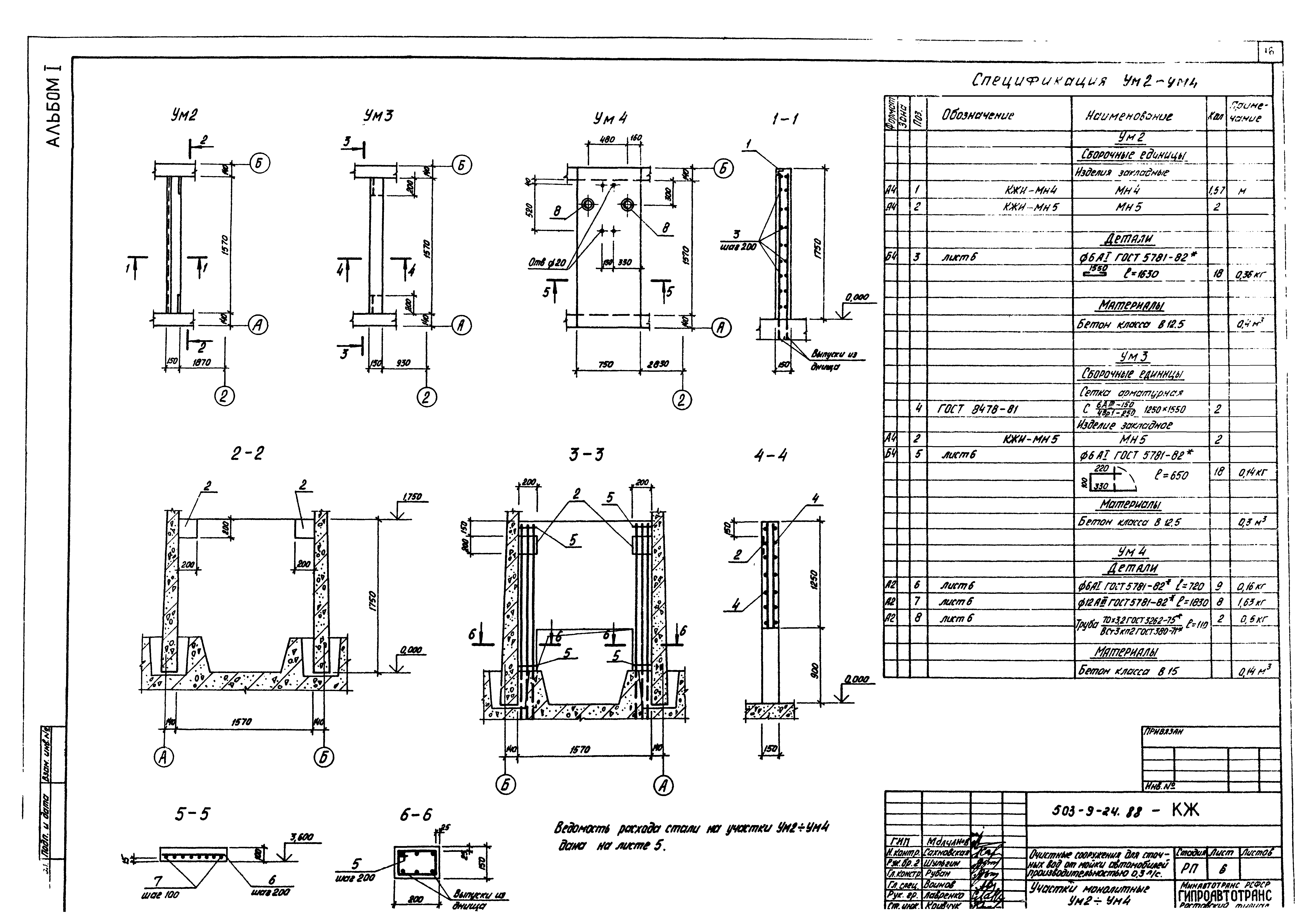
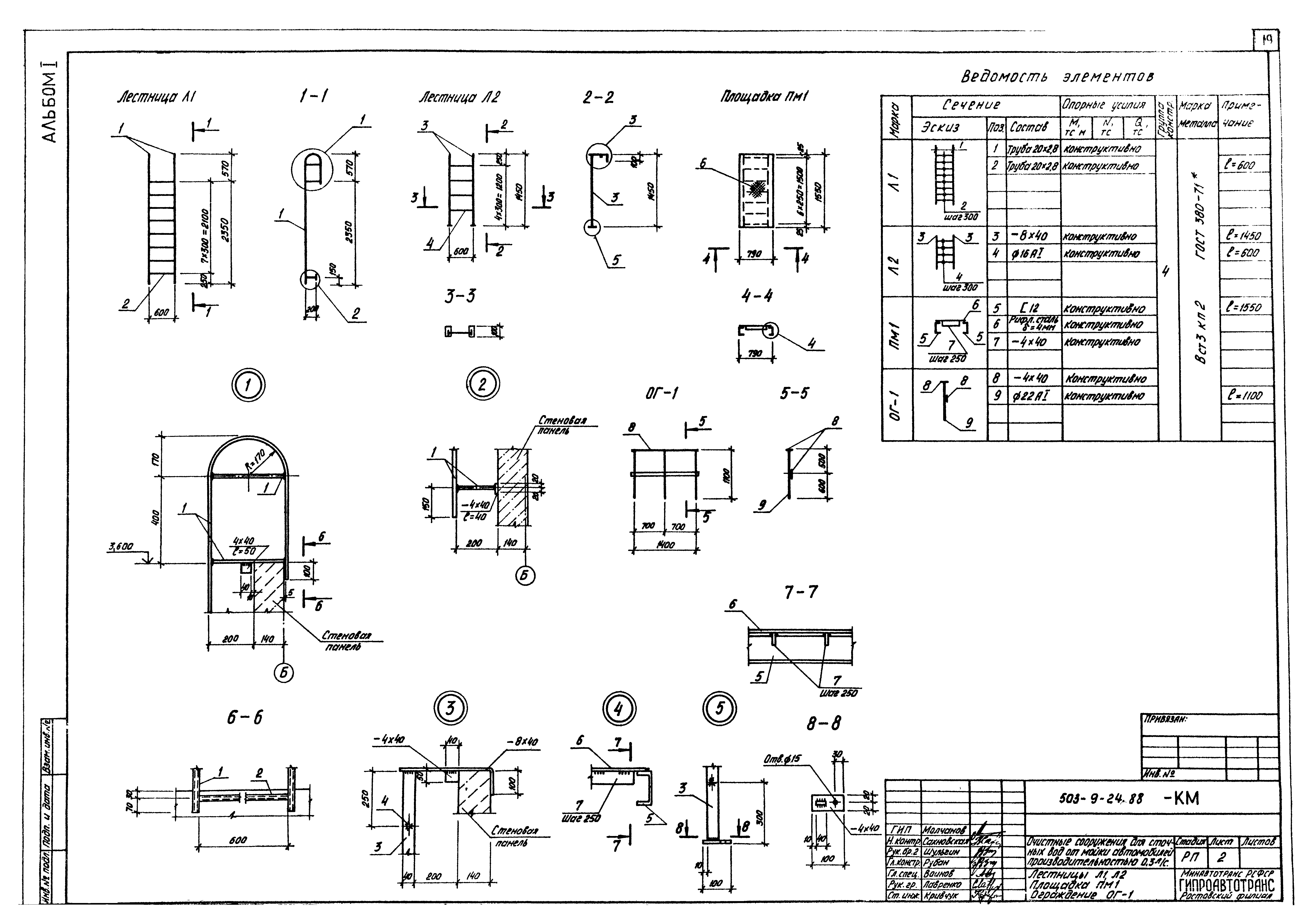
| Оглавление: | Пояснительная записка Чертежи марки ТХ Общие данные Схема расположения очистных сооружений в системе оборотного водоснабжения от мойки автомобилей. Технологическая схема очистки сточной воды План на отм. 0.000. Разрезы 1-1, 2-2, 3-3, 4-4 Чертежи марки КЖ Общие данные Схема расположения элементов очистных сооружений. Узел 1 Узел 2 - 7. Сечения 6-6 - 12-12 Днище монолитное ДМ1 Участок монолитный УМ1 Участки монолитные УМ2 - УМ4 Схема расположения элементов водозаборной камеры и резервуара для сбора нефтепродуктов Чертежи марки КМ Общие данные Лестницы Л1, Л2. Площадка ПМ1, ограждение ОГ1 Чертежи марки КЖИ Панели стен ПС1, ПС2 Панели стен ПС3, ПС4 Изделие закладное МН1 Изделие закладное МН2 Изделие закладное МН3 Изделие закладное МН4 Изделие закладное МН5 Изделие закладное МН6 Изделие закладное МН7 Изделие закладное МН8 Сетка арматурная С1 Каркас плоский КР1 Щит деревянный ЩД1 Щит деревянный ЩД2 Решетка Р-1 |
| Разработан: | Гипроавтотранс |
| Утверждён: | 20.01.1989 Минавтотранс РСФСР (Russian Federation Minavtotrans 1) |

























