Скачать Типовой проект 901-6-67.83 Альбом VI. Строительные узлы. Строительные изделияДата актуализации: 01.01.2021
|
| Обозначение: | Типовой проект 901-6-67.83 |
| Обозначение англ: | 901-6-67.83 |
| Статус: | действует |
| Название рус.: | Альбом VI. Строительные узлы. Строительные изделия |
| Дата добавления в базу: | 01.09.2013 |
| Дата актуализации: | 01.01.2021 |
| Дата введения: | 02.11.1983 |
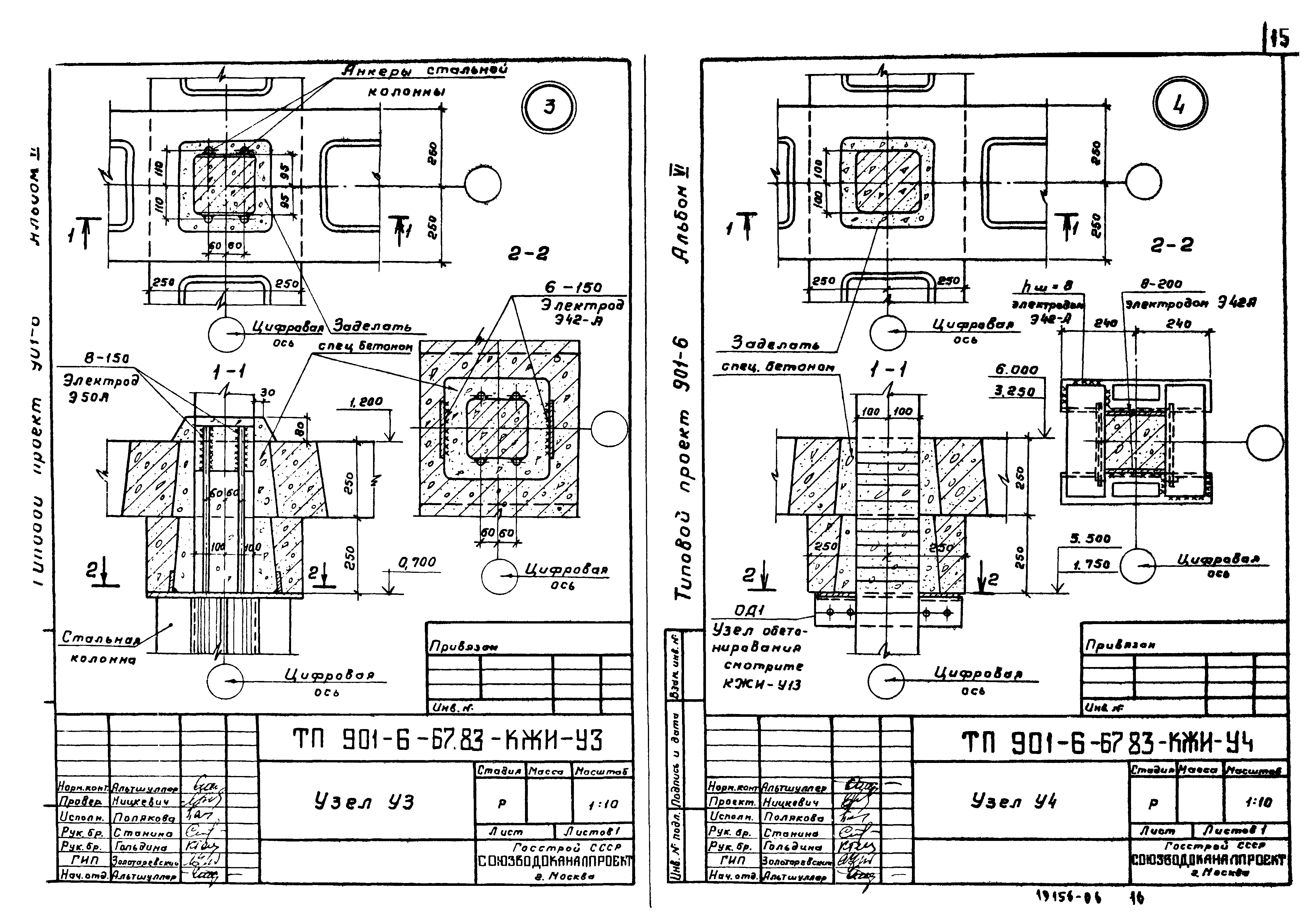
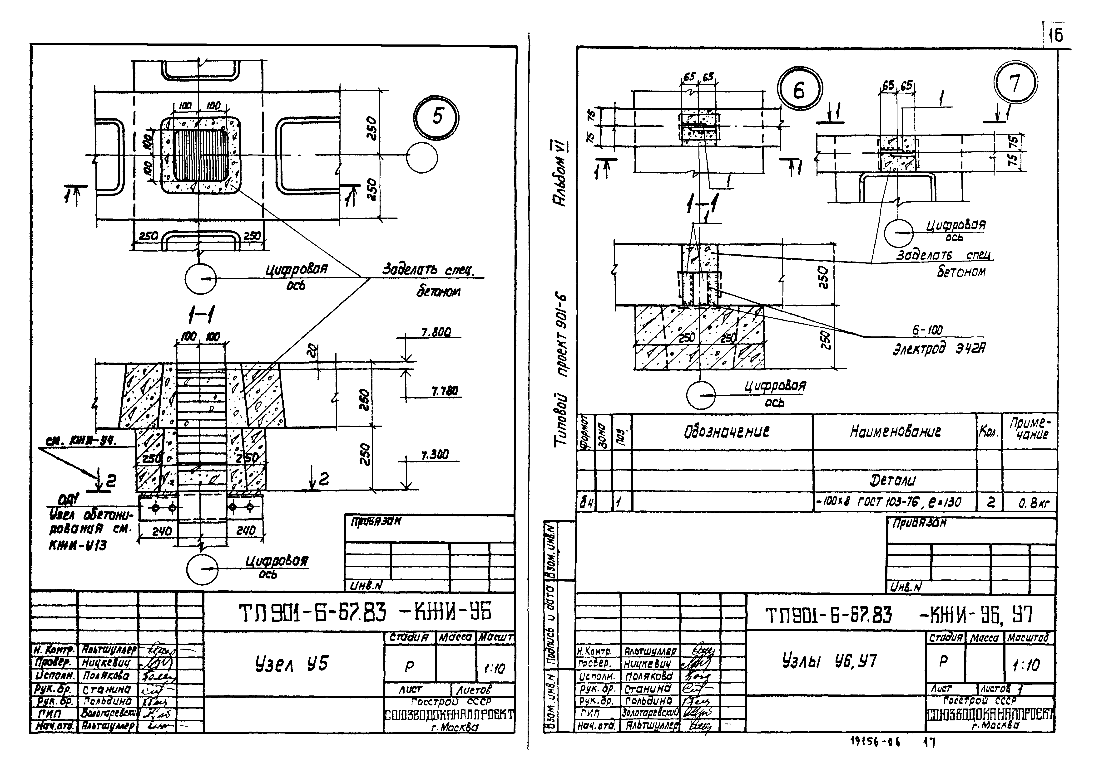
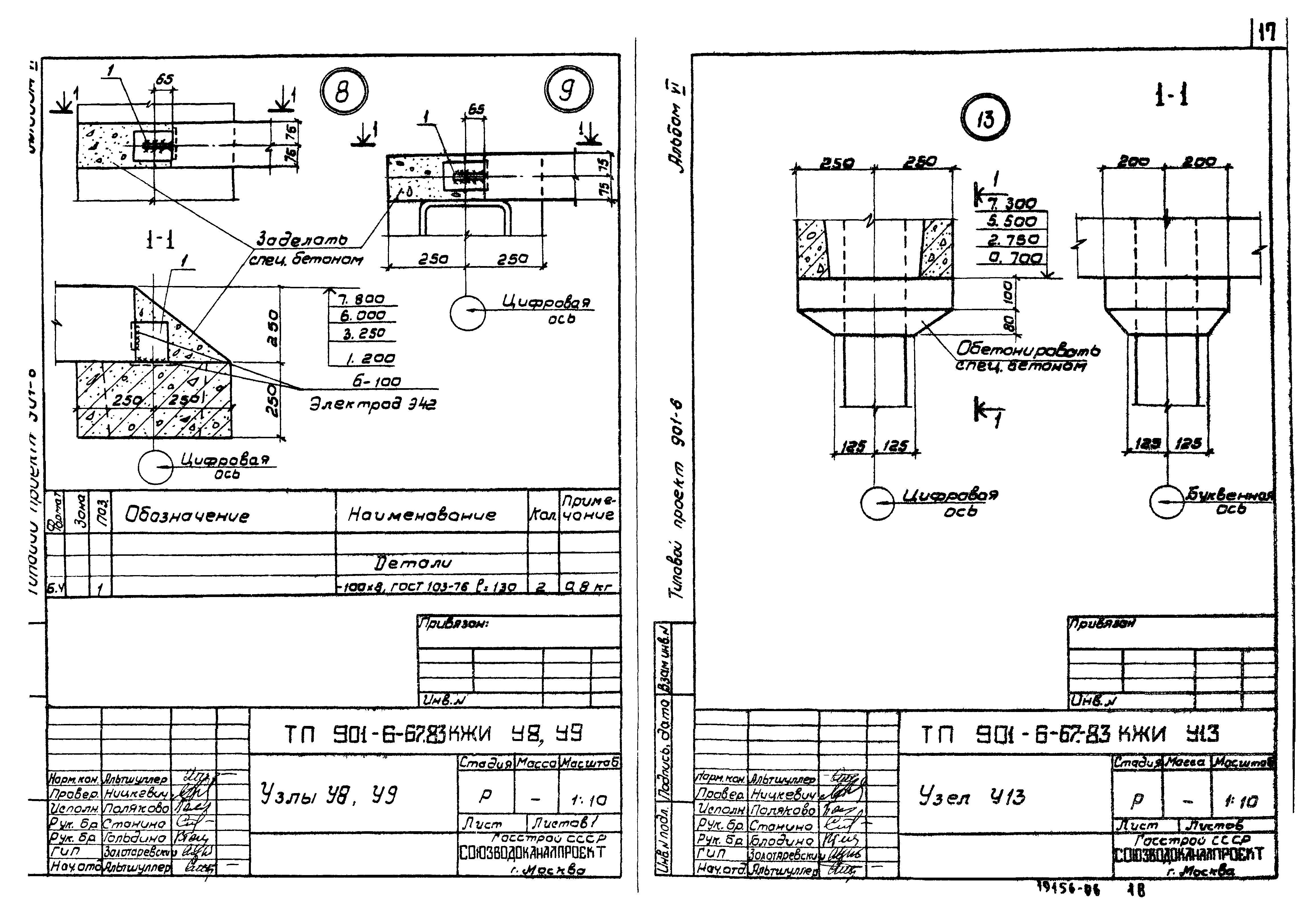
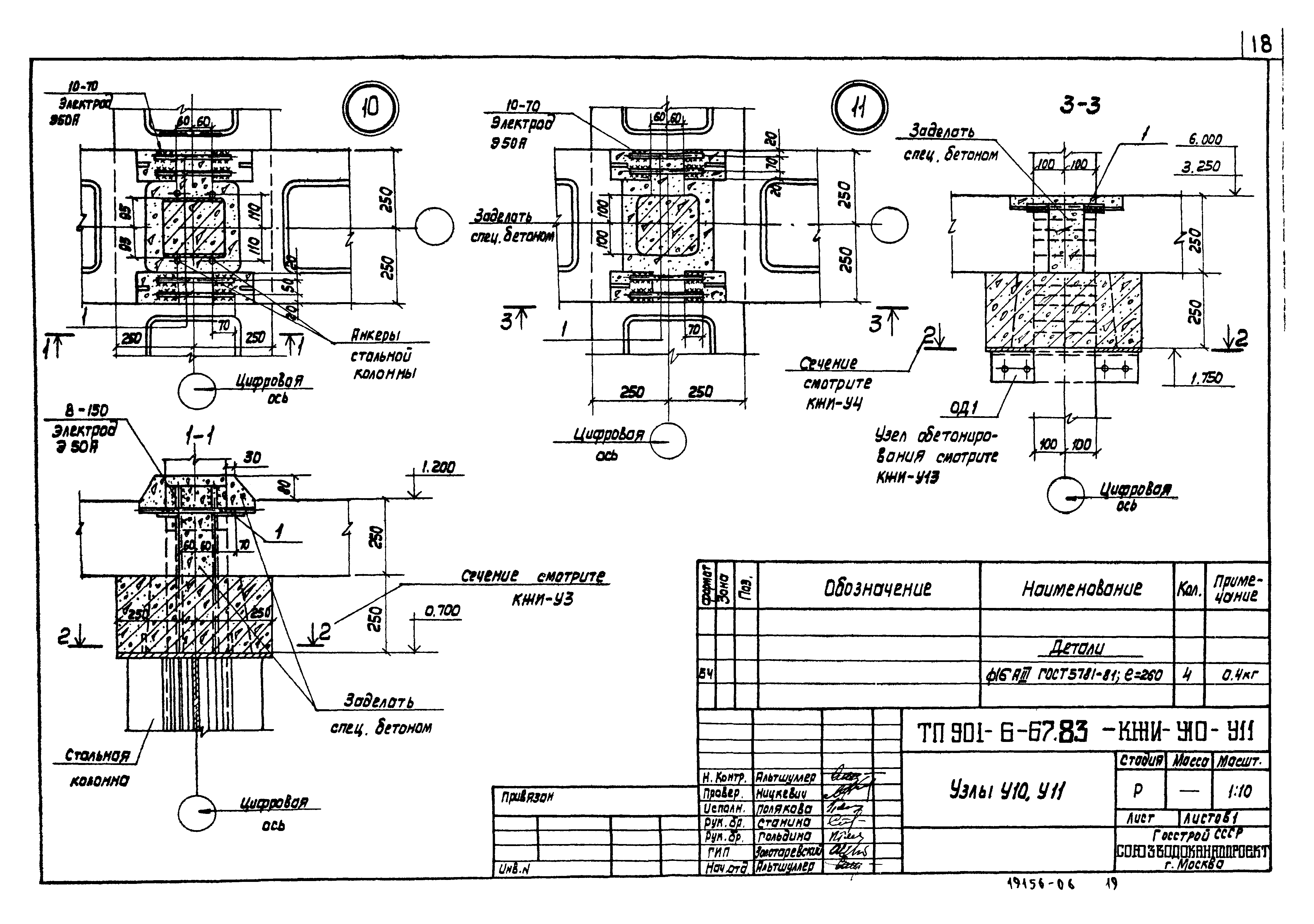
| Оглавление: | Содержание альбома 901-6-67.83-КЖИ-ТТ Технические требования 901-6-67.83-КЖИ-Км1, Км1а, Км2, Км3 Колонны Км1, Км1а, Км2, Км3 901-6-67.83-КЖИ-Км2, Км3 Колонны Км2, Км3 901-6-67.83-КЖИ-У1 Узел У1 901-6-67.83-КЖИ-У2 Узел У2 901-6-67.83-КЖИ-У3 Узел У3 901-6-67.83-КЖИ-У4 Узел У4 901-6-67.83-КЖИ-У5 Узел У5 901-6-67.83-КЖИ-У6, У7 Узлы У6, У7 901-6-67.83-КЖИ-У8, У9 Узлы У8, У9 901-6-67.83-КЖИ-У13 Узел У13 901-6-67.83-КЖИ-У10, У11 Узлы У10, У11 901-6-67.83-КЖИ-У12 Узел У12 901-6-67.83-КЖИ-У14 Узел У14 901-6-67.83-КЖИ-У15 Узел У15 901-6-67.83-КЖИ-У16 Узел У16 901-6-67.83-КЖИ-У17 Узел У17 901-6-67.83-КЖИ-У24, У25 Узлы У24, У25 901-6-67.83-КЖИ-У18, У19 Узлы У18, У19 901-6-67.83-КЖИ-У20 Узел У20 901-6-67.83-КЖИ-У21 Узел У21 901-6-67.83-КЖИ-У22 Узел У22 901-6-67.83-КЖИ-У23 Узел У23 901-6-67.83-КЖИ-У25 - У-30, У32, У33, У34 Узлы У25 - У-30, У32, У33, У34 901-6-67.83-КЖИ-У31 Узел У31 901-6-67.83-КЖИ-У35 Узел У35 901-6-67.83-КЖИ-У36 Узел У36 901-6-67.83-КЖИ-У37 Узел У37 901-6-67.83-КЖИ-У38 Узел У38 901-6-67.83-КЖИ-У39 Узел У39 901-6-67.83-КЖИ-У40, У41 Узлы У40, У41 901-6-67.83-КЖИ-У42 Узел У42 901-6-67.83-КЖИ-У43 Узел У43 901-6-67.83-КЖИ-У44 Узел У44 901-6-67.83-КЖИ-ФР1 Фрагмент ФР1 901-6-67.83-КЖИ-ФР2 Фрагмент ФР2 901-6-67.83-КЖИ-ФР3 Фрагмент ФР3 901-6-67.83-КЖИ-ФР4 Фрагмент ФР4 901-6-67.83-КЖИ-ФР5 Фрагмент ФР5 901-6-67.83-КЖИ-ФрУV Узел V 901-6-67.83-КЖИ-Р1 Ригель Р1 901-6-67.83-КЖИ-Р2 Ригель Р2 901-6-67.83-КЖИ-Р3 Ригель Р3 901-6-67.83-КЖИ-Р4 Ригель Р4 901-6-67.83-КЖИ-Р5 Ригель Р5 901-6-67.83-КЖИ-Р6 Ригель Р6 901-6-67.83-КЖИ-Р7 Ригель Р7 901-6-67.83-КЖИ-Р8 Ригель Р8 901-6-67.83-КЖИ-К1 Колонна К1 901-6-67.83-КЖИ-ПНБ1, ПНБ1а Панели ПНБ1, ПНБ1а 901-6-67.83-КЖИ-ПНБ2 Панель ПНБ2 901-6-67.83-КЖИ-КС1 Колонна стальная КС1 901-6-67.83-КЖИ-Щ1, Щ2, Щ3 Щиты Щ1, Щ2, Щ3 901-6-67.83-КЖИ-МК1, МК2, МК3 Козырьки МК1, МК2, МК3 901-6-67.83-КЖИ-ОП1 Опора ОП1 901-6-67.83-КЖИ-Щ4, Щ4н Щиты Щ4, Щ4н 901-6-67.83-КЖИ-Щ5 Щит Щ5 901-6-67.83-КЖИ-Щ6 Щит Щ6 901-6-67.83-КЖИ-Щ7, Щ8 Щиты Щ7, Щ8 901-6-67.83-КЖИ-Щ9, Щ9н Щиты Щ9, Щ9н 901-6-67.83-КЖИ-Щ10, Щ10н Щиты Щ10, Щ10н 901-6-67.83-КЖИ-Щ11, Щ12 Щиты Щ11, Щ12 901-6-67.83-КЖИ-Щ13 Щит Щ13 901-6-67.83-КЖИ-Щ14, Щ14н Щиты Щ14, Щ14н 901-6-67.83-КЖИ-Щ15 Щит Щ15 901-6-67.83-КЖИ-Щ16, Щ16н Щиты Щ16, Щ16н 901-6-67.83-КЖИ-Щ17 Щит Щ17 901-6-67.83-КЖИ-Щ18, Щ18н Щиты Щ18, Щ18н 901-6-67.83-КЖИ-Щ19 Щит Щ19 901-6-67.83-КЖИ-Щ20, Щ20н Щиты Щ20, Щ20н 901-6-67.83-КЖИ-Щ21 Щит Щ21 901-6-67.83-КЖИ-Щ22, Щ26 Щиты Щ22, Щ26 901-6-67.83-КЖИ-Щ23, Щ27 Щиты Щ23, Щ27 901-6-67.83-КЖИ-Щ24 Щит Щ24 901-6-67.83-КЖИ-Щ25 Щит Щ25 901-6-67.83-КЖИ-Щ28 Щит Щ28 901-6-67.83-КЖИ-Щ29 Щит Щ29 901-6-67.83-КЖИ-Д1 Дверь Д1 901-6-67.83-КЖИ-Б1 Балка Б1 901-6-67.83-КЖИ-Б1-КП9 Каркас пространственный КП9 901-6-67.83-КЖИ-Р1-КП1 Каркас пространственный КП1 901-6-67.83-КЖИ-Р2-КП2 Каркас пространственный КП2 901-6-67.83-КЖИ-Р3-КП3 Каркас пространственный КП3 901-6-67.83-КЖИ-Р4-КП4 Каркас пространственный КП4 901-6-67.83-КЖИ-Р5-КП5 Каркас пространственный КП5 901-6-67.83-КЖИ-Р6-КП6 Каркас пространственный КП6 901-6-67.83-КЖИ-Р7-КП7 Каркас пространственный КП7 901-6-67.83-КЖИ-Р8-КП8 Каркас пространственный КП8 901-6-67.83-КЖИ-К1-КП10 Каркас пространственный КП10 901-6-67.83-КЖИ-ПНБ1-КП11 Каркас пространственный КП11 901-6-67.83-КЖИ-ПНБ2-КП12 Каркас пространственный КП12 901-6-67.83-КЖИ-КП15 Каркас пространственный КП15 901-6-67.83-КЖИ-КП16 Каркас пространственный КП16 901-6-67.83-КЖИ-КП14 Каркас пространственный КП14 901-6-67.83-КЖИ-КП17 Каркас пространственный КП17 901-6-67.83-КЖИ-КР1 Каркас плоский КР1 901-6-67.83-КЖИ-КР2 Каркас плоский КР2 901-6-67.83-КЖИ-КР3 Каркас плоский КР3 901-6-67.83-КЖИ-КР4 Каркас плоский КР4 901-6-67.83-КЖИ-КР5, КР6 Каркасы плоские КР5, КР6 901-6-67.83-КЖИ-КР7 Каркас плоский КР7 901-6-67.83-КЖИ-КР8 Каркас плоский КР8 901-6-67.83-КЖИ-КР9 Каркас плоский КР9 901-6-67.83-КЖИ-КР10 Каркас плоский КР10 901-6-67.83-КЖИ-КР11 Каркас плоский КР11 901-6-67.83-КЖИ-КР12 Каркас плоский КР12 901-6-67.83-КЖИ-КР13 Каркас плоский КР13 901-6-67.83-КЖИ-КР14 Каркас плоский КР14 901-6-67.83-КЖИ-КР15, КР16 Каркасы плоские КР15, КР16 901-6-67.83-КЖИ-КР17 Каркас плоский КР17 901-6-67.83-КЖИ-КР22 Каркас плоский КР22 901-6-67.83-КЖИ-С1 Сетка С1 901-6-67.83-КЖИ-С2 Сетка С2 901-6-67.83-КЖИ-С4 Сетка С4 901-6-67.83-КЖИ-С5 Сетка С5 901-6-67.83-КЖИ-С6 Сетка С6 901-6-67.83-КЖИ-С7 Сетка С7 901-6-67.83-КЖИ-Мн1 Изделие закладное Мн1 901-6-67.83-КЖИ-Мн2 Изделие закладное Мн2 901-6-67.83-КЖИ-М1 Изделие закладное М1 901-6-67.83-КЖИ-М2 Изделие закладное М2 901-6-67.83-КЖИ-М3 Изделие закладное М3 901-6-67.83-КЖИ-М4 Изделие закладное М4 901-6-67.83-КЖИ-М5 Изделие закладное М5 901-6-67.83-КЖИ-М6 Изделие закладное М6 901-6-67.83-КЖИ-М7 Изделие закладное М7 901-6-67.83-КЖИ-М8 Изделие закладное М8 901-6-67.83-КЖИ-М10 Изделие закладное М10 901-6-67.83-КЖИ-УI, УII, УIII Узлы УI, УII, УIII 901-6-67.83-КЖИ-ОД1 Опорная деталь ОД1 901-6-67.83-КЖИ-Ф1 Фундамент Ф1 901-6-67.83-КЖИ-ПО2 Подвеска ПО2 901-6-67.83-КЖИ-ОГ1 Ограждение ОГ1 901-6-67.83-КЖИ-ПО3 Подвеска ПО3 901-6-67.83-КЖИ-ПО4 Подвеска ПО4 901-6-67.83-КЖИ-М11 Изделие закладное М11 901-6-67.83-КЖИ-М12 Изделие закладное М12 901-6-67.83-КЖИ-Щ-УIV Узел УIV 901-6-67.83-КЖИ-МС9 Соединительное изделие МС9 901-6-67.83-КЖИ-МС10 Соединительное изделие МС10 901-6-67.83-КЖИ-МС11 Соединительное изделие МС11 901-6-67.83-КЖИ-КР18 Каркас плоский КР18 901-6-67.83-КЖИ-КР19 Каркас плоский КР19 901-6-67.83-КЖИ-КР20 Каркас плоский КР20 901-6-67.83-КЖИ-КР21 Каркас плоский КР21 901-6-67.83-КЖИ-КП13 Каркас пространственный КП13 901-6-67.83-КЖИ-КР23 Каркас плоский КР23 901-6-67.83-КЖИ-КР24 Каркас плоский КР24 901-6-67.83-КЖИ-С3 Сетка арматурная С3 901-6-67.83-КЖИ-ПО1 Подвеска ПО1 901-6-67.83-КЖИ-Мн3 Изделие закладное Мн3 901-6-67.83-КЖИ-М9 Изделие закладное М9 901-6-67.83-КЖИ-МС-Д13 Детали Д13 901-6-67.83-КЖИ-МС1 - МС8 Соединительные изделия МС1 - МС8 901-6-67.83-КЖИ-МС1, МС2, СБ Соединительные изделия МС1, МС2 901-6-67.83-КЖИ-МС3, СБ Соединительное изделие МС3 901-6-67.83-КЖИ-МС4, МС6, СБ Соединительные изделия МС4, МС6 901-6-67.83-КЖИ-МС5, СБ Соединительное изделие МС5 901-6-67.83-КЖИ-МС7, СБ Соединительное изделие МС7 901-6-67.83-КЖИ-МС8, СБ Соединительное изделие МС8 901-6-67.83-КЖИ-МС-Д1, Д2, Д3 Детали Д1, Д2, Д3 901-6-67.83-КЖИ-МС-Д4, Д5, Д6 Детали Д4, Д5, Д6 901-6-67.83-КЖИ-МС-Д7 Деталь Д7 901-6-67.83-КЖИ-МС-Д8 Деталь Д8 901-6-67.83-КЖИ-МС-Д9 Деталь Д9 901-6-67.83-КЖИ-МС-Д10 Деталь Д10 901-6-67.83-КЖИ-МС-Д11 Деталь Д11 901-6-67.83-КЖИ-МС-Д12 Деталь Д12 901-6-67.83-КЖИ-МС-узел "А" Узел "А" |
| Разработан: | Союзводоканалпроект |
| Утверждён: | 10.05.1983 Главпромстройпроект Госстроя СССР (8А-19) |
































































































































