Скачать Типовой проект 901-6-89с.86 Альбом I. Технологические и архитектурно-строительные чертежиДата актуализации: 01.01.2021
|
| Обозначение: | Типовой проект 901-6-89с.86 |
| Обозначение англ: | 901-6-89с.86 |
| Статус: | не действует |
| Название рус.: | Альбом I. Технологические и архитектурно-строительные чертежи |
| Дата добавления в базу: | 01.09.2013 |
| Дата актуализации: | 01.01.2021 |
| Дата введения: | 10.03.1986 |
| Дата окончания срока действия: | 01.07.1996 |
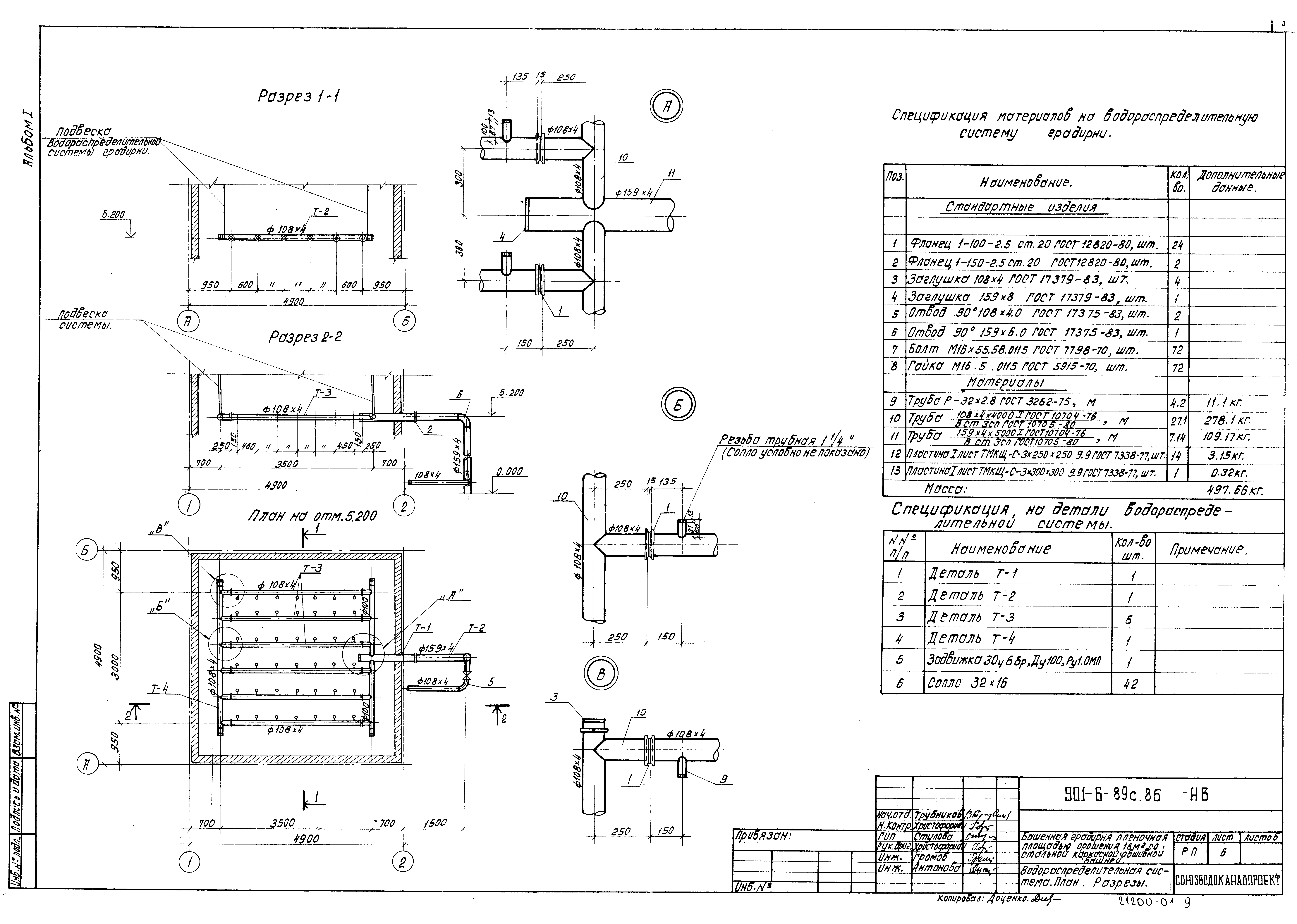
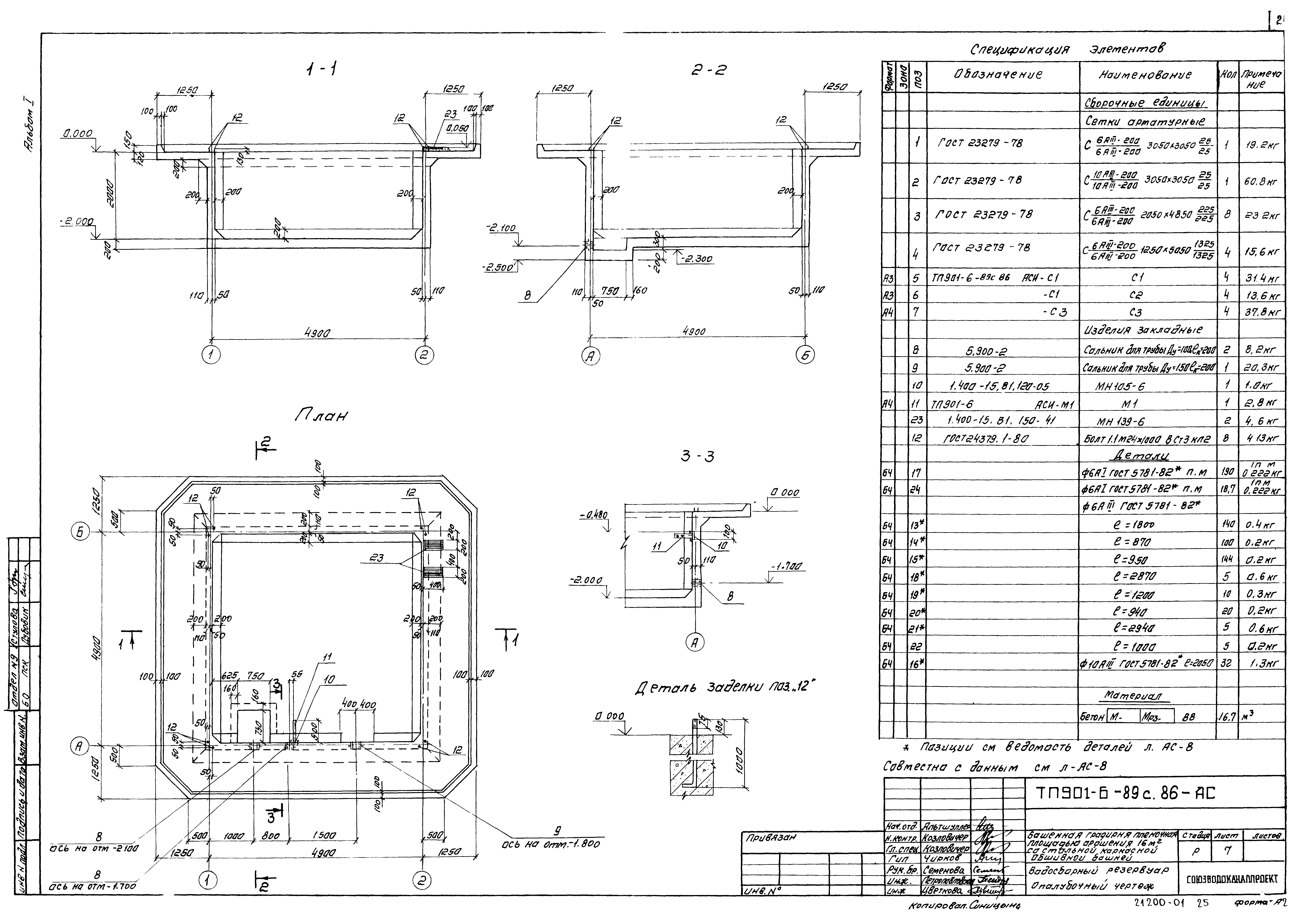
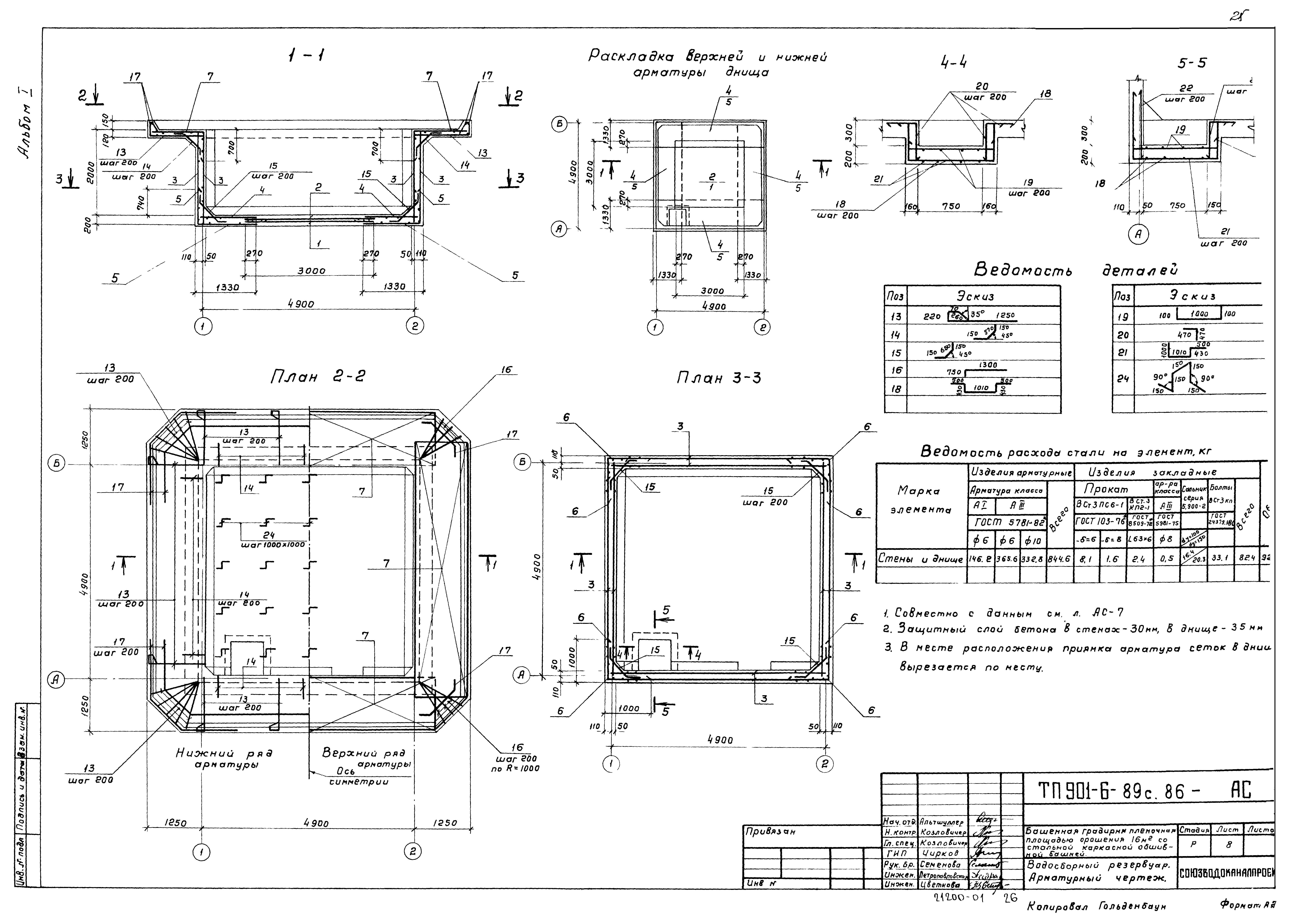
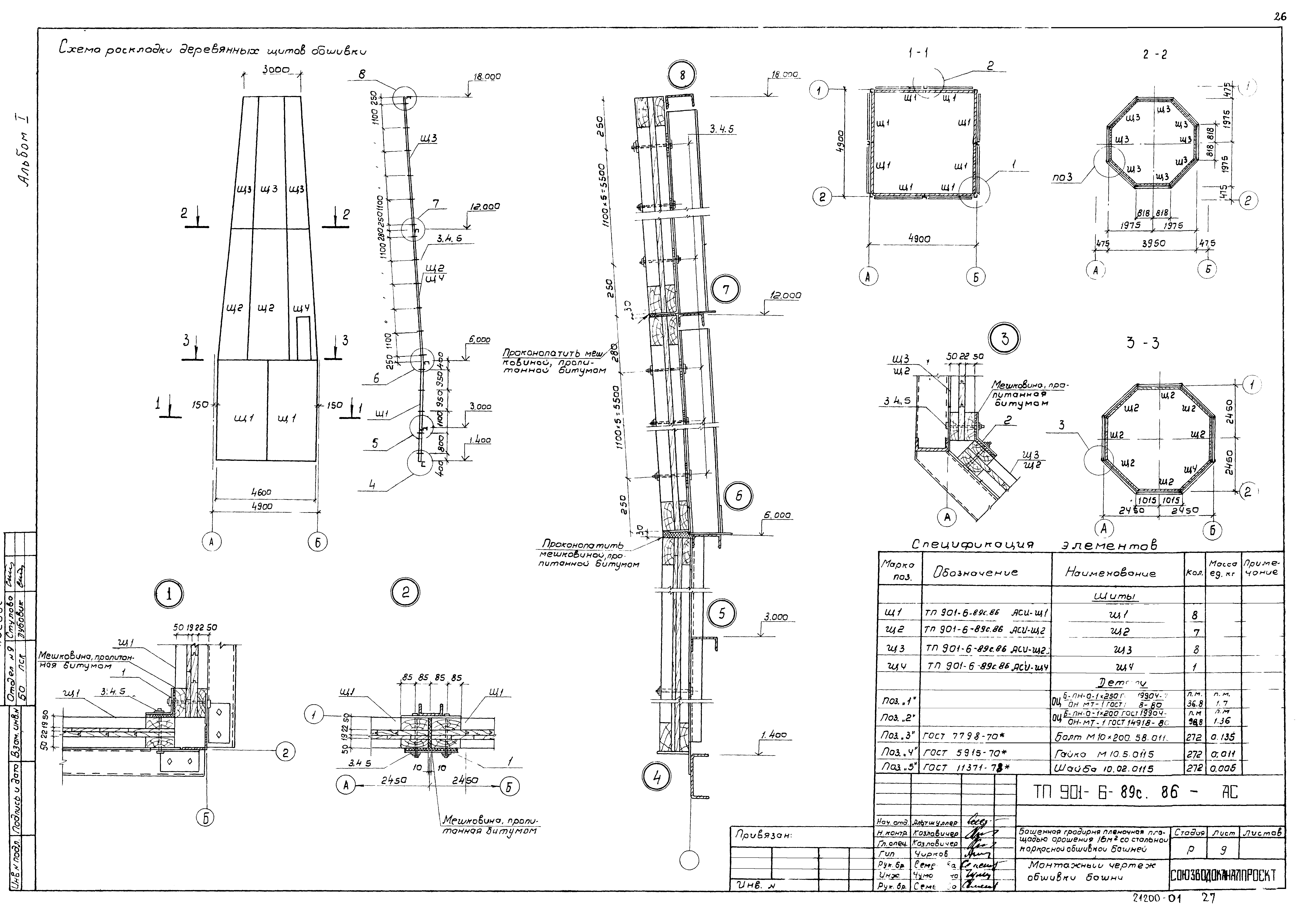
| Оглавление: | Содержание альбома Технологическая часть Общие данные Пояснительная записка Показатели изменения сметной стоимости расхода материалов Разрезы. Градирни Водораспределительная система. План. Разрезы Расстановка блоков пленочного оросителя. План. Разрезы Конструкция блока пленочного оросителя Конструкция деталей для блока пленочного оросителя Водосборный резервуар. План. Разрезы Деталь Т-1. Эскизный чертеж общего вида Деталь Т-2. Эскизный чертеж общего вида Деталь Т-3. Эскизный чертеж общего вида Деталь Т-4. Эскизный чертеж общего вида Сороудерживающая решетка. Эскизный чертеж общего вида Переливная труба Ф100. Эскизный чертеж общего вида Водоразбрызгивающее сопло 20х12 мм. Эскизный чертеж общего вида Водоразбрызгивающее сопло 32х16 мм. Эскизный чертеж общего вида Архитектурно-строительные решения Общие данные Фасады Разрезы Водосборный резервуар. Опалубочный чертеж Водосборный резервуар. Арматурный чертеж Монтажный чертеж обшивки башни Ветровые перегородки. План, узлы, сечения |
| Разработан: | Союзводоканалпроект |
| Утверждён: | 15.01.1986 Госстрой СССР (Государственный комитет Совета Министров СССР по делам строительства) (USSR Gosstroy АЧ-3) |



























