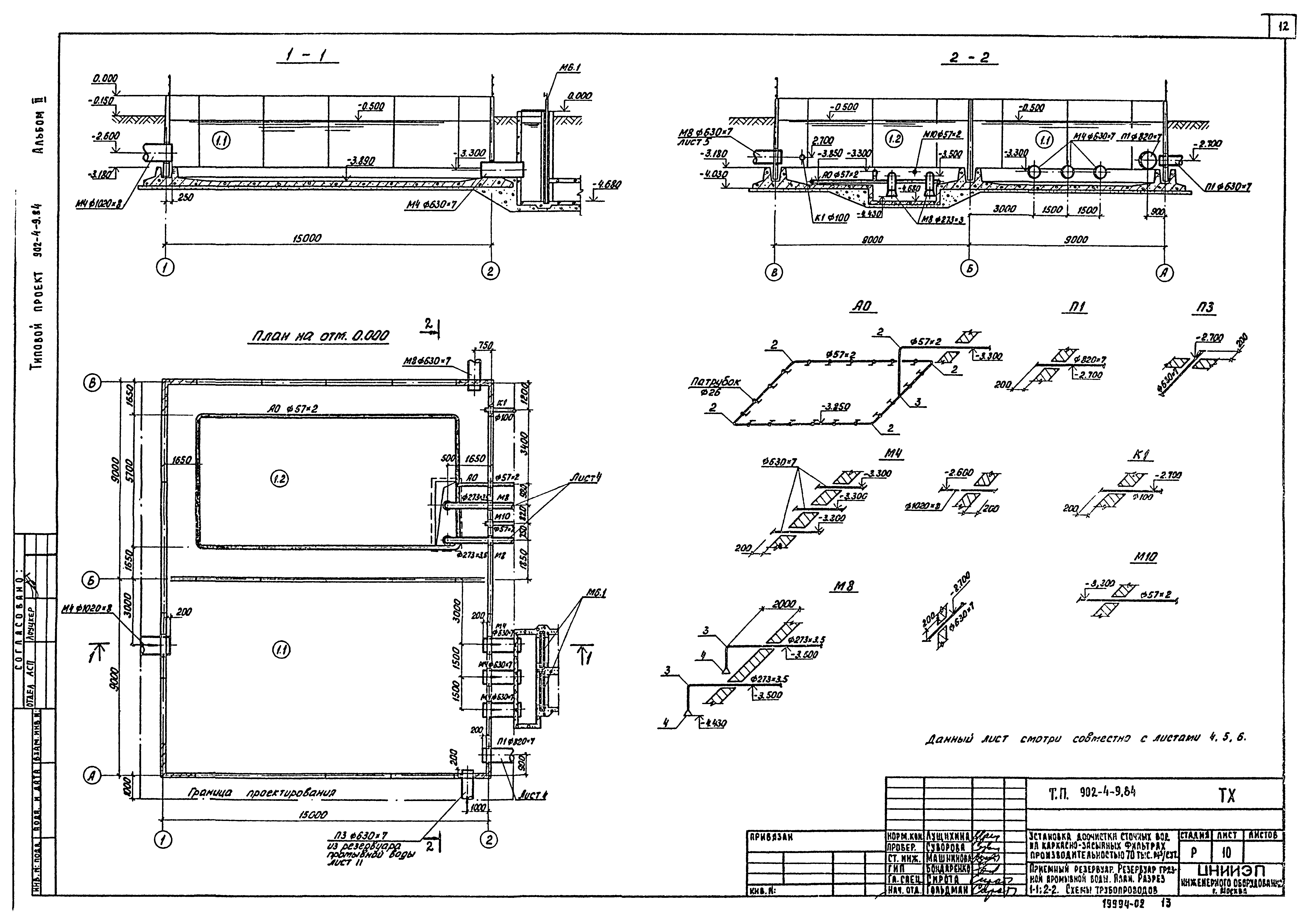
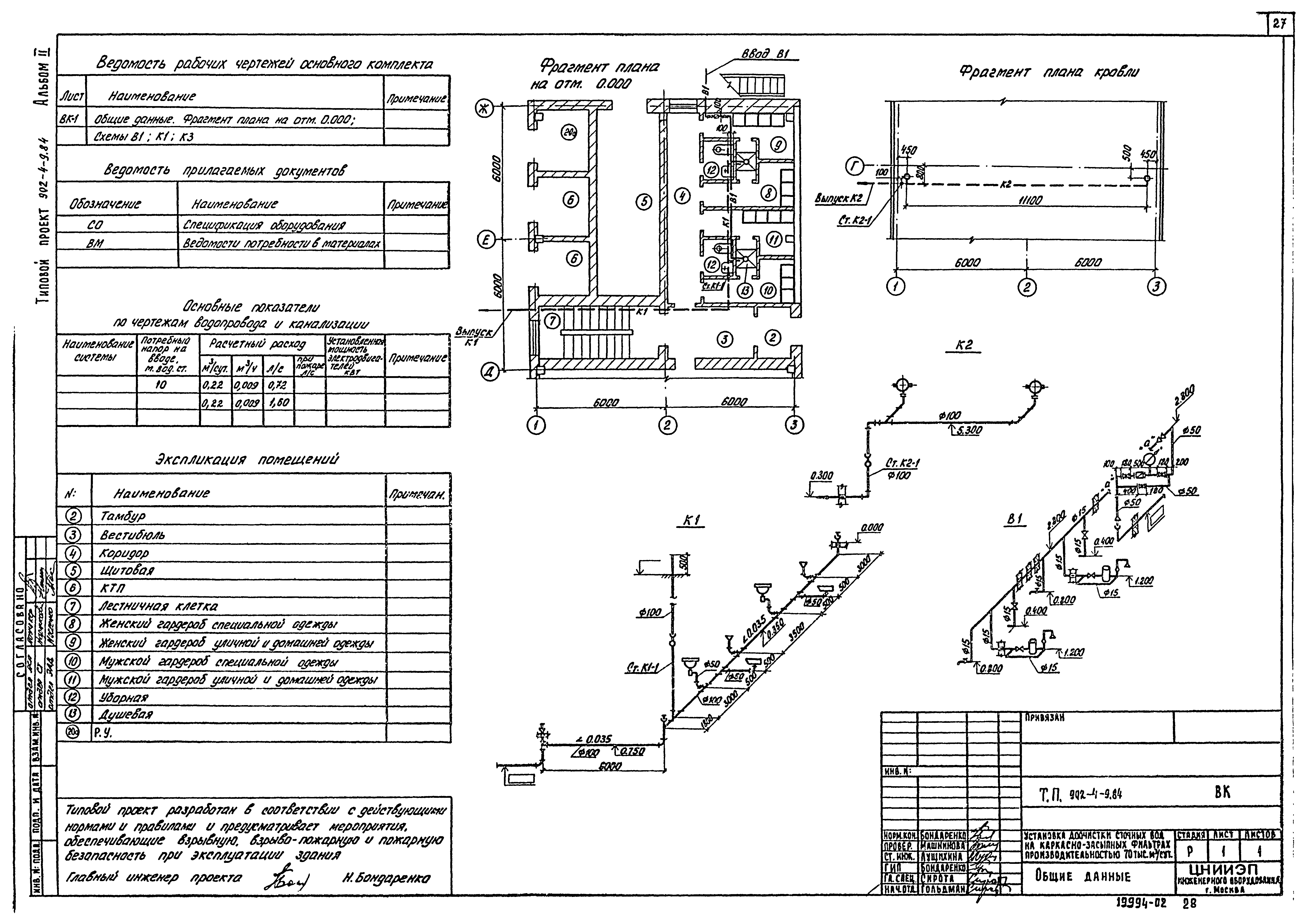
Скачать Типовой проект 902-4-9.84 Альбом II. Технологическая часть. Санитарно-техническая часть. Нестандартизированное оборудованиеДата актуализации: 01.01.2021
|
| Обозначение: | Типовой проект 902-4-9.84 |
| Обозначение англ: | 902-4-9.84 |
| Статус: | не определен законодательством |
| Название рус.: | Альбом II. Технологическая часть. Санитарно-техническая часть. Нестандартизированное оборудование |
| Дата добавления в базу: | 21.05.2015 |
| Дата актуализации: | 01.01.2021 |
| Дата введения: | 28.06.1984 |
| Дата окончания срока действия: | 30.06.2003 |
| Разработан: | ЦНИИЭП |
| Утверждён: | 05.05.1984 Госгражданстрой (Gosgrazhdanstroy 133) |





























