Скачать Серия М-372 Альбом 2. Выпуск 1. Стальные конструкции. Неотапливаемые галереи пролетом 48 мДата актуализации: 01.01.2021
|
| Обозначение: | Серия М-372 |
| Обозначение англ: | Series М-372 |
| Статус: | не действует |
| Название рус.: | Альбом 2. Выпуск 1. Стальные конструкции. Неотапливаемые галереи пролетом 48 м |
| Дата добавления в базу: | 01.09.2013 |
| Дата актуализации: | 01.01.2021 |
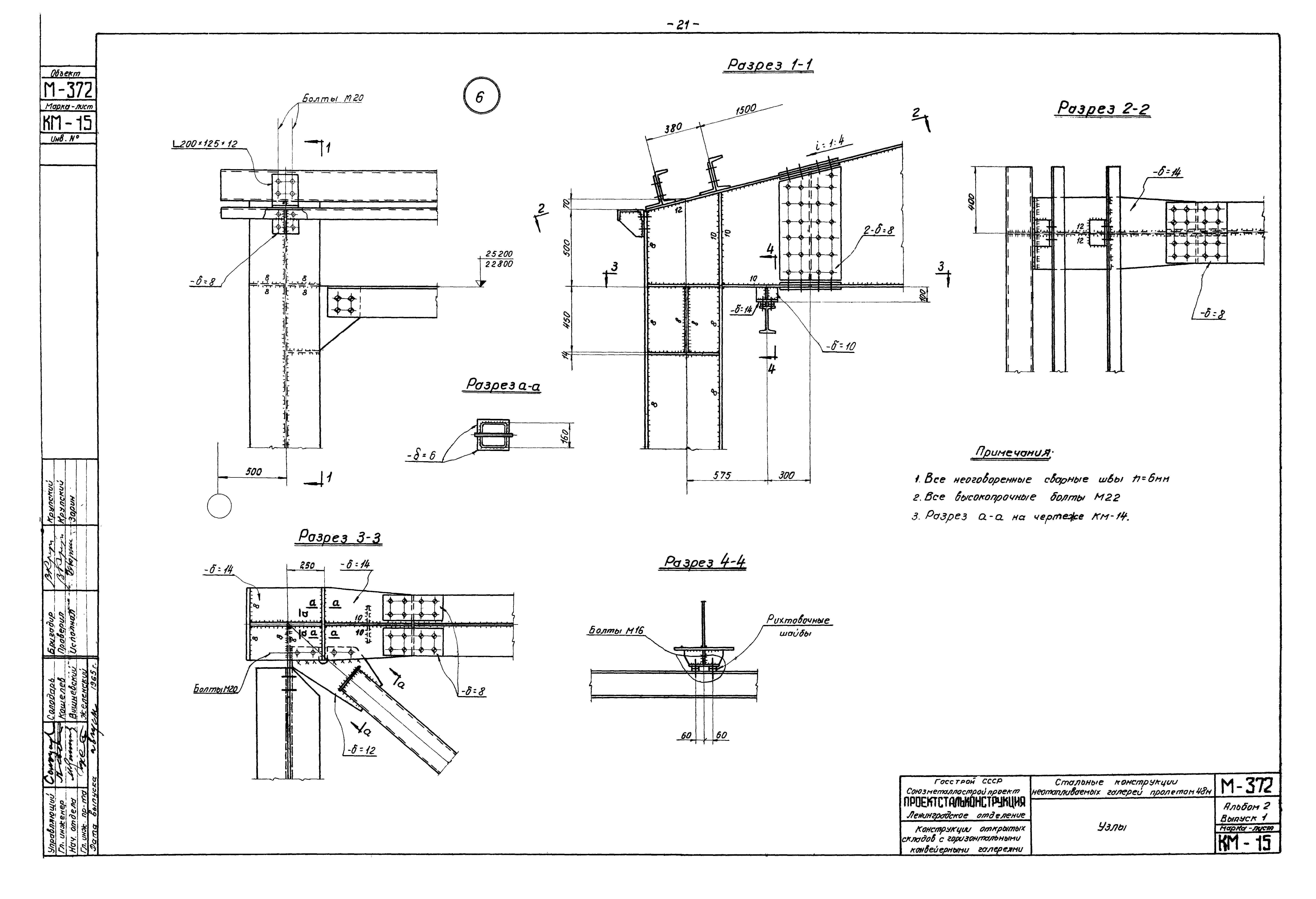
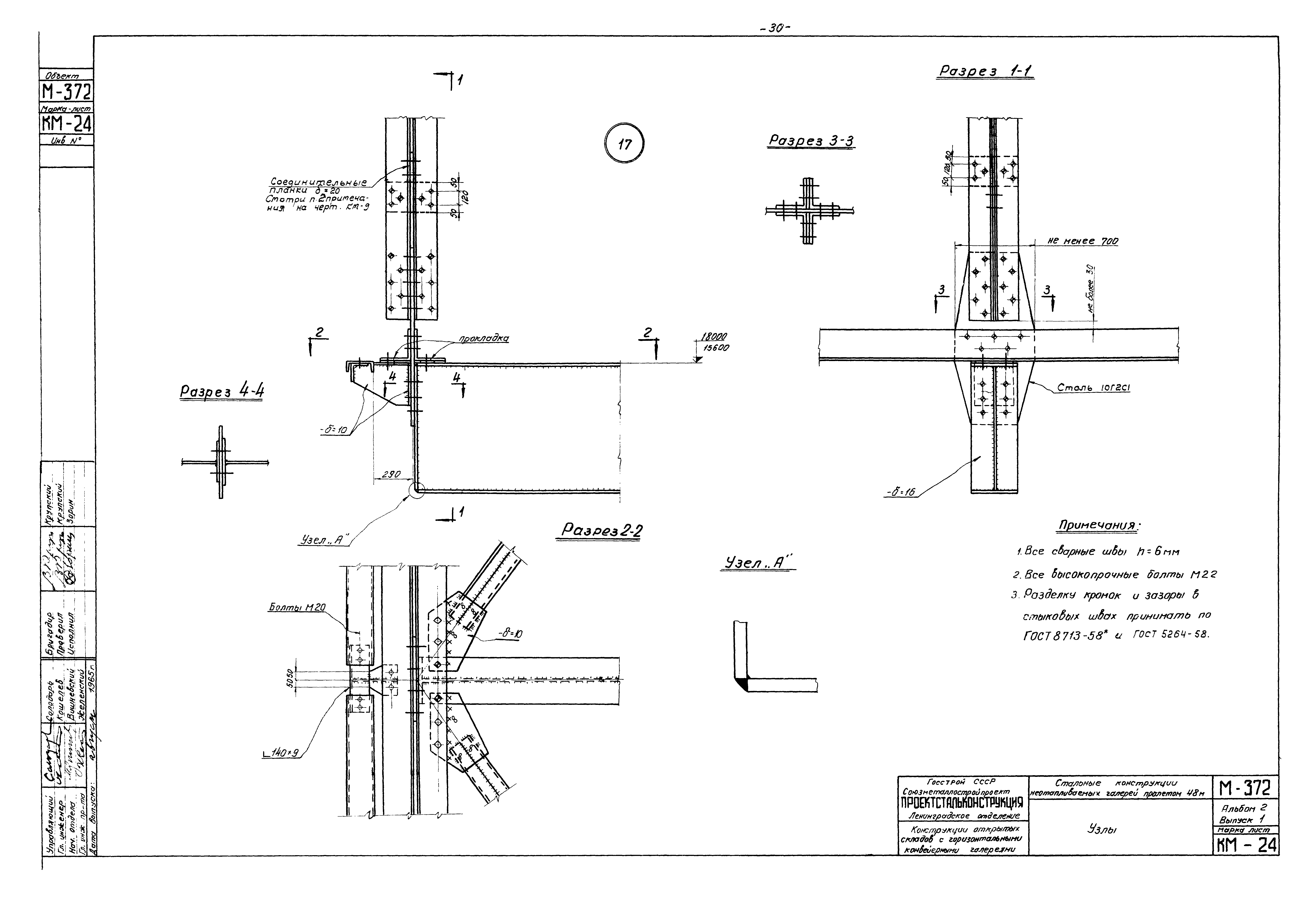
| Оглавление: | Состав проекта Содержание и условные обозначения Пояснительная записка Лист нагрузок Схема галереи НГ1 Схема галереи НГ2 Схемы металлических опор галерей Сортамент ферм галерей Узлы Футеровка балок пола и связей Футеровка железобетонной опоры ОП1-I Детали перил Деталь люка железобетонной опоры |
| Разработан: | Ленинградский Промстройпроект Союзметаллостройниипроект |
| Утверждён: | 10.01.1966 Главстройпроект Госстроя СССР |
| Издан: | ЦИТП Госстроя СССР (CITP, Gosstroy (USSR) 1965 г. ) |










































