Скачать Типовой проект 221-1-313 Альбом VII. Дополнительный (корректировка по теплу)Дата актуализации: 01.01.2021
|
| Обозначение: | Типовой проект 221-1-313 |
| Обозначение англ: | 221-1-313 |
| Статус: | не определен законодательством |
| Название рус.: | Альбом VII. Дополнительный (корректировка по теплу) |
| Дата добавления в базу: | 01.09.2013 |
| Дата актуализации: | 01.01.2021 |
| Дата введения: | 06.06.1983 |
| Дата окончания срока действия: | 30.06.2003 |
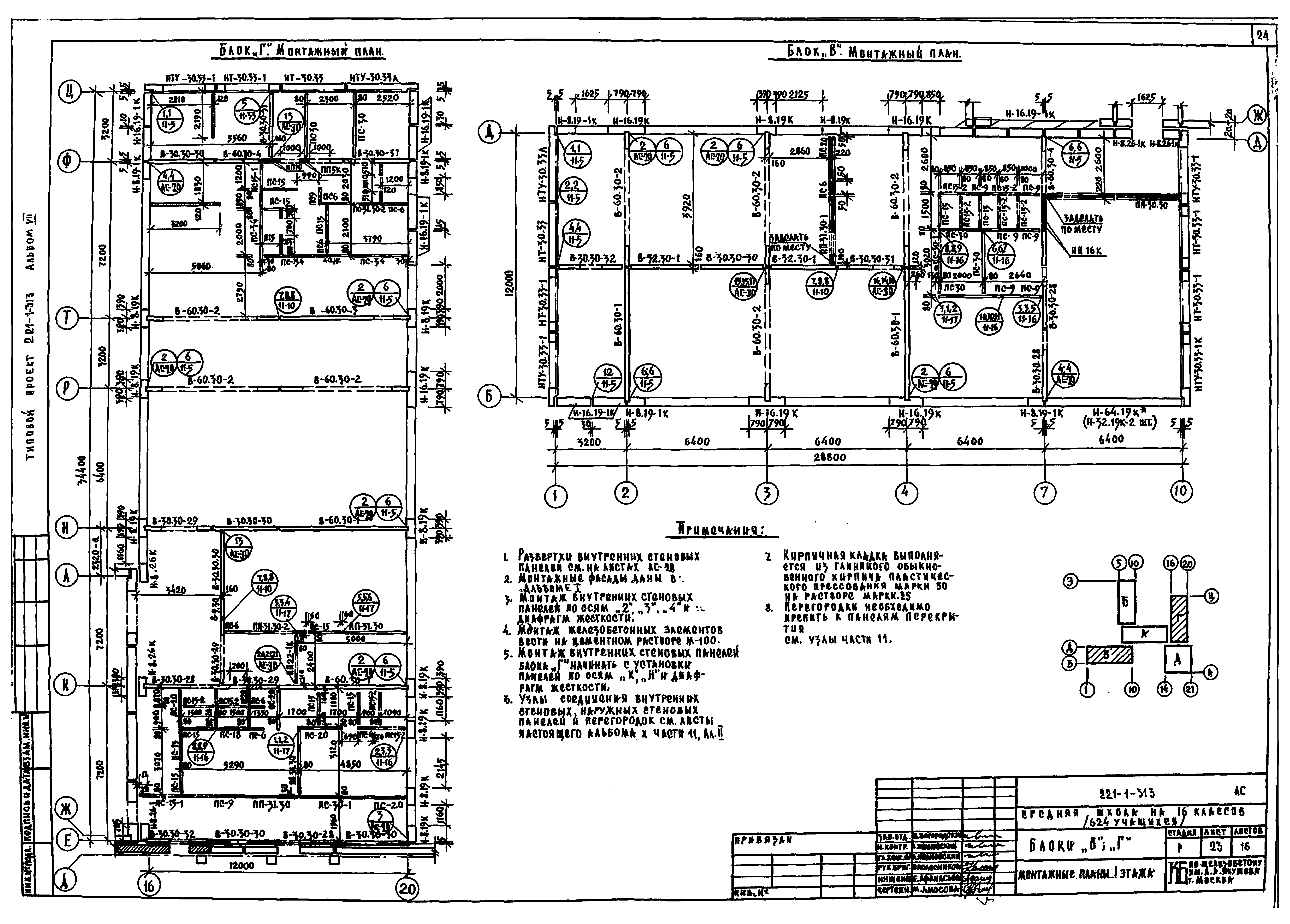
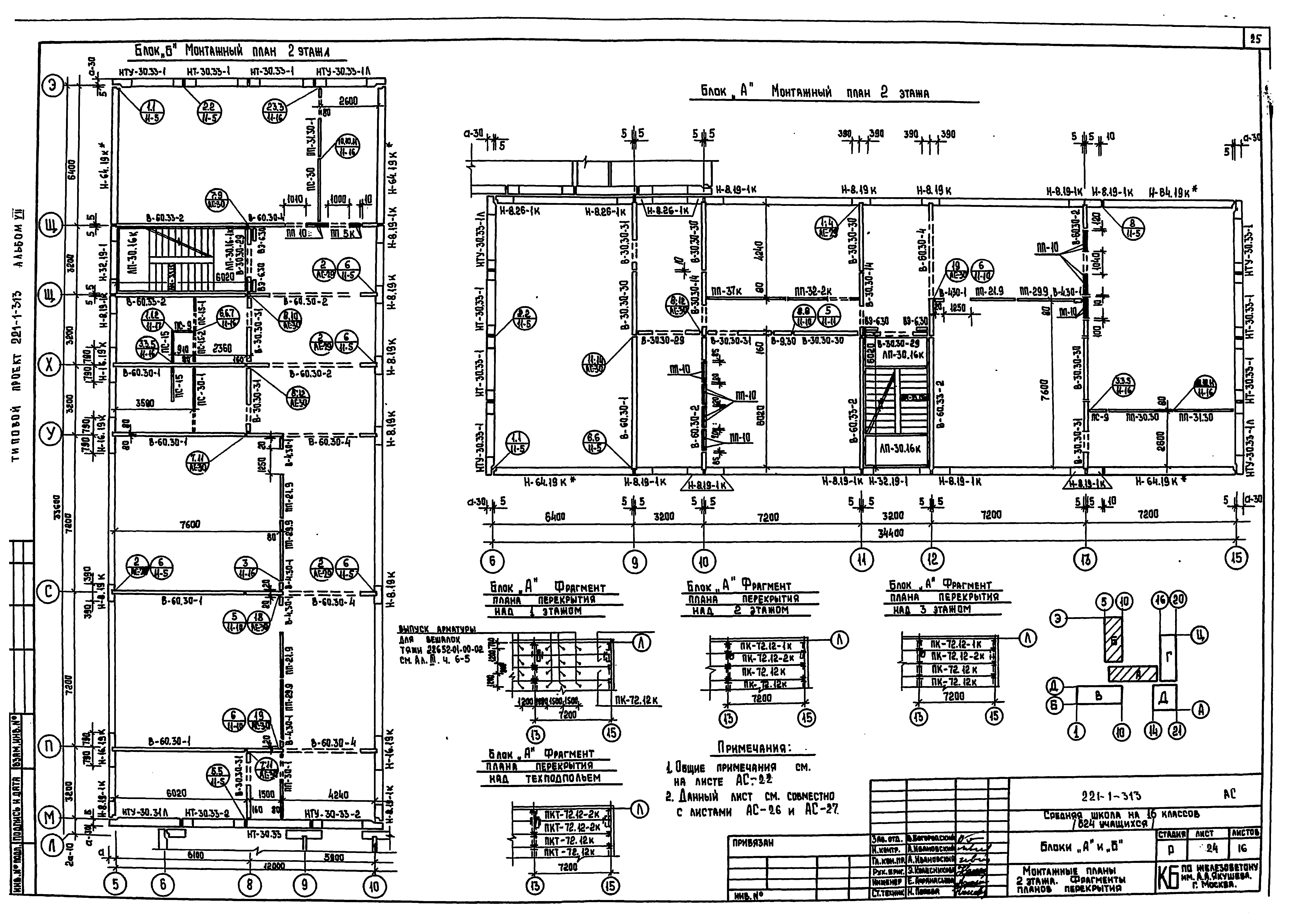
| Оглавление: | Общие данные Фасады Типы и раскладка оконных блоков Спецификация изделий наружных стен Спецификация столярных изделий Отопление и вентиляция Общие данные Планы 1 и 2 этажей Планы 3 и 1 этажей Планы 1 и 2 этажей Планы 3 и 1 этажей План 1 этажа План и схема магистральных трубопроводов Схемы систем отопления. Распределительные гребенки (подающая и обратная) Схемы систем отопления План и схема магистральных трубопроводов План. Схема магистральных трубопроводов и схемы систем отопления План и схема магистральных трубопроводов Конструктивный вариант Монтажные планы 1 этажа. Блоки "А" и "Б" Монтажные планы 1 этажа. Блоки "В" и "Г" Монтажные планы 2 этажа. Фрагменты планов перекрытия. Блоки "А" и "Б" Монтажные планы 3 этажа. Блоки "А" и "Б" Развертки внутренних стен. Блок "А" Развертки внутренних стен. Блок "Б" Развертки внутренних стен. Блоки "В" и "Г" Узлы 1 - 6 Узлы 7 - 22 Спецификация изделий |
| Разработан: | КБ по железобетону им. А.А. Якушева |
| Утверждён: | 18.04.1975 Госстрой РСФСР (Russian Federation Gosstroy 19) |
































