Скачать Типовой проект 222-1-474.86 Альбом I. Архитектурно-строительные и технологические чертежиДата актуализации: 01.01.2021
|
| Обозначение: | Типовой проект 222-1-474.86 |
| Обозначение англ: | 222-1-474.86 |
| Статус: | не определен законодательством |
| Название рус.: | Альбом I. Архитектурно-строительные и технологические чертежи |
| Дата добавления в базу: | 01.09.2013 |
| Дата актуализации: | 01.01.2021 |
| Дата введения: | 10.04.1986 |
| Дата окончания срока действия: | 30.06.2003 |
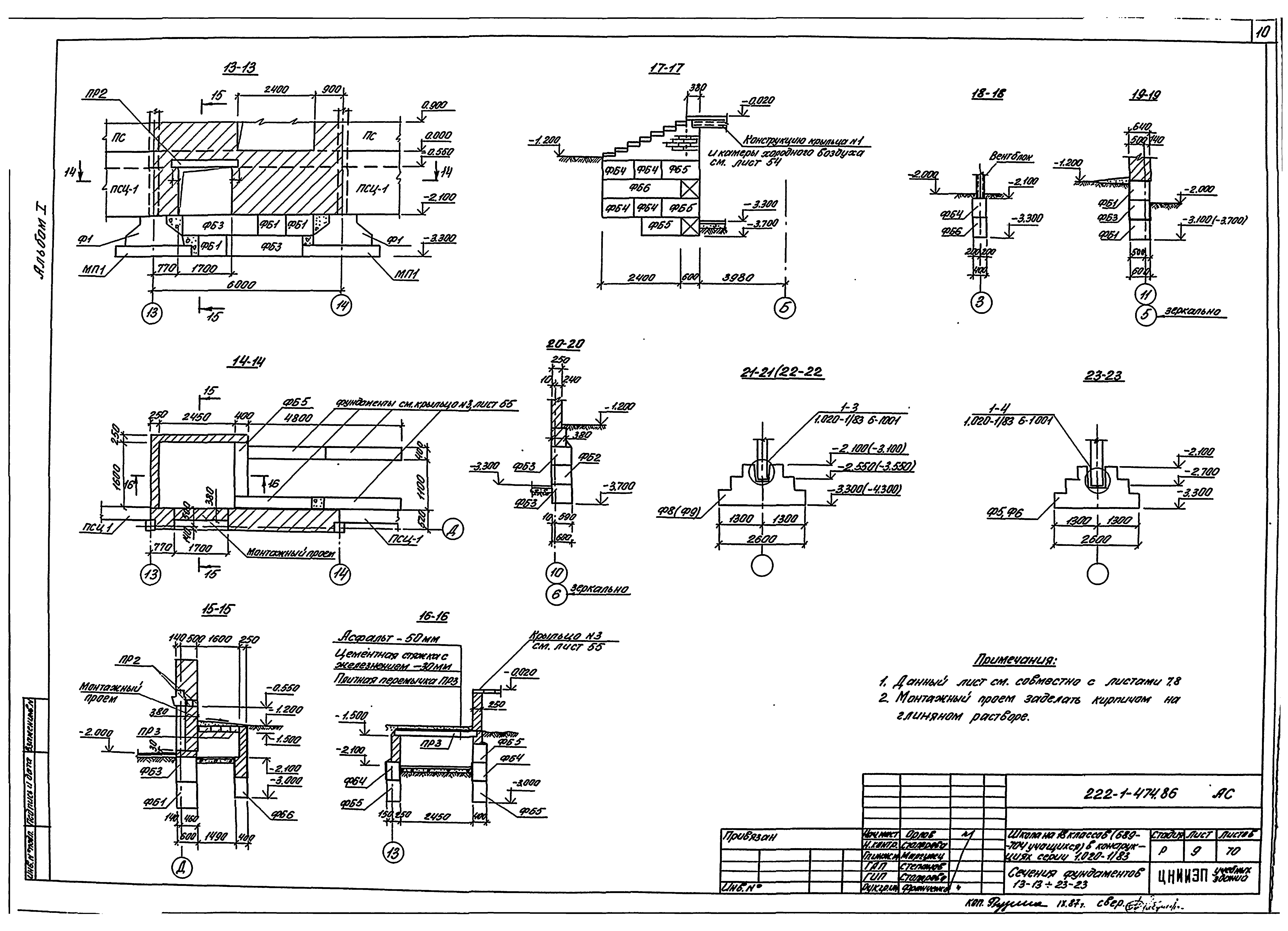
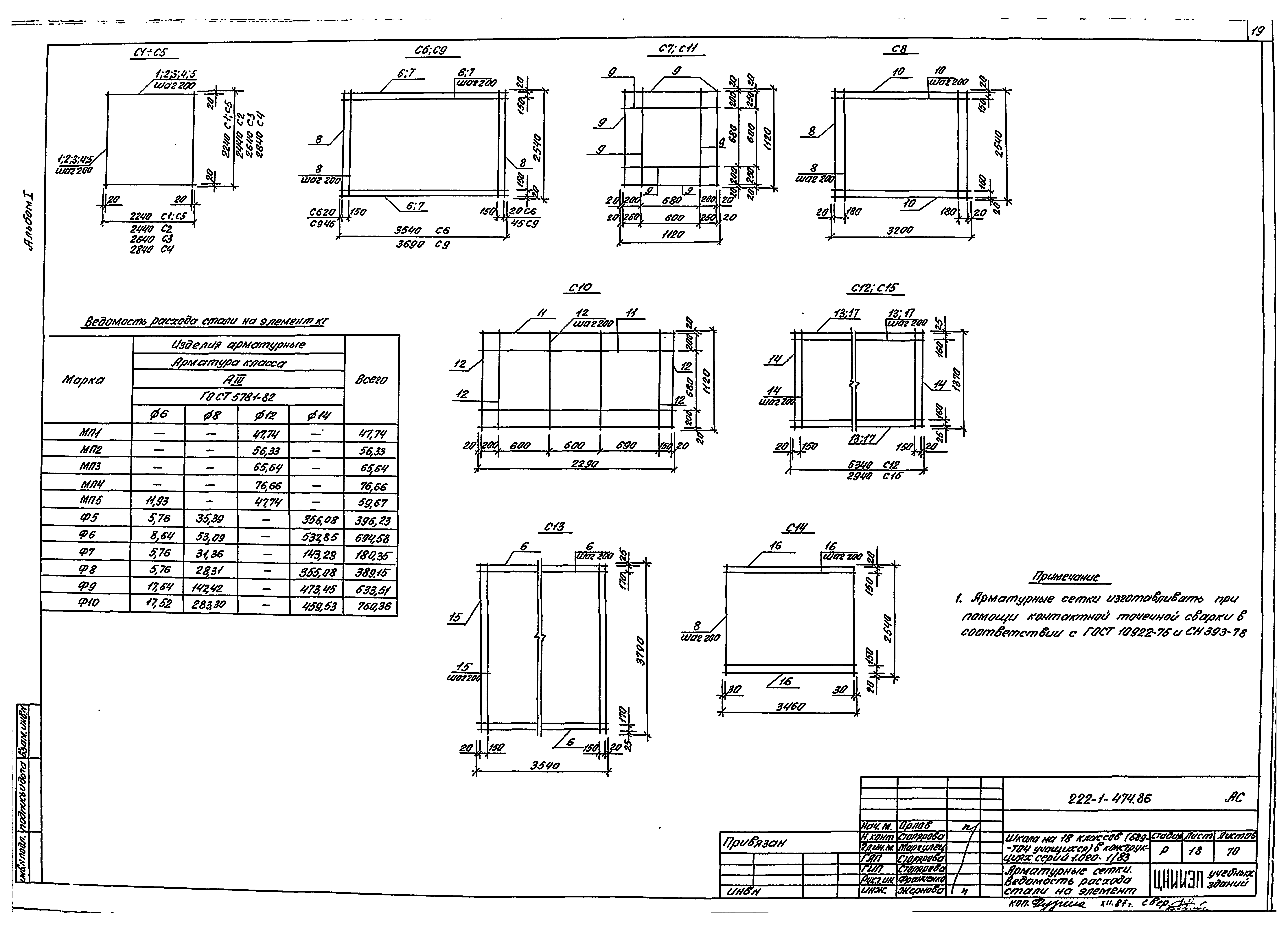
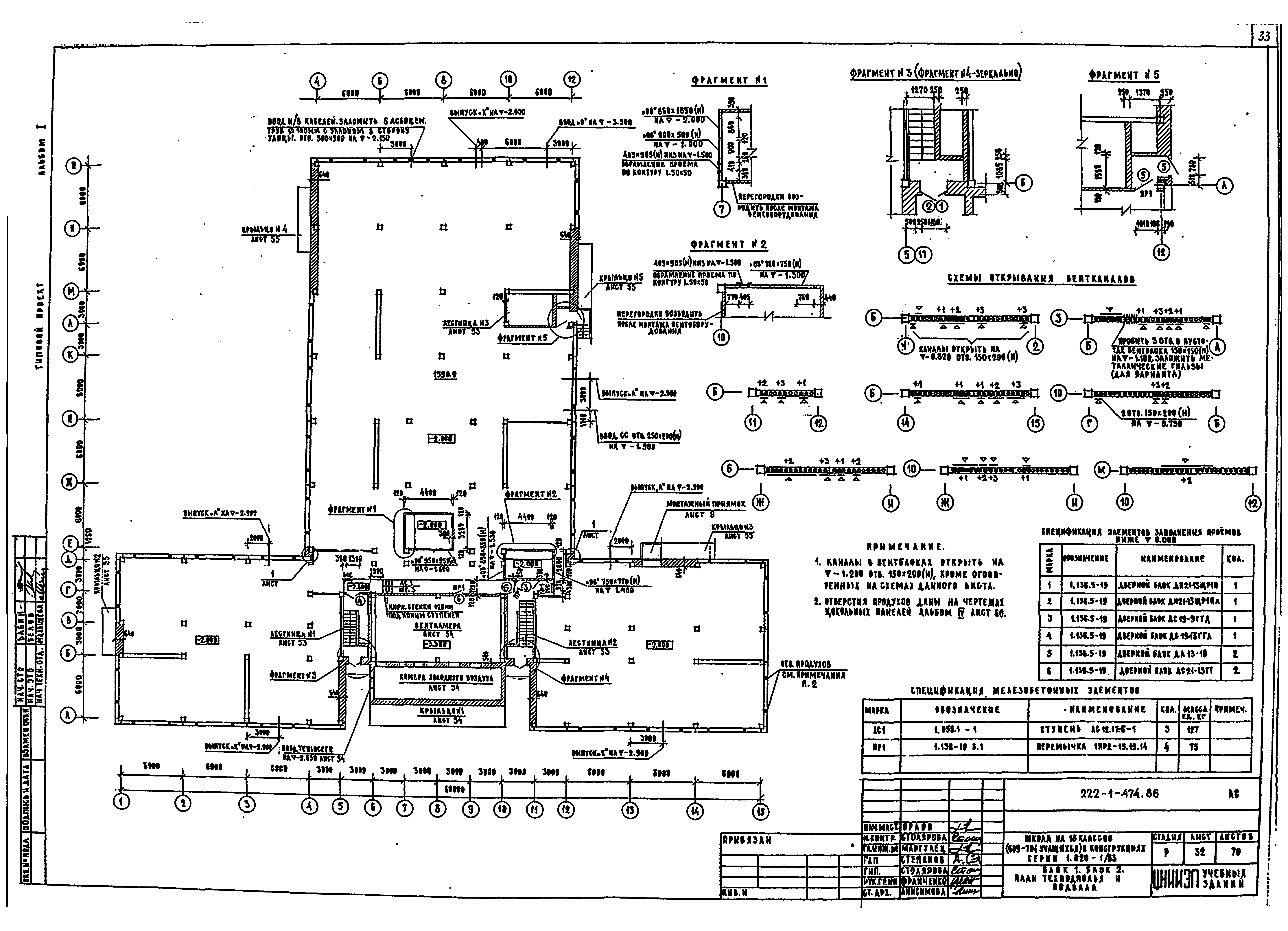
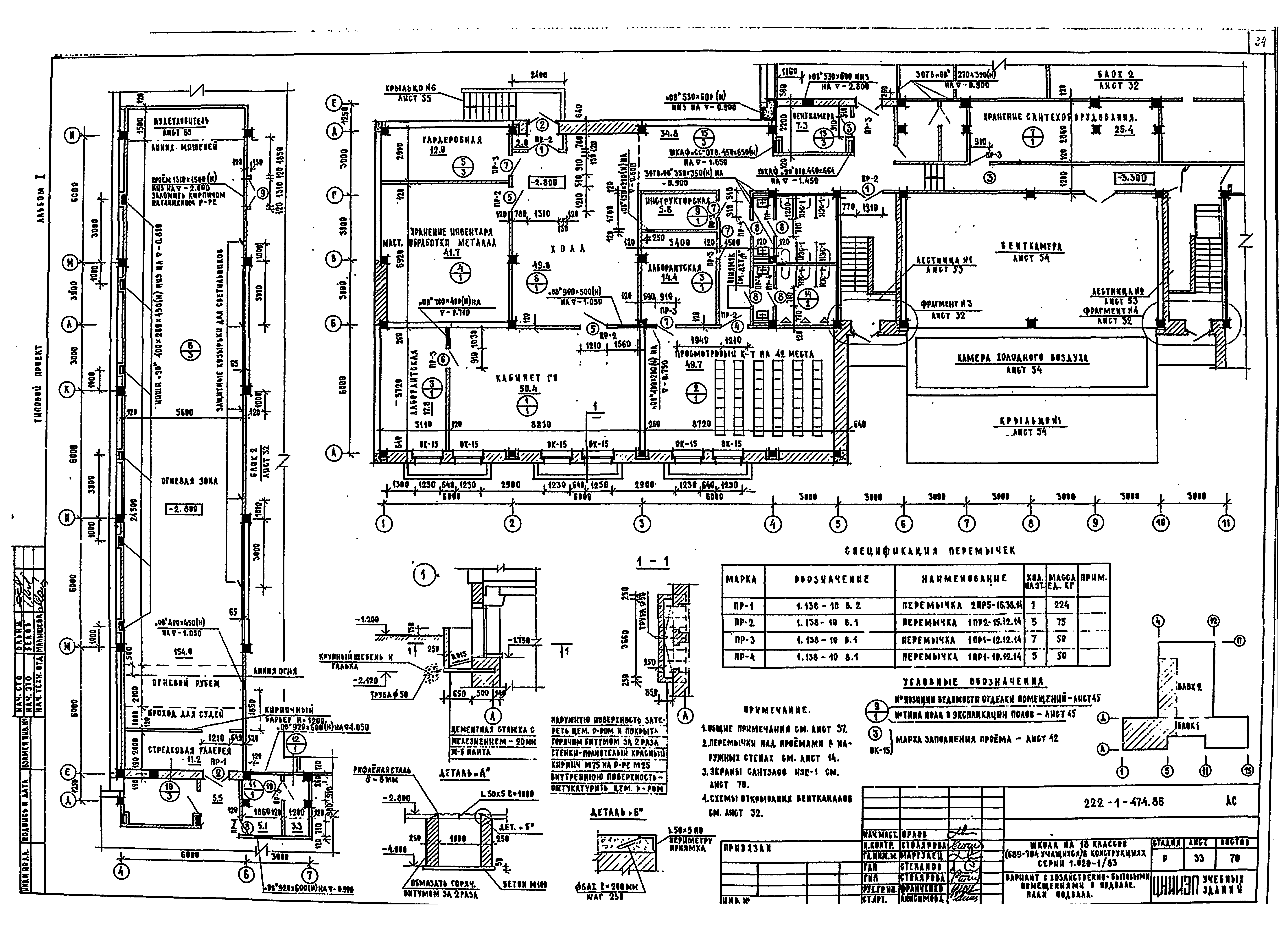
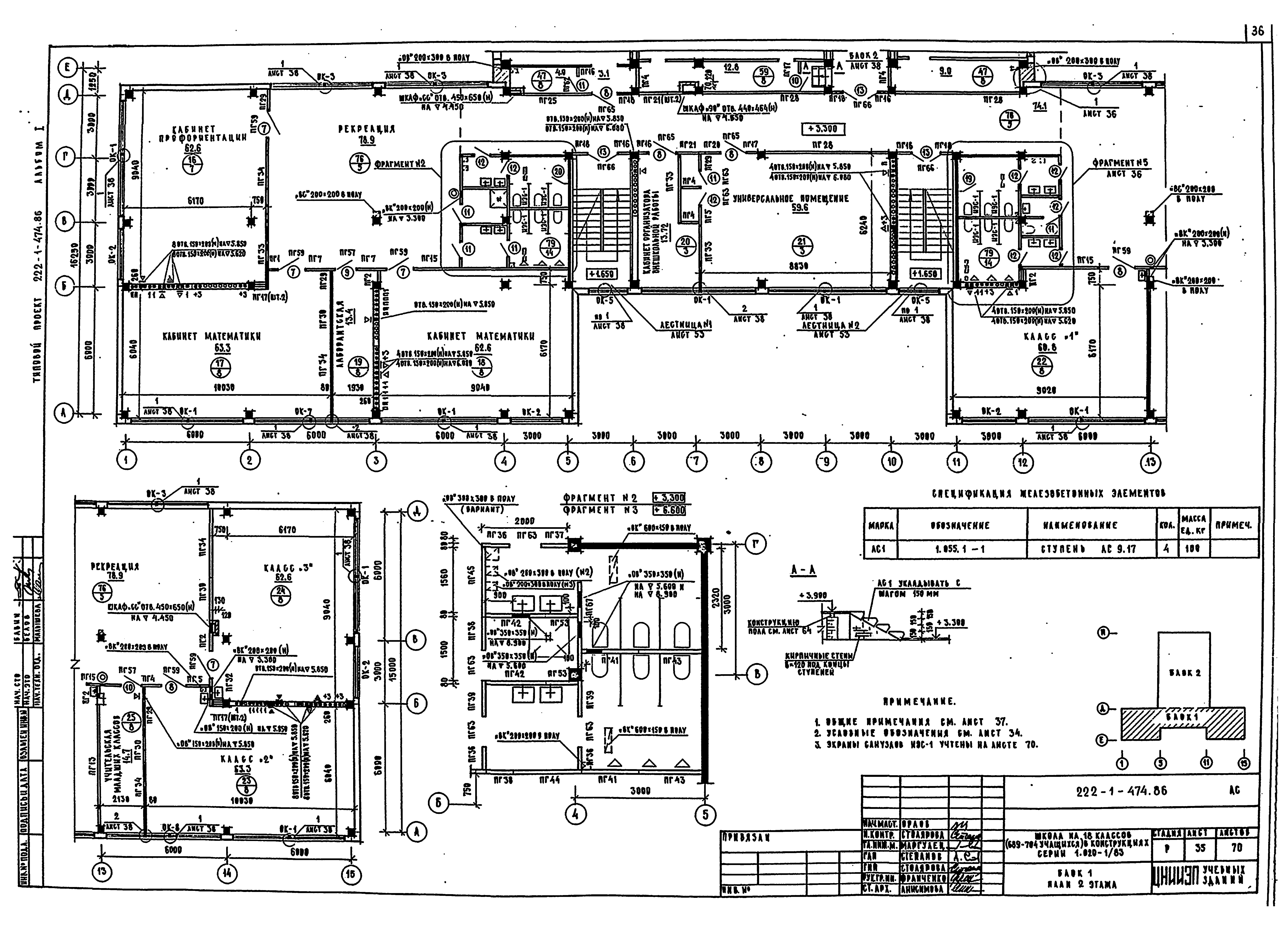
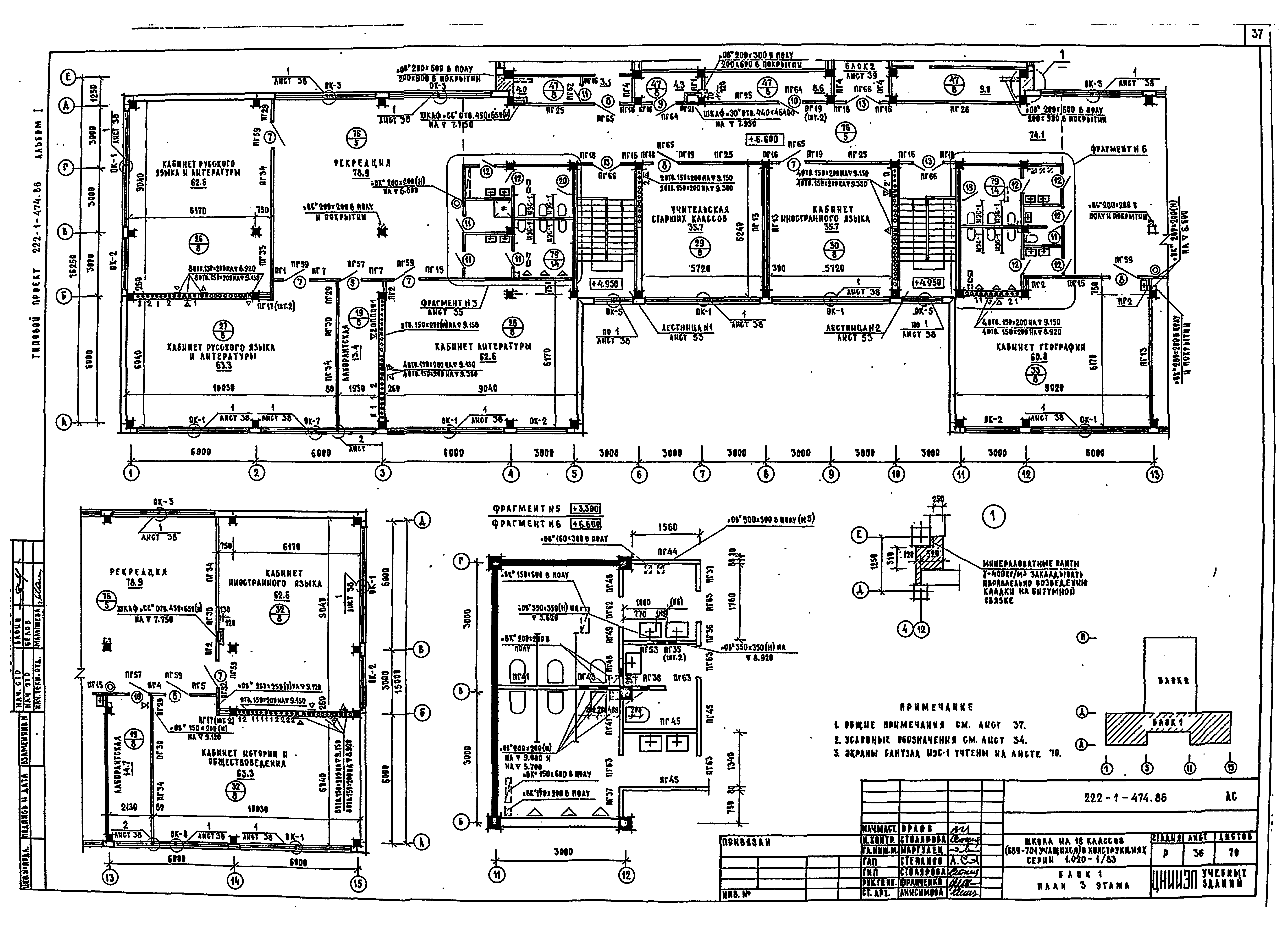
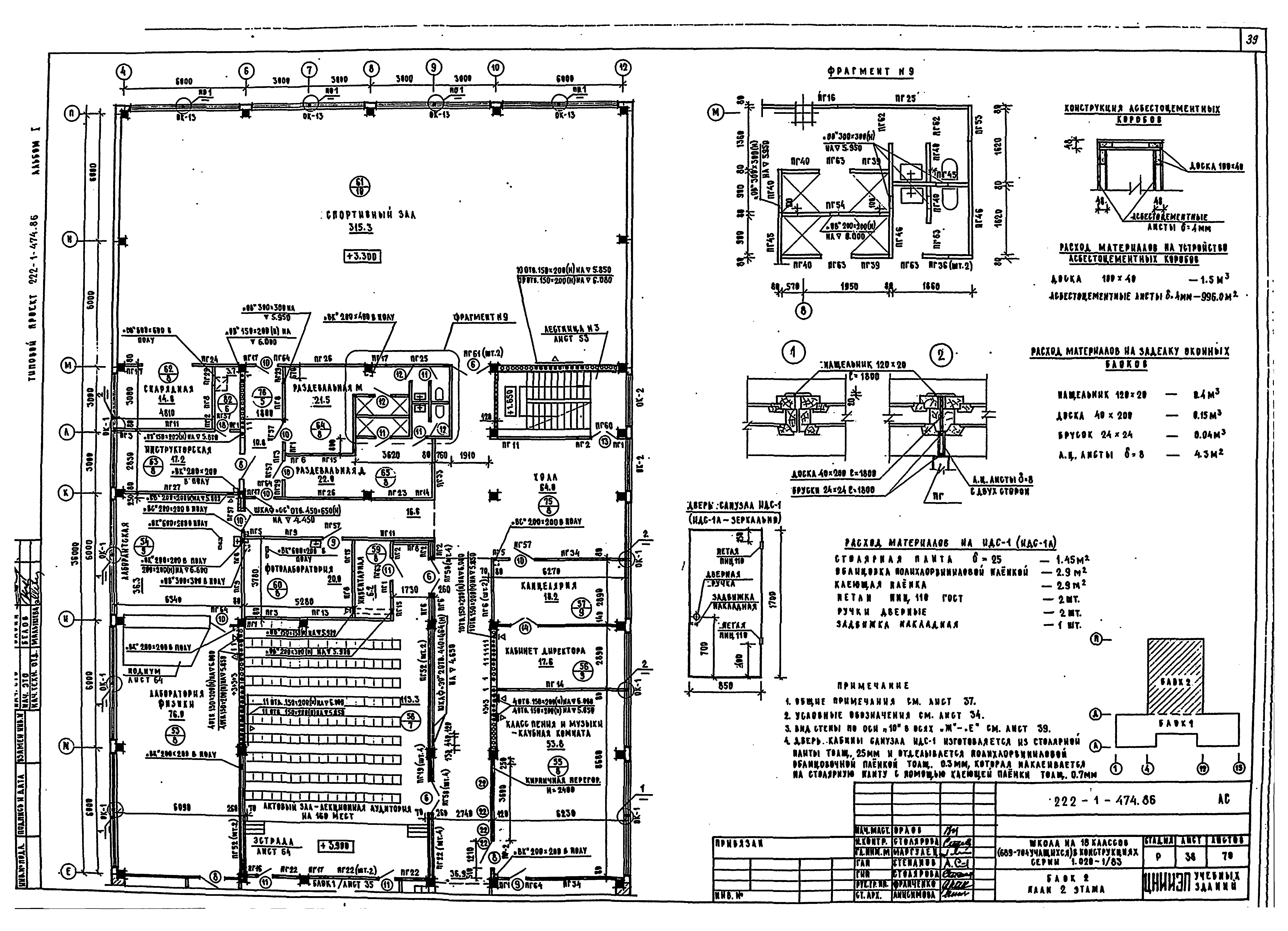
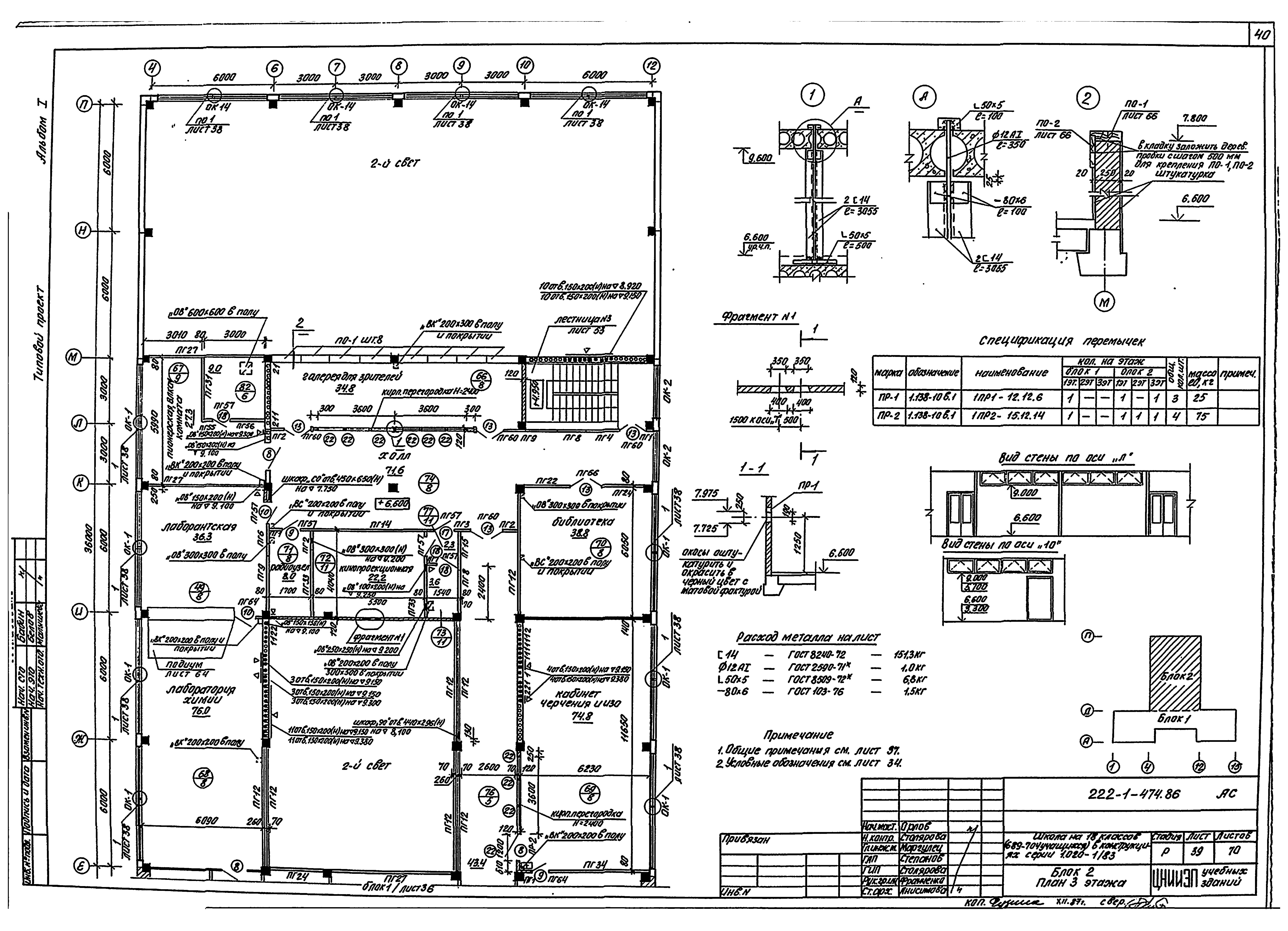
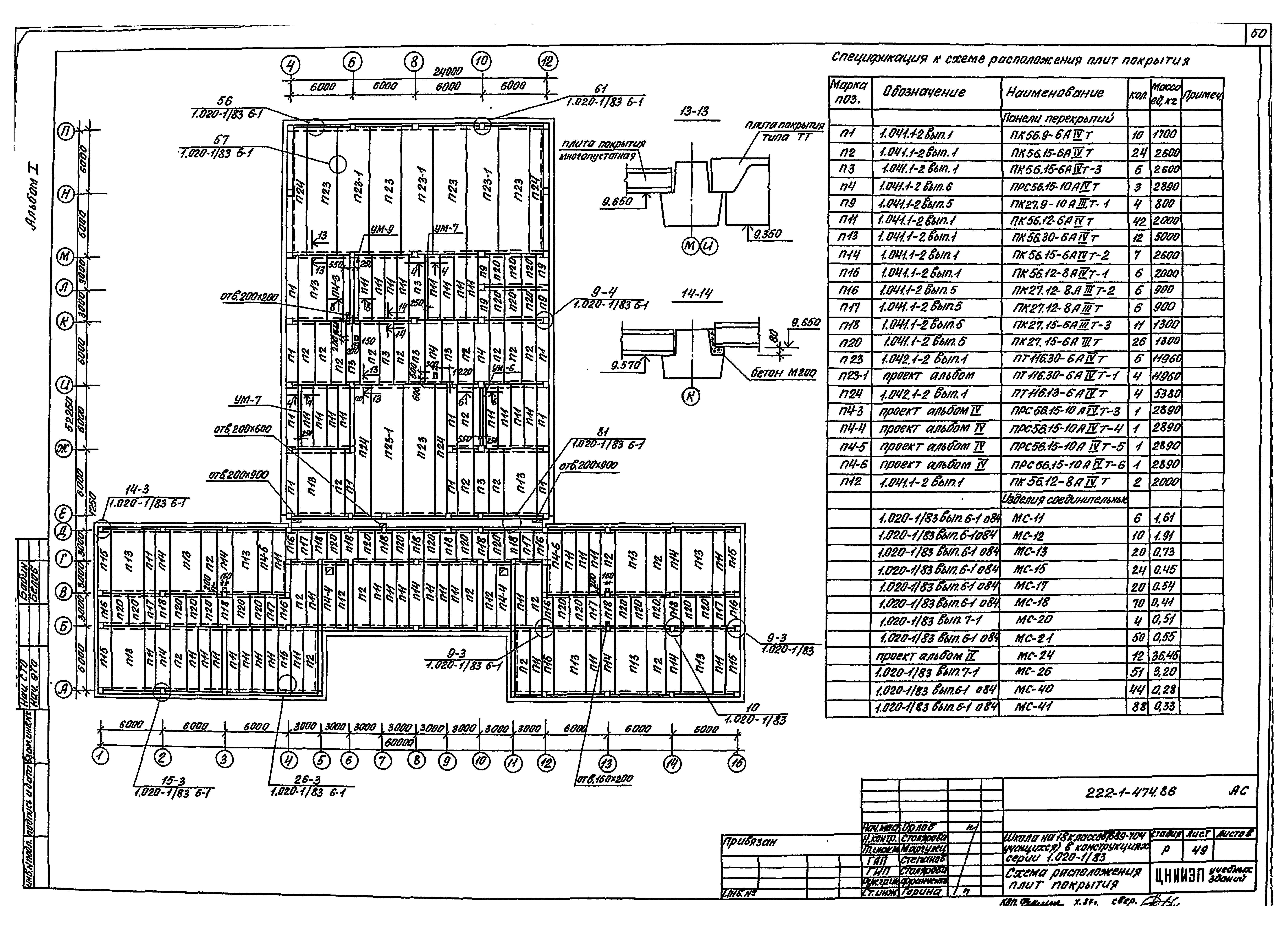
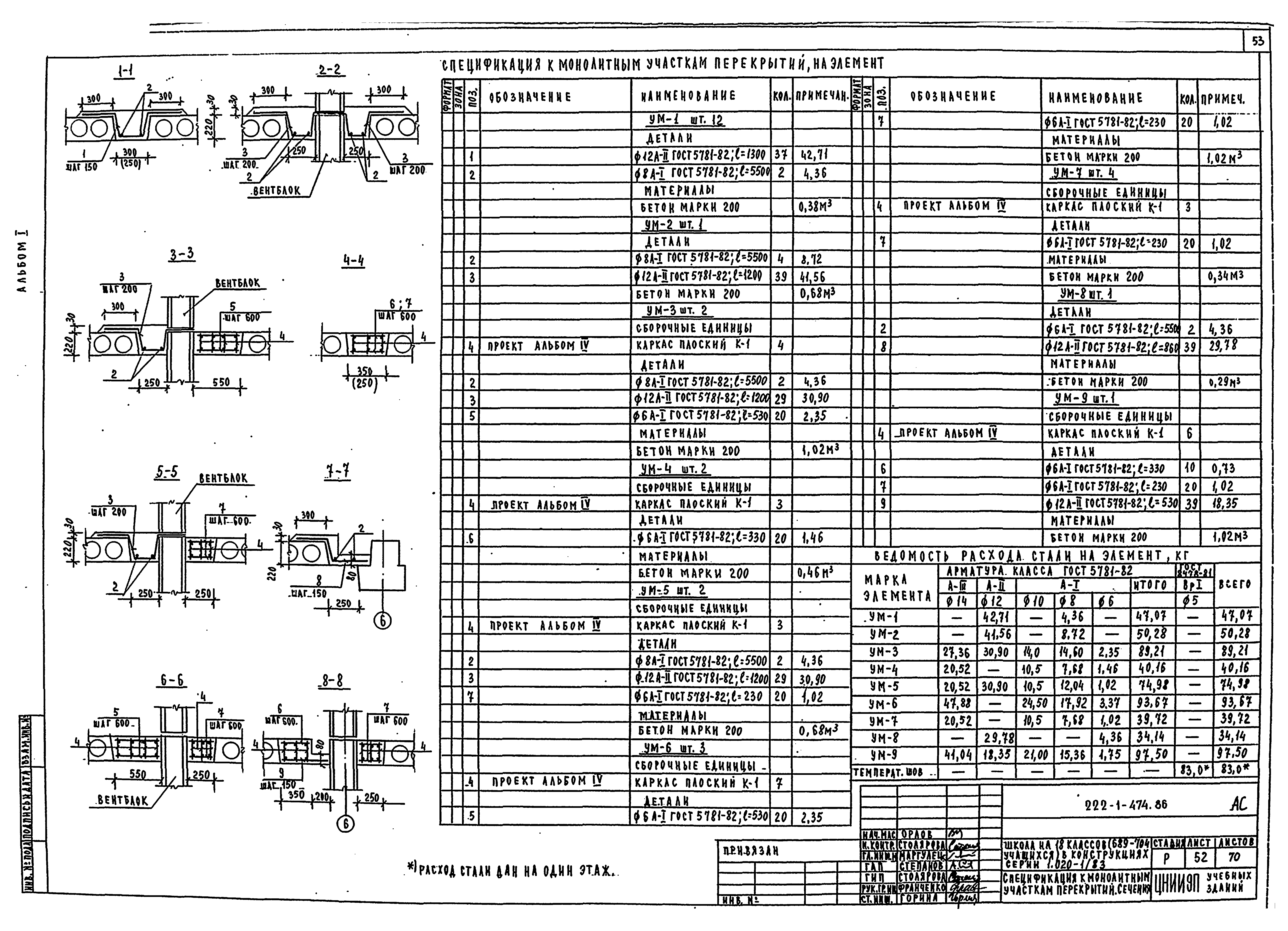
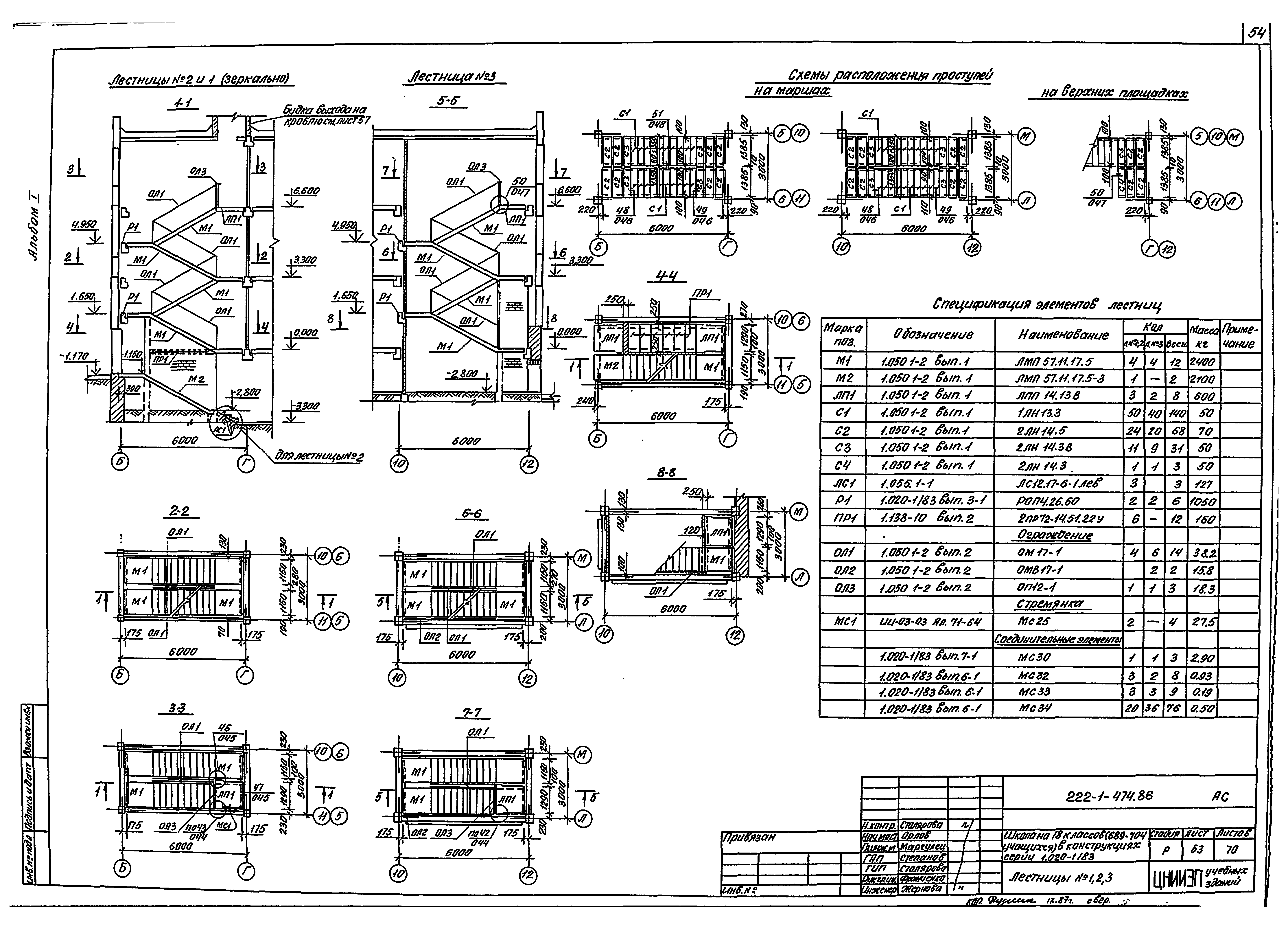
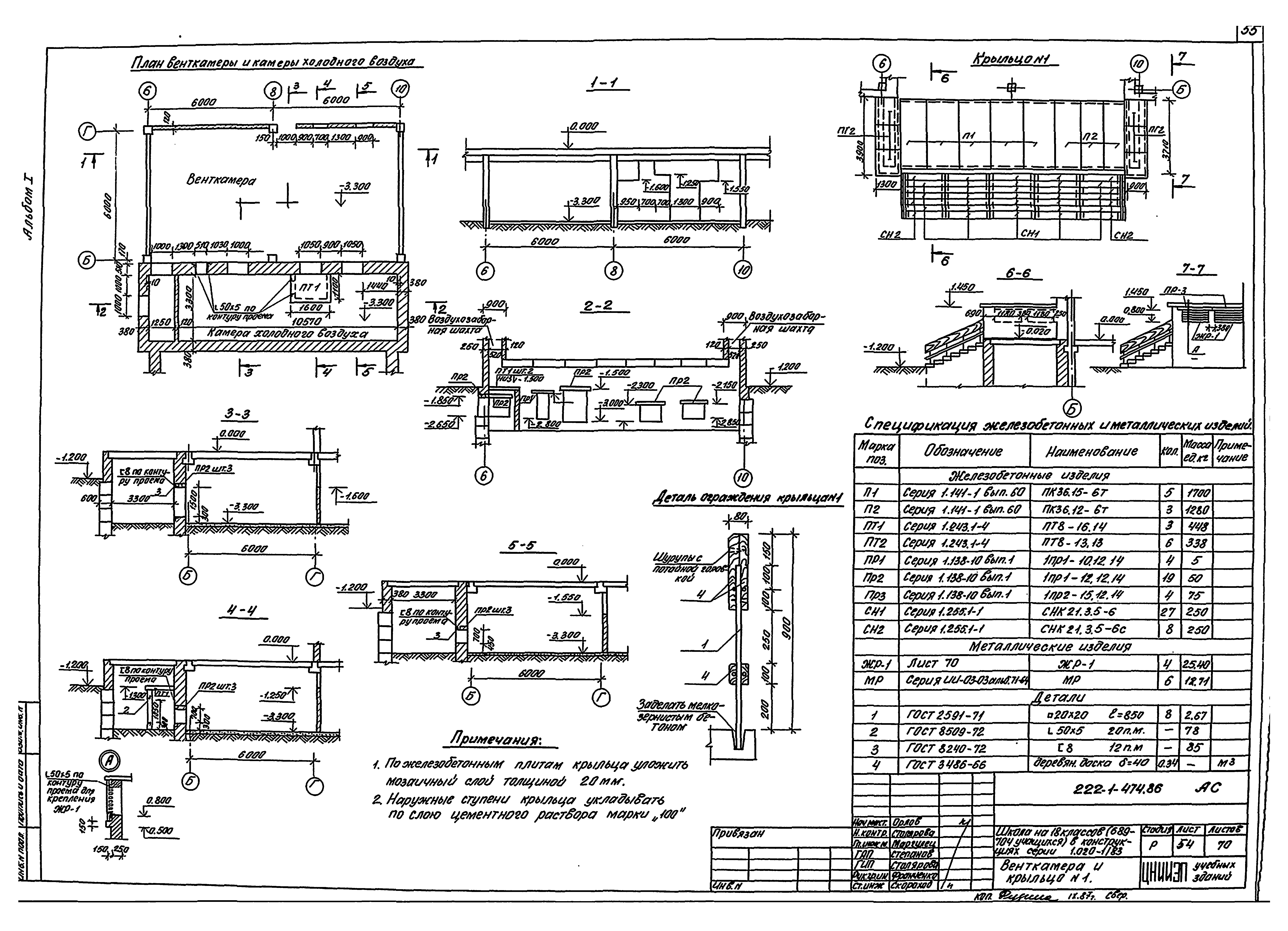
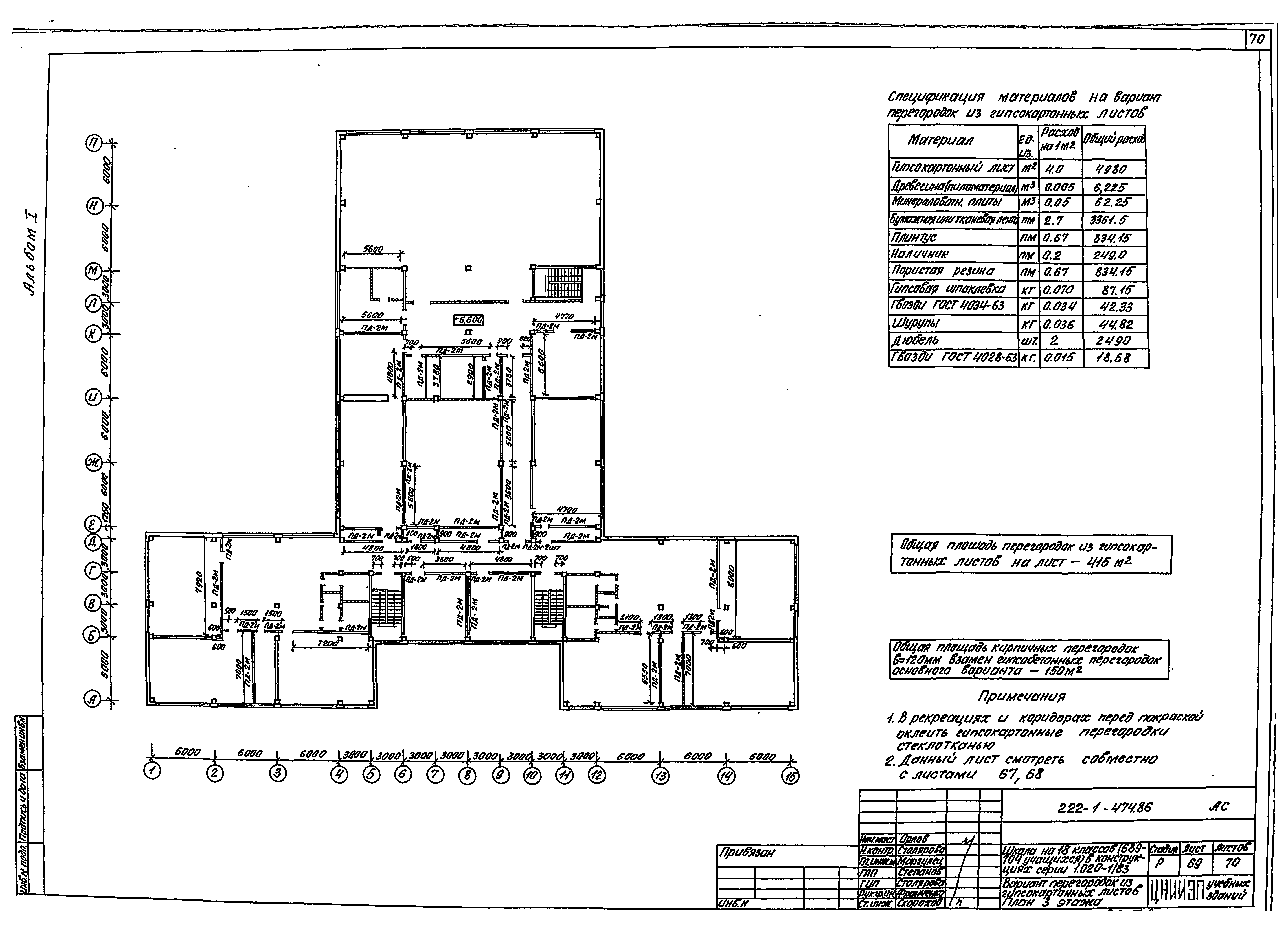
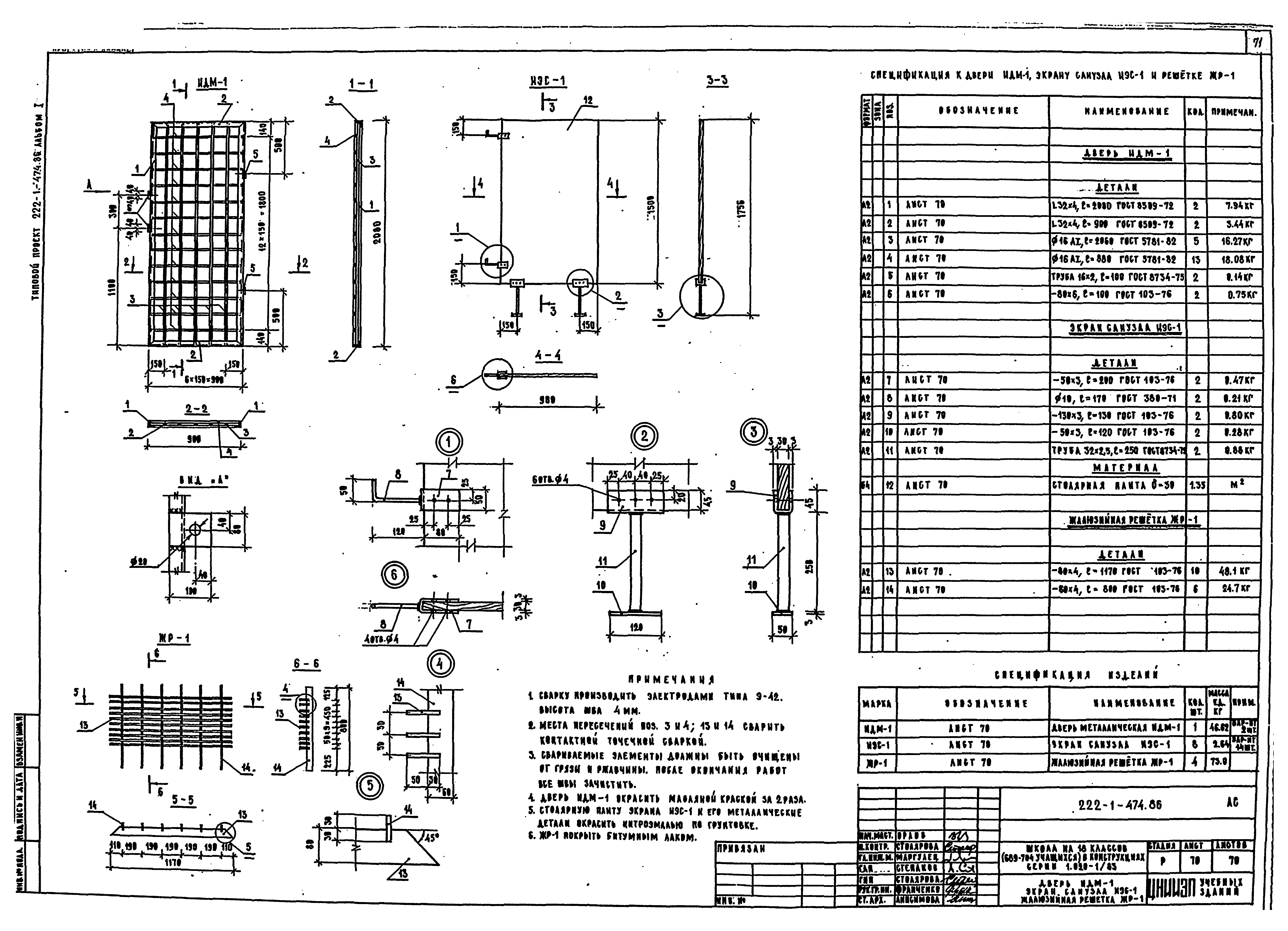
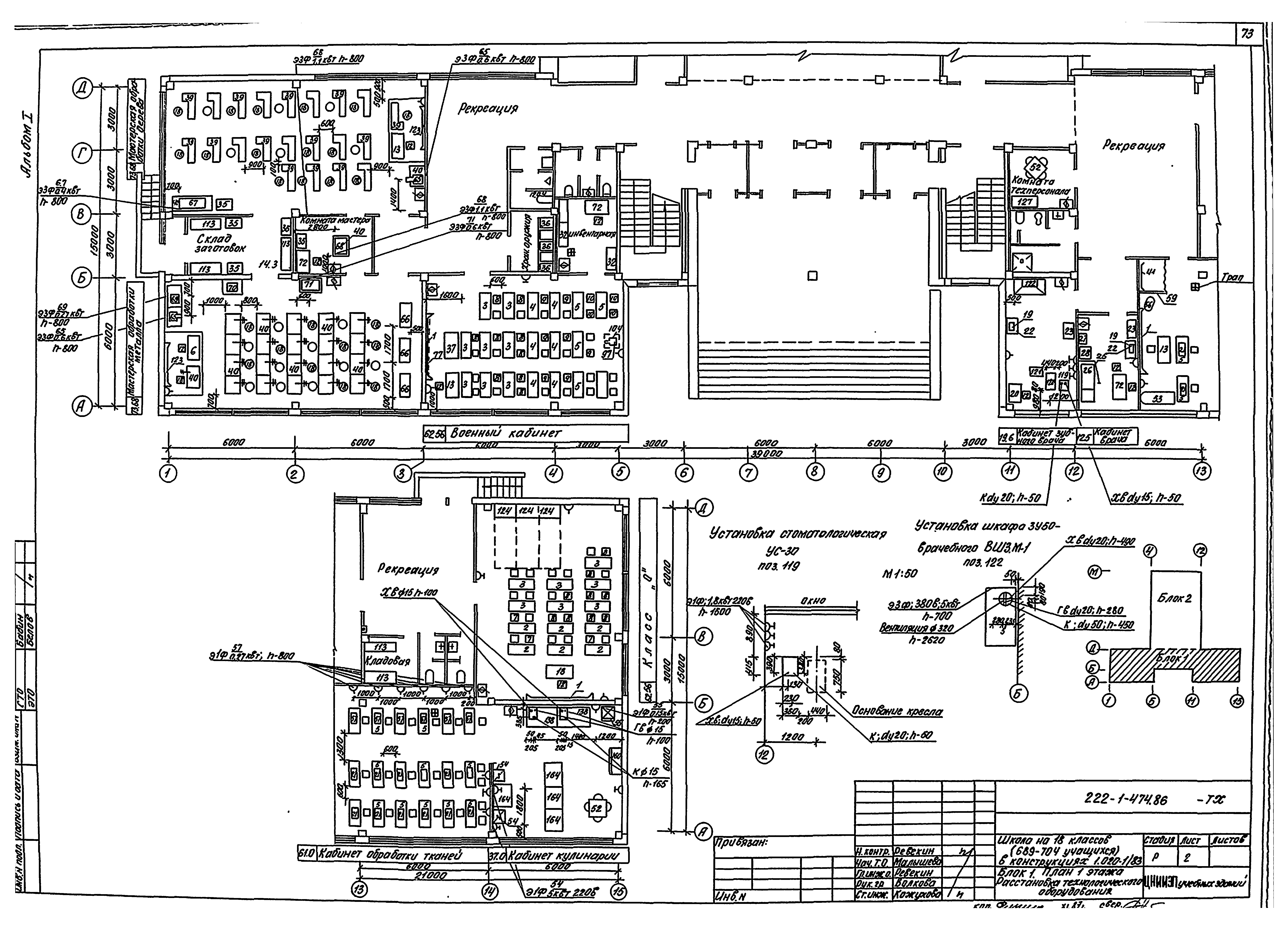
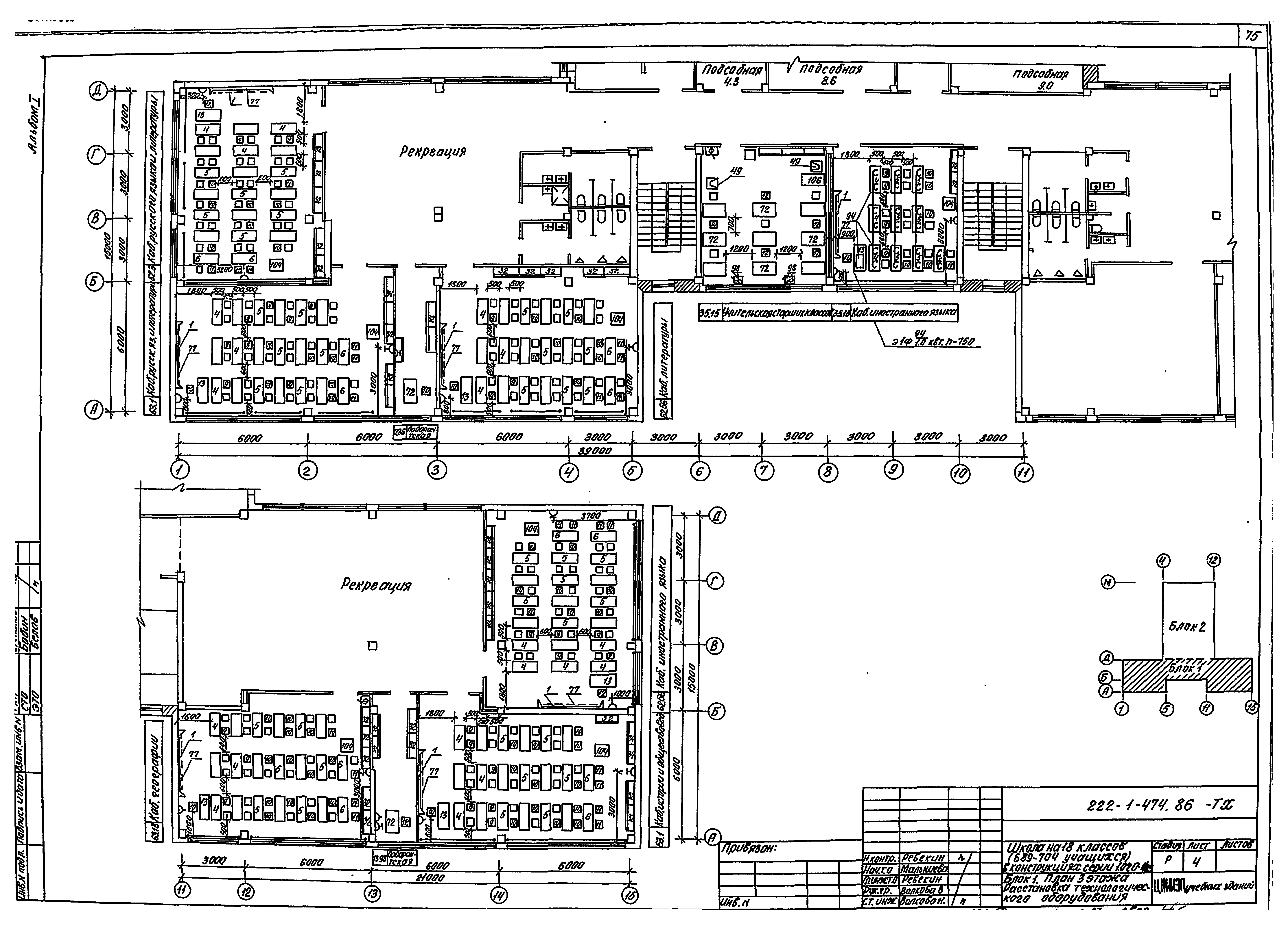
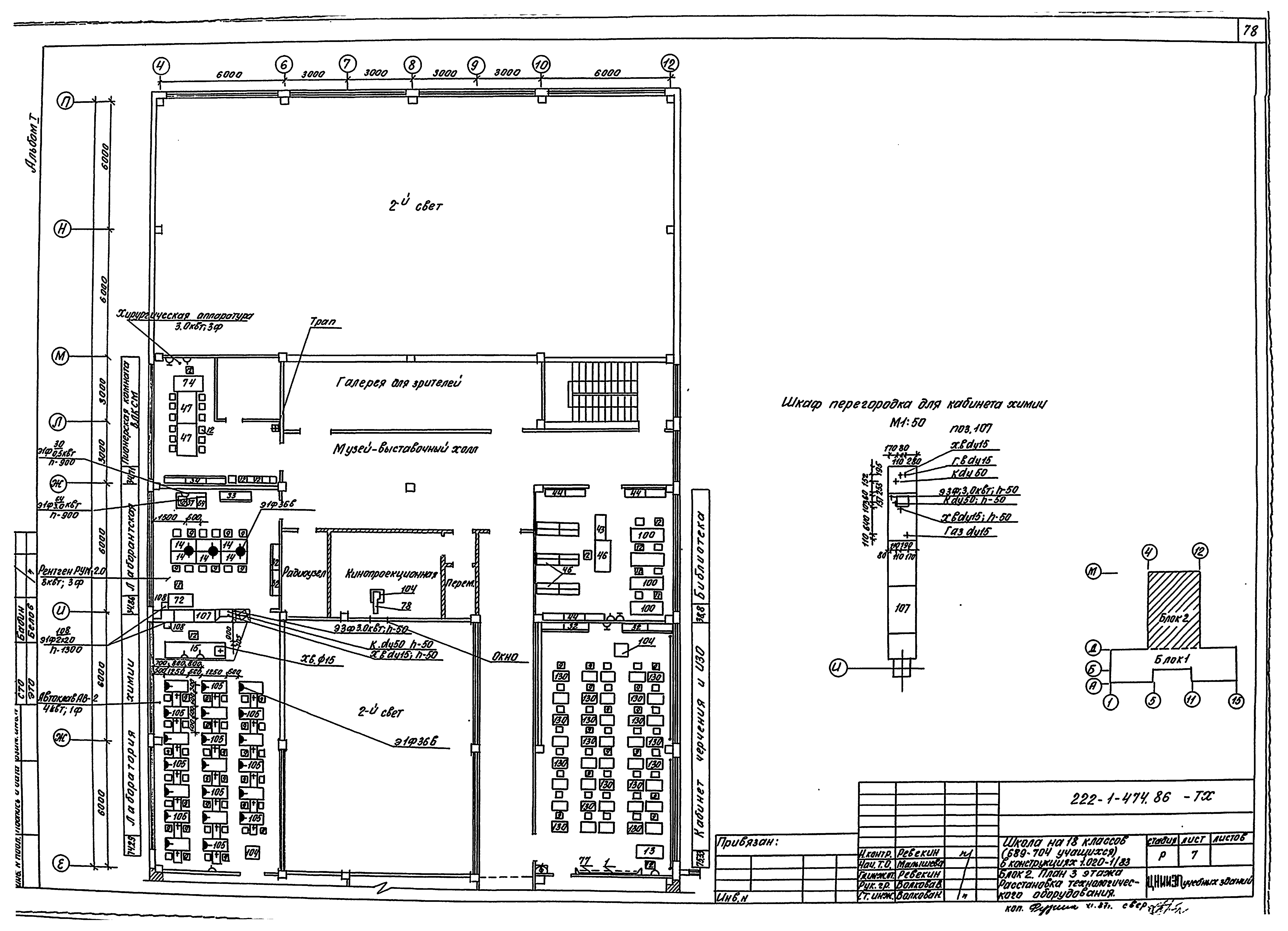
| Оглавление: | Чертежи основного комплекта марки АС Общие данные Генплан (пример решения) Таблица нагрузок на фундаменты Схема расположения фундаментов. Спецификация Сечения фундаментов 1-1 - 12-12 Сечения фундаментов 13-13 - 23-23 Схема подготовки пола техподполья Схема расположения фундаментов. Спецификация Сечения фундаментов 1-1 - 12-12, 24-24. Вариант с хозяйственно-бытовыми помещениями в подвале Сечения фундаментов 13-13 - 23-23, 25-25, 26-26. Вариант с хозяйственно-бытовыми помещениями в подвале Развертки стен фундаментов по оси "А", "Д", "4". Вариант с хозяйственно-бытовыми помещениями в подвале Схема подготовки пола подвала и техподполья. Вариант с хозяйственно-бытовыми помещениями в подвале Схема расположения цокольных панелей основного решения и варианта с хозяйственно-бытовыми помещениями в подвале Монолитные фундаменты Ф5 - Ф10, МП1 - МП5. Опалубка и армирование Арматурные сетки. Ведомость расхода стали на элемент Спецификация к монолитным фундаментам. Спецификация к арматурным сеткам Схема расположения колонн и ригелей на отм. 0.000. Разрезы 1-1, 2-2 Схема расположения колонн и ригелей на отм. 3.300. Разрезы 3-3, 4-4 Схема расположения колонн и ригелей на отм. 6.600. Разрезы 5-5, 6-6 Схема расположения колонн и ригелей на отм. 9.900. Разрезы 7-7, 12-12 Разрезы 8-8 - 10-10, 13-13 - 15-15 к схемам расположения колонн и ригелей Разрезы 11-11, 16-16 и спецификация к схемам расположения колонн и ригелей Схема расположения колонн и ригелей на отм. 0.000. Разрезы 17-17, 18-18. Вариант с хозяйственно-бытовыми помещениями в подвале Разрезы 19-19, 20-20, 23-23, 24-24 к схемам расположения колонн и ригелей. Вариант с хозяйственно-бытовыми помещениями в подвале Разрезы 21-21, 22-22, 25-25, 26-26 к схемам расположения колонн и ригелей. Вариант с хозяйственно-бытовыми помещениями в подвале Спецификация к схемам расположения колонн и ригелей. Вариант с хозяйственно-бытовыми помещениями в подвале Схемы расположения диафрагм жесткости и вентблоков Схемы расположения диафрагм жесткости и вентблоков. Вариант с хозяйственно-бытовыми помещениями в подвале Блок 1. Блок 2. План подвала и техподполья Вариант с хозяйственно-бытовыми помещениями в подвале. План подвала Блок 1. План 1 этажа Блок 1. План 2 этажа Блок 1. План 3 этажа Блок 2. План 1 этажа Блок 2. План 2 этажа Блок 2. План 3 этажа Фасады 1 - 15, 15 - 1, А - П, П - А Разрезы Ведомость и спецификация элементов заполнения оконных проемов. Спецификация элементов заполнения проемов варианта хозяйственно-бытовых помещений в подвале Спецификация гипсобетонных перегородок. Спецификация элементов заполнения проемов. Спецификация соединительных элементов перегородок Ведомость отделки помещения Экспликация полов. Ведомость отделки помещений и экспликация полов варианта хозяйственно-бытовых помещений в подвале Схема расположения плит перекрытия на отм. 0.000 Схема расположения плит перекрытия на отм. 3.300 Схема расположения плит перекрытия на отм. 6.600 Схема расположения плит покрытия Схема расположения плит перекрытия на отм. 0.000. Вариант с хозяйственно-бытовыми помещениями в подвале Привязка отверстий в перекрытиях для пропуска технических коммуникаций Спецификация к монолитным участкам перекрытий. Сечения Лестницы №1, 2, 3 Венткамера и крыльцо №1 Схемы расположения крылец №№2, 3, 4, 5, 6 План кровли. Сечения Кровля. Сечения Схемы расположения однослойных стеновых панелей Спецификация к схемам расположения однослойных стеновых панелей на t наружного воздуха минус 20 и минус 30 градусов Цельсия Схемы расположения трехслойных стеновых панелей Спецификация к схемам расположения трехслойных стеновых панелей на t наружного воздуха минус 30 и минус 40 градусов Цельсия Конструкция эстрады актового зала. Подиум для лабораторий Конструкция и детали пылеуловителя Ограждение радиаторов и окон спортзала ИОР-1, ПО-1, ПО-2 Вариант перегородок из гипсокартонных листов. План 1 этажа Вариант перегородок из гипсокартонных листов. План 2 этажа Вариант перегородок из гипсокартонных листов. План 3 этажа Дверь ИДМ-1. Экран санузла ИЭС-1, жалюзийная решетка ЖР1 Чертежи основного комплекта марки ТХ Общие данные Блок 1. План 1 этажа. Расстановка технологического оборудования Блок 1. План 2 этажа. Расстановка технологического оборудования Блок 1. План 3 этажа. Расстановка технологического оборудования Блок 2. План 1 этажа. Расстановка технологического оборудования Блок 2. План 2 этажа. Расстановка технологического оборудования Блок 2. План 3 этажа. Расстановка технологического оборудования Блок 1; 2. План подвала (вариант). Расстановка технологического оборудования Приспособление под лечебное учреждение ТХЛ План 1 этажа План 2 этажа План 3 этажа |
| Разработан: | ЦНИИЭП учебных зданий |
| Утверждён: | 20.05.1983 Госгражданстрой (Gosgrazhdanstroy 159) |


















































































