Скачать Типовой проект 222-1-474.86 Альбом III. Электротехнические чертежиДата актуализации: 01.01.2021
|
| Обозначение: | Типовой проект 222-1-474.86 |
| Обозначение англ: | 222-1-474.86 |
| Статус: | не определен законодательством |
| Название рус.: | Альбом III. Электротехнические чертежи |
| Дата добавления в базу: | 01.09.2013 |
| Дата актуализации: | 01.01.2021 |
| Дата введения: | 10.04.1986 |
| Дата окончания срока действия: | 30.06.2003 |
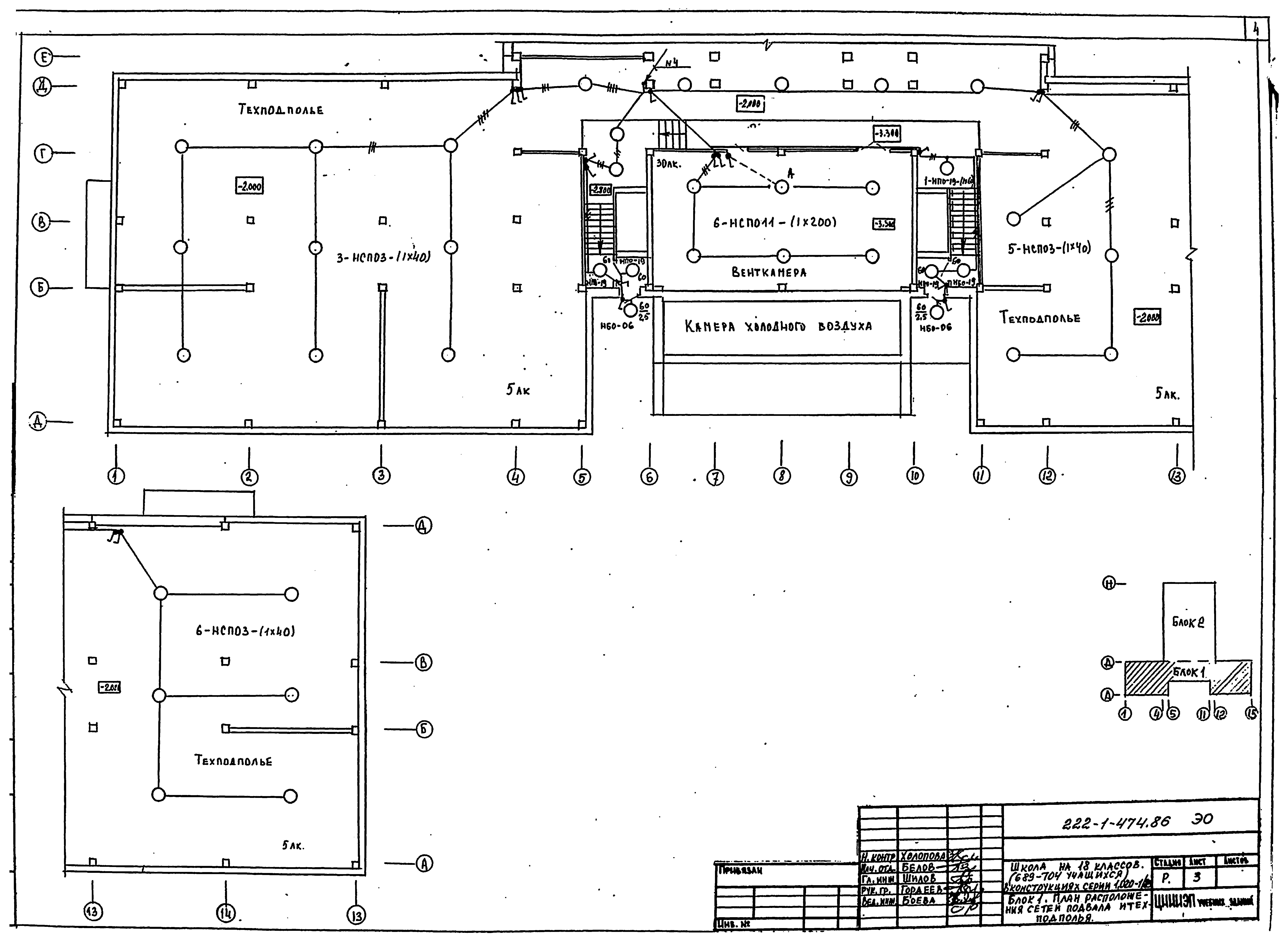
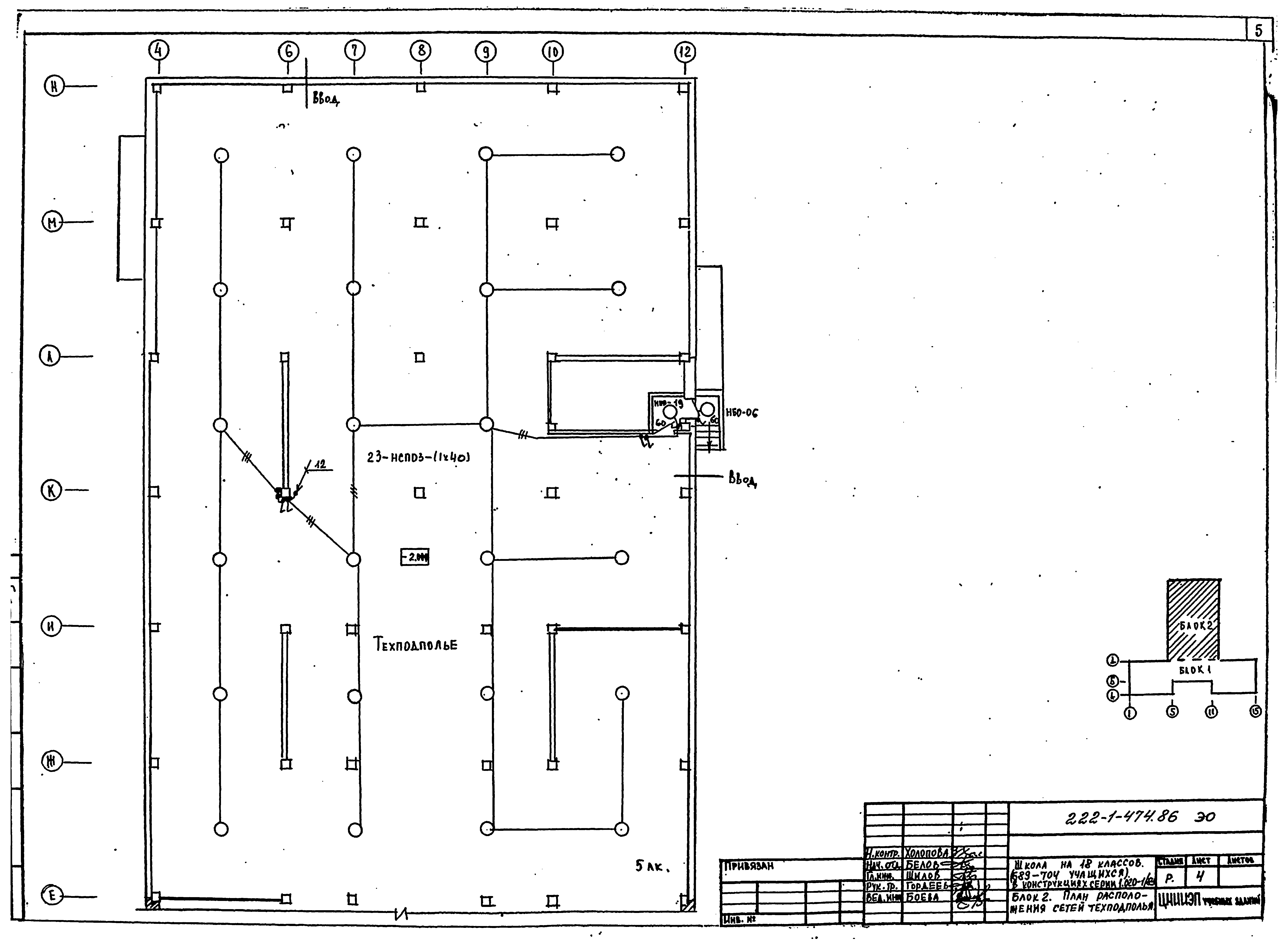
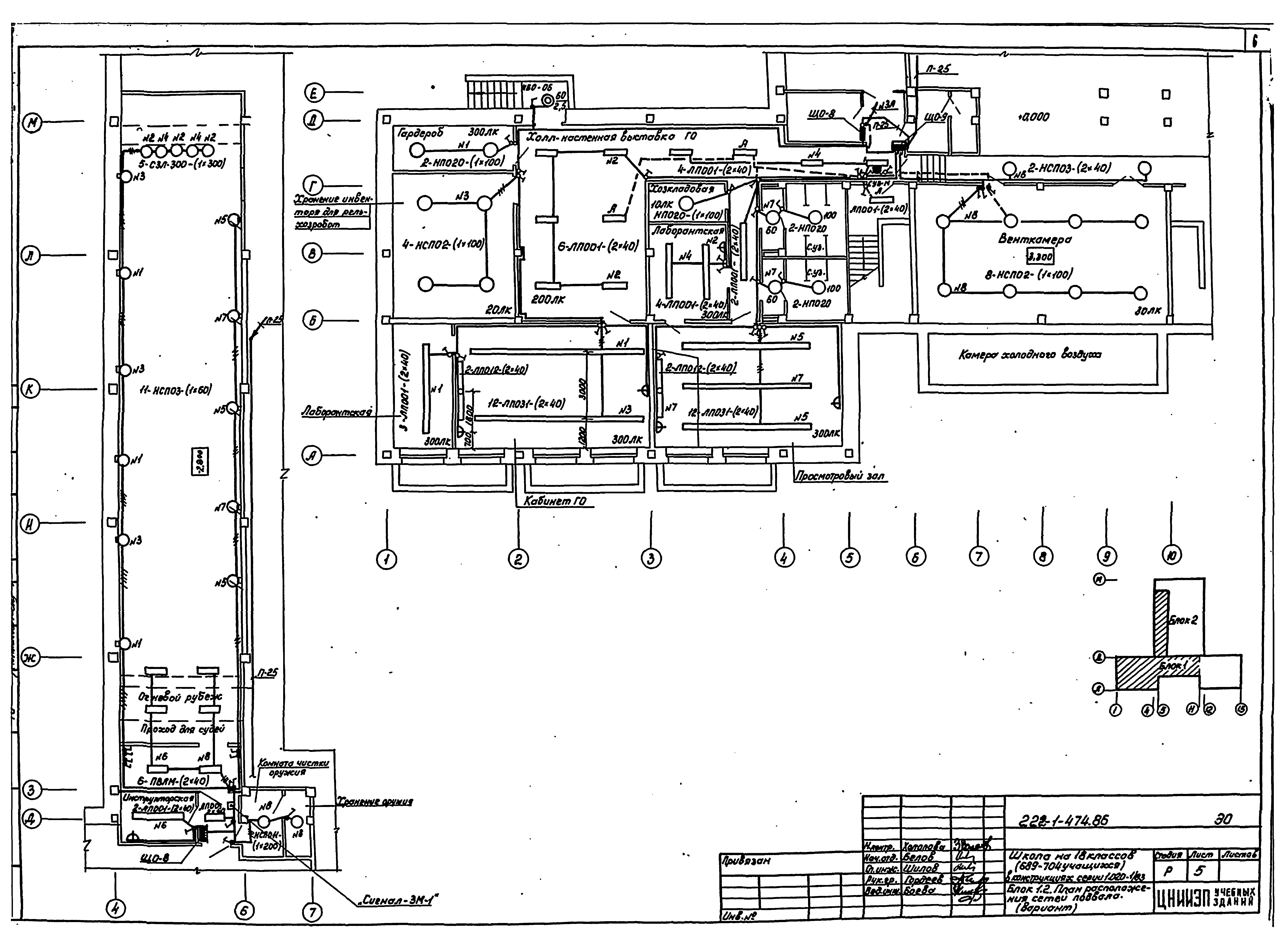
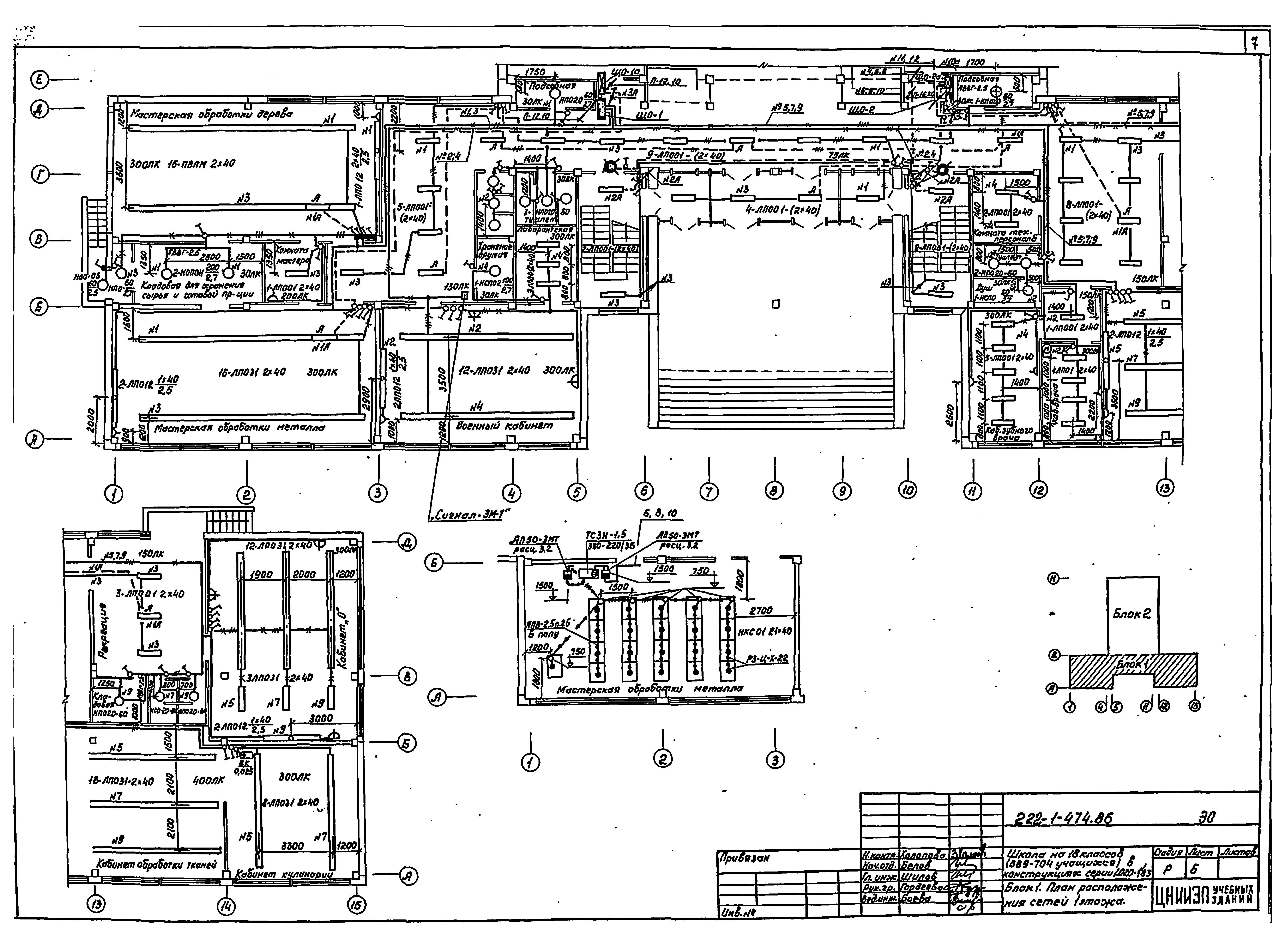
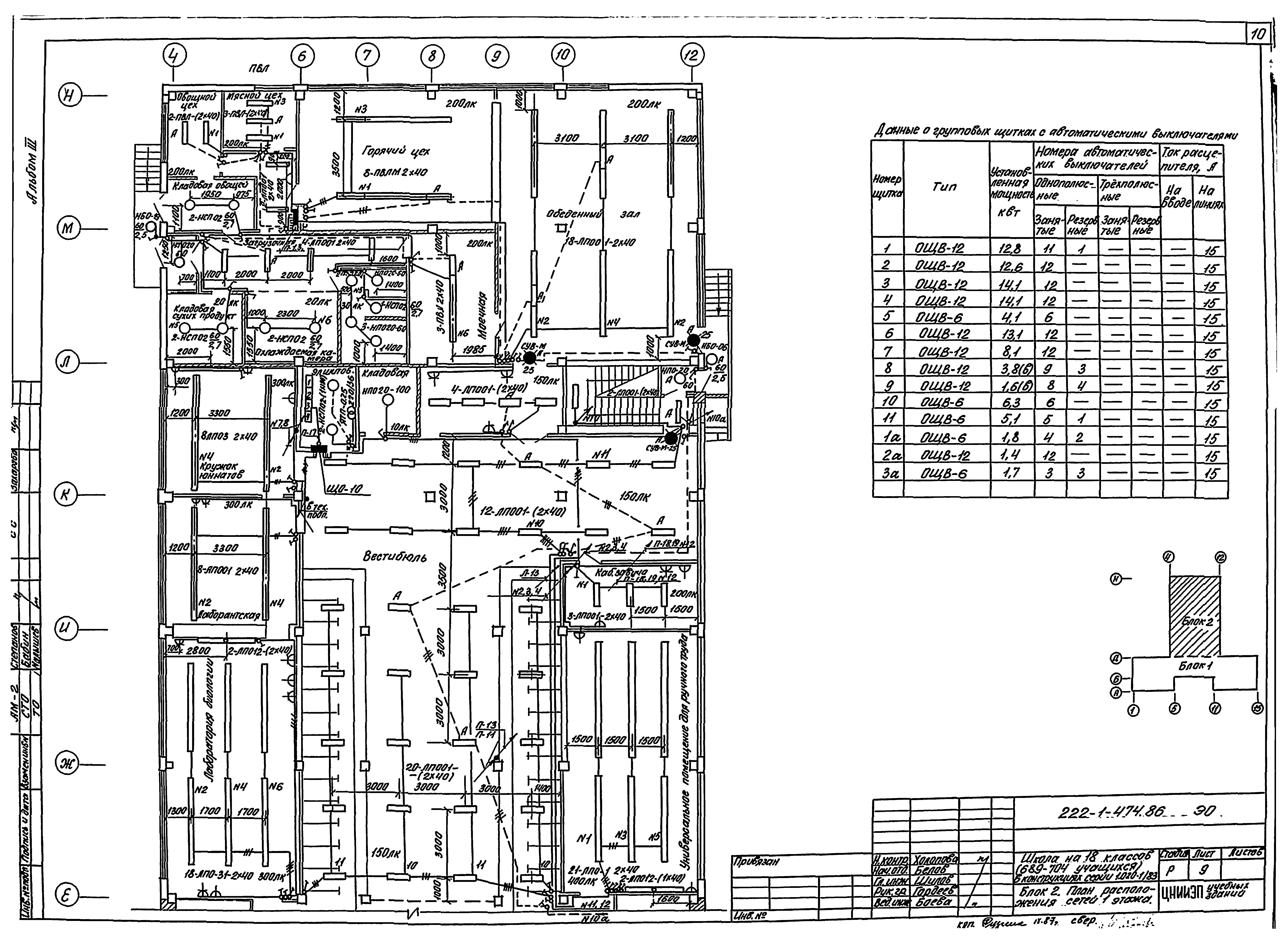
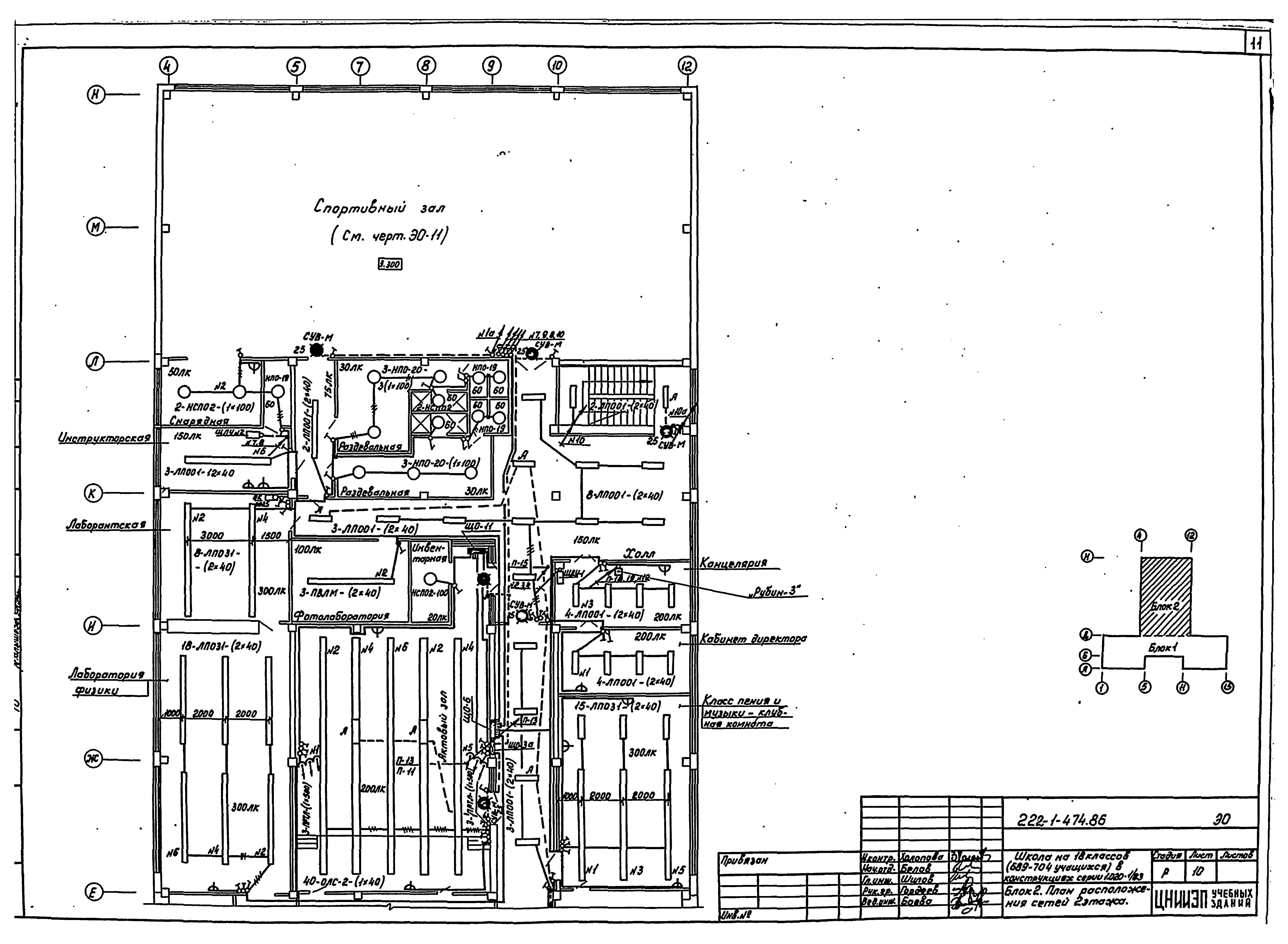
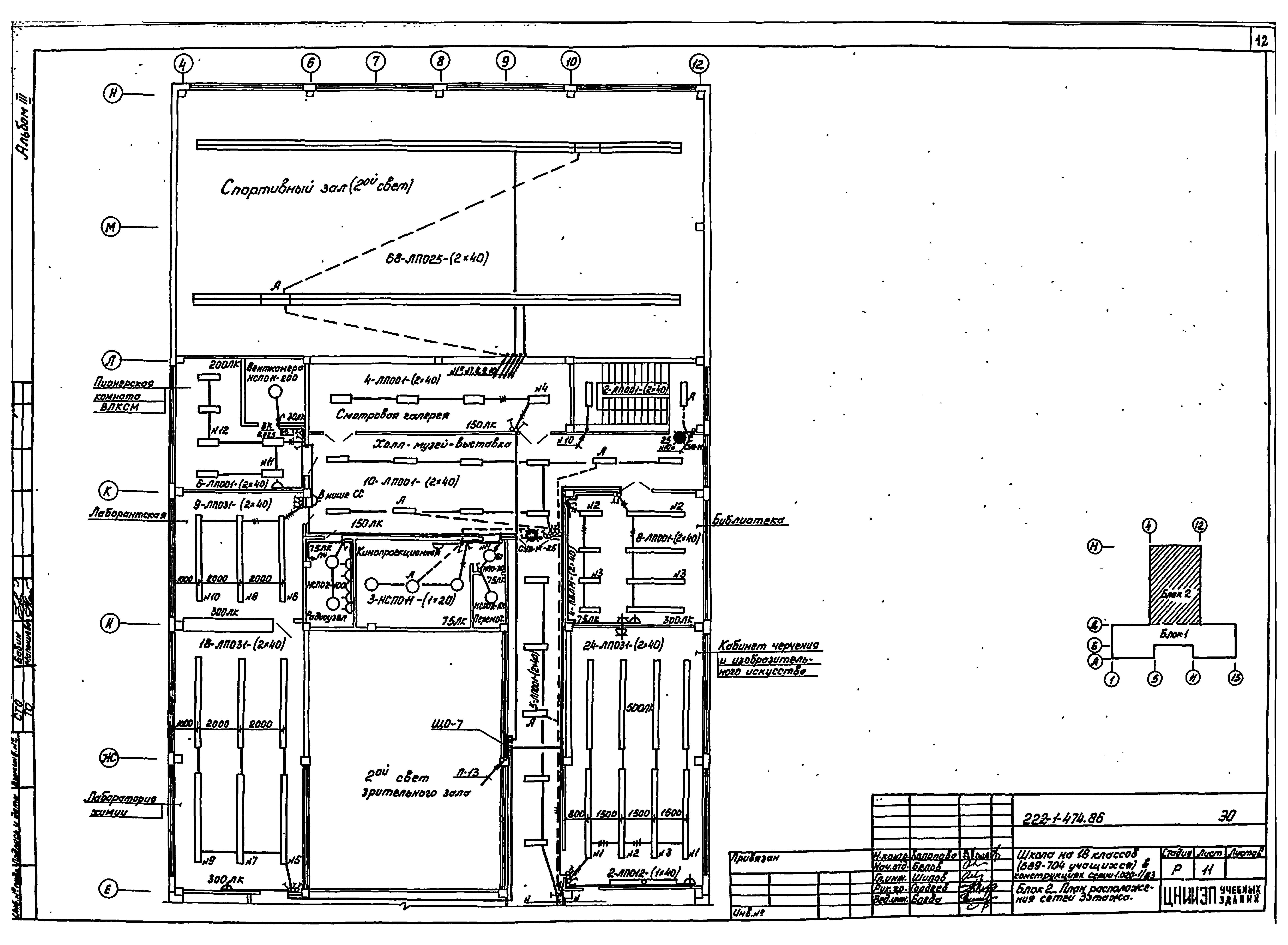
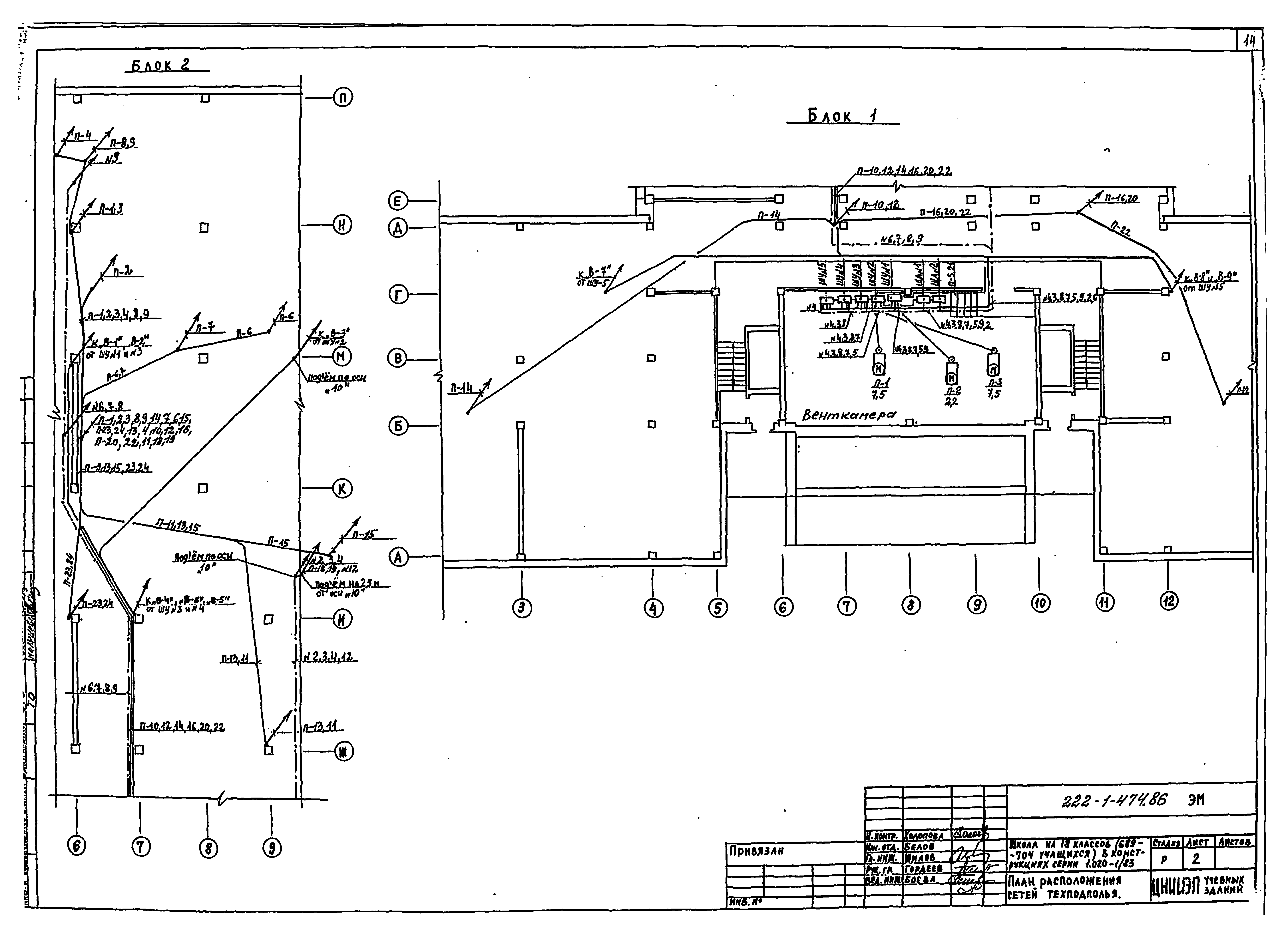
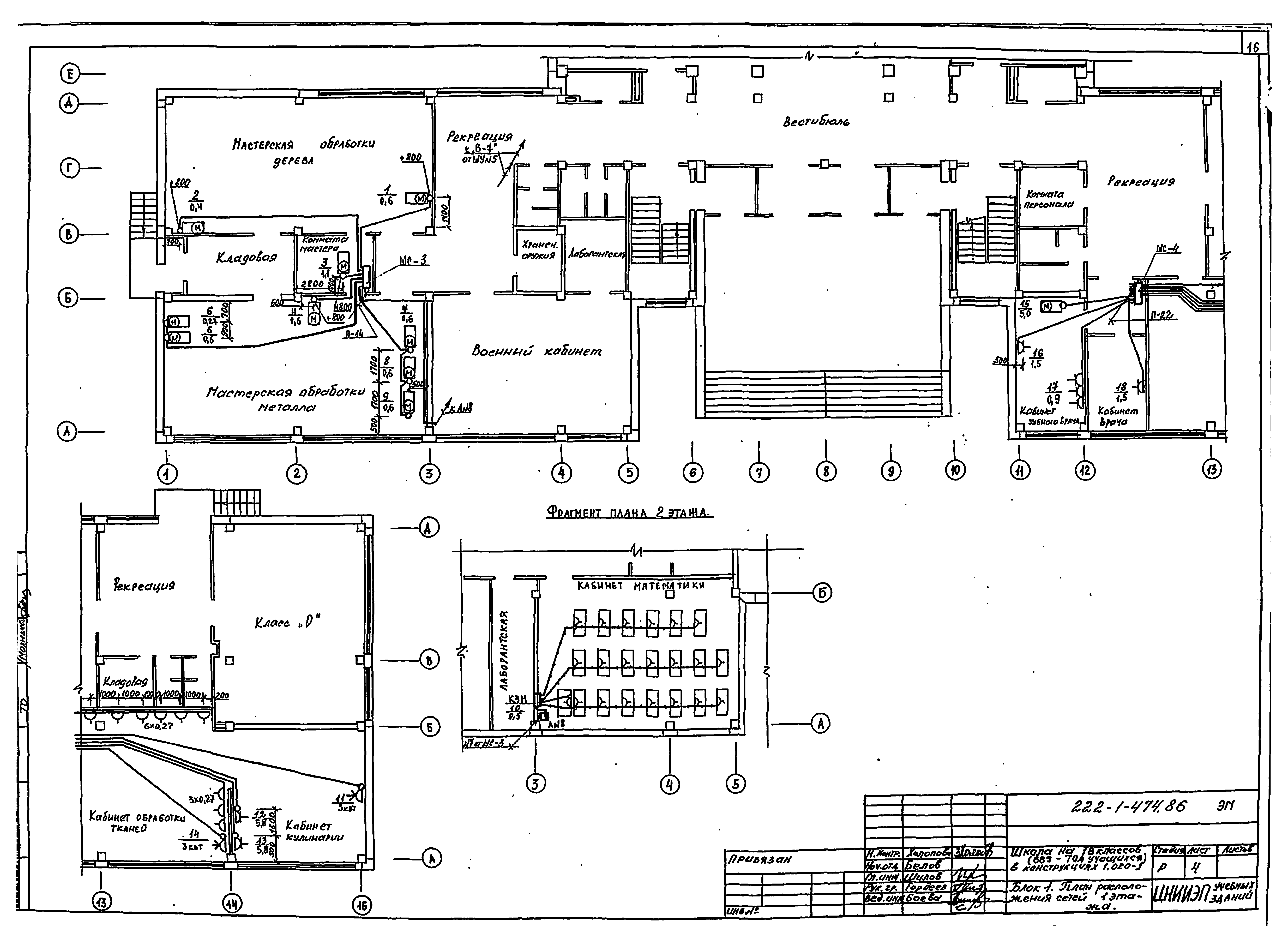
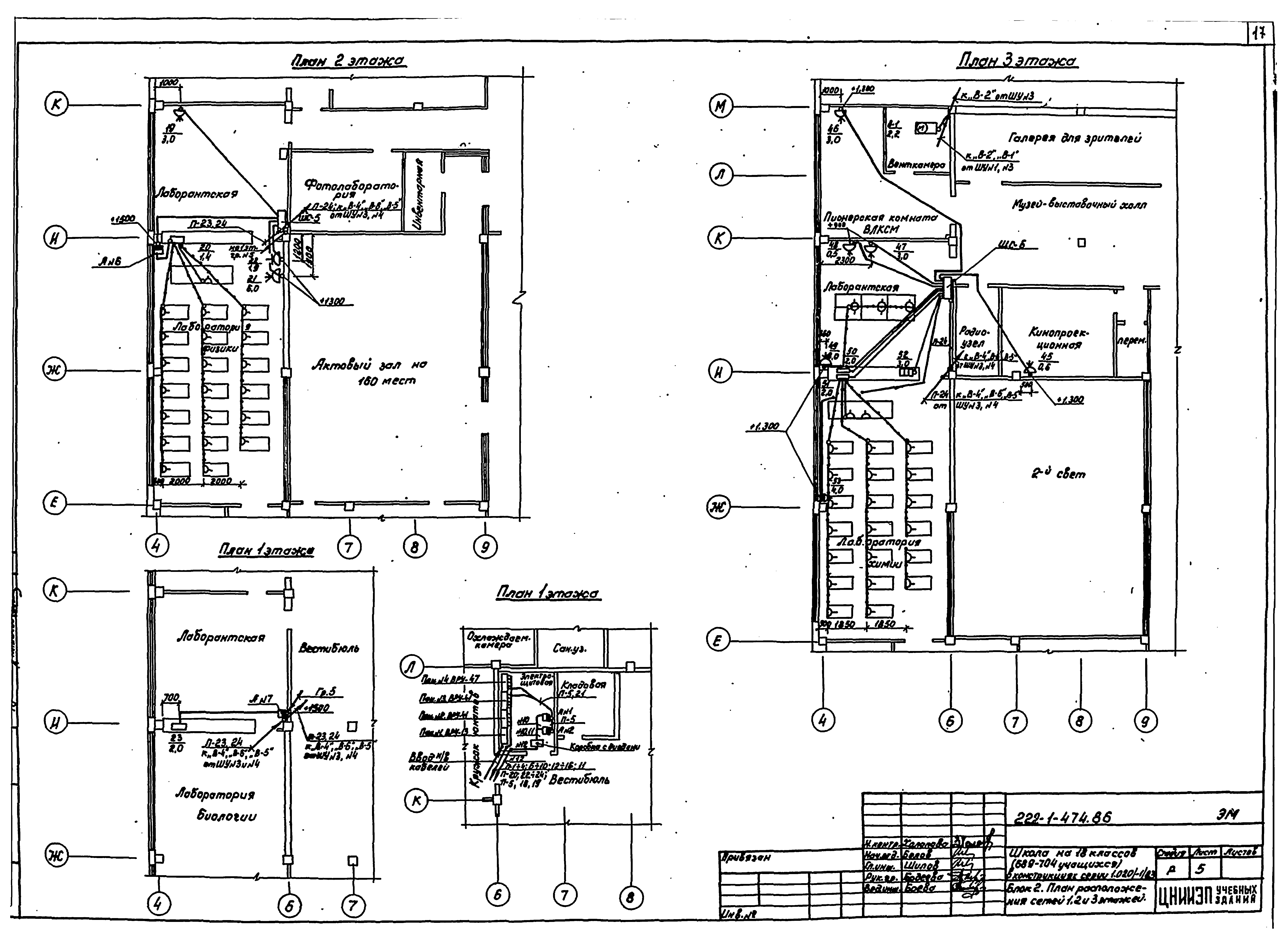
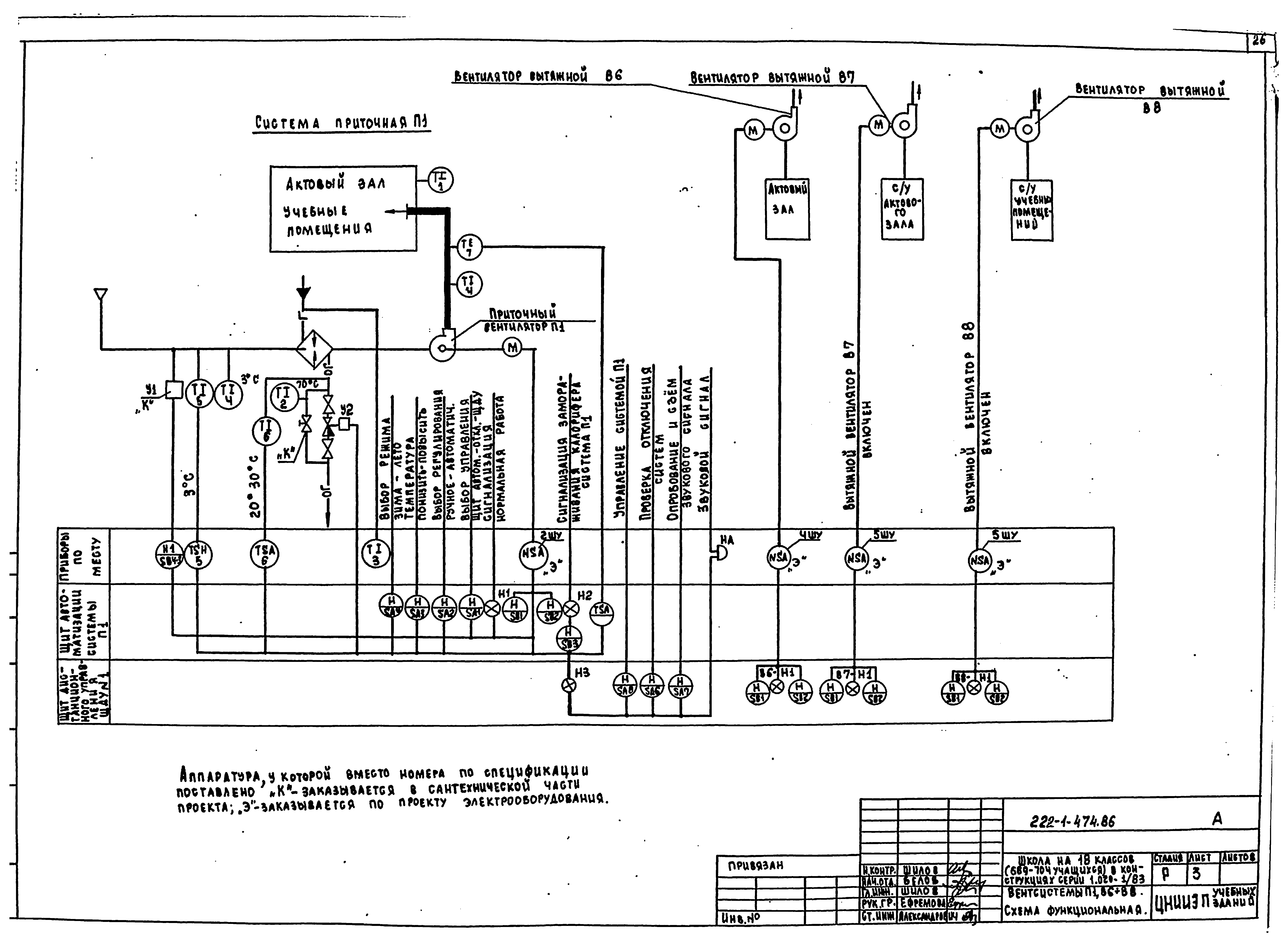
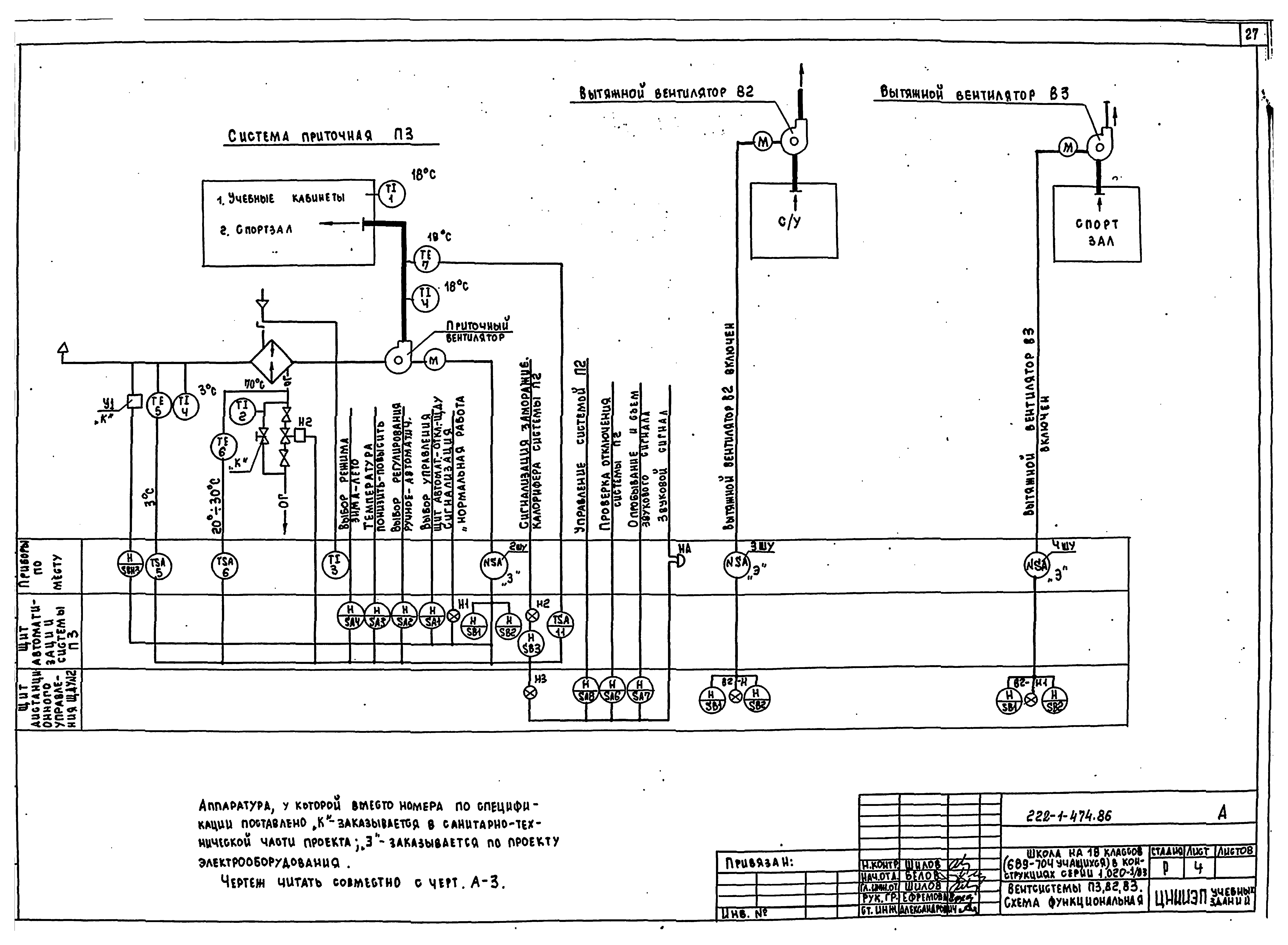
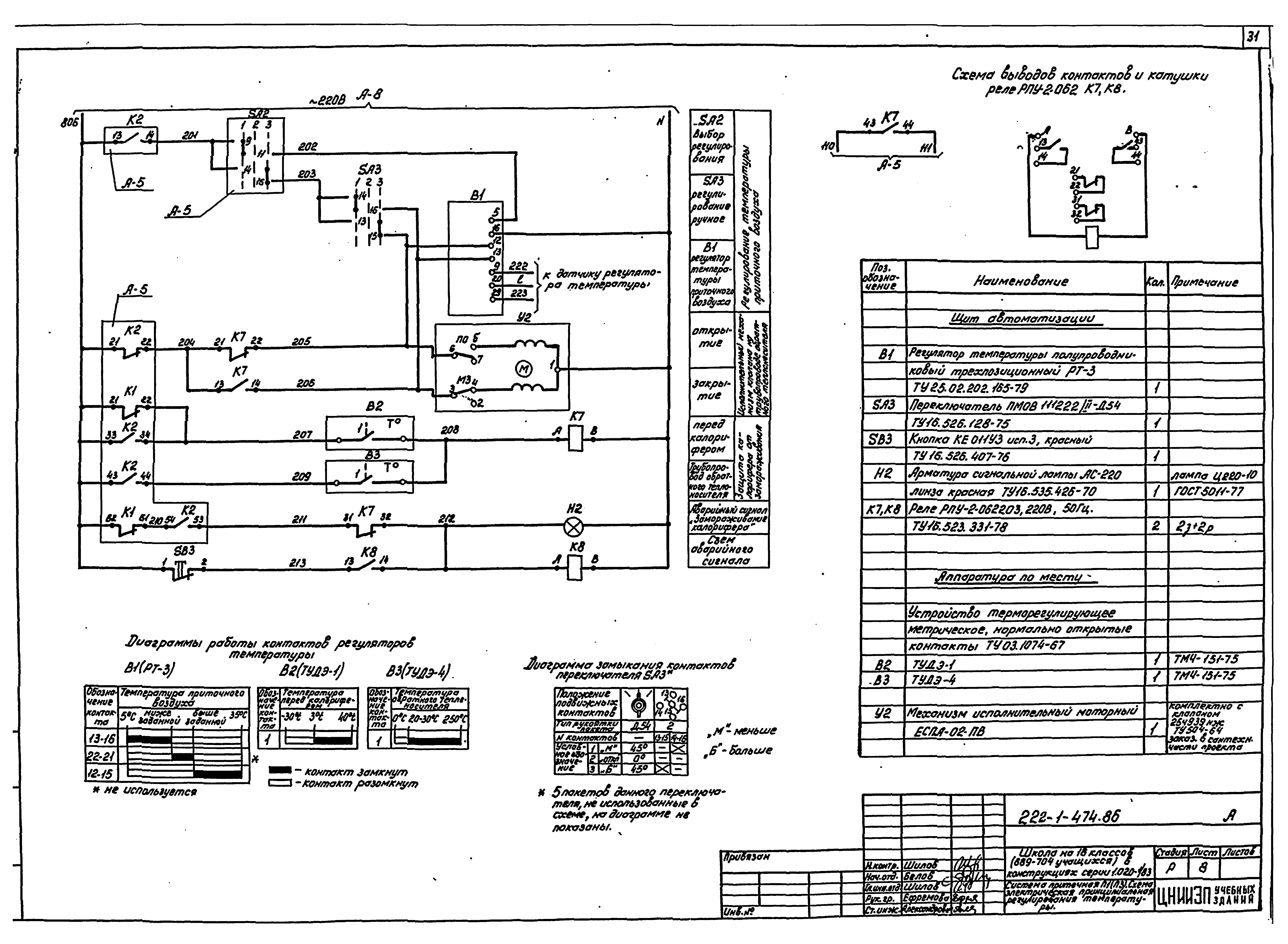
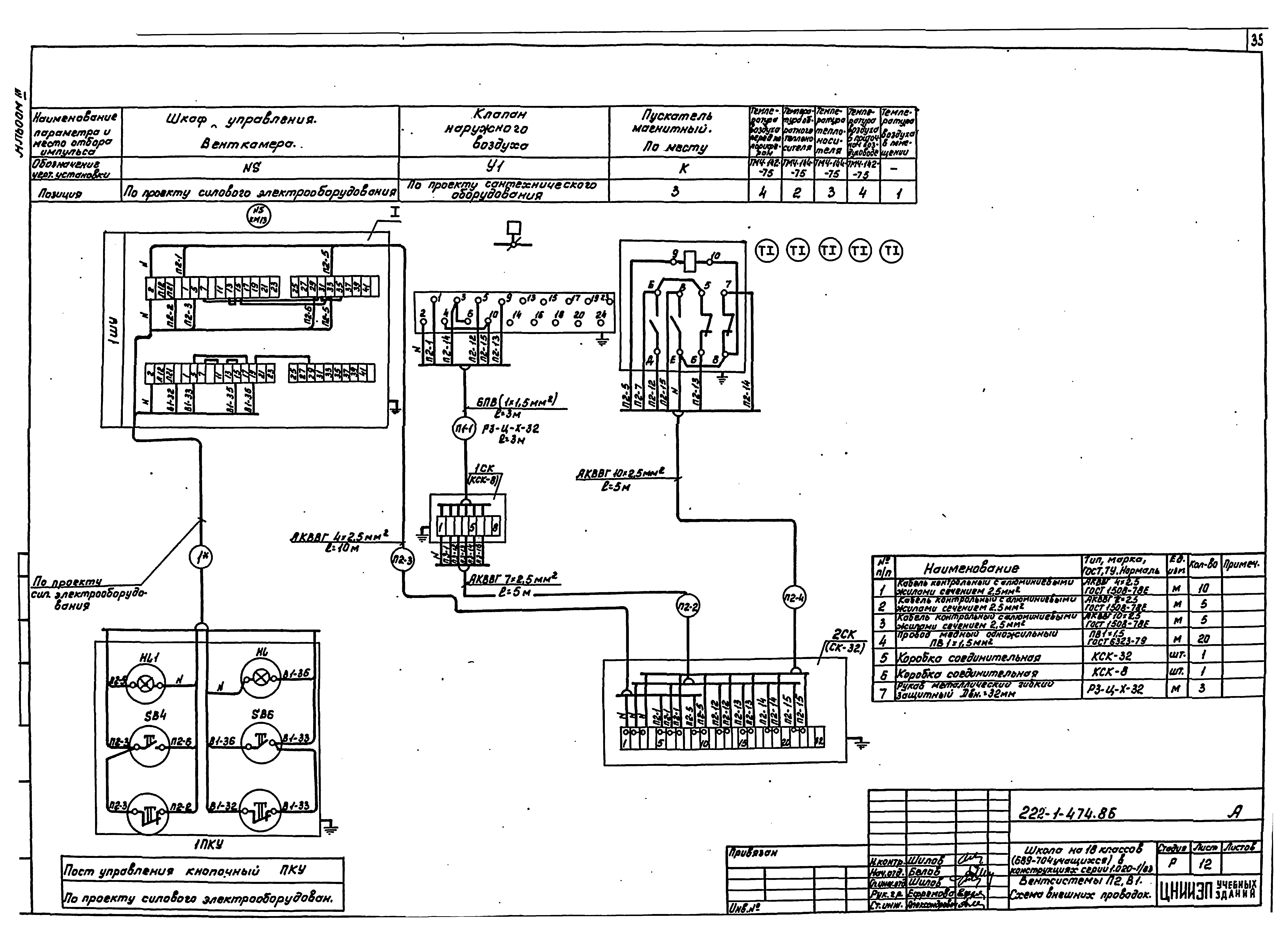
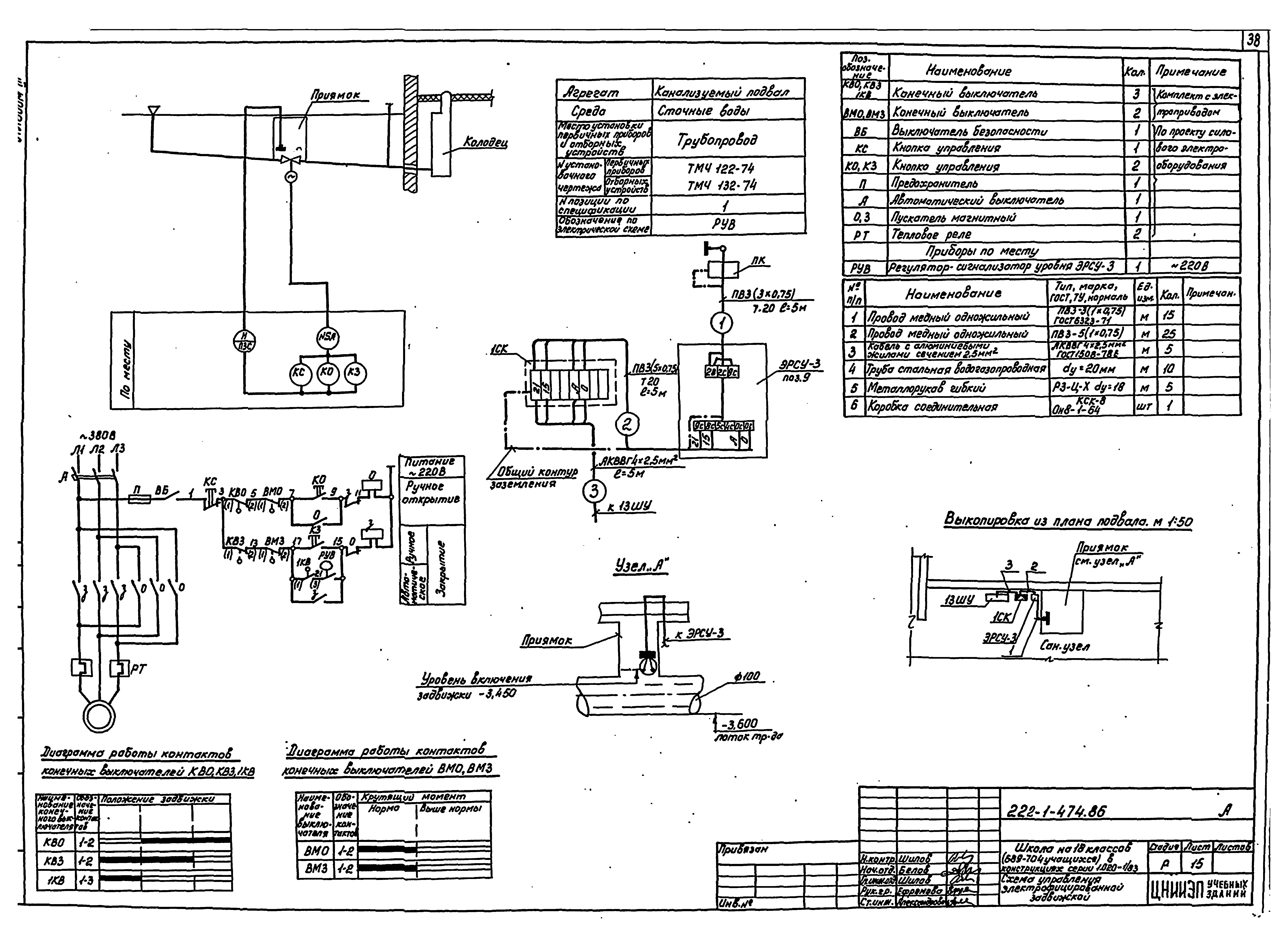
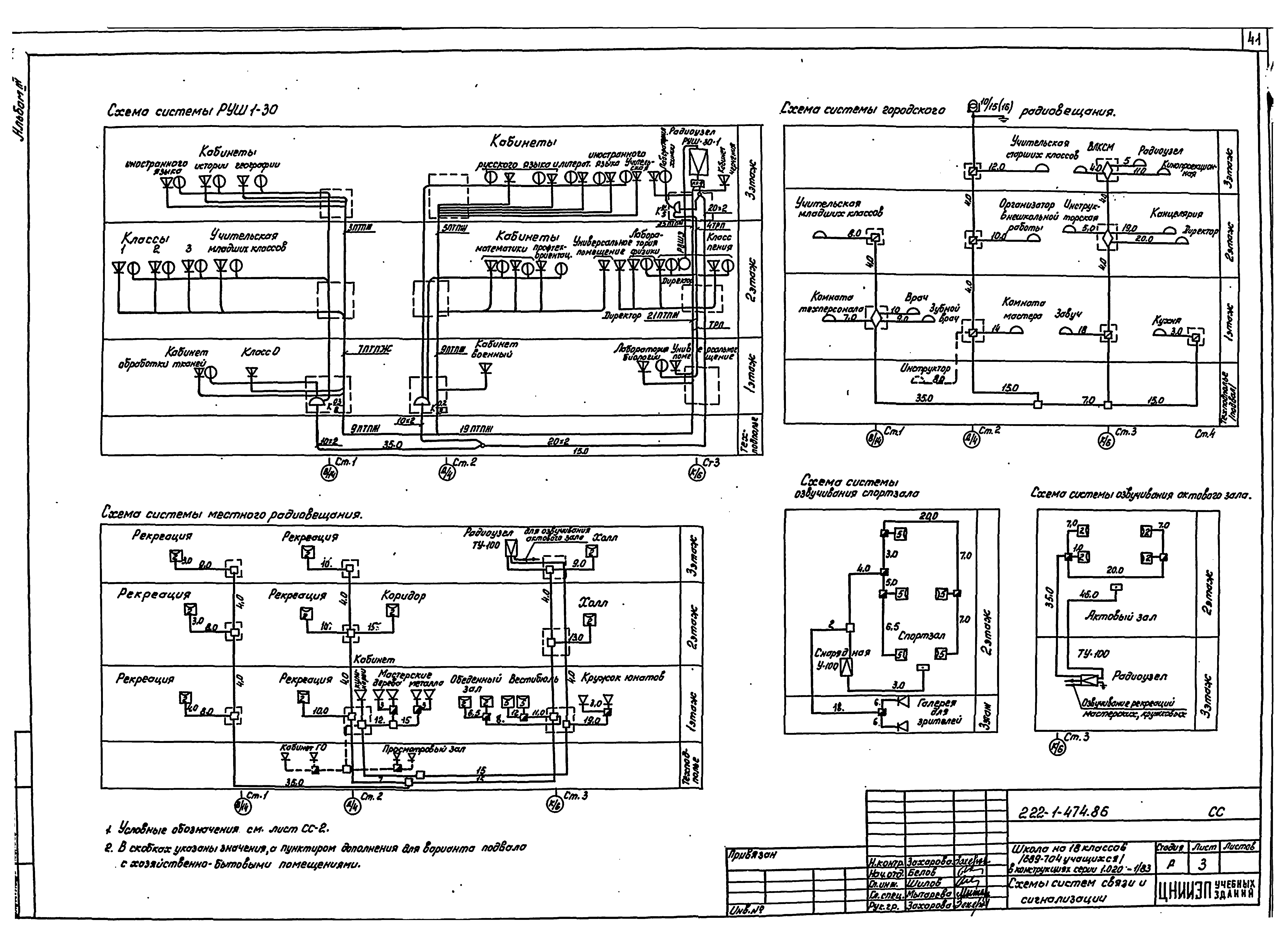
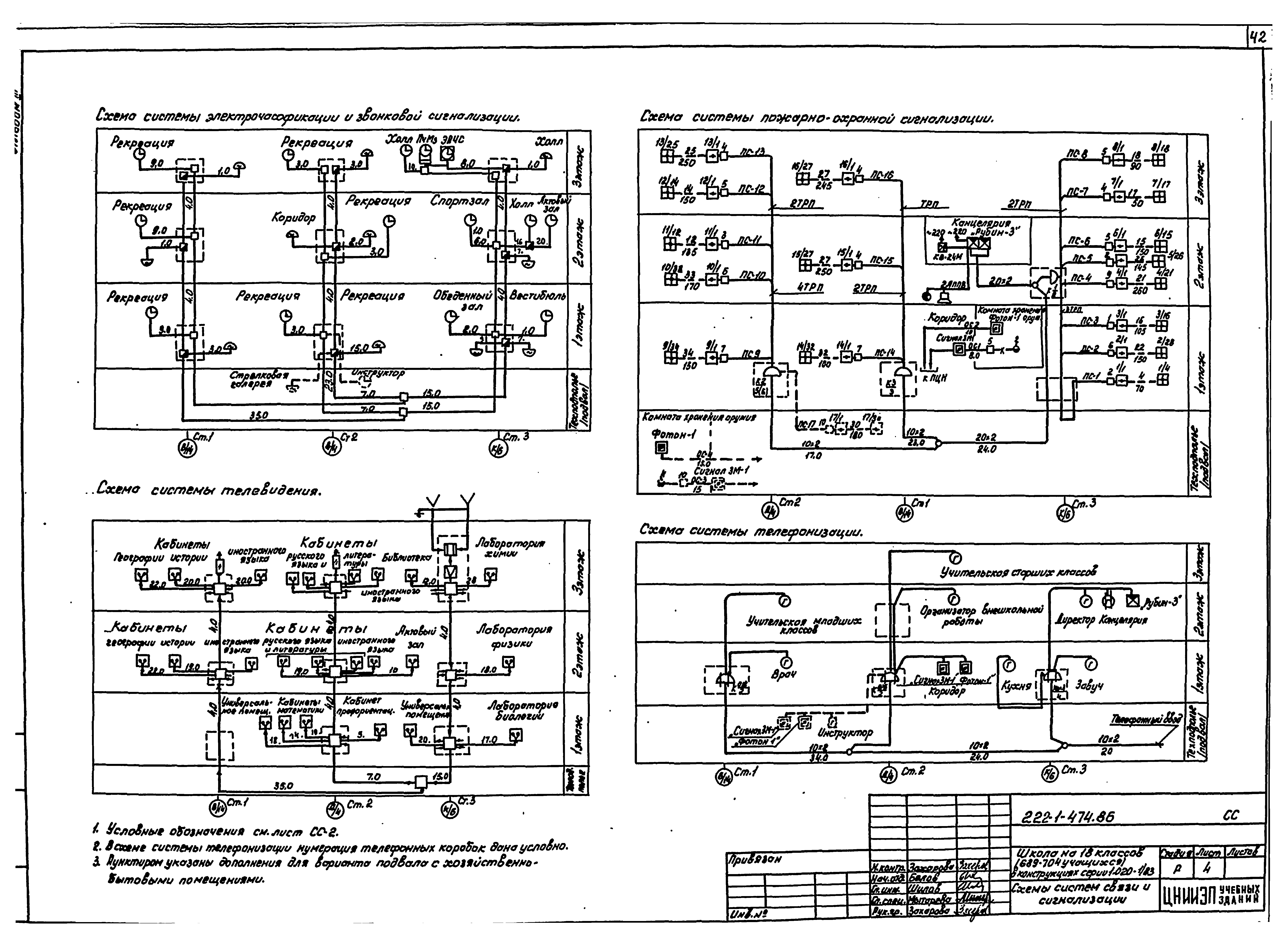
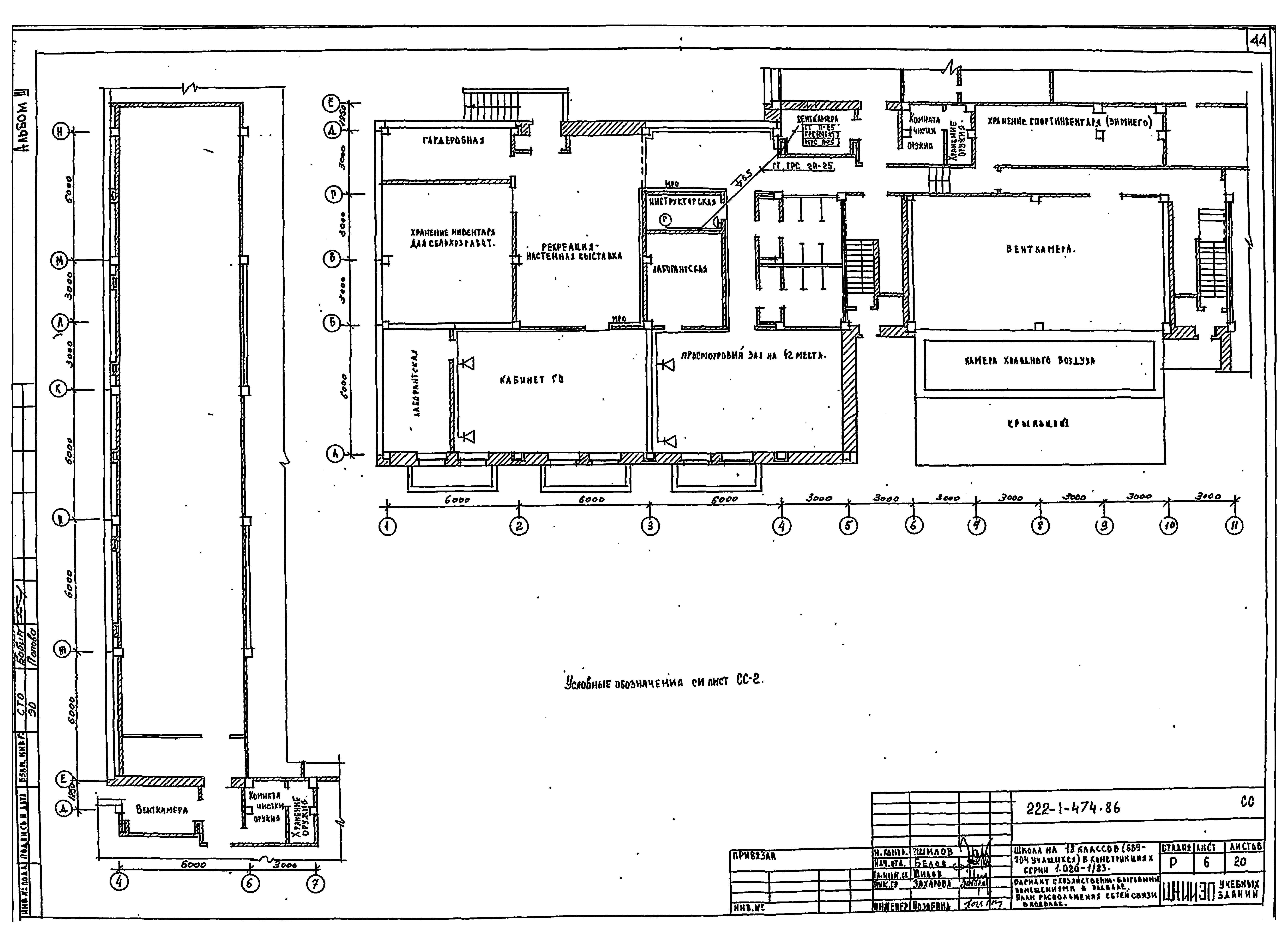
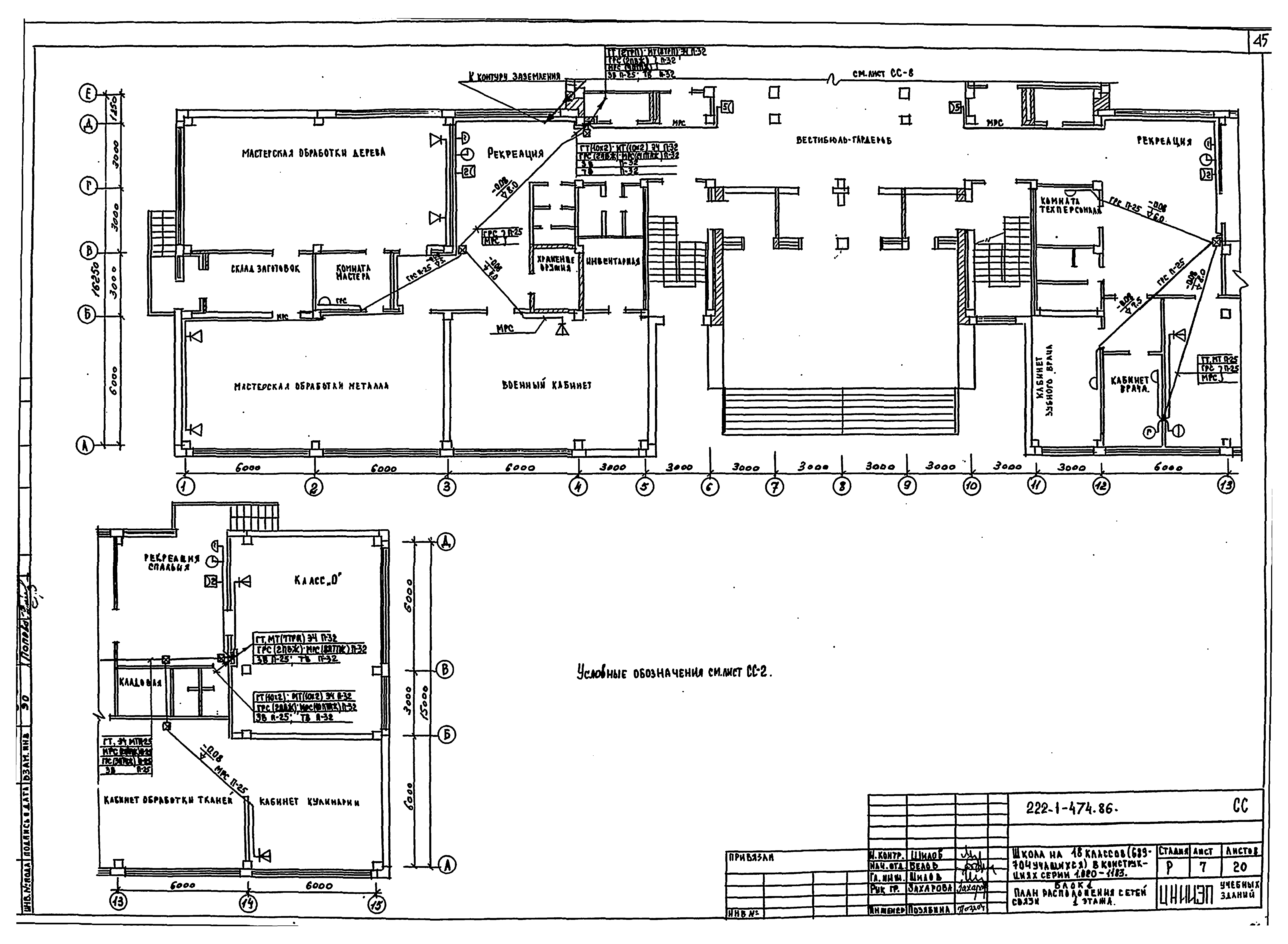
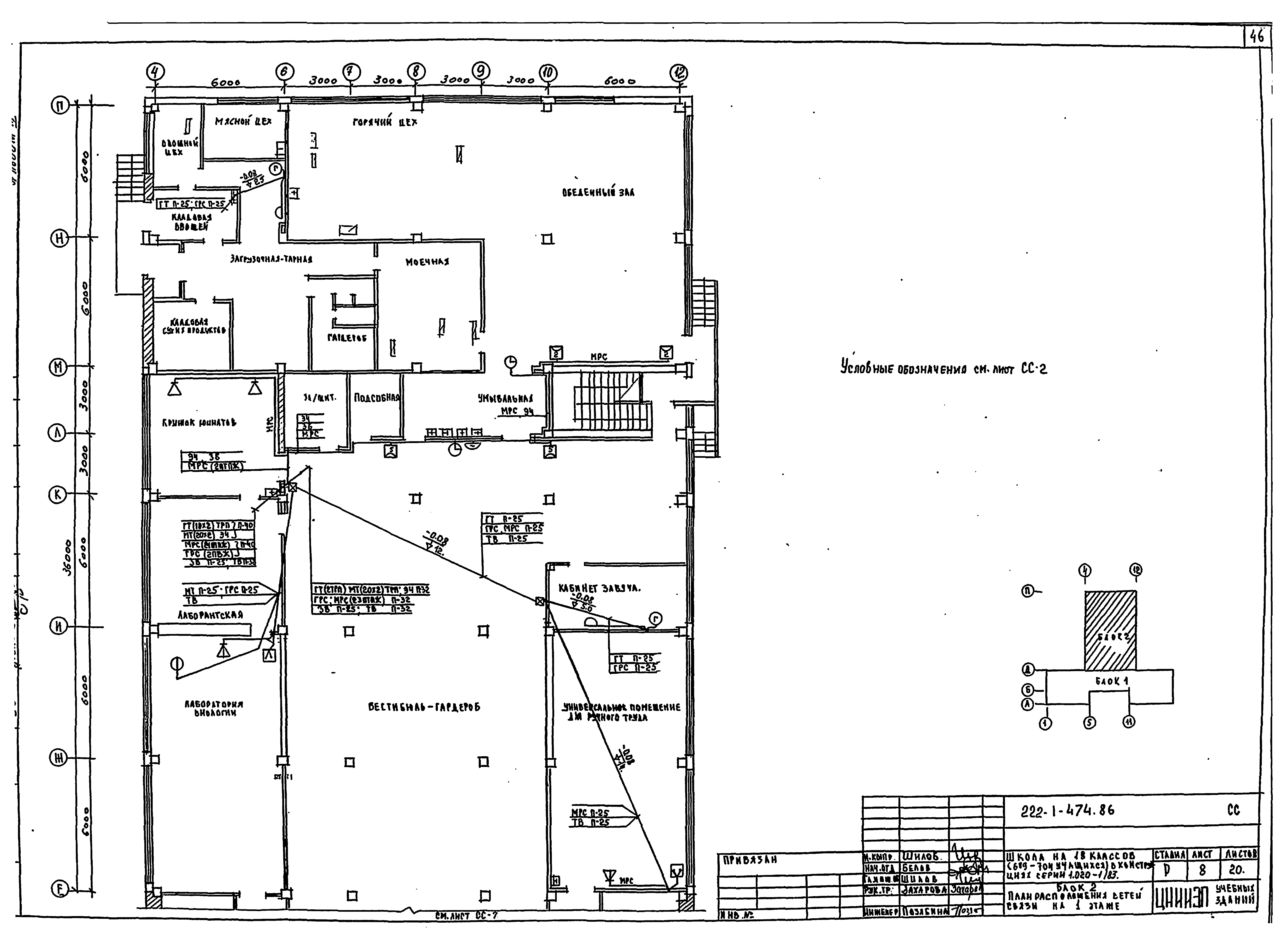
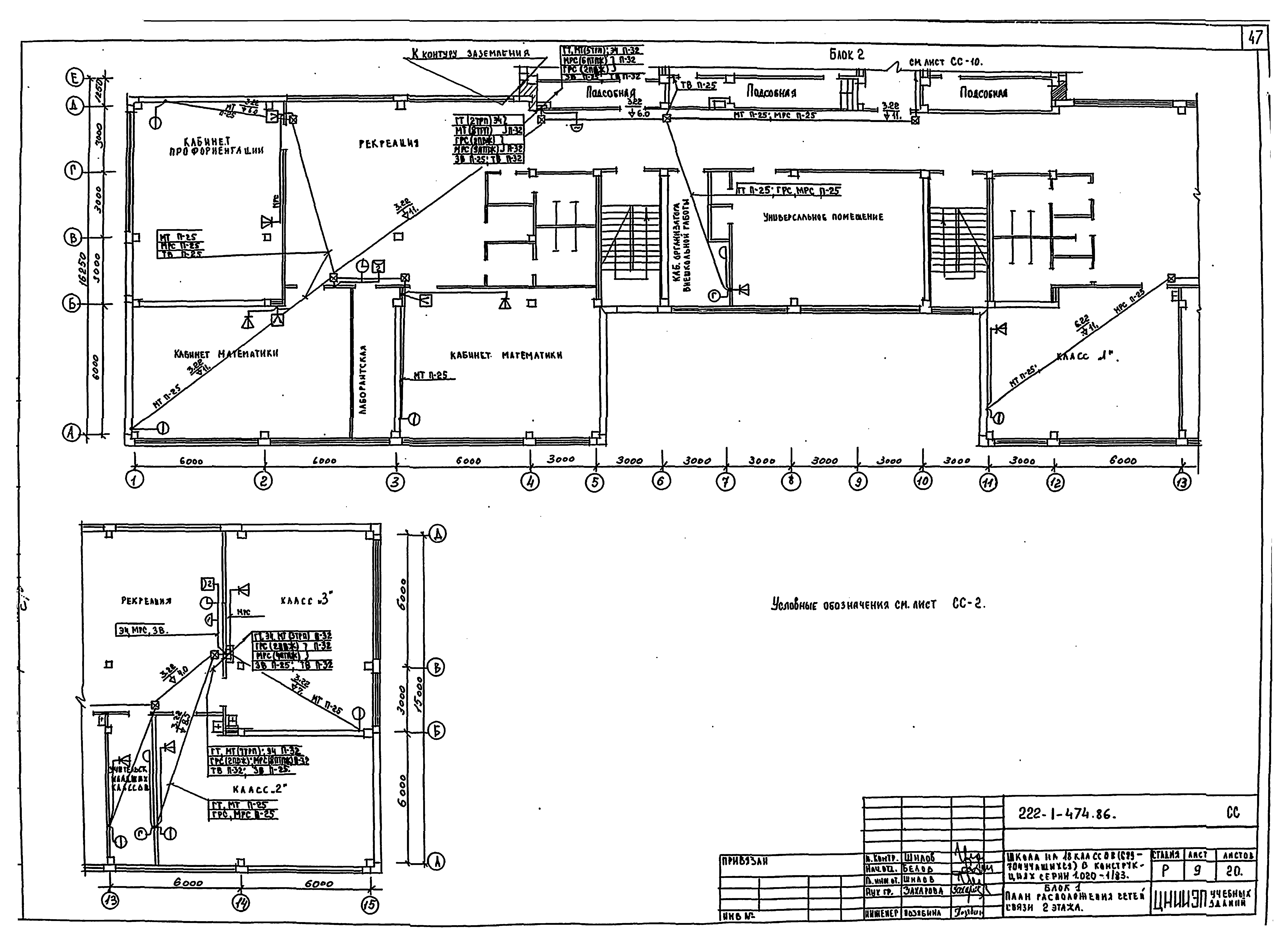
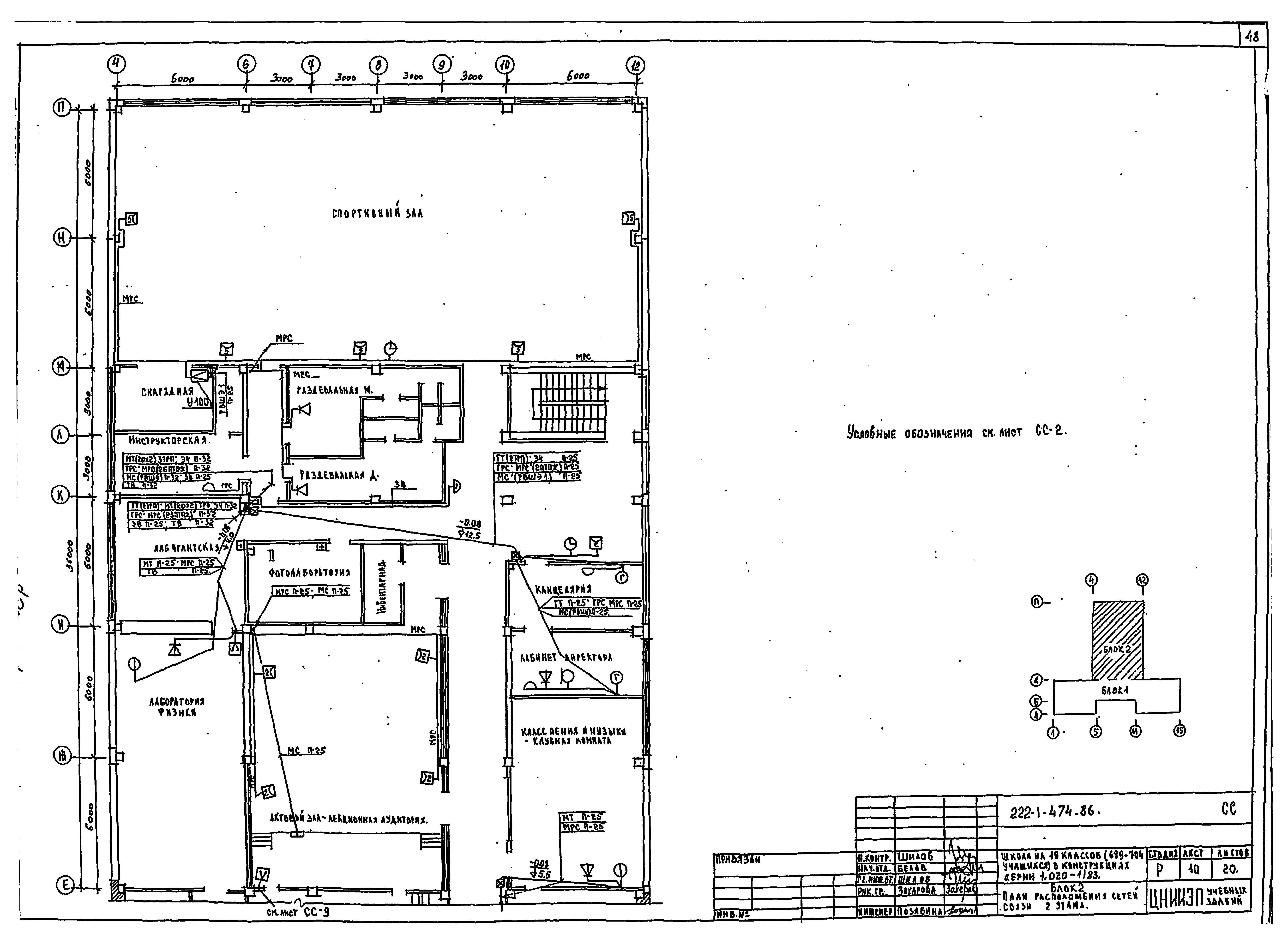
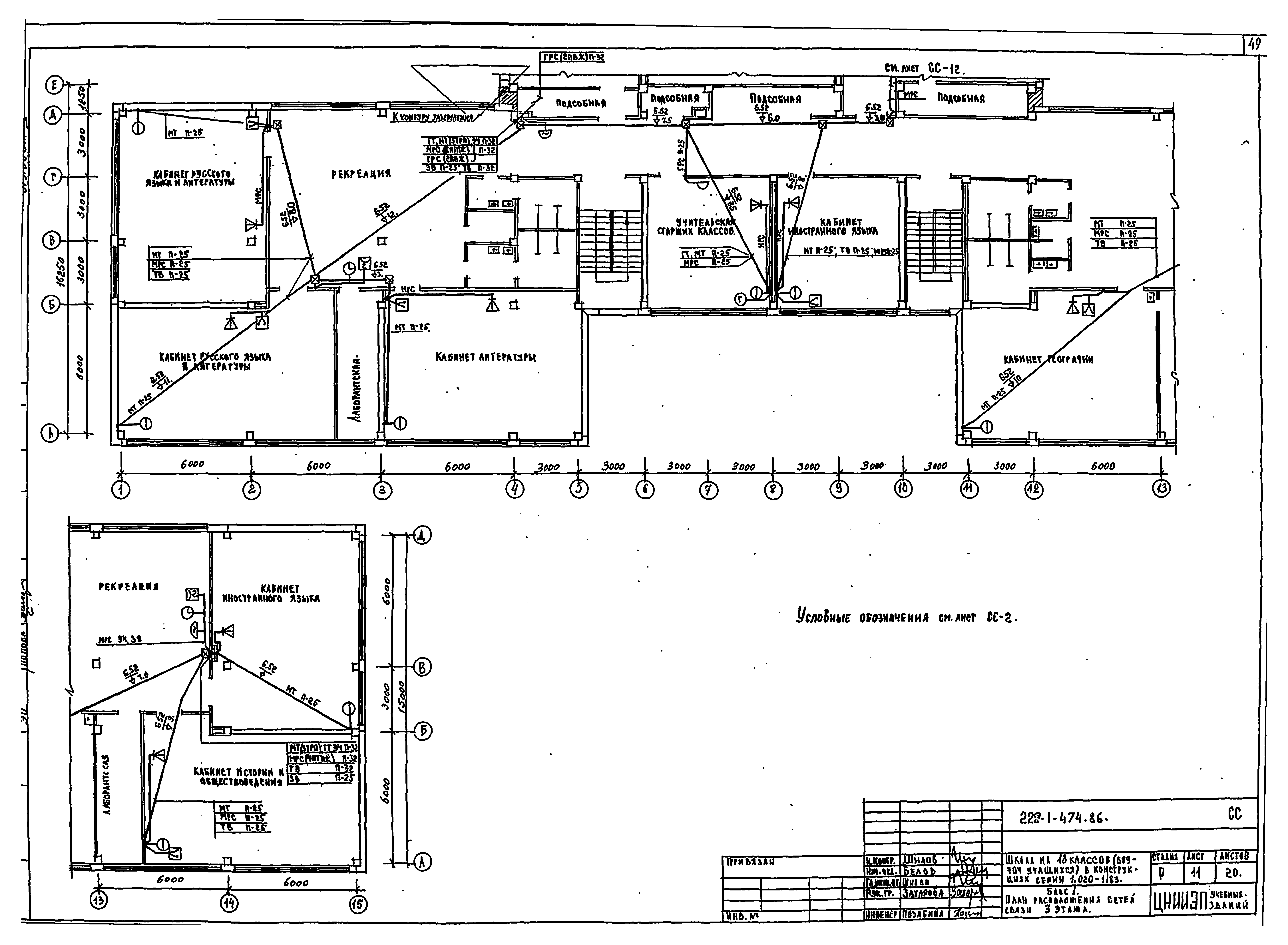
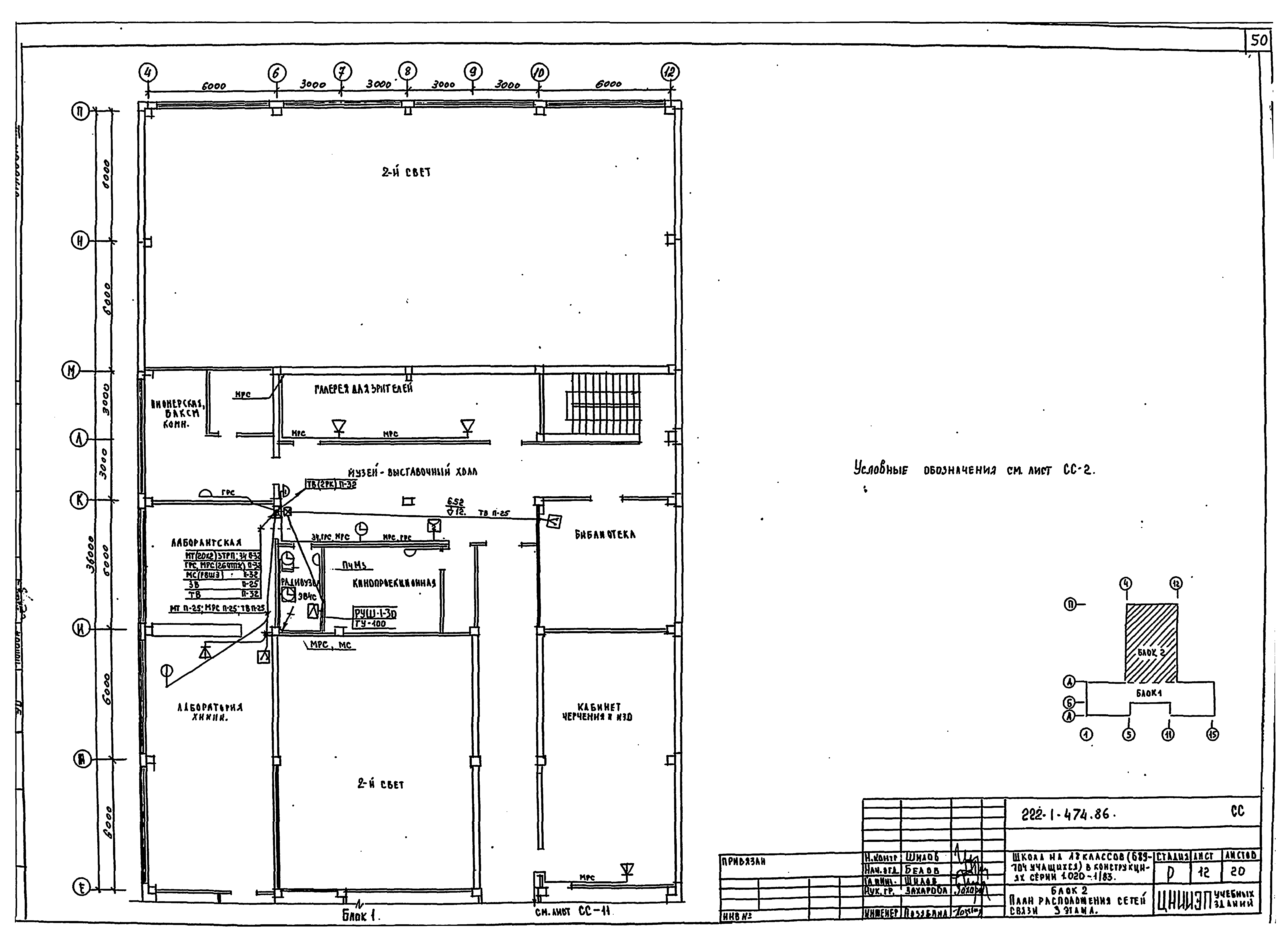
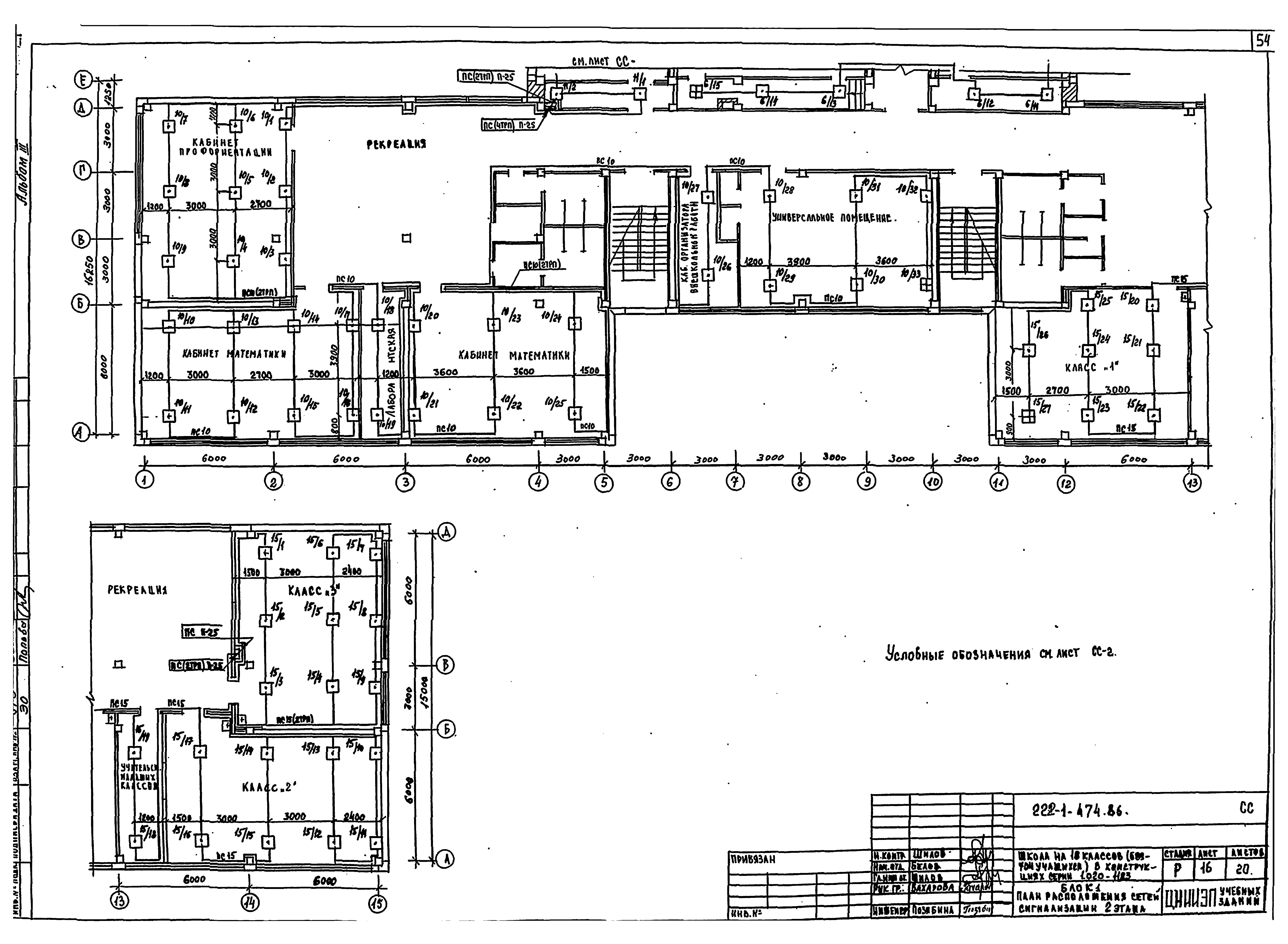
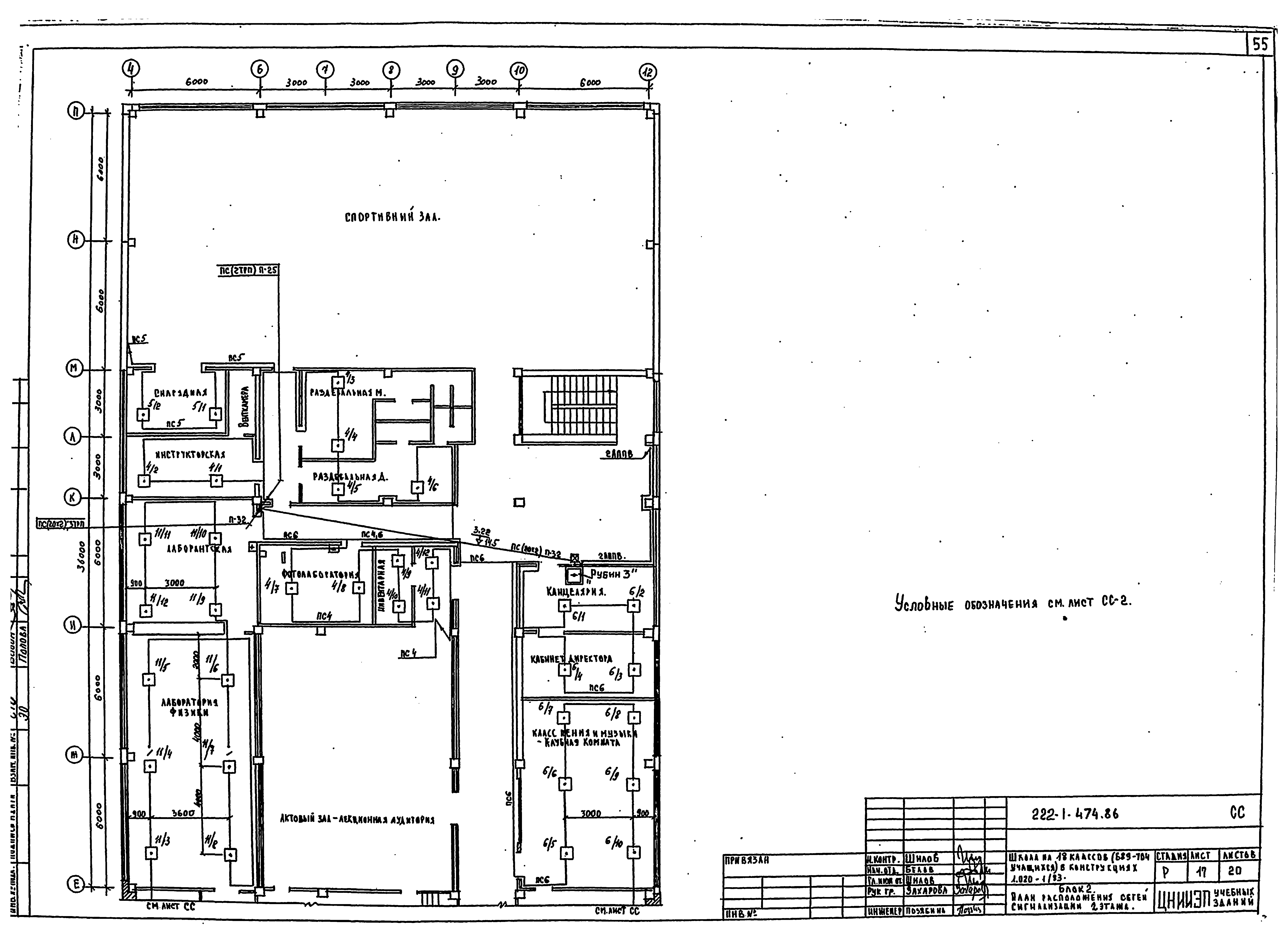
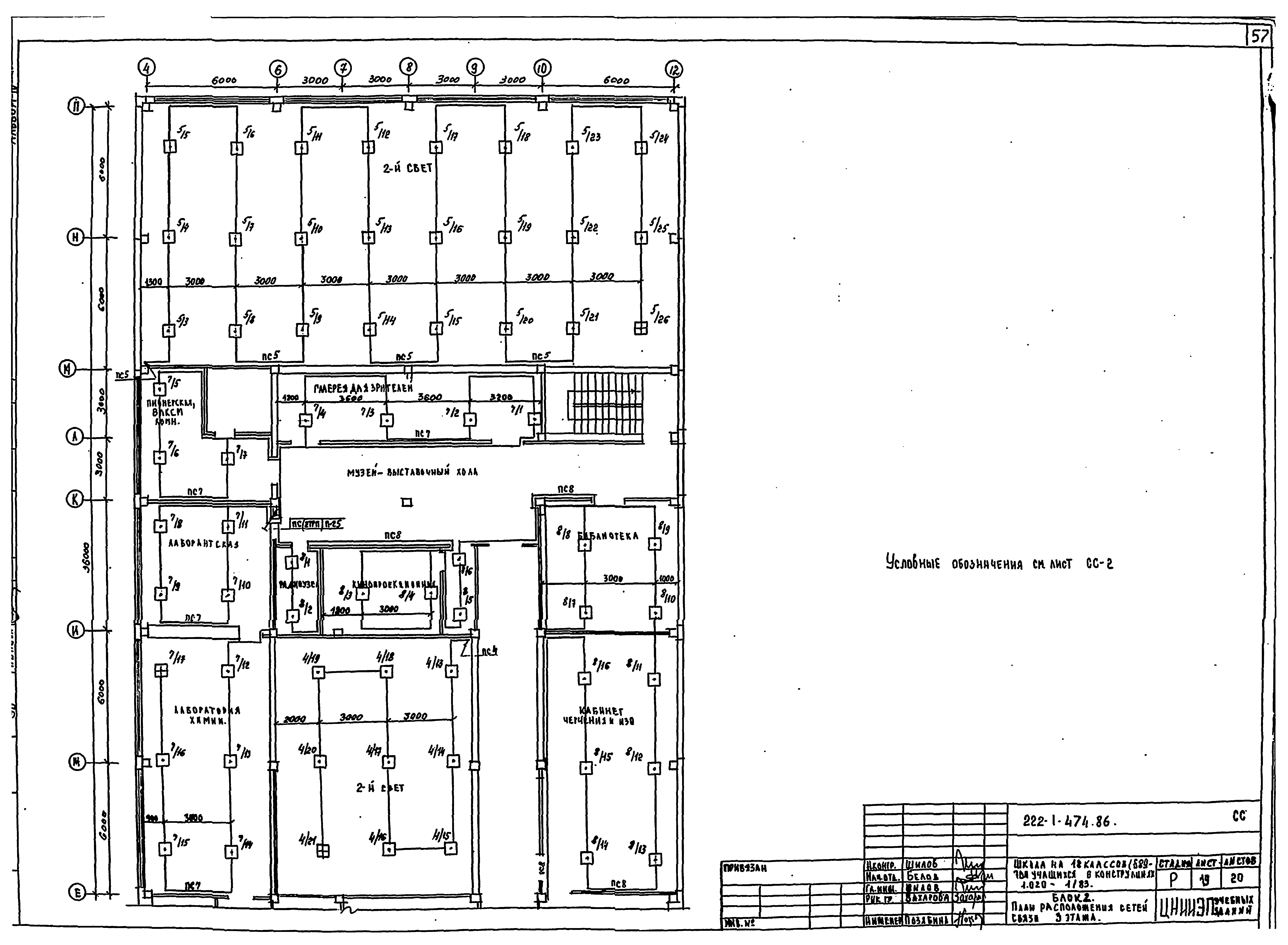
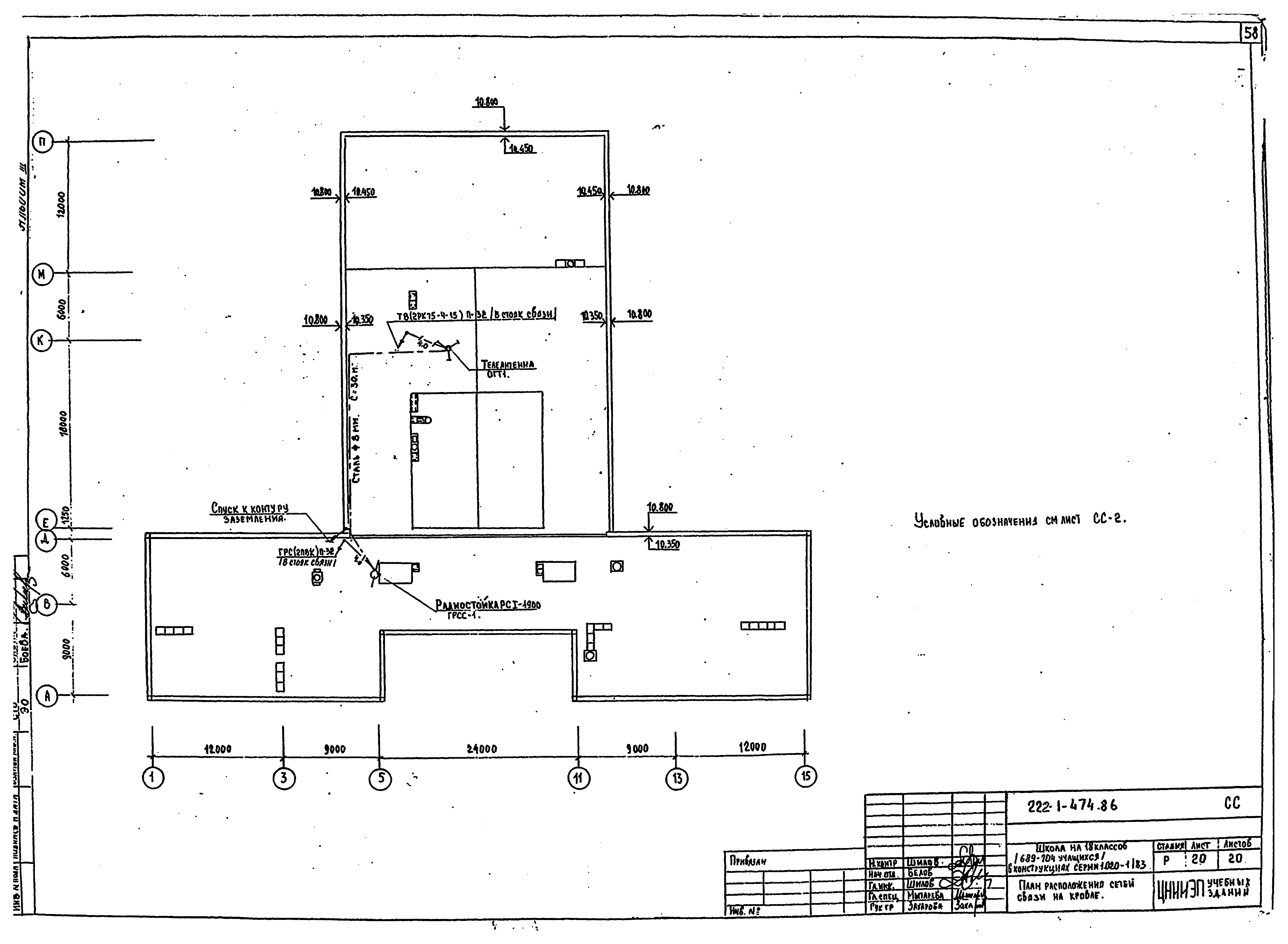
| Оглавление: | Чертежи основного комплекта марки ЭО Общие данные Расчетная схема питающих сетей Блок 1. План расположения сетей подвала и техподполья Блок 2. План расположения сетей техподполья Блок 1, 2. План расположения сетей подвала (вариант) Блок 1. План расположения сетей 1 этажа Блок 1. План расположения сетей 2 этажа Блок 1. План расположения сетей 3 этажа Блок 2. План расположения сетей 1 этажа Блок 2. План расположения сетей 2 этажа Блок 2. План расположения сетей 3 этажа Чертежи основного комплекта марки ЭМ Общие данные План расположения сетей техподполья План расположения сетей подвала (вариант) Блок 1. План расположения сетей 1 этажа Блок 2. План расположения сетей 1, 2 и 3 этажей Блок 2. План расположения сетей столовой План расположения сетей кровли Отключение вентиляции при пожаре. Кабельный журнал Принципиальная таблица-схема распределительной сети Вводно-распределительное устройство. Опросный лист Чертежи основного комплекта марки А Общие данные Вентсистемы П1, В6 - В8. Схема функциональная Вентсистемы П3, В2, В3. Схема функциональная Вентсистемы П2, В1. Схема функциональная Система приточная П1 (П3). Схема электрическая принципиальная управления Система приточная П1 (П3). Схема электрическая принципиальная регулирования температуры Системы приточные П1, П3. Схема электрическая принципиальная сигнализации Вентсистемы П1 (П3), В2 (В3, В6 - В8). Схемы электрические принципиальные управления Вентсистемы П2, В1. Схема электрическая принципиальная управления Вентсистемы П2, В1. Схема внешних проводок Вентсистемы П1 (П3), В2, В3, В6 - В8. Схема внешних проводок Системы приточные П1 - П3. Венткамера. План прокладки контрольных сетей Схема управления электрофицированной задвижкой Чертежи основного комплекта марки СС Общие данные Схемы систем связи и сигнализации План расположения сетей в техподполье и подвале План расположения сетей связи в подвале (вариант с хозяйственно-бытовыми помещениями) Блок 1. План расположения сетей связи 1 этажа Блок 2. План расположения сетей связи 1 этажа Блок 1. План расположения сетей связи 2 этажа Блок 2. План расположения сетей связи 2 этажа Блок 1. План расположения сетей связи 3 этажа Блок 2. План расположения сетей связи 3 этажа План расположения сетей сигнализации подвала (вариант с хозяйственно-бытовыми помещениями) Блок 1. План расположения сетей сигнализации 1 этажа Блок 2. План расположения сетей сигнализации 1 этажа Блок 1. План расположения сетей сигнализации 2 этажа Блок 2. План расположения сетей сигнализации 2 этажа Блок 1. План расположения сетей сигнализации 3 этажа Блок 2. План расположения сетей сигнализации 3 этажа План расположения сетей связи на кровле Коробка для подключения телевизора Коробка для подключения микрофона |
| Разработан: | ЦНИИЭП учебных зданий |
| Утверждён: | 20.05.1983 Госгражданстрой (Gosgrazhdanstroy 159) |




























































