Скачать Типовой проект 222-1-474.86 Альбом IV. Изделия заводского изготовленияДата актуализации: 01.01.2021
|
| Обозначение: | Типовой проект 222-1-474.86 |
| Обозначение англ: | 222-1-474.86 |
| Статус: | не определен законодательством |
| Название рус.: | Альбом IV. Изделия заводского изготовления |
| Дата добавления в базу: | 01.09.2013 |
| Дата актуализации: | 01.01.2021 |
| Дата введения: | 10.04.1986 |
| Дата окончания срока действия: | 30.06.2003 |
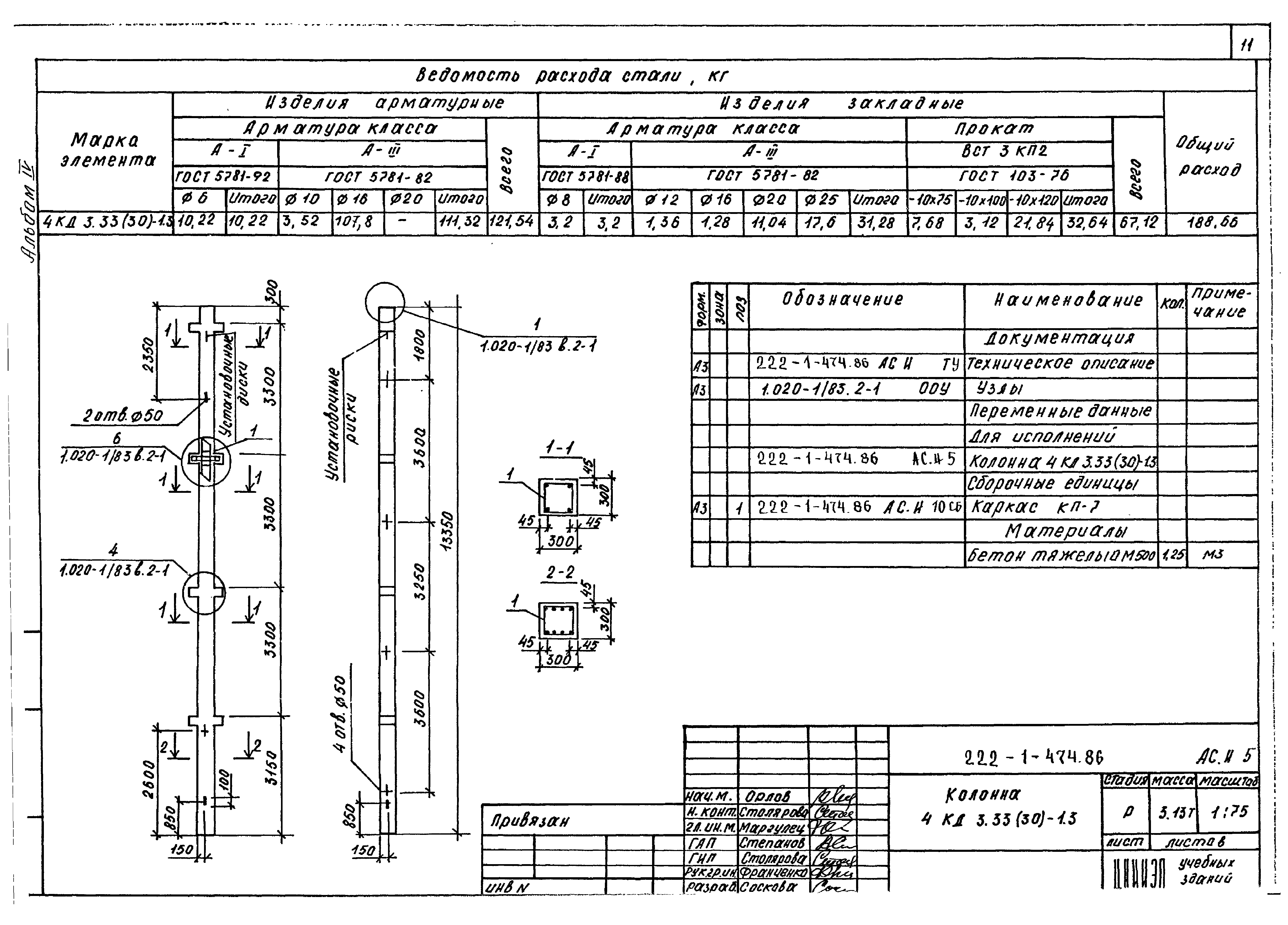
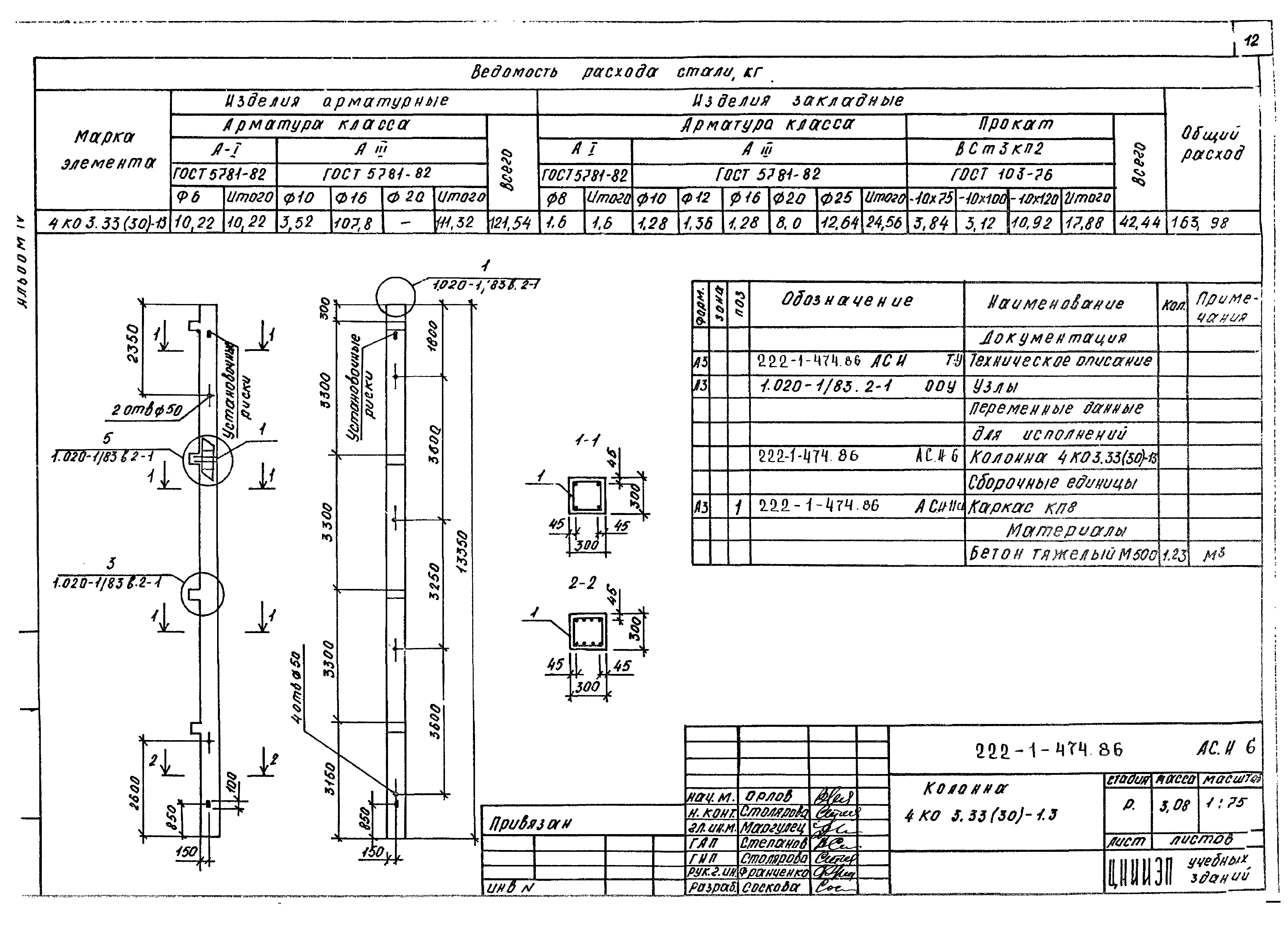
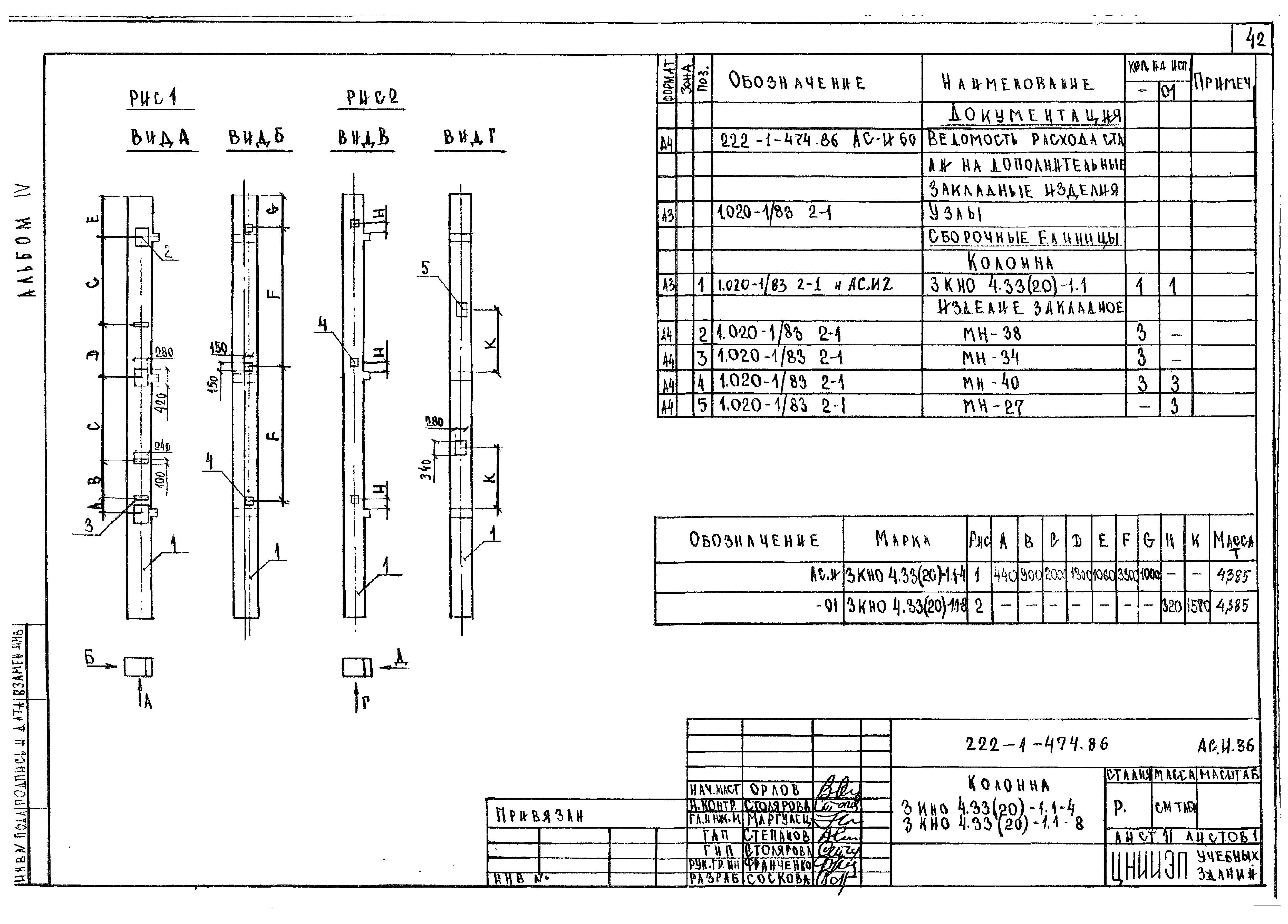
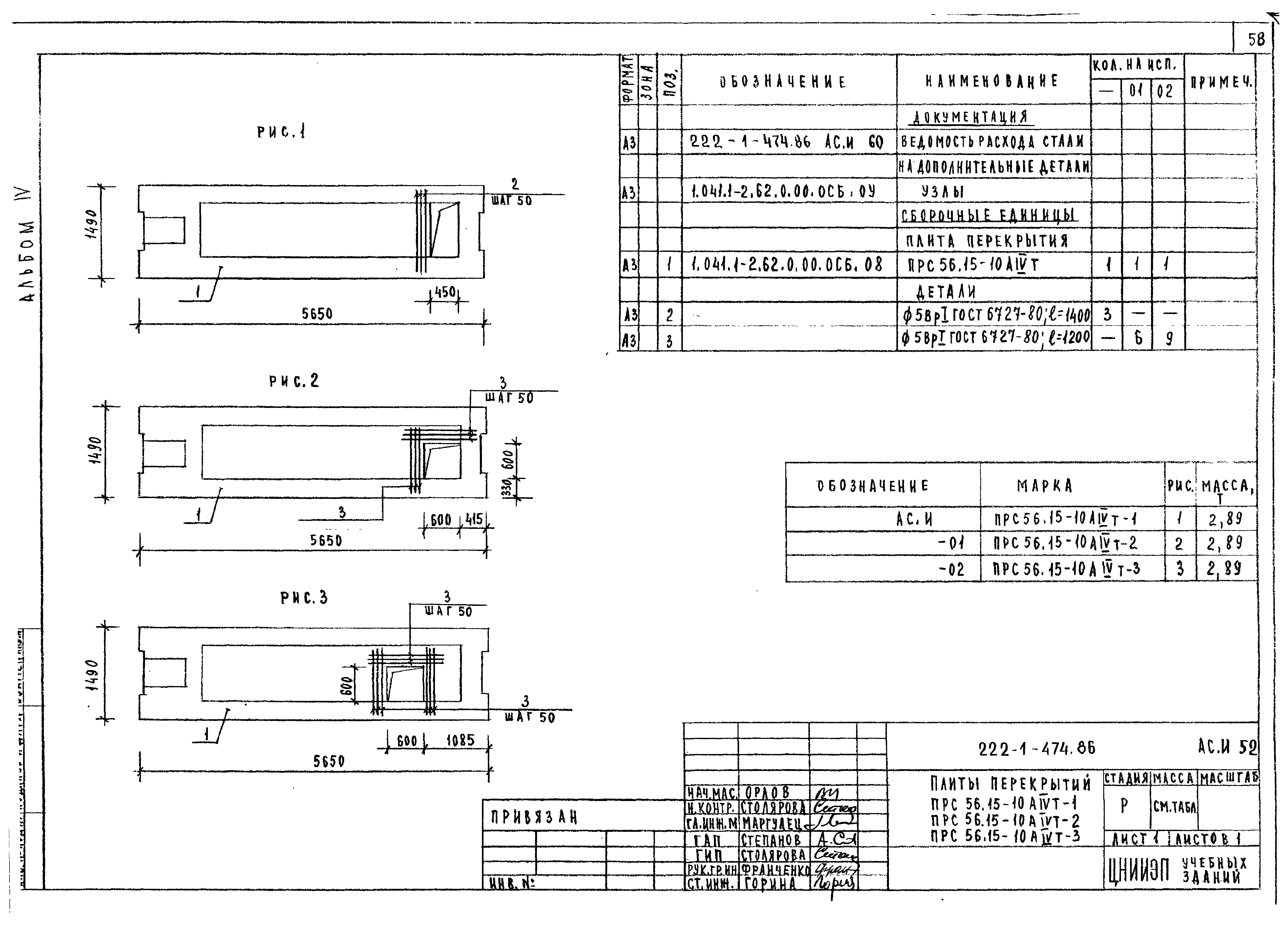
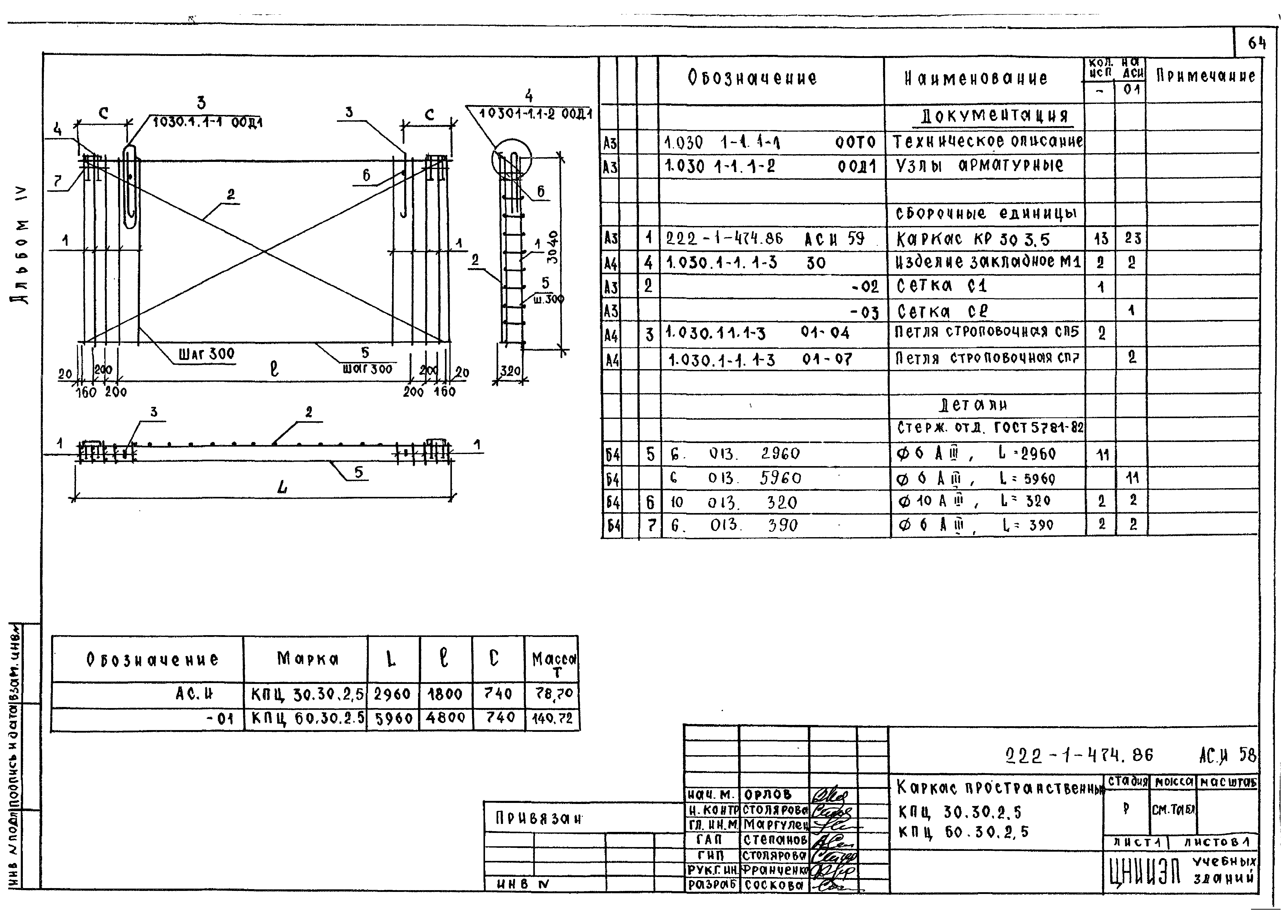
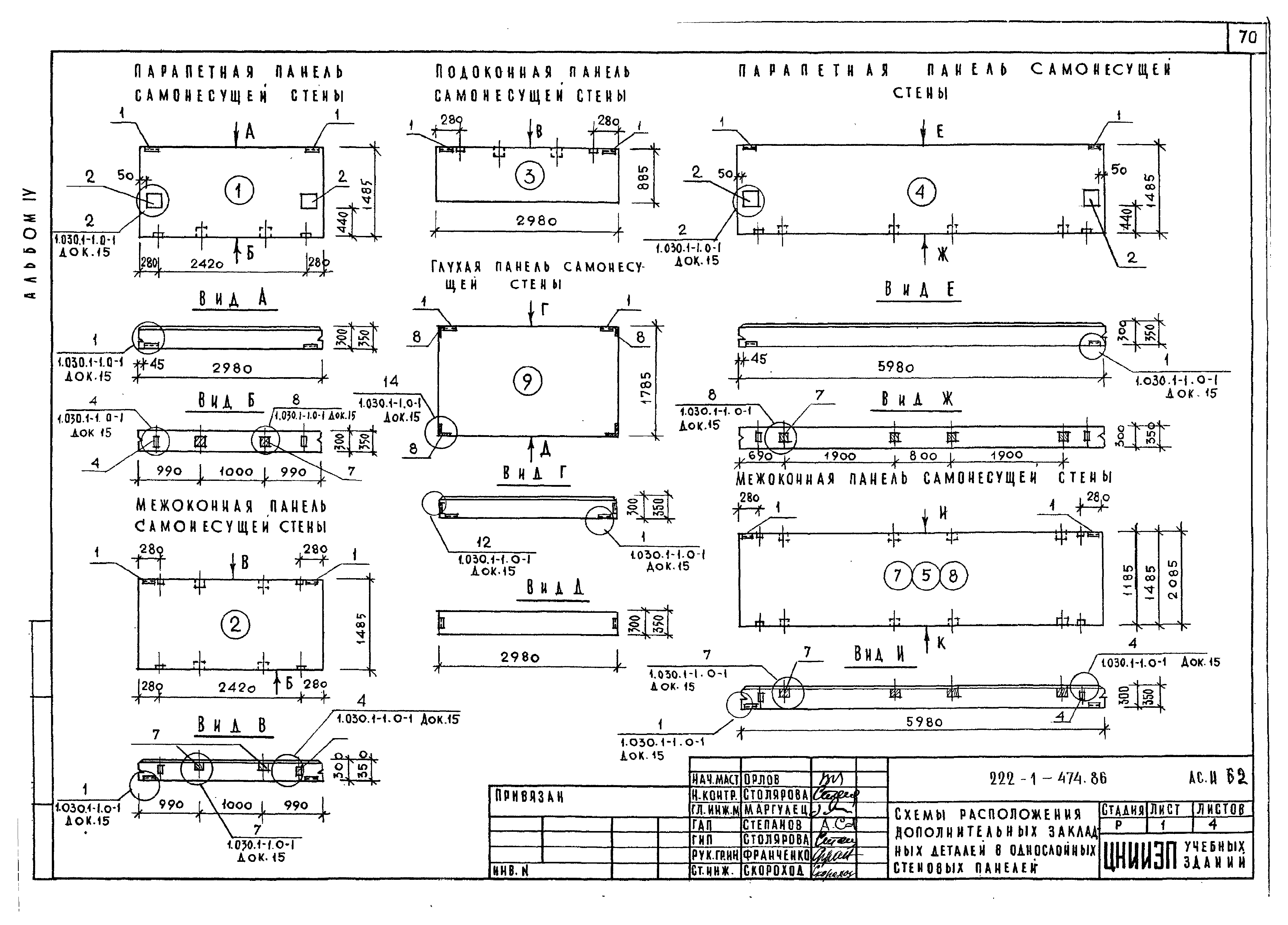
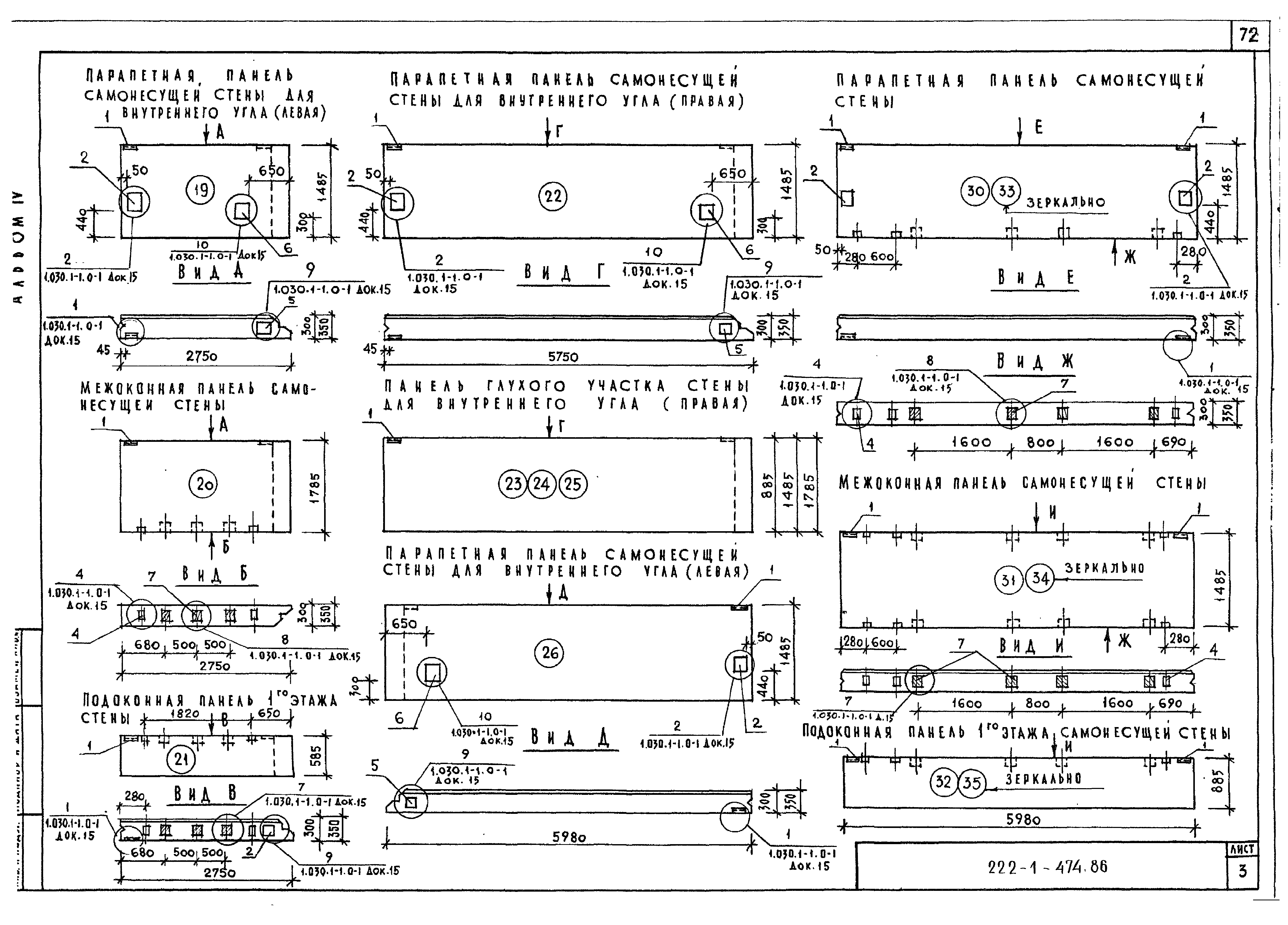
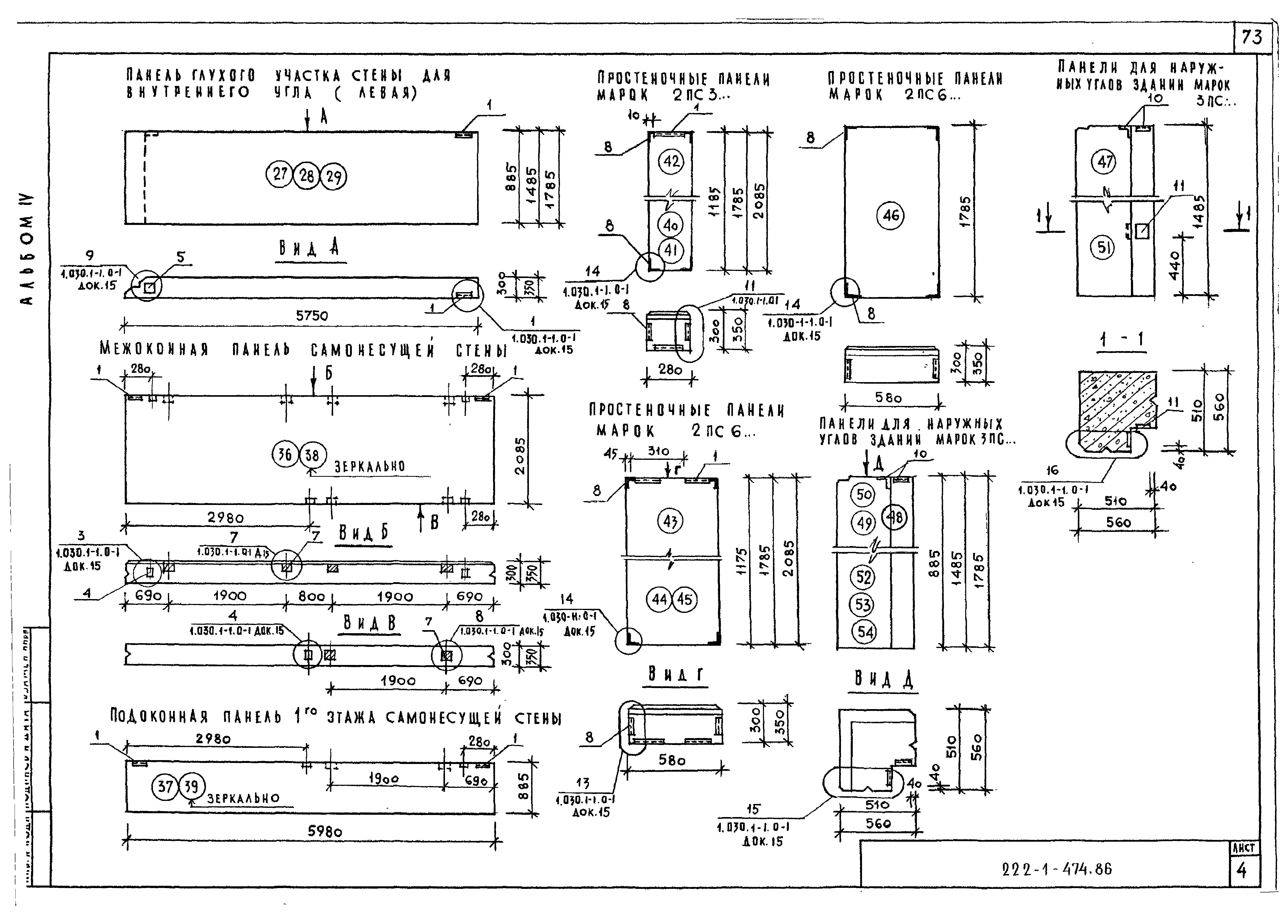
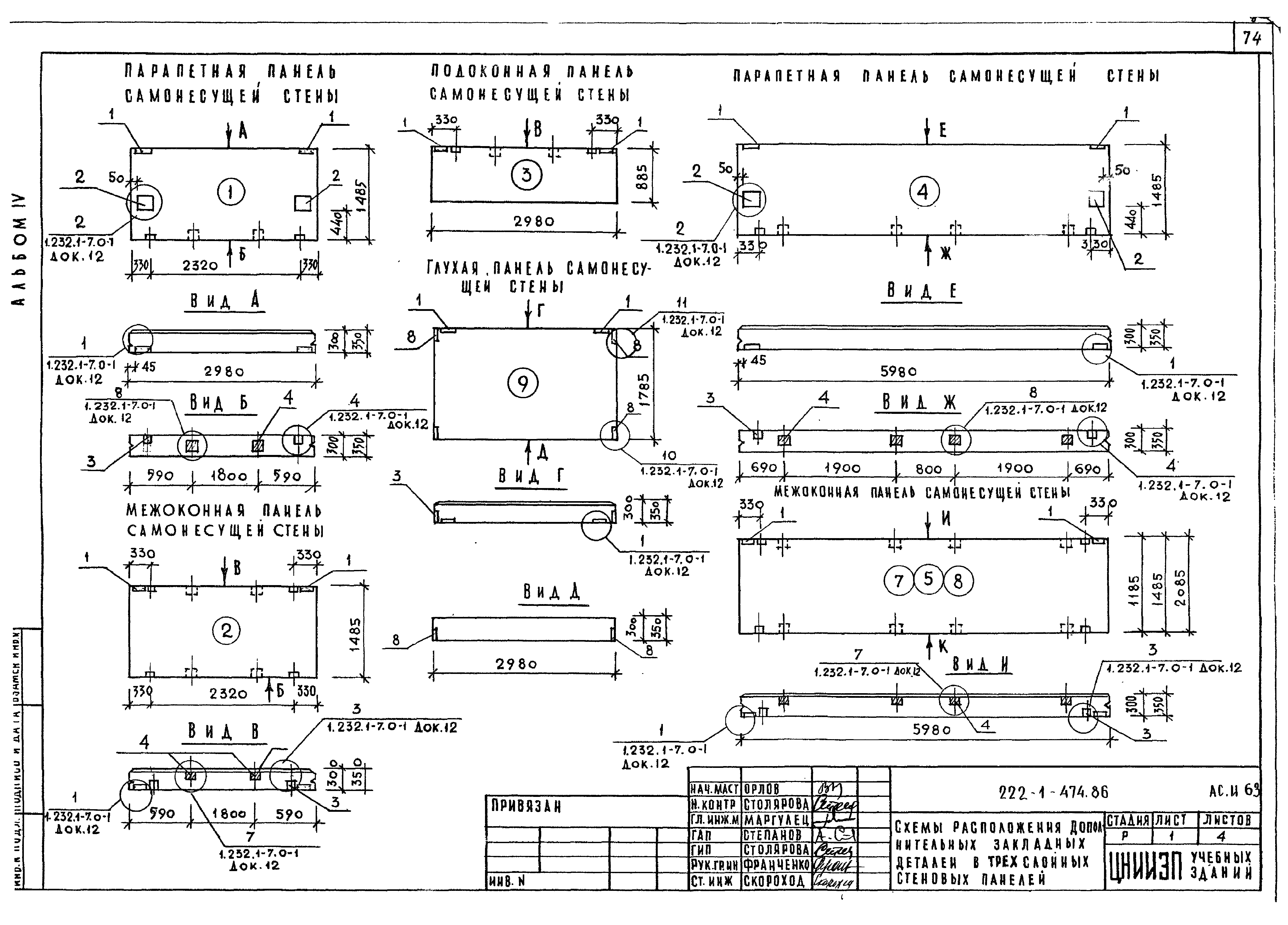
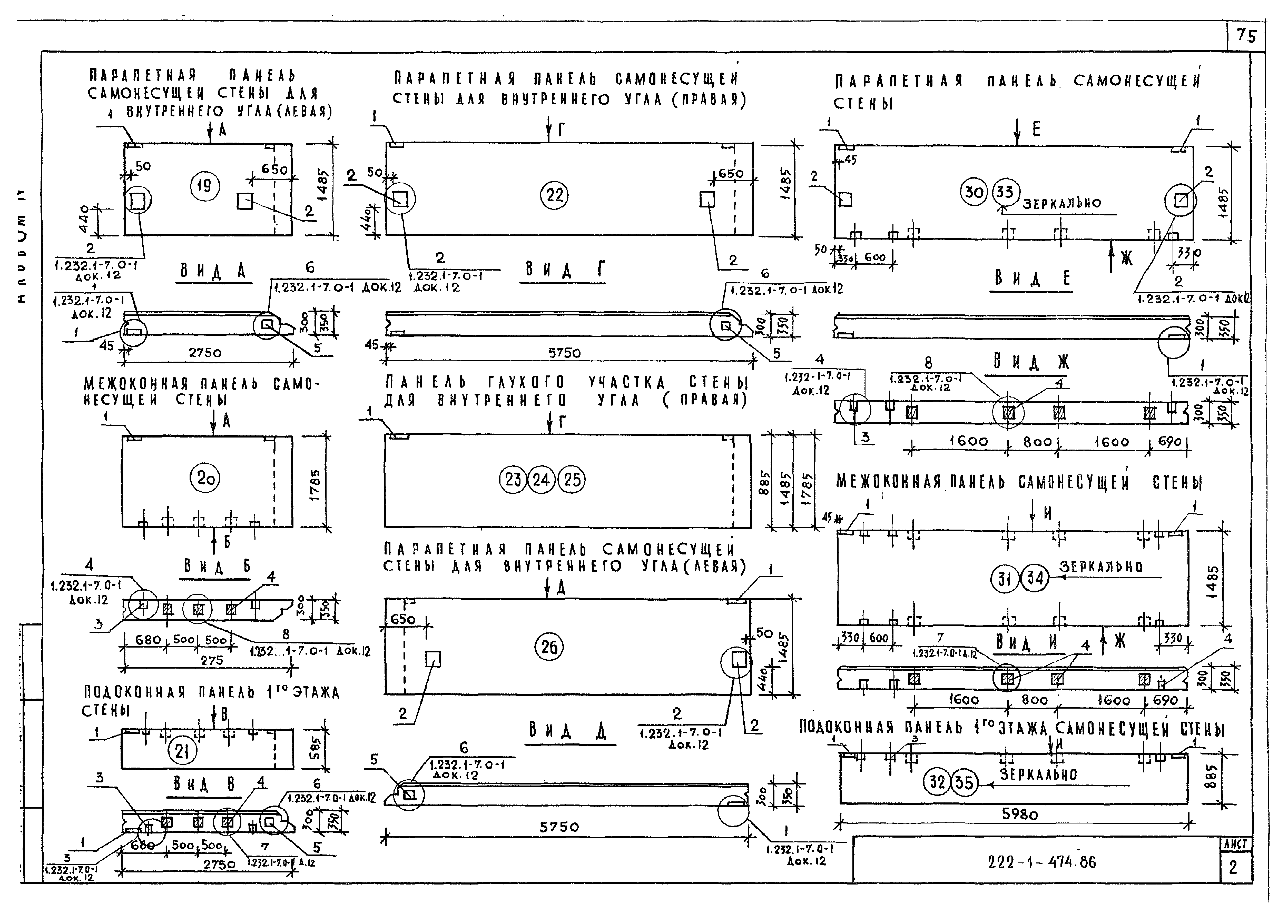
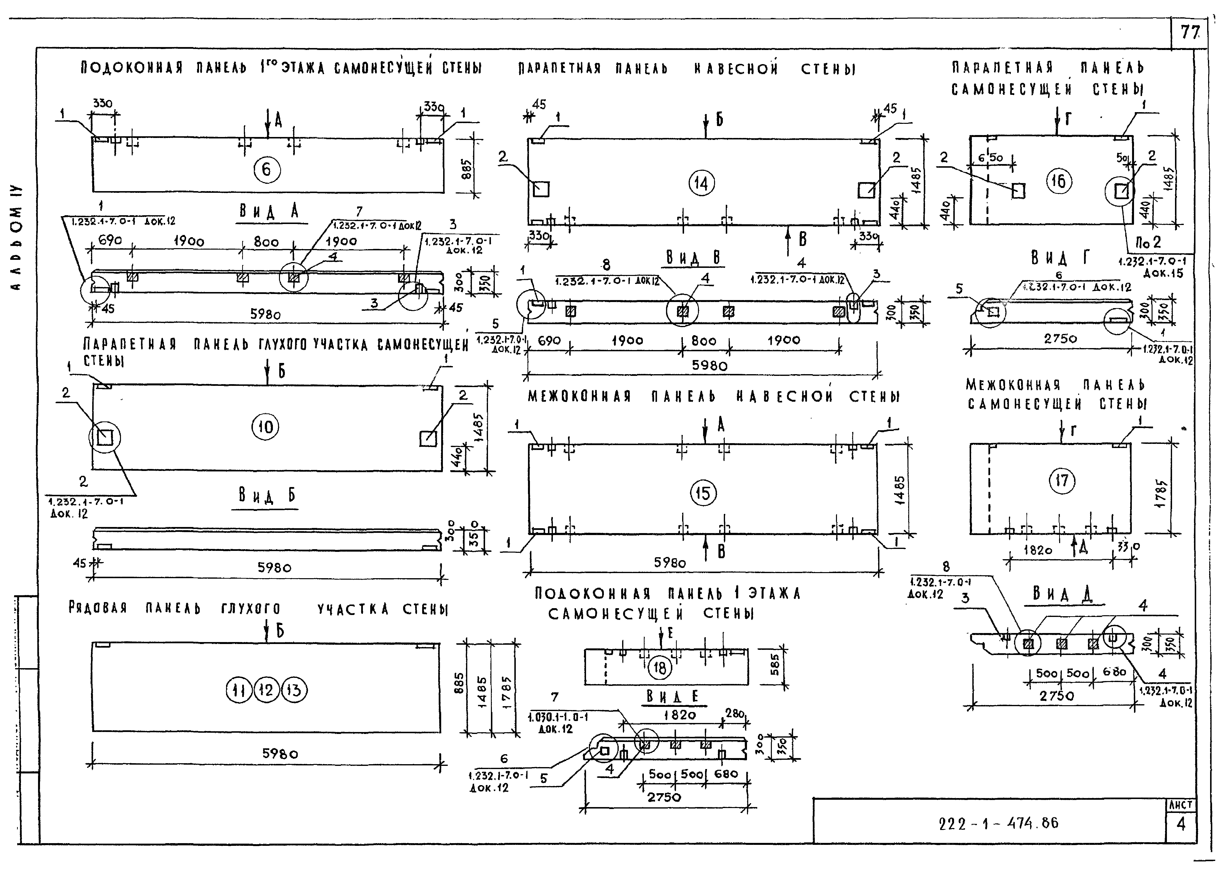
| Оглавление: | 222-1-474.86 Содержание 222-1-474.86 АС.И.ТУ Технические условия 222-1-474.86 АС.И.1 Колонна 3КНД4.33(20)-1.2; 3КНД4.33(30)-1.2 222-1-474.86 АС.И.2 Колонна 3КНО4.33(20)-1.1; 3КНО4.33(30)-1.1 222-1-474.86 АС.И.3 Колонна 3КН4.33(20)-1; 3КН4.33(30)-1 222-1-474.86 АС.И.4 Колонна 3КНД4.33(20)-1.2*; 3КНД4.33(30)-1.1* 222-1-474.86 АС.И.5 Колонна 3КД3.33(30)-1.3 222-1-474.86 АС.И.6 Колонна 3КО3.33(30)-1.3 222-1-474.86 АС.И.7.СБ Каркас пространственный КП-1, КП-2, КП-3, КП-4 222-1-474.86 АС.И.8.СБ Каркас пространственный КП-2*, КП-4* 222-1-474.86 АС.И.9.СБ Каркас пространственный КП-5, КП-6 222-1-474.86 АС.И.10.СБ Каркас пространственный КП-7 222-1-474.86 АС.И.11.СБ Каркас пространственный КП-8 222-1-474.86 АС.И.12.СБ Каркас пространственный КП-1, КП-2, КП-3, КП-4 222-1-474.86 АС.И.13.СБ Каркас пространственный КП-2*, КП-4*, КП-5, КП-6 222-1-474.86 АС.И.14 Колонна 4КО3.33(20)-1.2-1; 4КО3.33(20)-1.2-2 222-1-474.86 АС.И.15 Колонна 4КО3.33(20)-1.2-1* 222-1-474.86 АС.И.16 Колонна 4К3.33(20)-1.2-1; 4КД3.33(30)-1.3-6 222-1-474.86 АС.И.17 Колонна 4КД3.33(20)-1.3-1; 4КД3.33(30)-1.3-2; 4КД3.33(20)-1.3-3 222-1-474.86 АС.И.18 Колонна 4КО3.33(20)-1.2-1; 4КО3.33(20)-1.2-2; 4КО3.33(20)-1.2-4 222-1-474.86 АС.И.19 Колонна 4КО3.33(30)-1.3-9; 4КО3.33(20)-1.2-4* 222-1-474.86 АС.И.20 Колонна 4КД3.33(30)-1.3-1; 4КД3.33(30)-1.3-2; 4КД3.33(30)-1.3-3 222-1-474.86 АС.И.21 Колонна 4КО3.33(30)-1.3-1 222-1-474.86 АС.И.22 Колонна 4КО3.33(30)-1.3-4; 4КО3.33(30)-1.3-3 222-1-474.86 АС.И.23 Колонна 4КО3.33(30)-1.3-4н; 4КО3.33(30)-1.3-3н 222-1-474.86 АС.И.24 Колонна 4КО3.33(30)-1.3-5; 4КД3.33(30)-1.3-4 222-1-474.86 АС.И.25 Колонна 4КО3.33(30)-1.3-5н; 4КВО4.33-1.1-1н 222-1-474.86 АС.И.26 Колонна 4КД3.33(30)-1.3-5; 4КД3.33(30)-1.3-7 222-1-474.86 АС.И.27 Колонна 4КД3.33(30)-1.3-5н; 3КНД4.33(30)-1.2*-2н 222-1-474.86 АС.И.28 Колонна 4КО3.33(30)-1.3-6; 4КО3.33(30)-1.3-7 222-1-474.86 АС.И.29 Колонна 4КО3.33(30)-1.3-6н 222-1-474.86 АС.И.30 Колонна 4КО3.33(30)-1.3-8; 4К3.33(30)-2-1 222-1-474.86 АС.И.31 Колонна 4КД3.33(30)-1.3-8; 4КД3.33(30)-1.3-9; 4КД3.33(30)-1.3-10 222-1-474.86 АС.И.32 Колонна 1КВО4.33-1.1-1; 1КВО4.33-1.1-2; 1КВО4.33-1.1-3; 1КВО4.33-1.1-4; 1КВО4.33-2.1-1 222-1-474.86 АС.И.33 Колонна 3КСО4.33(20)-1.1-1; 3КСО4.33(20)-1.1-2; 3КСД4.33(20)-1.1-1 222-1-474.86 АС.И.34 Колонна 3КНО4.33(20)-1.1-1н 222-1-474.86 АС.И.35 Колонна 3КНО4.33(20)-1.1-3; 3КНО4.33(20)-1.1-5 222-1-474.86 АС.И.36 Колонна 3КНО4.33(20)-1.1-4; 3КНО4.33(20)-1.1-8 222-1-474.86 АС.И.37 Колонна 1КВ4.33(20)-1.1; 1КВО4.33-2.1-2 222-1-474.86 АС.И.38 Колонна 1КВД4.33-1.1-1; 1КВД4.33-2.1-1; 1КВО4.33-1.1-5 222-1-474.86 АС.И.39 Колонна 3КНО4.33(20)-1.1-6; 3КНО4.33(20)-1.1-7 222-1-474.86 АС.И.40 Колонна 1КВД4.33-1.1-2; 1КВД4.33-1.1-3; 1КВД4.33-2.1-2; 1КВД4.33-1.1-4; 1КВО4.33-1.1-6 222-1-474.86 АС.И.41 Колонна 3КНД4.33(30)-1.2*-2; 1КВ4.33-1-2; 1КВО4.33-1.1-10 222-1-474.86 АС.И.42 Колонна 3КНО4.33(30)-1.1-3; 3КНО4.33(30)-1.1-4 222-1-474.86 АС.И.43 Колонна 3КНО4.33(30)-1.1*-6; 3КНО4.33(30)-1.1*-3 222-1-474.86 АС.И.44 Колонна 3КН4.33(30)-1-2; 3КНО4.33(30)-1.1-1 222-1-474.86 АС.И.45 Колонна 3КН4.33(30)-1-1; 3КНО4.33(30)-1.1-2; 3КНО4.33(20)-1.1-9 222-1-474.86 АС.И.46 Колонна 3КНД4.33(20)-1.2-2; 1КНД4.28-1.1-1; 1КВО4.33-1.1-9 222-1-474.86 АС.И.47 Колонна 3КН4.33(20)-1-1; 1КНД4.33-1.2-1 222-1-474.86 АС.И.48 Колонна 3КНД4.33(20)-1.2-3; 1КНД4.33(20)-1.2-4 222-1-474.86 АС.И.49 Ригель РОП4.57-20-1; РОП4.57-20-2; РОП4.27-45-1; РОП4.27-45-2 222-1-474.86 АС.И.50 Диафрагма жесткости 1Д56.33-1. Вентблок-диафрагма жесткости 2ВД30.33-1; 2ВД26.33-1. Ригель РЛП4.56.45-1 222-1-474.86 АС.И.51 Плита перекрытия ПТ116.30-6АIVт-1 222-1-474.86 АС.И.52 Плиты перекрытий ПРС56.15-10АIVт-1; ПРС56.15-10АIVт-2; ПРС56.15-10АIVт-3 222-1-474.86 АС.И.53 Плиты перекрытий ПРС56.15-10АIVт-4; ПРС56.15-10АIVт-5; ПРС56.15-10АIVт-6 222-1-474.86 АС.И.54 Панели цокольные ПСЦ60.2125(3.5) 222-1-474.86 АС.И.55 Панель цокольная ПСЦ30.30.3.5-л; ПСЦ60.30.3.5-л 222-1-474.86 АС.И.56 Панель цокольная ПСЦ30.30.2.5-л; ПСЦ60.30.2.5-л 222-1-474.86 АС.И.57.СБ Каркас пространственный КПЦ30.30.3.5; КПЦ60.30.3.5 222-1-474.86 АС.И.58.СБ Каркас пространственный КПЦ30.30.2.5; КПЦ60.30.2.5 222-1-474.86 АС.И.59.СБ Каркас плоский КР30.2.5; КР30.3.5. Сетка С1; С2; С3; С4 222-1-474.86 АС.И.60 Ведомость расхода стали на дополнительные закладные изделия 222-1-474.86 АС.И.61.СБ Каркас плоский К-1. Сборочный чертеж 222-1-474.86 АС.И.62 Схема расположения дополнительных закладных деталей в однослойных стеновых панелях 222-1-474.86 АС.И.63 Схема расположения дополнительных закладных деталей в трехслойных стеновых панелях 222-1-474.86 АС.И.64 Выборка закладных изделий на однослойные стеновые панели 222-1-474.86 АС.И.65 Выборка закладных изделий на трехслойные стеновые панели 222-1-474.86 АС.И.66 Ведомость расхода стали на дополнительные закладные изделия для однослойных стеновых панелей толщиной 300 мм 222-1-474.86 АС.И.67 Ведомость расхода стали на дополнительные закладные изделия для трехслойных стеновых панелей толщиной 300 мм 222-1-474.86 АС.И.68 Ведомость расхода стали на дополнительные закладные изделия для однослойных стеновых панелей толщиной 350 мм 222-1-474.86 АС.И.69 Ведомость расхода стали на дополнительные закладные изделия для трехслойных стеновых панелей толщиной 350 мм 222-1-474.86 АС.И.70 Дверь ИД-1 222-1-474.86 АС.И.70.СБ Дверь ИД-1. Сборочный чертеж 222-1-474.86 АС.И.71 Коробка 222-1-474.86 АС.И.71.СБ Коробка. Сборочный чертеж 222-1-474.86 АС.И.72 Полотно 222-1-474.86 АС.И.72.СБ Полотно. Сборочный чертеж 222-1-474.86 АС.И.73 Оголовок колонны МС-24. Сборочный чертеж 222-1-474.86 АС.И.74 Изделие соединительное М-1; М-2 |
| Разработан: | ЦНИИЭП учебных зданий |
| Утверждён: | 20.05.1983 Госгражданстрой (Gosgrazhdanstroy 159) |





























































































