Скачать Типовой проект 901-3-254.89 Альбом 2. Архитектурно-строительные решения. Конструкции металлические. Организация строительства. Технология производства. Отопление и вентиляция. Силовое электрооборудование. Автоматизация. Электрическое освещение. Связь и сигнализацияДата актуализации: 01.01.2021
|
| Обозначение: | Типовой проект 901-3-254.89 |
| Обозначение англ: | 901-3-254.89 |
| Статус: | не определен законодательством |
| Название рус.: | Альбом 2. Архитектурно-строительные решения. Конструкции металлические. Организация строительства. Технология производства. Отопление и вентиляция. Силовое электрооборудование. Автоматизация. Электрическое освещение. Связь и сигнализация |
| Дата добавления в базу: | 01.09.2013 |
| Дата актуализации: | 01.01.2021 |
| Дата введения: | 18.11.1985 |
| Дата окончания срока действия: | 30.06.2003 |
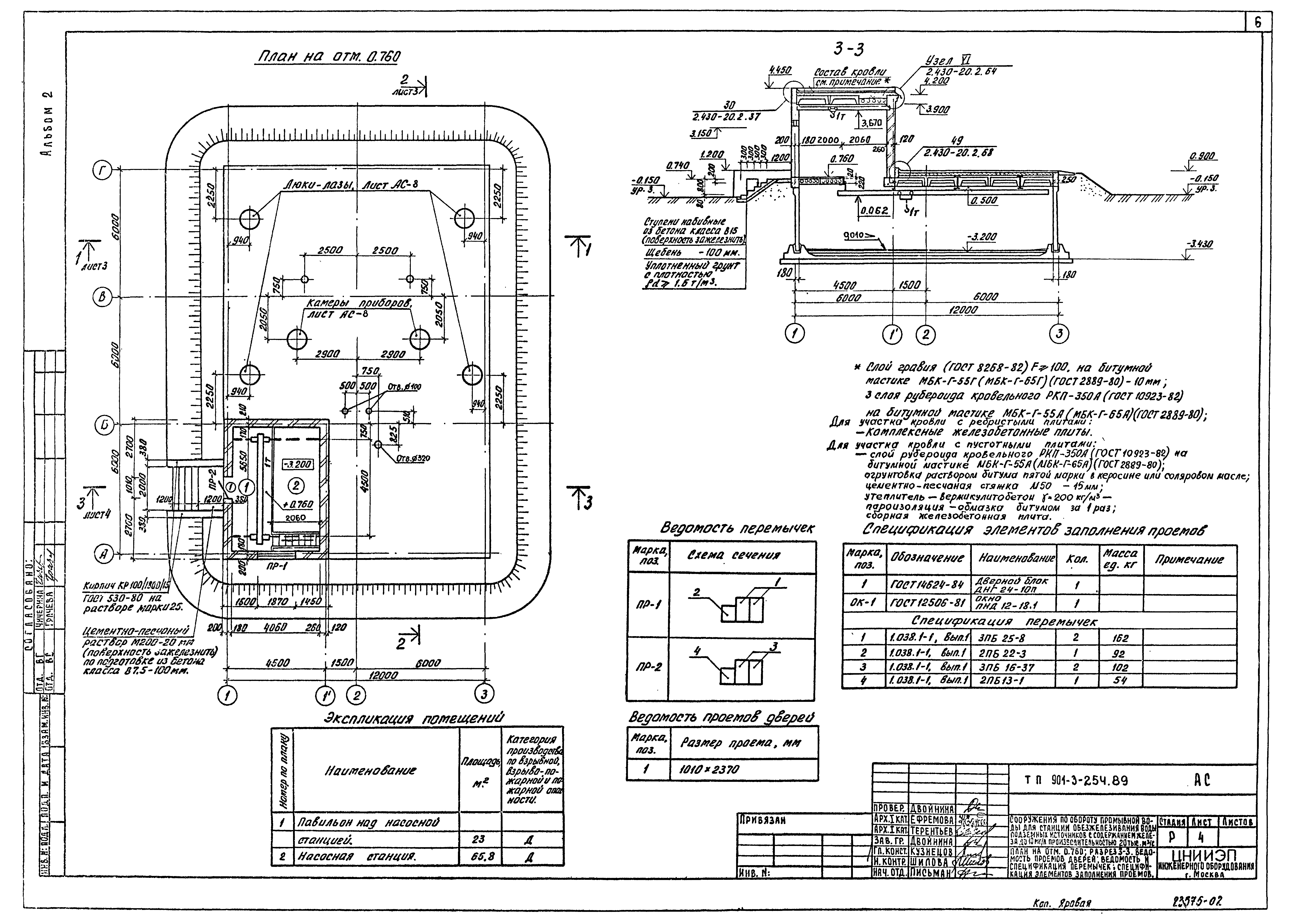
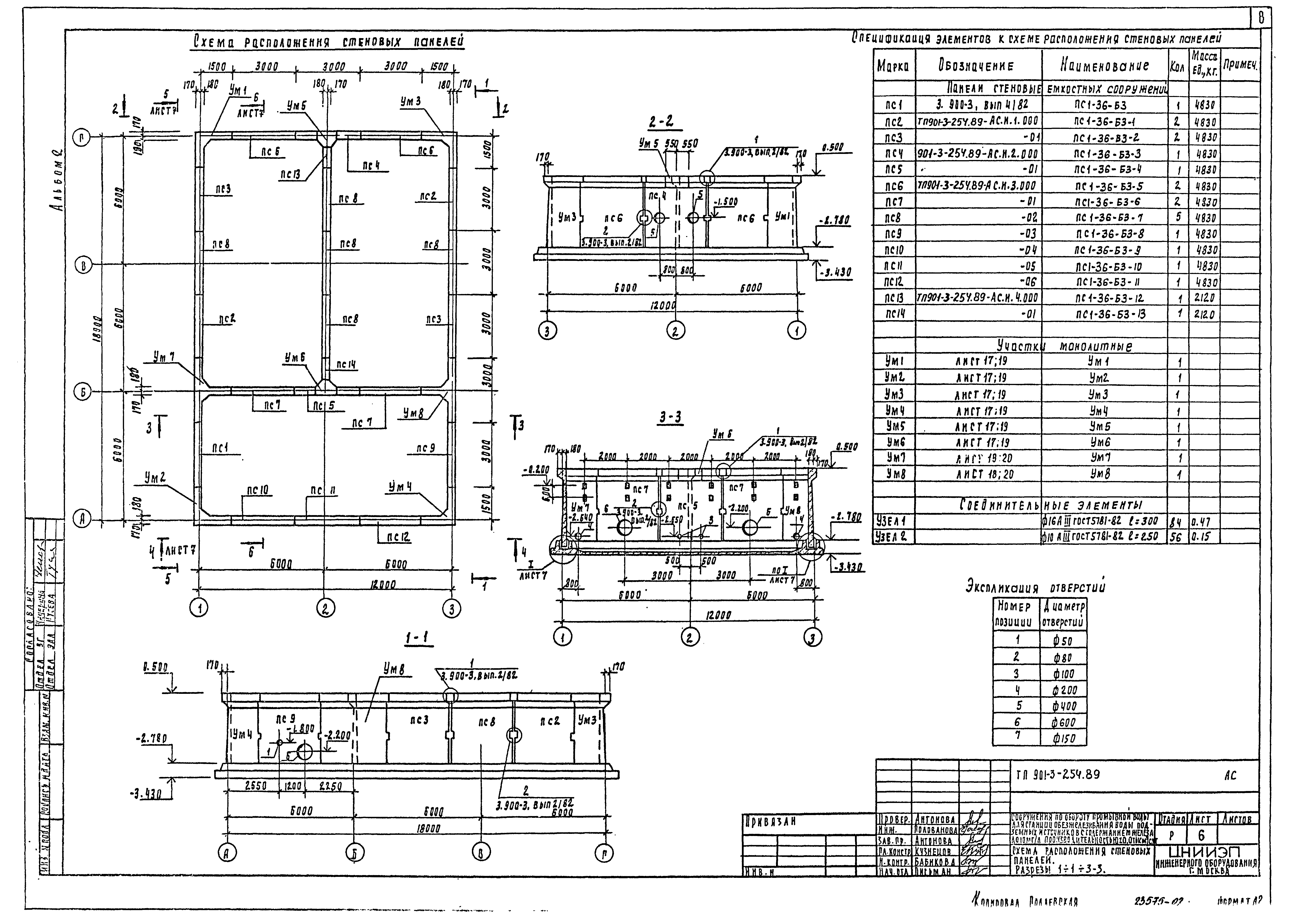
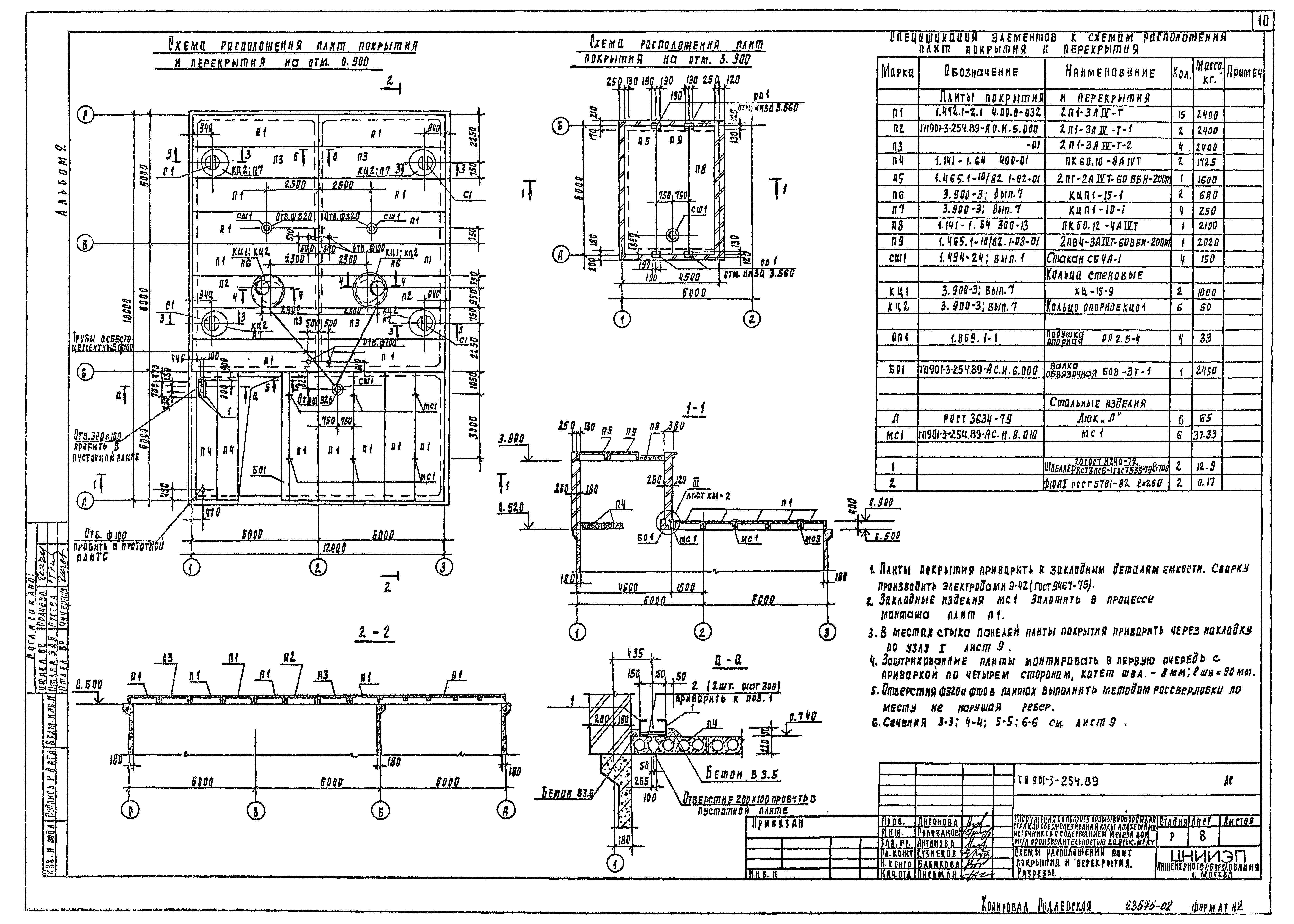
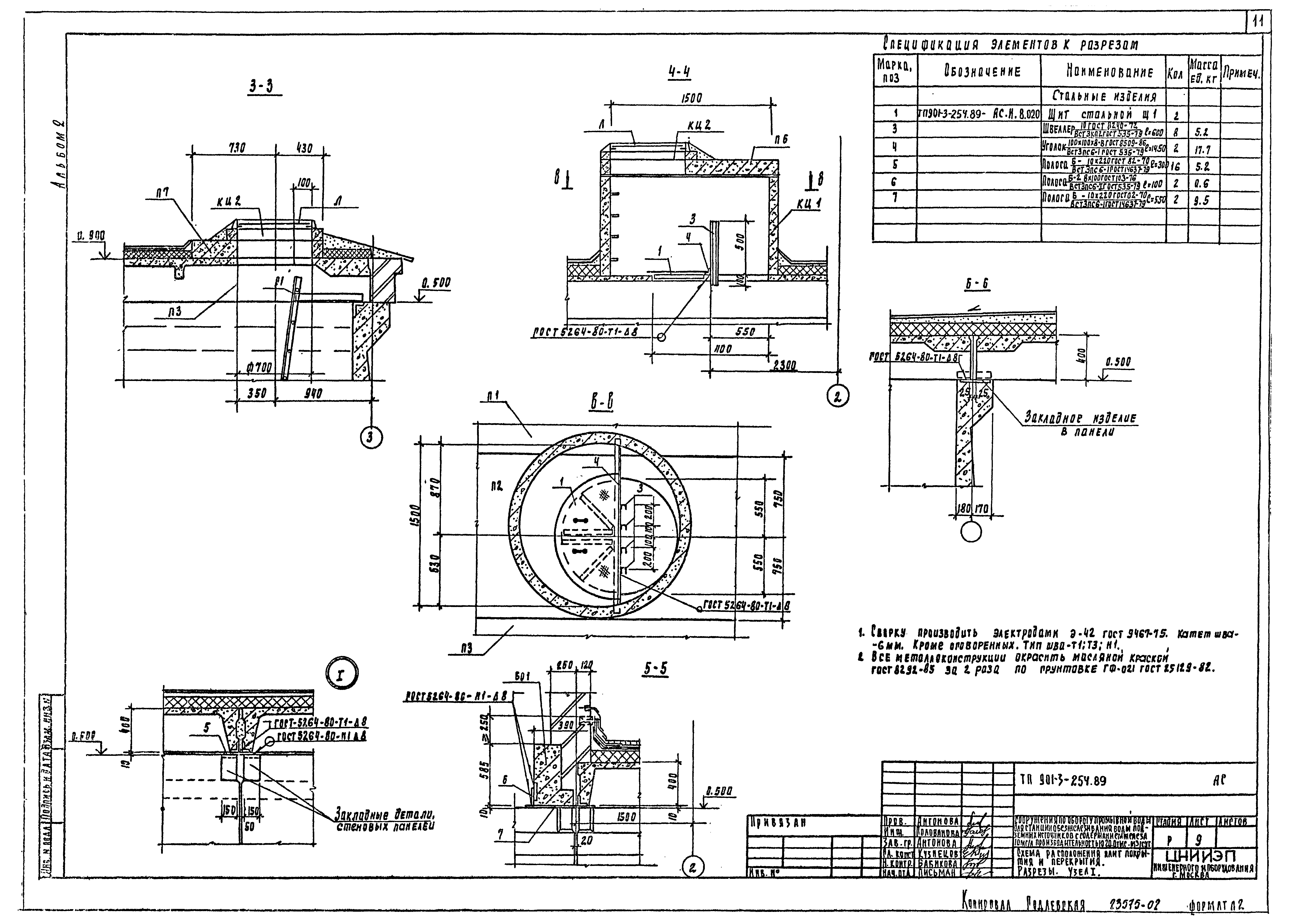
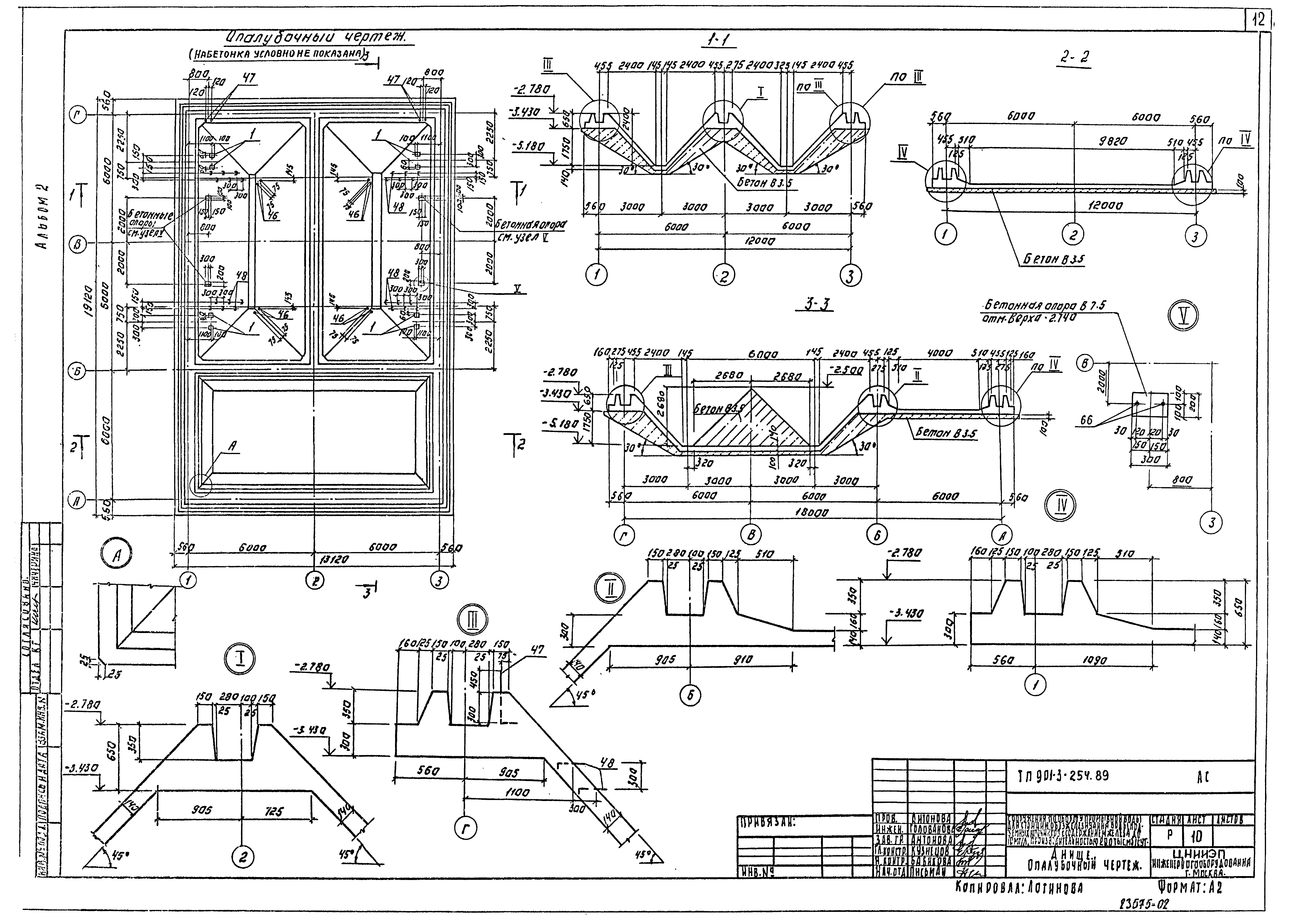
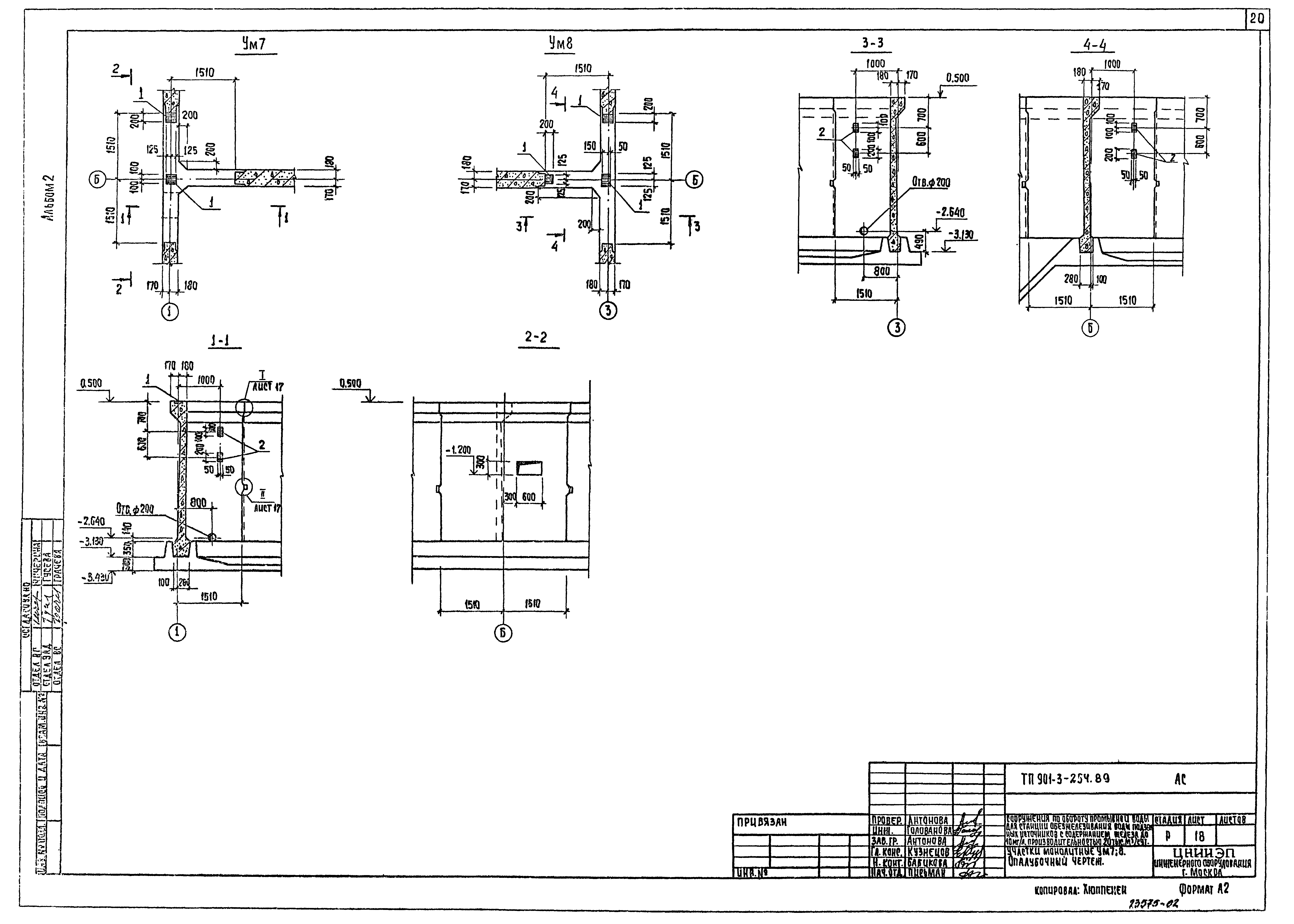
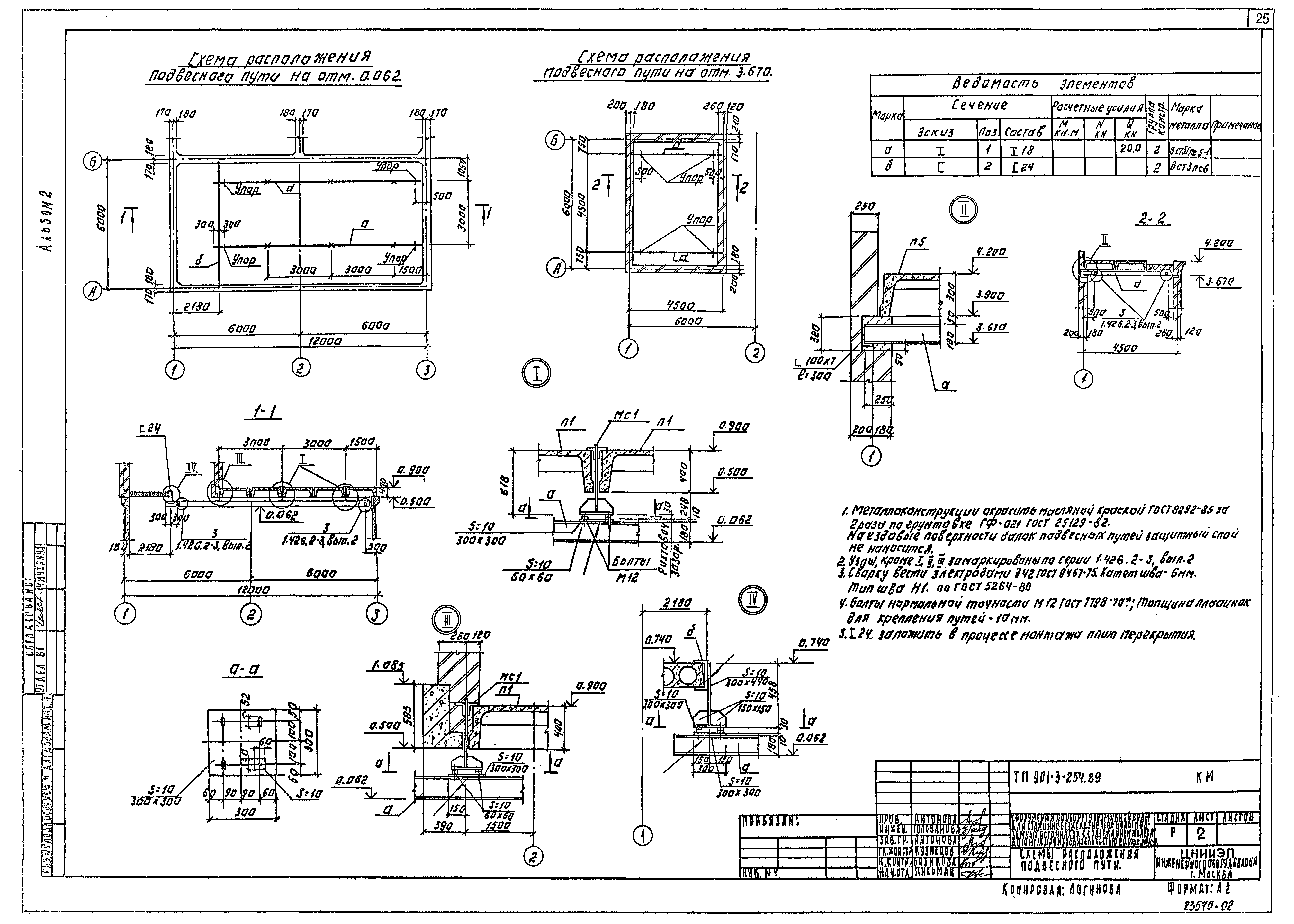
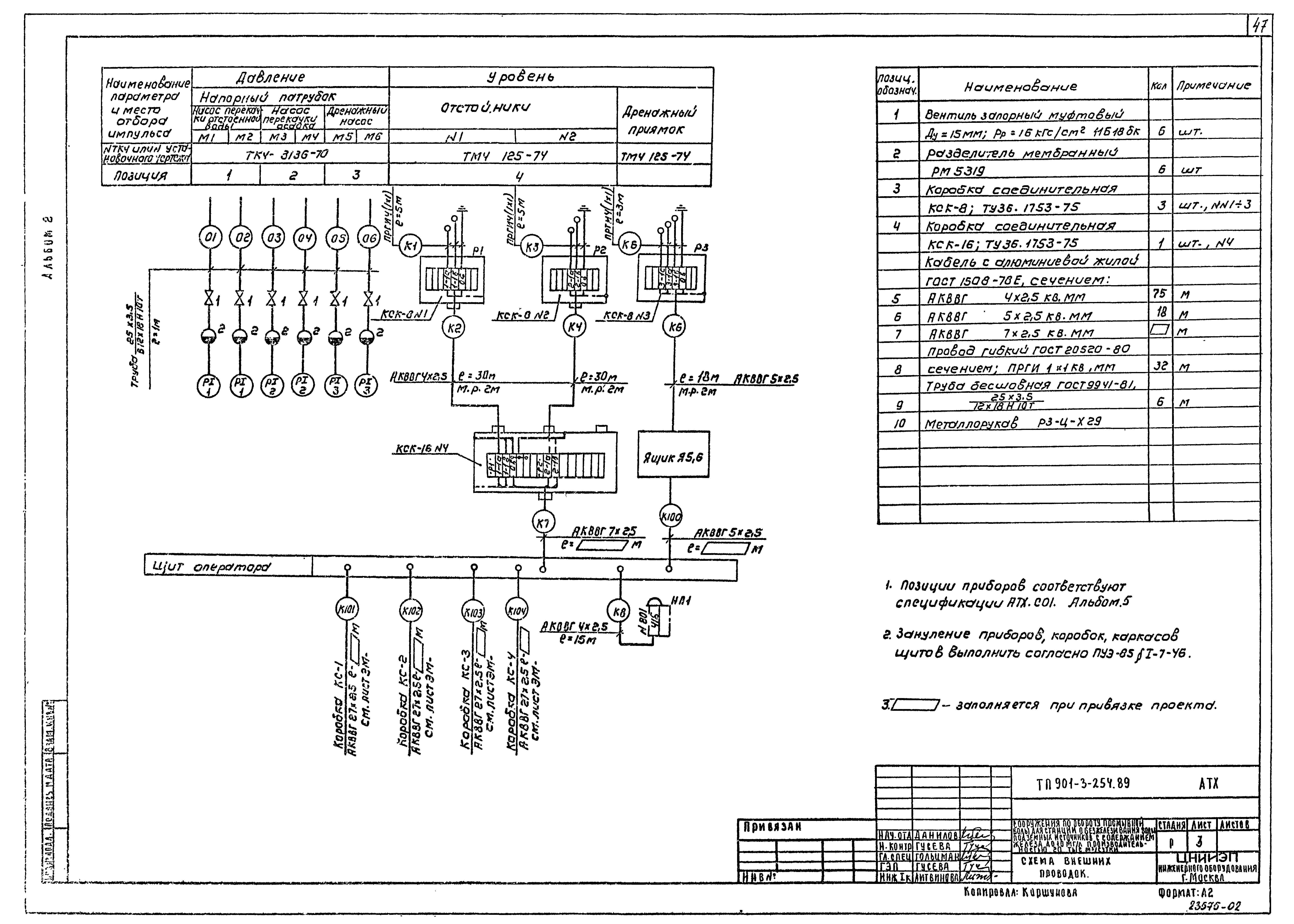
| Оглавление: | Архитектурно-строительные решения Общие данные План на отм. - 3.200. Разрезы 1-1, 2-2 План на отм. 0.760. Разрез 3-3. Ведомость проемов и дверей. Ведомость и спецификация перемычек. Спецификация элементов заполнения проемов Фасады 1 - 3, Г - А. ведомость отделки помещений. Экспликация полов. План кровли. Узел I Схема расположения стеновых панелей. Разрезы 1-1, 3-3 Схема расположения стеновых панелей. Разрезы 4-4 - 6-6. Узлы Схемы расположения плит покрытия и перекрытия. Разрезы Схемы расположения плит покрытия и перекрытия. Разрезы. Узел I Днище. Опалубочный чертеж Схема расположения элементов подземного хозяйства. Фундаменты ФОМ1 -ФОМ3. Опоры ОП1 - ОП4 Схема расположения элементов подземного хозяйства. Разрезы. Опоры ОП5 - ОП7 Армирование днища. Схемы расположения каркасов нижних и верхних сеток. Узел I Армирование днища. Узлы II-III. Сечения 1-1 - 4-4 Армирование днища. Сечения 8-8 - 10-10 Армирование днища. Спецификация Участки монолитные Ум1 - Ум6. Опалубочный чертеж. Узлы I, II Участки монолитные Ум7, 8. Опалубочный чертеж Участки монолитные Ум1 - Ум6. Армирование Участки монолитные Ум7, 8. Армирование Спецификация монолитных участков стен. Ведомость расхода стали Конструкции металлические Общие данные Схемы расположения подвесного пути Схема расположения площадок и опор. Сечения 1-1 - 6-6 Схема расположения площадок и опор. Сечения 7-7 - 13-13 Организация строительства График производства работ Технология производства Общие данные Планы на отм. 0.760; - 3.200. Экспликация помещений Разрезы 1-1, 2-2, 3-3 Схемы трубопроводов В11, В8, К3, К5, В1 Переходник. Эскизный чертеж общего вида Отопление и вентиляция Общие данные. План на отм. 0.760 и - 3.200. Схемы системы ВЕ1 - ВЕ3. Узел управления Силовое электрооборудование Общие данные Схема электрическая принципиальная распределительной сети 380/220 В Схема электрическая принципиальная управления насосом перекачки осветленной воды М1 (М2), насосом перекачки осадка М3 (м4) Схема электрическая принципиальная управления задвижками М7 - М8, затворами М9 - М13 Схема подключения электрооборудования шкаф РТ30. Задвижки М7, М8. Затворы М9 - М13 Схема подключения электрооборудования ящик Я1, 2 (Я5, 6) Схема подключения электрооборудования ящик Я3, 4. Сводка кабелей и проводов, учтенных кабельным журналом Кабельный журнал Размещение электрооборудования и прокладка кабеля. План на отм. - 3.200; 0.760 Автоматизация Общие данные Схемы электрические принципиальные питания приборов сигнализации Схема внешних проводок Размещение приборов и устройств технологического контроля. План на отм. 0.900; - 3.200 Электрическое освещение Общие данные. Электрическое освещение. Планы на отм. 0.760 и - 3.200 Связь и сигнализация Общие данные. План на отм. 0.760 с сетями связи |
| Разработан: | ЦНИИЭП инженерного оборудования Госгражданстроя |
| Утверждён: | 18.11.1985 Госгражданстрой (Gosgrazhdanstroy 346) |
| Издан: | ЦИТП Госстроя СССР (CITP, Gosstroy (USSR) 1988 г. ) |


















































