Скачать Типовой проект 409-28-61.92 Альбом 1. Пояснительная записка. Технология производства. Силовое электрооборудование. Внутреннее электрическое освещение. Автоматизация систем отопления и вентиляцииДата актуализации: 01.01.2021
|
| Обозначение: | Типовой проект 409-28-61.92 |
| Обозначение англ: | 409-28-61.92 |
| Статус: | не определен законодательством |
| Название рус.: | Альбом 1. Пояснительная записка. Технология производства. Силовое электрооборудование. Внутреннее электрическое освещение. Автоматизация систем отопления и вентиляции |
| Дата добавления в базу: | 01.09.2013 |
| Дата актуализации: | 01.01.2021 |
| Дата введения: | 11.06.1992 |
| Дата окончания срока действия: | 30.06.2003 |
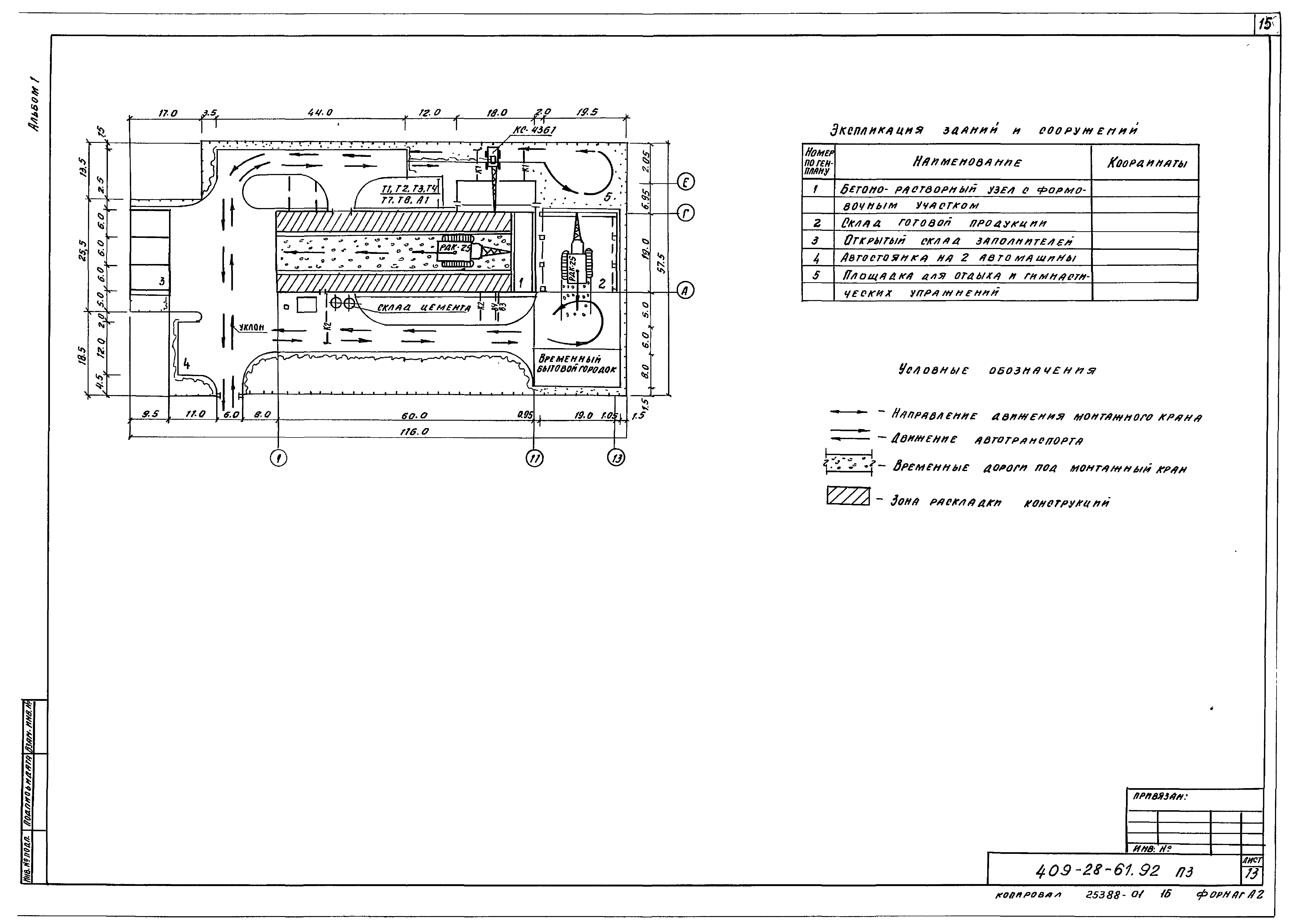
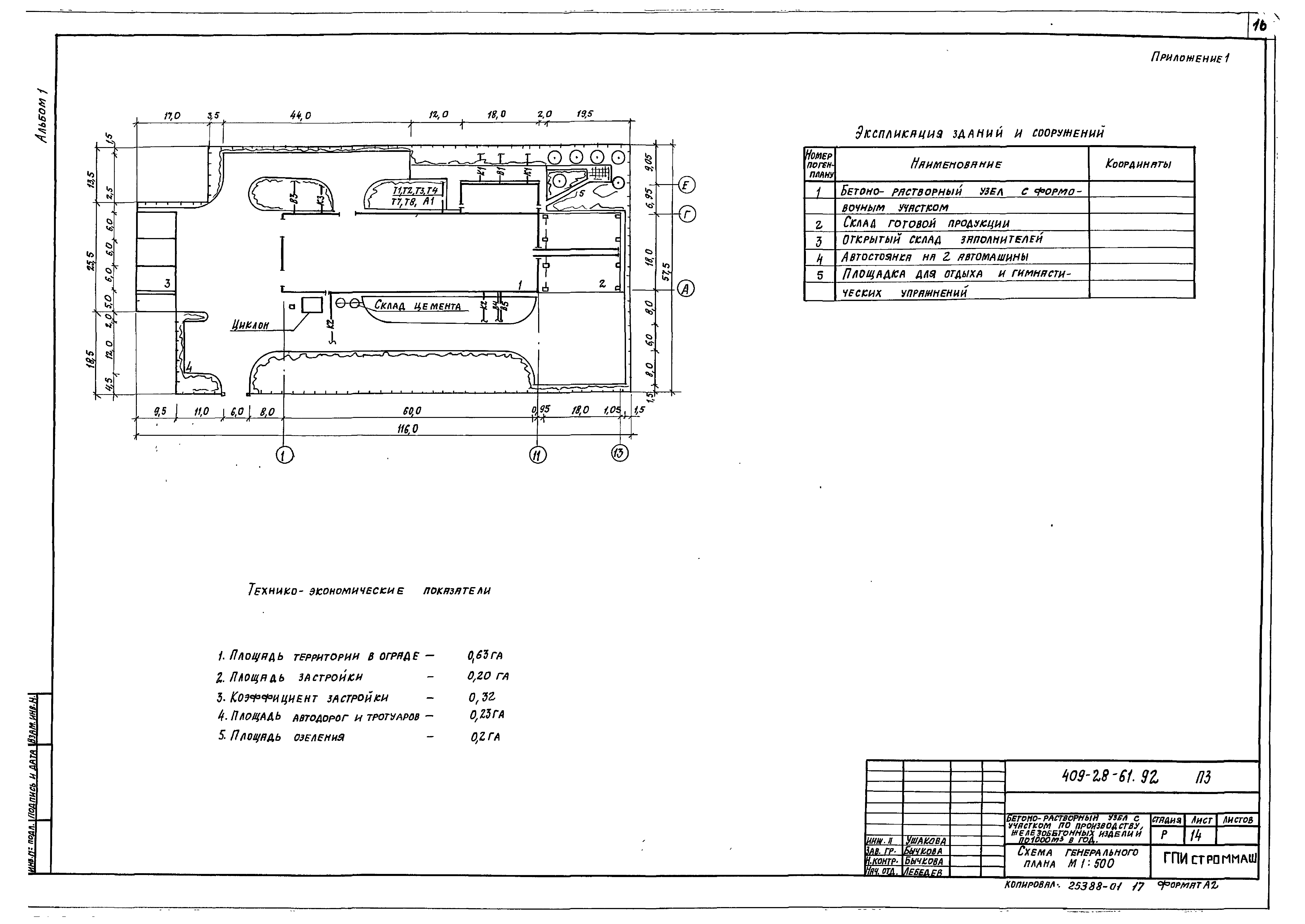
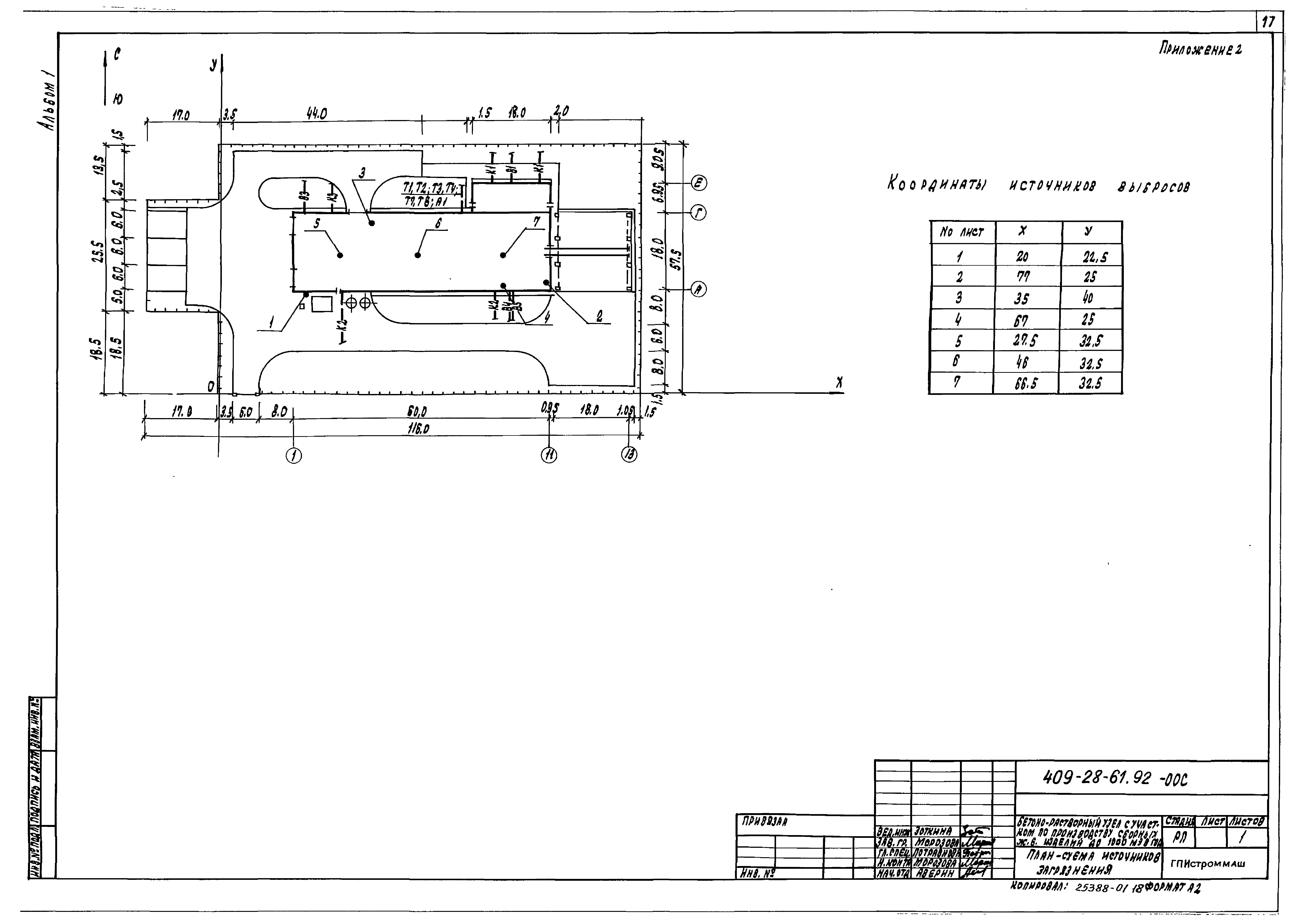
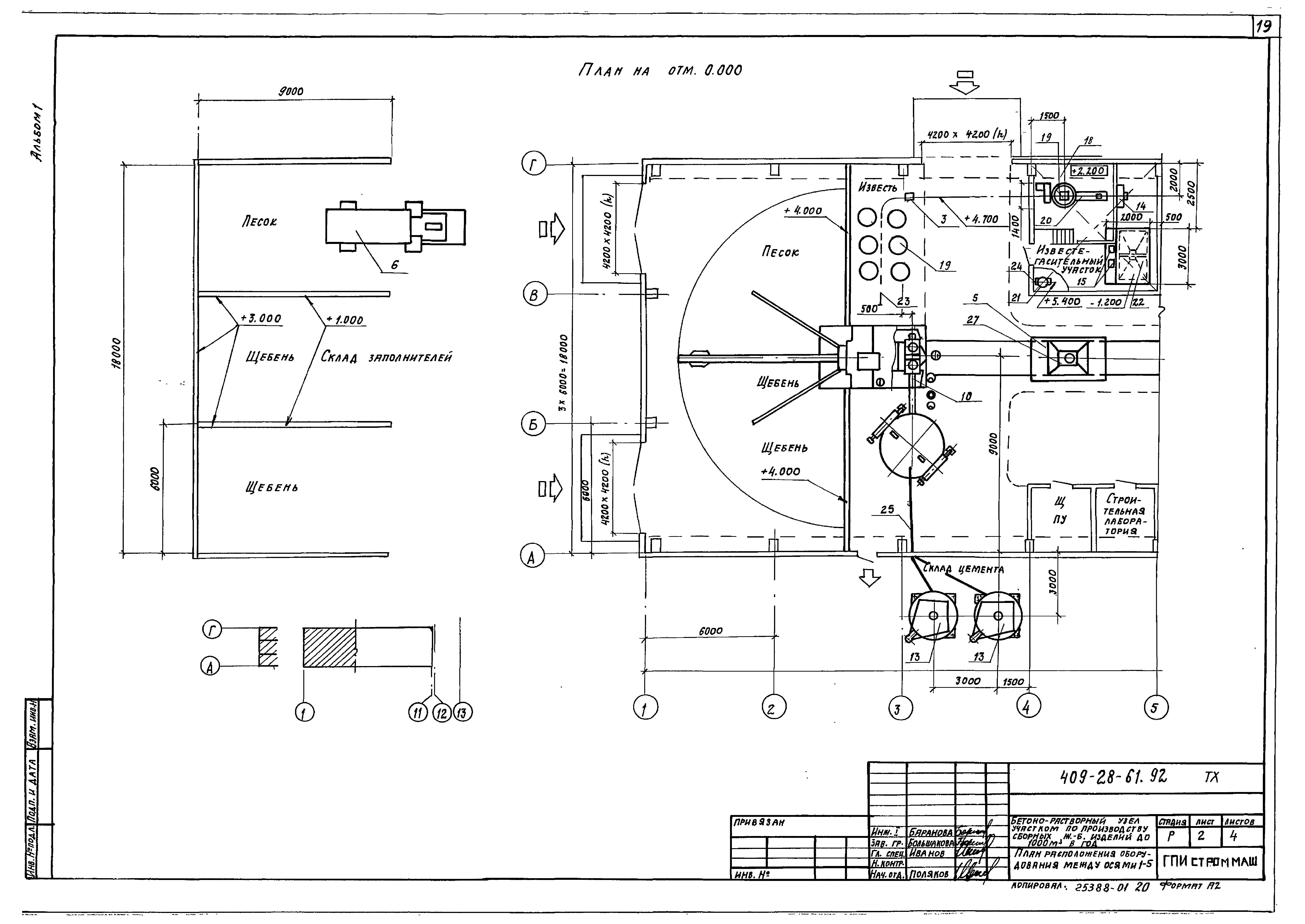
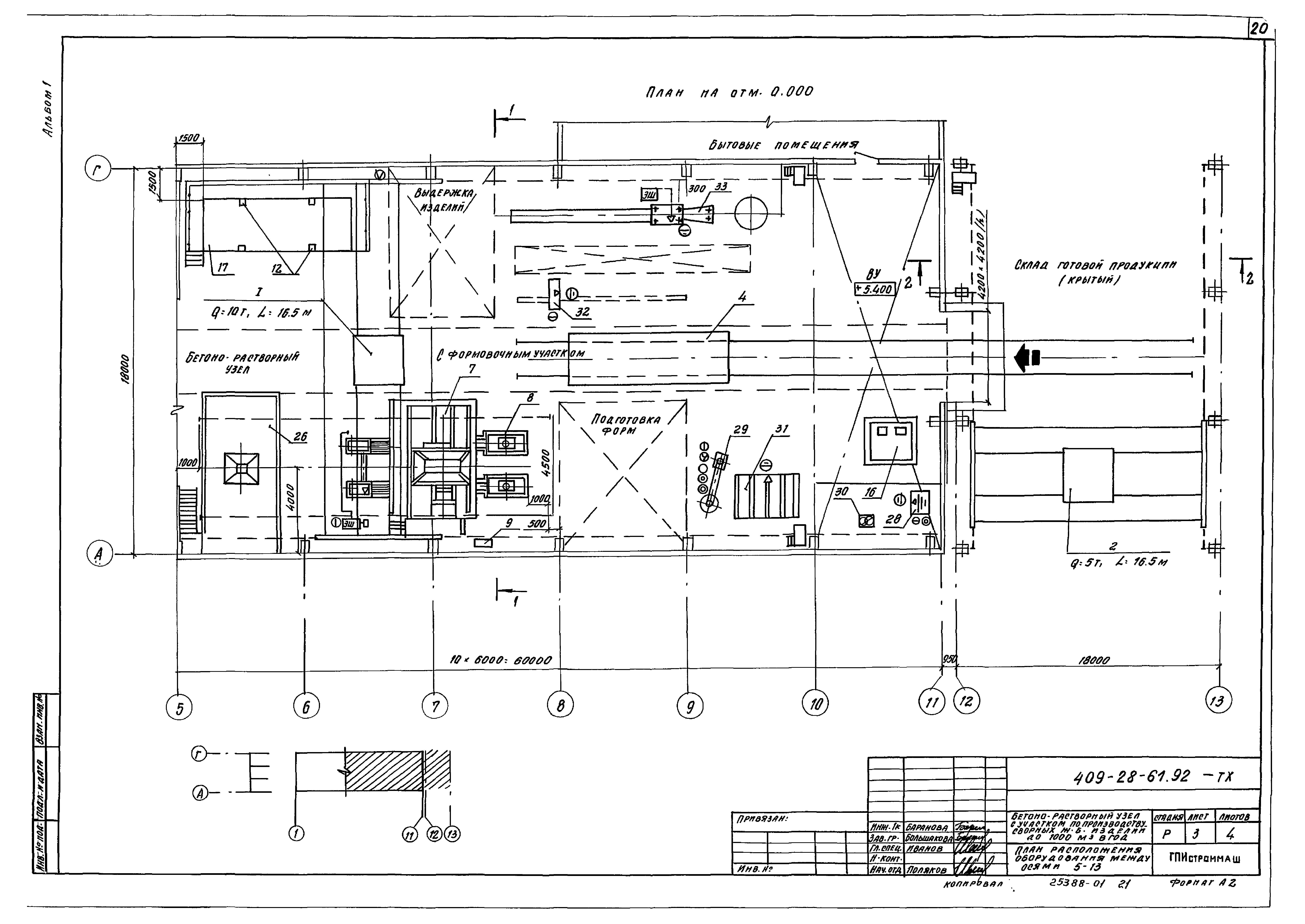
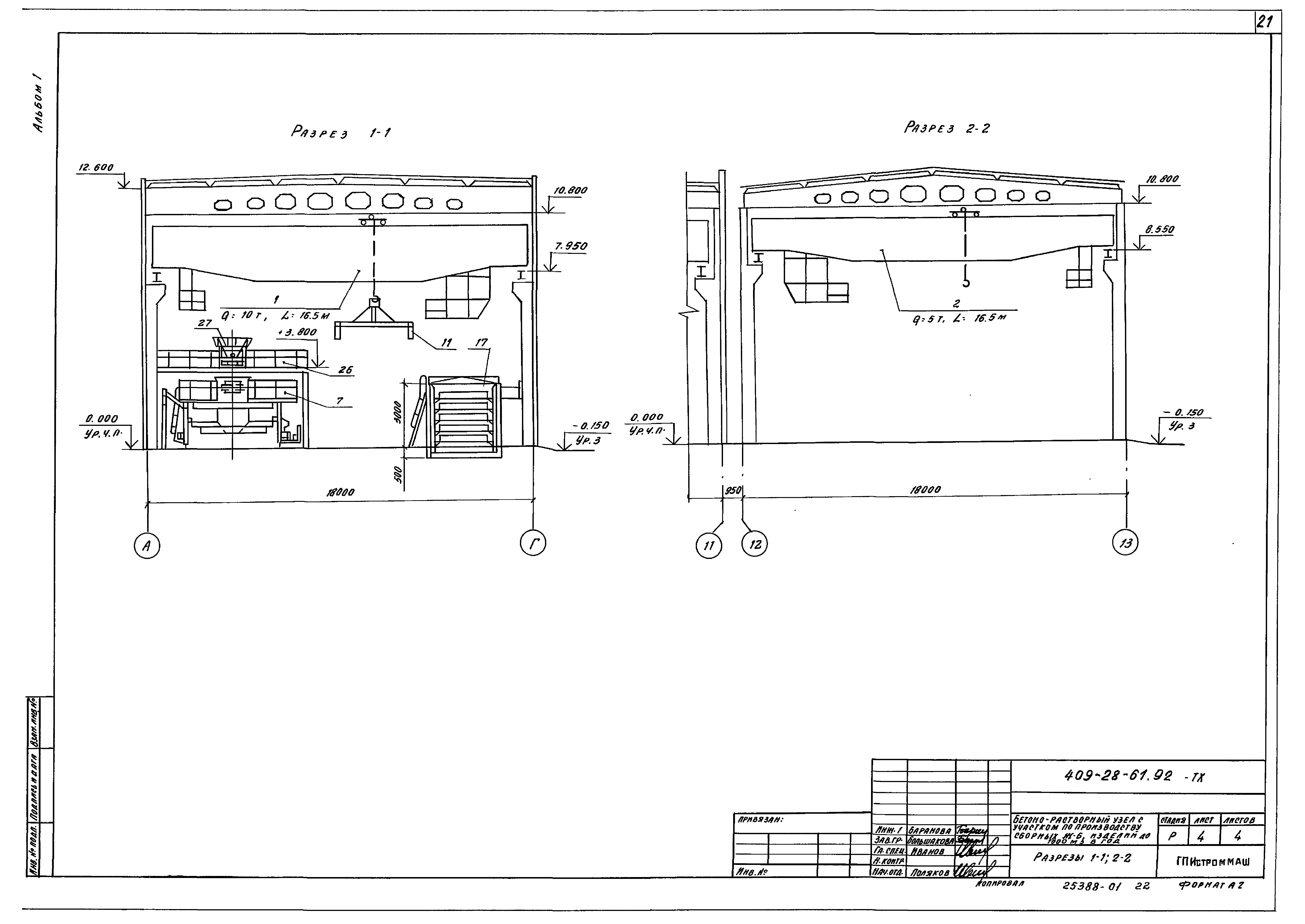
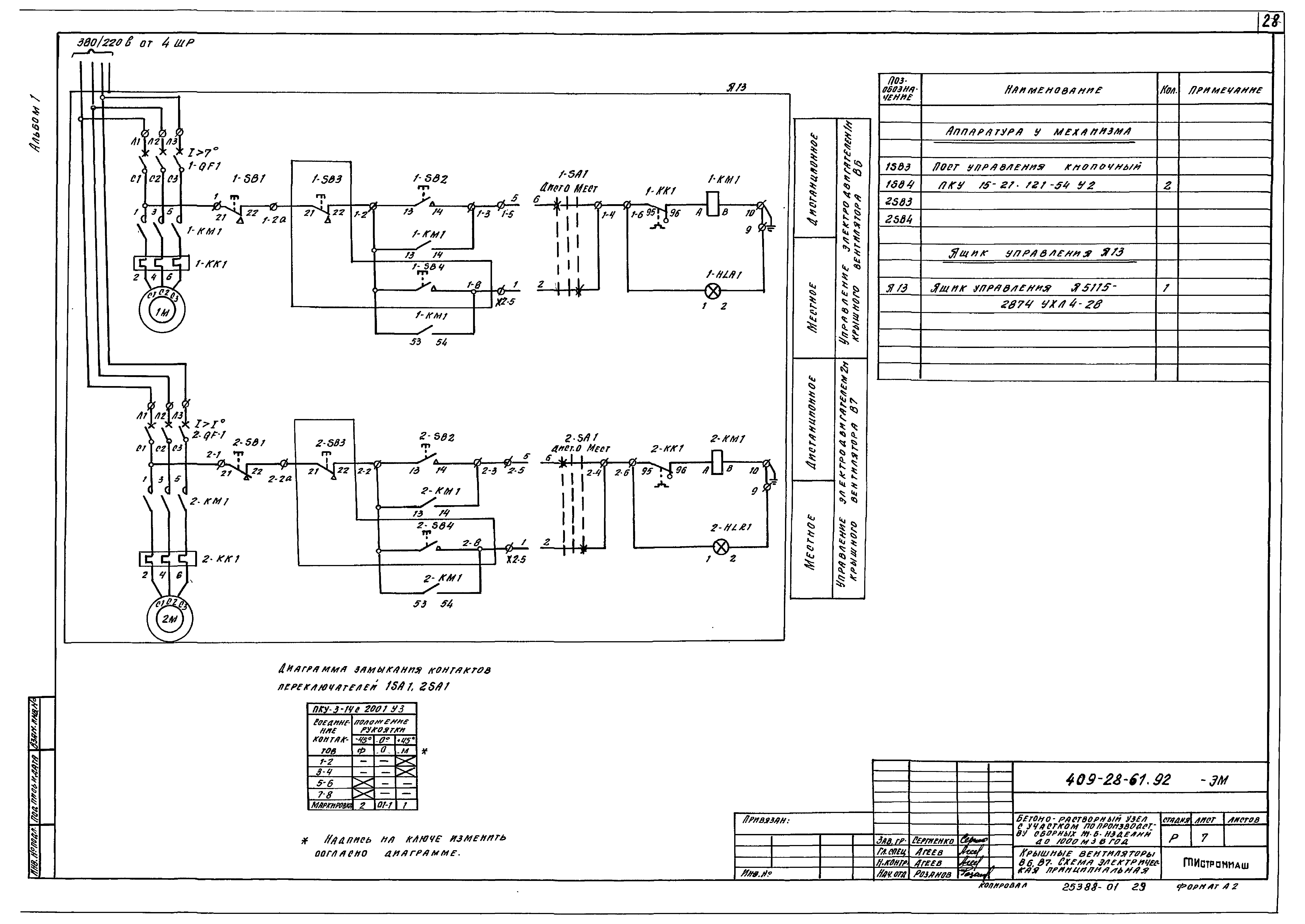
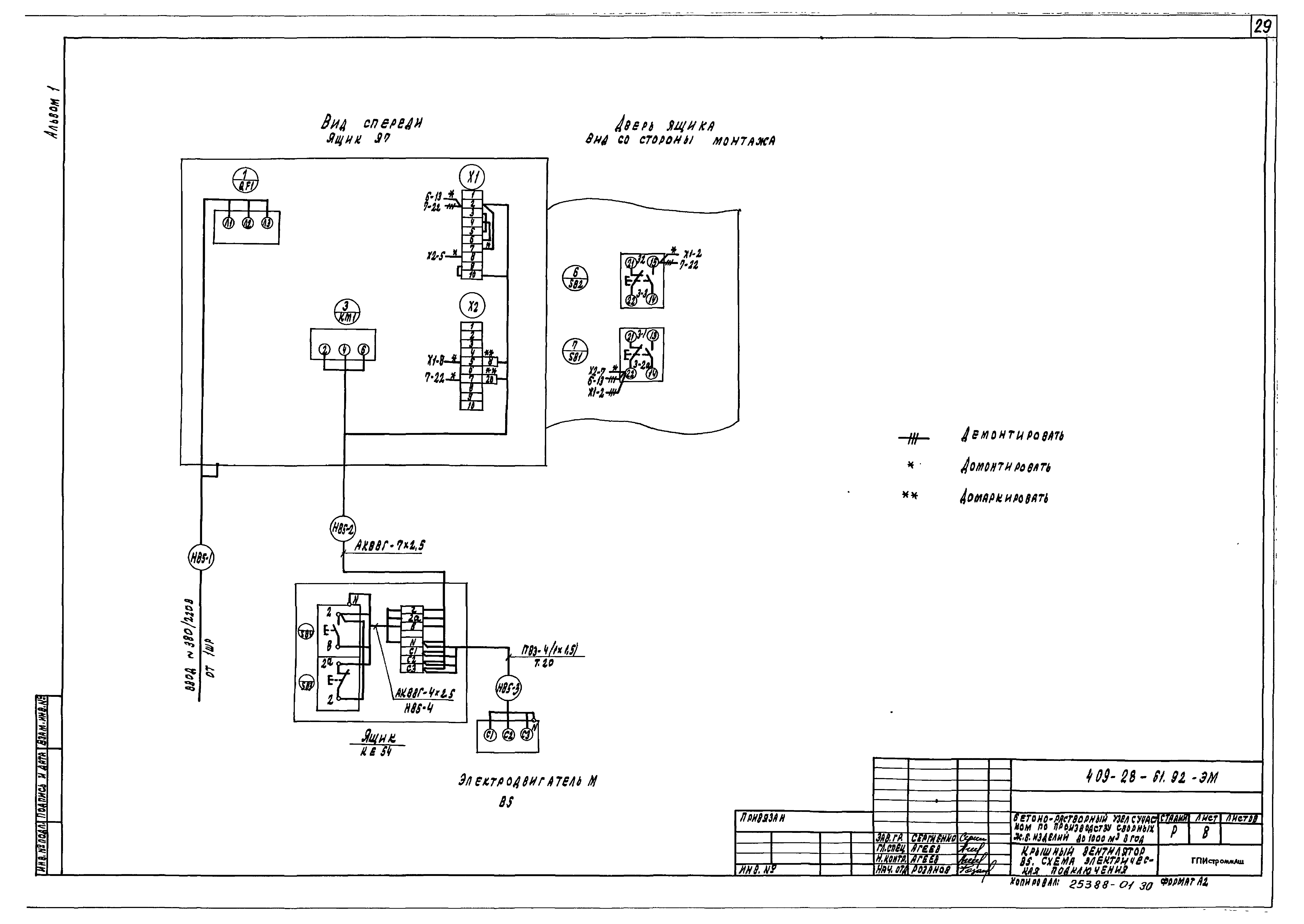
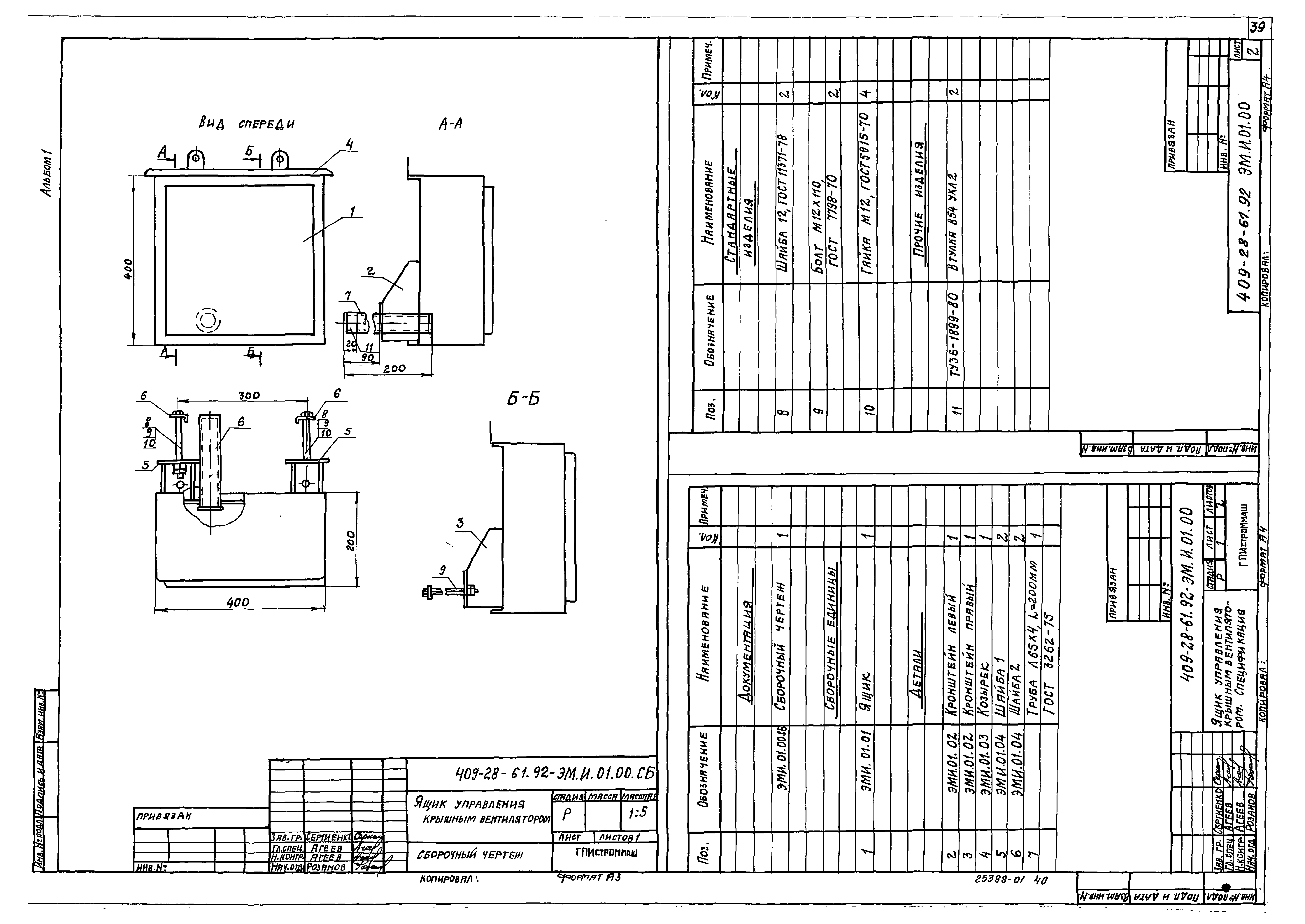
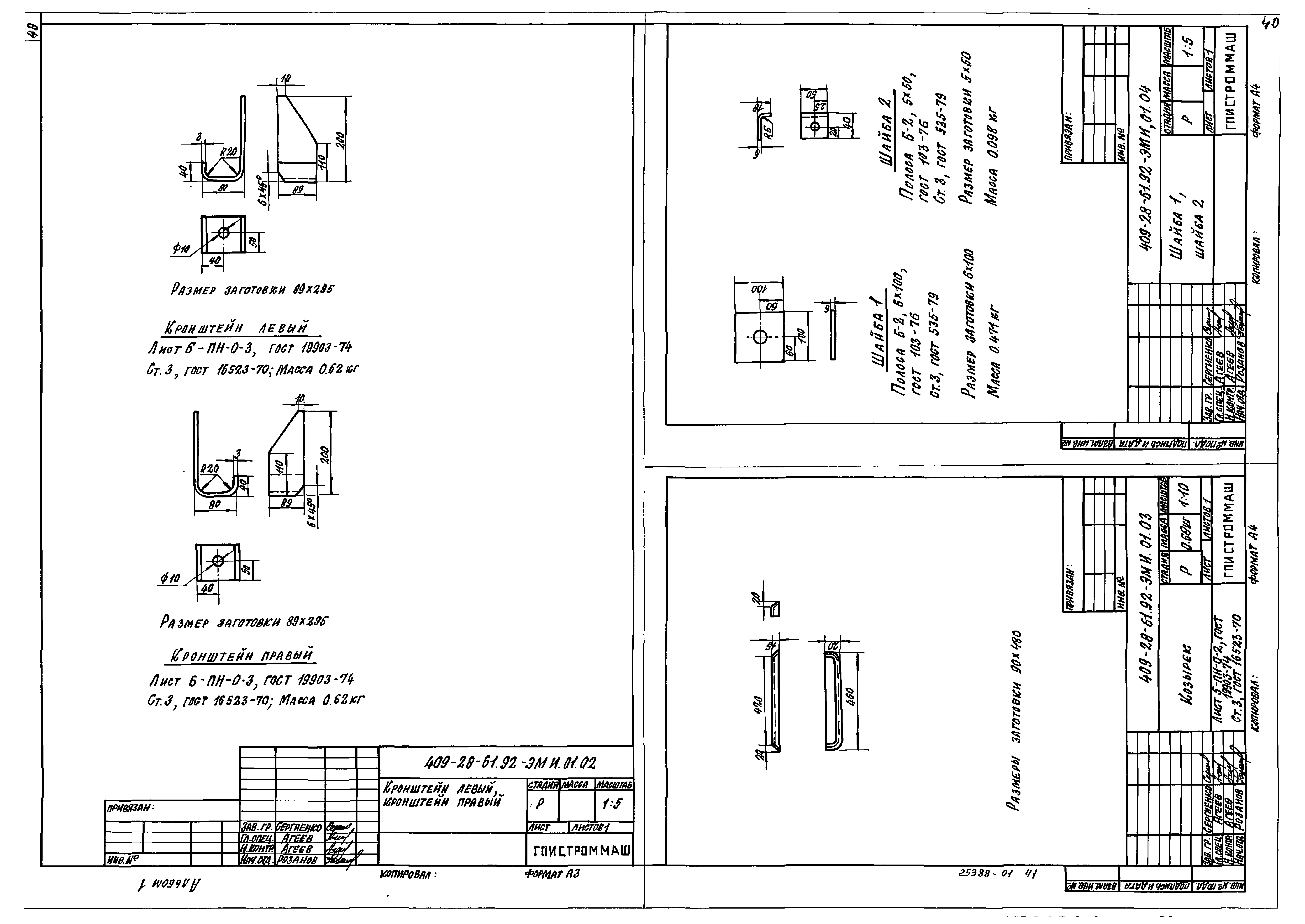
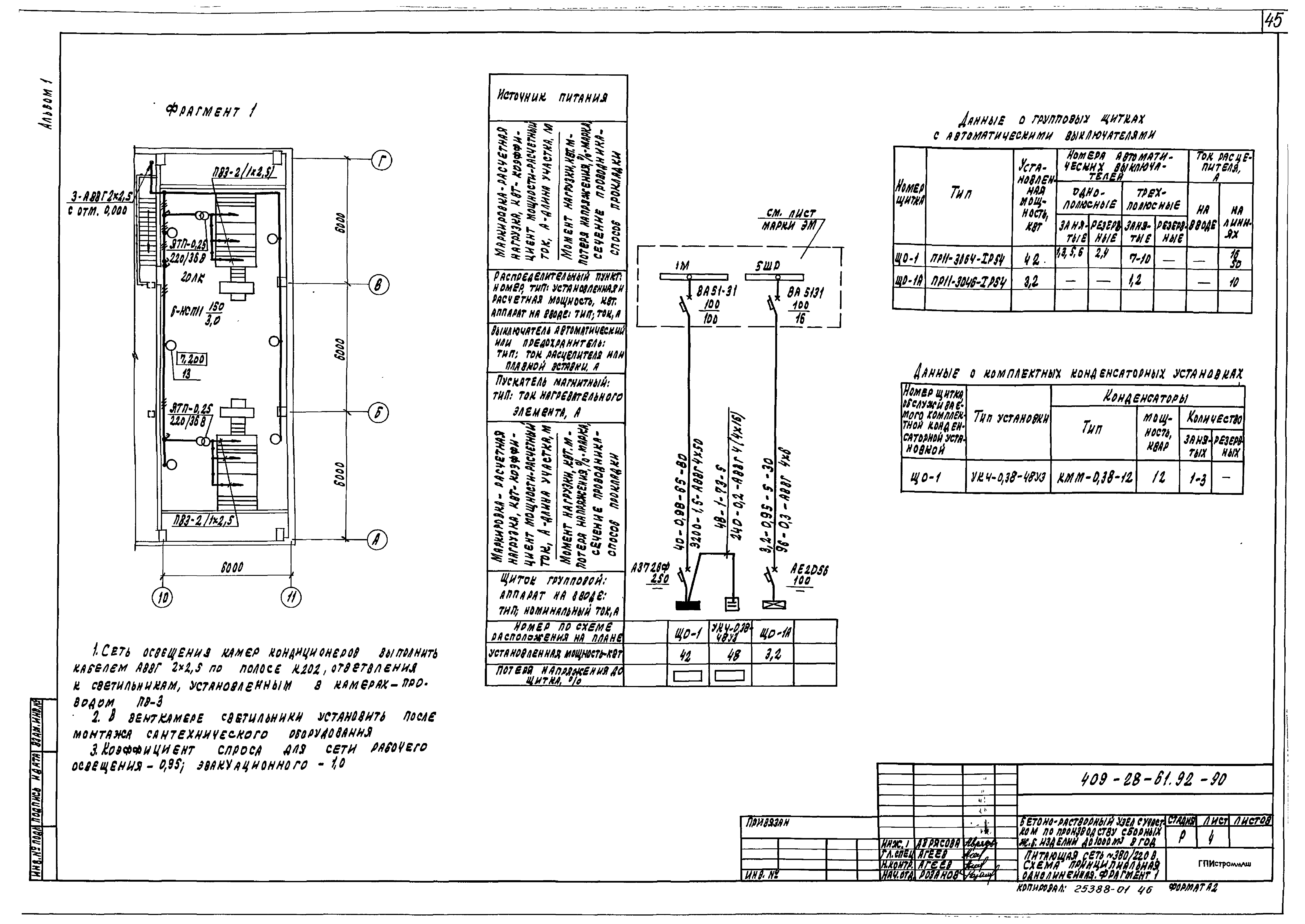
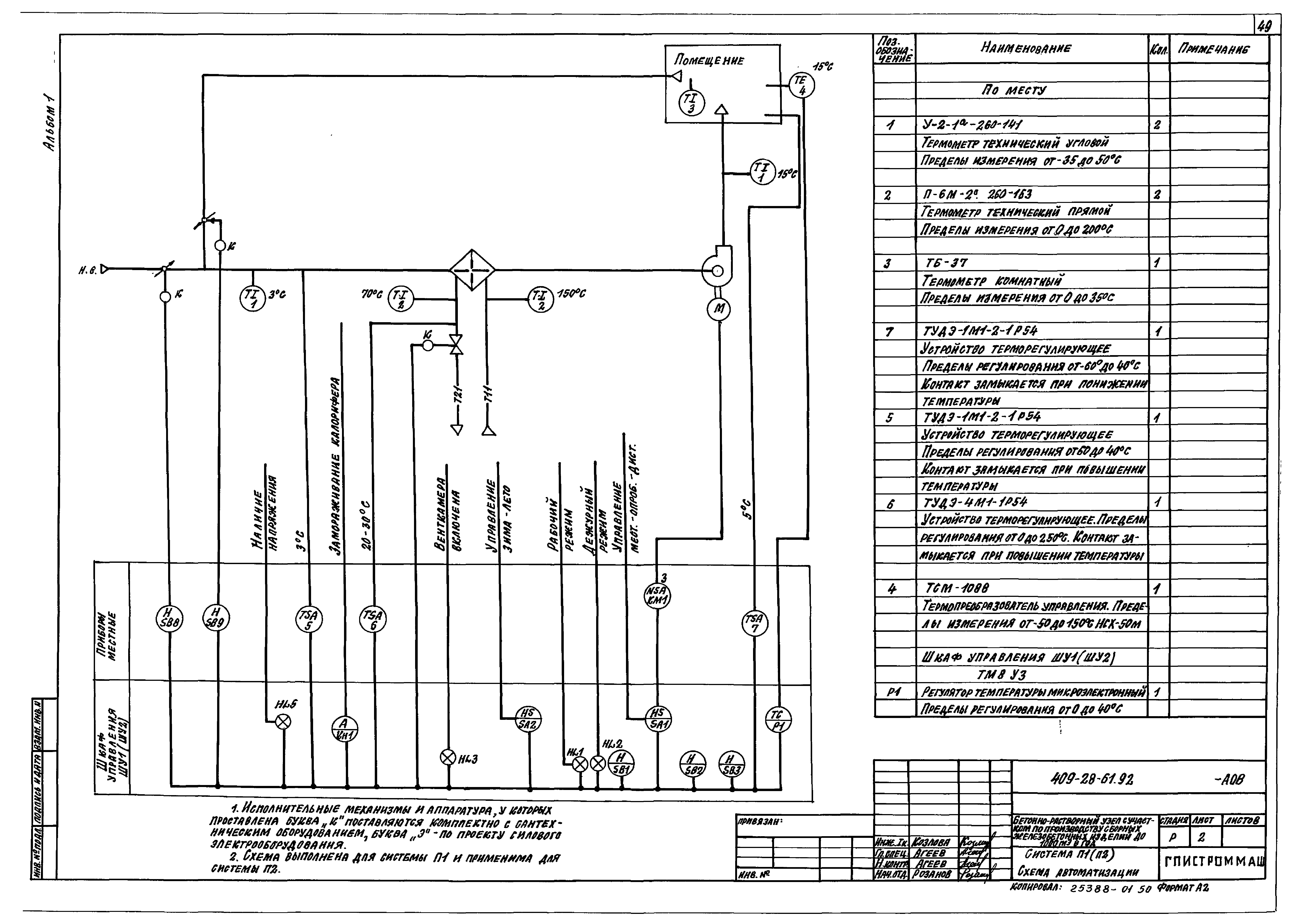
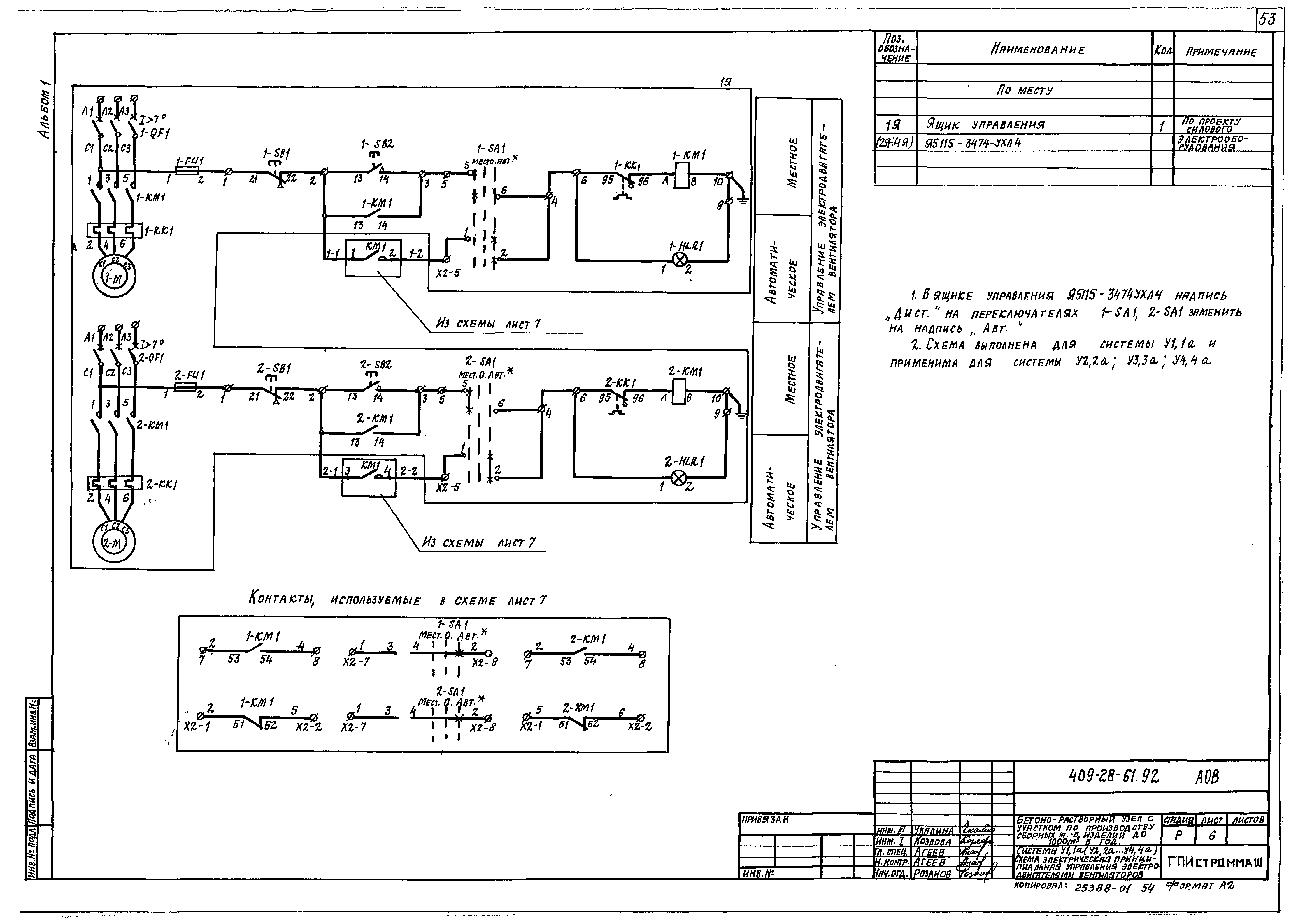
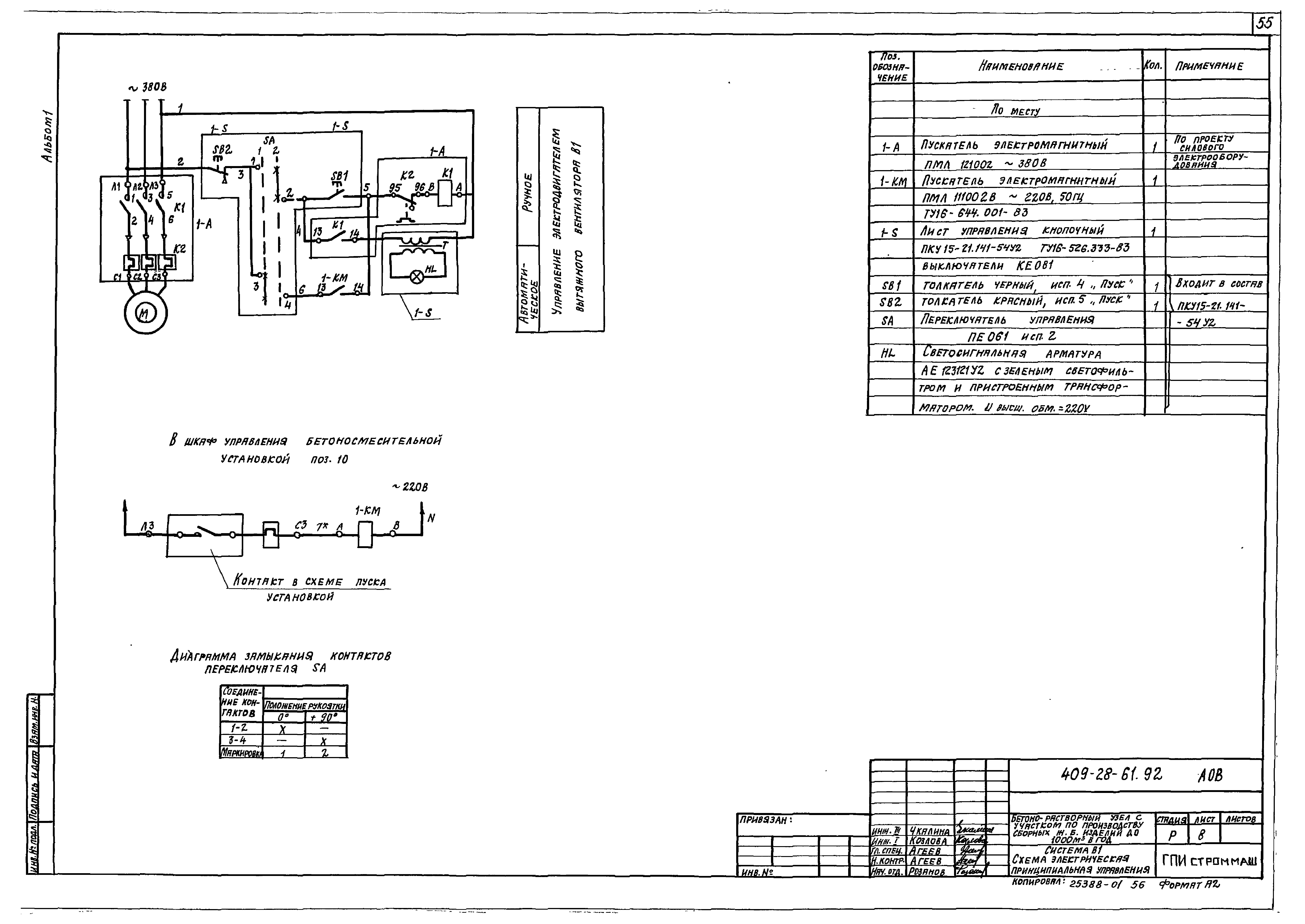
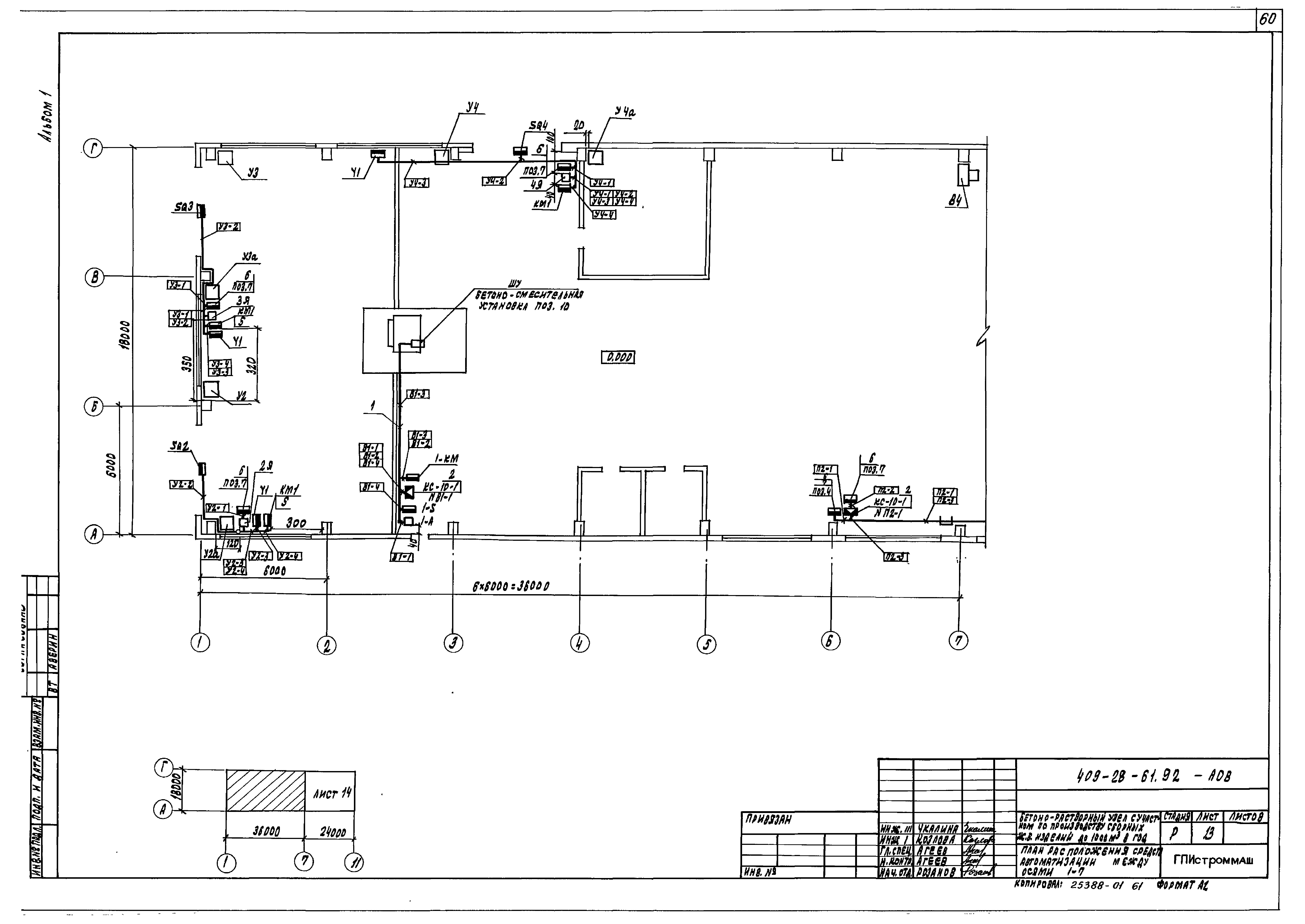
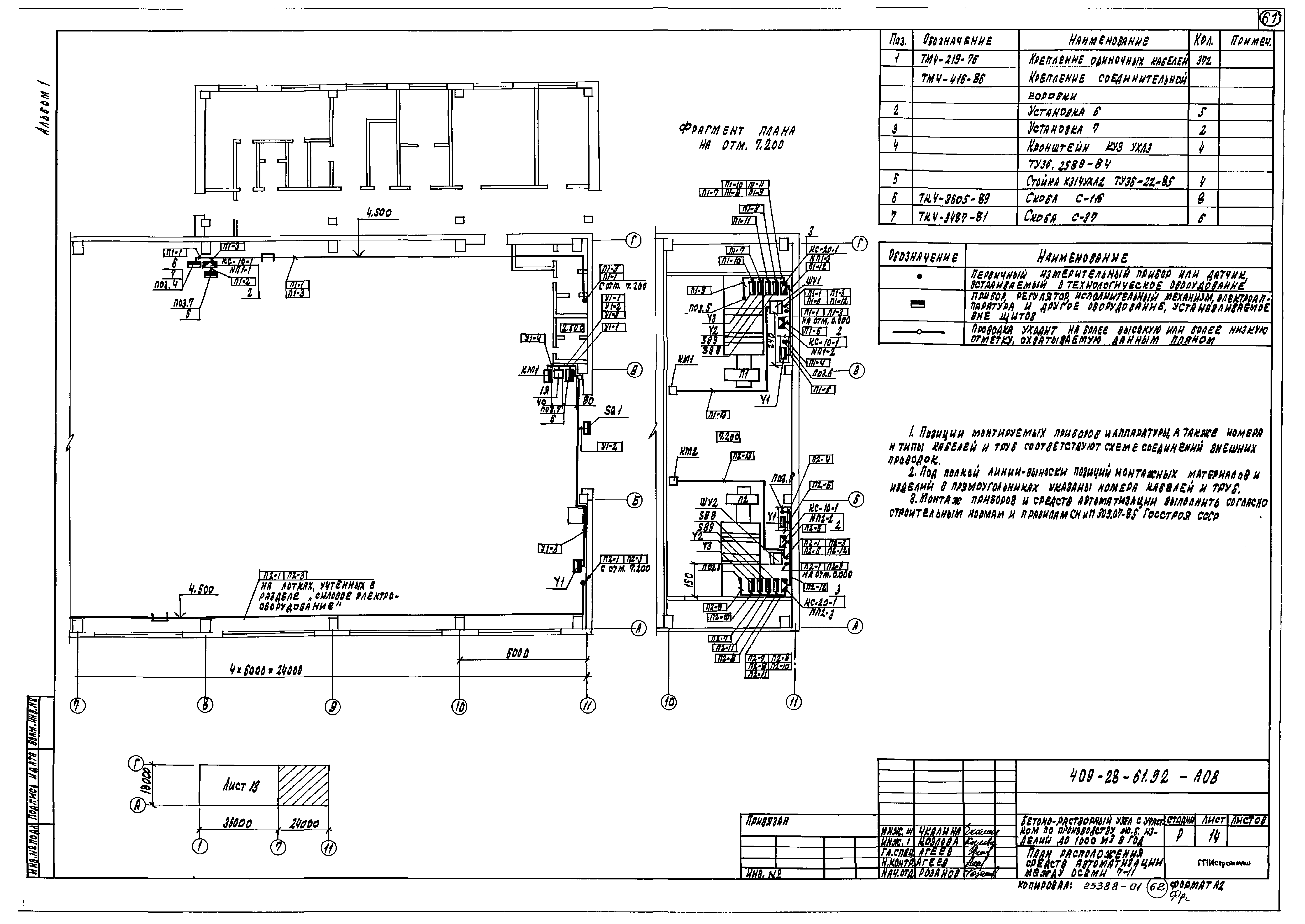
| Оглавление: | Пояснительная записка, ПЗ Технология производства, ТХ Общие данные План расположения оборудования между осями 1 - 5 План расположения оборудования между осями 5 - 13 Разрезы 1-1, 2-2 Силовое электрооборудование, ЭМ Общие данные Питающая сеть 0,4 кВ. Схема электрическая принципиальная Распределительная сеть 0,4 кВ. Схема принципиальная Крышный вентилятор В5. Схема электрическая принципиальная Крышные вентиляторы В6, В7. Схема электрическая принципиальная Крышный вентилятор В5. Схема электрическая подключения Крышные вентиляторы В6, В7. Схема электрическая подключения Питающая сеть 0,4 кВ. План разводки кабелей План расположения технологического оборудования и разводка кабелей План расположения сантехнического оборудования и разводка кабелей Спецификация к планам расположения оборудования Прилагаемые документы Ведомость изделий и материалов для изготовления электромонтажных конструкций в МЭЗ Ведомость электромонтажных конструкций, подлежащих изготовлению в МЭЗ Ящик управления вентилятором. Сборочный чертеж Ящик управления вентилятором. Спецификация Кронштейн левый, кронштейн правый Козырек Шайба1, шайба 2 Ящик. Сборочный чертеж Ящик. Спецификация Внутреннее электрическое освещение, ЭО Общие данные Питающая и групповая сети. План на отм. 0.000 между осями А- Г, 1 - 6 Питающая и групповая сети. План на отм. 0.000 между осями А- Е, 6 - 13 Питающая сеть 380/220 В. Схема принципиальная однолинейная. Фрагмент 1 Ведомость узлов установки электрического оборудования на плане расположения Прилагаемые документы Ведомость изделий и материалов для изготовления электромонтажных конструкций и деталей в МЭЗ Ведомость электромонтажных конструкций, подлежащих изготовлению в МЭЗ Автоматизация систем отопления и вентиляции, АОВ Общие данные Система П1 (П2). Схема автоматизации Системы У1, 1а (У2, 2а…У4, 4а). Схема автоматизации Система П1 (П2). Схема электрическая принципиальная Системы У1, 1а (У2, 2а…У4,4а). Схема электрическая принципиальная управления электродвигателями вентиляторов Системы У1, 1а (У2, 2а…У4,4а). Схема электрическая принципиальная управления вентилем Система В1. Схема электрическая принципиальная управления Система П1 (П2). Схема соединений внешних проводок Системы У1, 1а (У2, 2а…У4,4а). Схема соединений внешних проводок Система В1. Схема соединений внешних проводок План расположения средств автоматизации между осями 1 - 7 План расположения средств автоматизации между осями 7 - 11 |
| Разработан: | ГПИ Строммаш |
| Утверждён: | 13.05.1992 МО Строммаш (17) |





























































