Скачать Типовой проект 409-28-61.92 Альбом 2. Архитектурные решения. Конструкции железобетонные. Конструкции металлическиеДата актуализации: 01.01.2021
|
| Обозначение: | Типовой проект 409-28-61.92 |
| Обозначение англ: | 409-28-61.92 |
| Статус: | не определен законодательством |
| Название рус.: | Альбом 2. Архитектурные решения. Конструкции железобетонные. Конструкции металлические |
| Дата добавления в базу: | 01.09.2013 |
| Дата актуализации: | 01.01.2021 |
| Дата введения: | 11.06.1992 |
| Дата окончания срока действия: | 30.06.2003 |
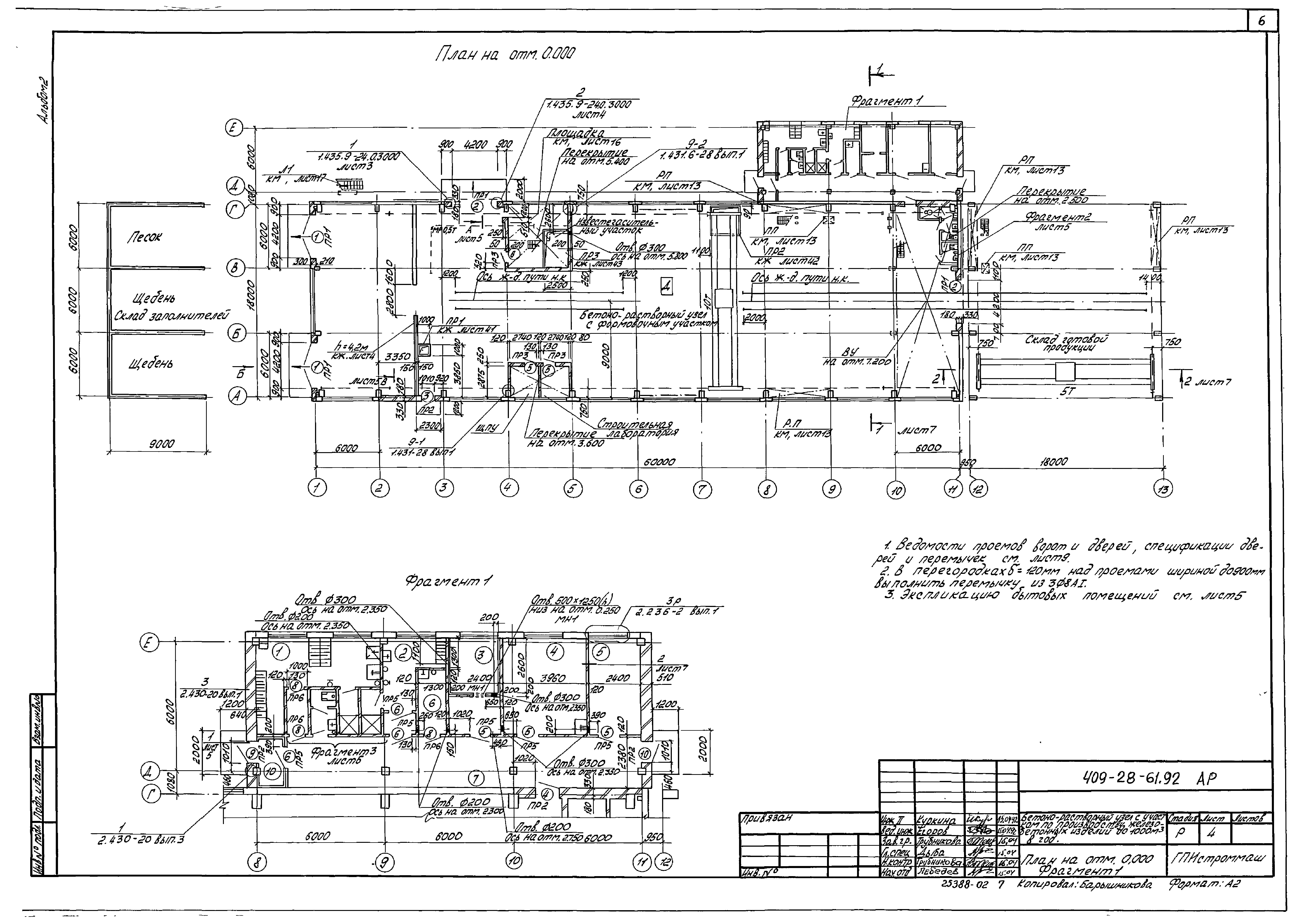
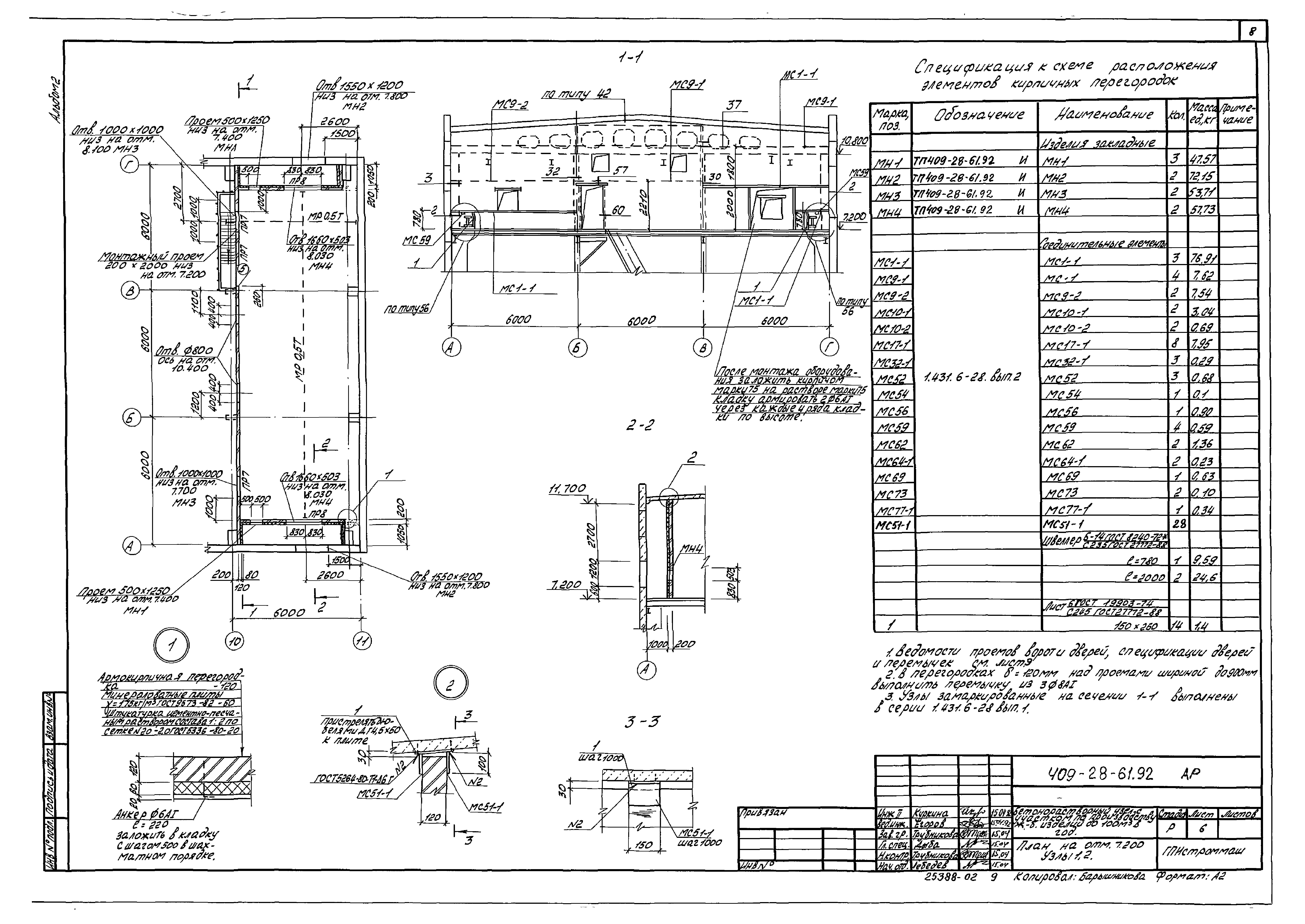
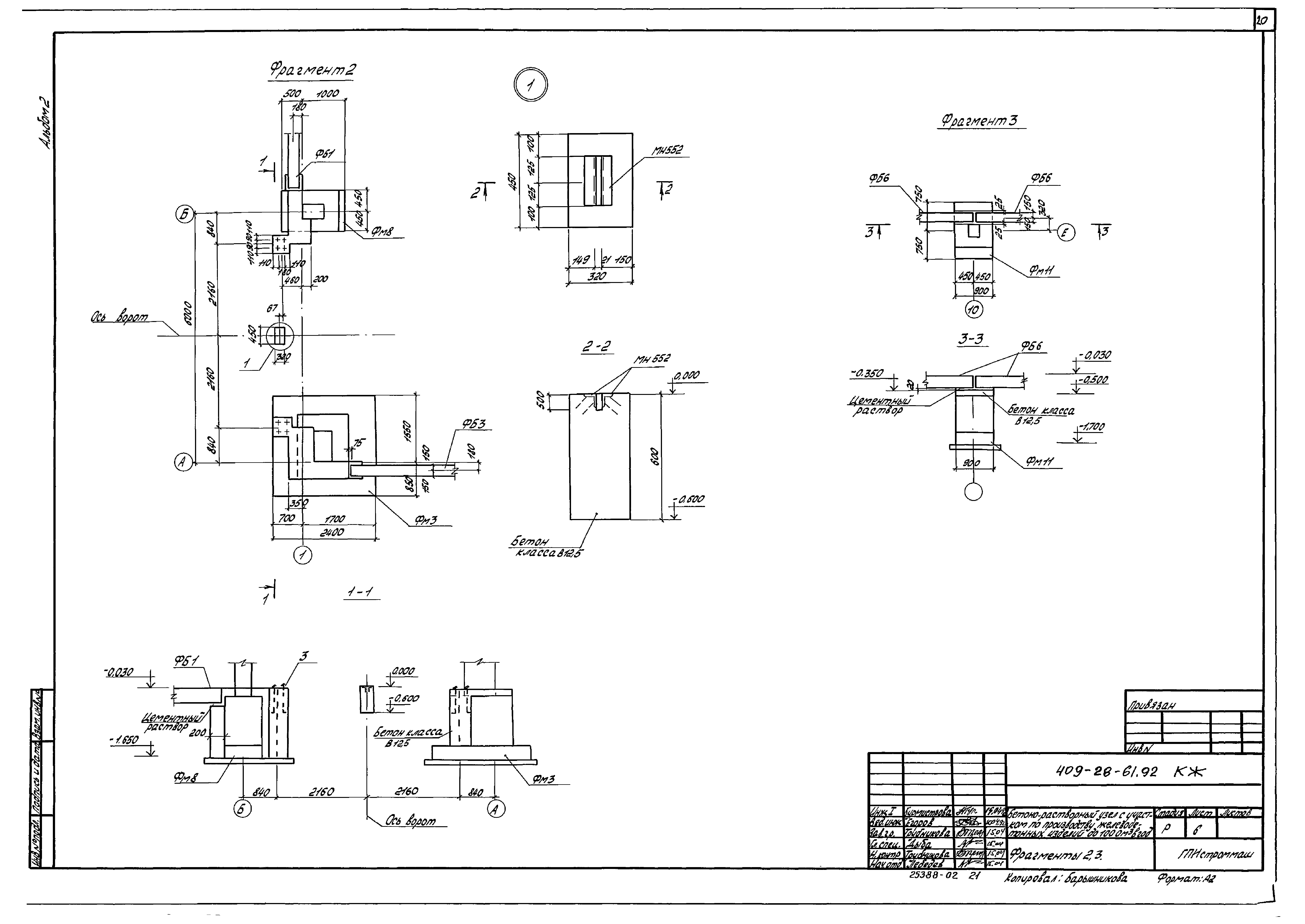
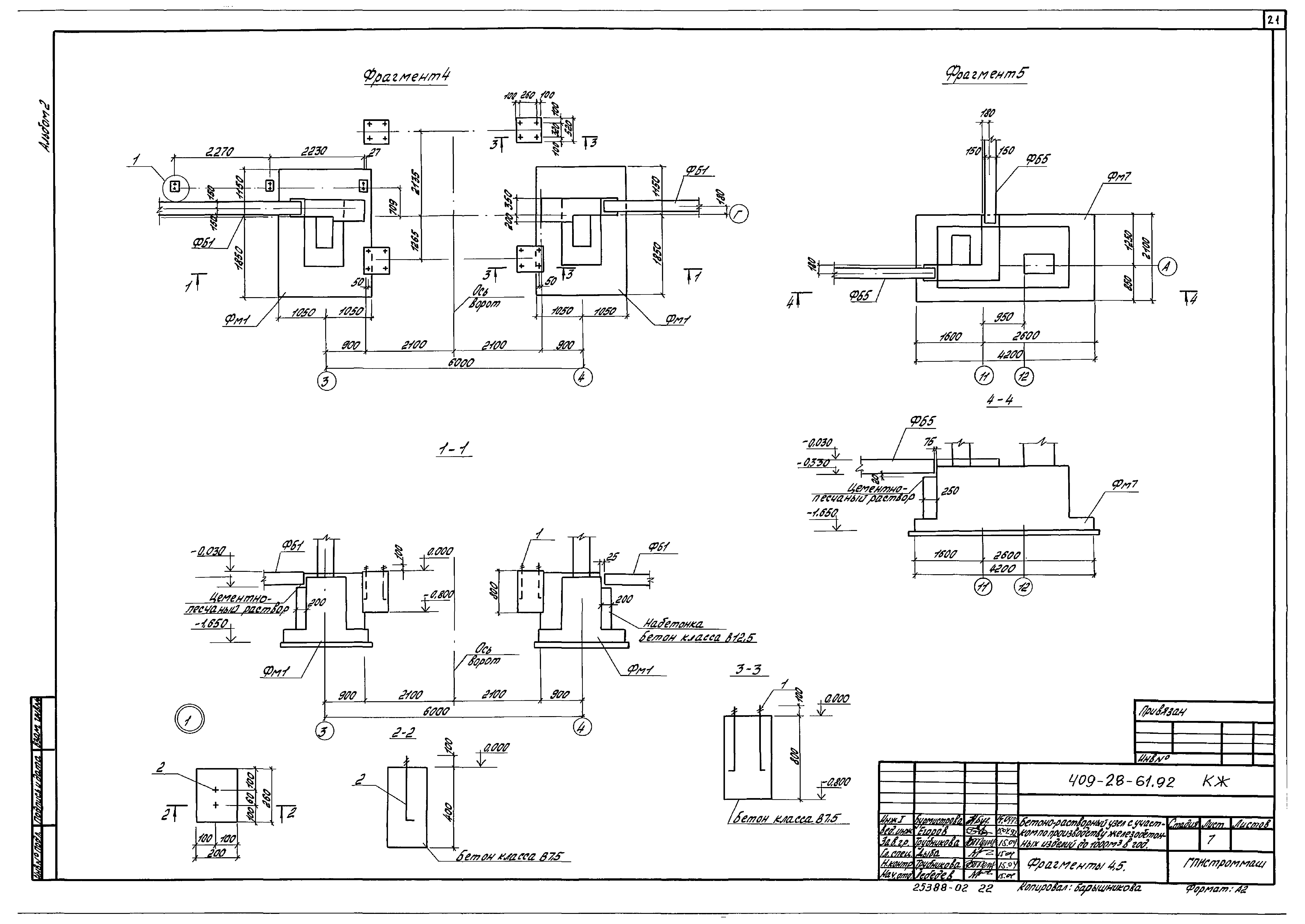
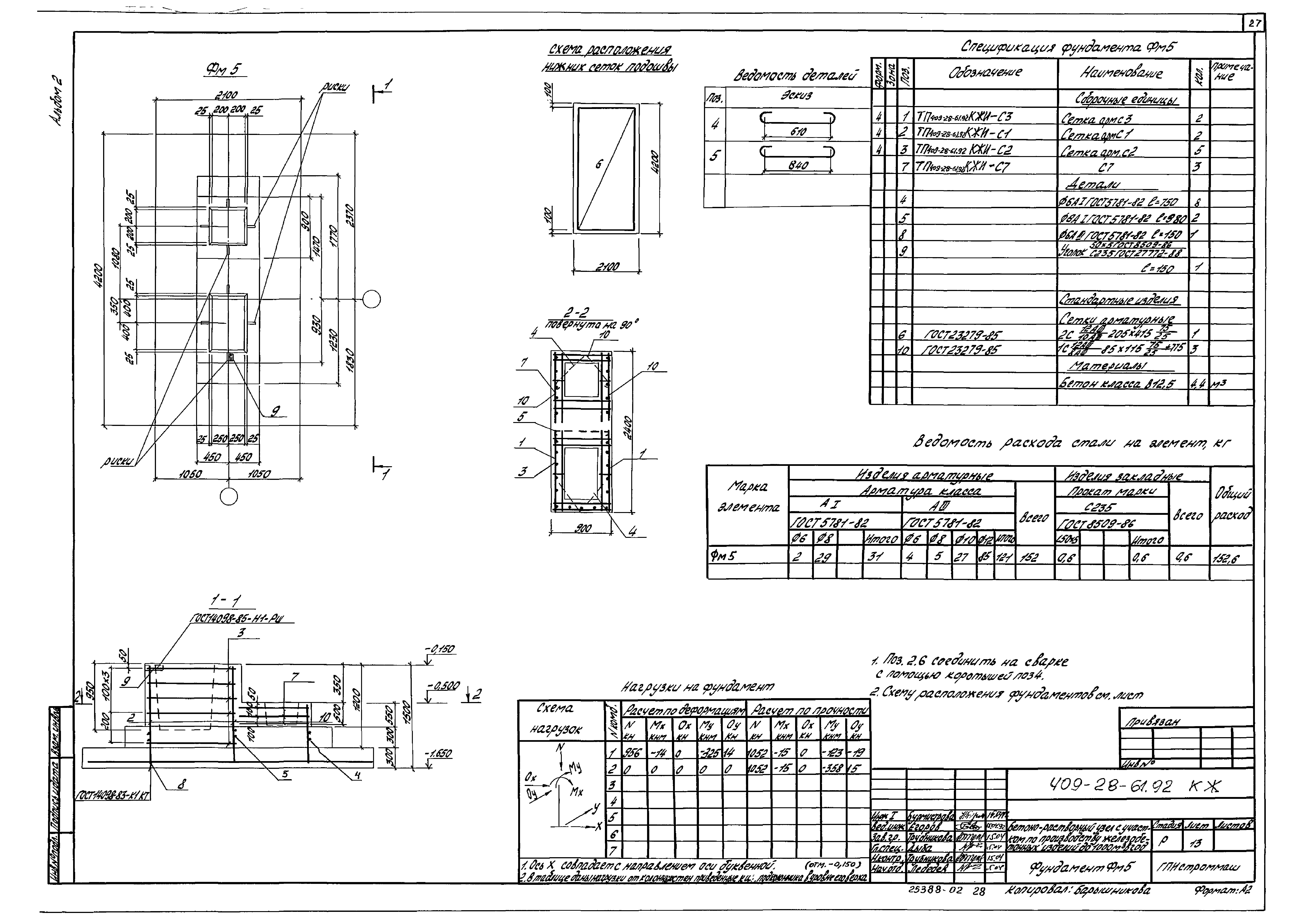
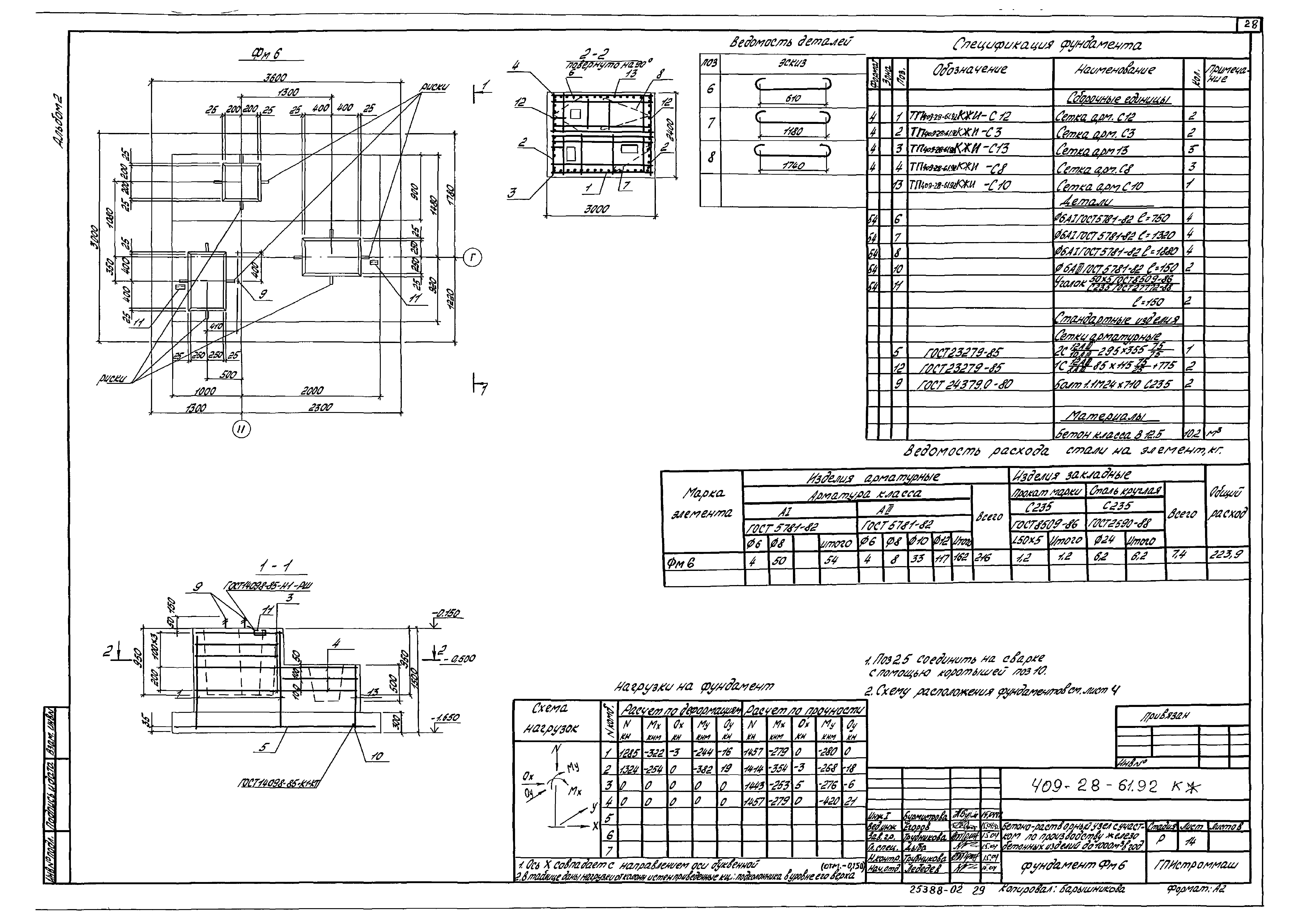
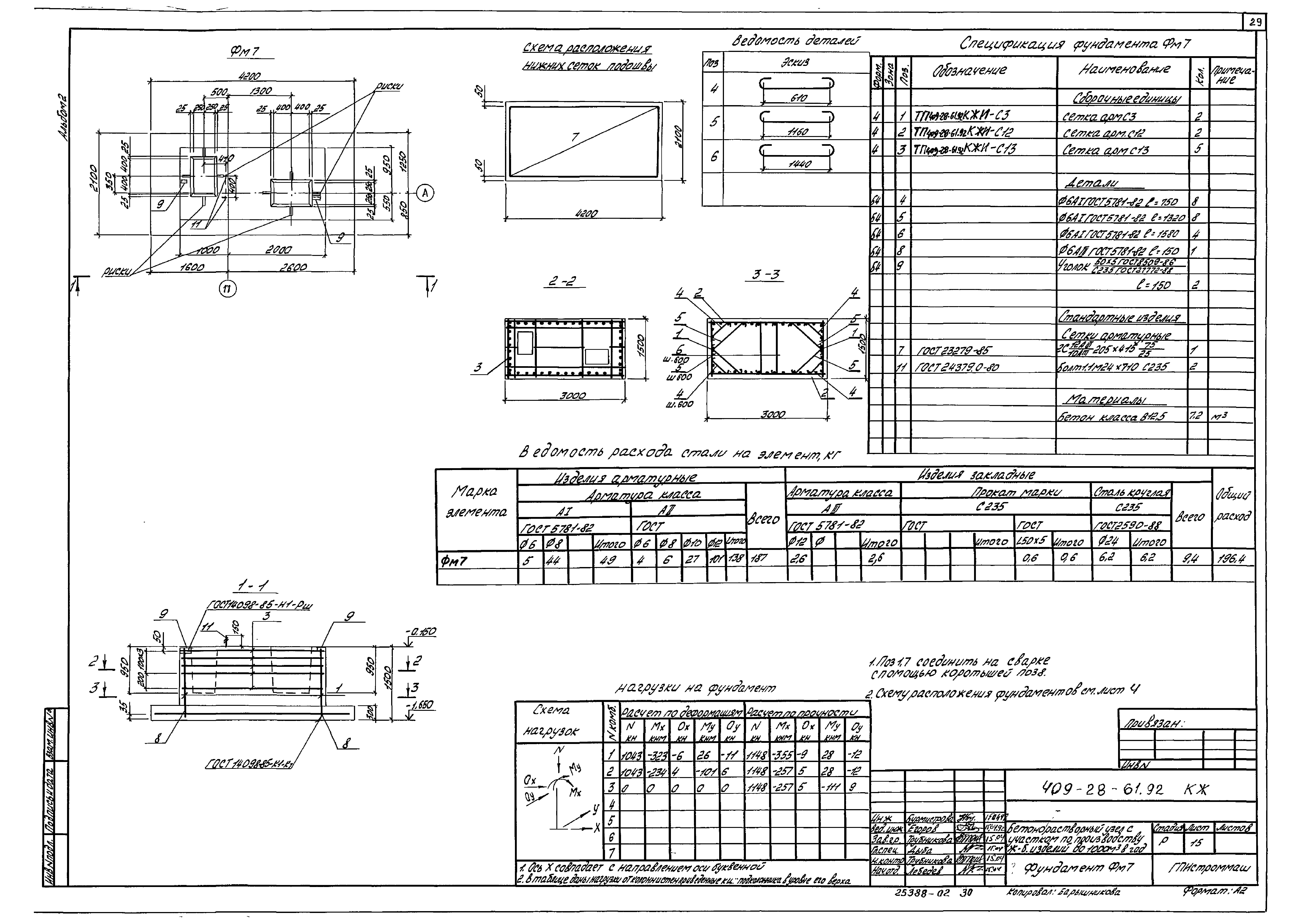
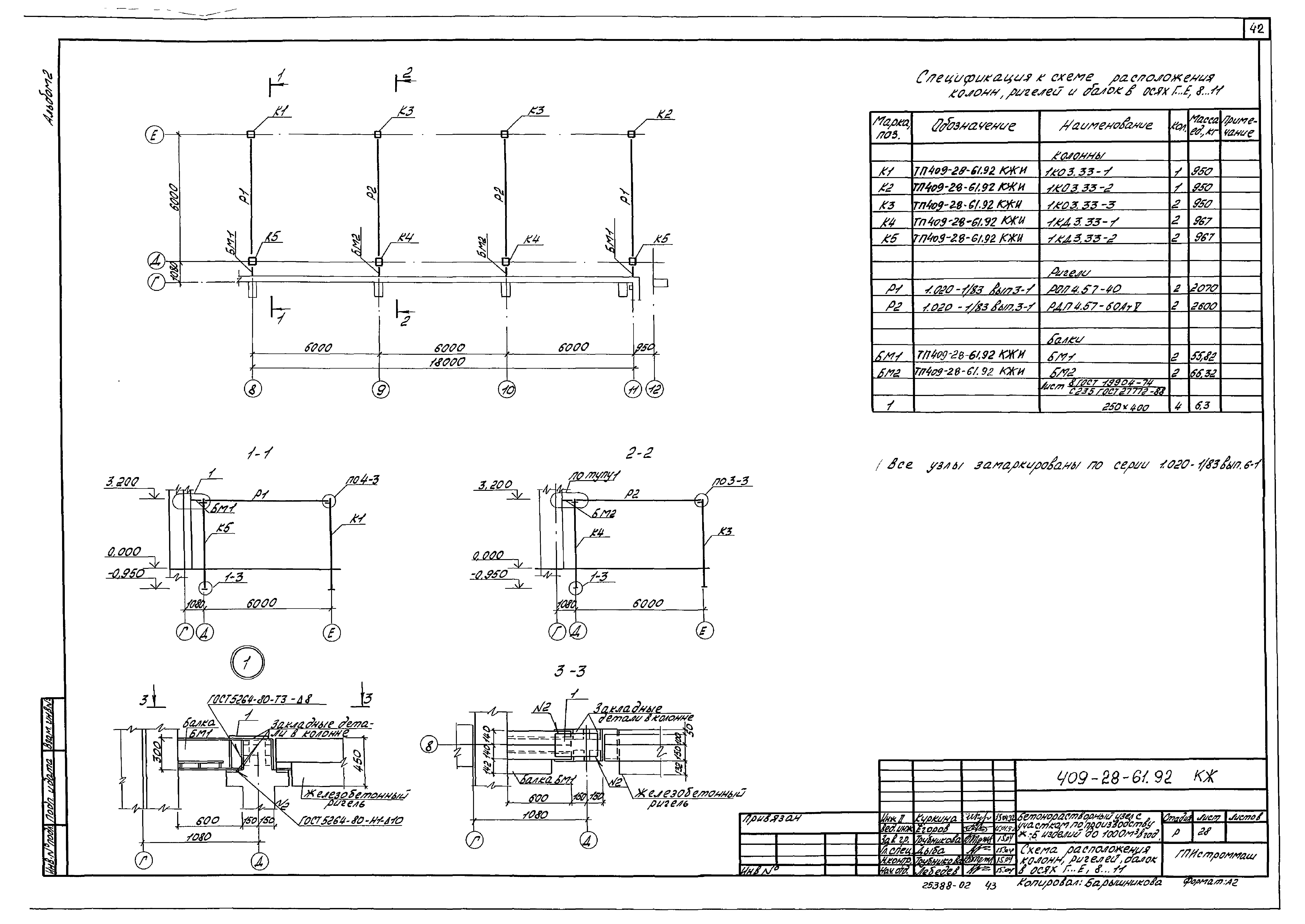
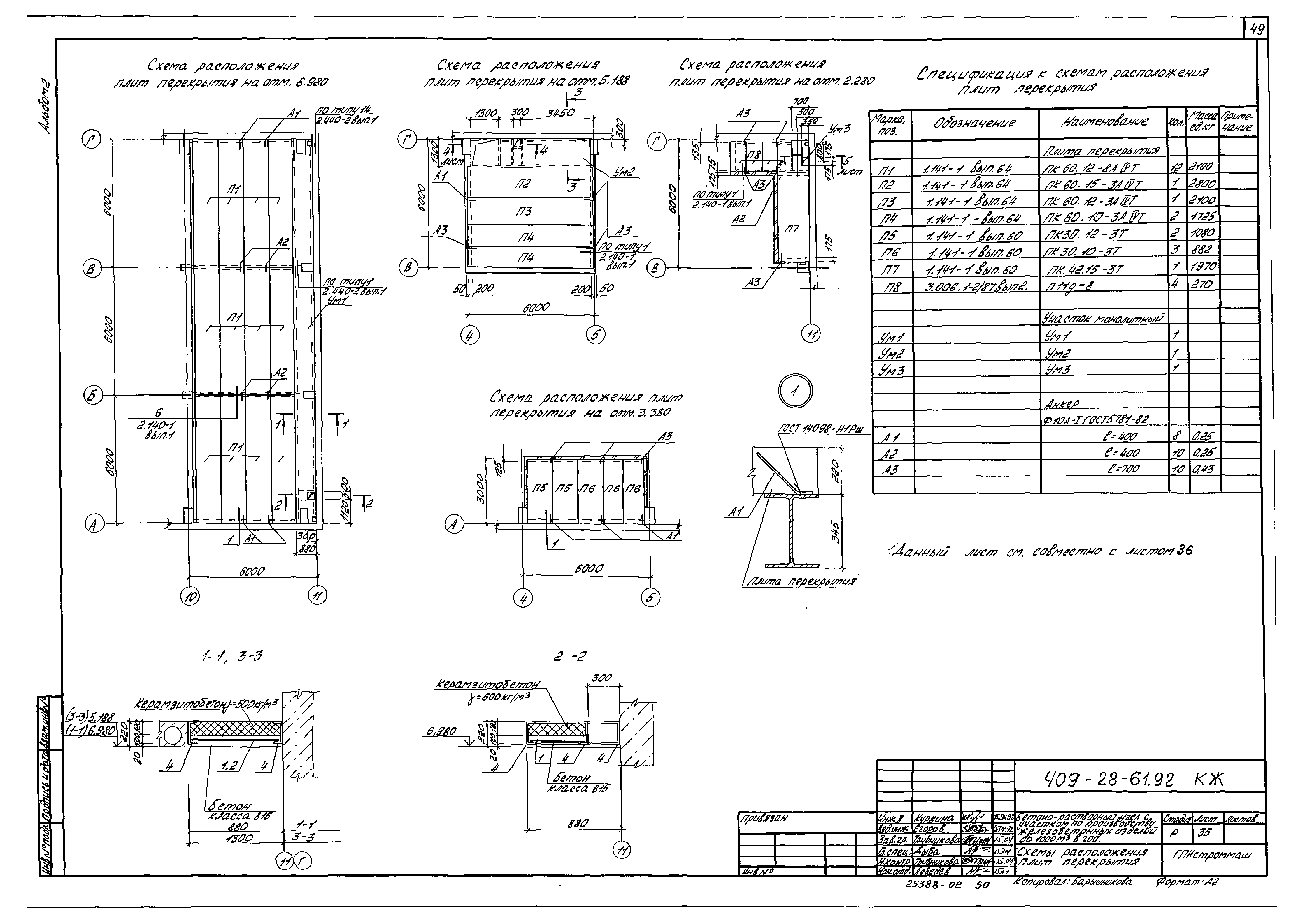
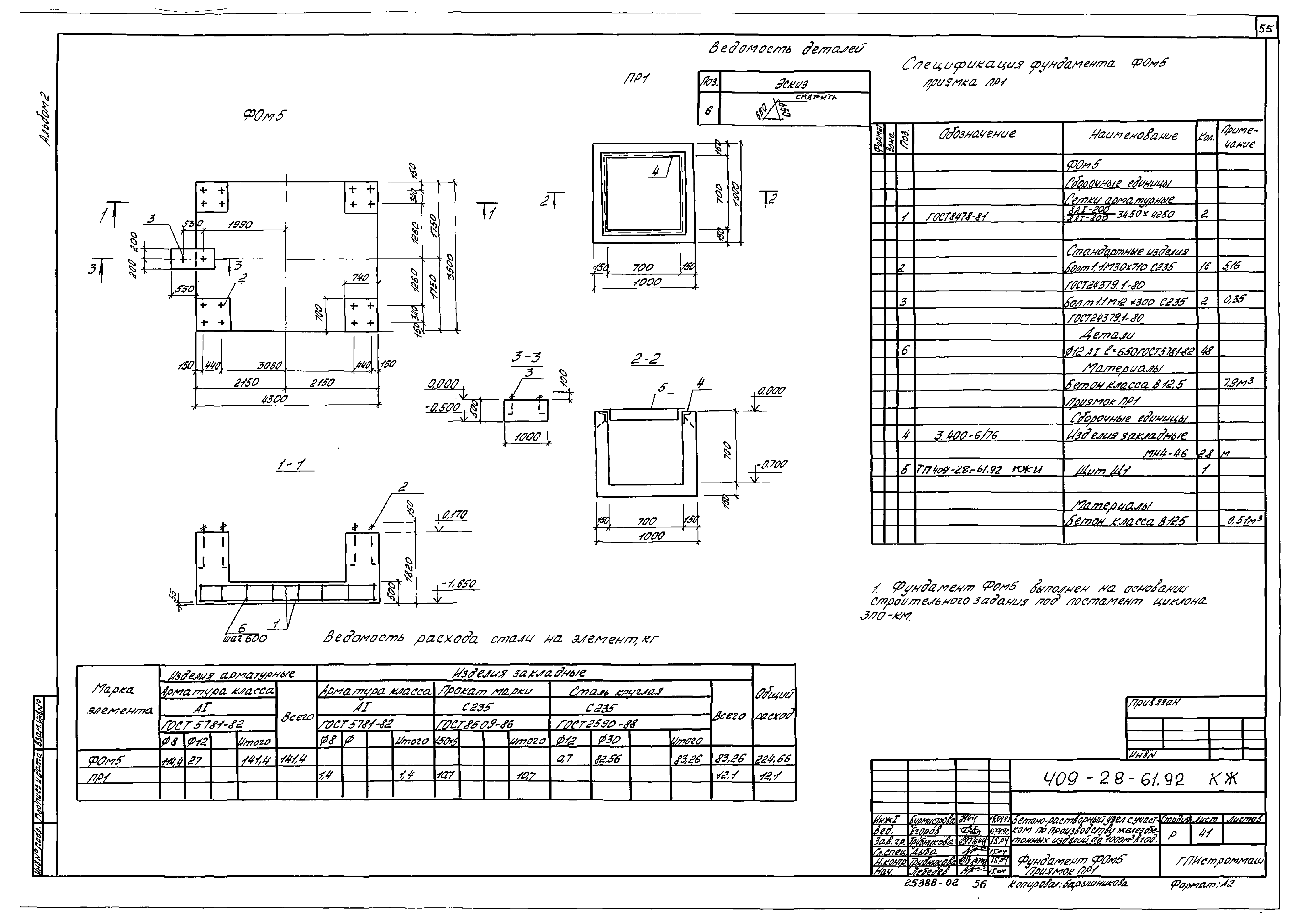
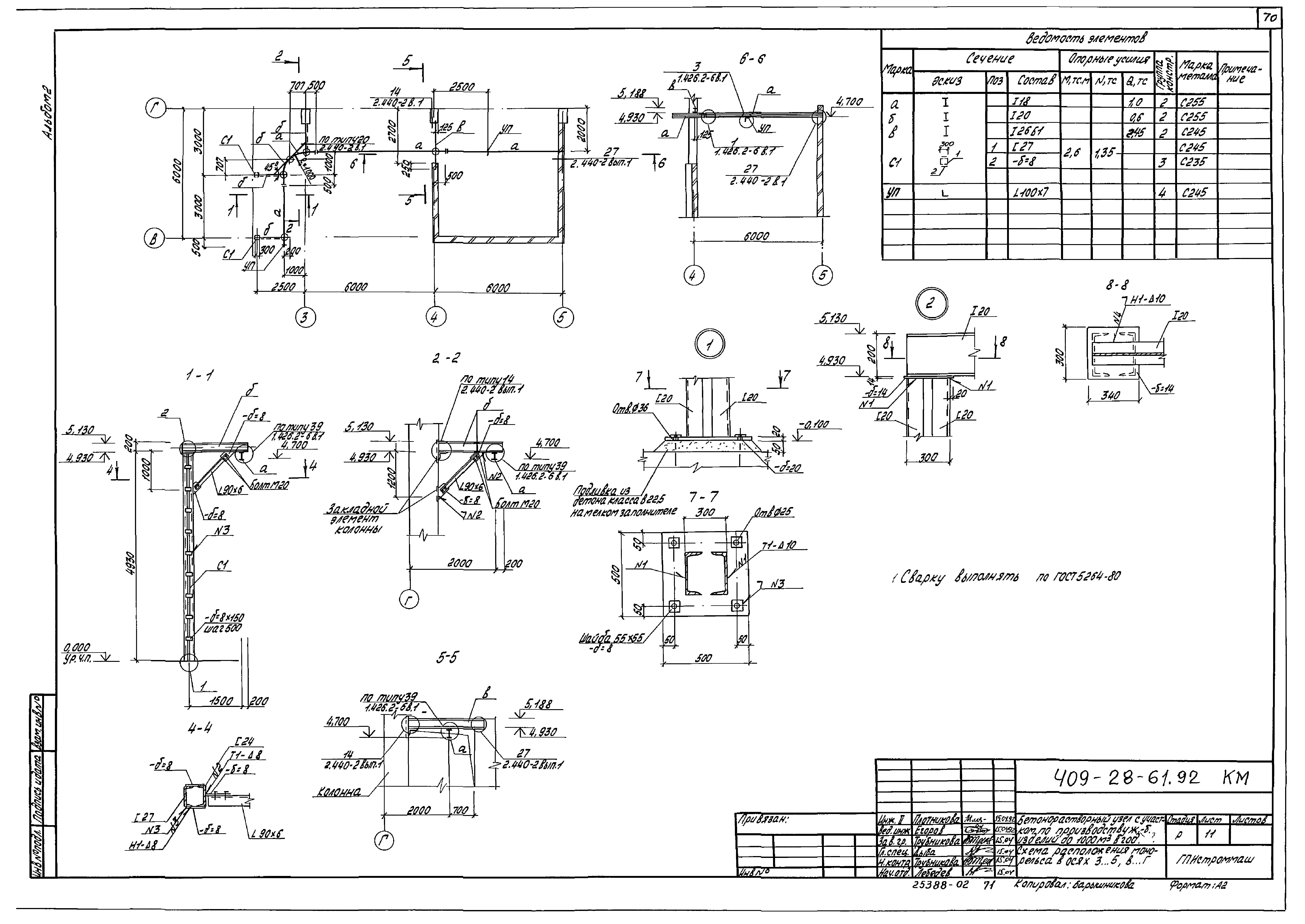
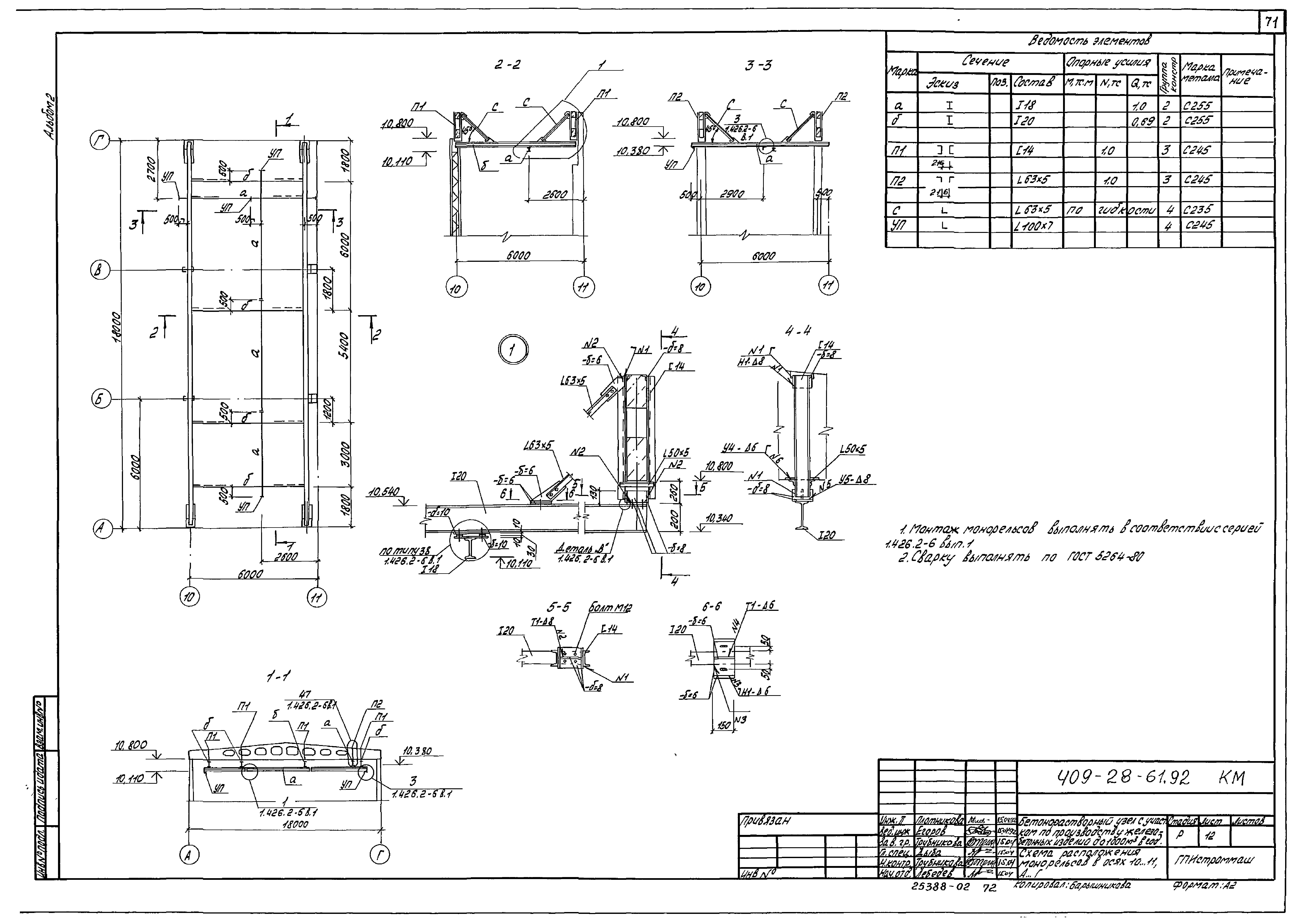
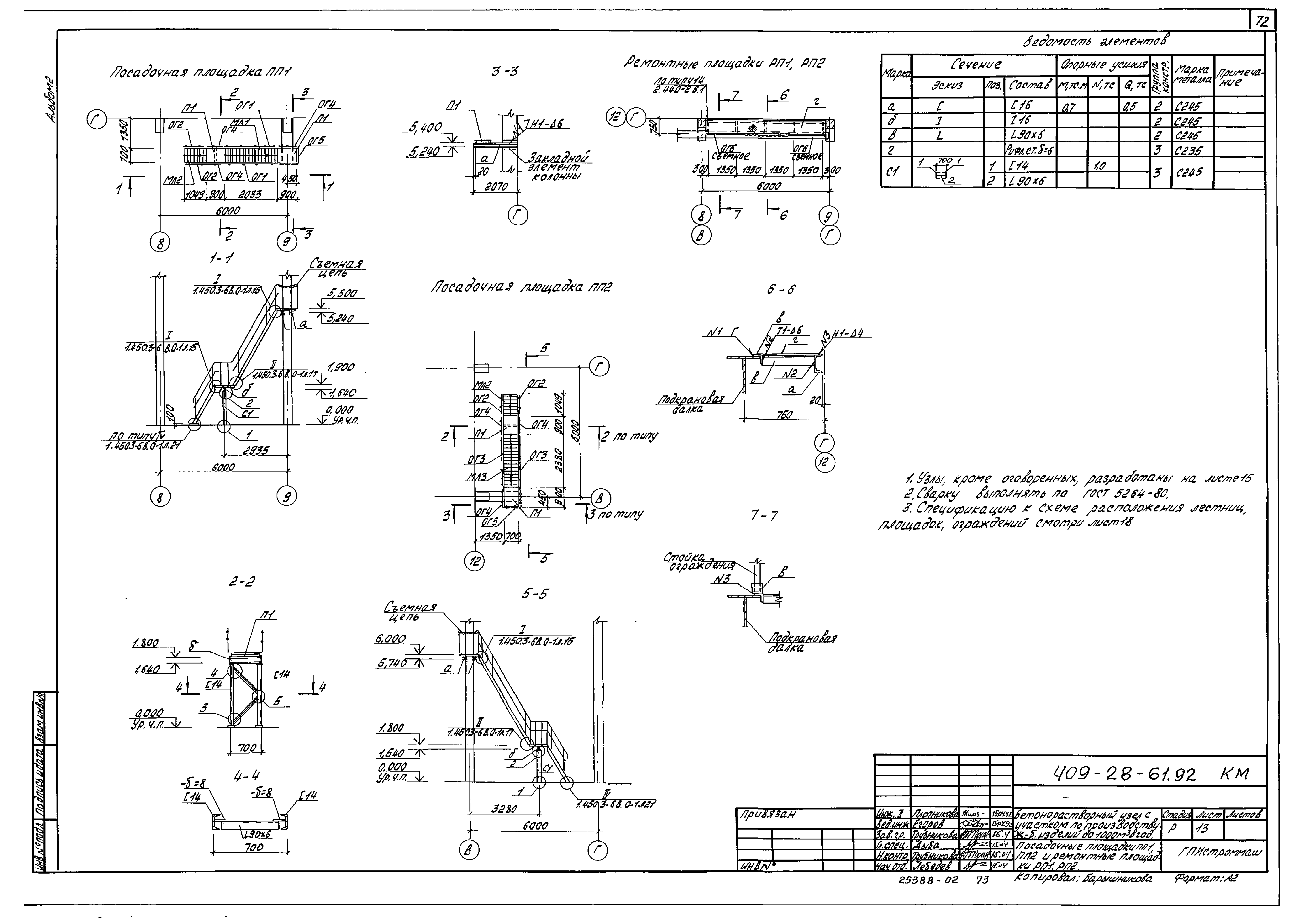
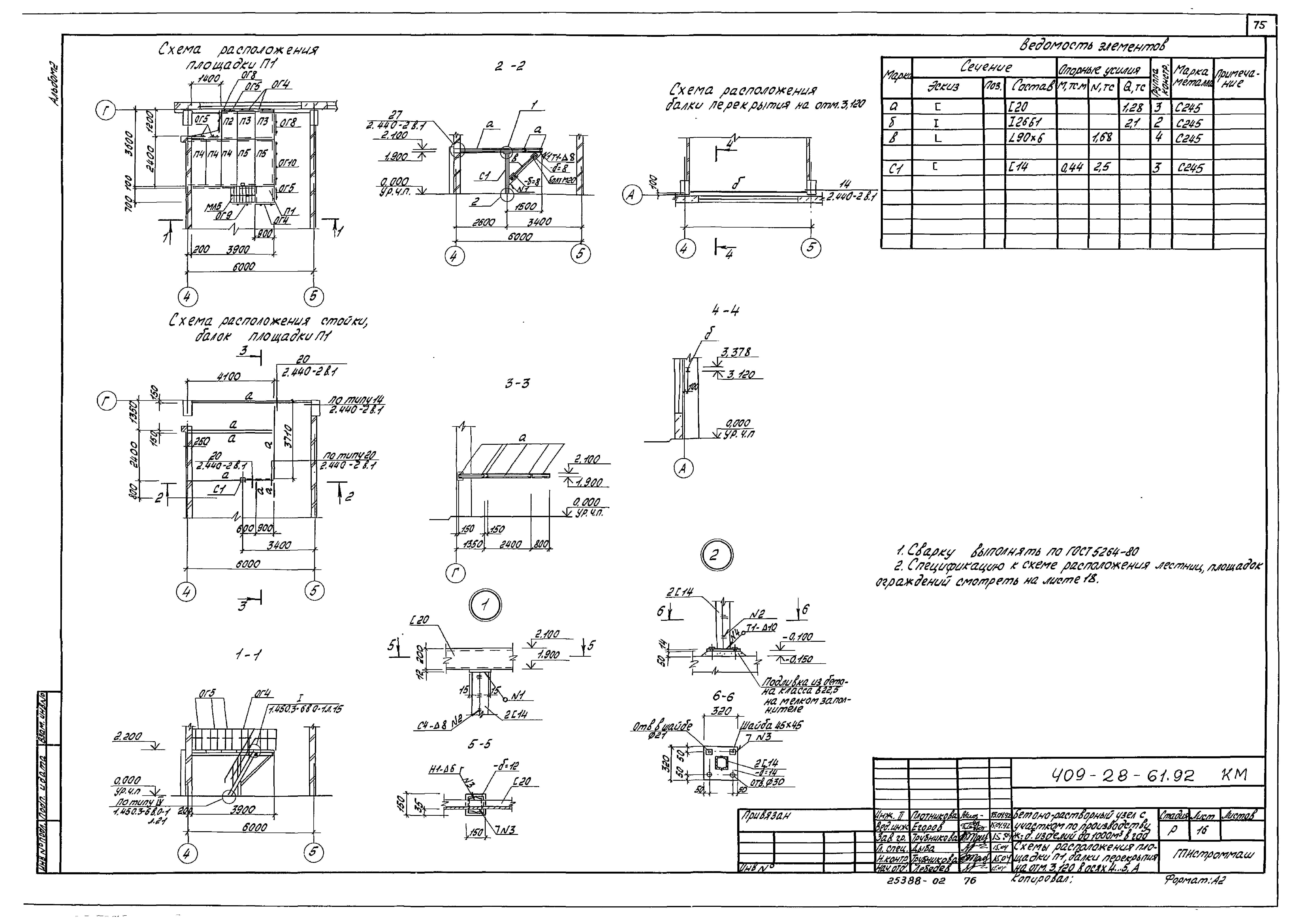
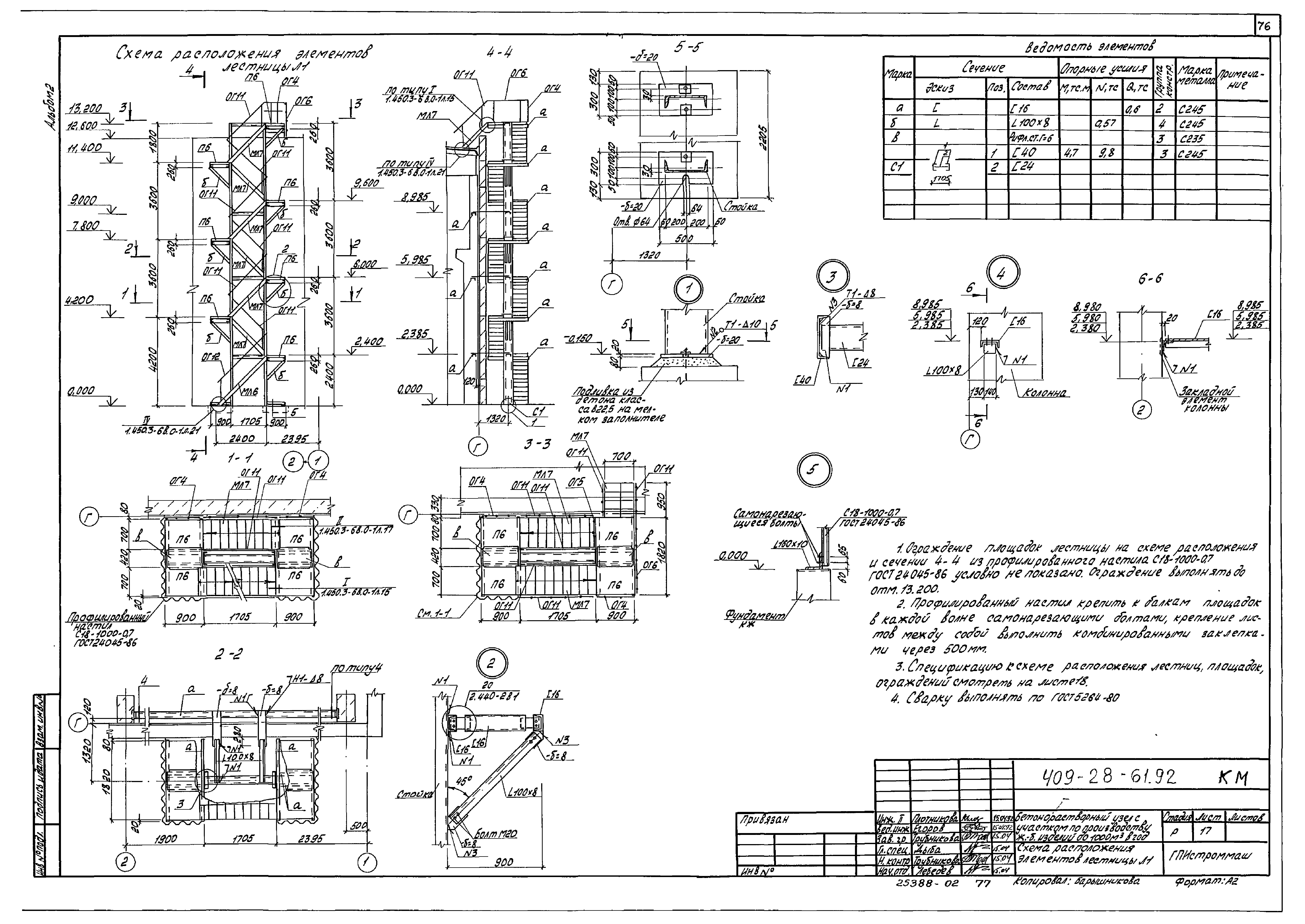
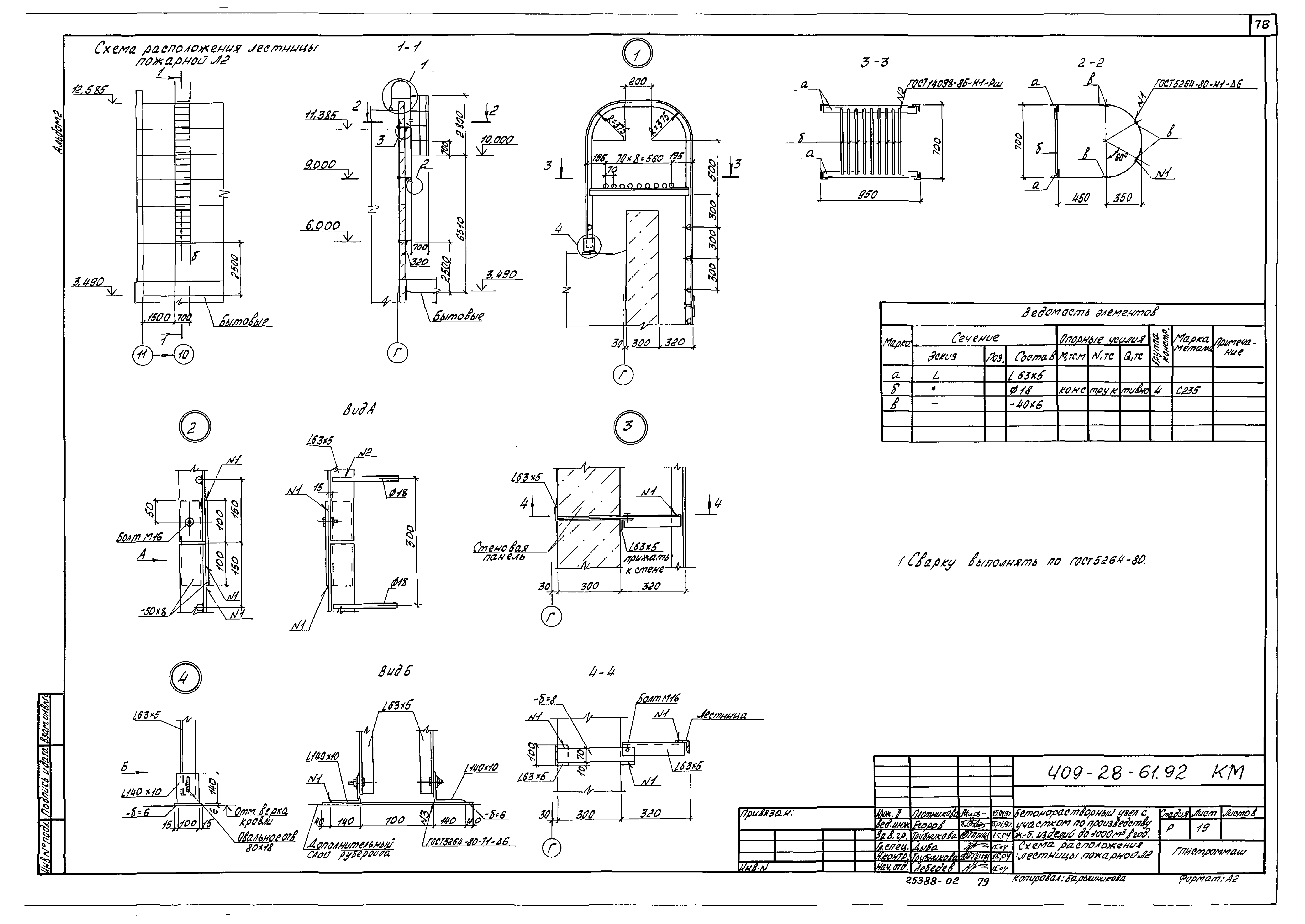
| Оглавление: | Архитектурные решения, АР Общие данные План на отм. 0.000. Фрагмент 1 Фрагменты 2, 3. Вид А, Б, В. Узел 1 План на отм. 7.200. Узлы 1, 2 Разрезы 1-1…2-2. Узлы 2…5 Фасады 1 - 13, 13 - 1, А - Е, Е - А Ведомости проемов ворот, дверей и перемычек. Спецификации элементов заполнения проемов, перемычек Планы полов на отм. 0.000 в осях 1 - 13, А - Г склада заполнителей Планы полов на отм. 0.000 в осях 8 - 11, Г - Е. План кровли Схема расположения стенового ограждения из асбестоцементных листов по осям 12, 13 Конструкции железобетонные, КЖ Общие данные Схема расположения фундаментов Фрагмент 1 Фрагменты 2, 3 Фрагменты 4, 5 Фрагмент 6 Фундамент Фм1 Фундамент Фм2 Фундаменты Фм3, Фм16 Фундамент Фм4 Фундамент Фм5 Фундамент Фм6 Фундамент Фм7 Фундамент Фм8 Фундамент Фм9 Фундамент Фм10 Фундамент Фм11 Фундамент Фм12 Фундамент Фм13 Фундамент Фм14 Фундамент Фм15 Фундамент Фм17 Фундамент Фм18 Схема расположения колонн, стоек фахверка, балок покрытия в осях А…Г, 1…13 Разрезы 1-1…5-5. Спецификация к схеме расположения колонн, стоек фахверка, балок покрытия Схема расположения колонн, ригелей, балок в осях Г…Е, 8…11 Схема расположения плит покрытия в осях А…Г, 1…13 Схема расположения плит покрытия в осях Г…Е, 8…11 Схема расположения стеновых панелей по оси А Схема расположения стеновых панелей по оси Г Схема расположения стеновых панелей по осям 1, 11 Схема расположения стеновых панелей по оси Е Схемы расположения плит перекрытия Сечения 4-4, 5-5 Схема расположения фундаментов под оборудование Фундаменты ФОм1, ФОм4 Фундамент ФОм2 Фундамент ФОм3 Фундамент ФОм6. Приямок ПР1 Приямок ПР2. Фундамент ФОм6 Приямок ПР3 Склад заполнителей. План на отм. 0.000. Разрезы 1-1, 2-2. Узлы 1, 2 Склад заполнителей. Фрагмент 1. Разрез 1-1 Конструкции металлические КМ Общие данные Техническая спецификация металла Ведомость металлоконструкций по видам профилей Схема расположения подкрановых балок, посадочных и ремонтных площадок Разрезы 1-1…4-4 Схема расположения монорельса в осях 3…5, В…Г Схема расположения монорельса в осях 10…11, А…Г Посадочные площадки ПП1, ПП2 и ремонтные площадки РП1, РП2 Схема расположения балок перекрытия в осях 10…11, А…Г Узлы 1…7 Схемы расположения площадки П1, балки перекрытия на отм. 3.120 в осях 4…5, А Схема расположения элементов лестницы Л1 Спецификация к схемам расположения лестниц, площадок, ограждений Схема расположения лестницы пожарной Л2 Схемы расположения окон Сечения 1-1…5-5. Спецификация к схемам расположения окон Схема расположения ригелей стенового ограждения по осям 12, 13 |
| Разработан: | ГПИ Строммаш |
| Утверждён: | 13.05.1992 МО Строммаш (17) |

















































































