Скачать Типовой проект 709-9-102.89 Альбом 1. Пояснительная записка. Технологические решения. Электротехнические решения. Автоматизация. Связь и сигнализация. Отопление и вентиляция. Внутренние водопровод и канализацияДата актуализации: 01.01.2021
|
| Обозначение: | Типовой проект 709-9-102.89 |
| Обозначение англ: | 709-9-102.89 |
| Статус: | не определен законодательством |
| Название рус.: | Альбом 1. Пояснительная записка. Технологические решения. Электротехнические решения. Автоматизация. Связь и сигнализация. Отопление и вентиляция. Внутренние водопровод и канализация |
| Дата добавления в базу: | 01.09.2013 |
| Дата актуализации: | 01.01.2021 |
| Дата введения: | 06.12.1989 |
| Дата окончания срока действия: | 30.06.2003 |
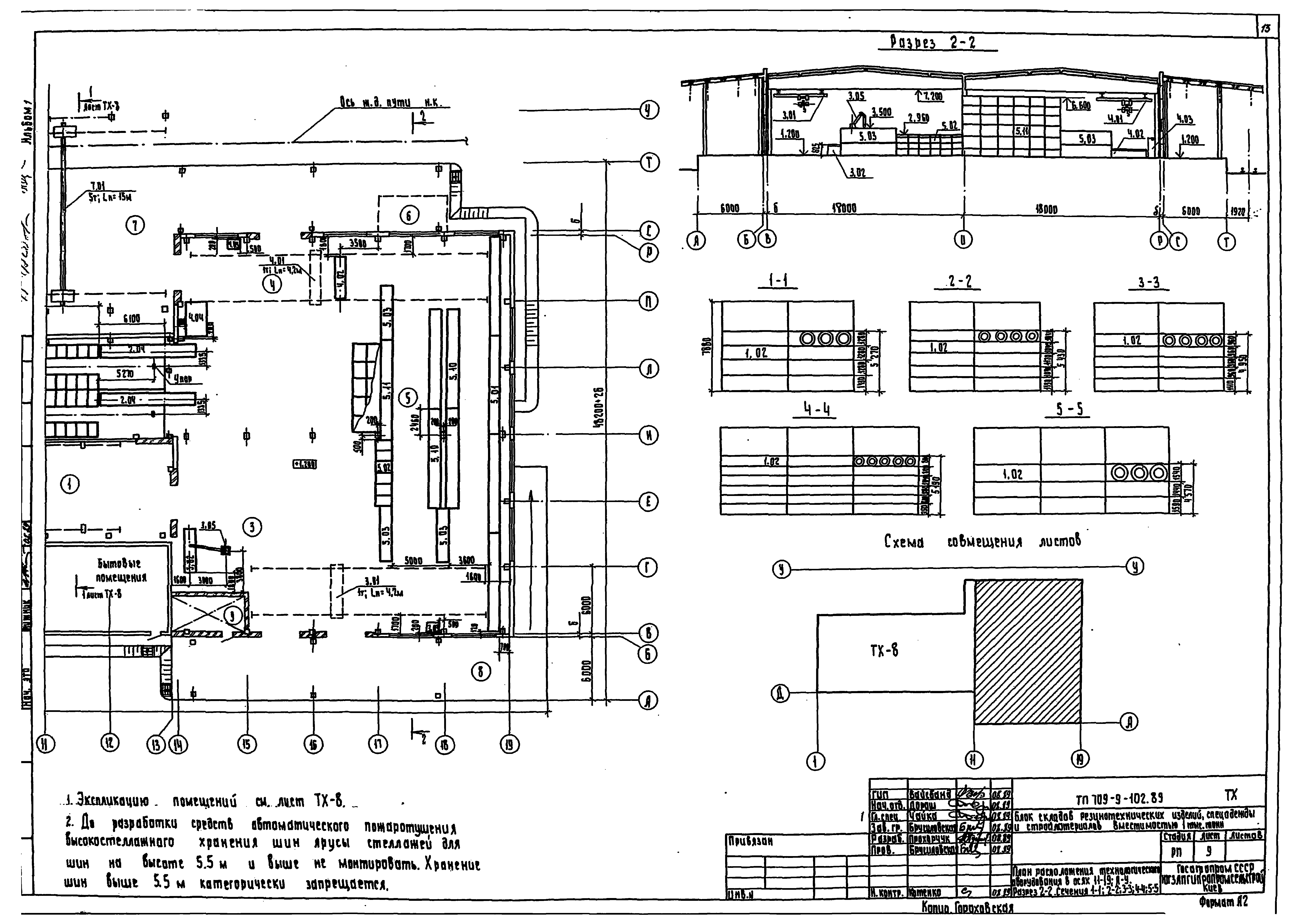
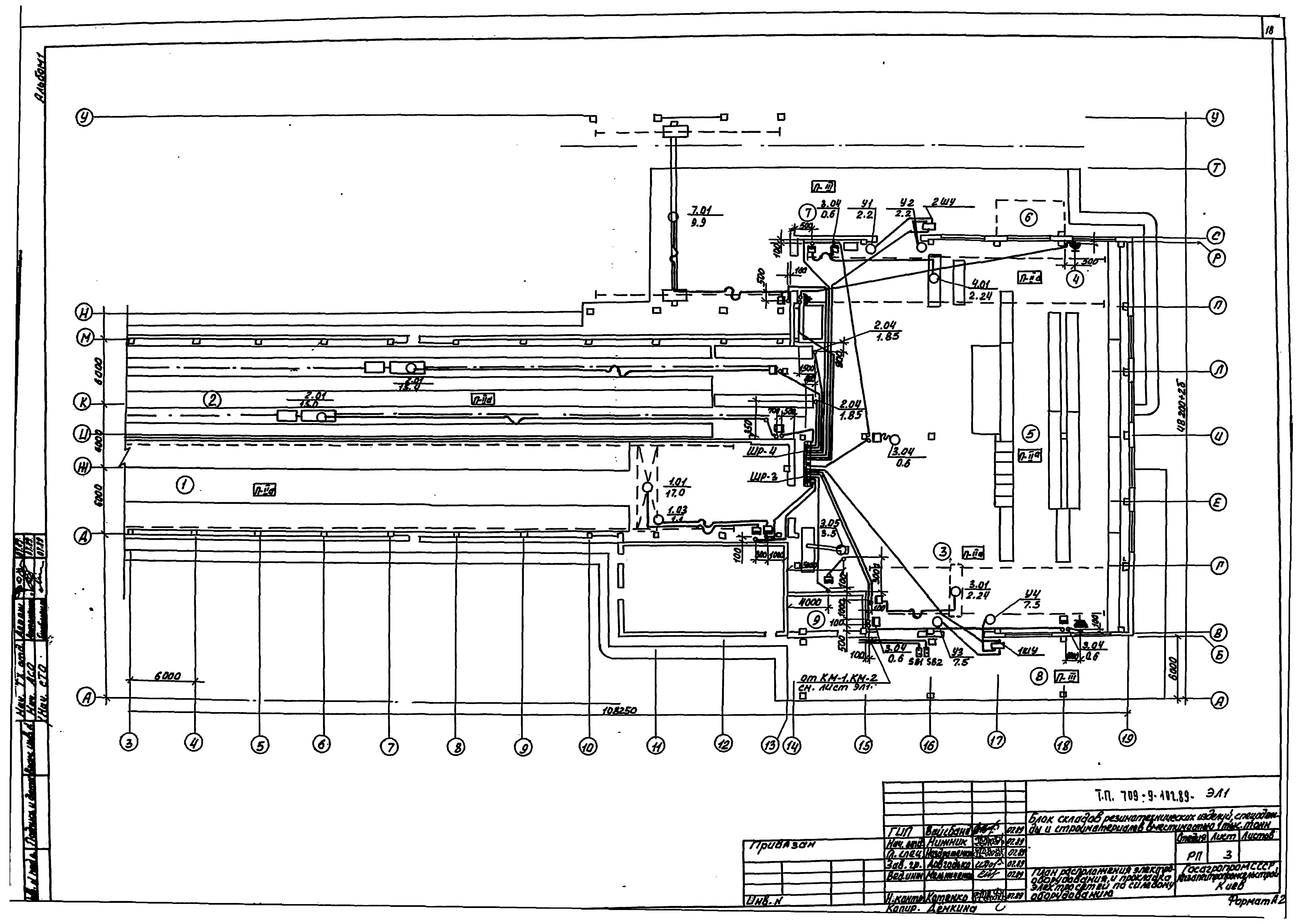
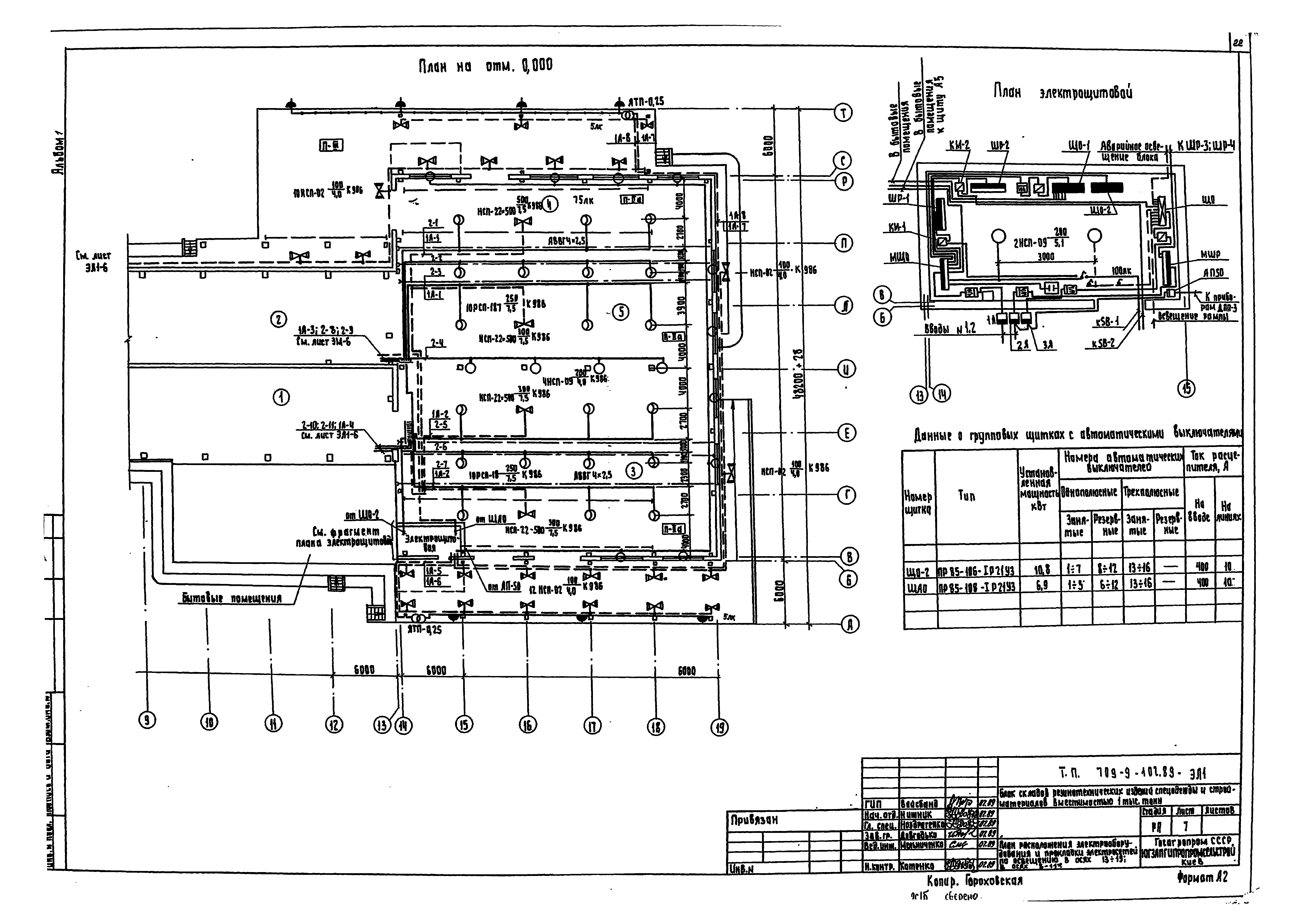
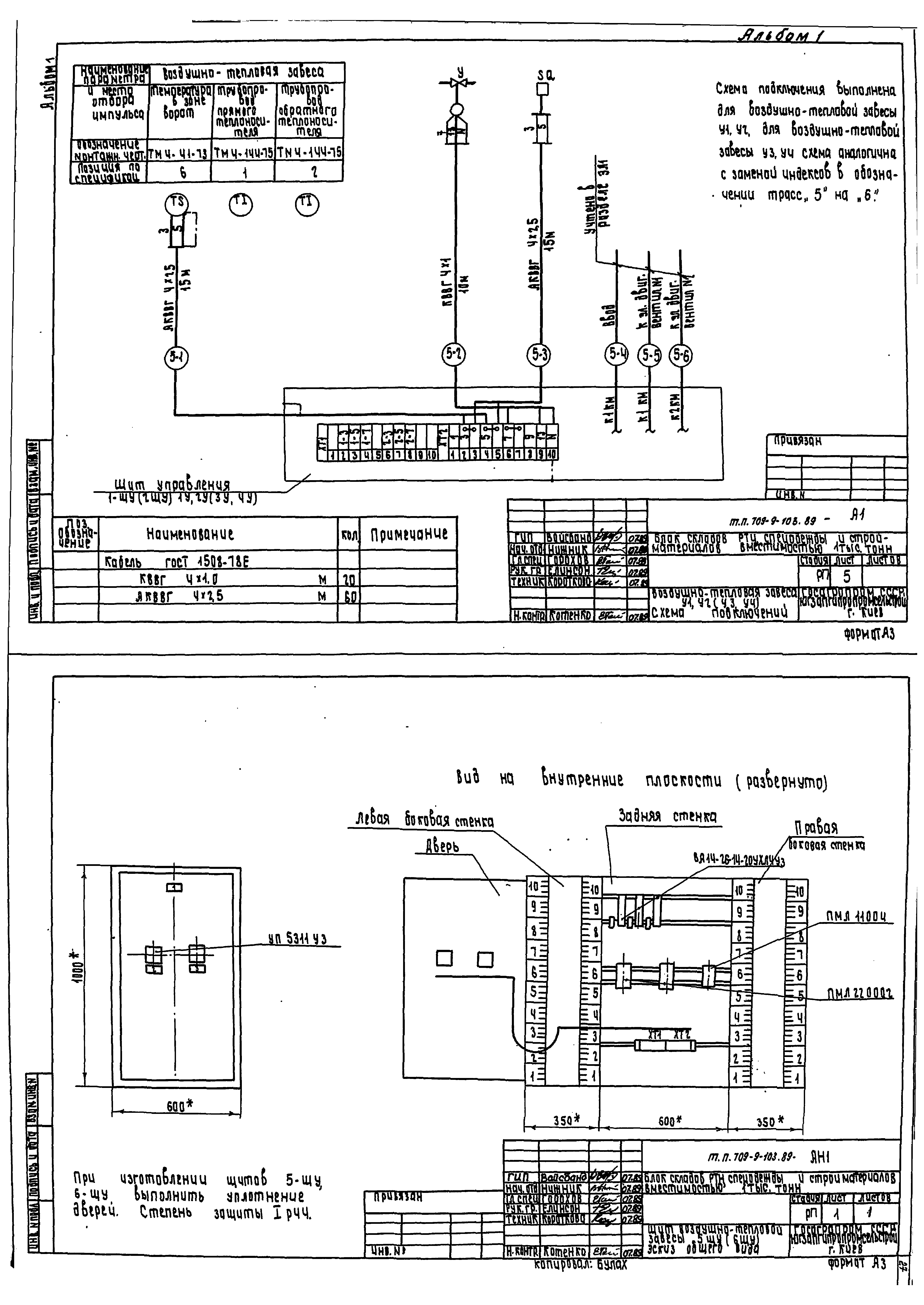
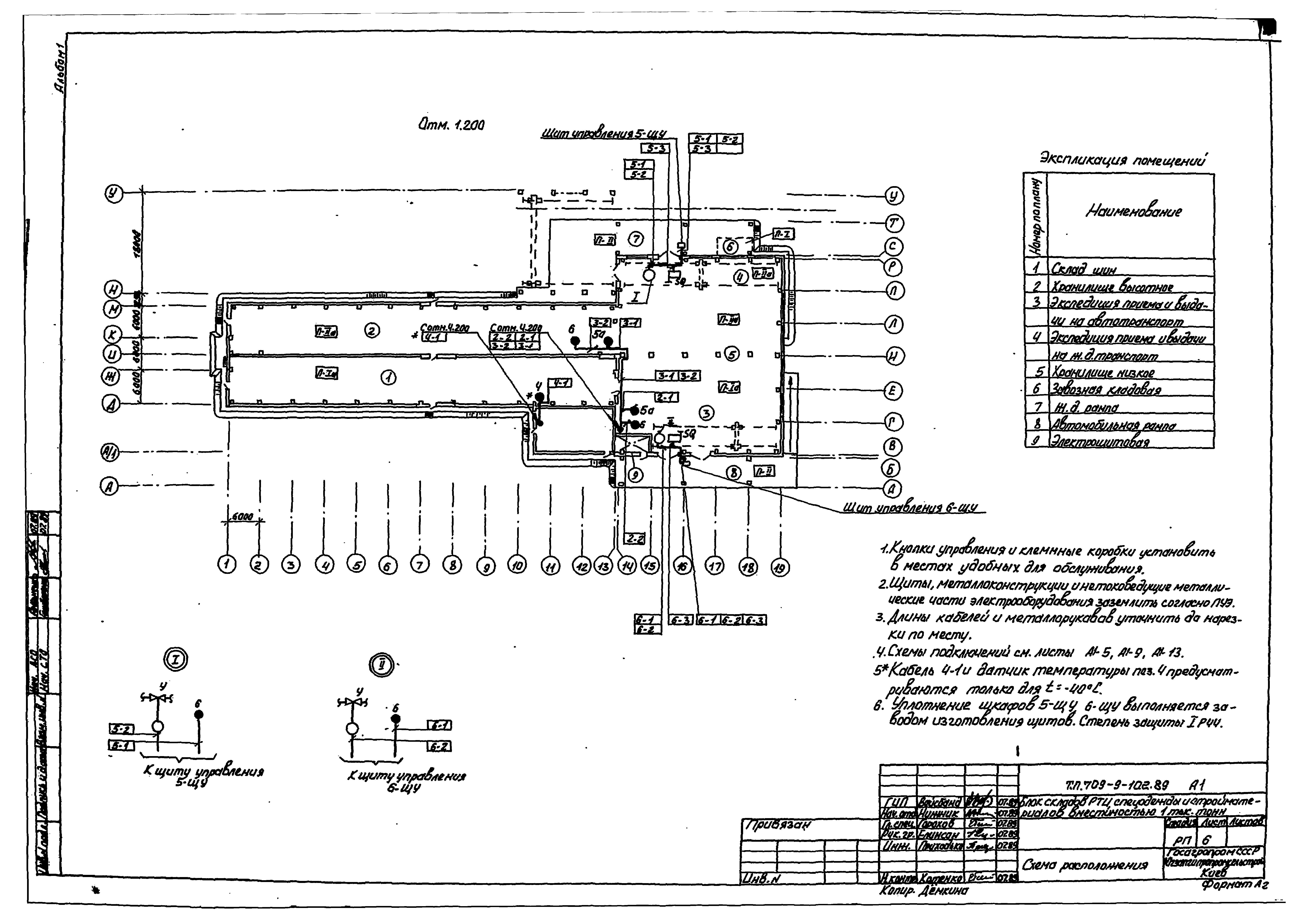
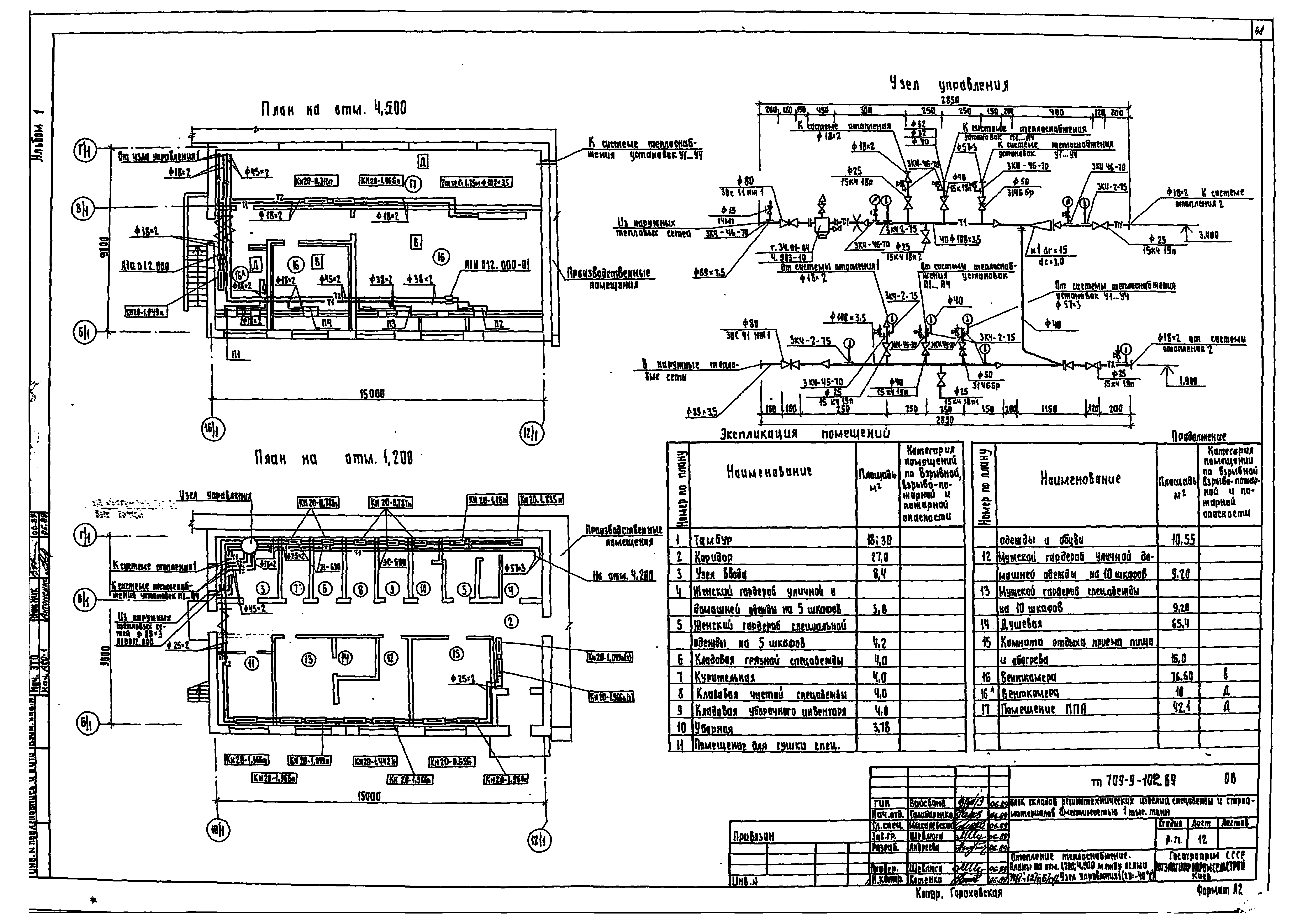
| Оглавление: | Пояснительная записка Чертежи основного комплекта марки ТХ Общие данные План расположения технологического оборудования в осях 1 - 11, Д - У. Разрез 1-1 План расположения технологического оборудования в осях 11 - 19, А - У. Разрез 2-2. Сечения 1-1, 2-2, 3-3, 4-4, 5-5 Схема грузопотоков Шифрация мест хранения Чертежи основного комплекта марки ЭЛ Общие данные План расположения электрооборудования и прокладка электросетей по силовому оборудованию Принципиальная схема питающей сети Принципиальная схема распределительной сети План расположения электрооборудования и прокладка электросетей по освещению в осях 1 - 14, в осях 1 - 8* План расположения электрооборудования и прокладка электросетей по освещению в осях 13 - 19, в осях 8 - 11* Отключение вентиляции при пожаре. Схема электрическая принципиальная управления Отключение вентиляции при пожаре. Схема подключений Заземление Чертежи основного комплекта марки А1 Общие данные Воздушно-тепловая завеса У1, У2 (У3, У4). Схема функциональная Воздушно-тепловая завеса У1, У2 (У3, У4). Схема электрическая принципиальная управления Воздушно-тепловая завеса У1, У2 (У3, У4). Схема электрическая принципиальная регулирования Воздушно-тепловая завеса У1, У2 (У3, У4). Схема подключений Схема расположения Чертежи основного комплекта марки СС1 Общие данные. План на отм. 1.280. Сети телефонизации производственной громкоговорящей связи. Радиофикаций Чертежи основного комплекта марки ОВ Общие данные Вентиляция. Планы на отм. 1.200; 4.500 между осями 10/1-12/1 и Б/1-Г/1. План кровли (tн = минус 20, минус 30 градусов Цельсия) Вентиляция. Планы на отм. 1.200; 4.500 между осями 10/1-12/1 и Б/1-Г/1. План кровли (tн = минус 40 градусов Цельсия) Вентиляция. Планы на отм. 1.200 между осями 1 - 19 и Б - С (tн = минус 20, минус 30 градусов Цельсия) Вентиляция. Планы на отм. 1.200 между осями 1 - 19 и Б - С (tн = минус 40 градусов Цельсия) Вентиляция. Схемы Вентиляция. Установки систем П1…П3 (tн = минус 20, минус 30 градусов Цельсия) Вентиляция. Установки систем П1…П4 (tн = минус 40 градусов Цельсия) Спецификация отопительно-вентиляционных систем П1…П4 Отопление, теплоснабжение. Планы на отм. 1.200; 4.500 между осями 10/ -12/1 и Б/1 -Г/1. Узел управления (tн = минус 20, минус 30 градусов Цельсия) Отопление, теплоснабжение. Планы на отм. 1.200; 4.500 между осями 10/ -12/1 и Б/1 -Г/1. Узел управления (tн = минус 40 градусов Цельсия) Отопление, теплоснабжение. План на отм. 1.200 между осями 13 - 19 и Б - С. Схемы систем отопления 1, 2 Схемы систем теплоснабжения установок П1…П4, У1…У4 Чертежи основного комплекта марки ВК1 Общие данные План на отм. 1.200 План кровли. Схемы систем В1, К2, К3 |
| Разработан: | Югзапгипропромсельстрой |
| Утверждён: | 06.12.1989 Главагропромнаучпроект Госкомиссии СМ СССР по продовольствию и закупкам (073-3/4) |














































