Скачать Типовой проект 709-9-102.89 Альбом 2. Архитектурные решения. Конструкции железобетонные. Конструкции металлическиеДата актуализации: 01.01.2021
|
| Обозначение: | Типовой проект 709-9-102.89 |
| Обозначение англ: | 709-9-102.89 |
| Статус: | не определен законодательством |
| Название рус.: | Альбом 2. Архитектурные решения. Конструкции железобетонные. Конструкции металлические |
| Дата добавления в базу: | 01.09.2013 |
| Дата актуализации: | 01.01.2021 |
| Дата введения: | 06.12.1989 |
| Дата окончания срока действия: | 30.06.2003 |
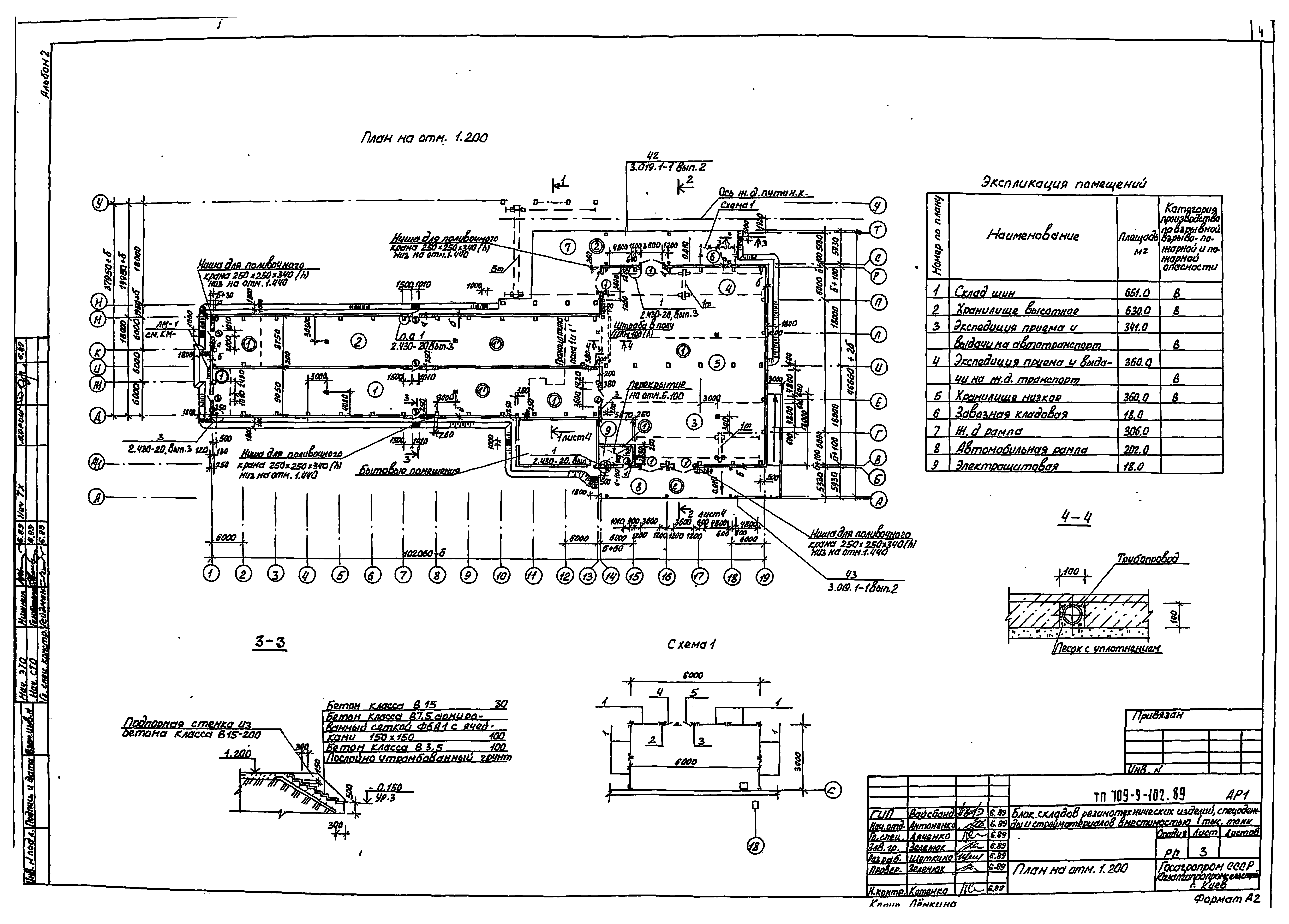
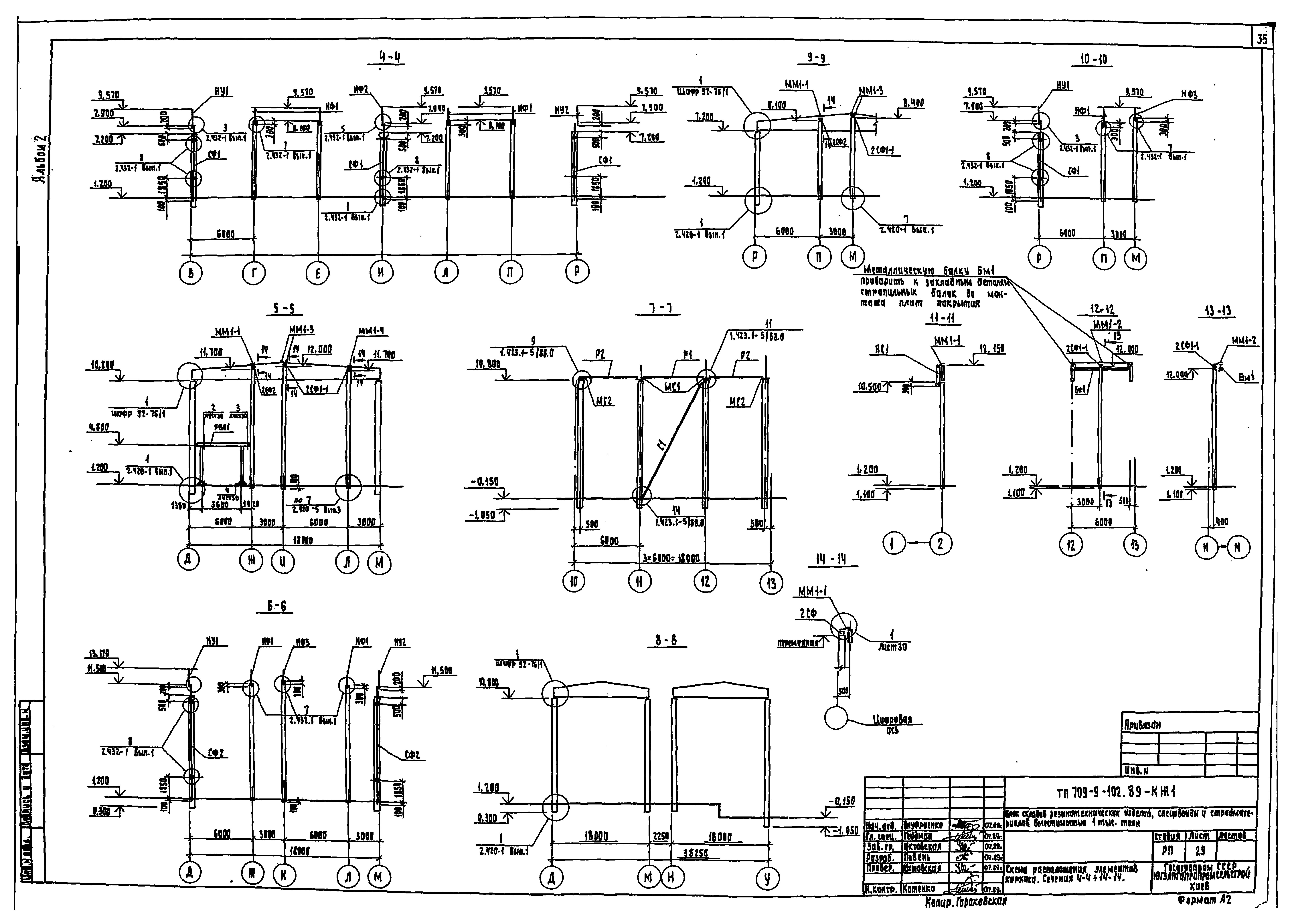
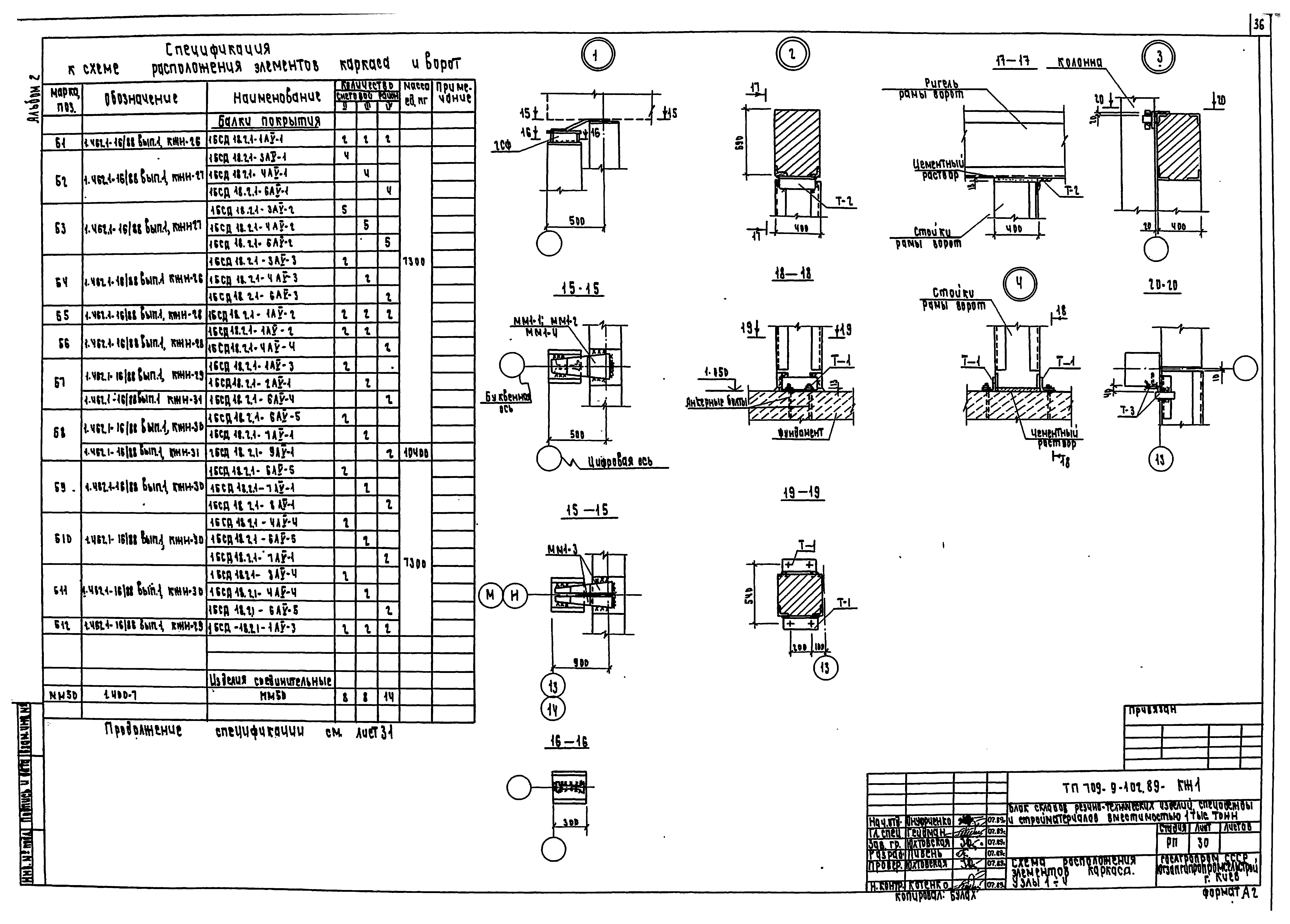
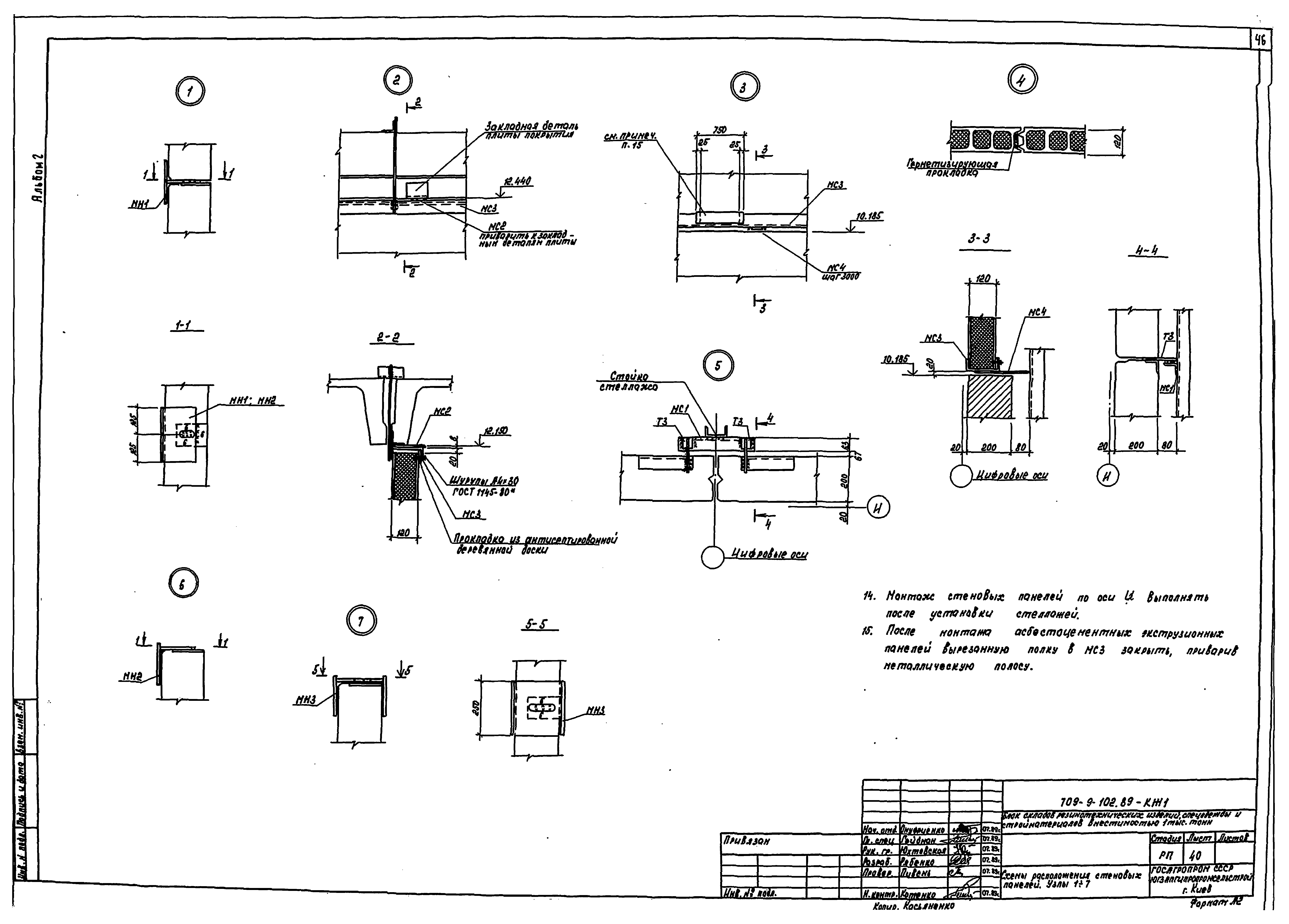
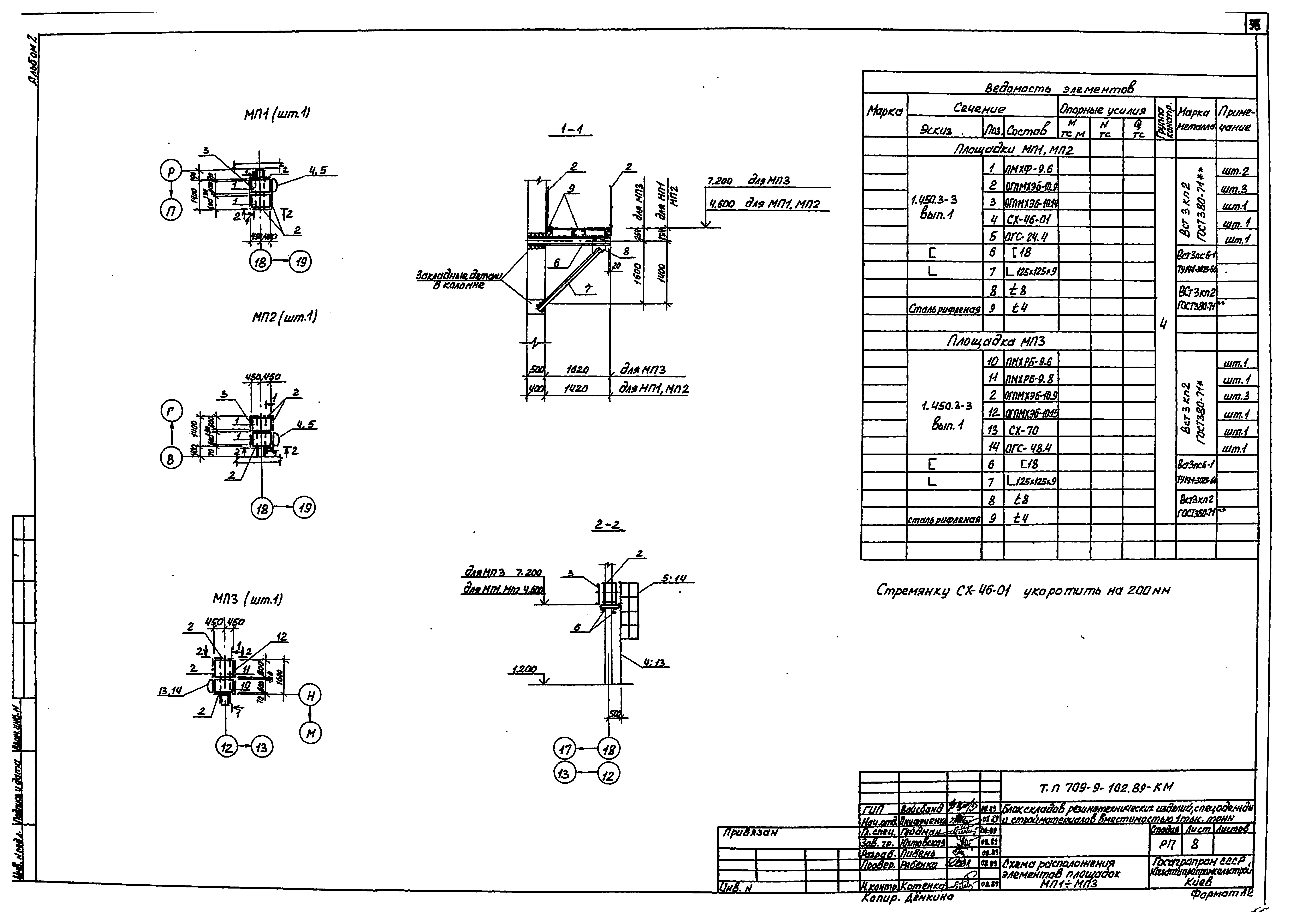
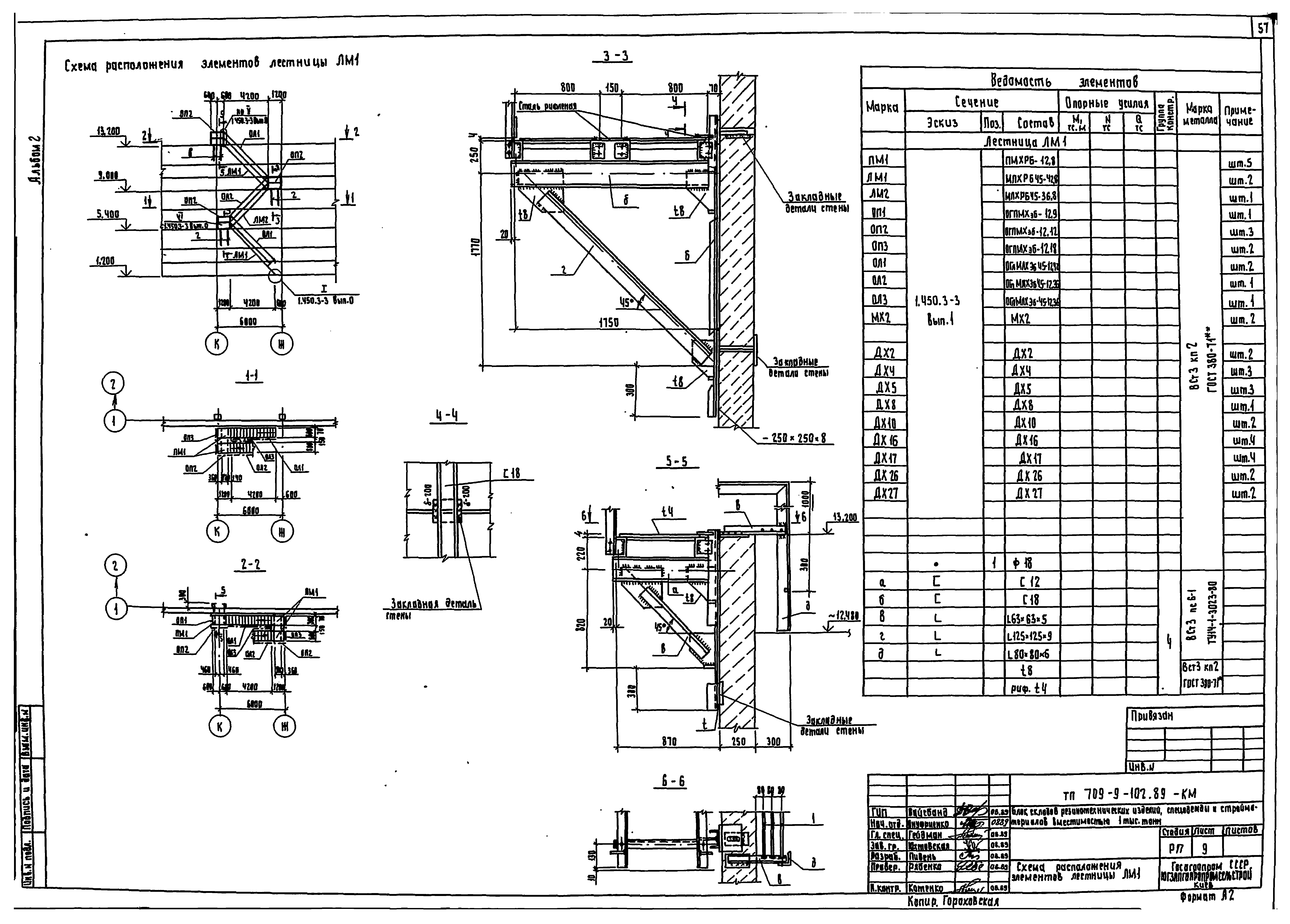
| Оглавление: | Чертежи основного комплекта марки АР1 Общие данные План на отм. 1.280 Разрезы 1-1, 2-2. План кровли Фасады 1 - 19, 19 - 1, У - А, А - У Чертежи основного комплекта марки КЖ1 Общие данные Схема расположения фундаментов в осях 1-13/Д-У Схема расположения фундаментов в осях 14-19/А-Т Спецификация к схемам расположения элементов фундаментов Фрагменты 1 - 4 Таблица нагрузок на фундаменты Фундаменты Фм1, Фм2, Фм28 Фундаменты Фм3, Фм4, Фм7 Фундаменты Фм5, Фм6, Фм8 Фундаменты Фм9, Фм10, Фм30 Фундаменты Фм11 - Фм13, Фм21 Фундаменты Фм14, Фм15, Фм27 Фундаменты Фм16 - Фм19 Фундаменты Фм20, Фм22 - Фм24 Фундаменты Фм25, Фм26, Фм29 Схема расположения элементов подземных конструкций Спецификация к схеме расположения элементов подземных конструкций Фрагменты 1 - 4. Фундаменты ФОм1 - ФОм5 Опалубочный чертеж фундаментных плит ПФм1, ПФм2 Армирование фундаментной плиты ПФм1 Армирование фундаментной плиты ПФм2 Опалубочный чертеж фундаментных плит ПФм3, ПФм4 Армирование фундаментной плиты ПФм3 Армирование фундаментных плит ПФм4, ПФм5 Опалубочный чертеж фундаментной плиты ПФм5 Схема расположения элементов каркаса и ворот Схема расположения элементов каркаса. Сечения 4-4, 14-14 Схема расположения элементов каркаса. Узлы 1 - 4 Спецификация к схеме расположения элементов каркаса и ворот Схема расположения элементов покрытия Спецификация к схеме расположения элементов покрытия Схема расположения плит перекрытия на отм. 5.020 и молниеприемной сетки Схемы расположения стеновых панелей по осям Д, 1 для t = минус 20, минус 30 градусов Цельсия; М и 13 Схемы расположения стеновых панелей по осям И, В, 14, 19 Схемы расположения стеновых панелей по осям Д, 1 для t = минус 40 градусов Цельсия, 17 Схемы расположения стеновых панелей. Узлы 1 - 7 Спецификация к схемам расположения стеновых панелей Чертежи основного комплекта марки КМ Общие данные Схемы расположения элементов навесов и профилированного настила Схемы расположения элементов навесов. Узлы 1 - 14 Схема расположения путей подвесных кранов Схема расположения элементов площадок МП1 - МП3 Схема расположения элементов лестницы ЛМ1 Лестница ЛМ2, С1 |
| Разработан: | Югзапгипропромсельстрой |
| Утверждён: | 06.12.1989 Главагропромнаучпроект Госкомиссии СМ СССР по продовольствию и закупкам (073-3/4) |


























































