Скачать Типовой проект 709-9-102.89 Альбом 3. Бытовые помещения. Архитектурные решения. Конструкции железобетонные. Электротехнические решения. Автоматизация. Связь и сигнализация. Внутренние водопровод и канализацияДата актуализации: 01.01.2021
|
| Обозначение: | Типовой проект 709-9-102.89 |
| Обозначение англ: | 709-9-102.89 |
| Статус: | не определен законодательством |
| Название рус.: | Альбом 3. Бытовые помещения. Архитектурные решения. Конструкции железобетонные. Электротехнические решения. Автоматизация. Связь и сигнализация. Внутренние водопровод и канализация |
| Дата добавления в базу: | 01.09.2013 |
| Дата актуализации: | 01.01.2021 |
| Дата введения: | 06.12.1989 |
| Дата окончания срока действия: | 30.06.2003 |
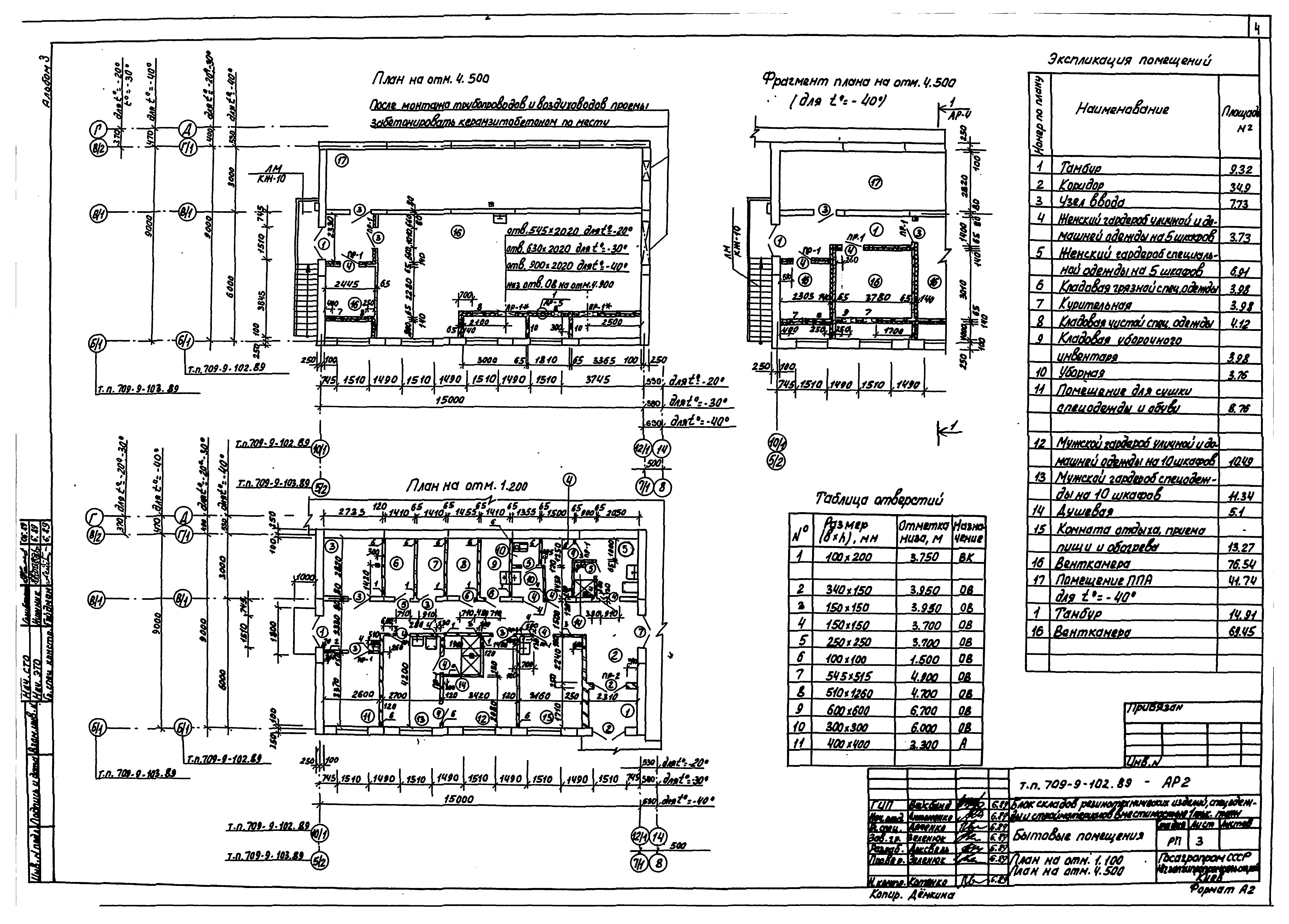
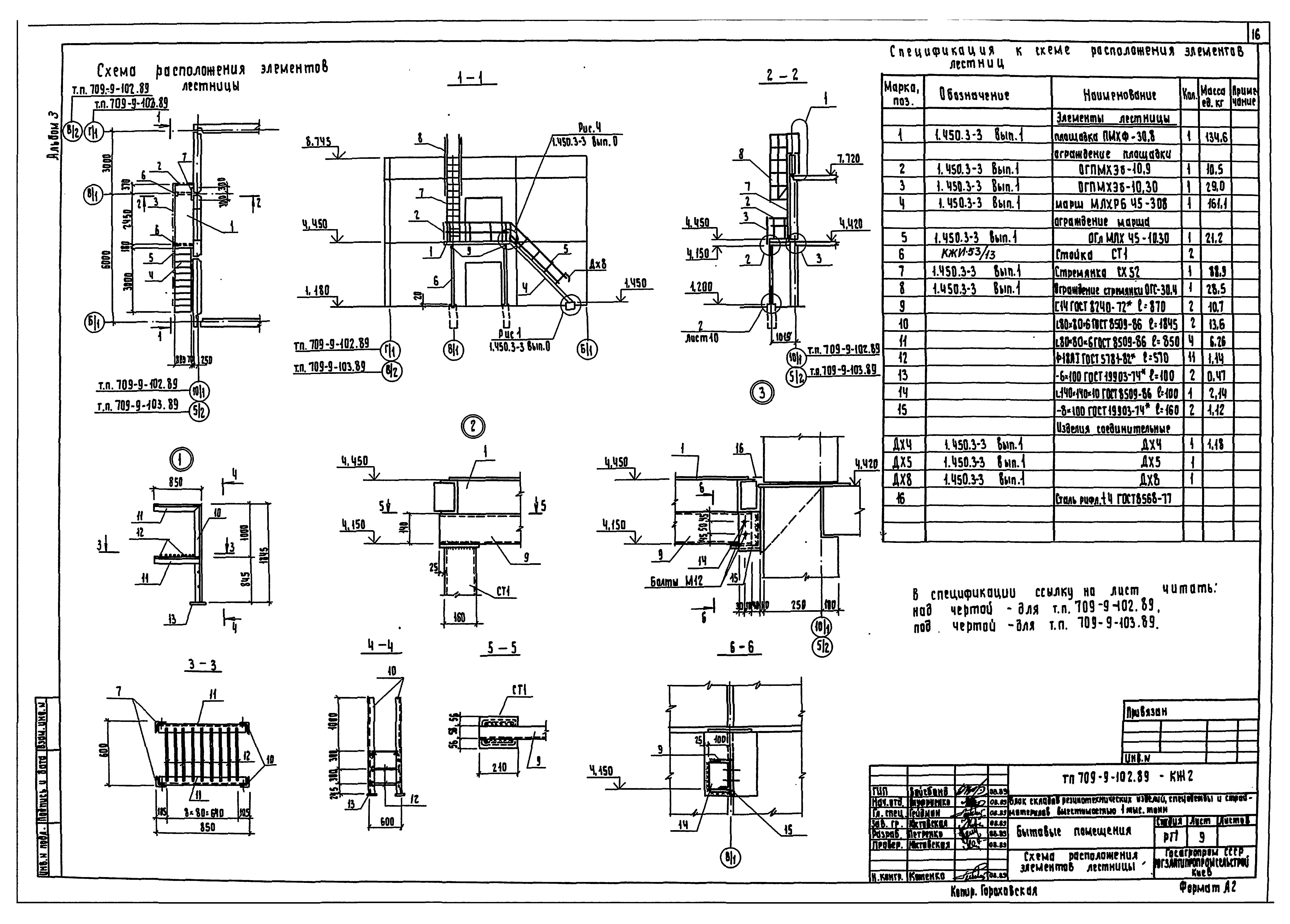
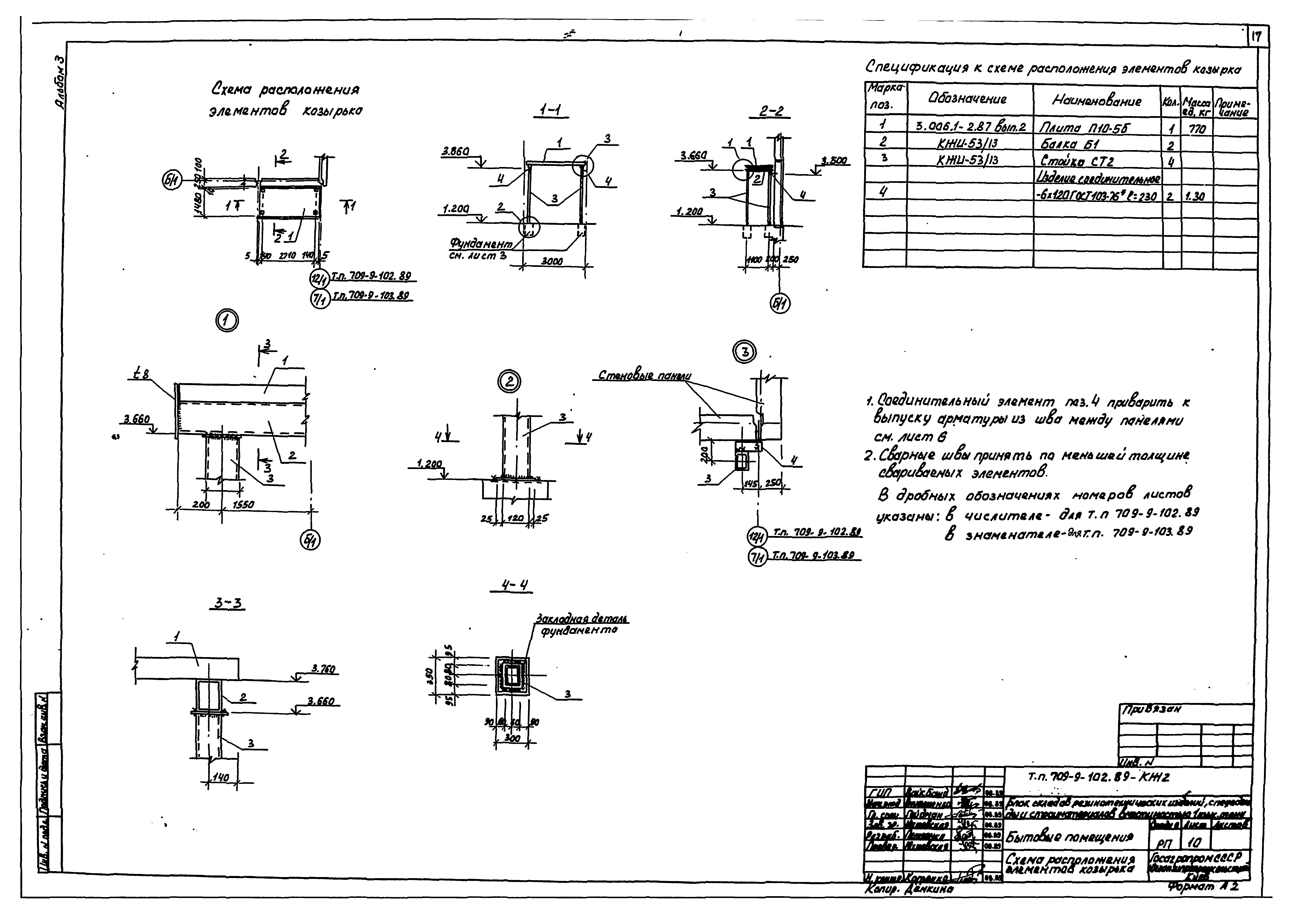
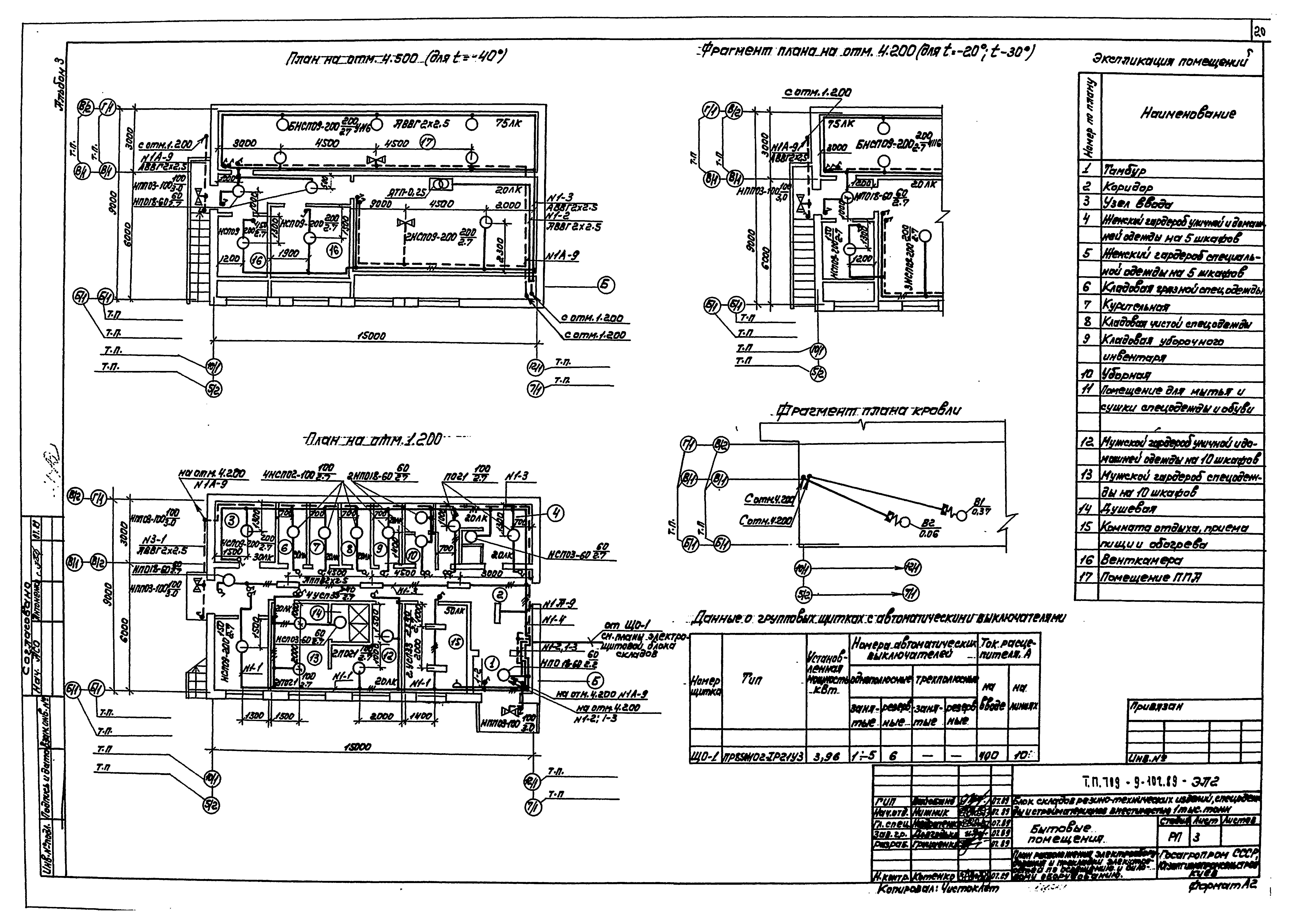
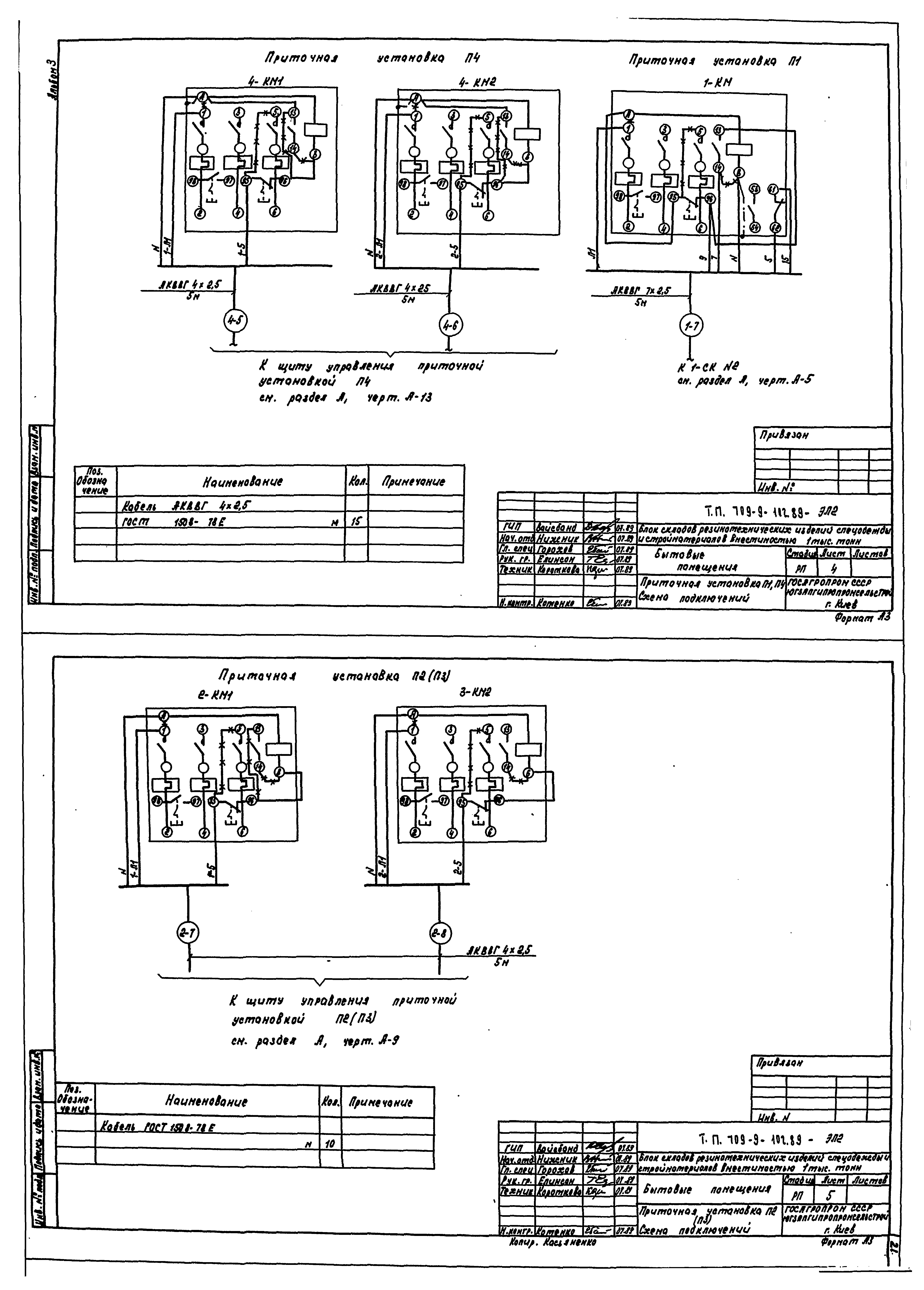
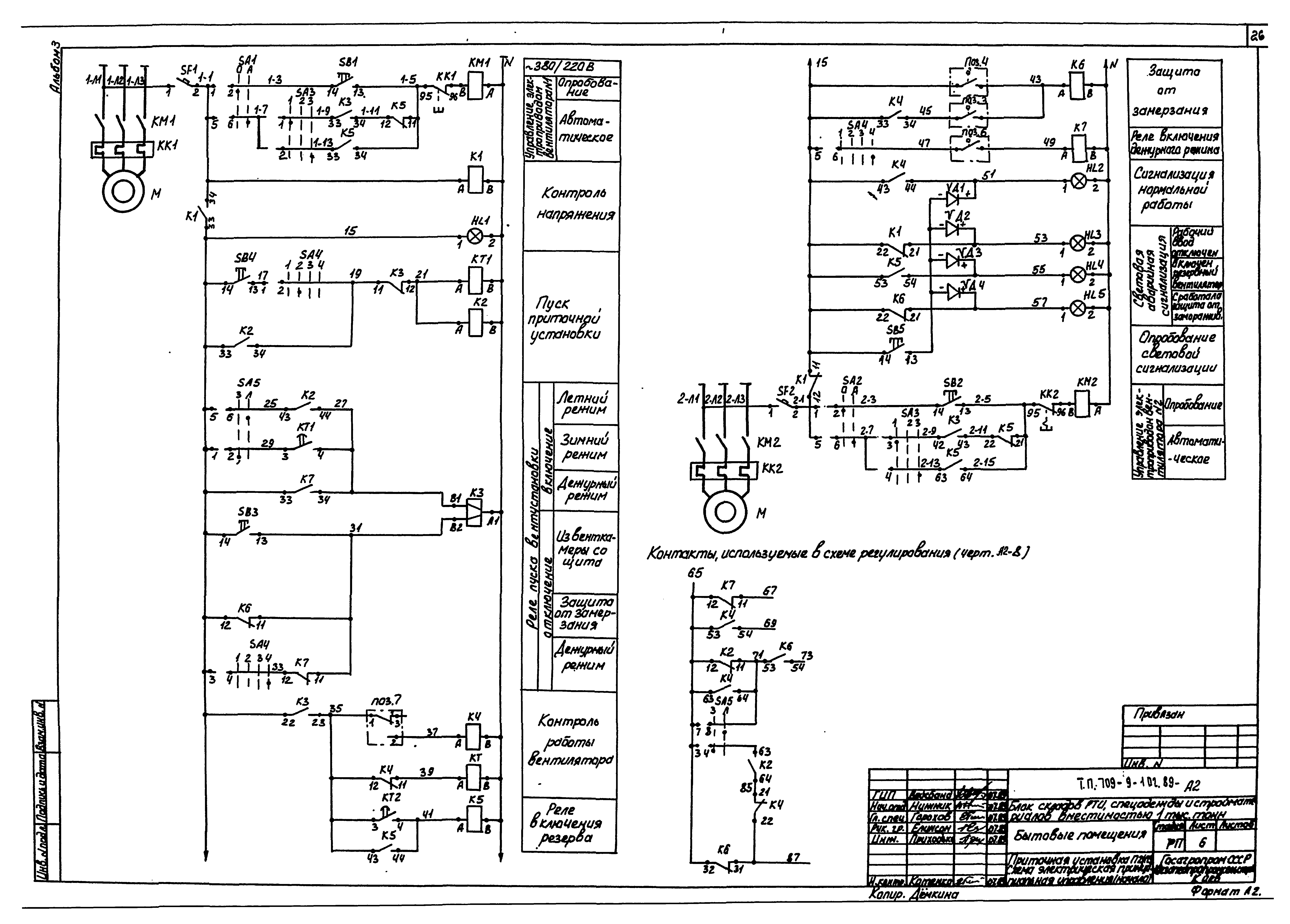
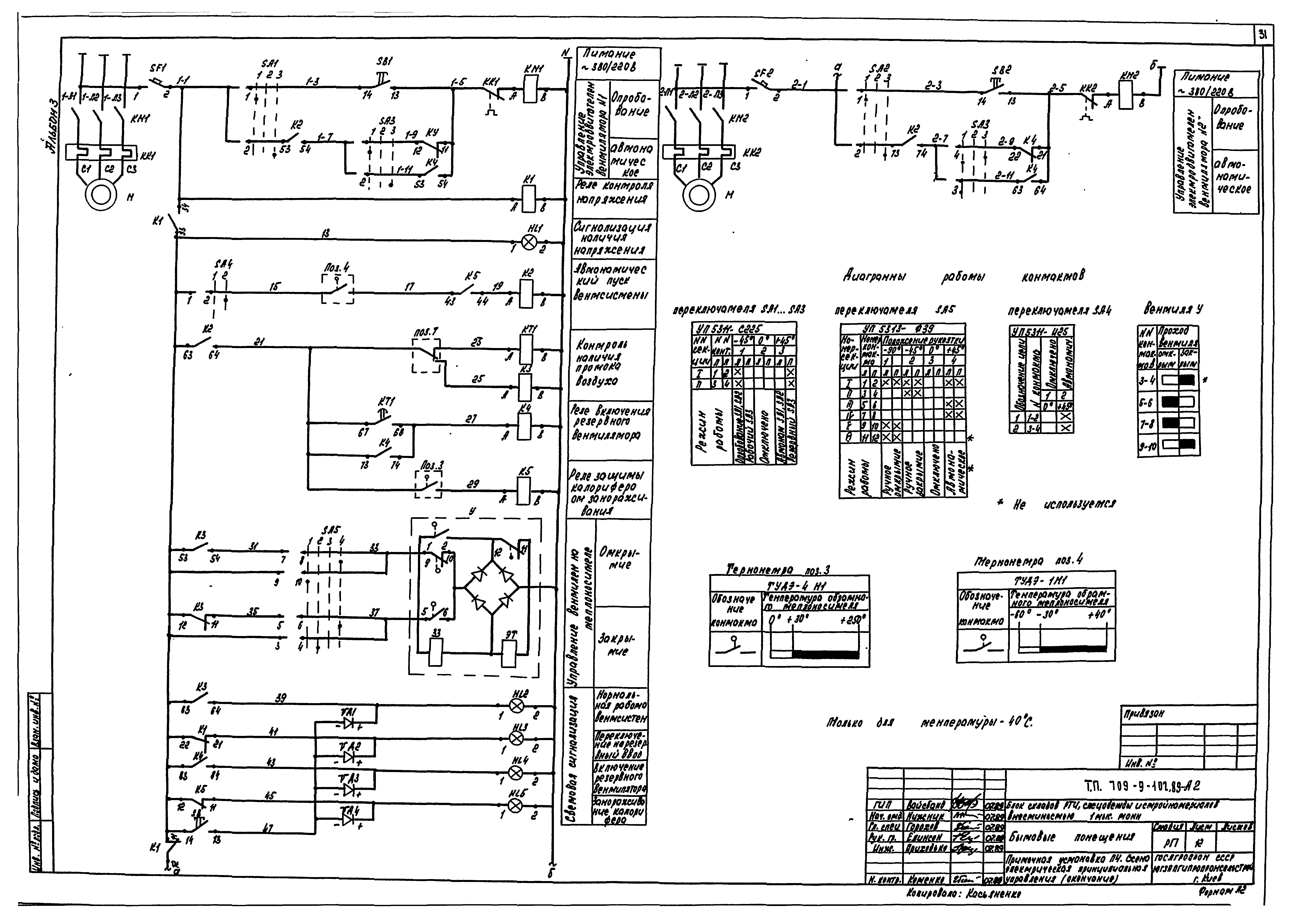
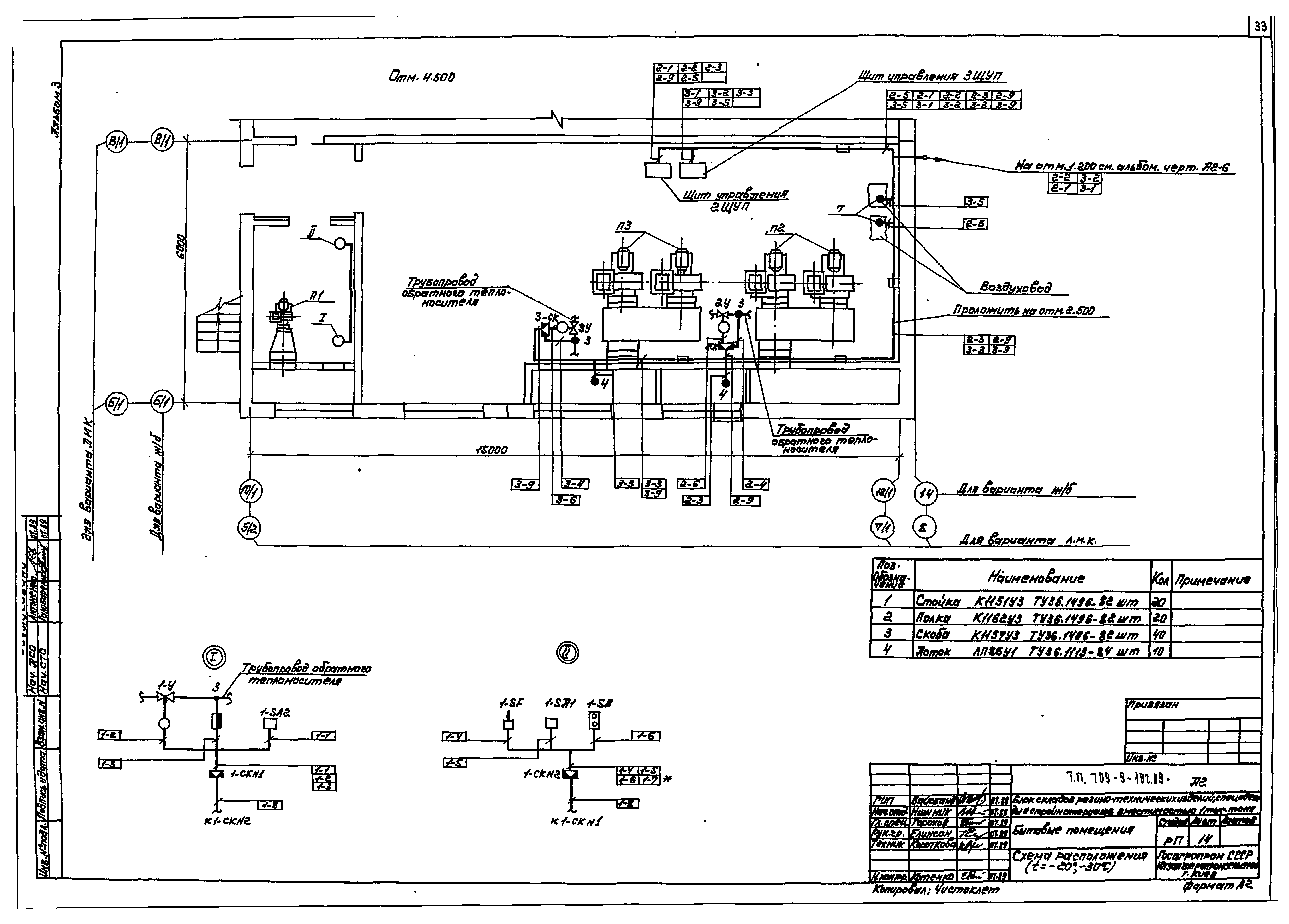
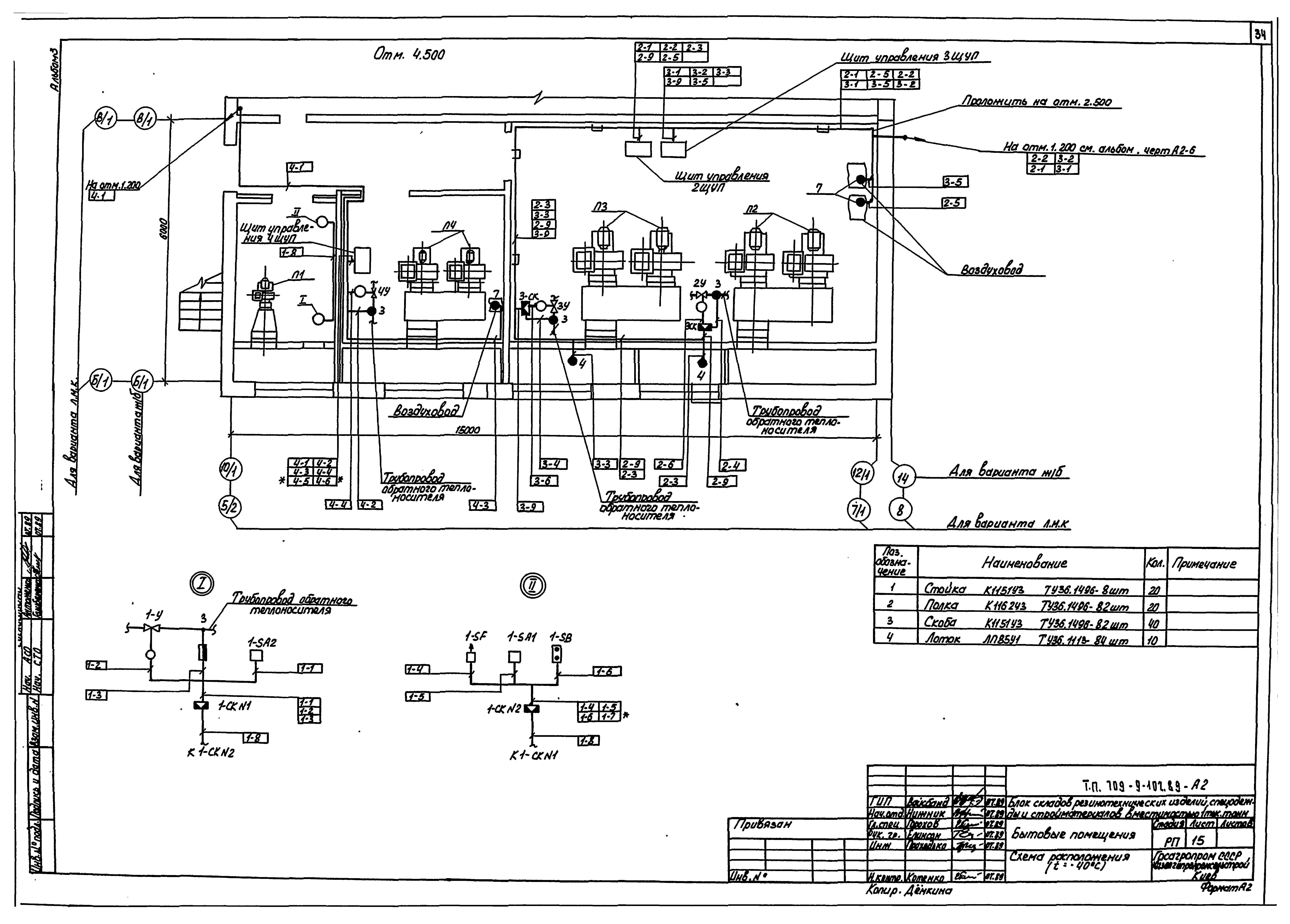
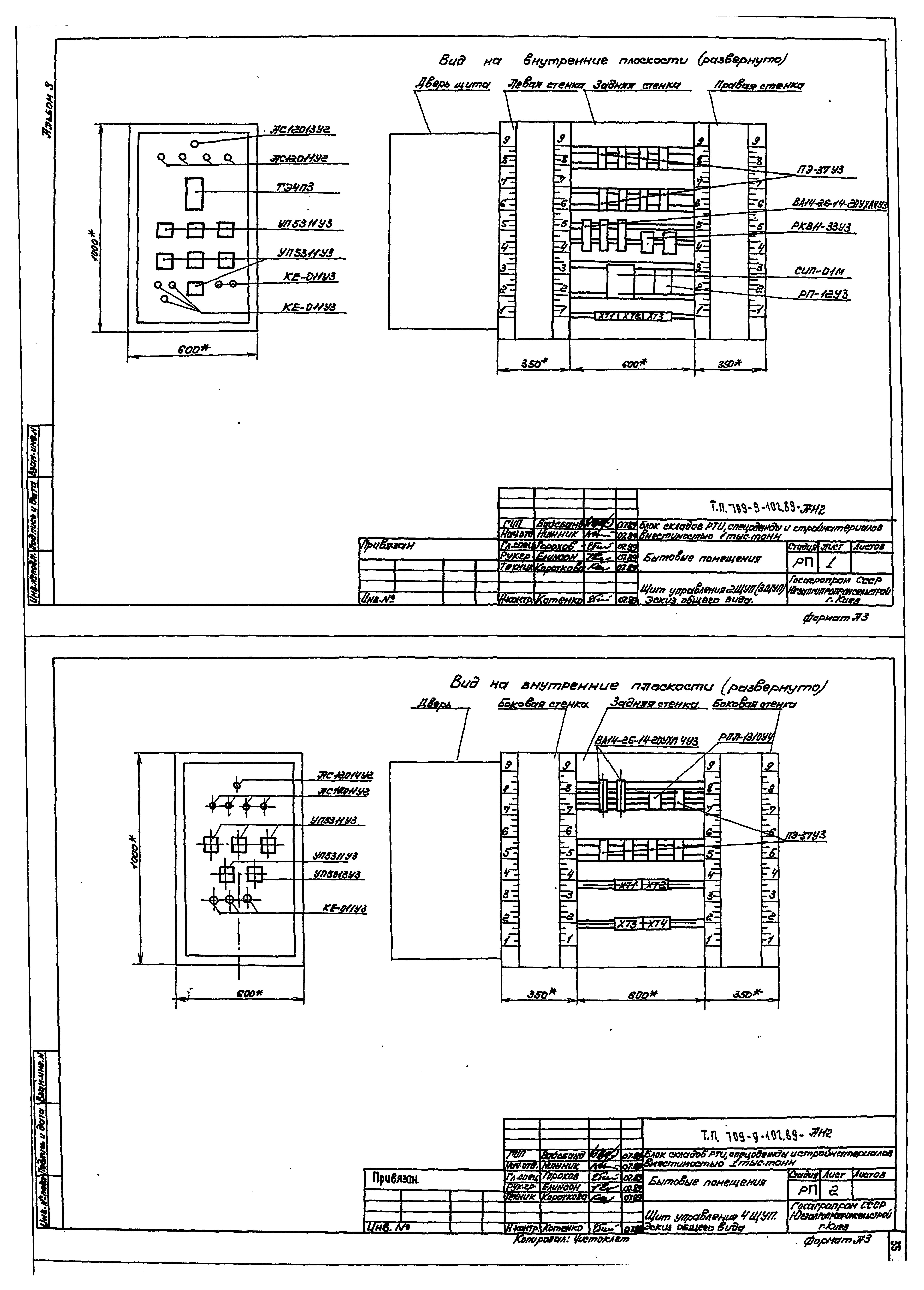
| Оглавление: | Чертежи основного комплекта марки АР2 Общие данные План на отм. 1.200; план на отм. 4.200 Фасады. Разрез 1-1 План с расстановкой мебели на отм. 1.200. План кровли Ведомость отделки помещений. Планы полов Чертежи основного комплекта марки КЖ2 Общие данные Схема расположения элементов фундаментов и подземных конструкций Схемы расположения плит покрытия и перекрытия на отм. 4.120. Узлы 1, 2 Фундамент ФОм. Спецификация к схеме расположения плит покрытия и перекрытия Схемы расположения элементов стен Схема расположения элементов стен. Вид 3-3 - 6-6 Схема расположения элементов стен на отм. 4.200 для t = минус 40 градусов Цельсия Спецификация к схеме расположения элементов стен Схема расположения элементов лестницы Схема расположения элементов козырька Чертежи основного комплекта марки ЭЛ2 Общие данные План расположения электрооборудования и прокладка электросетей по силовому оборудованию План расположения электрооборудования и прокладка электросетей по освещению Приточная установка П1, П4. Схема подключений Приточная установка П2 (П3). Схема подключений Вентиляторы В1, В2. Принципиальная схема. Схема подключения Чертежи основного комплекта марки А2 Общие данные Приточная установка П1. Схема функциональная Приточная установка П2 (П3). Схема функциональная Приточная установка П1. Схема электрическая принципиальная управления Приточная установка П1. Схема подключений Приточная установка П2 (П3). Схема электрическая принципиальная управления Приточная установка П2 (П3). Схема электрическая принципиальная регулирования Приточная установка П2 (П3). Схема подключений Приточная установка П4. Схема функциональная Приточная установка П4. Схема электрическая принципиальная управления Приточная установка П4. Схема подключений Схема расположения (t = минус 20, минус 30 градусов Цельсия) Схема расположения (t = минус 40 градусов Цельсия) Чертежи основного комплекта марки АН2 Щит управления 2ЩУП (3ЩУП). Эскиз общего вида Щит управления 4ЩУП. Эскиз общего вида Чертежи основного комплекта марки СС2 Общие данные. План на отм. 1.200. Сети телефонизации и радиофикации. Спецификация Чертежи основного комплекта марки ВК2 Общие данные План на отм. 1.200 и 4.200. План кровли Схемы систем В1, Т3, К1, К2. Узел 1; 2 |
| Разработан: | Югзапгипропромсельстрой |
| Утверждён: | 06.12.1989 Главагропромнаучпроект Госкомиссии СМ СССР по продовольствию и закупкам (073-3/4) |







































