Скачать Типовой проект 801-3-30м.84 Альбом 1. Общая пояснительная записка. Технологические чертежи. Архитектурно-строительные решения. Внутренние водопровод, канализация, отопление и вентиляция. Электроосвещение и электрооборудованиеДата актуализации: 01.01.2021
|
| Обозначение: | Типовой проект 801-3-30м.84 |
| Обозначение англ: | 801-3-30м.84 |
| Статус: | не определен законодательством |
| Название рус.: | Альбом 1. Общая пояснительная записка. Технологические чертежи. Архитектурно-строительные решения. Внутренние водопровод, канализация, отопление и вентиляция. Электроосвещение и электрооборудование |
| Дата добавления в базу: | 01.09.2013 |
| Дата актуализации: | 01.01.2021 |
| Дата введения: | 05.07.1983 |
| Дата окончания срока действия: | 30.06.2003 |
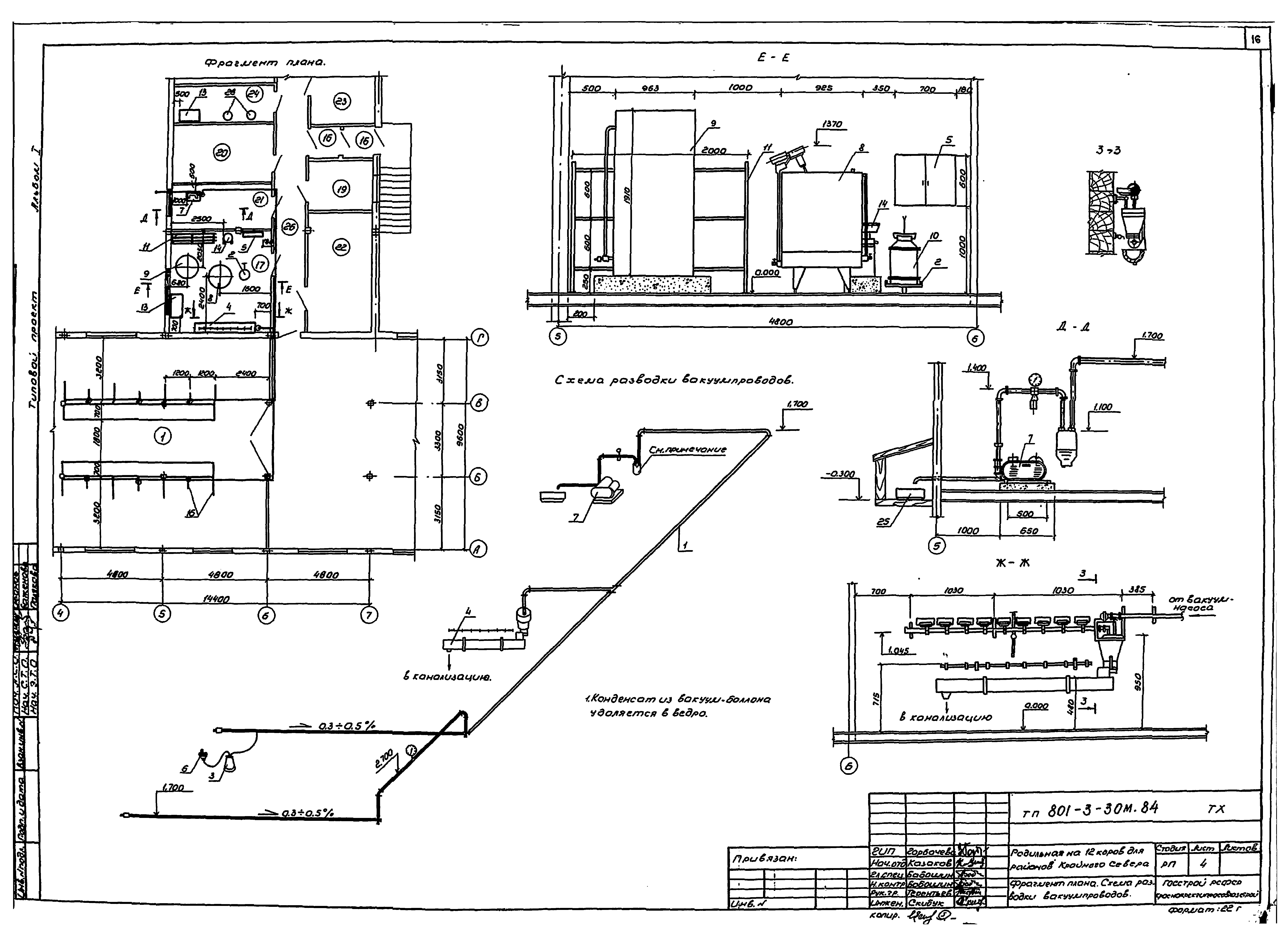
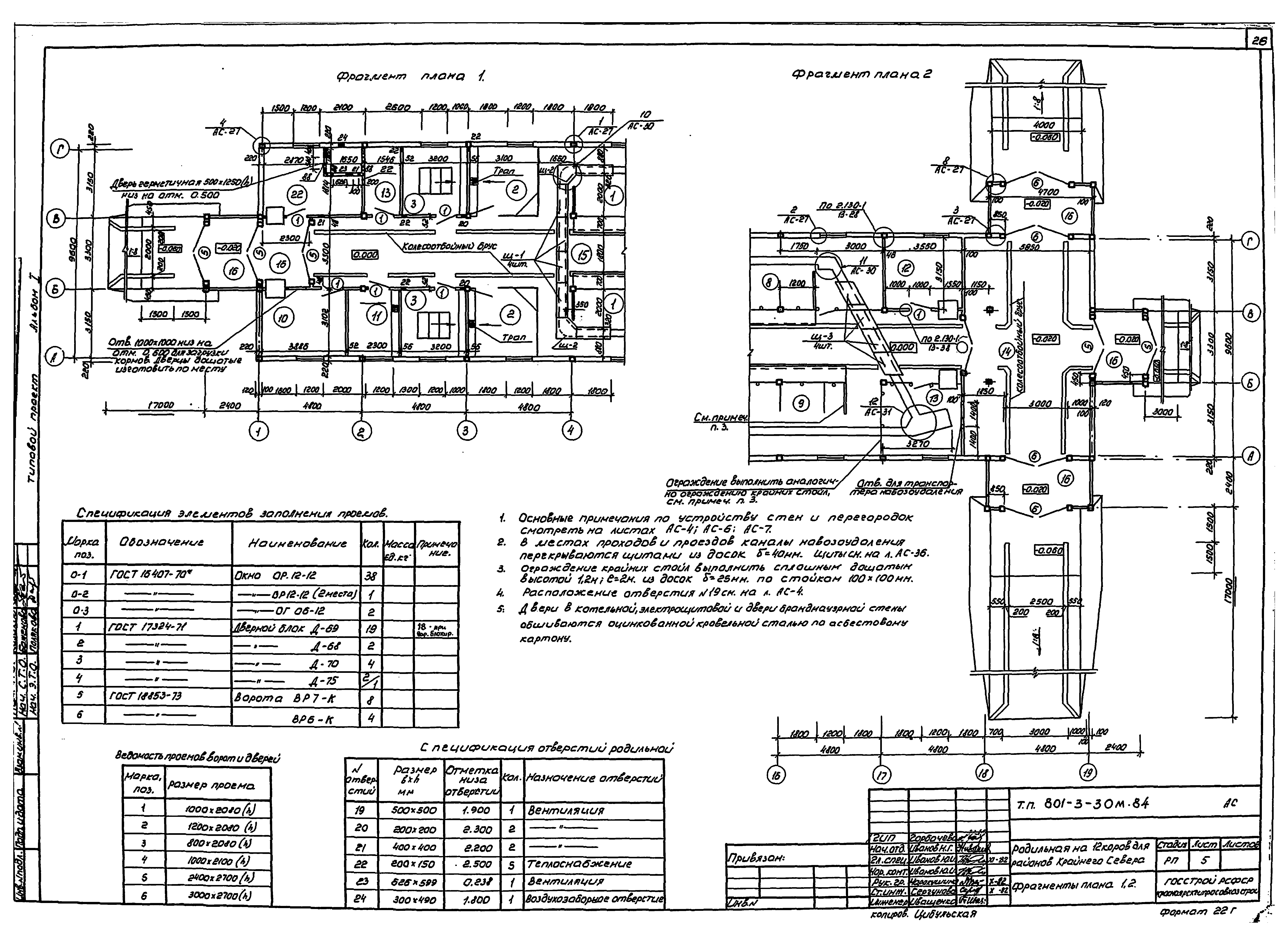
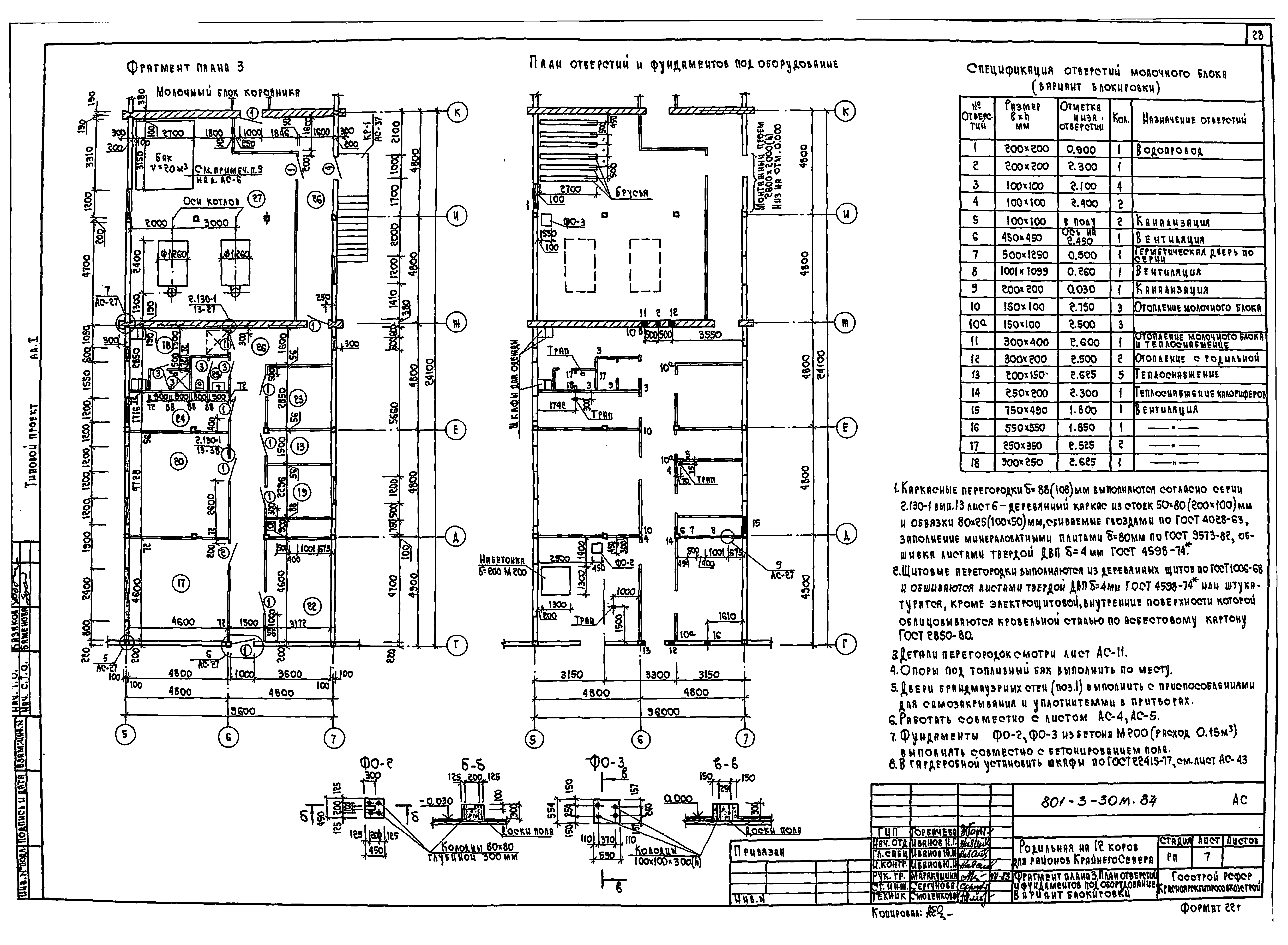
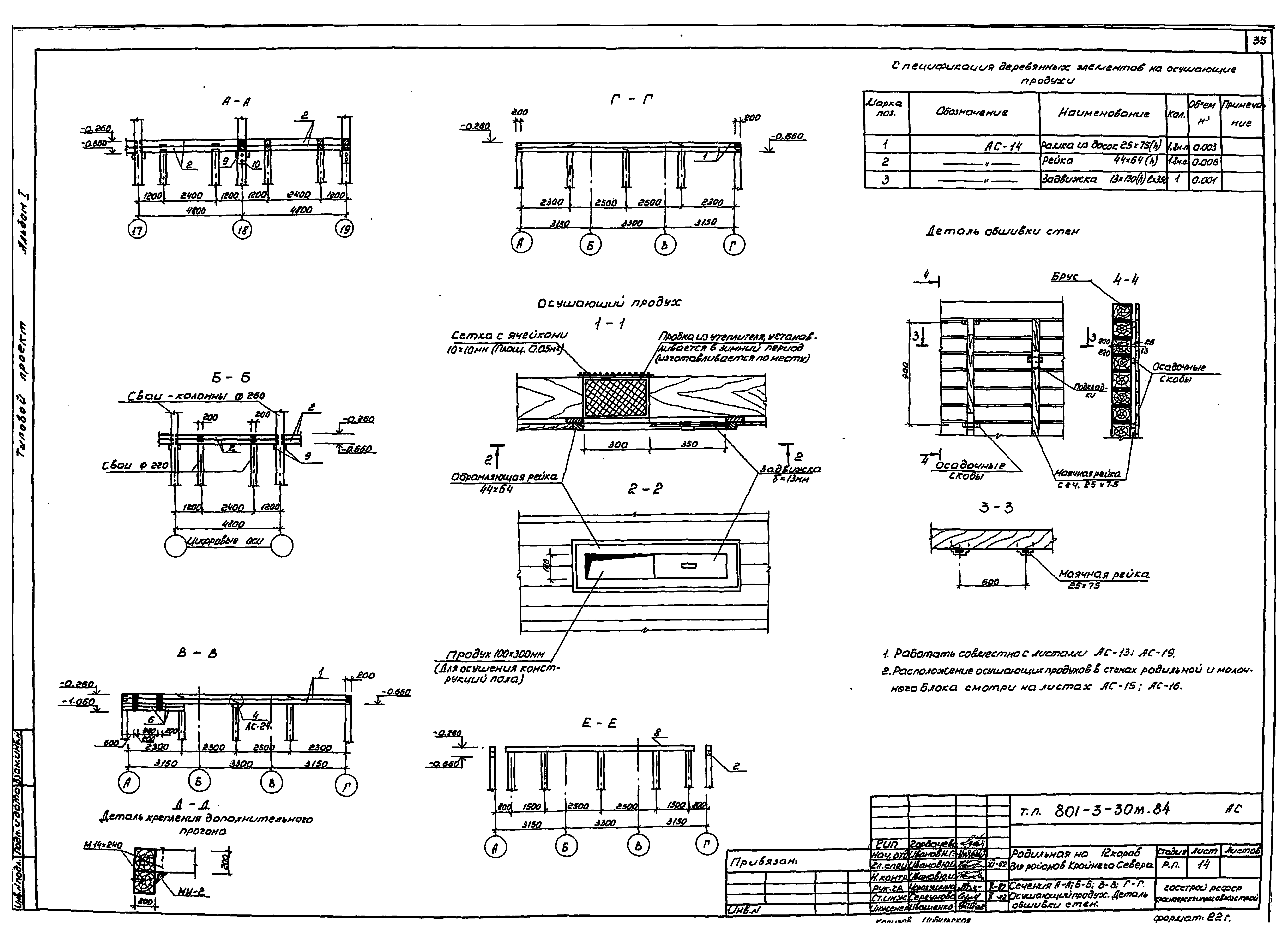
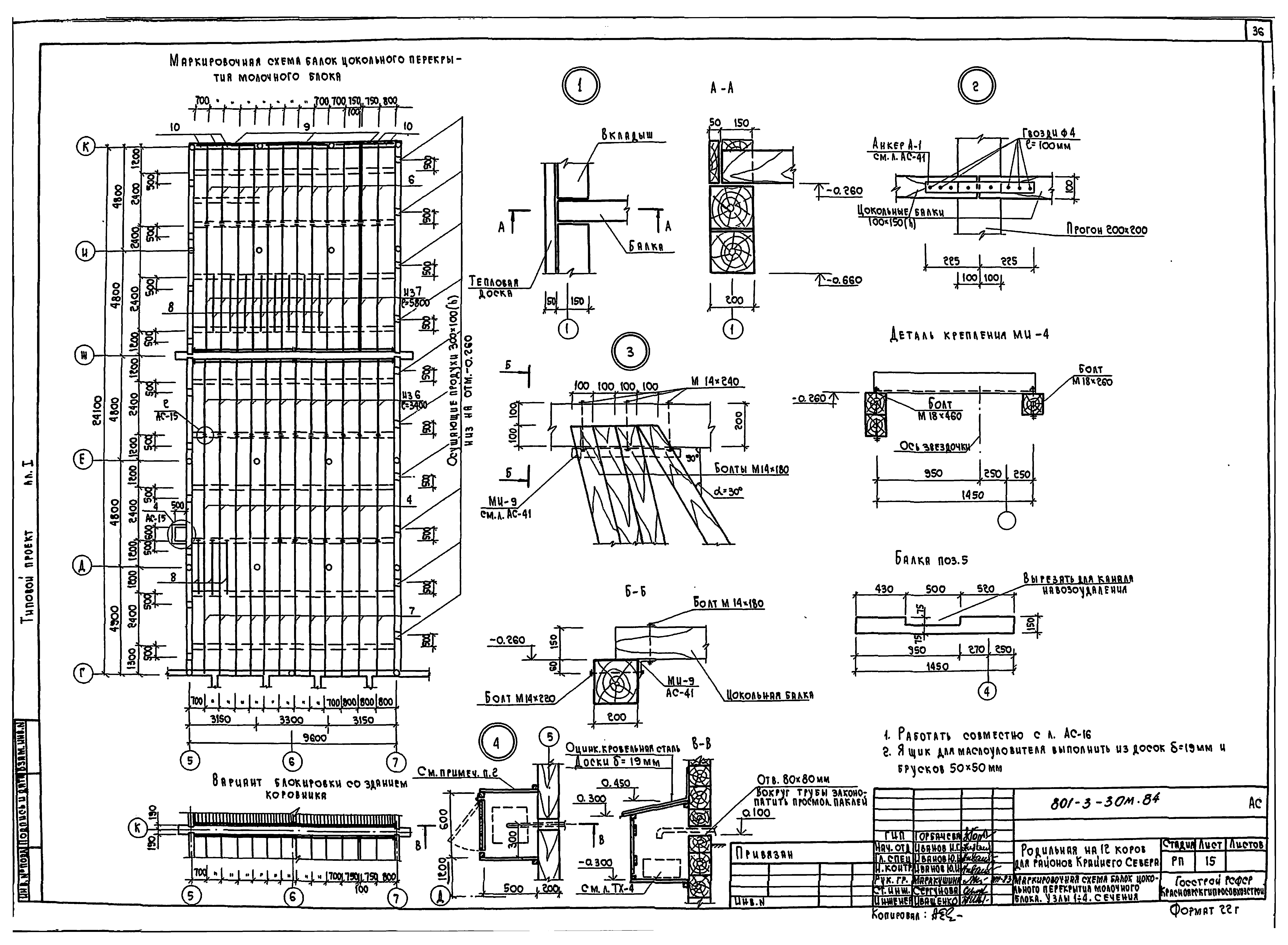
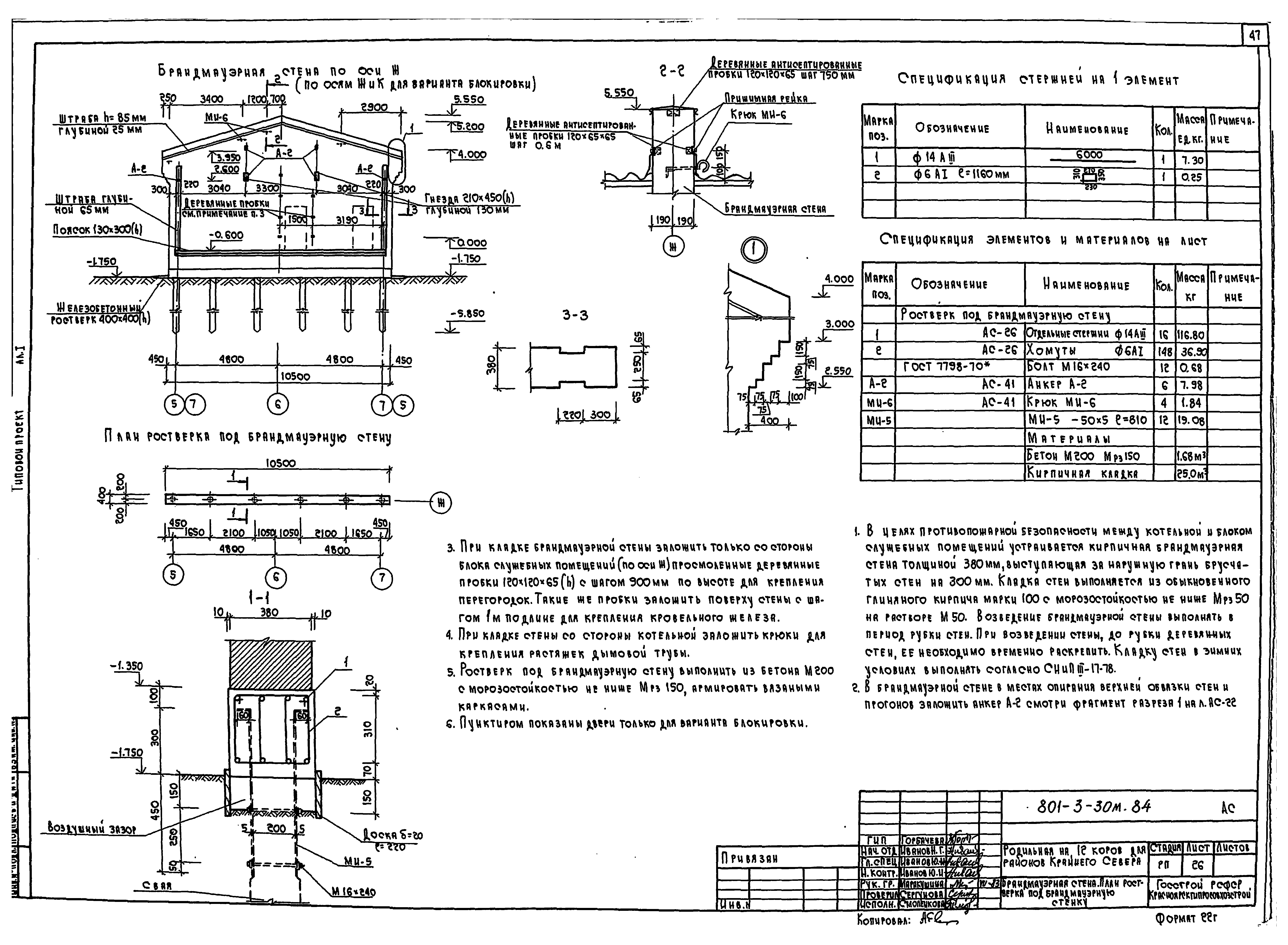
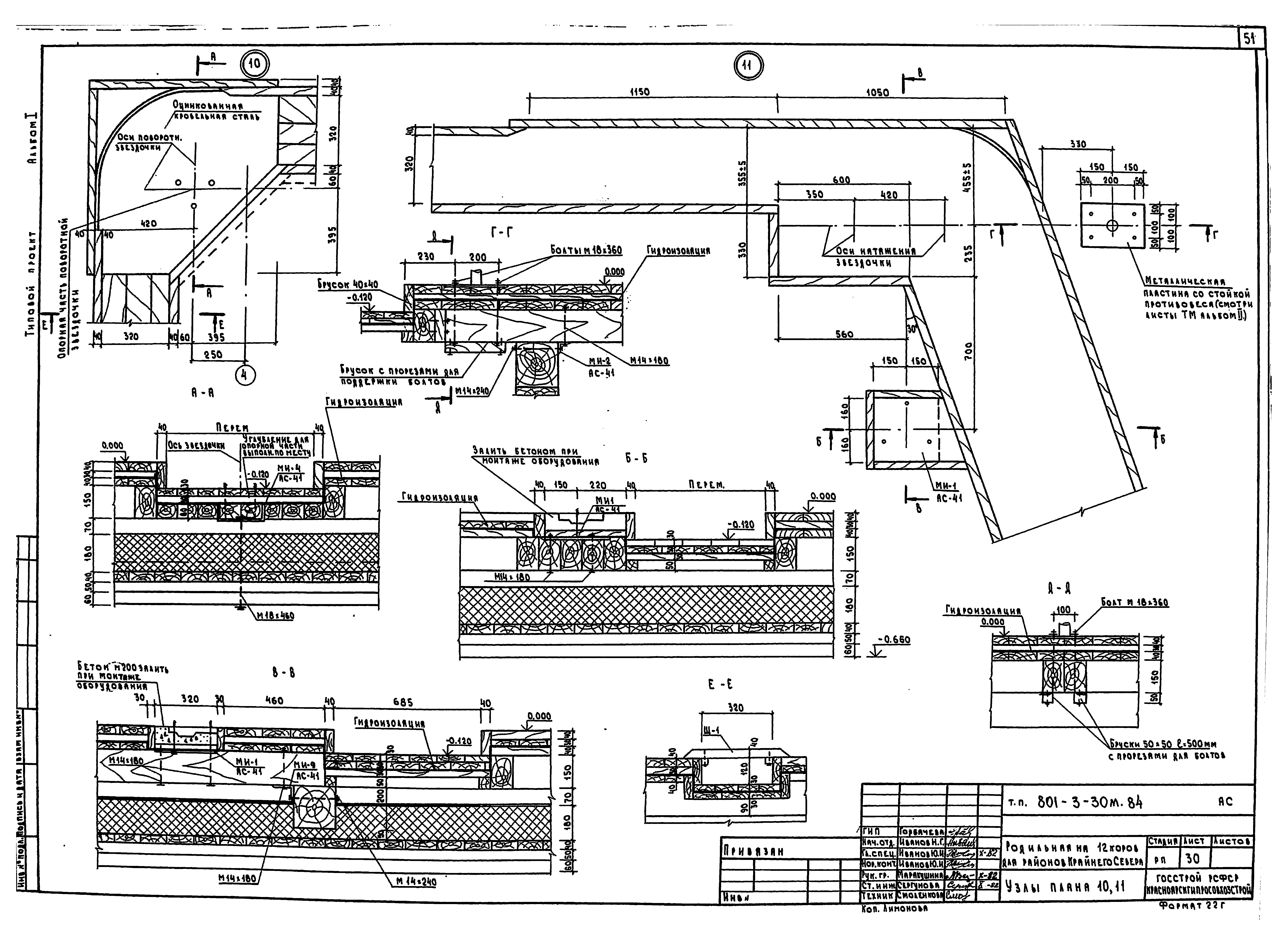
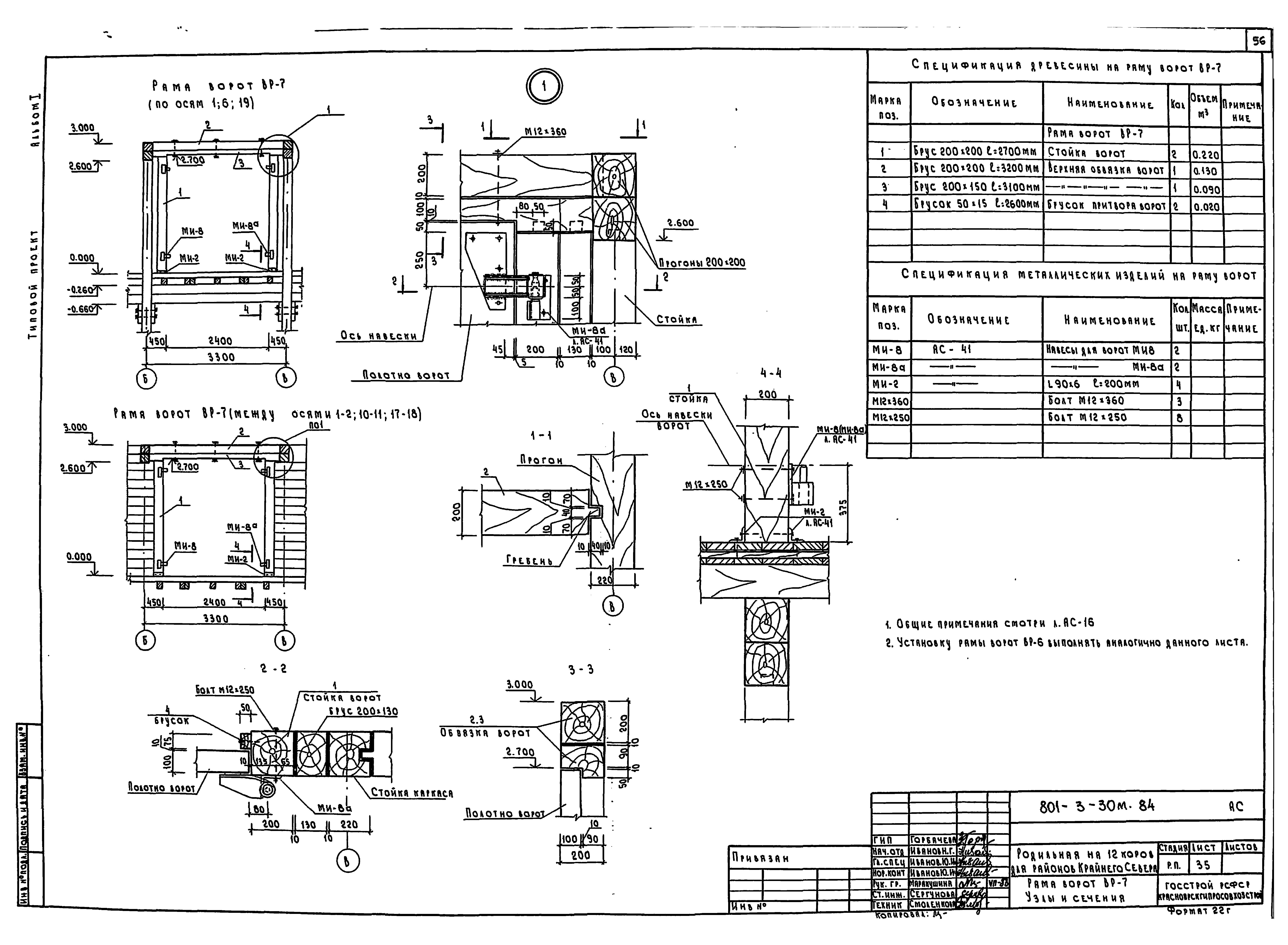
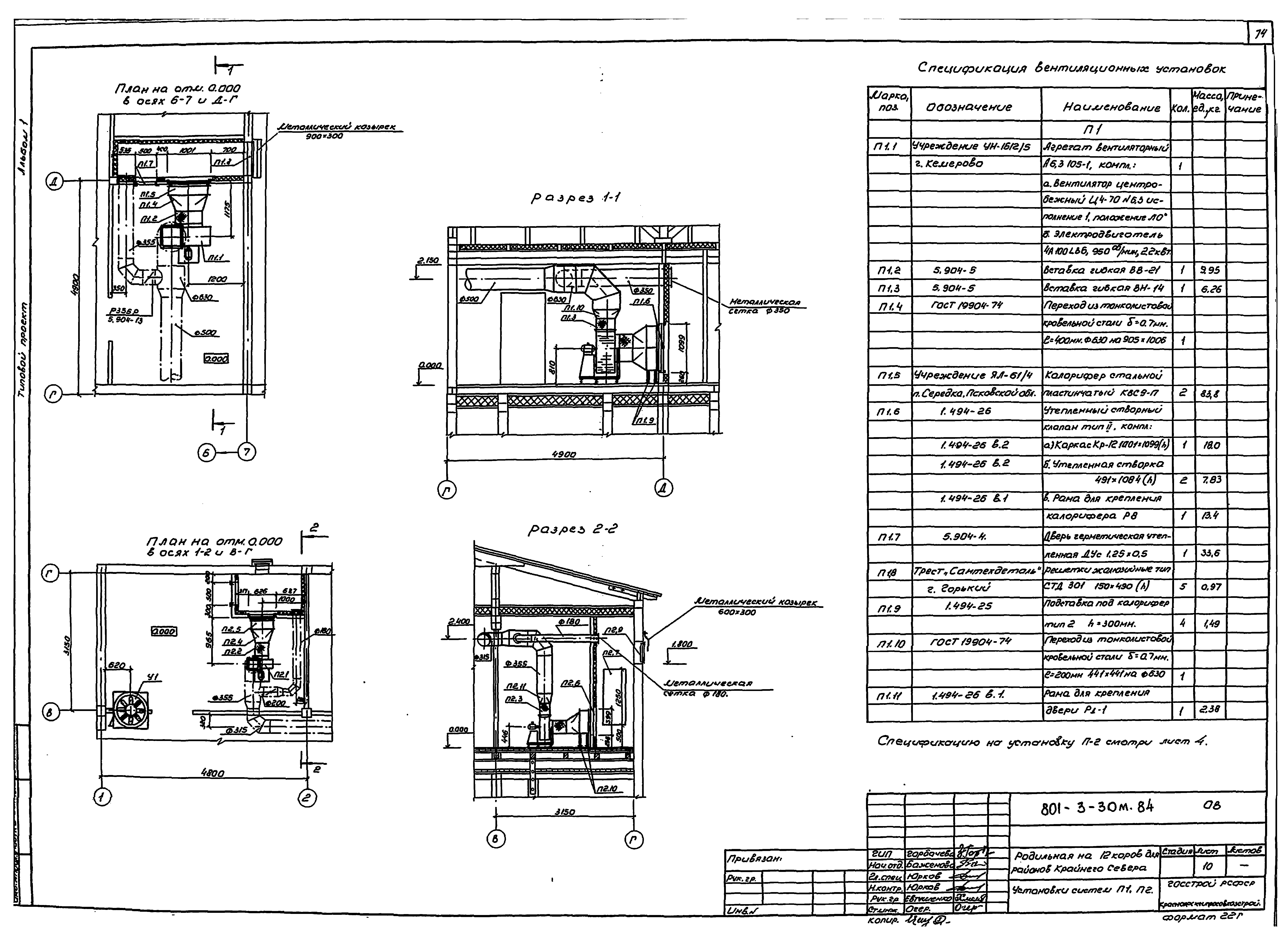
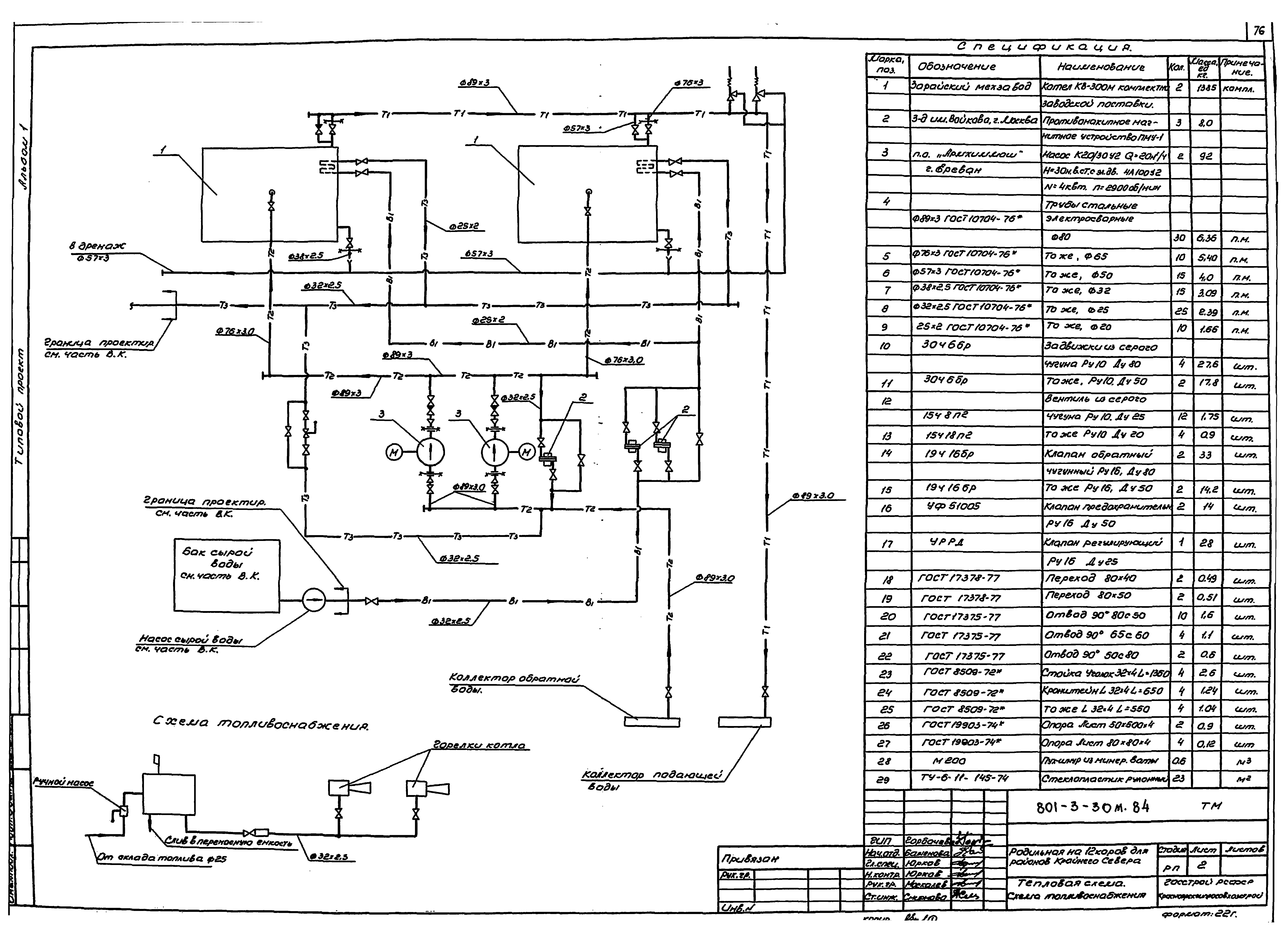
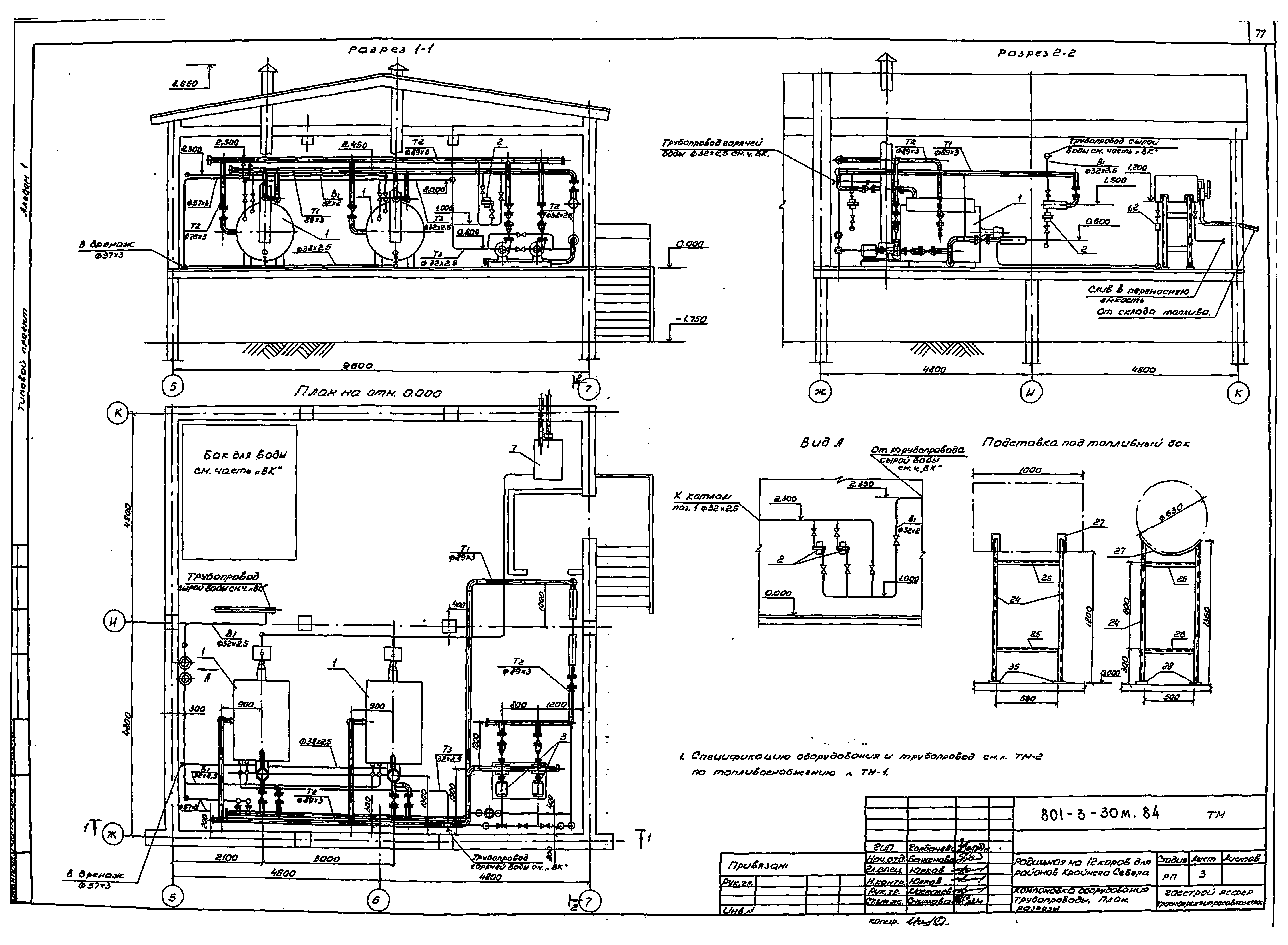
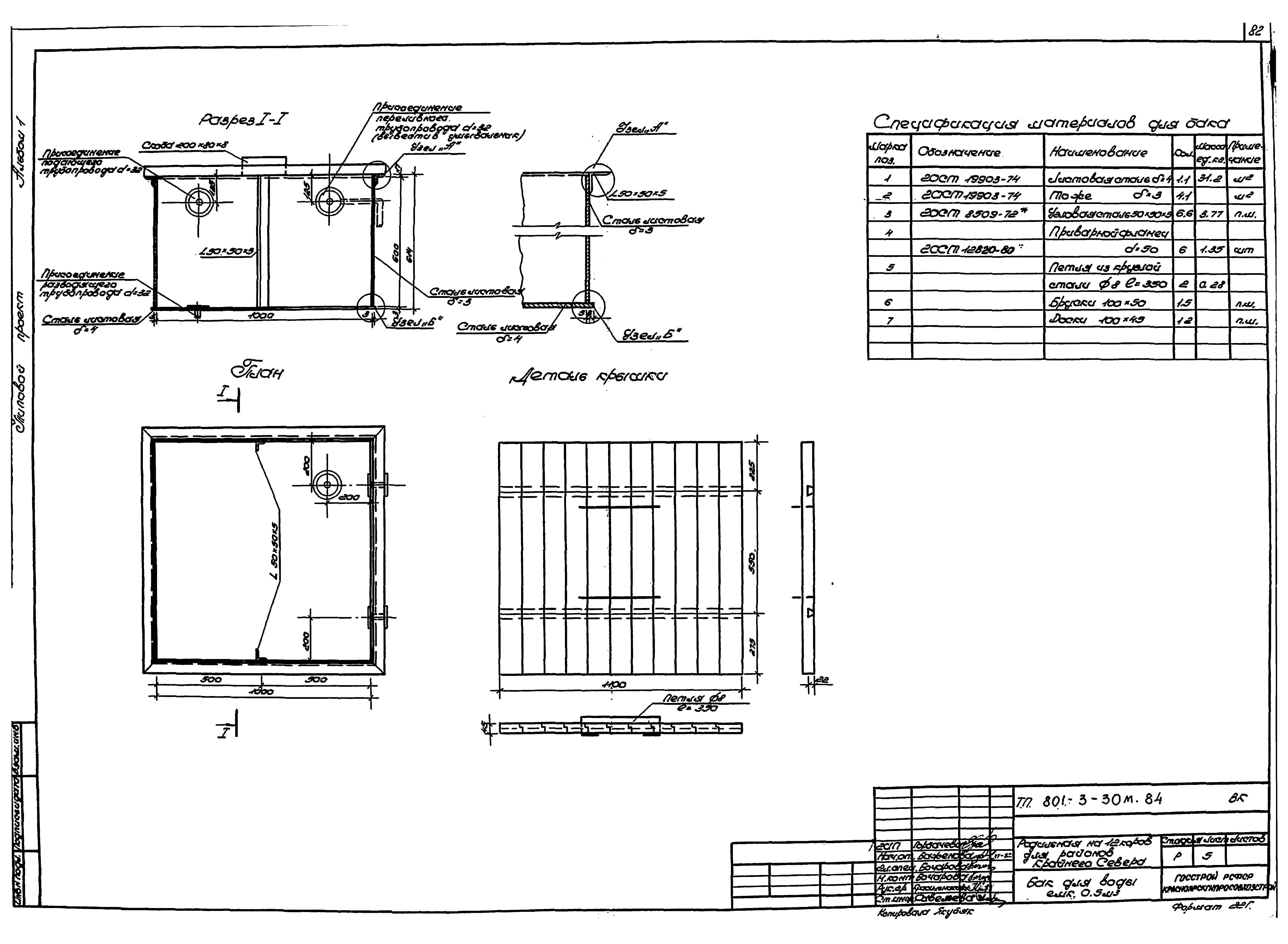
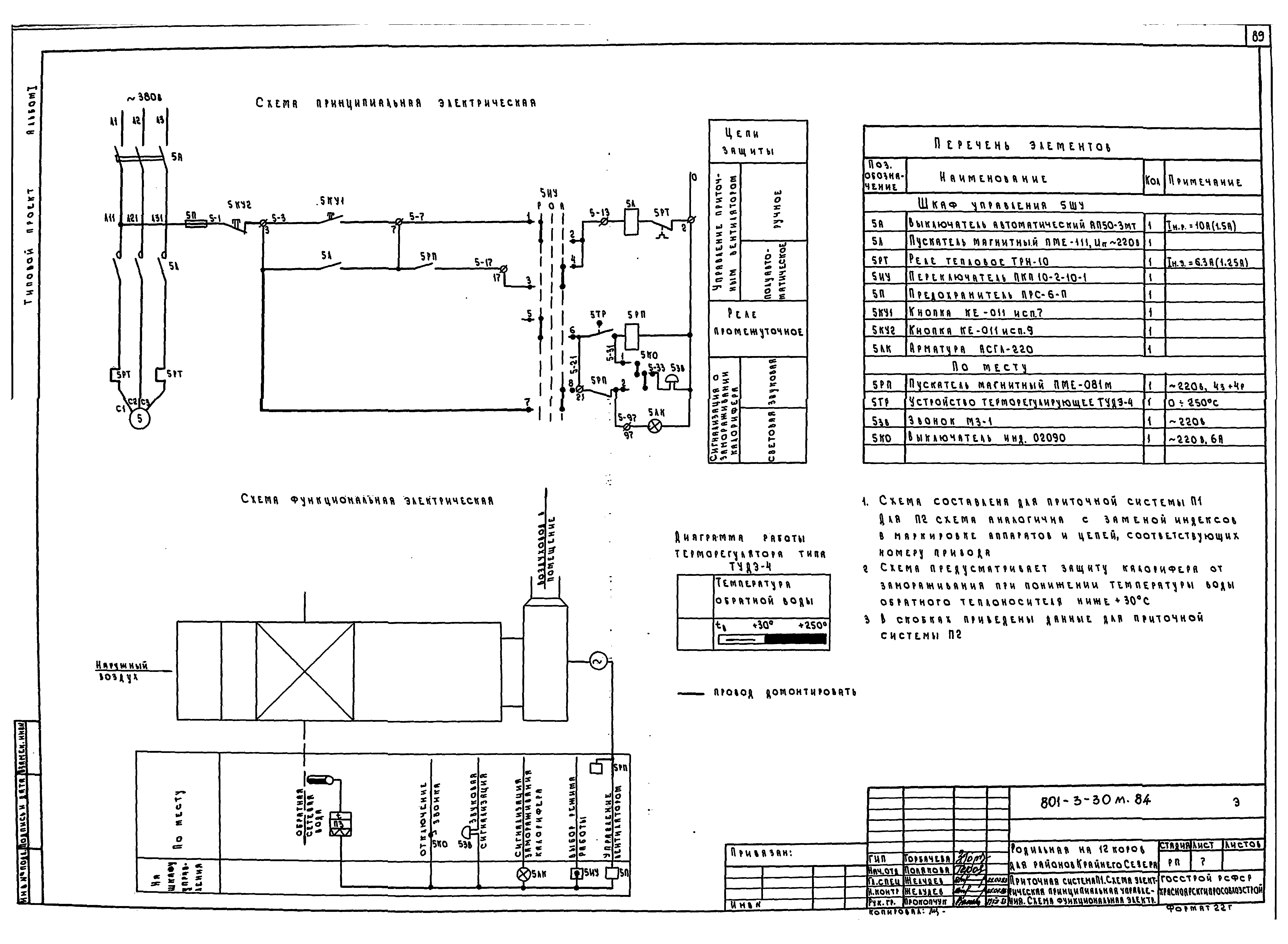
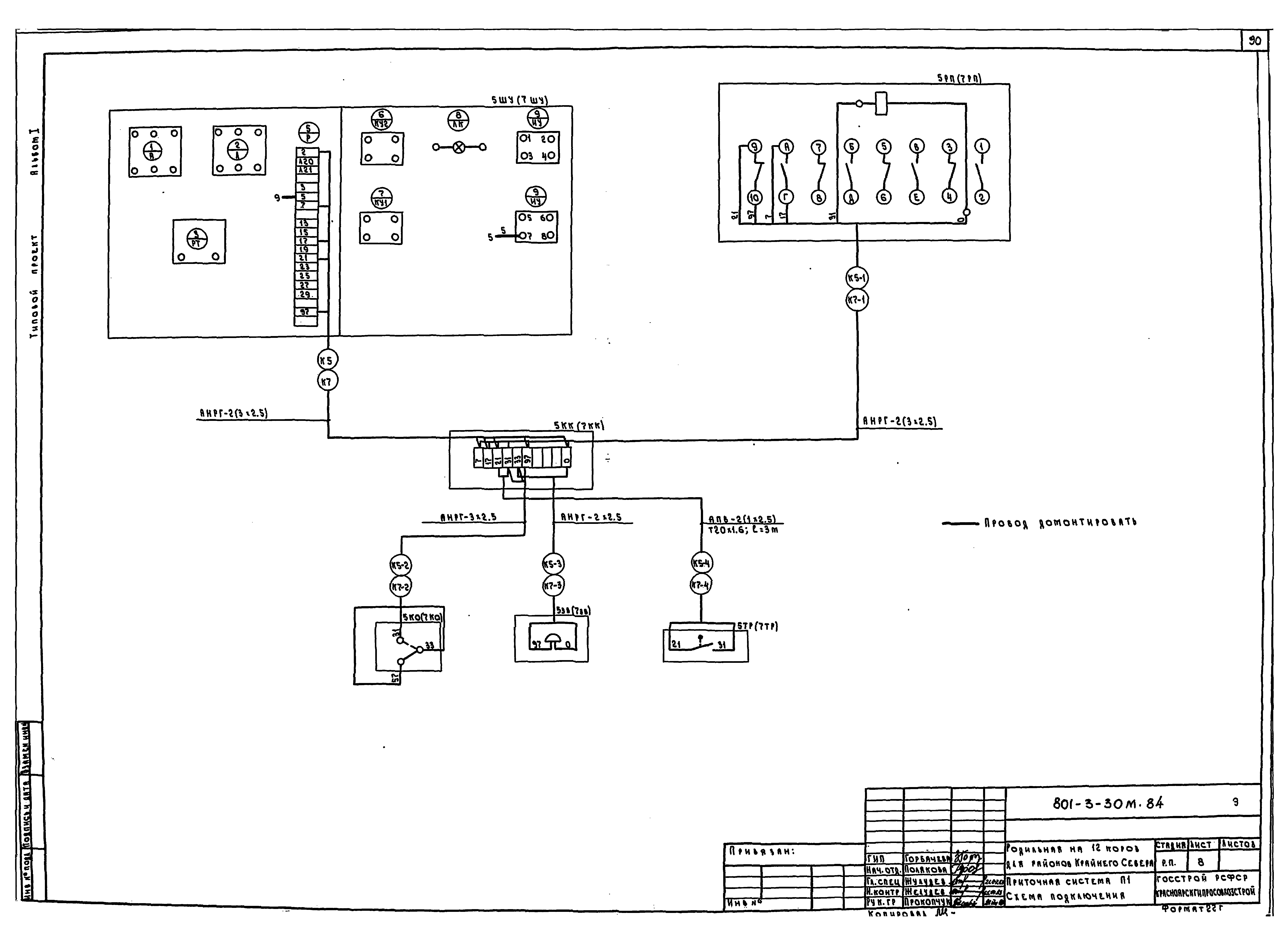
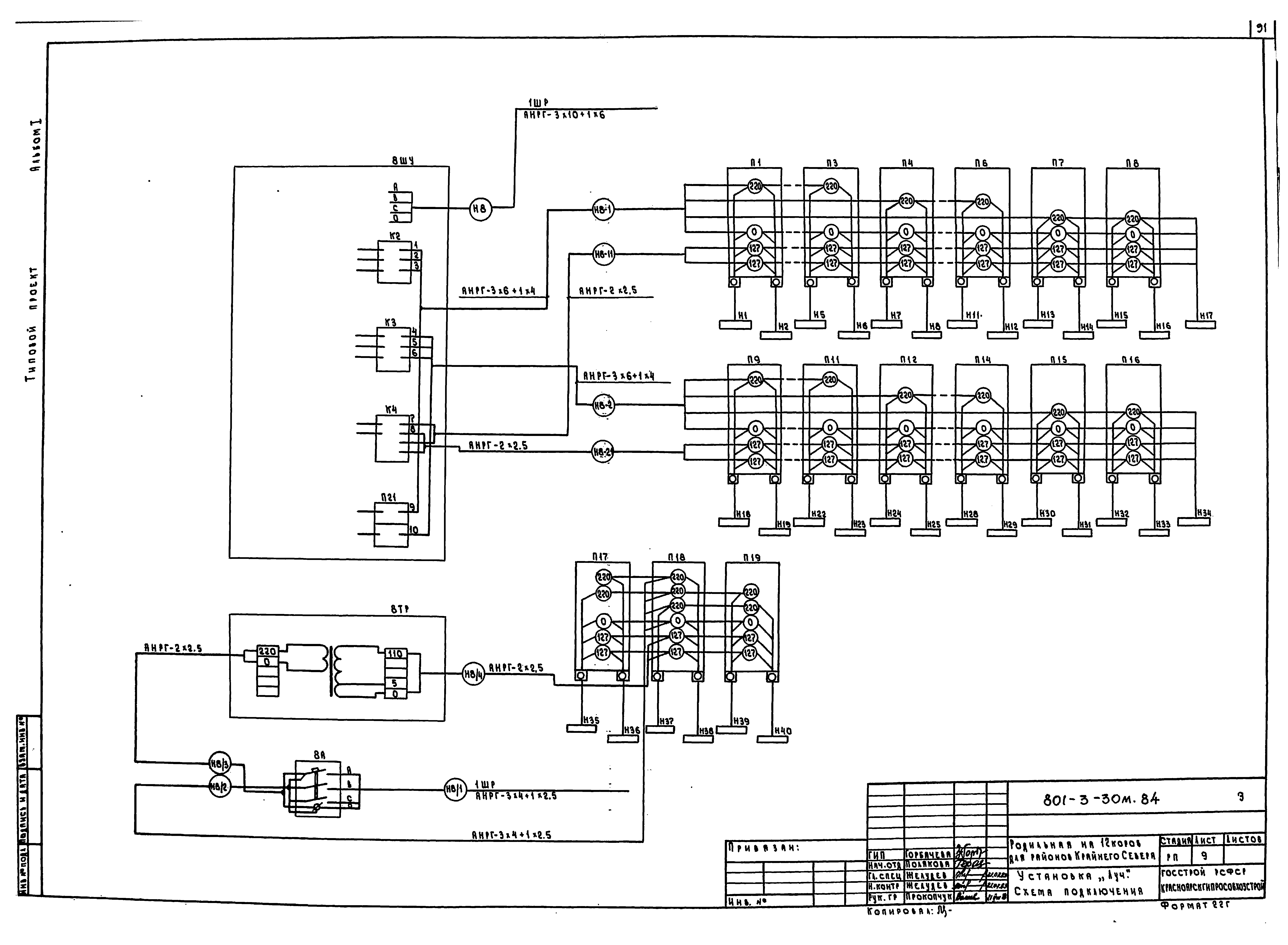
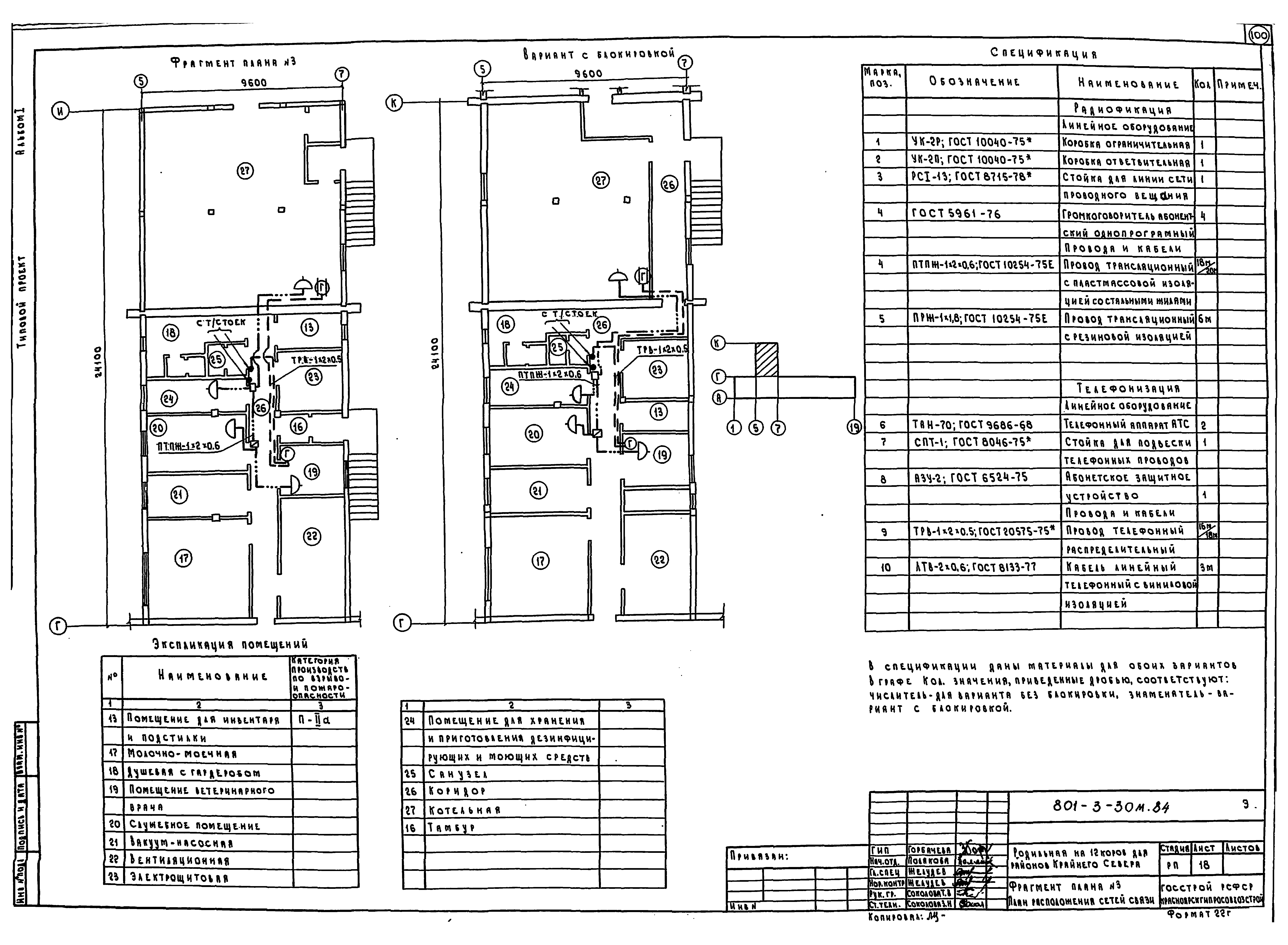
| Оглавление: | Содержание альбома Пояснительная записка Схема генплана Технологическая часть Общие данные План расстановки технологического оборудования Разрезы А-А, Б-Б, В-В, Г-Г. Узлы I, II Фрагмент плана. Схема разводки вакуумпроводов Фрагмент плана. Разрезы Д-Д, Е-Е, Ж-Ж, З-З (вариант блокировки с коровником) План расстановки облучателей "Луч" и "ЭО1-30М". Разрезы И-И, К-К Монтажная схема транспортера ТСН-3.0Б Разрезы Л-Л, М-М, Н-Н, П-П Спецификация технологического оборудования Архитектурно-строительная часть Общие данные Фасады в осях 1 - 19, 19 - 1, А - К, К - А Фасады в осях 1 - 19, 19 - 1, А - К, К - А (вариант блокировки) План на отм. 0.000 Фрагменты плана 1, 2 Фрагмент плана 3. План отверстий и фундаментов под оборудование Фрагмент плана 3. План отверстий и фундаментов под оборудование (вариант блокировки) Разрезы 1-1, 3-3, 7-7 Разрез 2-2 Разрез 4-4, 5-5 Разрез 6-6. Детали перегородок План свайного пола Маркировочная схема прогонов и обвязки цокольного перекрытия Сечения А-А, Б-Б, В-В, Г-Г. Осушающий продух. Деталь обшивки стен Маркировочная схема балок цокольного перекрытия молочного блока Маркировочная схема балок цокольного перекрытия План полов. Экспликация полов Маркировочная схема балок и щитов чердачного перекрытия Маркировочная схема стропил Разрезы по стропилам 1-1, 2-2, 3-3 Узлы разрезов 1 - 5 Фрагменты разреза 1, 2 Фрагмент разреза 3 Узлы разреза 6, 7. Элемент продуха. Соединение сваи с колонной План кровли. Фронтон по оси 1 (19) Брандмауэрная стена. План ростверка под брандмауэрную стену Узлы плана 1 - 9. Деталь крепления стойки ворот Узлы нижней обвязки 1 - 3 Деталь пола родильной Узлы плана 10, 11 Узел плана 12 План устройства полов в денниках и профилакториях Индивидуальная клетка для телят. Фрагмент 1 групповой клетки Клетки группового содержания телят Рама ворот ВР-7. Узлы и сечения Щиты чердачного перекрытия СЩ-1 - СЩ-4. щиты каналов навозоудаления Щ-1 - Щ-3 Ограждение боксов План крыльца. Разрезы 1-1, 2-2 Слуховое окно. Деталь вентиляционной шахты План выгульного двора. Ворота выгульного двора. Звено жердевого ограждения Металлические изделия МИ-1 - МИ-9, А-1, А-2 Сводная спецификация Чертежи основного комплекта марки ОВ Общие данные План отопления на отм. 0.000 План систем вентиляции на отм. 0.000 Схемы систем отопления №1 и №2 Схема систем П1, П2, ВЕ1 - ВЕ8 Схема системы теплоснабжения установок П1, П2. Узел управления Установки систем П1, П2 Чертежи основного комплекта марки ТМ Общие данные Компоновка оборудования. Трубопроводы. План. Разрезы Тепловая схема. Схема топливоснабжения. Схема обвязки расширительного бака Чертежи основного комплекта марки ВК Общие данные План систем водопровода и канализации Схемы системы водопровода и канализации Бак для воды емкостью 0,5 куб. м Электротехническая часть Общие данные Ведомость электрооборудования, кабельных изделий и материалов Уточненная ведомость изделий и материалов. Ведомость изделий МЭЗ Питающая и распределительная сеть 380/220 В. Схема принципиальная однолинейная Приточная система П1. Схема электрическая принципиальная управления. Схема функциональная электрическая Приточная система П1. Схема подключения Установка "Луч". Схема подключения Кабельный журнал Раскладка кабелей и проводов. План Спецификация Электрооблучение. План Электроосвещение. План Электроосвещение вспомогательных помещений. Фрагменты планов Электроосвещение. Связь Фрагмент плана №3. План расположения сетей связи |
| Разработан: | Красноярскгипросовхозстрой |
| Утверждён: | 16.06.1983 Главсельстройпроект Минсельхоза СССР (Glavselstroyproject, USSR Minselkhoz 61) |



































































































