Скачать Серия 3.407.1-171 Выпуск 1. Перегородки. Рабочие чертежиДата актуализации: 01.01.2021
|
| Обозначение: | Серия 3.407.1-171 |
| Обозначение англ: | Series 3.407.1-171 |
| Статус: | не определен законодательством |
| Название рус.: | Выпуск 1. Перегородки. Рабочие чертежи |
| Дата добавления в базу: | 01.09.2013 |
| Дата актуализации: | 01.01.2021 |
| Дата введения: | 27.04.1991 |
| Дата окончания срока действия: | 30.06.2003 |
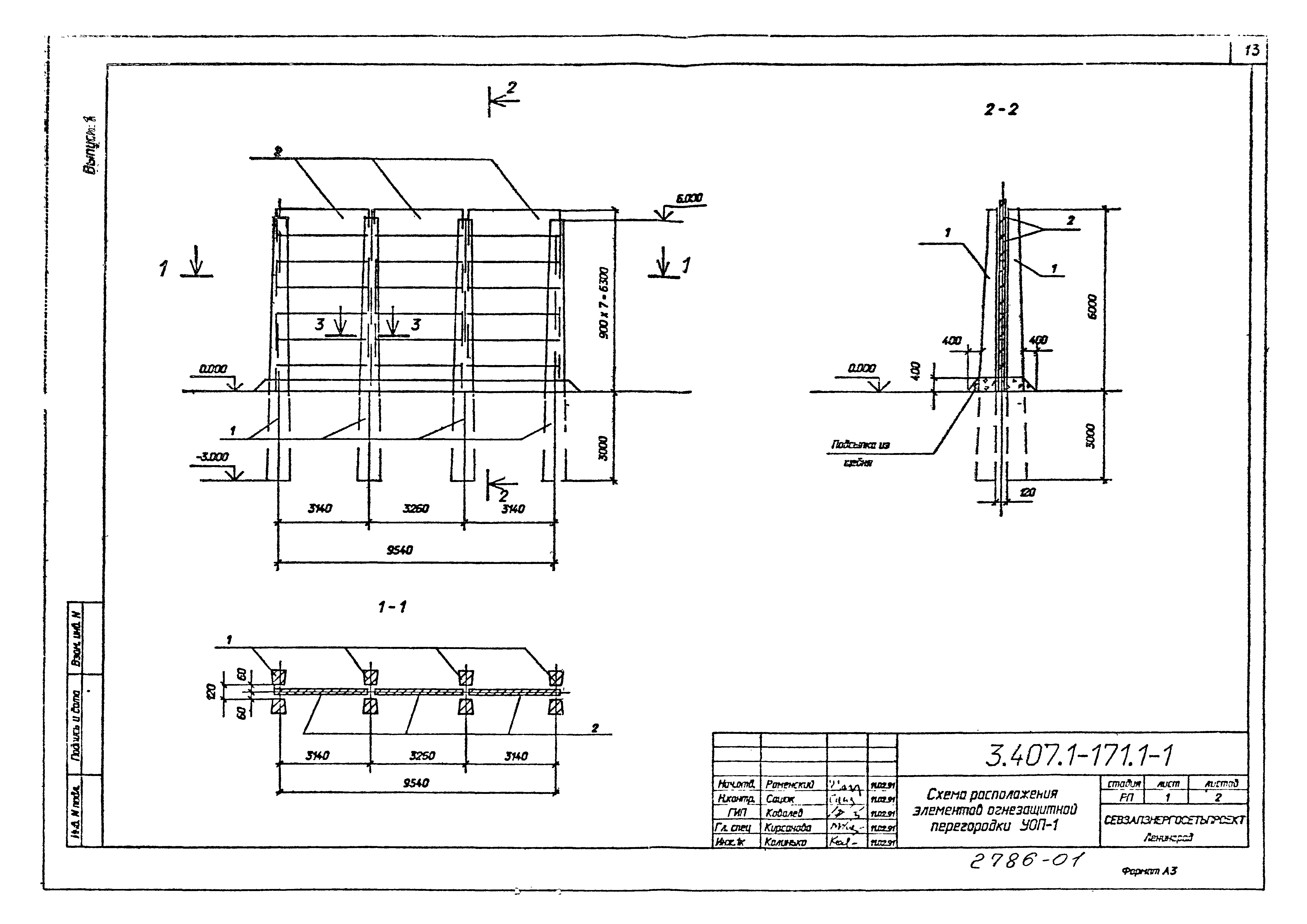
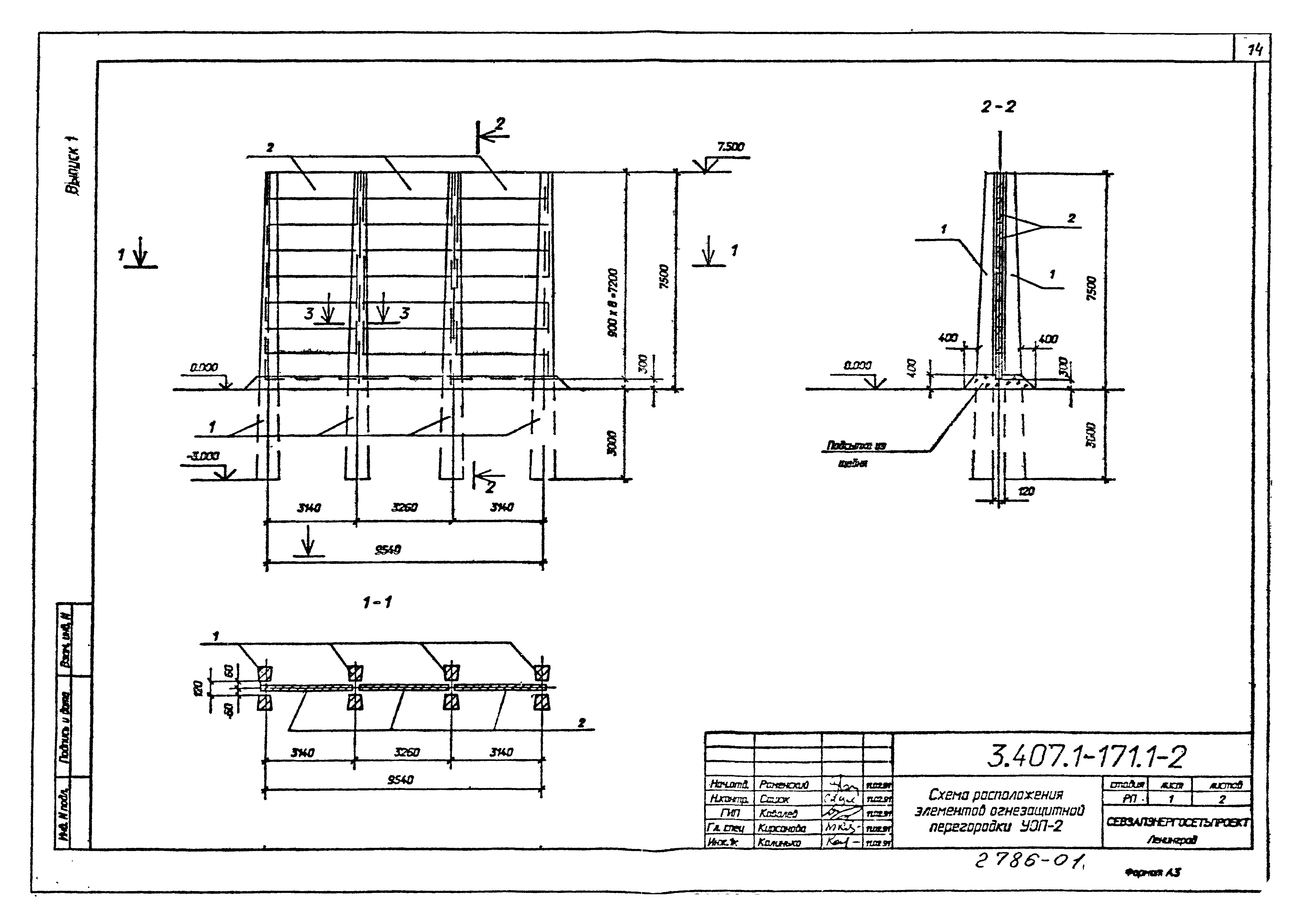
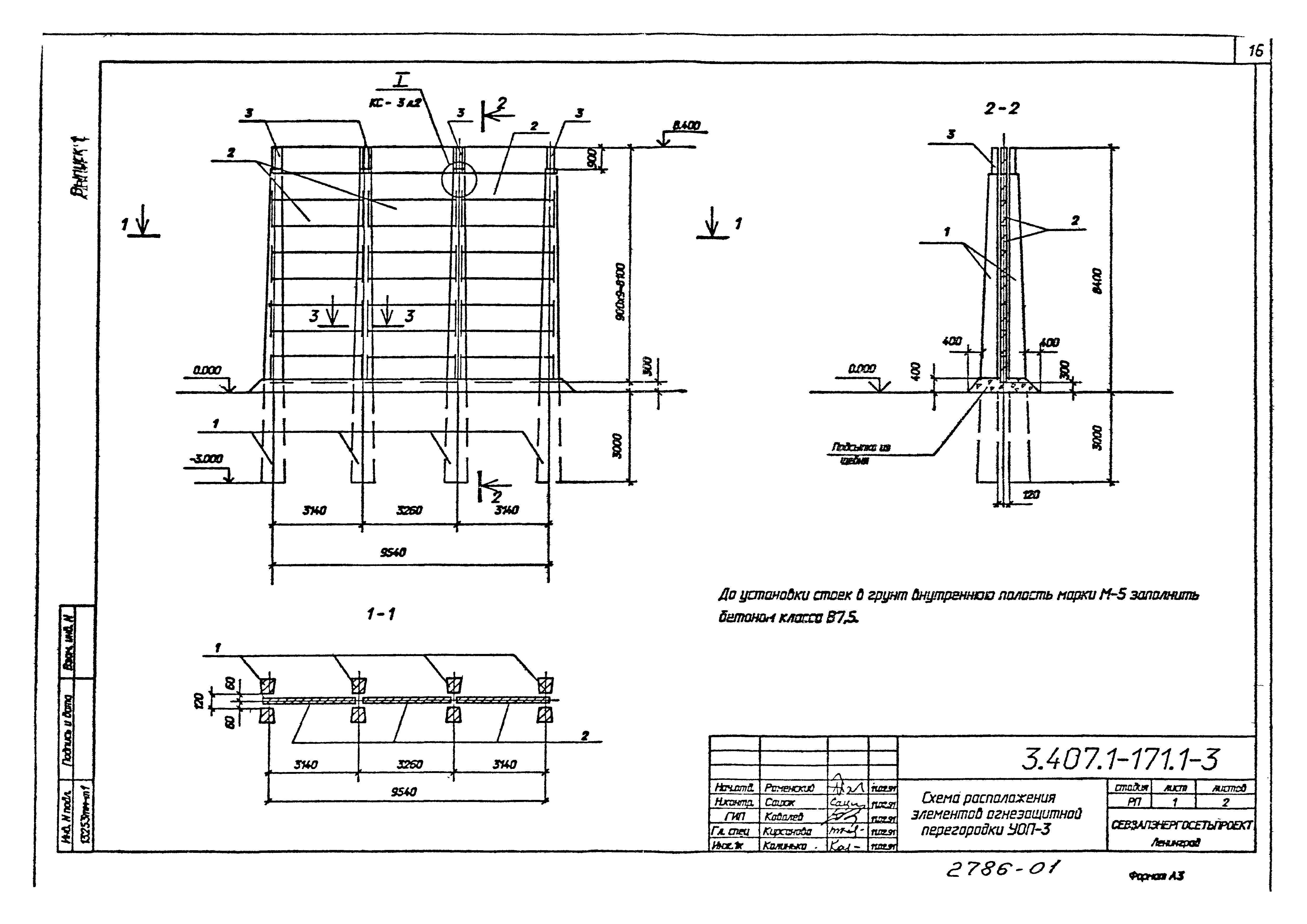
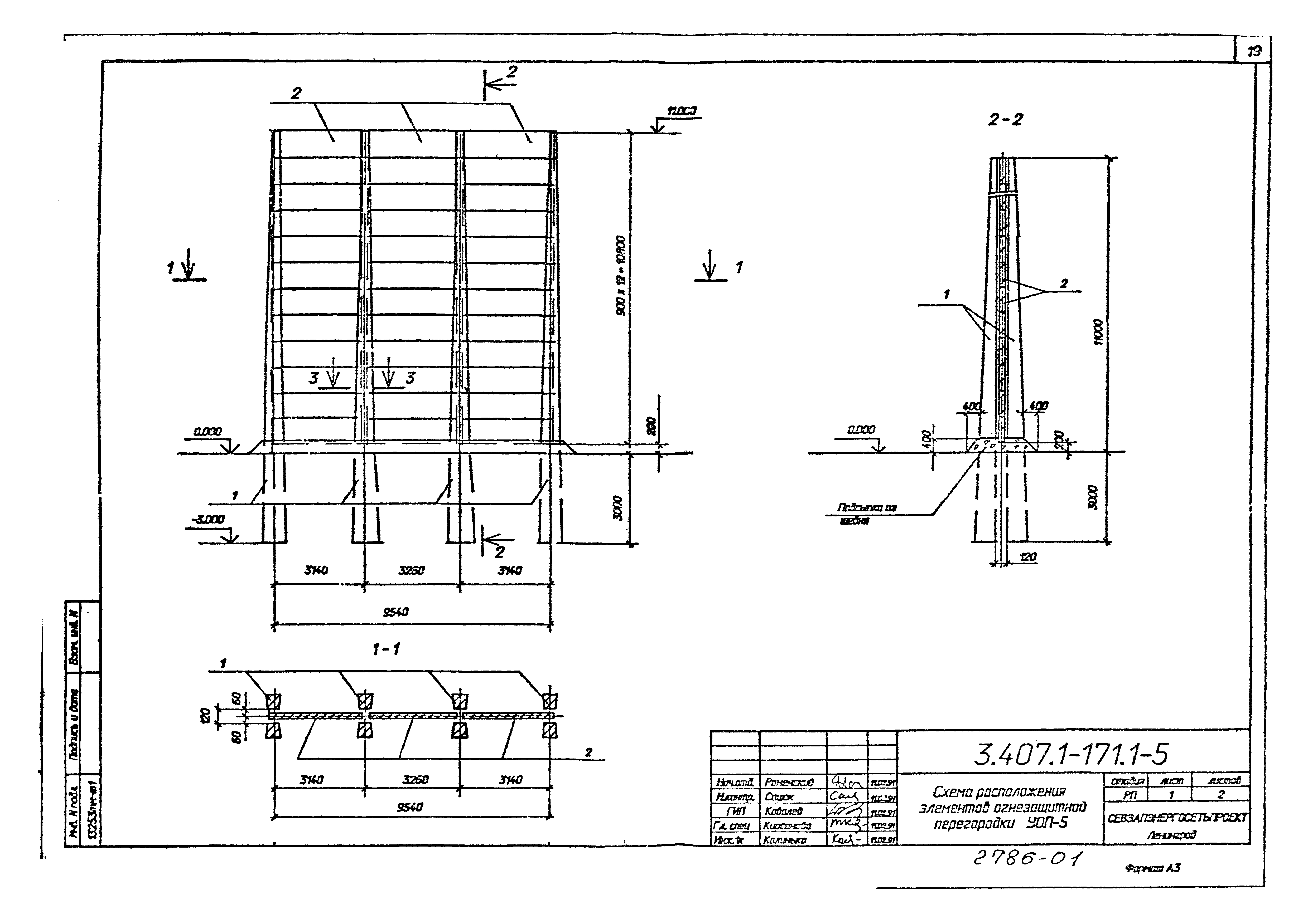
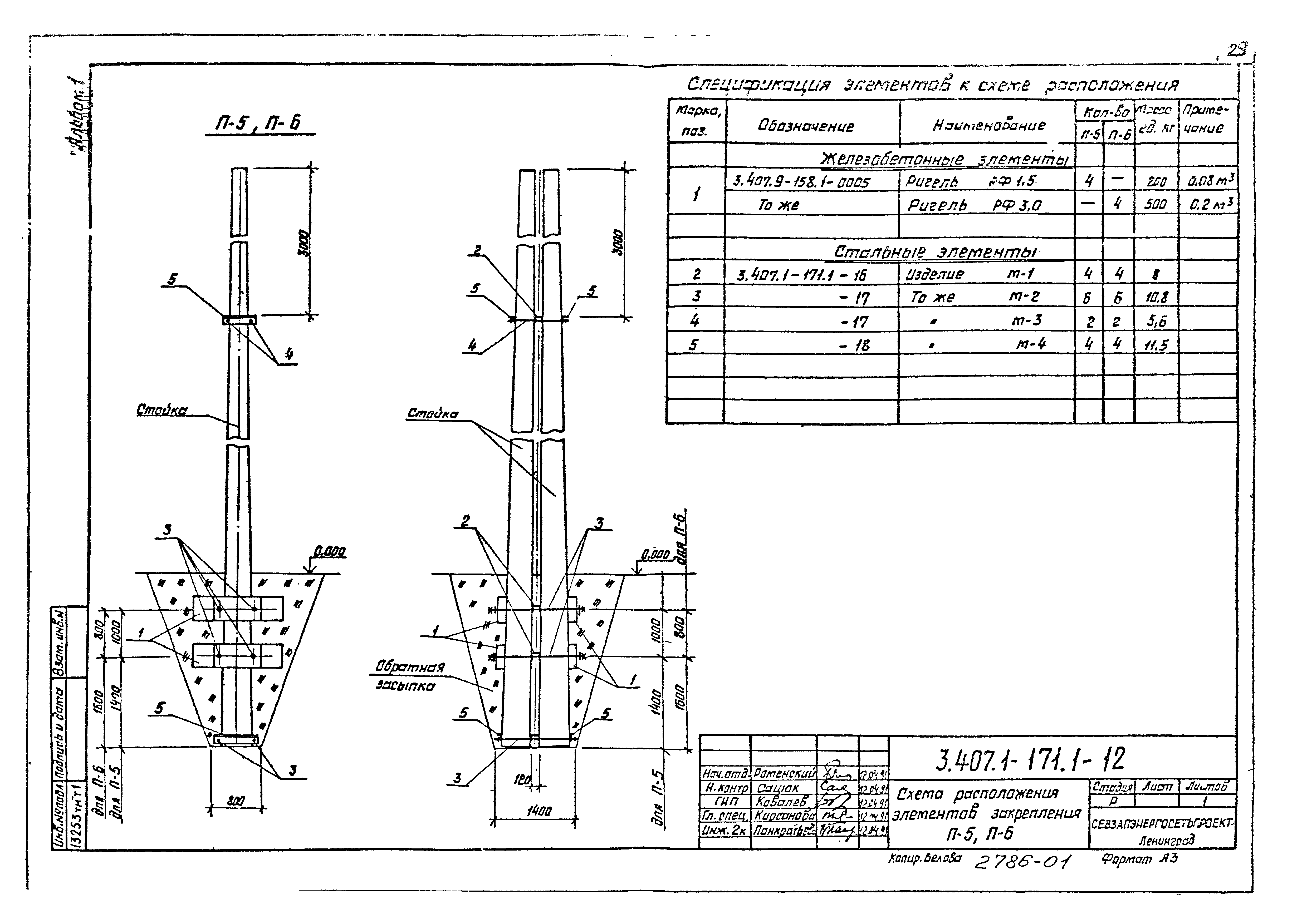
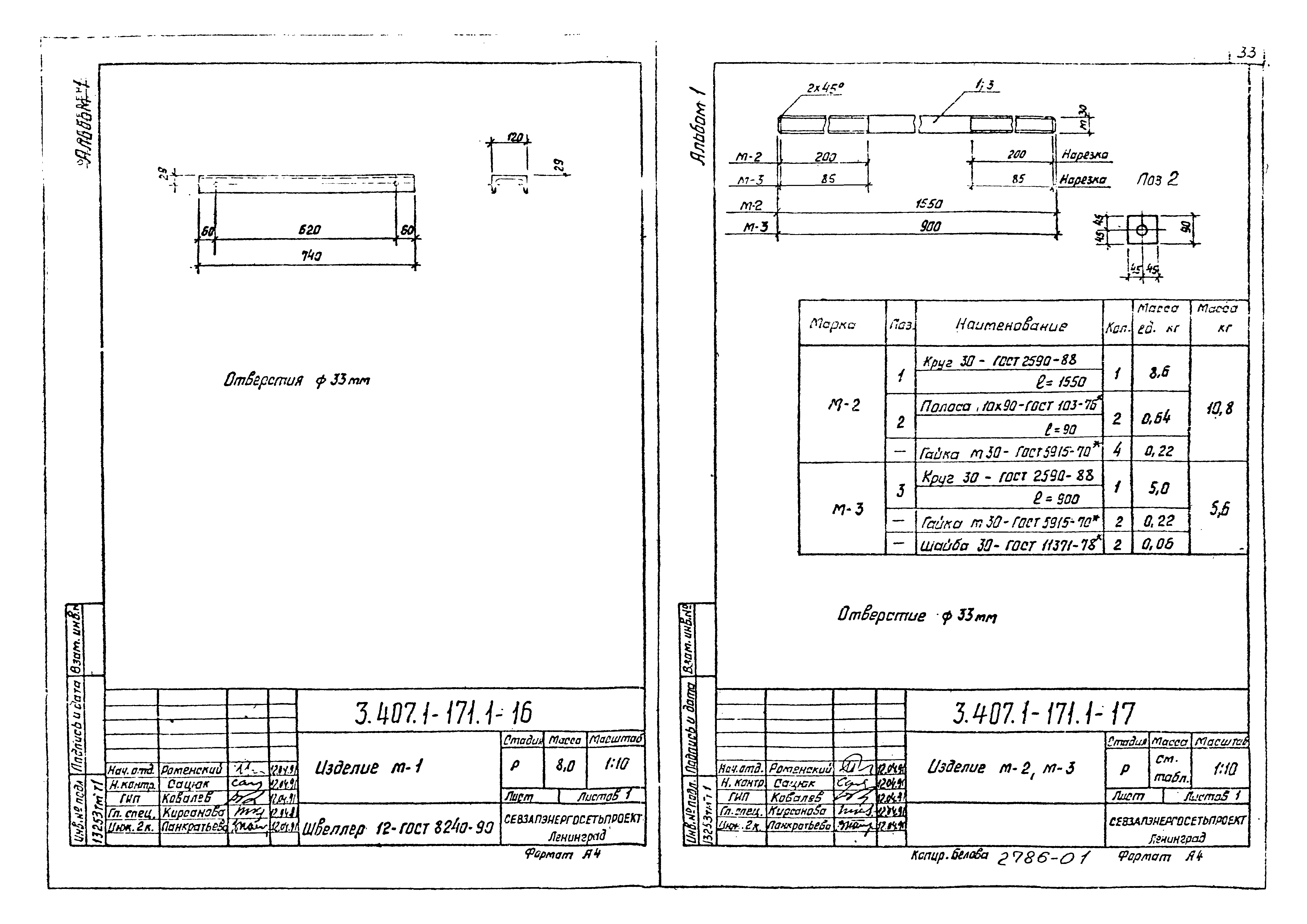
| Оглавление: | 3.407.1-171.1-ПЗ Пояснительная записка 3.407.1-171.1-1 Схема расположения элементов огнезащитной перегородки УОП-1 3.407.1-171.1-2 Схема расположения элементов огнезащитной перегородки УОП-2 3.407.1-171.1-3 Схема расположения элементов огнезащитной перегородки УОП-3 3.407.1-171.1-4 Схема расположения элементов огнезащитной перегородки УОП-4 3.407.1-171.1-5 Схема расположения элементов огнезащитной перегородки УОП-5 3.407.1-171.1-6 Схема расположения элементов огнезащитной перегородки УОП-6 3.407.1-171.1-7 Схема расположения элементов огнезащитной перегородки УОП-7 3.407.1-171.1-8 Схема расположения элементов огнезащитной перегородки УОП-8 3.407.1-171.1-9 Схема расположения элементов огнезащитной перегородки УОП-9 3.407.1-171.1-10 Схема расположения элементов закрепления П-1, П-2 3.407.1-171.1-11 Схема расположения элементов закрепления П-3, П-4 3.407.1-171.1-12 Схема расположения элементов закрепления П-5, П-6 3.407.1-171.1-13 Схема расположения элементов закрепления П-7, П-8 3.407.1-171.1-14 Схема расположения элементов закрепления П-9 3.407.1-171.1-15 Схема расположения элементов закрепления П-10 3.407.1-171.1-16 Изделие М-1 3.407.1-171.1-17 Изделие М-2, М-3 3.407.1-171.1-18 Изделие М-4 3.407.1-171.1-19 Изделие М-5 |
| Разработан: | Севзапэнергосетьпроект |
| Утверждён: | 26.04.1991 Минэнерго СССР (USSR Minenergo 9) |
| Издан: | Севзапэнергосетьпроект (1991 г. ) |
| Заменяет собой: |


































