Скачать Типовой проект 902-2-453.88 Альбом 2. Технология производства. Архитектурные решения. Конструкции железобетонные. Конструкции металлические. Отопление и вентиляция. Внутренний водопровод и канализация. Силовое электрооборудование. Электрическое освещение. Автоматизация. Связь и сигнализация. Организация строительстваДата актуализации: 01.01.2021
|
| Обозначение: | Типовой проект 902-2-453.88 |
| Обозначение англ: | 902-2-453.88 |
| Статус: | не определен законодательством |
| Название рус.: | Альбом 2. Технология производства. Архитектурные решения. Конструкции железобетонные. Конструкции металлические. Отопление и вентиляция. Внутренний водопровод и канализация. Силовое электрооборудование. Электрическое освещение. Автоматизация. Связь и сигнализация. Организация строительства |
| Дата добавления в базу: | 01.09.2013 |
| Дата актуализации: | 01.01.2021 |
| Дата введения: | 15.06.1988 |
| Дата окончания срока действия: | 30.06.2003 |
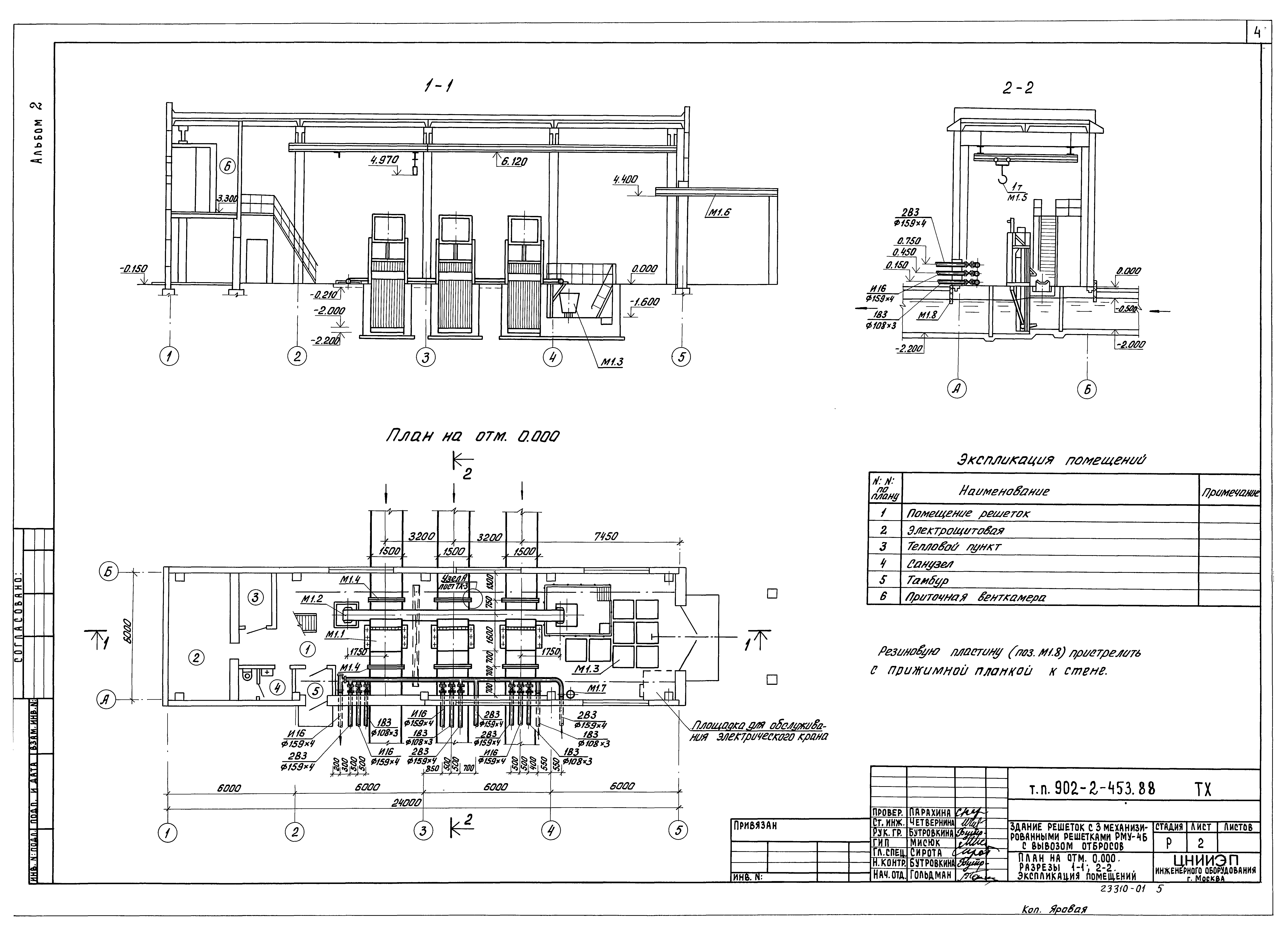
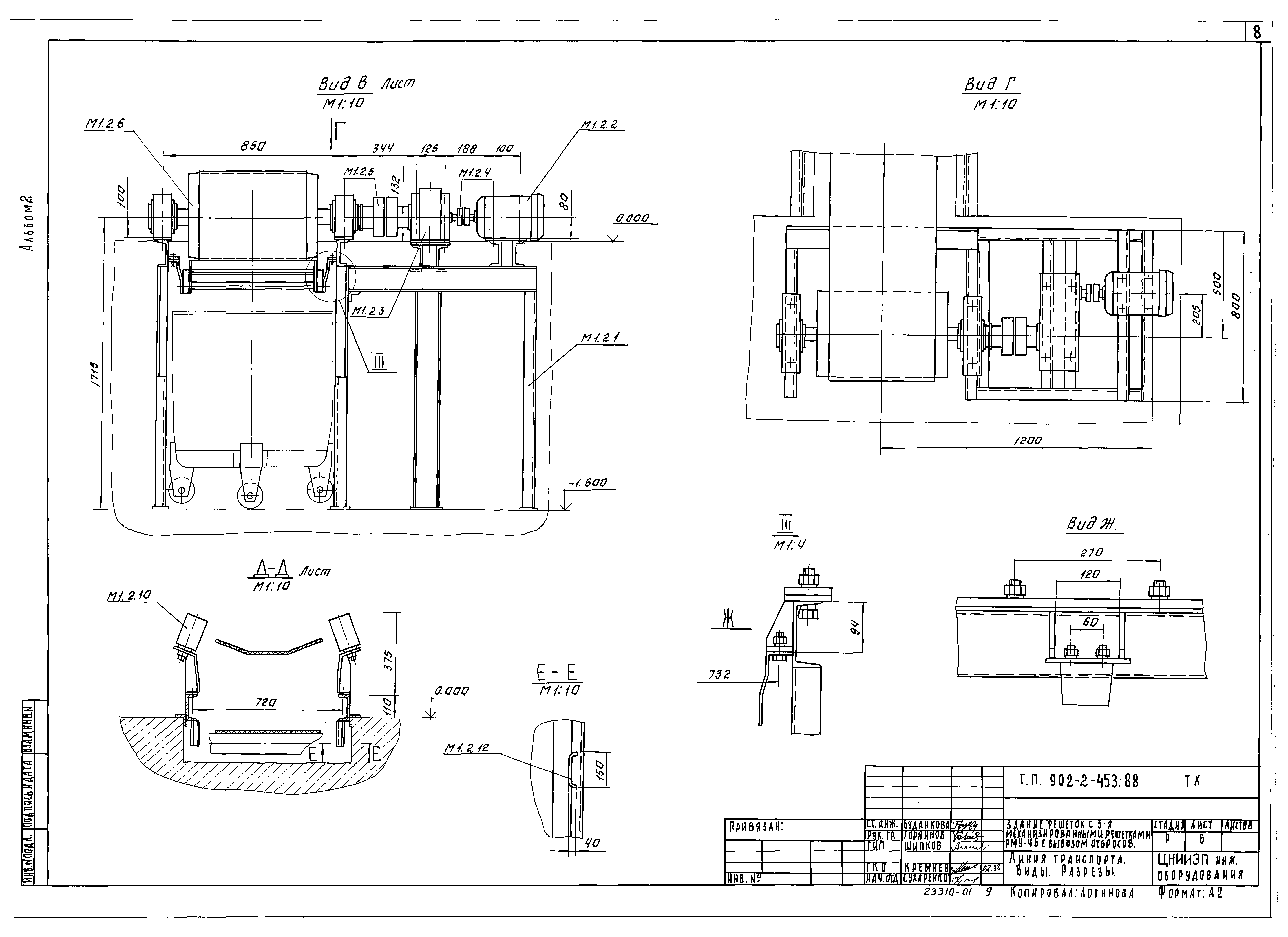
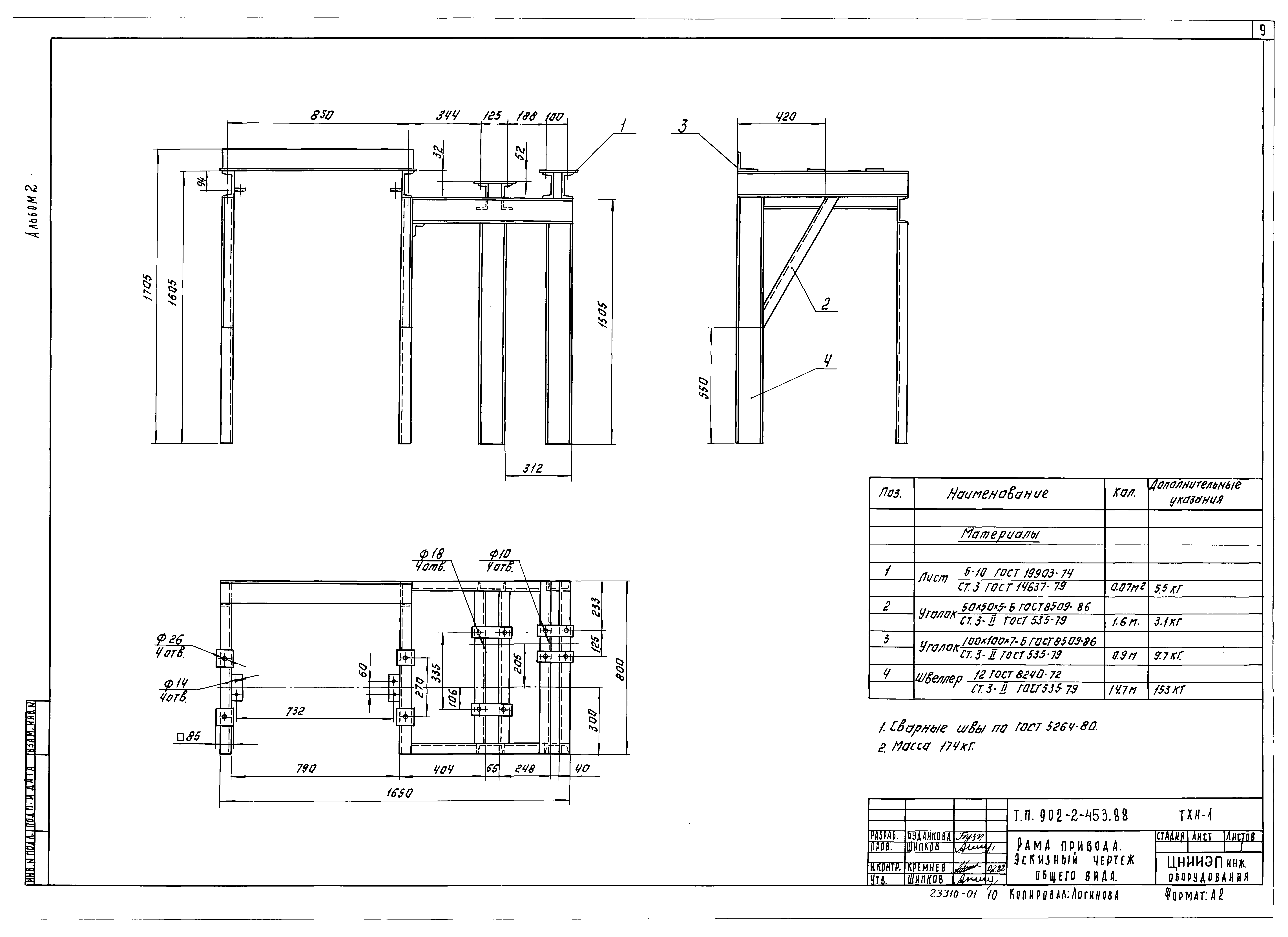
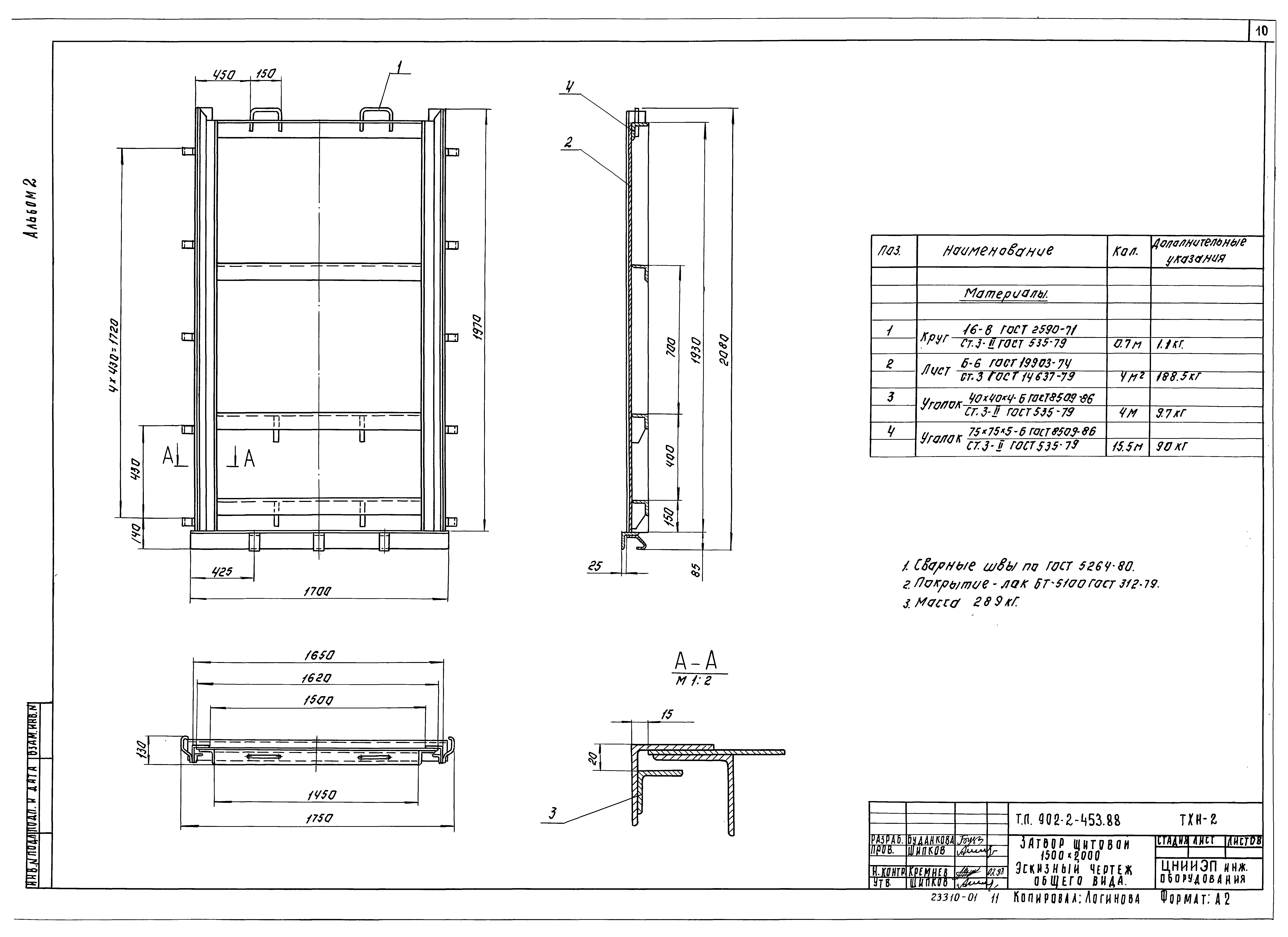
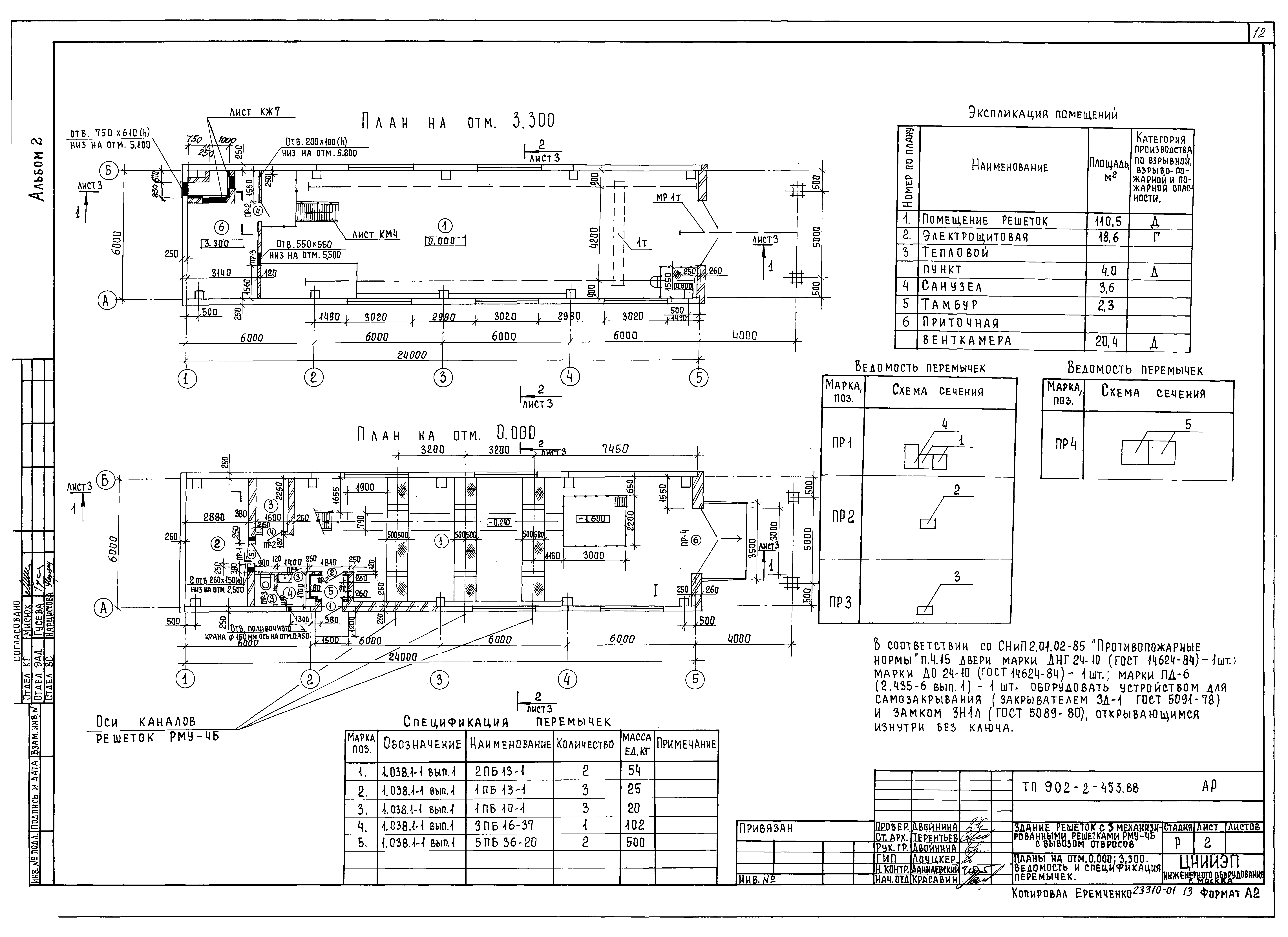
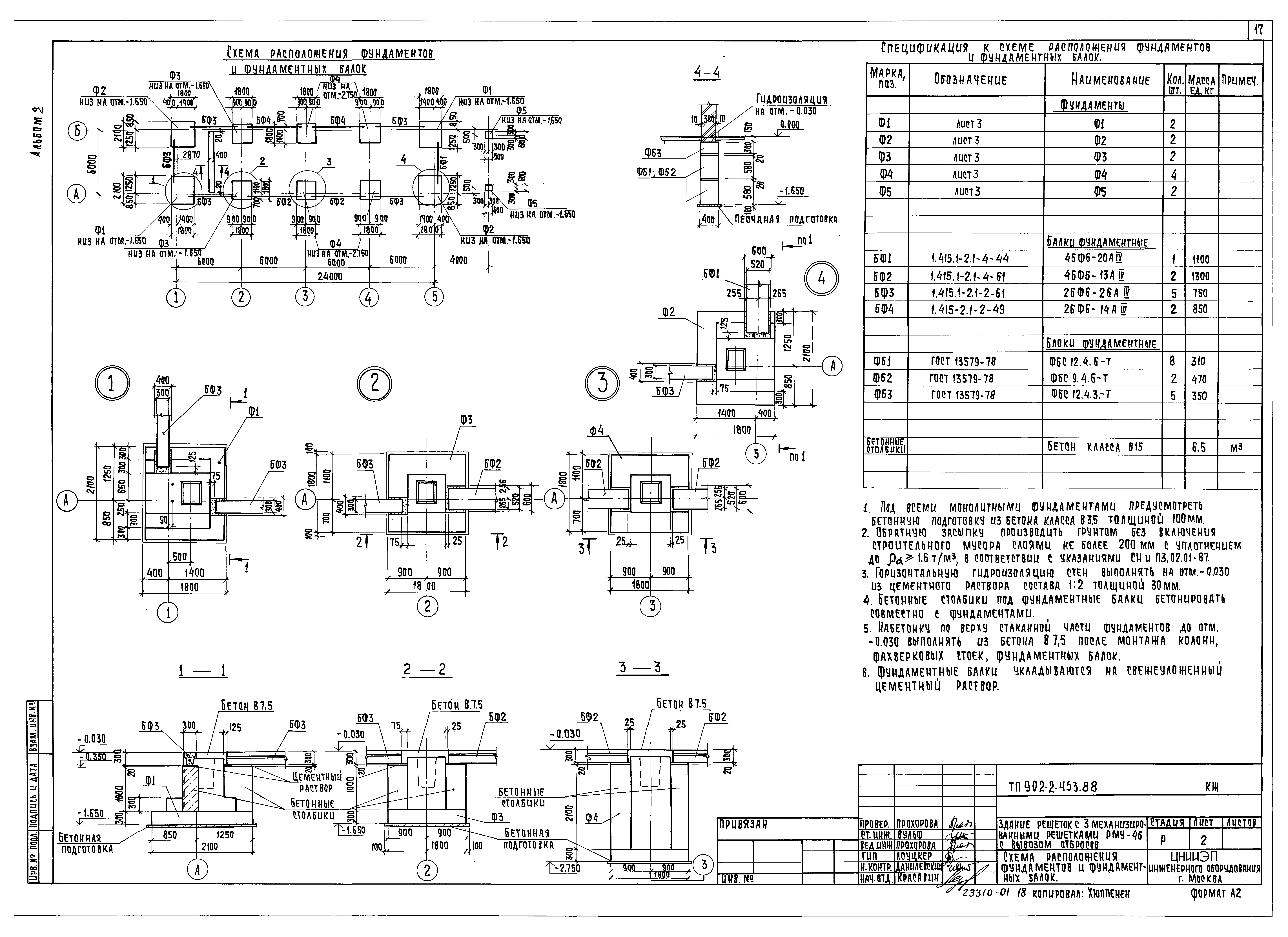
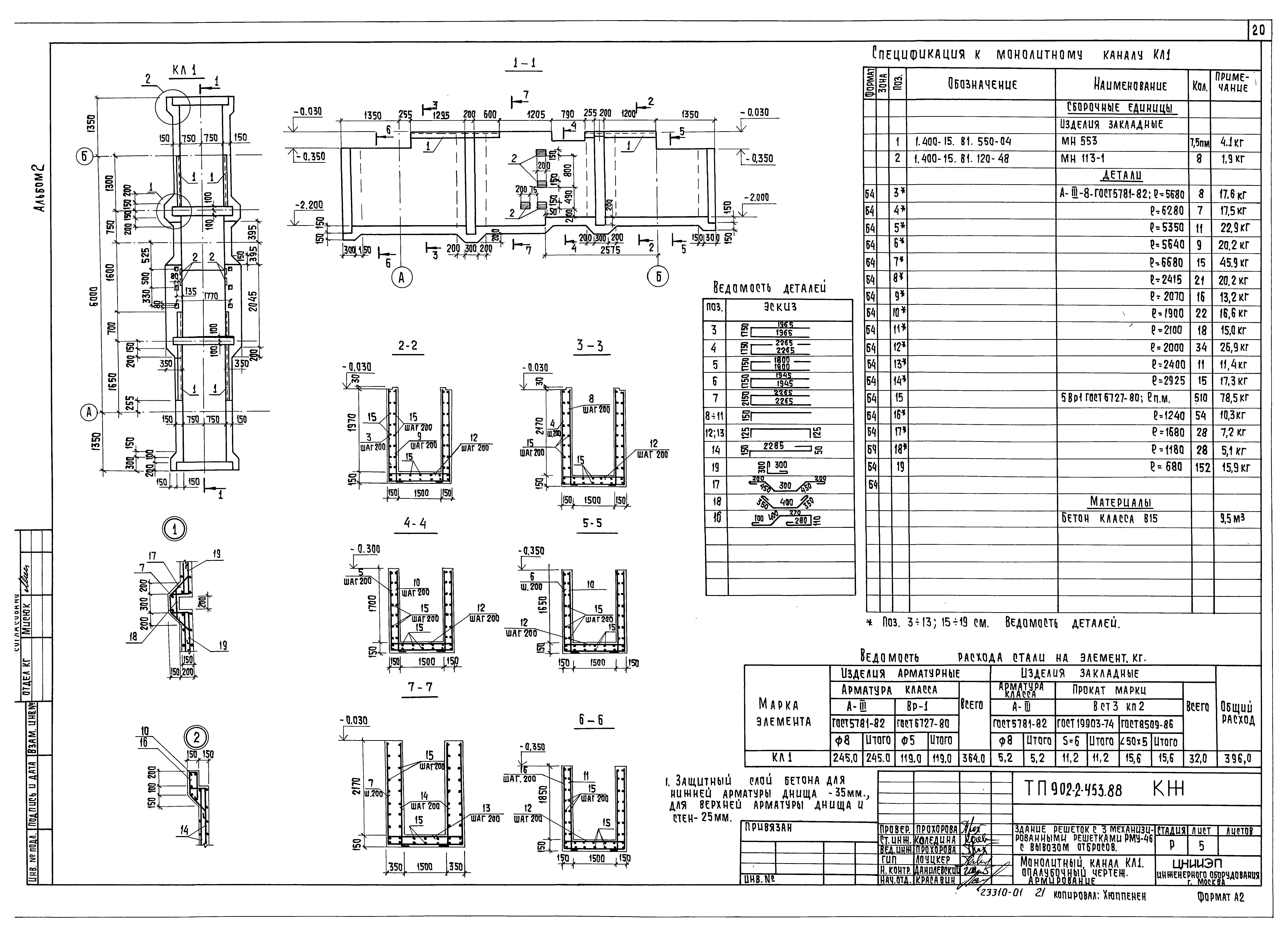
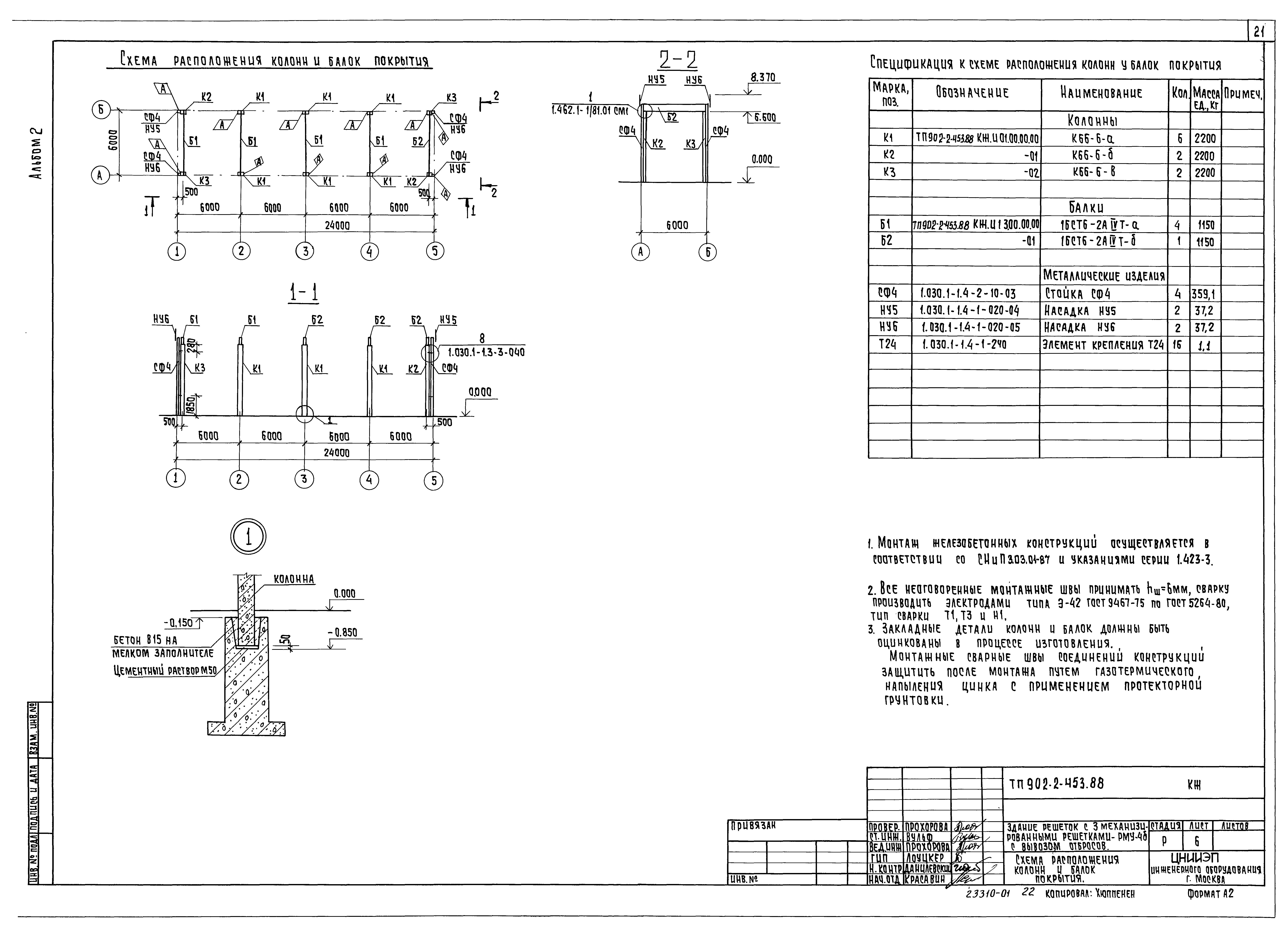
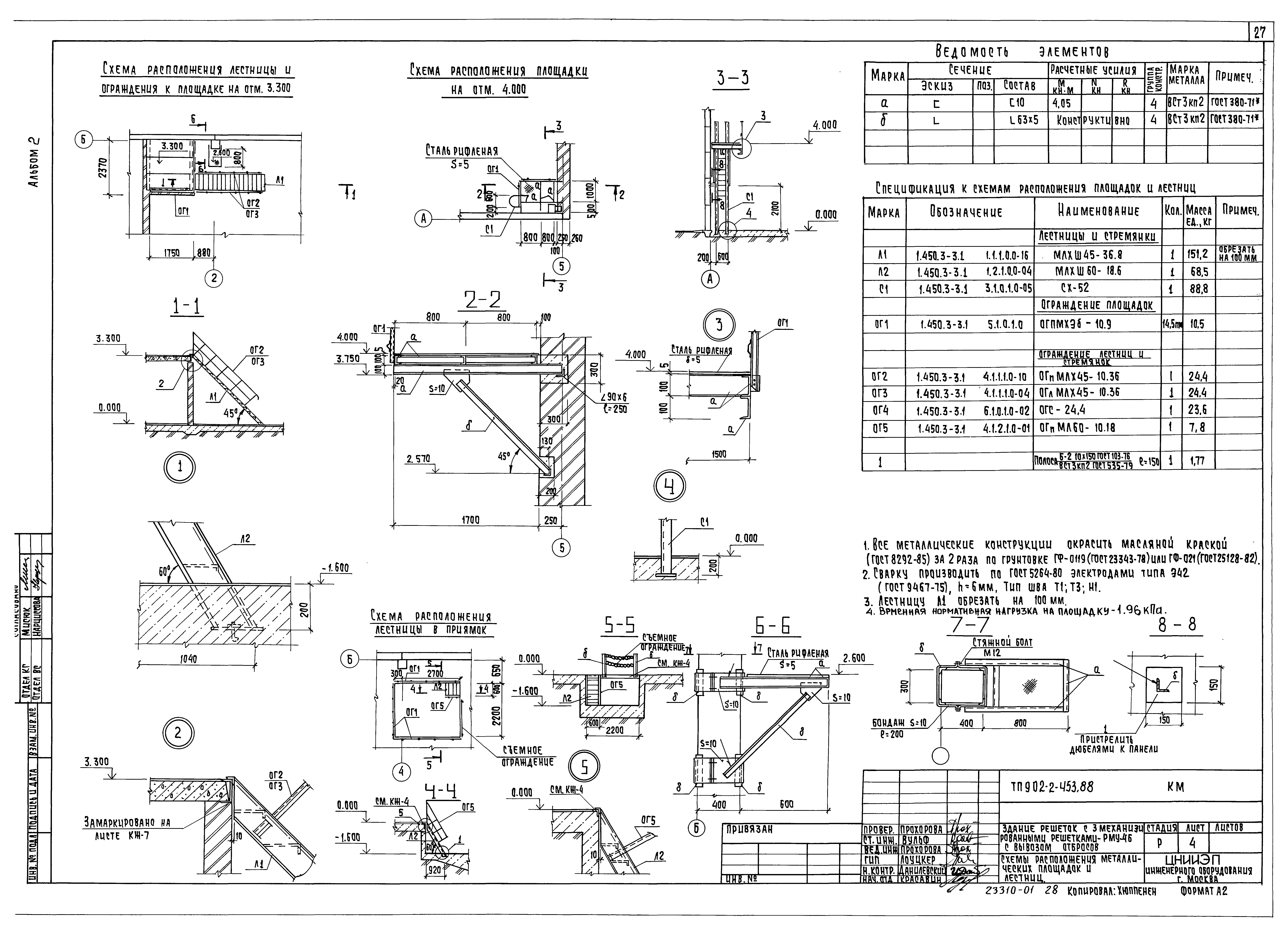
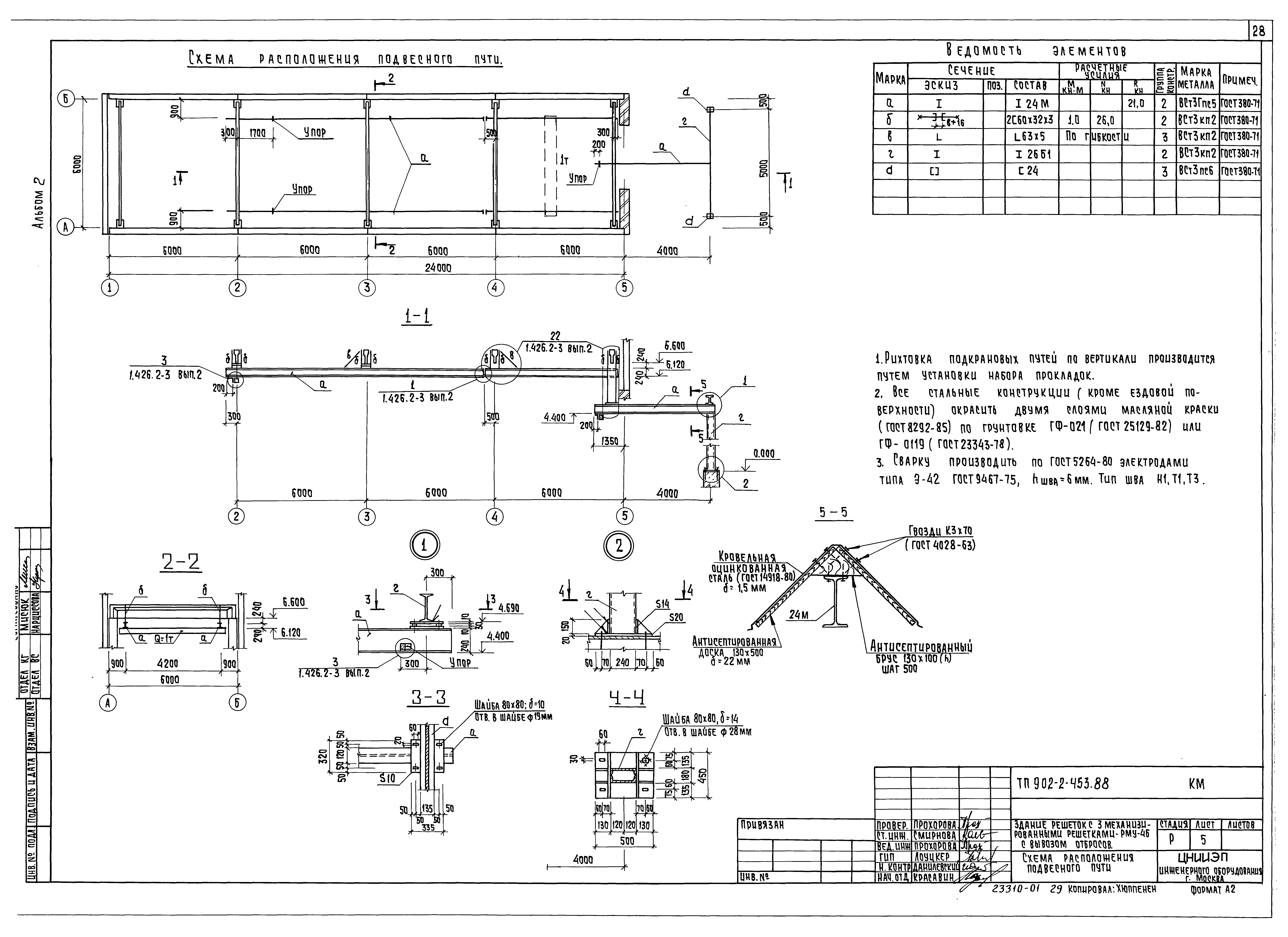
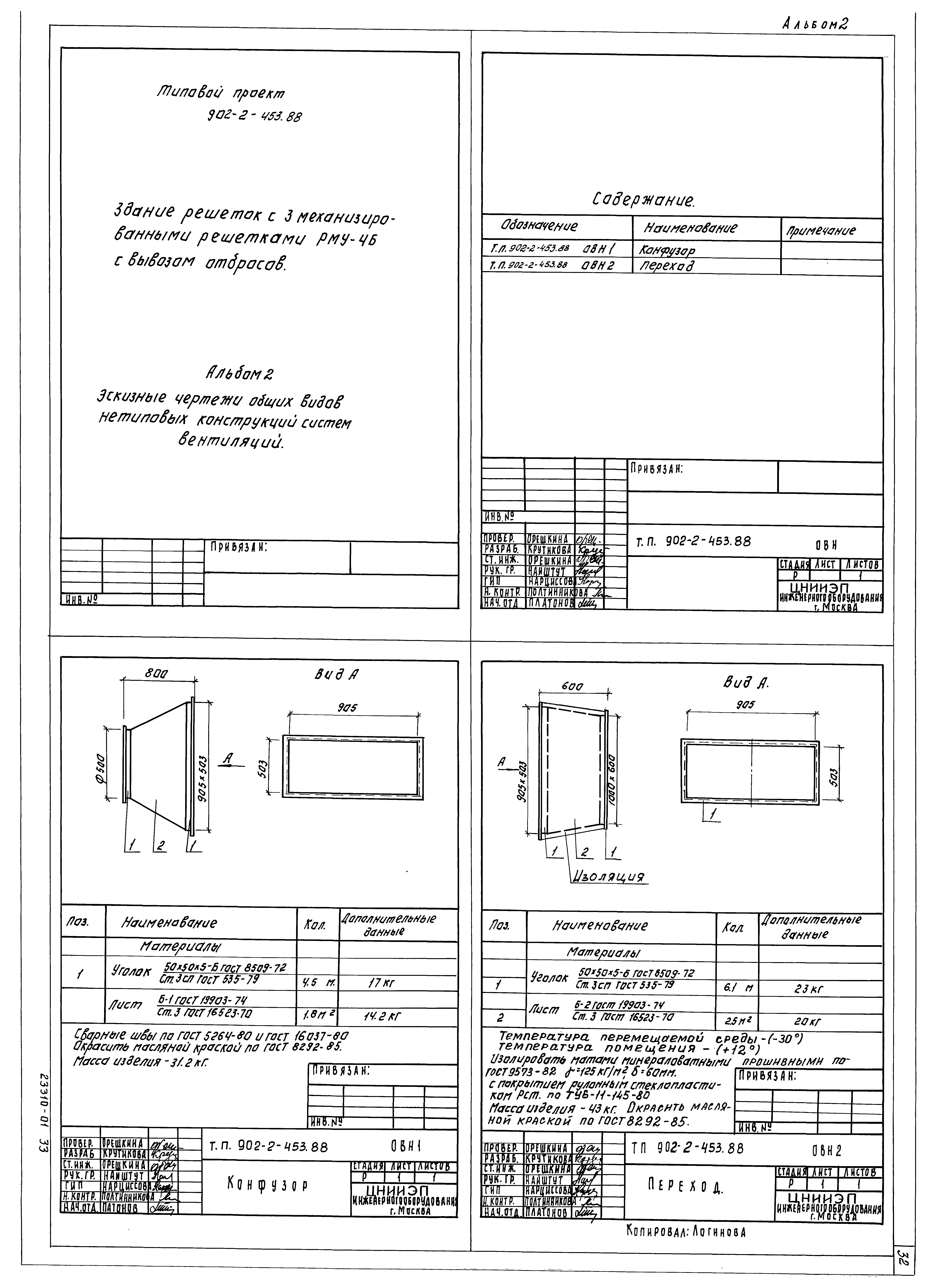
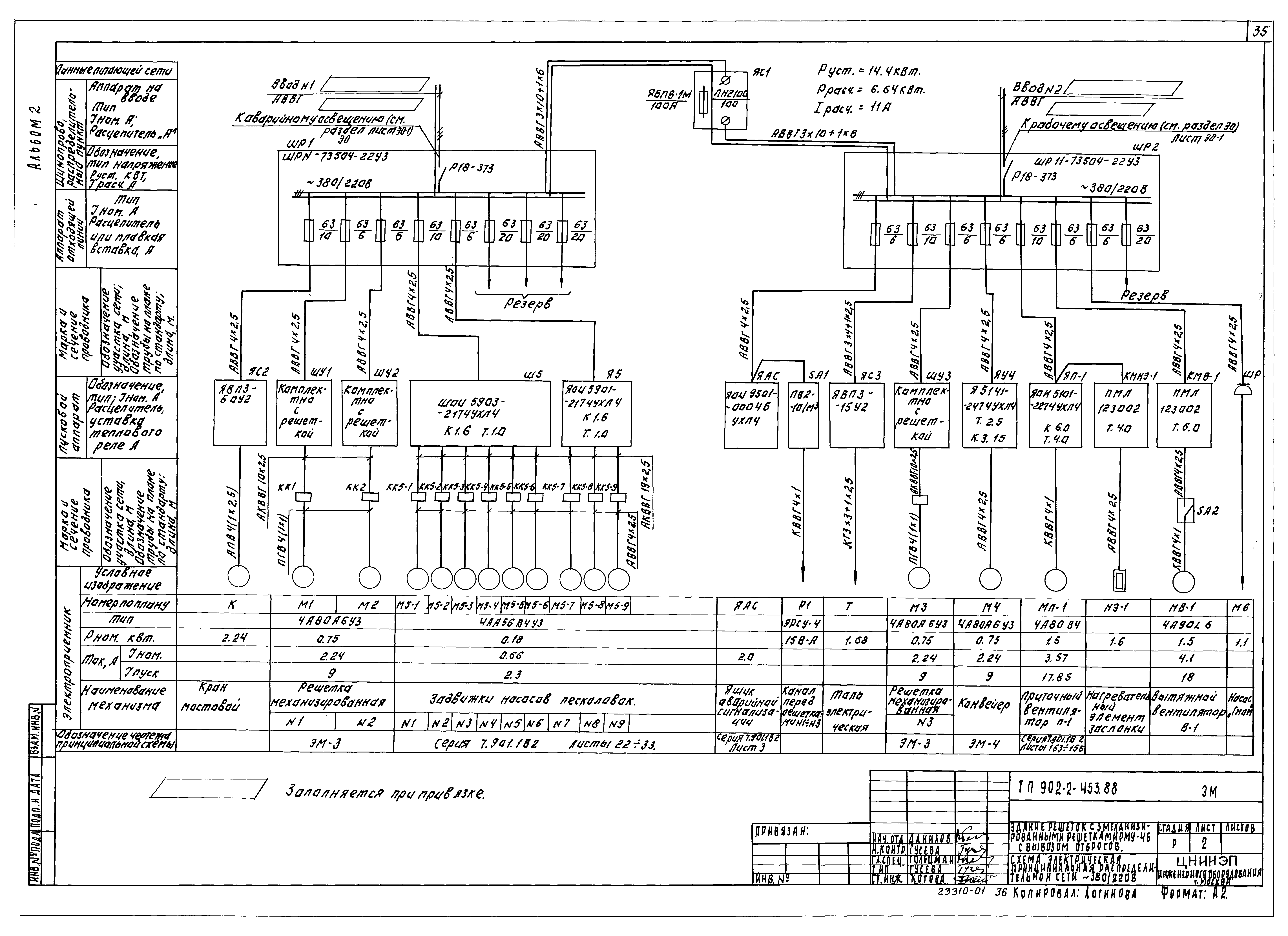
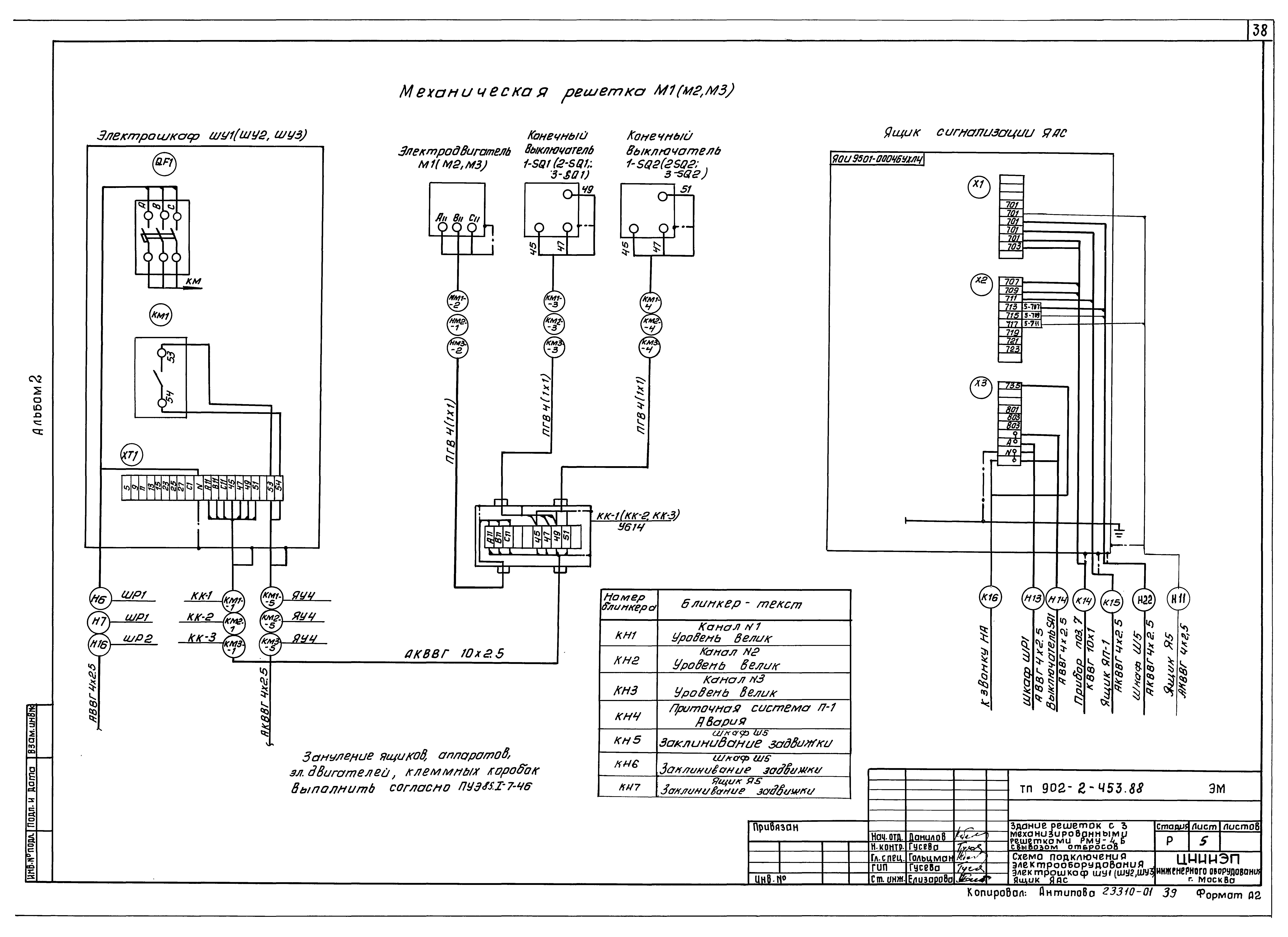
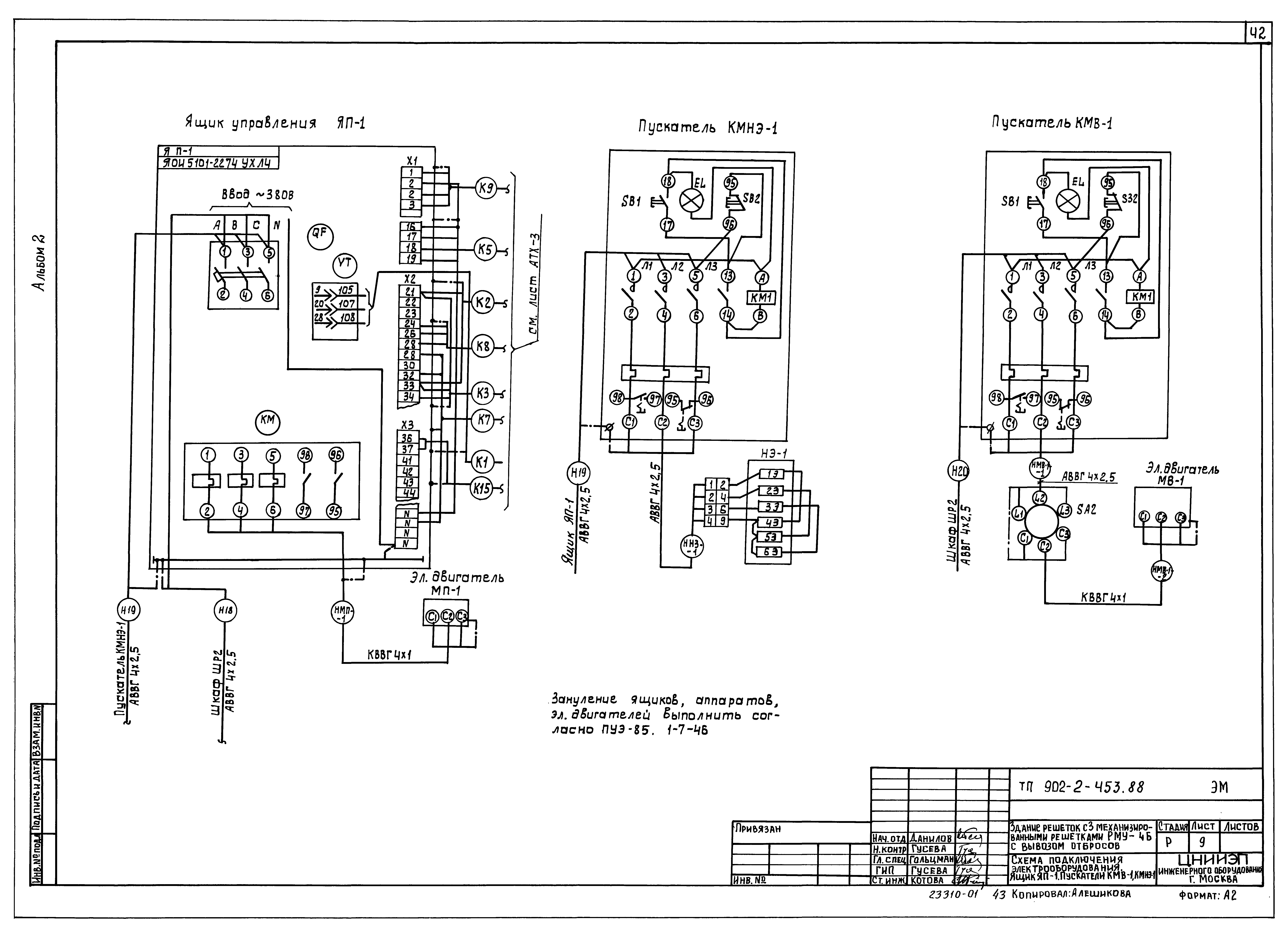
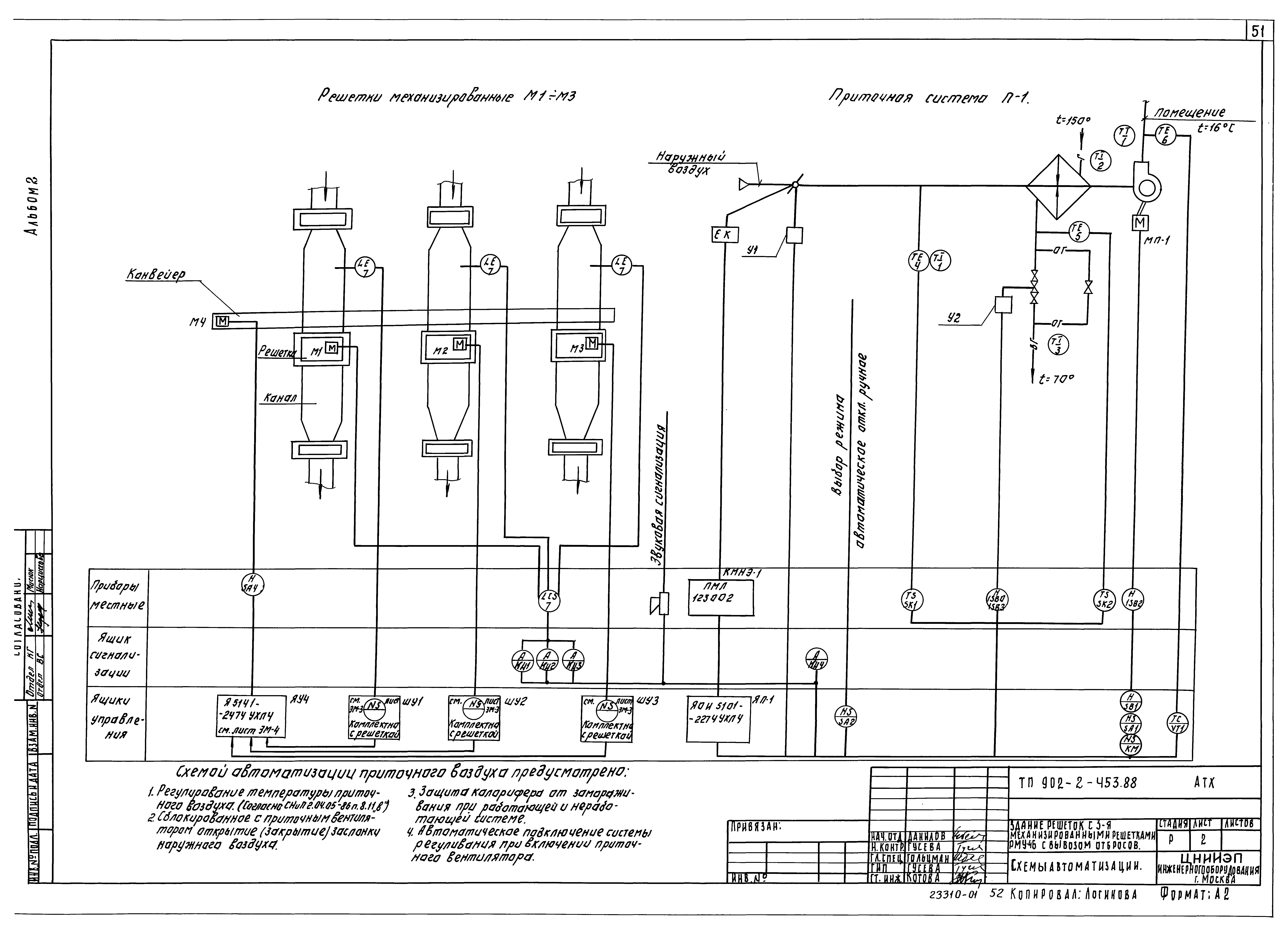
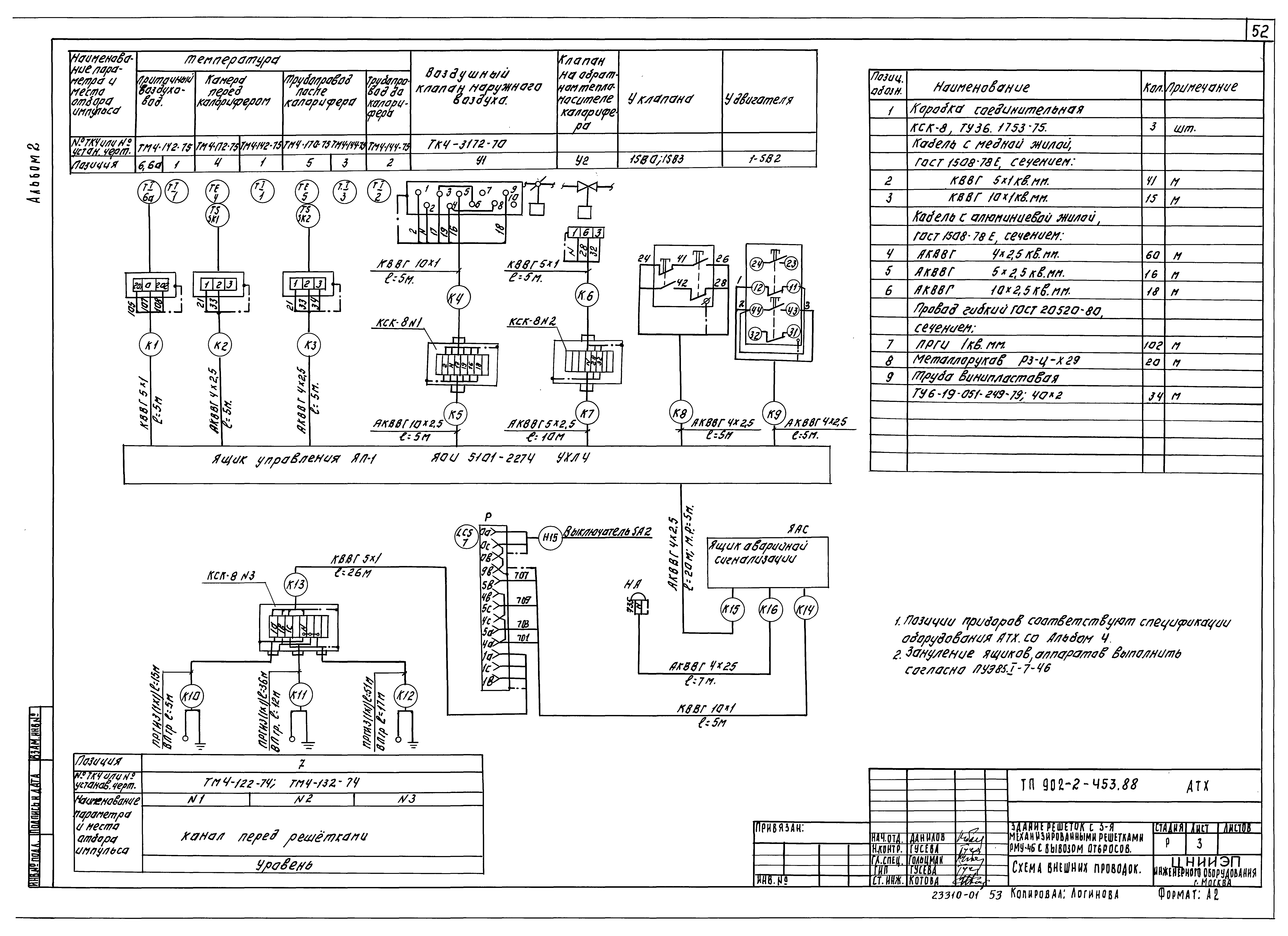
| Оглавление: | Содержание альбома Технология производства Общие данные План на отм. 0.000. Разрезы 1-1, 2-2. Экспликация помещений Схема трубопроводов 1В3, 2В3, И16. Узел "А". Экспликация оборудования Линия транспорта. Общий вид. Разрезы Линия транспорта. Разрез. Выносной элемент Линия транспорта. Виды. Разрезы Рама привода. Эскизный чертеж общего вида Затвор щитовой 1500х2000. Эскизный чертеж общего вида Архитектурные решения Общие данные Планы на отм. 0.000; 3.300. Ведомость и спецификация перемычек Разрезы 1-1, 2-2. Спецификация элементов. Заполнение проемов. Ведомость проемов дверей и ворот Фасады 1 - 5, 5 - 1, А - Б, Б - А Планы кровли и полов. Экспликация полов. Ведомость отделки помещений Конструкции железобетонные Общие данные Схема расположения фундаментов и фундаментных балок Фундаменты Ф1 - Ф5. Опалубочный чертеж. Армирование Схема расположения каналов и приямков Монолитный канал КЛ1. Опалубочный чертеж. Армирование Схема расположения колонн и балок покрытия Схемы расположения плит покрытия и перекрытий. Венткамера Схемы расположения стеновых панелей Конструкции металлические Общие данные. Ведомость металлоконструкций по видам профилей Общие данные. Техническая спецификация стали Схемы расположения металлических площадок и лестниц Схема расположения подвесного пути Отопление и вентиляция Общие данные Планы на отм. 0.000; 3.300. Схема системы отопления. Схемы вентиляции П1, В1, ВЕ1. Узел управления Установка системы П1. Схема системы теплоснабжения Конфузор Переход Внутренний водопровод и канализация Общие данные. Внутренний водопровод и канализация. План на отм. 0.000. Схемы В1, Т3, К1. Экспликация помещений Силовое электрооборудование Общие данные Схема электрическая принципиальная распределительной сети 380/220 В Схема электрическая принципиальная управления решеткой М1 (М2, М3) Схема электрическая принципиальная управления приводом конвейера. Схема подключения электрооборудования. Ящик ЯУЧ Схема подключения электрооборудования. Шкаф ШУ1 (ШУ2, ШУ3). Ящик ЯАС Схема подключения электрооборудования. Шкаф Ш5 задвижек насосов песколовок Схема подключения электрооборудования. Ящики Я5 задвижек насосов песколовок Схема подключения электрооборудования. Ящик ЯП-1. Пускатели КМВ-1, ККНЭ-1 Кабельный журнал Кабельный журнал. Сводка кабелей и проводов, учтенных кабельным журналом Размещение электрооборудования и прокладка кабеля. Планы на отм. 0.000 и 3.300 Размещение электрооборудования и прокладка кабеля. Спецификация Прокладка троллейного шинопровода к крану К1 и гибкого токопровода к тали Т1. План на отм. 3.300 Электрическое освещение Общие данные. Электрическое освещение. Планы на отм. 0.000. Фрагмент плана на отм. 3.300 Автоматизация Общие данные Схемы автоматизации Схема внешних проводок Размещение приборов технологического контроля и прокладка кабеля. План на отм. 0.000 Связь и сигнализация Общие данные. План на отм. 0.000 с сетями связи и сигнализации. Скелетная схема Организация строительства Схема стройгенплана График производства работ |
| Разработан: | ЦНИИЭП инженерного оборудования |
| Утверждён: | 15.06.1988 Госкомархитектура (170) |
























































