Скачать Типовые проектные решения 407-3-0634.92 Альбом 3. Строительные чертежи. Отопление, вентиляция. Водопровод, канализацияДата актуализации: 01.01.2021
|
| Обозначение: | Типовые проектные решения 407-3-0634.92 |
| Обозначение англ: | 407-3-0634.92 |
| Статус: | справочные материалы, мп, тпр |
| Название рус.: | Альбом 3. Строительные чертежи. Отопление, вентиляция. Водопровод, канализация |
| Дата добавления в базу: | 01.09.2013 |
| Дата актуализации: | 01.01.2021 |
| Дата введения: | 27.10.1992 |
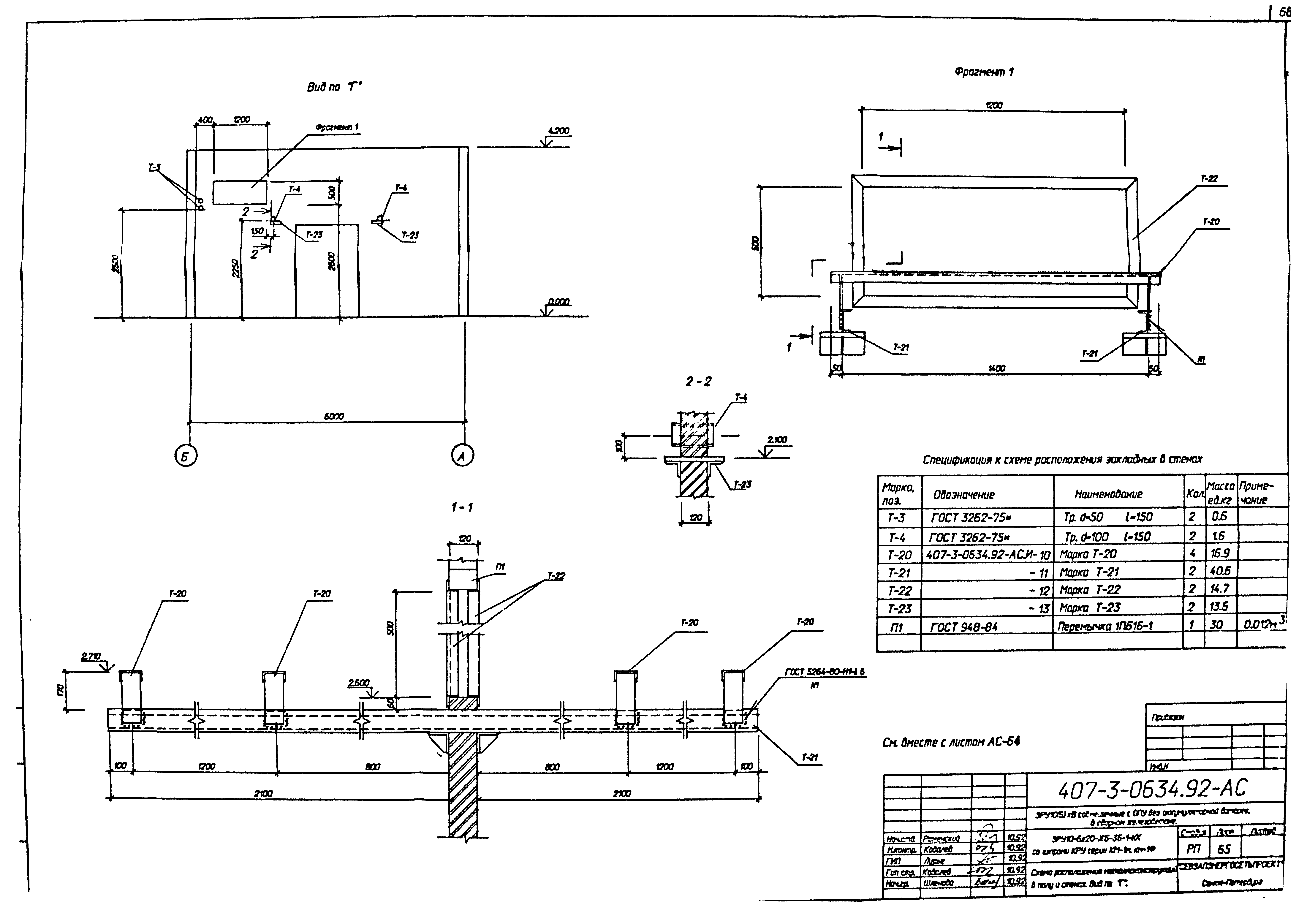
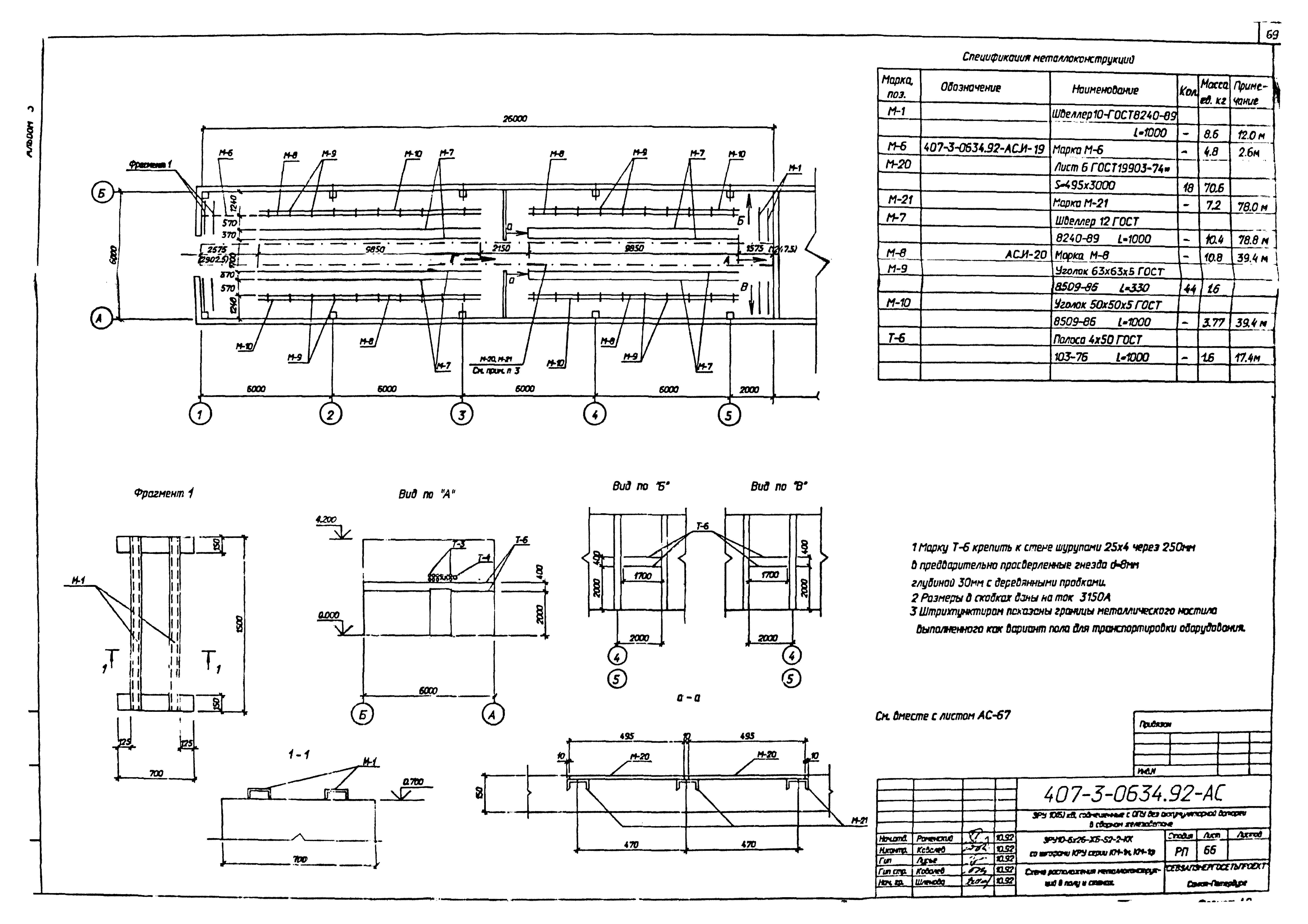
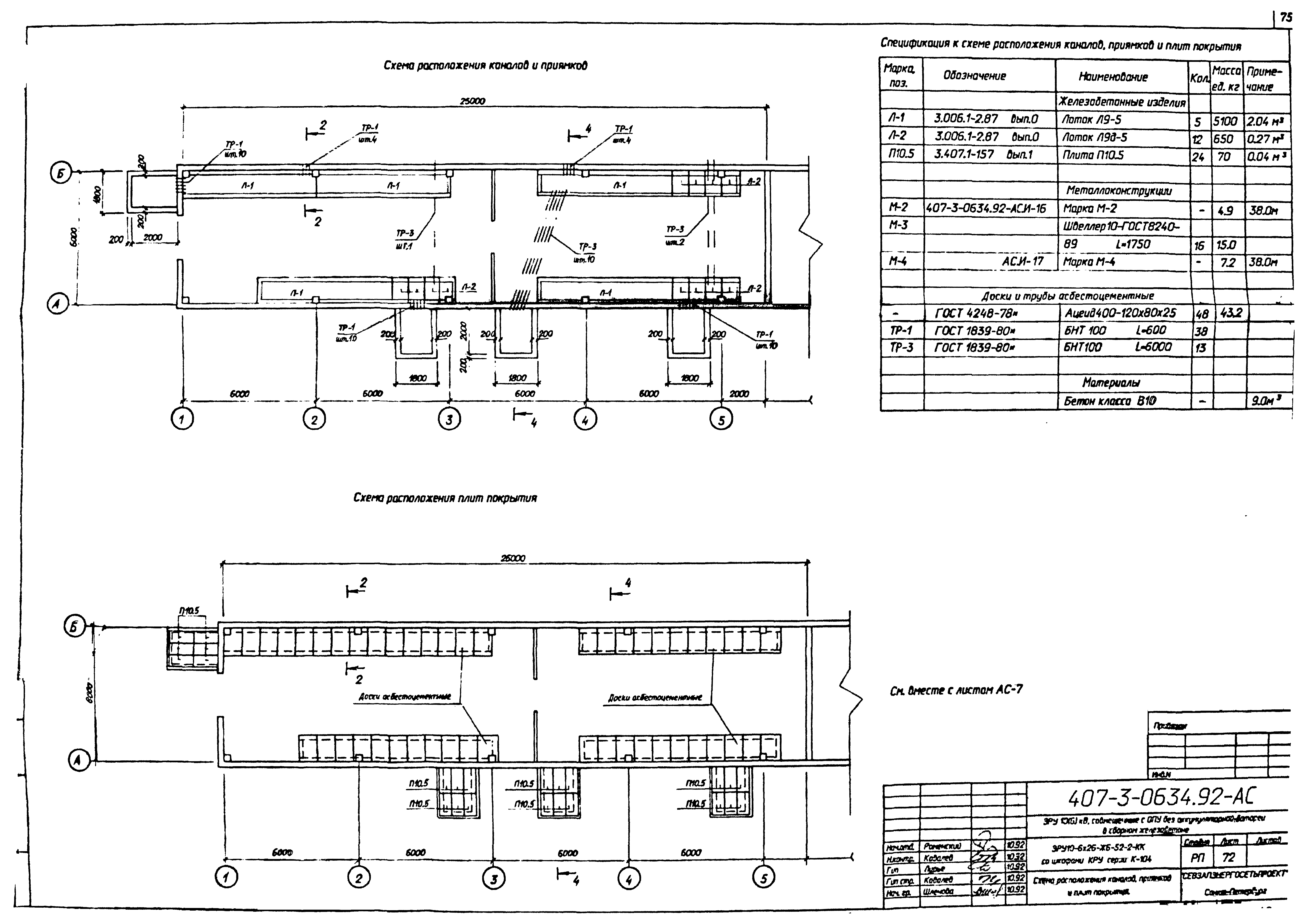
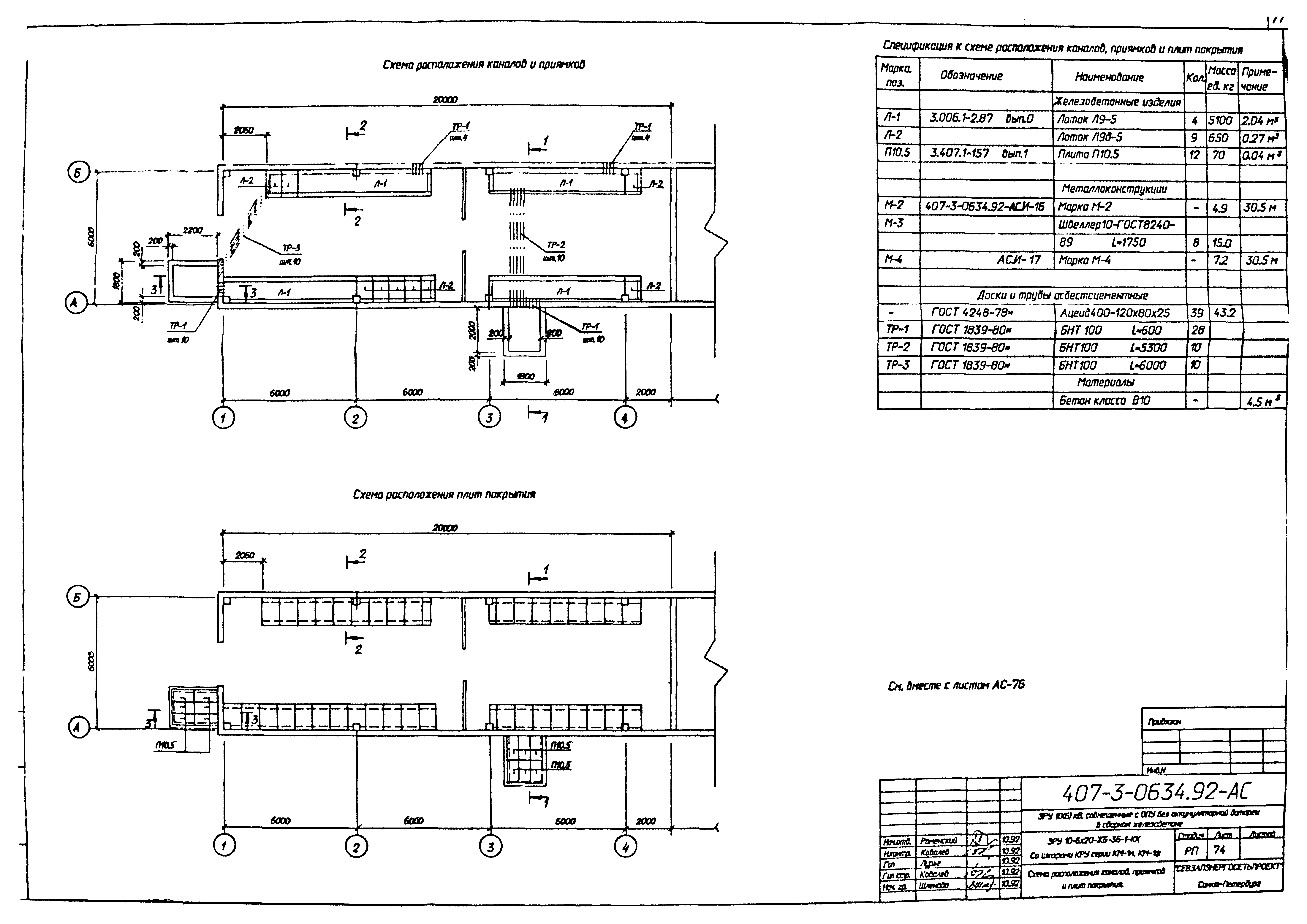
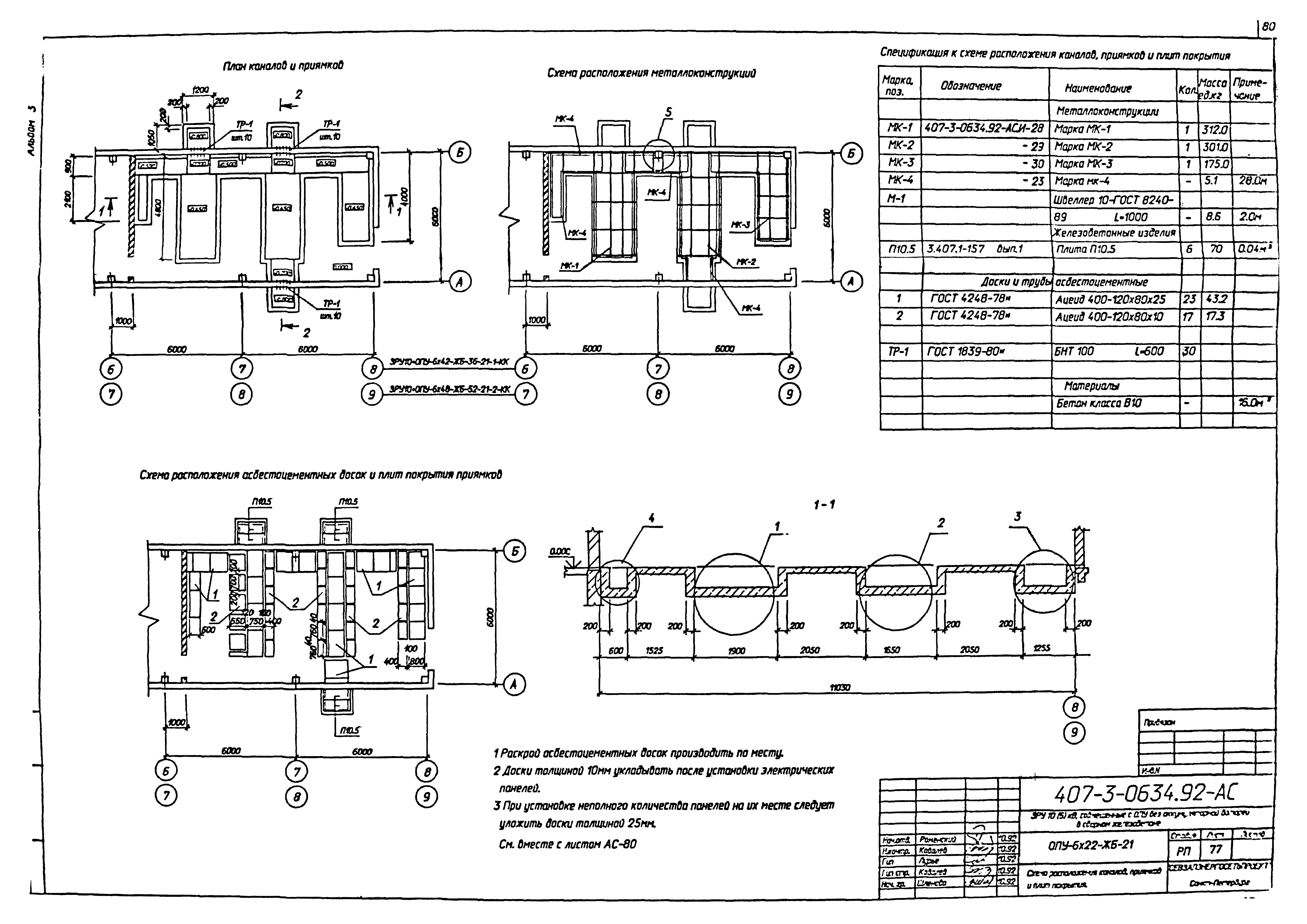
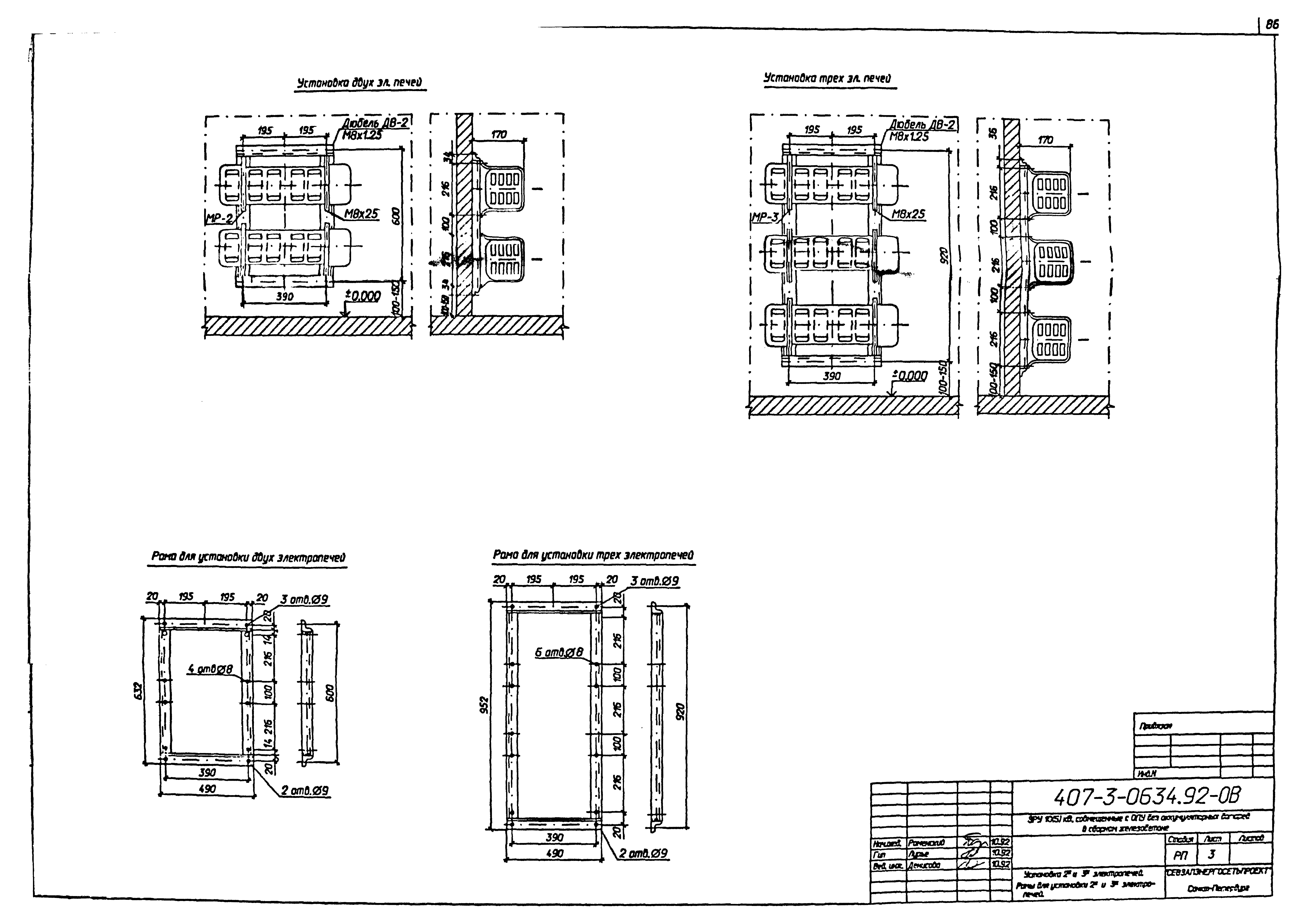
| Оглавление: | Строительные чертежи Общие данные ЗРУ 10+ОПУ-6х42-ЖБ-36-21-1-КК со шкафами КРУ серии К-104. План на отм. 0.000 ЗРУ 10+ОПУ-6х42-ЖБ-36-21-1-КК со шкафами КРУ серии КМ-1М, КМ-1ф. План на отм. 0.000 ЗРУ 10+ОПУ-6х48-ЖБ-36-39-1-КК со шкафами КРУ серии К-104. План на отм. 0.000 ЗРУ 10+ОПУ-6х48-ЖБ-36-39-1-КК со шкафами КРУ серии КМ-1М, КМ-1ф. План на отм. 0.000 ЗРУ 10+ОПУ-6х48-ЖБ-52-21-2-КК со шкафами КРУ серии К-104. План на отм. 0.000 ЗРУ 10+ОПУ-6х48-ЖБ-52-21-2-КК со шкафами КРУ серии КМ-1М, КМ-1ф. План на отм. 0.000 ЗРУ 10+ОПУ-6х54-ЖБ-52-39-2-КК со шкафами КРУ серии К-104. План на отм. 0.000 ЗРУ 10+ОПУ-6х54-ЖБ-52-39-2-КК со шкафами КРУ серии КМ-1М, КМ-1ф. План на отм. 0.000 ЗРУ 10+ОПУ-6х42-ЖБ-36-21-1-КК. Разрезы 1-1 - 3-3 ЗРУ 10+ОПУ-6х48-ЖБ-36-39-1-КК. Разрезы 1-1 - 3-3 ЗРУ 10+ОПУ-6х48-ЖБ-52-21-2-КК. Разрезы 1-1 - 3-3 ЗРУ 10+ОПУ-6х54-ЖБ-52-39-2-КК. Разрезы 1-1 - 3-3 ЗРУ 10+ОПУ-6х42-ЖБ-36-21-1-КК со шкафами КРУ серии К-104. Фасады ЗРУ 10+ОПУ-6х42-ЖБ-36-21-1-КК со шкафами КРУ серии КМ-1М, КМ-1ф. Фасады ЗРУ 10+ОПУ-6х48-ЖБ-36-39-1-КК со шкафами КРУ серии К-104. Фасады ЗРУ 10+ОПУ-6х48-ЖБ-36-39-1-КК со шкафами КРУ серии КМ-1М, КМ-1ф. Фасады ЗРУ 10+ОПУ-6х48-ЖБ-52-21-2-КК со шкафами КРУ серии К-104. Фасады ЗРУ 10+ОПУ-6х48-ЖБ-52-21-2-КК со шкафами КРУ серии КМ-1М, КМ-1ф на ток 1600 А. Фасады ЗРУ 10+ОПУ-6х48-ЖБ-52-21-2-КК со шкафами КРУ серии КМ-1М, КМ-1ф на ток 3150 А. Фасады ЗРУ 10+ОПУ-6х54-ЖБ-52-39-2-КК со шкафами КРУ серии К-104. Фасады ЗРУ 10+ОПУ-6х54-ЖБ-52-39-2-КК со шкафами КРУ серии КМ-1М, КМ-1ф на ток 1600 А. Фасады ЗРУ 10+ОПУ-6х54-ЖБ-52-39-2-КК со шкафами КРУ серии КМ-1М, КМ-1ф на ток 3150 А. Фасады Архитектурные узлы. Фрагмент входа 1 Фрагмент 1 Фрагмент фасада 1 Фрагмент фасада 2 ЗРУ 10+ОПУ-6х42-ЖБ-36-21-1-КК. Схема расположения фундаментов здания ЗРУ 10+ОПУ-6х48-ЖБ-36-39-1-КК. Схема расположения фундаментов здания ЗРУ 10+ОПУ-6х48-ЖБ-52-21-2-КК. Схема расположения фундаментов здания ЗРУ 10+ОПУ-6х54-ЖБ-52-39-2-КК. Схема расположения фундаментов здания Схема расположения фундаментов здания. Узлы, сечения ЗРУ 10+ОПУ-6х42-ЖБ-36-21-1-КК. Схема расположения колонн, балок и плит покрытия ЗРУ 10+ОПУ-6х48-ЖБ-36-39-1-КК. Схема расположения колонн, балок и плит покрытия ЗРУ 10+ОПУ-6х48-ЖБ-52-21-2-КК. Схема расположения колонн, балок и плит покрытия ЗРУ 10+ОПУ-6х54-ЖБ-52-39-2-КК. Схема расположения колонн, балок и плит покрытия Схема расположения колонн, балок и плит покрытия. Узлы 1 - 5 ЗРУ 10+ОПУ-6х42-ЖБ-36-21-1-КК со шкафами КРУ серии К-104. Схема расположения стеновых панелей ЗРУ 10+ОПУ-6х42-ЖБ-36-21-1-КК со шкафами КРУ серии К-104. Схема расположения стеновых панелей. Узлы. Спецификация ЗРУ 10+ОПУ-6х42-ЖБ-36-21-1-КК со шкафами КРУ серии КМ-1М, КМ-1ф. Схема расположения стеновых панелей ЗРУ 10+ОПУ-6х42-ЖБ-36-21-1-КК со шкафами КРУ серии КМ-1М, КМ-1ф. Схема расположения стеновых панелей. Узлы. Спецификация ЗРУ 10+ОПУ-6х48-ЖБ-36-39-1-КК со шкафами КРУ серии К-104. Схема расположения стеновых панелей ЗРУ 10+ОПУ-6х48-ЖБ-36-39-1-КК со шкафами КРУ серии К-104. Схема расположения стеновых панелей. Узлы. Спецификация ЗРУ 10+ОПУ-6х48-ЖБ-36-39-1-КК со шкафами КРУ серии КМ-1М, КМ-1ф. Схема расположения стеновых панелей ЗРУ 10+ОПУ-6х48-ЖБ-36-39-1-КК со шкафами КРУ серии КМ-1М, КМ-1ф. Схема расположения стеновых панелей. Узлы. Спецификация ЗРУ 10+ОПУ-6х48-ЖБ-52-21-2-КК со шкафами КРУ серии К-104. Схема расположения стеновых панелей ЗРУ 10+ОПУ-6х48-ЖБ-52-21-2-КК со шкафами КРУ серии К-104. Схема расположения стеновых панелей. Узлы. Спецификация ЗРУ 10+ОПУ-6х48-ЖБ-52-21-2-КК со шкафами КРУ серии КМ-1М, КМ-1ф на ток 1600 А. Схема расположения стеновых панелей ЗРУ 10+ОПУ-6х48-ЖБ-52-21-2-КК со шкафами КРУ серии КМ-1М, КМ-1ф на ток 1600 А. Схема расположения стеновых панелей. Узлы. Спецификация ЗРУ 10+ОПУ-6х48-ЖБ-52-21-2-КК со шкафами КРУ серии КМ-1М, КМ-1ф на ток 3150 А. Схема расположения стеновых панелей ЗРУ 10+ОПУ-6х48-ЖБ-52-21-2-КК со шкафами КРУ серии КМ-1М, КМ-1ф на ток 3150 А. Схема расположения стеновых панелей. Узлы. Спецификация ЗРУ 10+ОПУ-6х54-ЖБ-52-39-2-КК со шкафами КРУ серии К-104. Схема расположения стеновых панелей ЗРУ 10+ОПУ-6х54-ЖБ-52-39-2-КК со шкафами КРУ серии К-104. Схема расположения стеновых панелей. Узлы. Спецификация ЗРУ 10+ОПУ-6х54-ЖБ-52-39-2-КК со шкафами КРУ серии КМ-1М, КМ-1ф на ток 1600 А. Схема расположения стеновых панелей ЗРУ 10+ОПУ-6х54-ЖБ-52-39-2-КК со шкафами КРУ серии КМ-1М, КМ-1ф на ток 1600 А. Схема расположения стеновых панелей. Узлы. Спецификация ЗРУ 10+ОПУ-6х54-ЖБ-52-39-2-КК со шкафами КРУ серии КМ-1М, КМ-1ф на ток 3150 А. Схема расположения стеновых панелей ЗРУ 10+ОПУ-6х54-ЖБ-52-39-2-КК со шкафами КРУ серии КМ-1М, КМ-1ф на ток 3150 А. Схема расположения стеновых панелей. Узлы. Спецификация ЗРУ 10+ОПУ-6х20-ЖБ-36-1-КК со шкафами КРУ серии К-104. Схема расположения металлоконструкций в полу и стенах ЗРУ 10+ОПУ-6х26-ЖБ-52-2-КК со шкафами КРУ серии К-104. Схема расположения металлоконструкций в полу и стенах ЗРУ 10+ОПУ-6х20-ЖБ-36-1-КК, ЗРУ 10+ОПУ-6х26-ЖБ-52-2-КК со шкафами КРУ серии К-104. Схема расположения металлоконструкций в полу и стенах. Узлы. Сечения ЗРУ 10-6х20-ЖБ-36-1-КК со шкафами КРУ серии КМ-1М, КМ-1ф. Схема расположения металлоконструкций в полу и стенах ЗРУ 10-6х20-ЖБ-36-1-КК со шкафами КРУ серии КМ-1М, КМ-1ф. Схема расположения металлоконструкций в полу и стенах. Вид по "Г" ЗРУ 10-6х26-ЖБ-52-2-КК со шкафами КРУ серии КМ-1М, КМ-1ф. Схема расположения металлоконструкций в полу и стенах ЗРУ 10-6х26-ЖБ-52-2-КК со шкафами КРУ серии КМ-1М, КМ-1ф. Схема расположения металлоконструкций в полу и стенах. Вид по "Г" ЗРУ 10-6х20-ЖБ-36-1-КК со шкафами КРУ серии КМ-1М, КМ-1ф. Схема расположения металлоконструкций в кровле ЗРУ 10-6х26-ЖБ-52-2-КК со шкафами КРУ серии КМ-1М, КМ-1ф. Схема расположения металлоконструкций в кровле ЗРУ 10-6х20-ЖБ-36-1-КК, ЗРУ 10-6х26-ЖБ-52-2-КК со шкафами КРУ серии КМ-1М, КМ-1ф. Схема расположения металлоконструкций в кровле. Сечения 1-1 - 3-3 ЗРУ 10-6х20-ЖБ-36-1-КК со шкафами КРУ серии К-104. Схема расположения каналов, приямков и плит покрытия ЗРУ 10-6х26-ЖБ-52-2-КК со шкафами КРУ серии К-104. Схема расположения каналов, приямков и плит покрытия ЗРУ 10-6х20-ЖБ-36-1-КК, ЗРУ 10-6х26-ЖБ-52-2-КК со шкафами КРУ серии К-104. Схема расположения каналов, приямков и плит покрытия. Виды, сечения ЗРУ 10-6х20-ЖБ-36-1-КК со шкафами КРУ серии КМ-1М, КМ-1ф. Схема расположения каналов, приямков и плит покрытия ЗРУ 10-6х26-ЖБ-52-2-КК со шкафами КРУ серии КМ-1М, КМ-1ф. Схема расположения каналов, приямков и плит покрытия ЗРУ 10-6х20-ЖБ-36-1-КК, ЗРУ 10-6х26-ЖБ-52-2-КК со шкафами КРУ серии КМ-1М, КМ-1ф. Схема расположения каналов, приямков и плит покрытия. Узлы. Сечения ОПУ-6х22-ЖБ-21. Схема расположения каналов, приямков и плит покрытия ОПУ-6х28-ЖБ-39. Схема расположения каналов, приямков и металлоконструкций ОПУ-6х28-ЖБ-39. Схема расположения асбестоцементных досок и плит покрытия каналов ОПУ-6х22-ЖБ-21, ОПУ-6х28-ЖБ-39. Схема расположения каналов, приямков и плит покрытия. Узлы 1 - 5 Отопление и вентиляция Общие данные Планы на отм. 0.000. Схемы систем вентиляции В1 (В2), ВЕ1 Установка 2-х и 3-х электропечей. Рамы для установки 2-х и 3-х электропечей Водопровод и канализация Общие данные План на отм. 0.000. Схемы систем в1 и К1 |
| Разработан: | Севзапэнергосетьпроект |
| Утверждён: | 27.10.1992 Севзапэнергосетьпроект (9) |
























































































