Скачать Серия 1.133.1-5 Выпуск 4. Стеновые легкобетонные блоки толщиной 40, 50 и 60 см для жилых зданий высотой 5 - 9 этажей (простеночные и поясные блоки лоджий и доборные поясные блоки угловые)

Дата актуализации: 01.01.2021

Серия 1.133.1-5

Выпуск 4. Стеновые легкобетонные блоки толщиной 40, 50 и 60 см для жилых зданий высотой 5 - 9 этажей (простеночные и поясные блоки лоджий и доборные поясные блоки угловые)

Обозначение: Серия 1.133.1-5
Обозначение англ: Series 1.133.1-5
Статус:заменен
Название рус.:Выпуск 4. Стеновые легкобетонные блоки толщиной 40, 50 и 60 см для жилых зданий высотой 5 - 9 этажей (простеночные и поясные блоки лоджий и доборные поясные блоки угловые)
Дата добавления в базу:01.09.2013
Дата актуализации:01.01.2021
Дата введения:01.07.1981
Дата окончания срока действия:01.10.1989
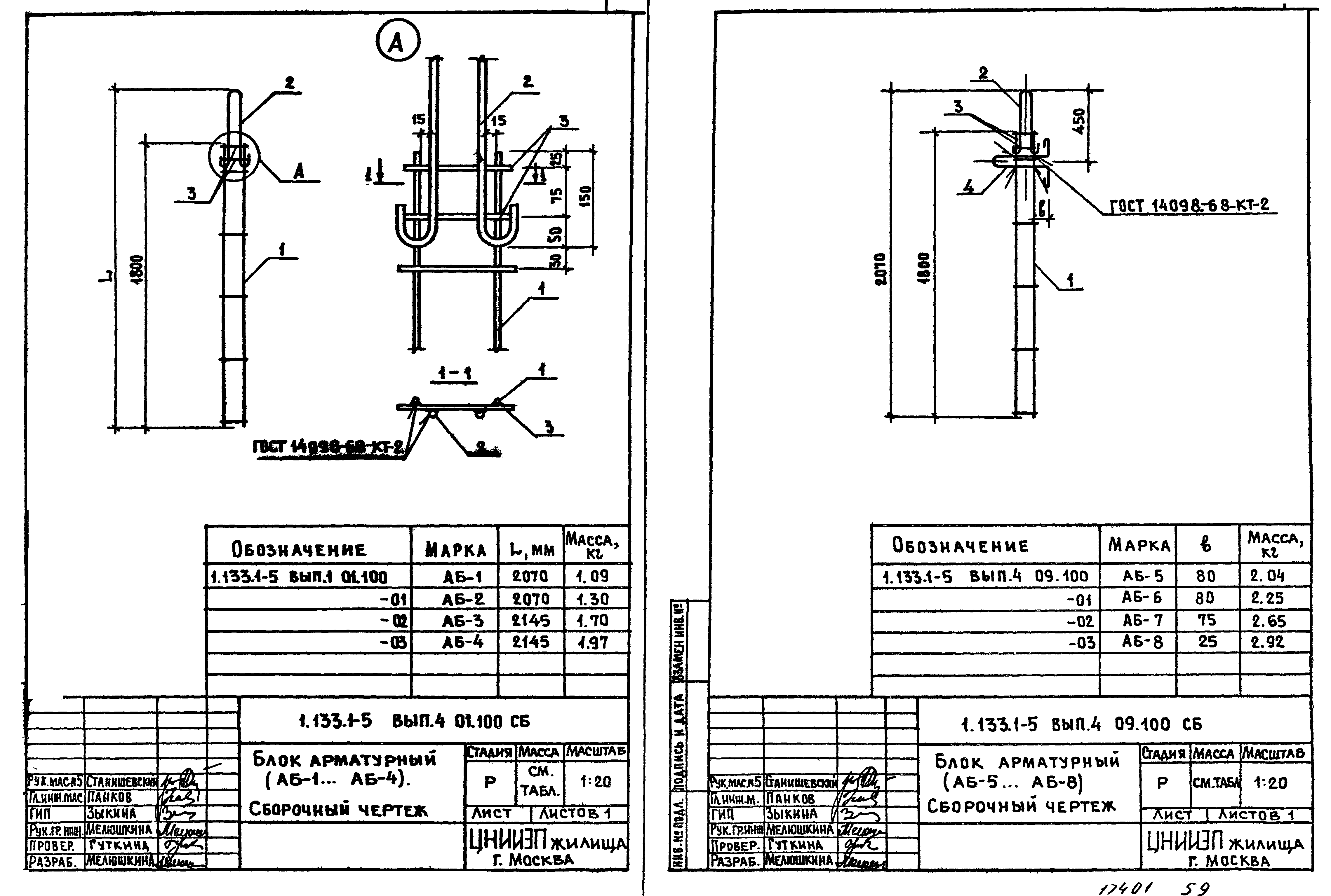
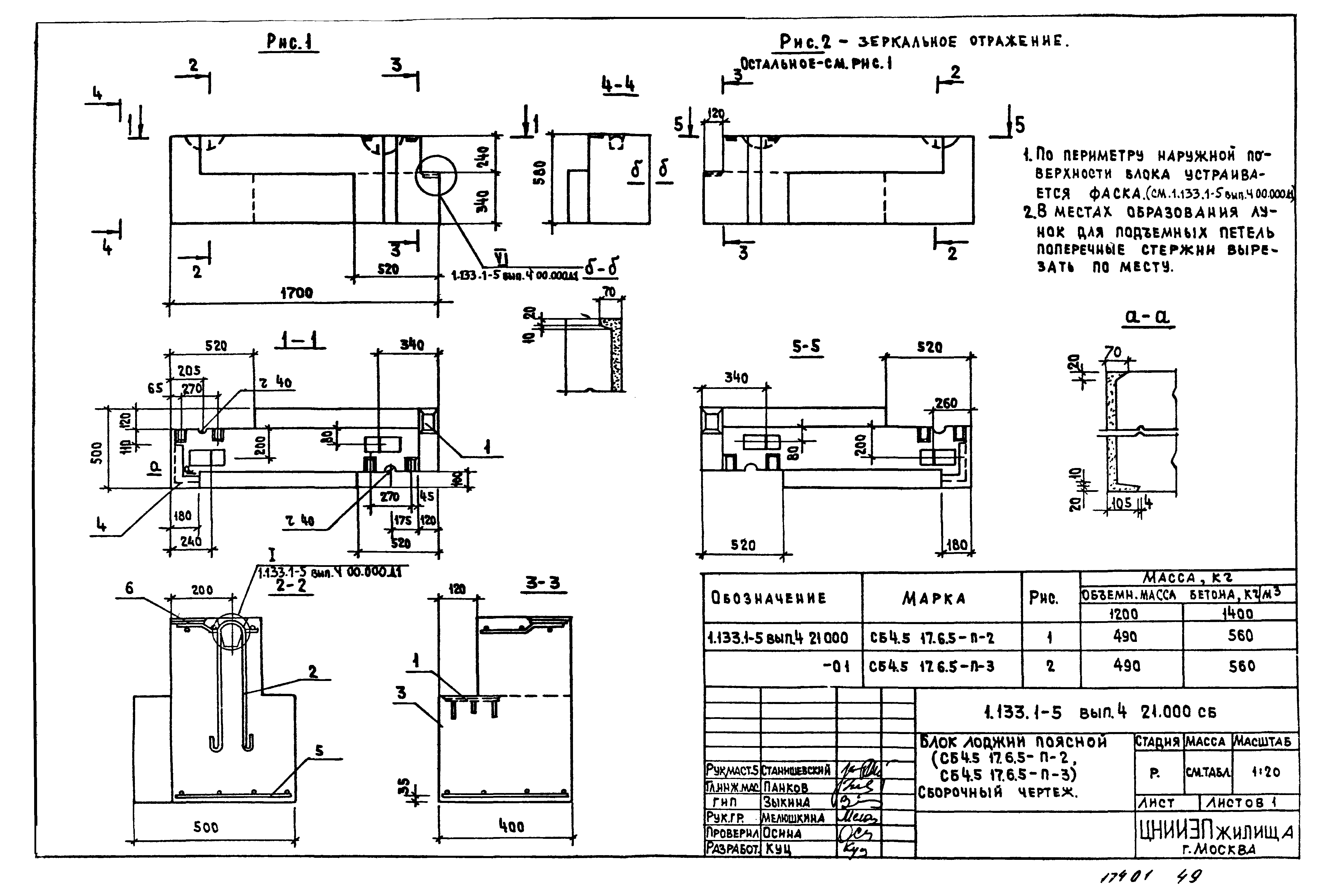
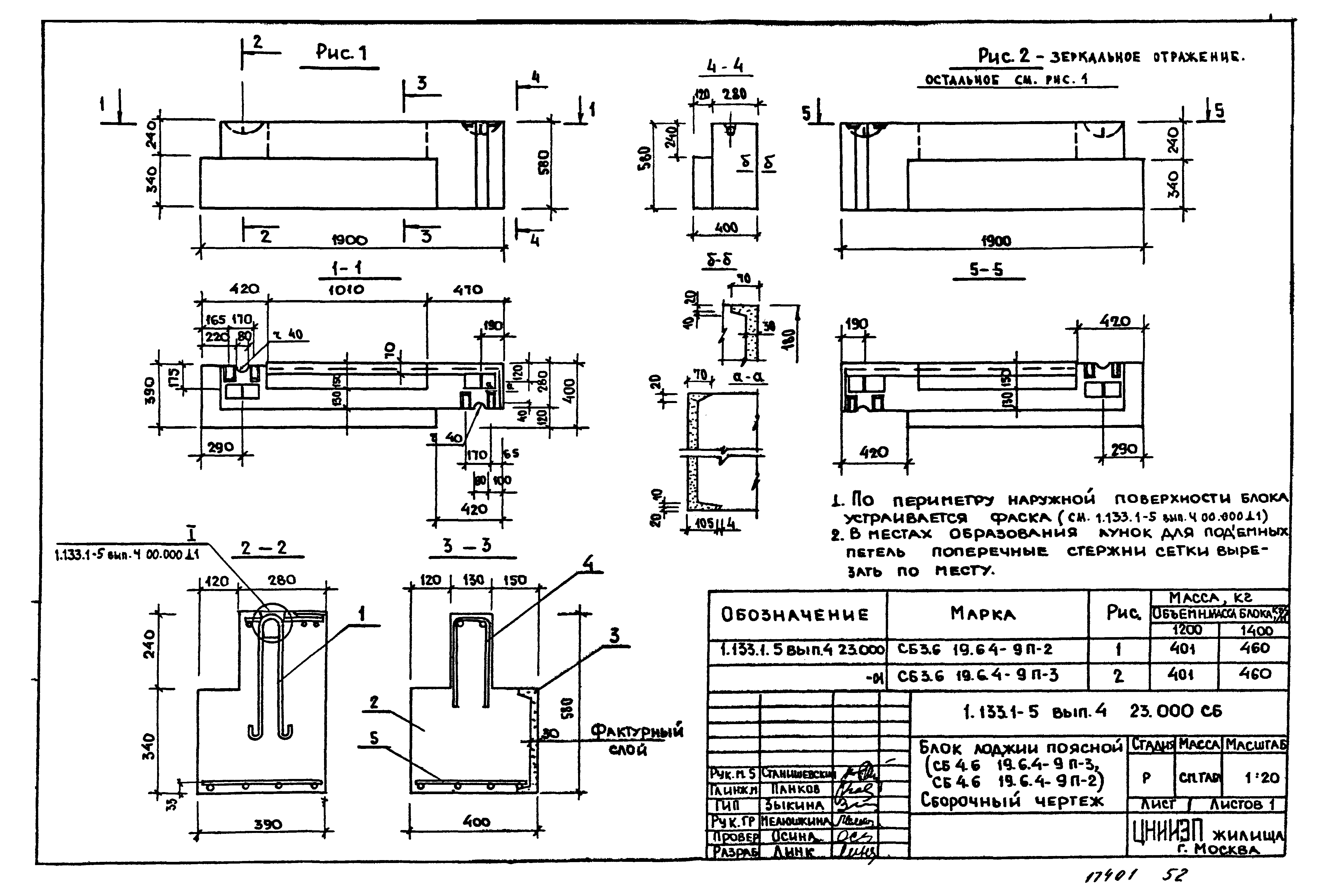
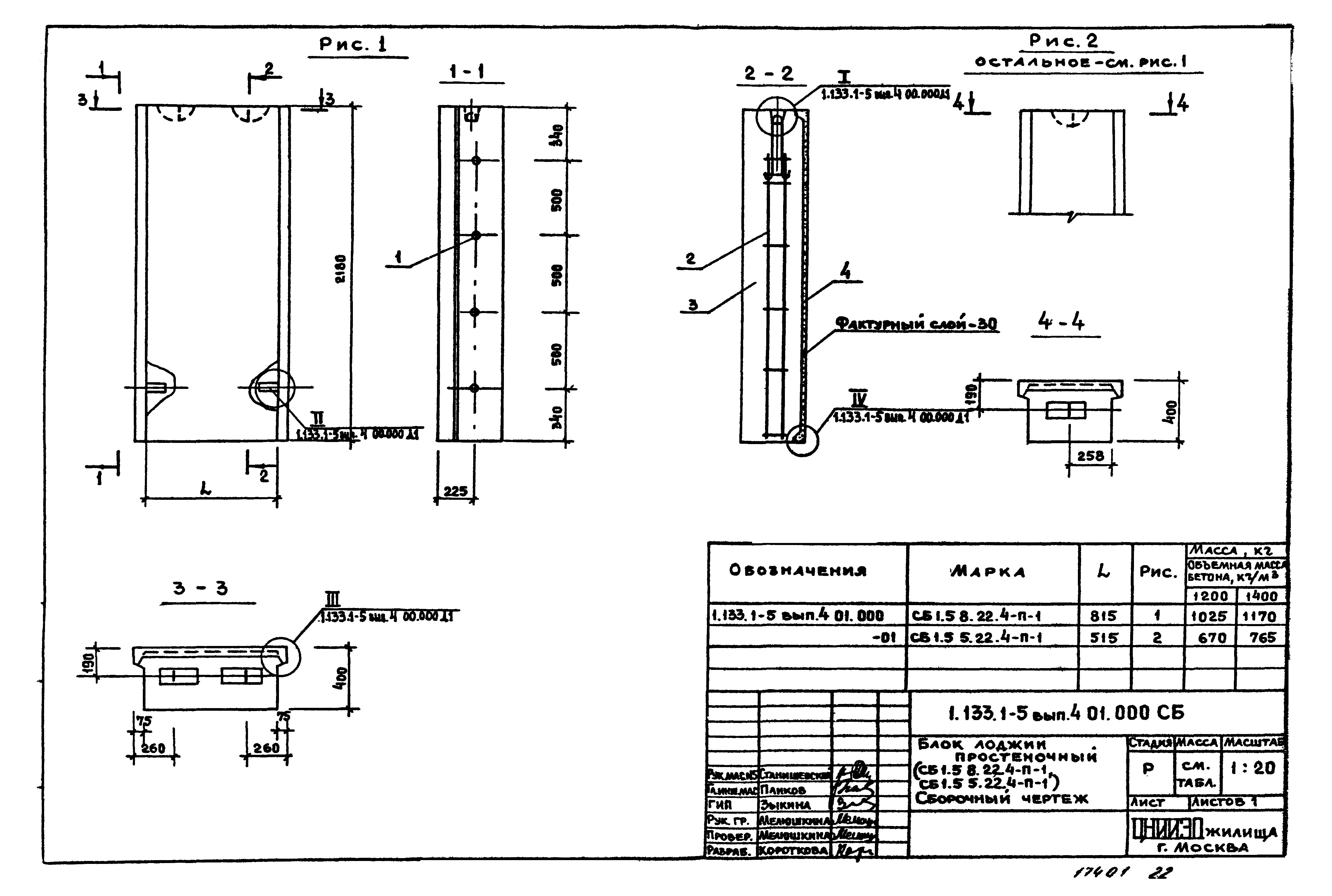
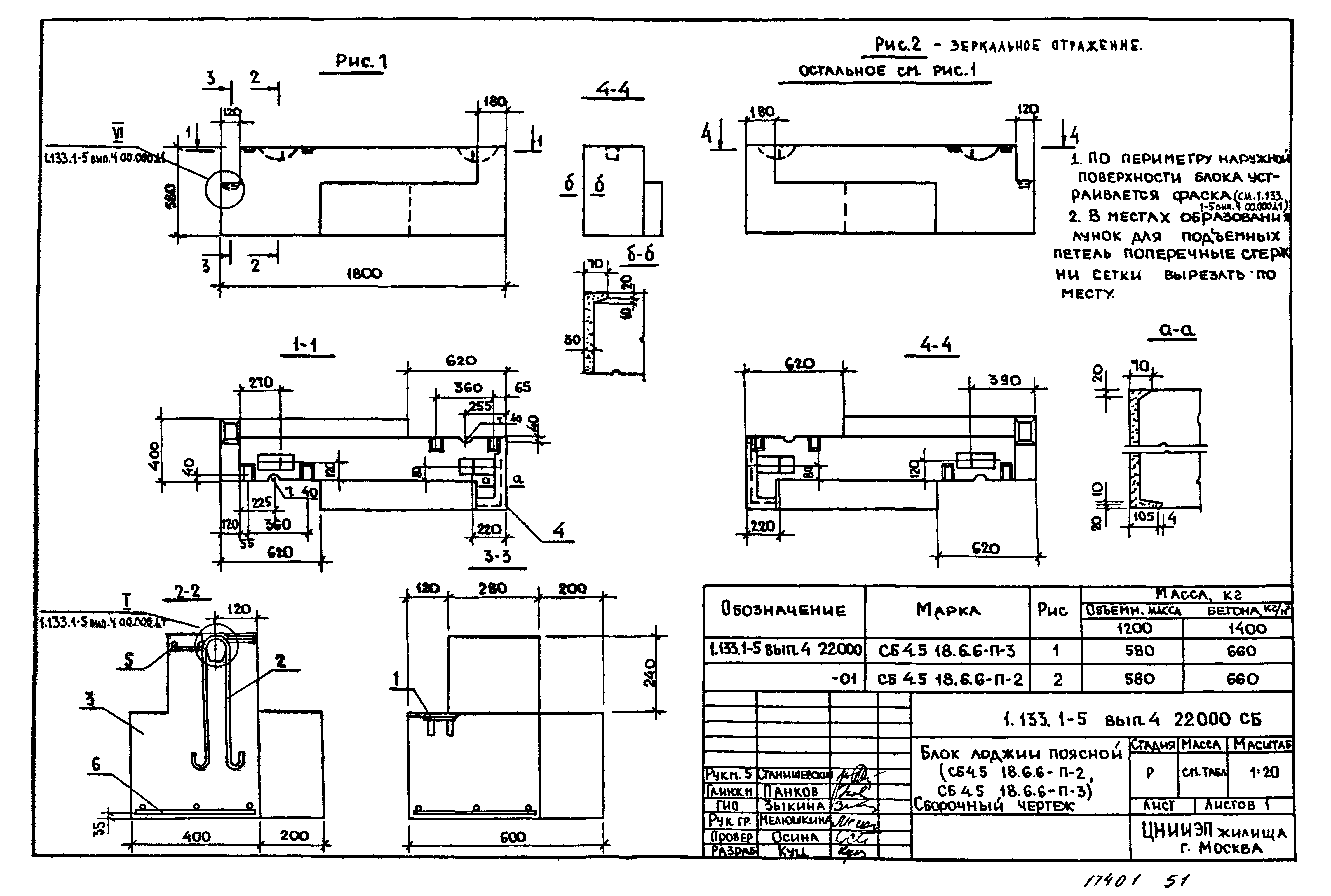
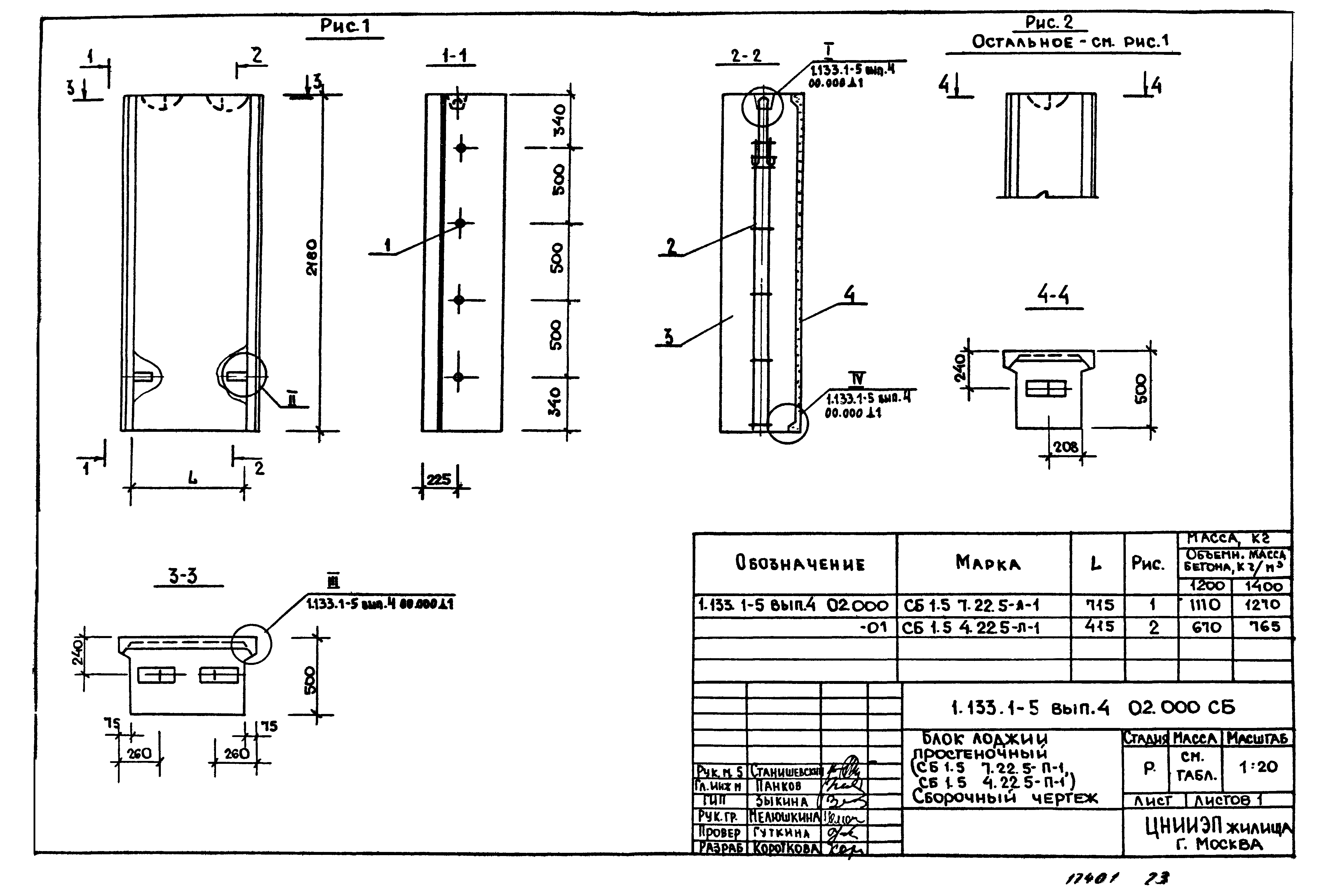
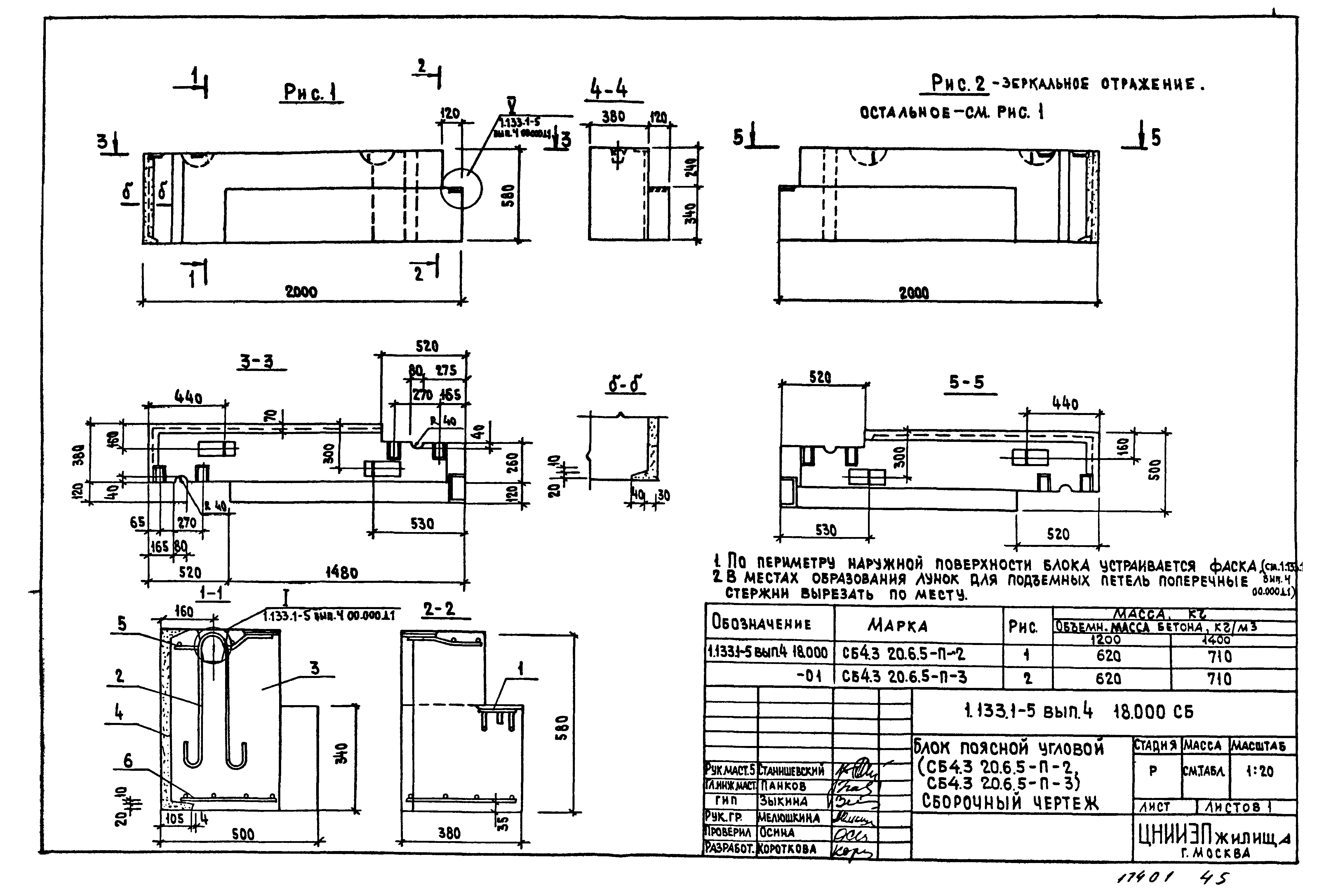
Область применения:Настоящий выпуск содержит техническое описание, сборочные чертежи блоков наружных стен, арматурные изделия, узлы, детали и закладные изделия
Оглавление:Содержание
Техническое описание
Номенклатура
Выборка стали
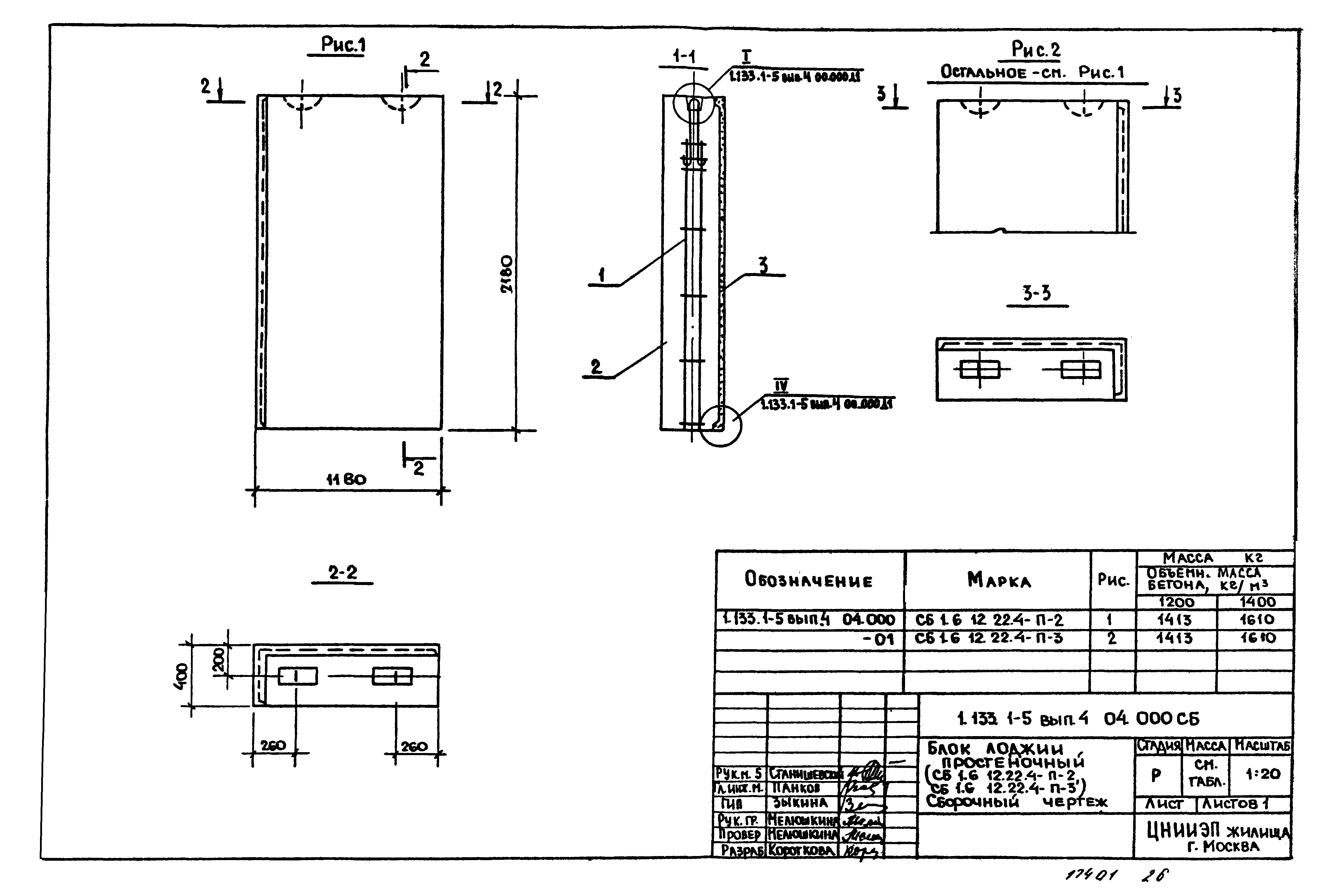
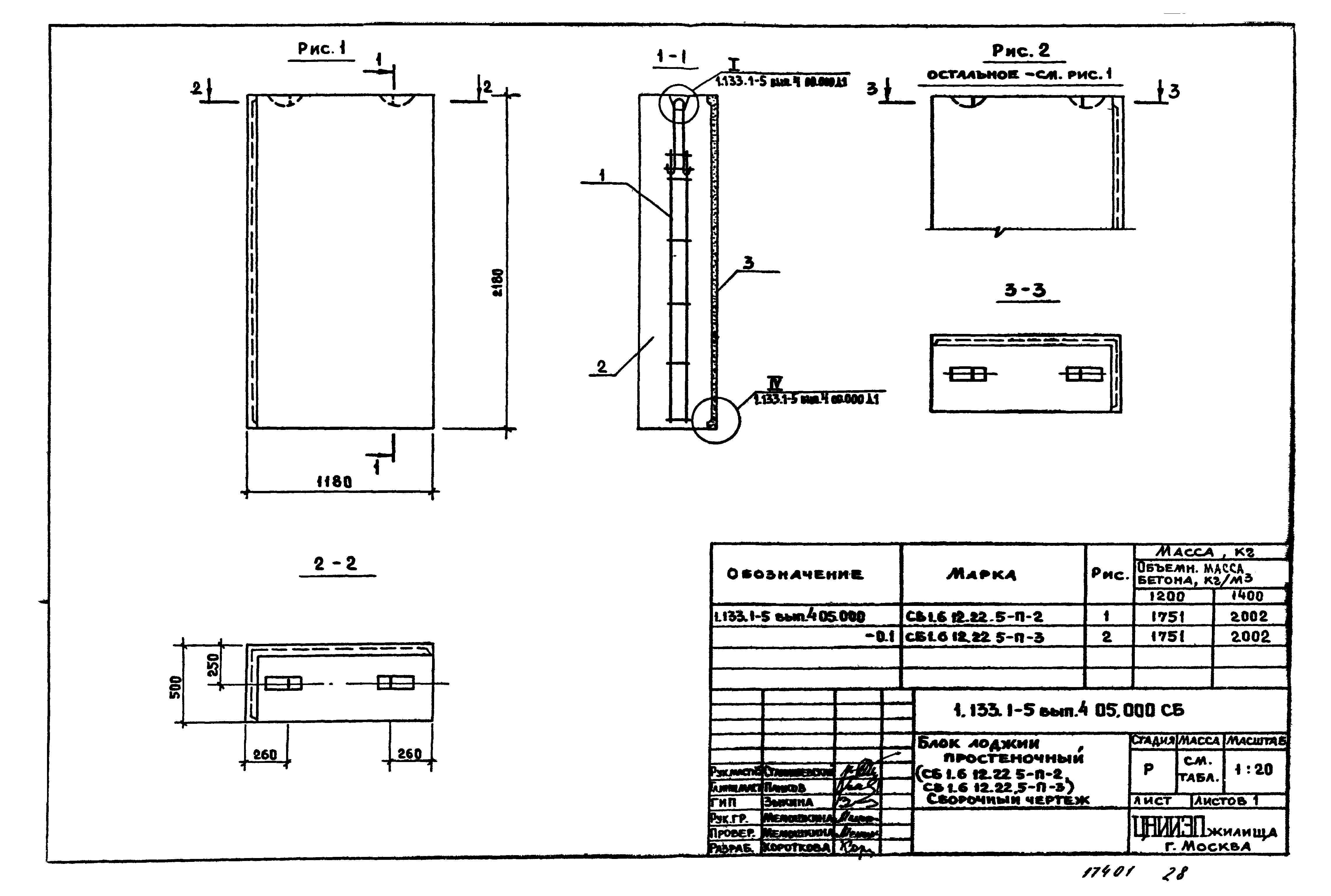
Блок лоджий простеночный
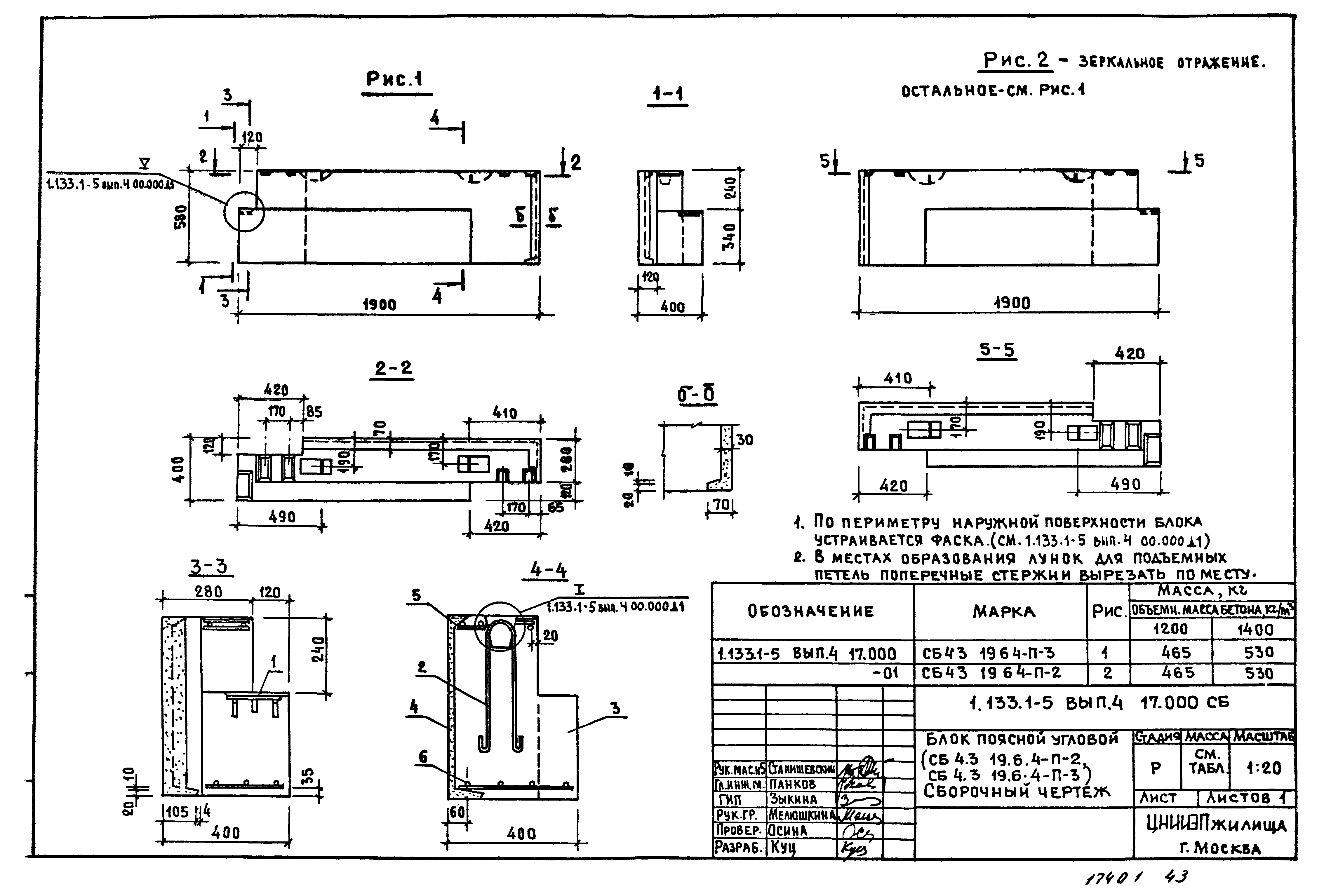
Блок поясной угловой
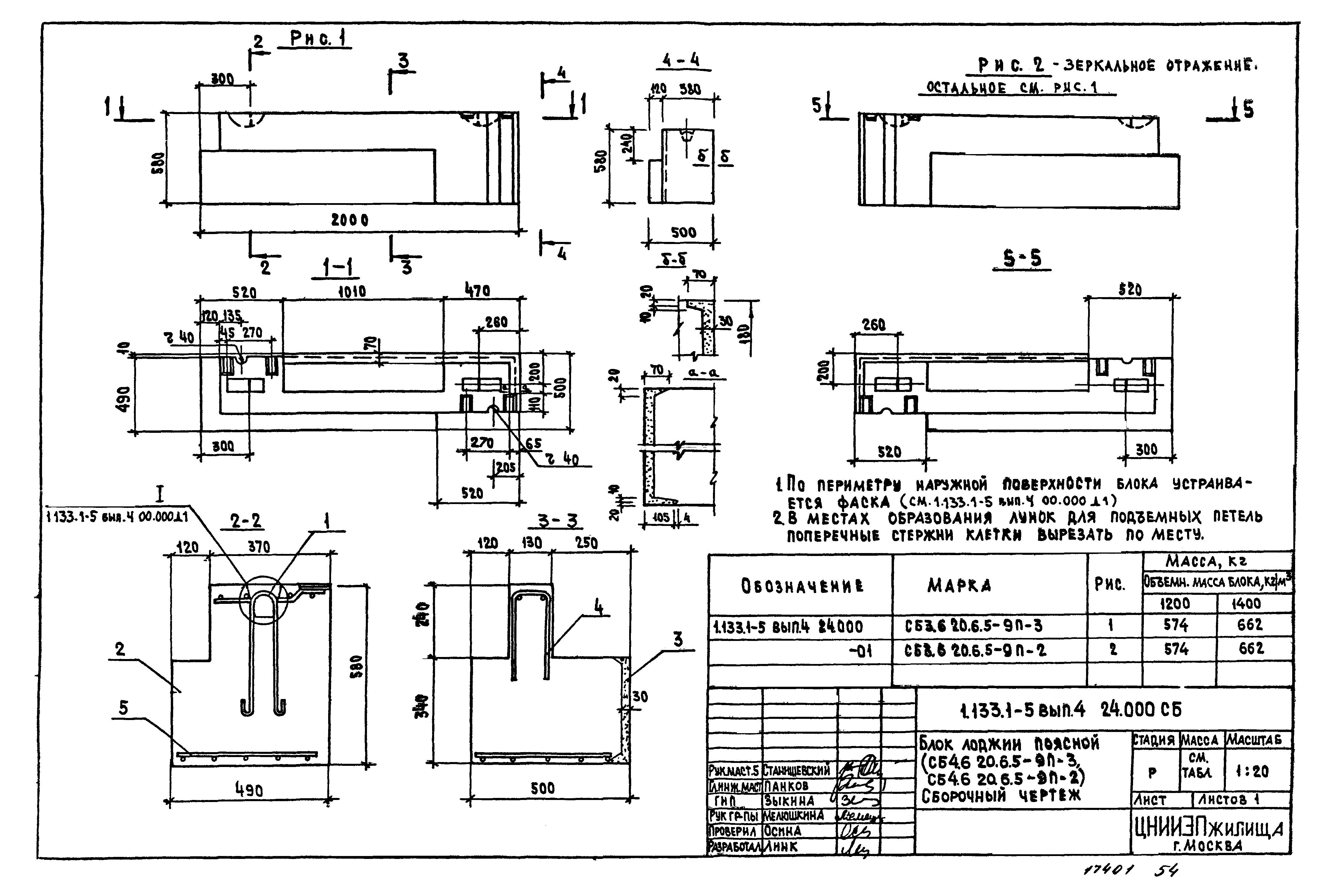
Блок лоджии поясной
Узлы I - VI
Блок арматурный
Каркас
Сетка
Изделие закладное
Петля строповочная
Разработан: ЦНИИЭП жилища
Утверждён:04.06.1981 Государственный комитет по гражданскому строительству и архитектуре при Госстрое СССР (177)
Чем заменён:
  • Серия 1.133.1-6
Нормативные ссылки:
Серия 1.133.1-5Серия 1.133.1-5Серия 1.133.1-5Серия 1.133.1-5Серия 1.133.1-5Серия 1.133.1-5Серия 1.133.1-5Серия 1.133.1-5Серия 1.133.1-5Серия 1.133.1-5Серия 1.133.1-5Серия 1.133.1-5Серия 1.133.1-5Серия 1.133.1-5Серия 1.133.1-5Серия 1.133.1-5Серия 1.133.1-5Серия 1.133.1-5Серия 1.133.1-5Серия 1.133.1-5Серия 1.133.1-5Серия 1.133.1-5Серия 1.133.1-5Серия 1.133.1-5Серия 1.133.1-5Серия 1.133.1-5Серия 1.133.1-5Серия 1.133.1-5Серия 1.133.1-5Серия 1.133.1-5Серия 1.133.1-5Серия 1.133.1-5Серия 1.133.1-5Серия 1.133.1-5Серия 1.133.1-5Серия 1.133.1-5Серия 1.133.1-5Серия 1.133.1-5Серия 1.133.1-5Серия 1.133.1-5Серия 1.133.1-5Серия 1.133.1-5Серия 1.133.1-5Серия 1.133.1-5Серия 1.133.1-5Серия 1.133.1-5Серия 1.133.1-5Серия 1.133.1-5Серия 1.133.1-5Серия 1.133.1-5Серия 1.133.1-5Серия 1.133.1-5Серия 1.133.1-5Серия 1.133.1-5Серия 1.133.1-5Серия 1.133.1-5Серия 1.133.1-5Серия 1.133.1-5Серия 1.133.1-5Серия 1.133.1-5Серия 1.133.1-5Серия 1.133.1-5Серия 1.133.1-5Серия 1.133.1-5Серия 1.133.1-5Серия 1.133.1-5Серия 1.133.1-5Серия 1.133.1-5Серия 1.133.1-5Серия 1.133.1-5Серия 1.133.1-5Серия 1.133.1-5Серия 1.133.1-5Серия 1.133.1-5Серия 1.133.1-5Серия 1.133.1-5Серия 1.133.1-5Серия 1.133.1-5Серия 1.133.1-5Серия 1.133.1-5Серия 1.133.1-5Серия 1.133.1-5