Скачать Серия 1.133.1-5 Выпуск 5. Стеновые легкобетонные блоки толщиной 40, 50 и 60 см для жилых зданий высотой 5 - 9 этажей (доборные: поясные, подоконные, перемычечные)Дата актуализации: 01.01.2021 Серия 1.133.1-5
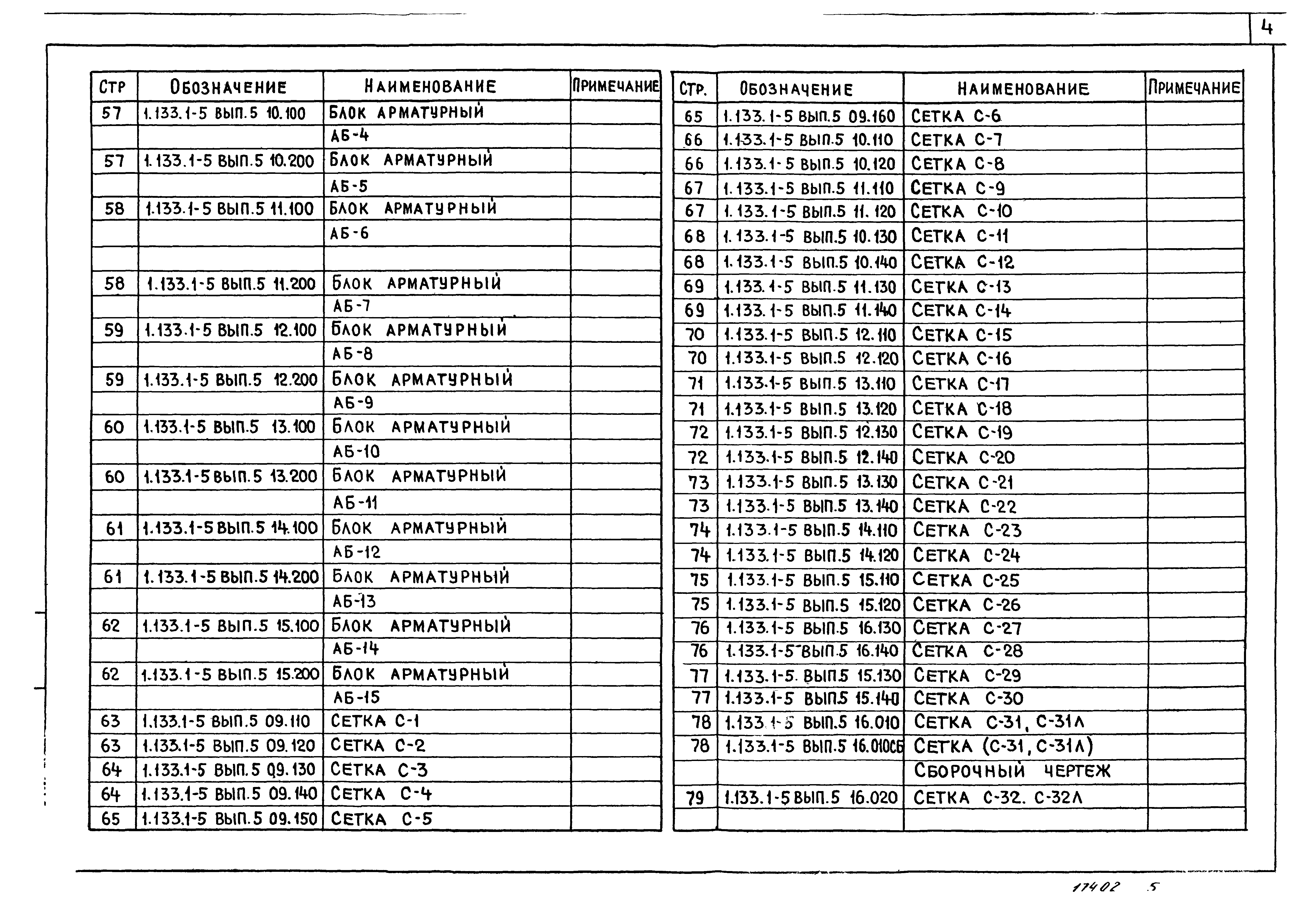
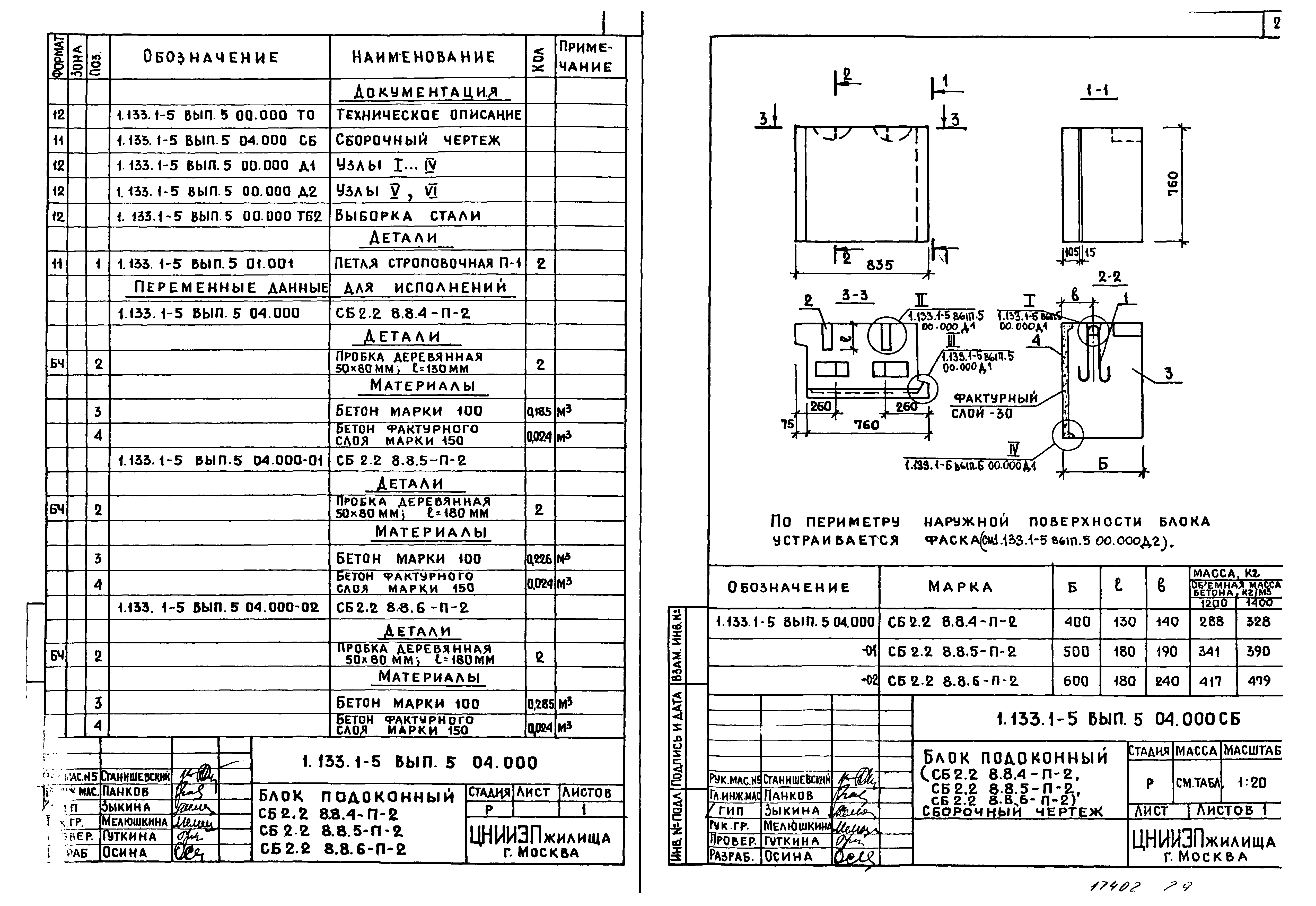
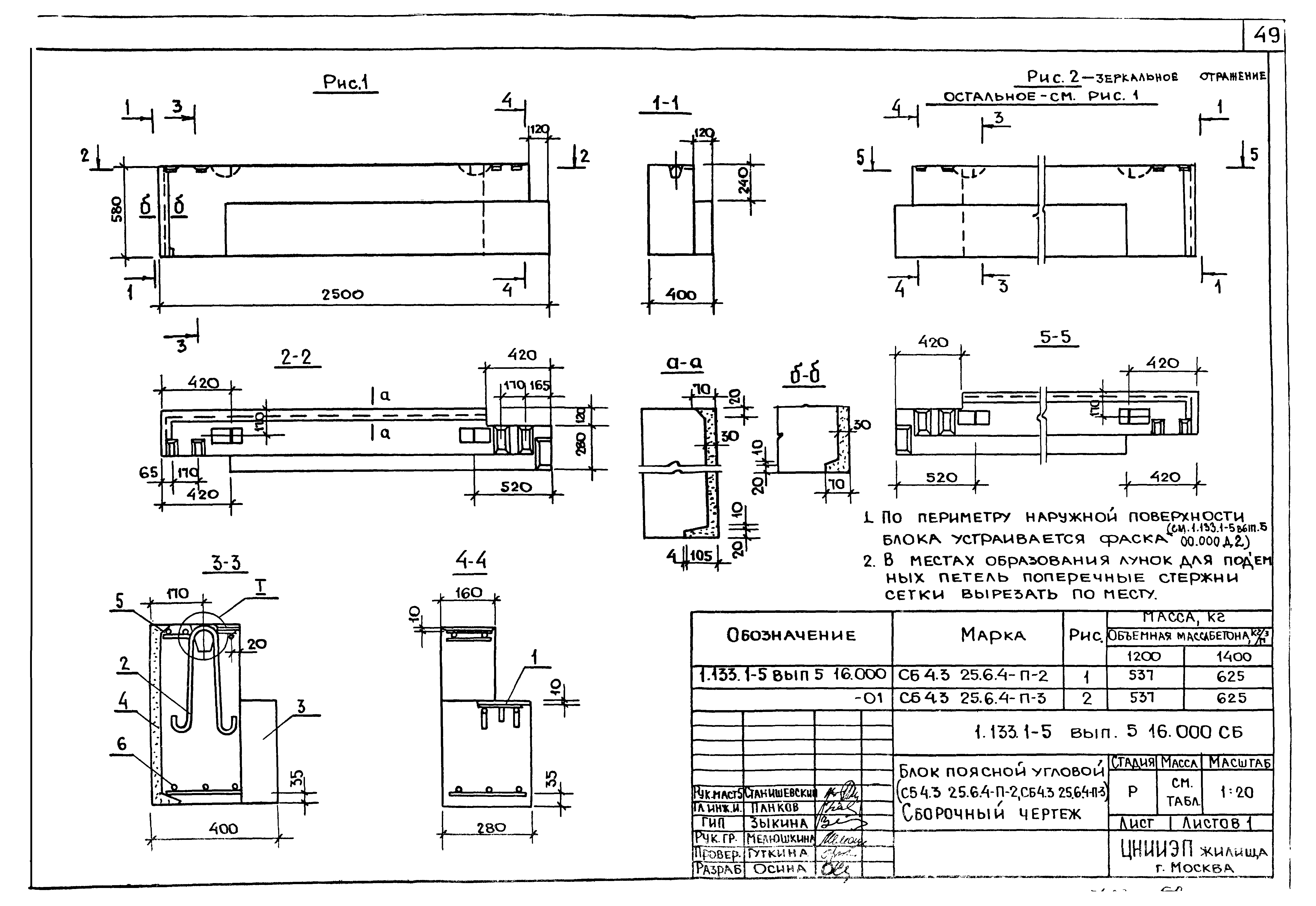
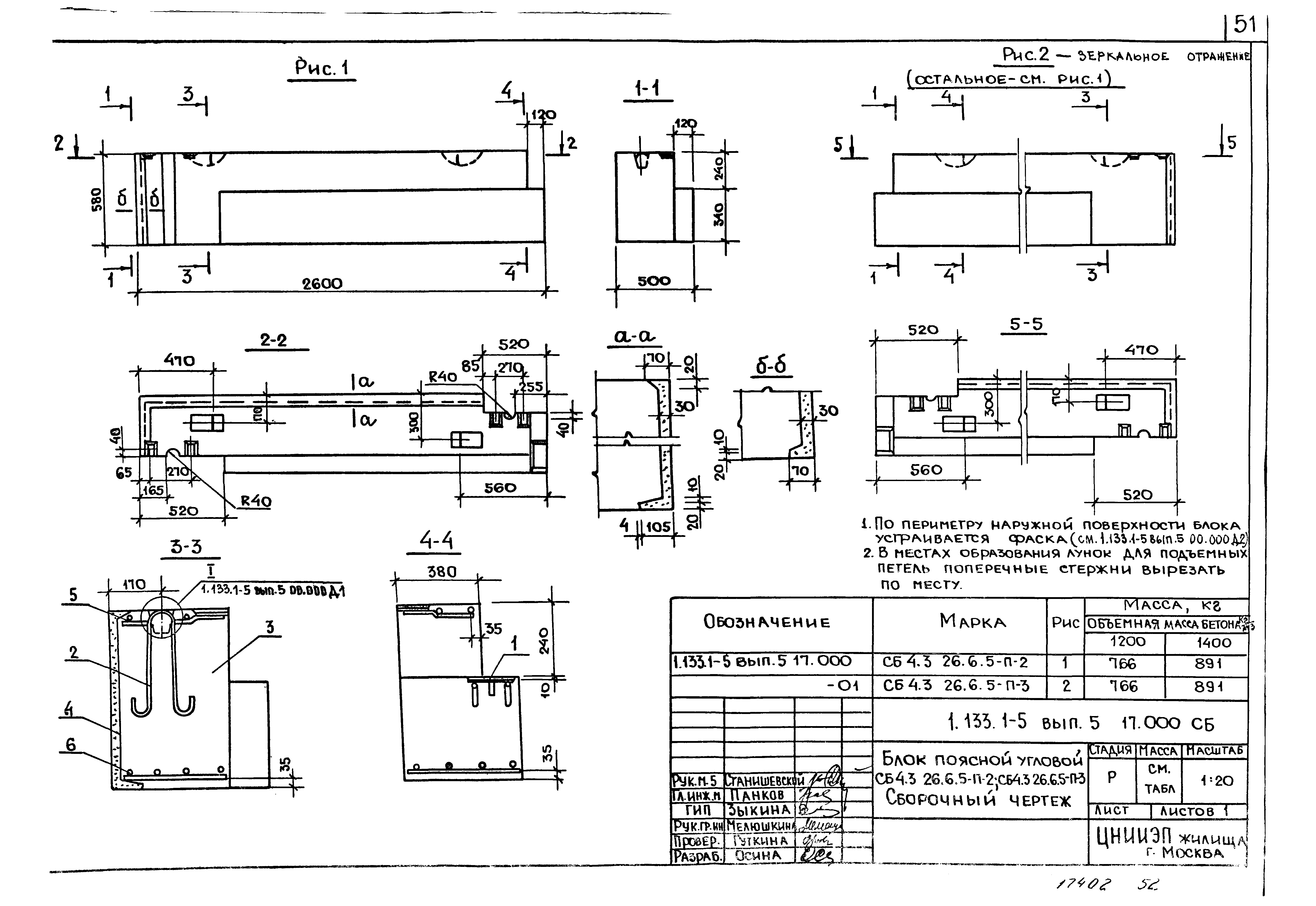
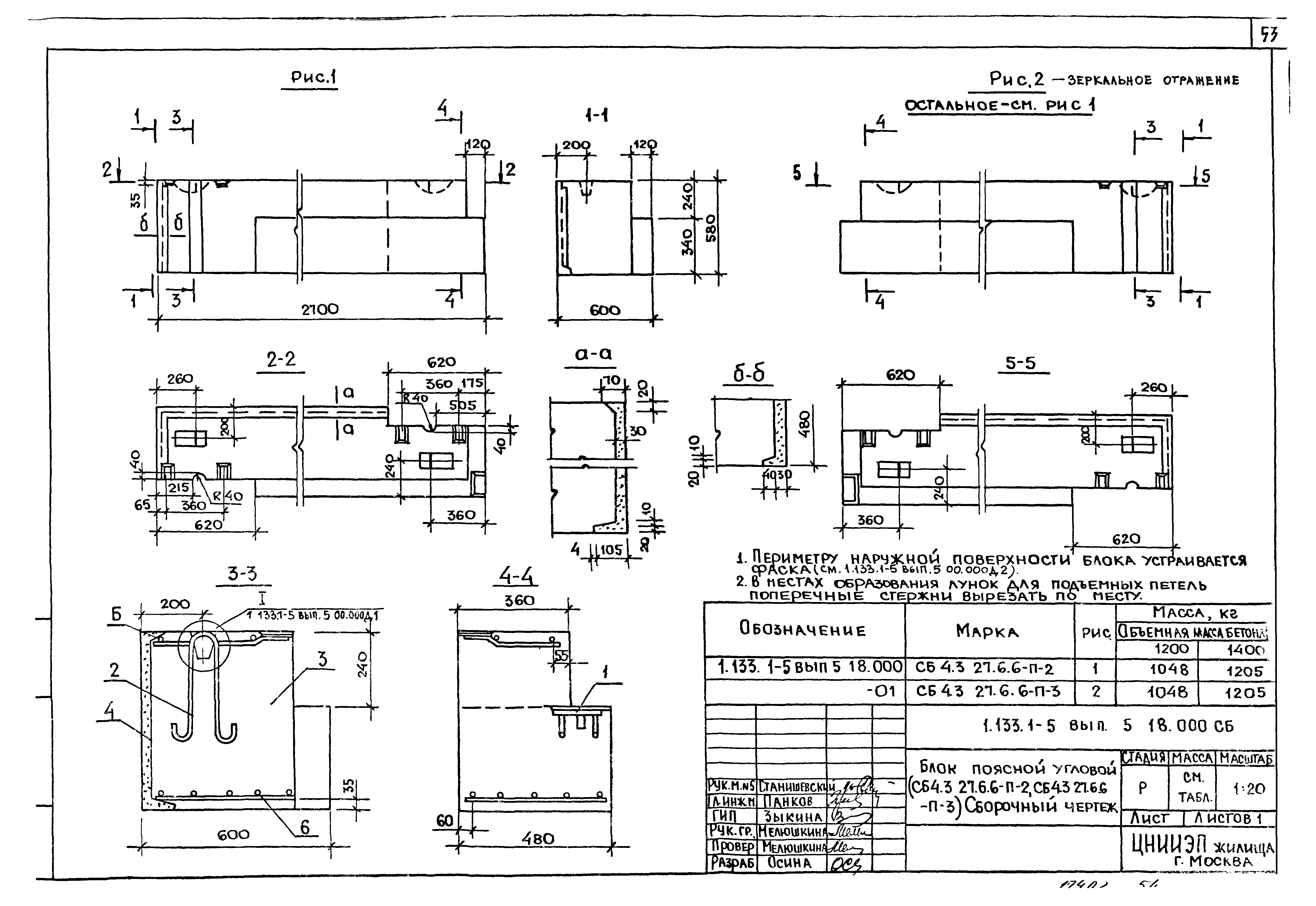
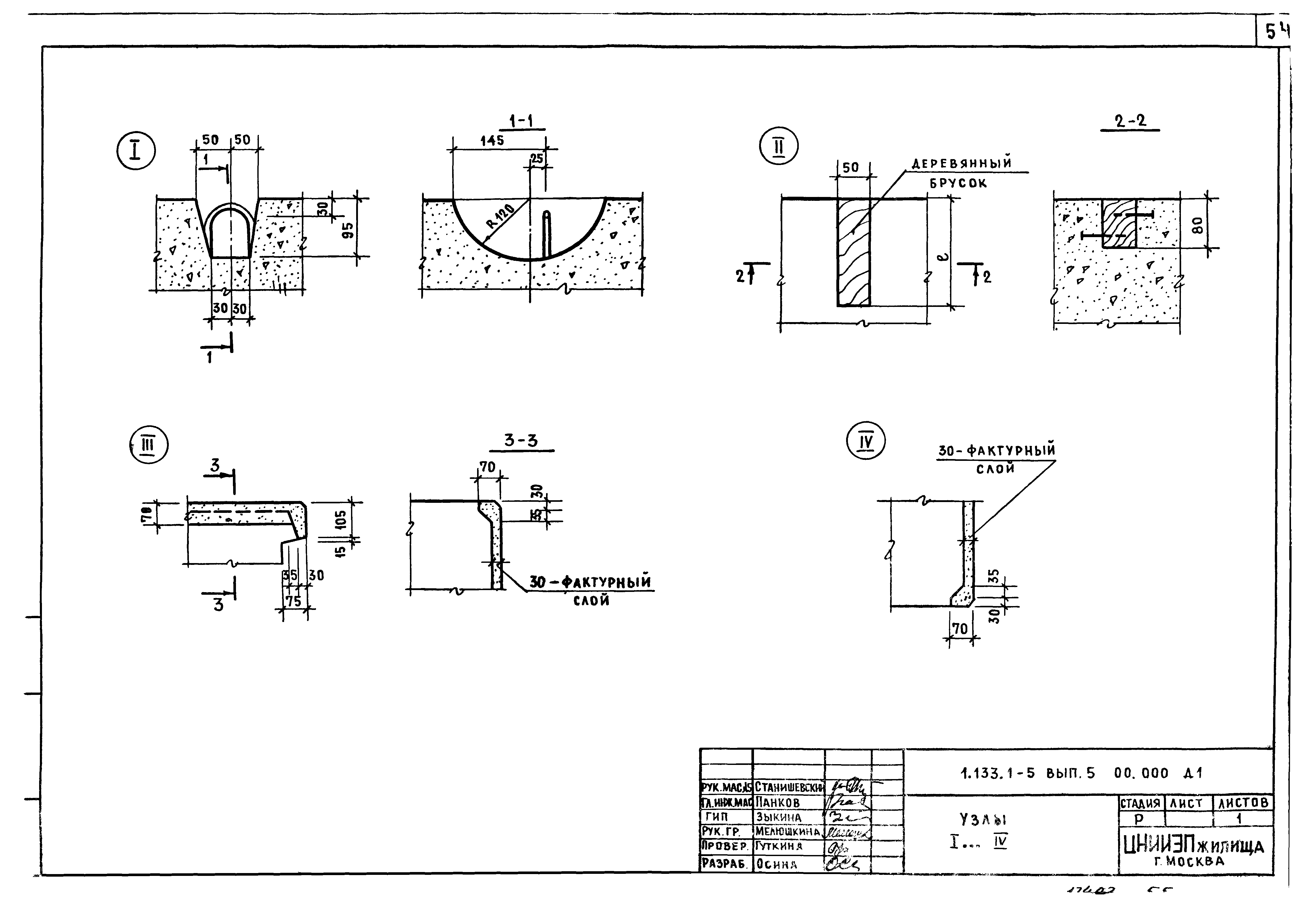
Выпуск 5. Стеновые легкобетонные блоки толщиной 40, 50 и 60 см для жилых зданий высотой 5 - 9 этажей (доборные: поясные, подоконные, перемычечные)| Обозначение: | Серия 1.133.1-5 | | Обозначение англ: | Series 1.133.1-5 | | Статус: | заменен | | Название рус.: | Выпуск 5. Стеновые легкобетонные блоки толщиной 40, 50 и 60 см для жилых зданий высотой 5 - 9 этажей (доборные: поясные, подоконные, перемычечные) | | Дата добавления в базу: | 01.09.2013 | | Дата актуализации: | 01.01.2021 | | Дата введения: | 01.07.1981 | | Дата окончания срока действия: | 01.10.1989 | | Область применения: | Настоящий выпуск содержит техническое описание, сборочные чертежи блоков наружных стен, арматурные изделия, узлы, детали и закладные изделия | | Оглавление: | Содержание Техническое описание Номенклатура Выборка стали Блок подоконный Блок перемычечный Блок поясной угловой Узлы I - IV Узлы V - VIII Блок арматурный Сетка Изделие закладное Петля строповочная | | Разработан: | ЦНИИЭП жилища
| | Утверждён: | 04.06.1981 Государственный комитет по гражданскому строительству и архитектуре при Госстрое СССР (177)
| | Чем заменён: | | | Нормативные ссылки: | |
                                                                                      
|