Скачать Серия 1.133-2 Выпуск 7. Легкобетонные блоки для наружных стен толщиной 30, 40, 50 и 60 см для жилых зданий высотой 1 - 4 этажа и общественных зданий высотой 1 - 3 этажа. Опалубочные чертежи. АрмированиеДата актуализации: 01.01.2021
|
| Обозначение: | Серия 1.133-2 |
| Обозначение англ: | Series 1.133-2 |
| Статус: | заменен |
| Название рус.: | Выпуск 7. Легкобетонные блоки для наружных стен толщиной 30, 40, 50 и 60 см для жилых зданий высотой 1 - 4 этажа и общественных зданий высотой 1 - 3 этажа. Опалубочные чертежи. Армирование |
| Дата добавления в базу: | 01.09.2013 |
| Дата актуализации: | 01.01.2021 |
| Дата введения: | 01.06.1979 |
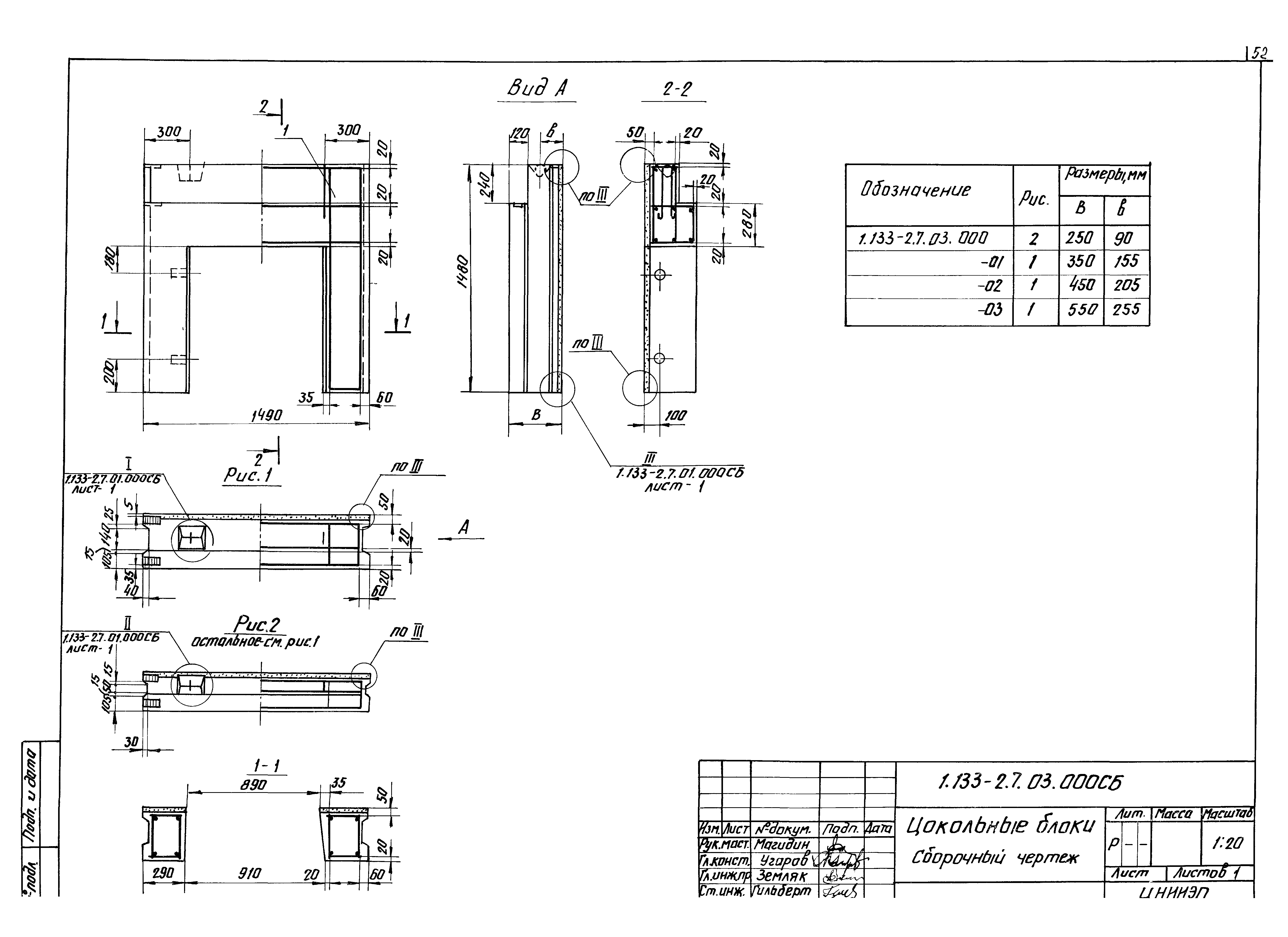
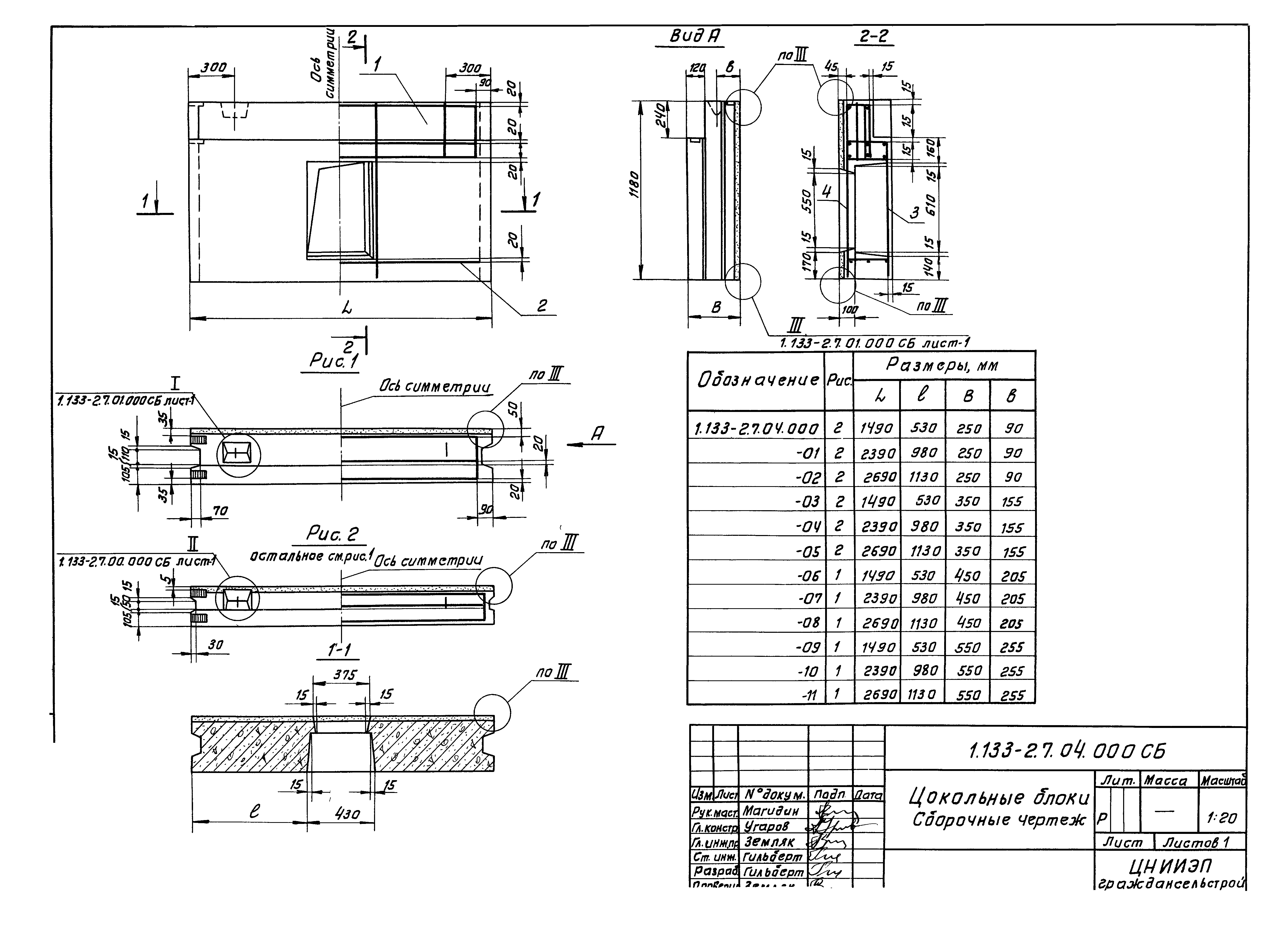
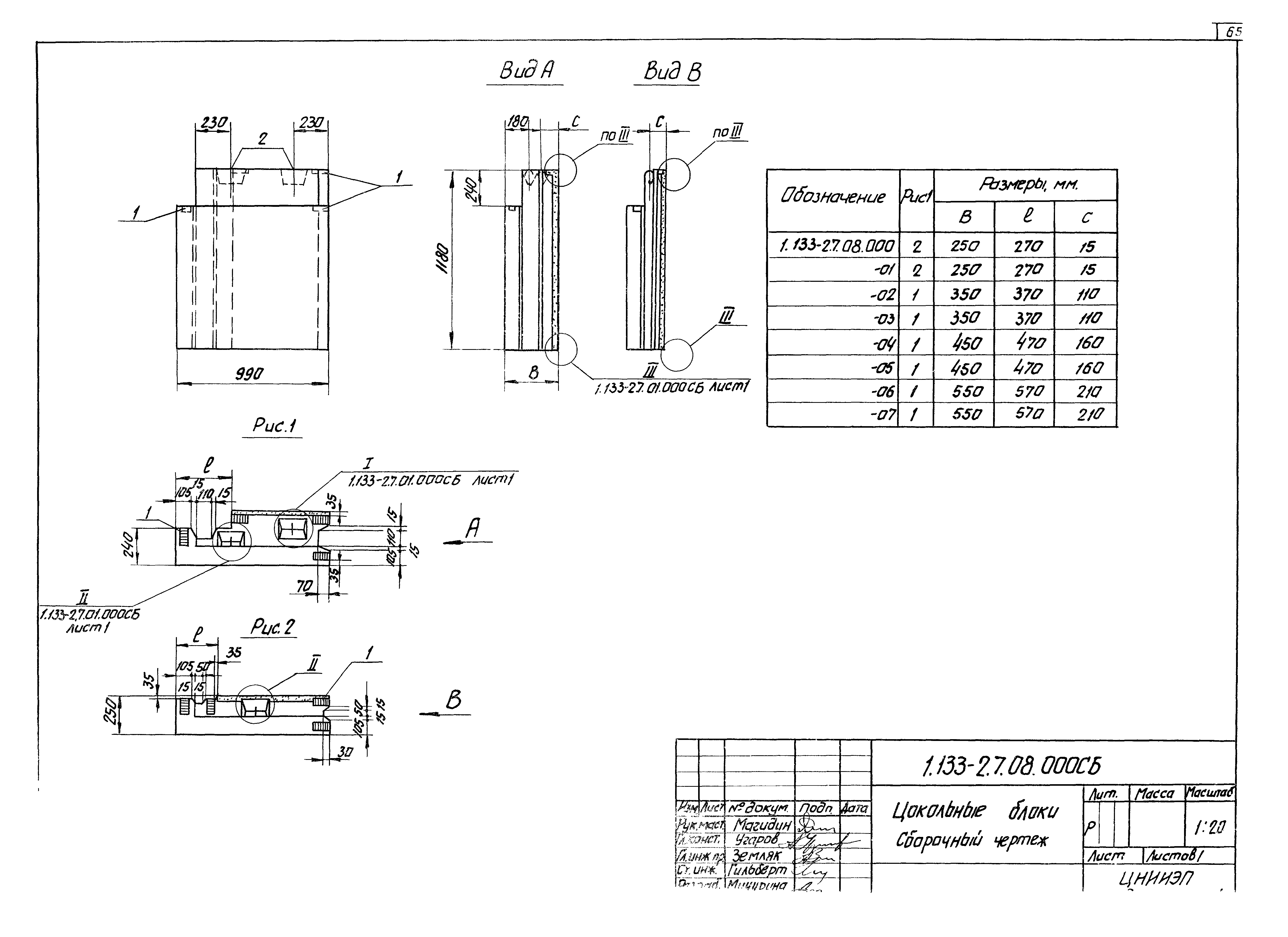
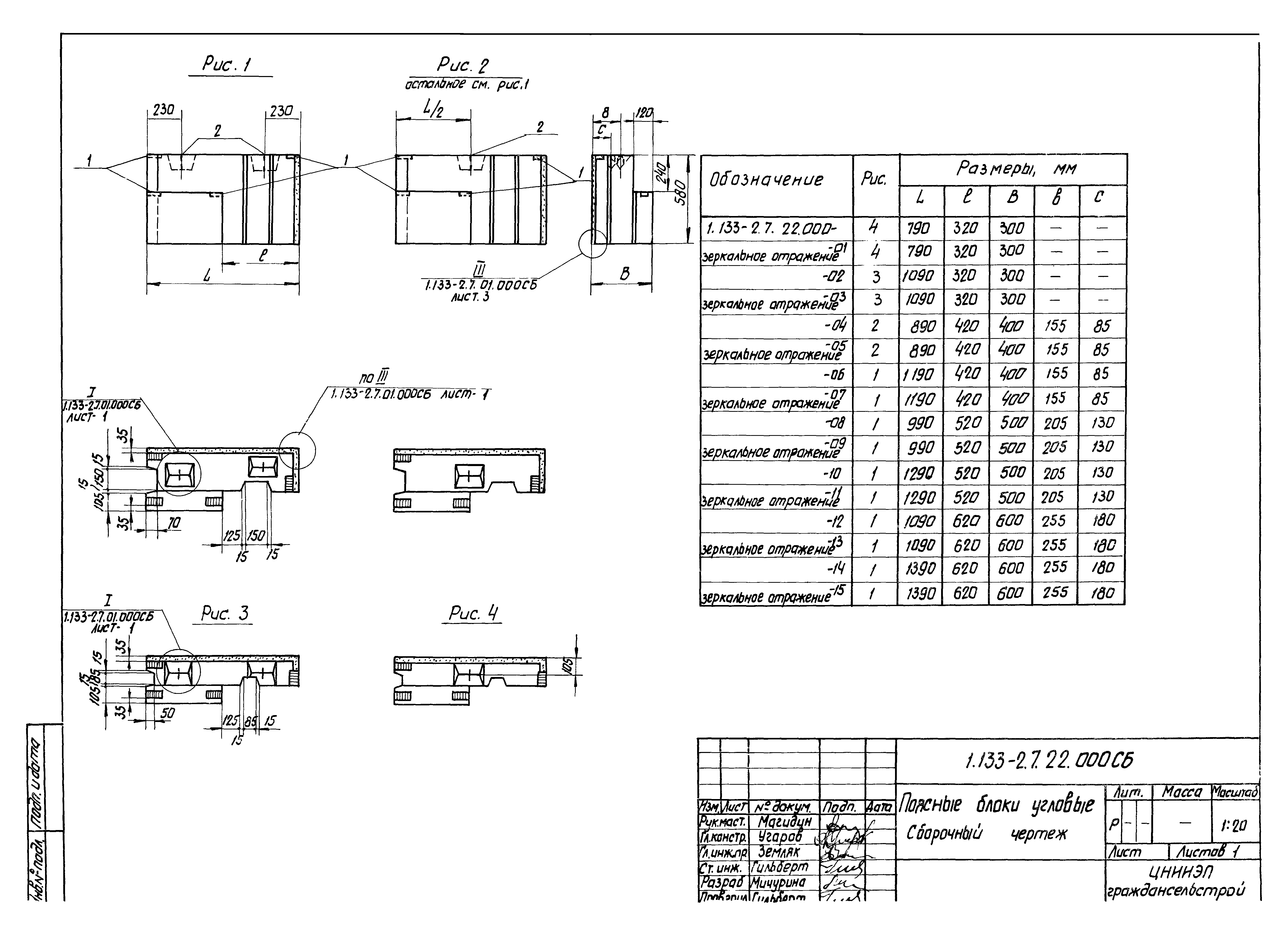
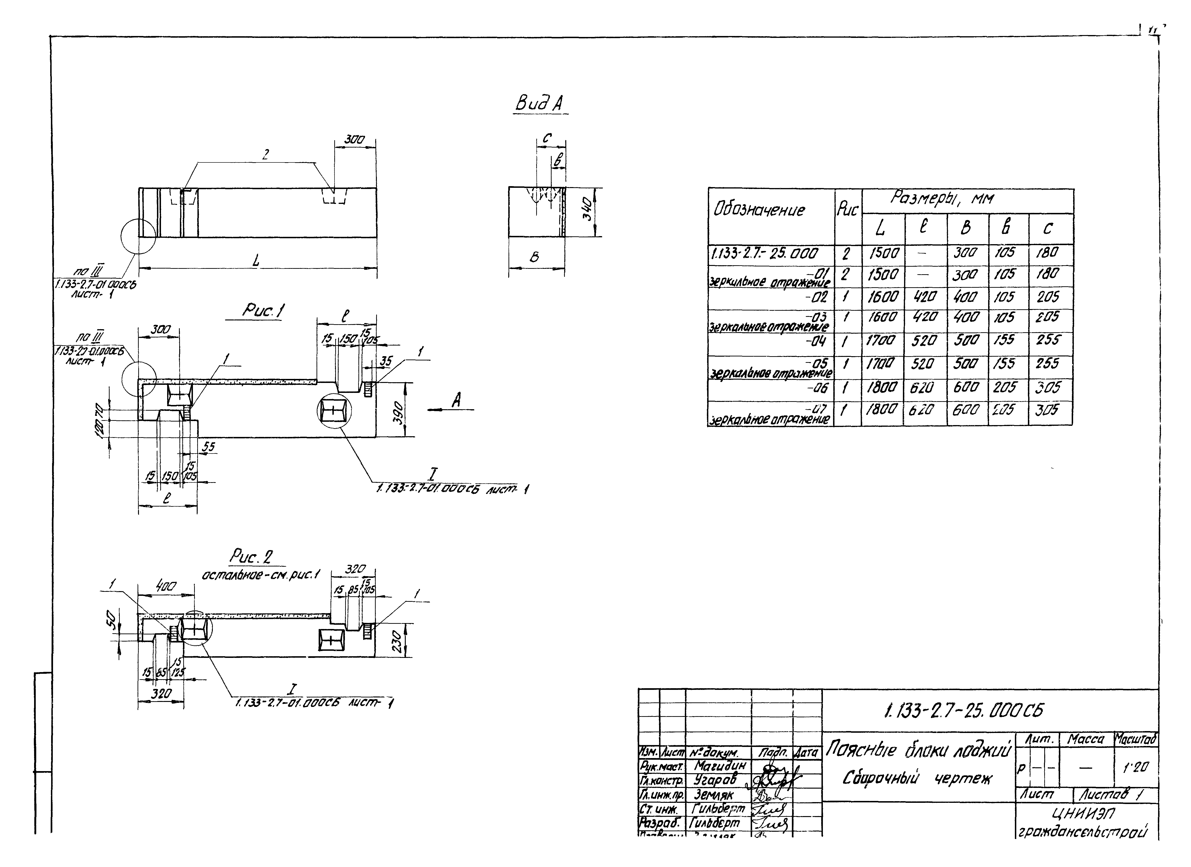
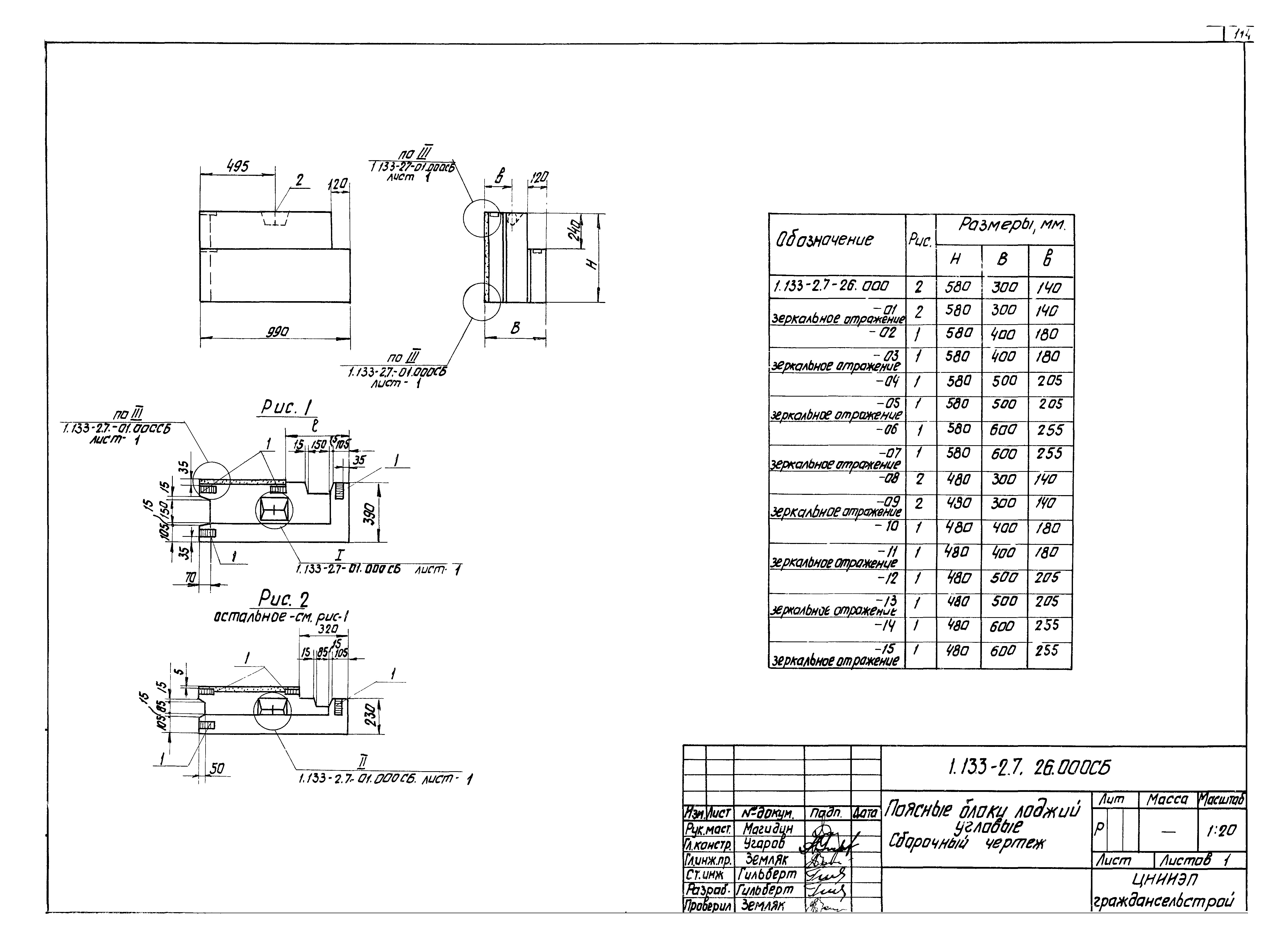
| Область применения: | В настоящем выпуске приведены опалубочные чертежи легкобетонных цокольных, простеночных, подоконных, перемычечных, поясных, подкарнизных и парапетных блоков и их армированиедля наружных стен толщиной 30, 40, 50 и 60 см. Изготовление изделий предусматривается по поточно-агрегатной технологии на заводах ЖБИ |
| Оглавление: | Титульный лист Содержание Техническое описание Ведомость ссылочных документов Выборка стали Цокольные блоки Цокольные блоки угловые Цокольные блоки лоджий Простеночные блоки Простеночные блоки доборные Простеночные блоки лоджий угловые Подоконные блоки Подоконные блоки балконные Перемычечные блоки Поясные блоки Поясные блоки угловые Поясные блоки лоджий Поясные блоки лоджий угловые Подкарнизные блоки Подкарнизные блоки угловые Парапетные блоки Парапетные блоки угловые |
| Разработан: | ЦНИИЭП граждансельстрой |
| Утверждён: | 28.04.1979 Госгражданстрой (Gosgrazhdanstroy 86) |
| Чем заменён: | |
| Нормативные ссылки: |
|
































































































































