Скачать Серия 1.136-3 Выпуск 1. Окна и балконные двери со спаренными и раздельными переплетами и полотнами по ГОСТ 11214-65 (с учетом изменения № 2, утвержденного постановлением Госстроя СССР от 3 марта 1970 г. № 16)Дата актуализации: 01.01.2021
|
| Обозначение: | Серия 1.136-3 |
| Обозначение англ: | Series 1.136-3 |
| Статус: | не действует |
| Название рус.: | Выпуск 1. Окна и балконные двери со спаренными и раздельными переплетами и полотнами по ГОСТ 11214-65 (с учетом изменения № 2, утвержденного постановлением Госстроя СССР от 3 марта 1970 г. № 16) |
| Дата добавления в базу: | 01.09.2013 |
| Дата актуализации: | 01.01.2021 |
| Дата окончания срока действия: | 01.09.1981 |
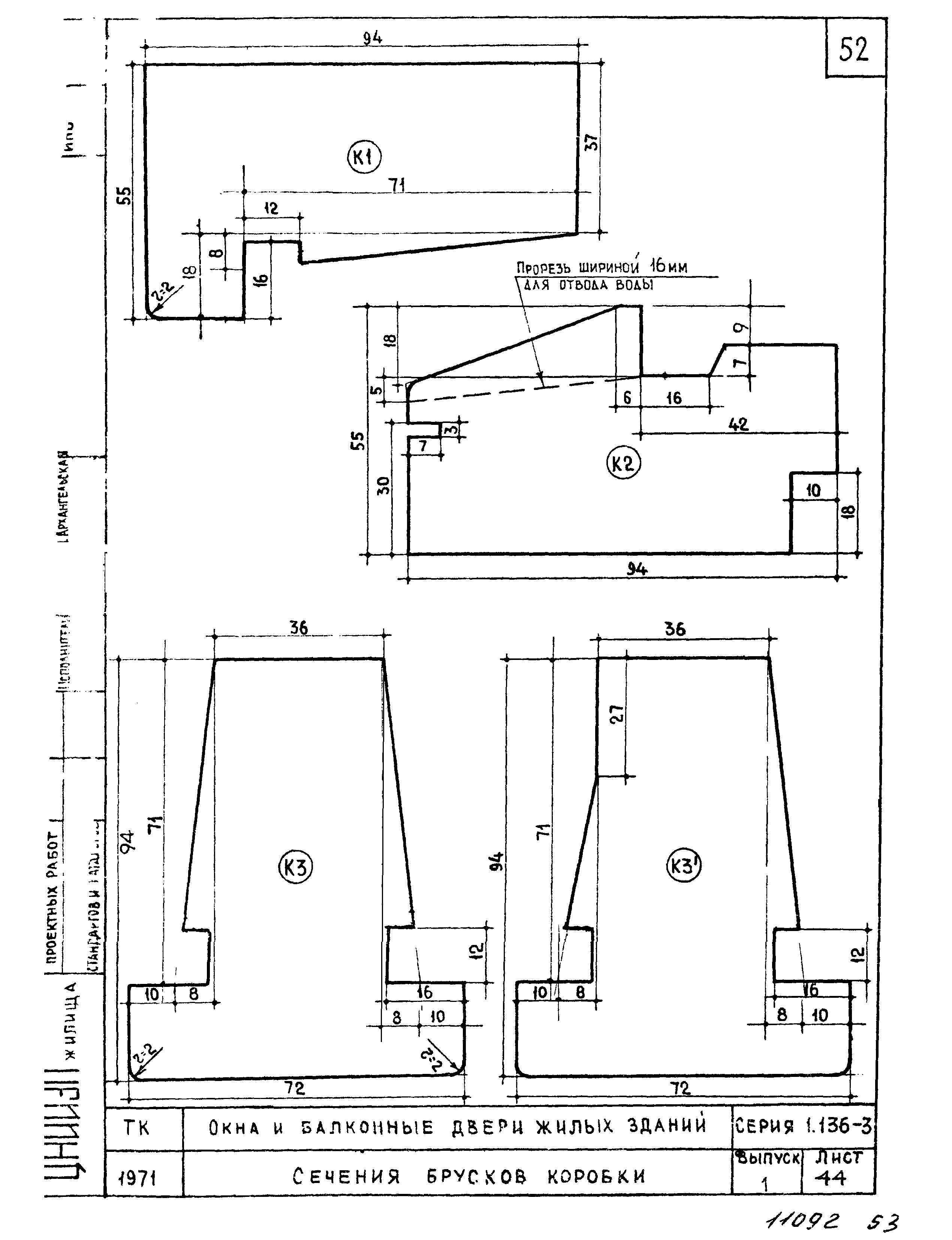
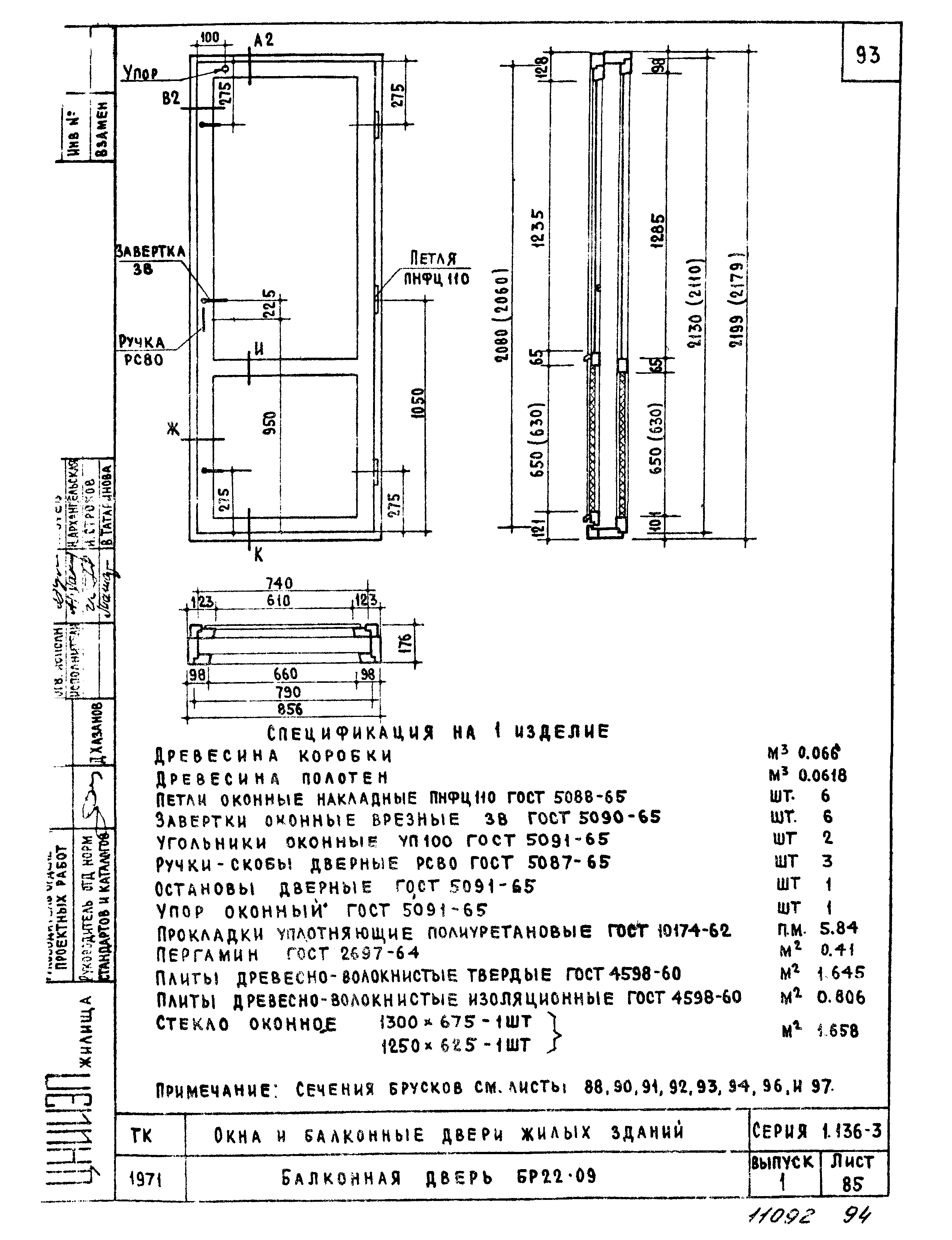
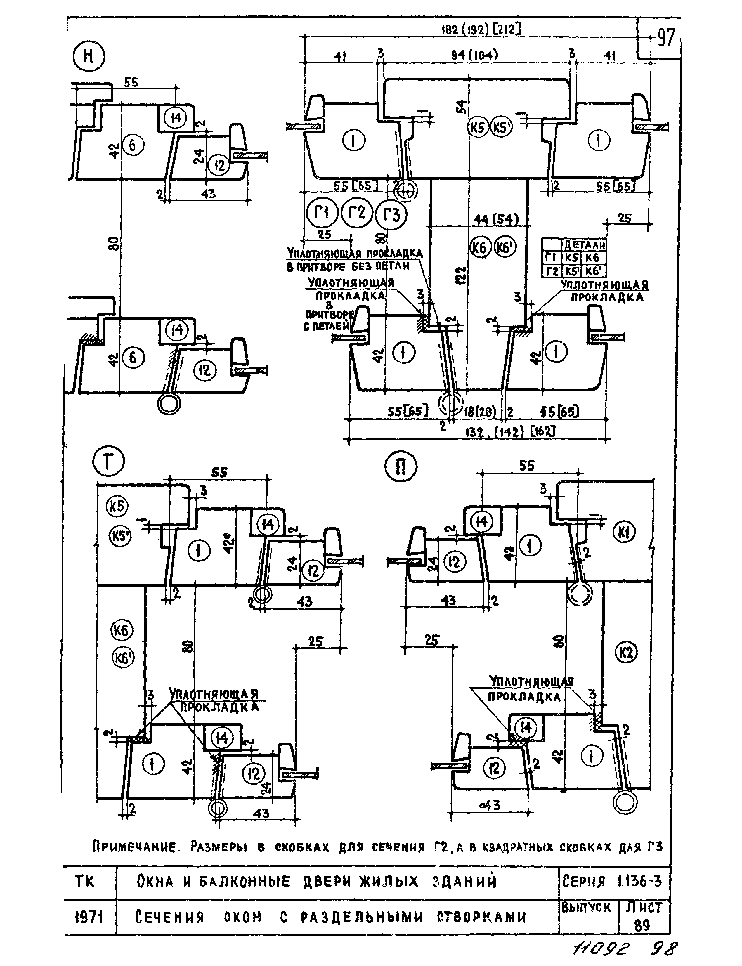
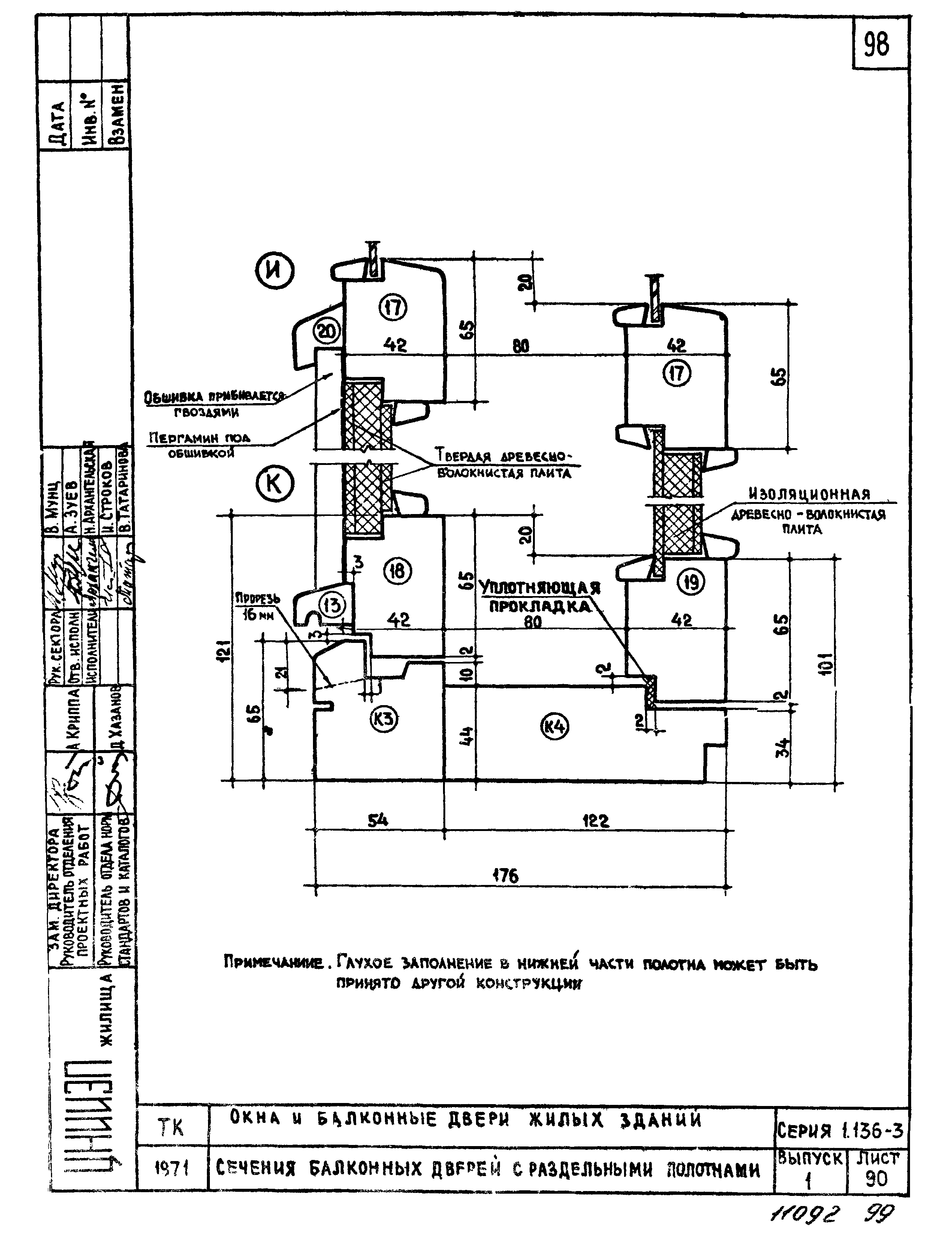
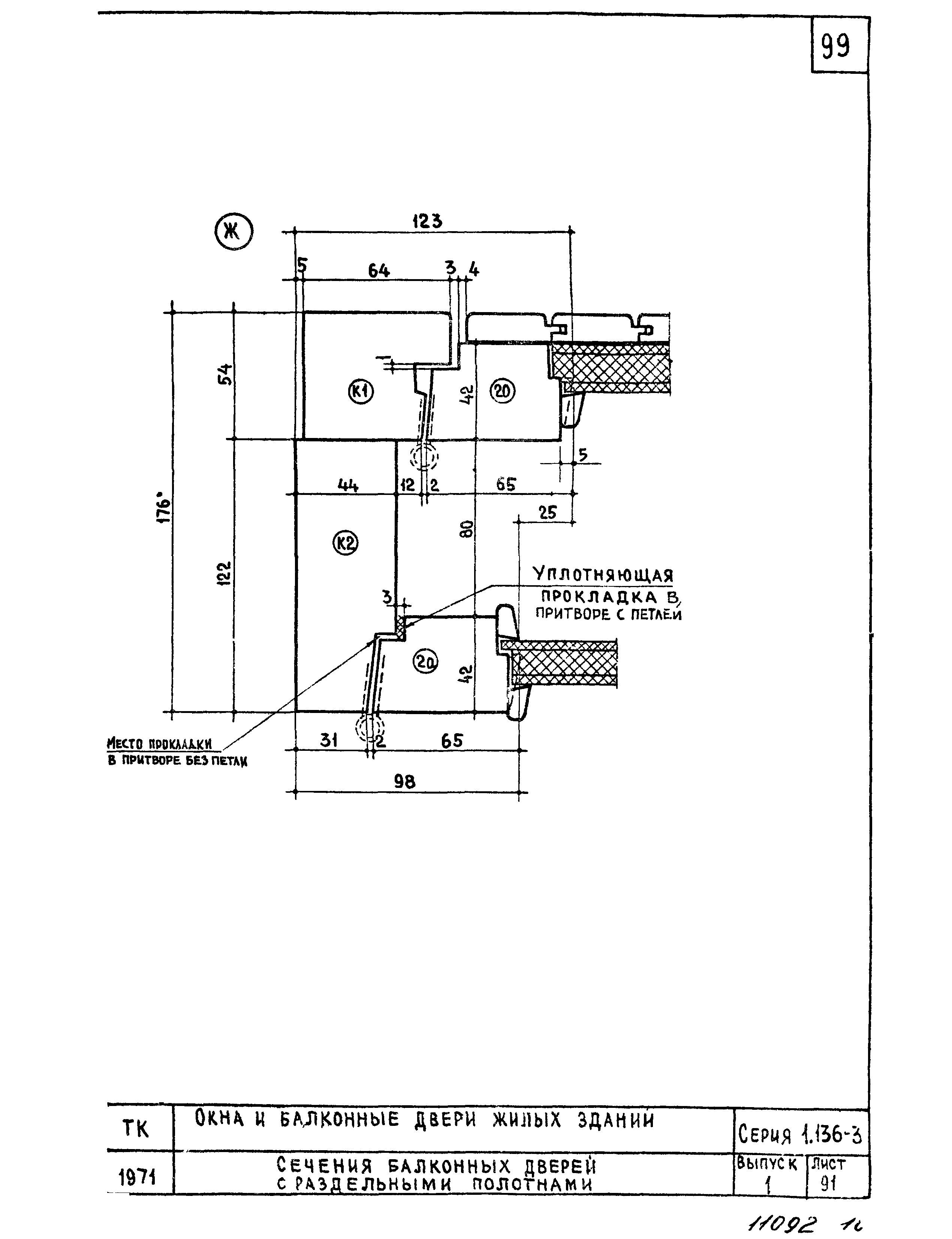
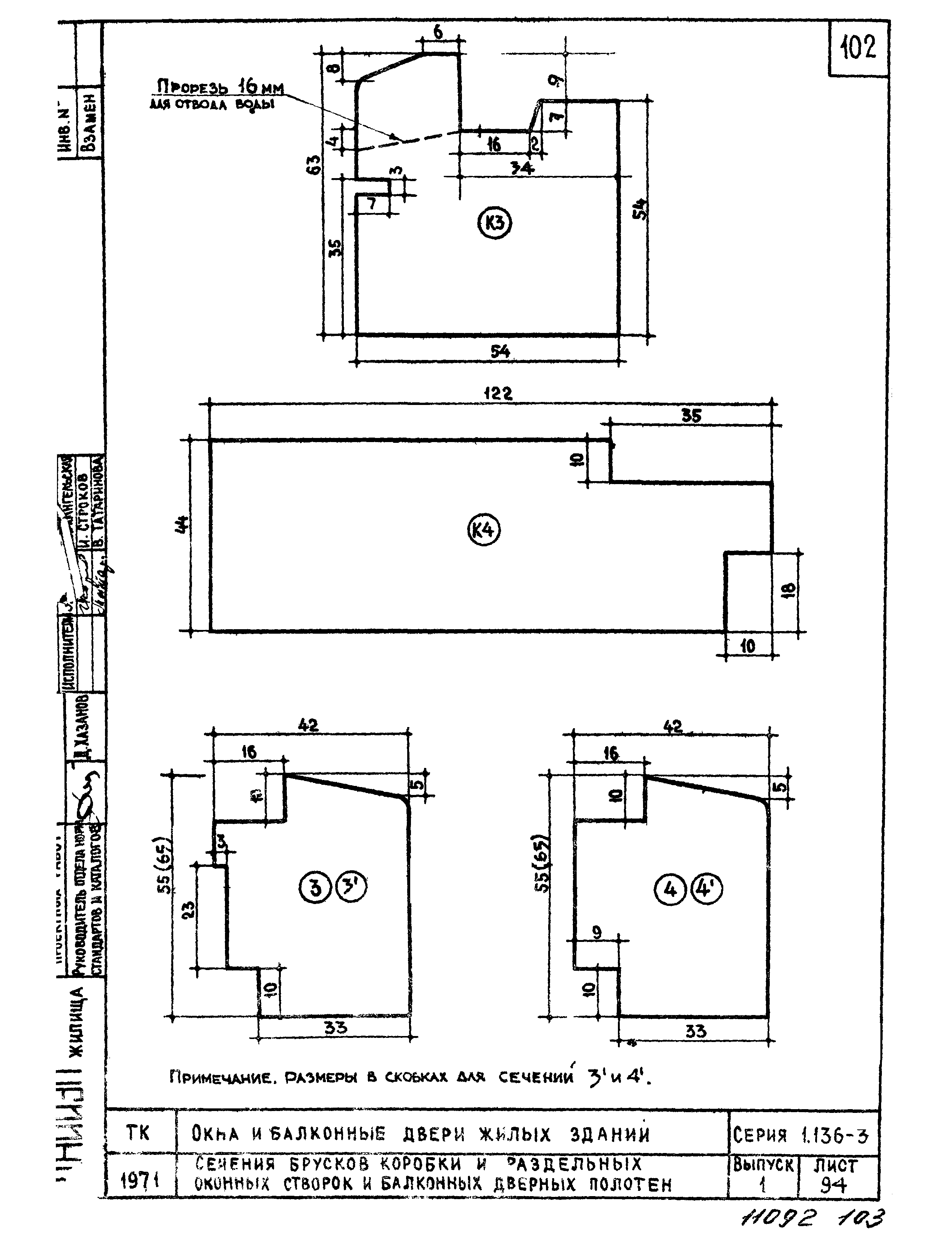
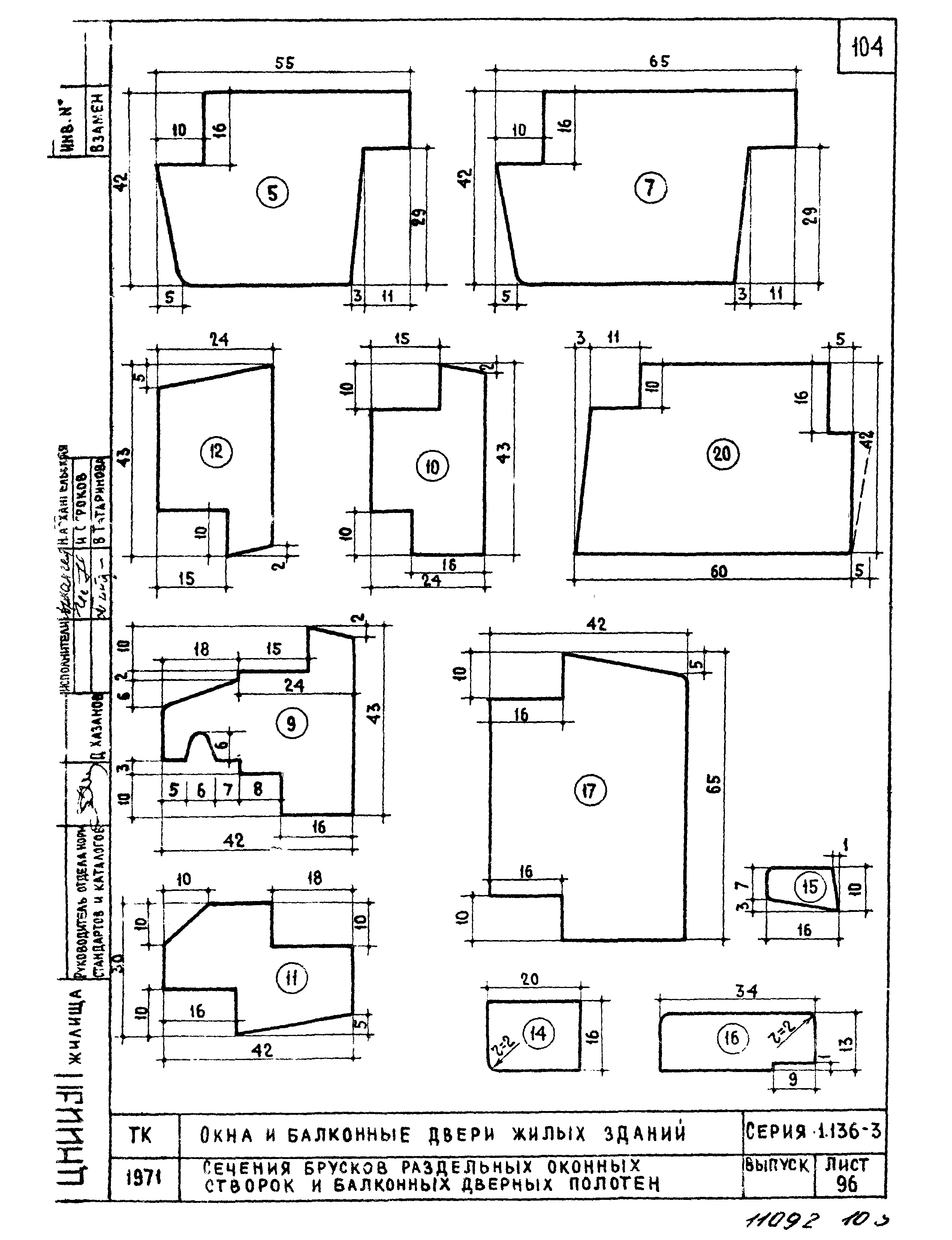
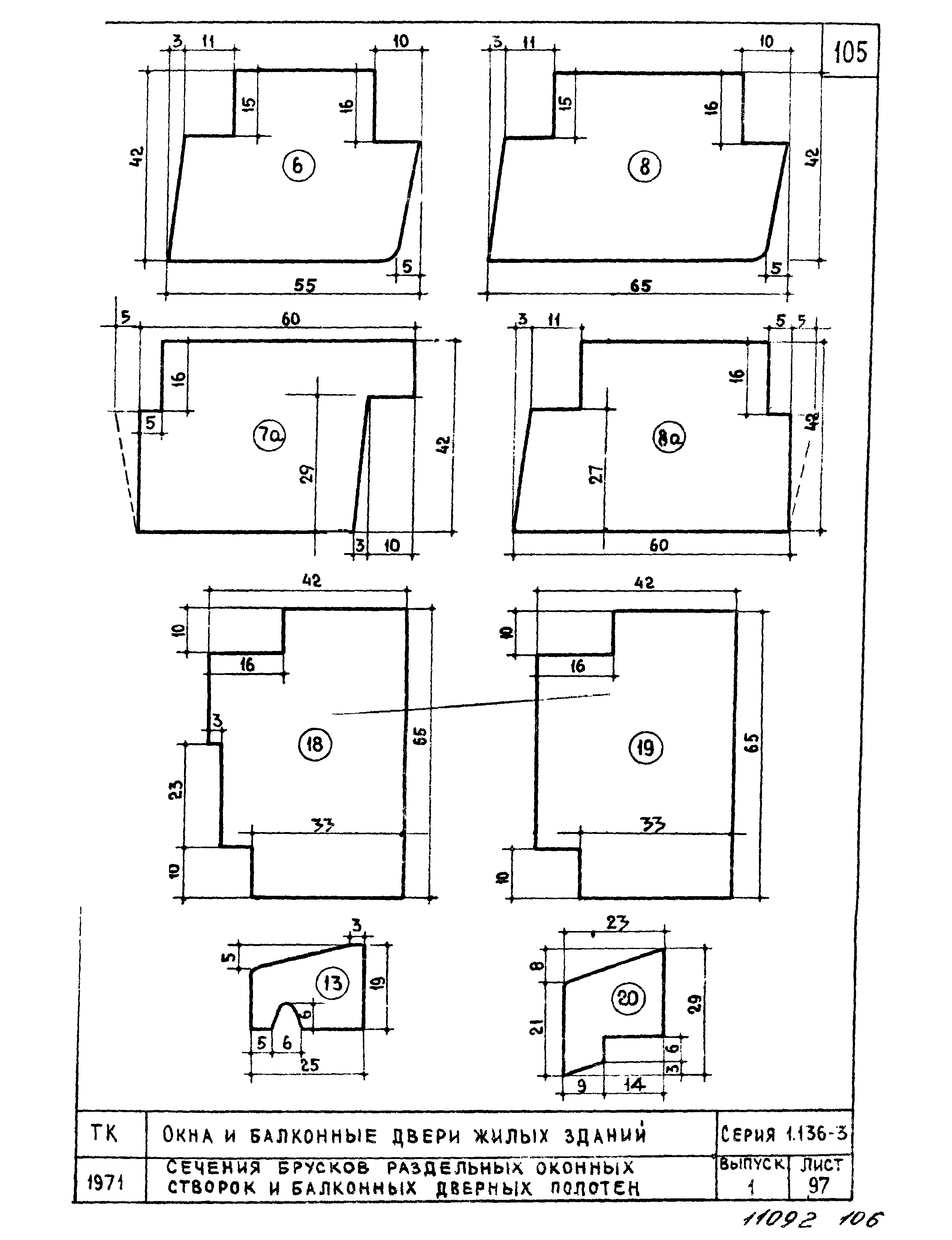
| Оглавление: | Содержание Пояснительная записка Окно со спаренными створками Балконная дверь со спаренными полотнами Сечения окон и балконных дверей со спаренными створками и полотнами Сечения брусков коробок Сечения брусков створок и полотен Окно с раздельными створками Балконная дверь с раздельными полотнами Сечения окон и балконных дверей с раздельными створками и полотнами Сечения окон с раздельными створками Сечения балконных дверей с раздельными полотнами Сечения брусков коробок, раздельных створок и дверных полотен Сечения брусков коробок окон с раздельными створками Сечения брусков раздельных оконных створок и балконных дверей полотен Габариты проемов для окон и дверей |
| Разработан: | ЦНИИЭП жилища |
| Утверждён: | 11.03.1971 Госгражданстрой (Gosgrazhdanstroy 34) |
| Чем заменён: |











































































































