Скачать Серия 1.435-2 Выпуск 6. Железобетонные конструкции обрамления ворот. Рабочие чертежиДата актуализации: 01.01.2021
|
| Обозначение: | Серия 1.435-2 |
| Обозначение англ: | Series 1.435-2 |
| Статус: | не действует |
| Название рус.: | Выпуск 6. Железобетонные конструкции обрамления ворот. Рабочие чертежи |
| Дата добавления в базу: | 01.09.2013 |
| Дата актуализации: | 01.01.2021 |
| Дата введения: | 01.09.1969 |
| Дата окончания срока действия: | 01.10.1977 |
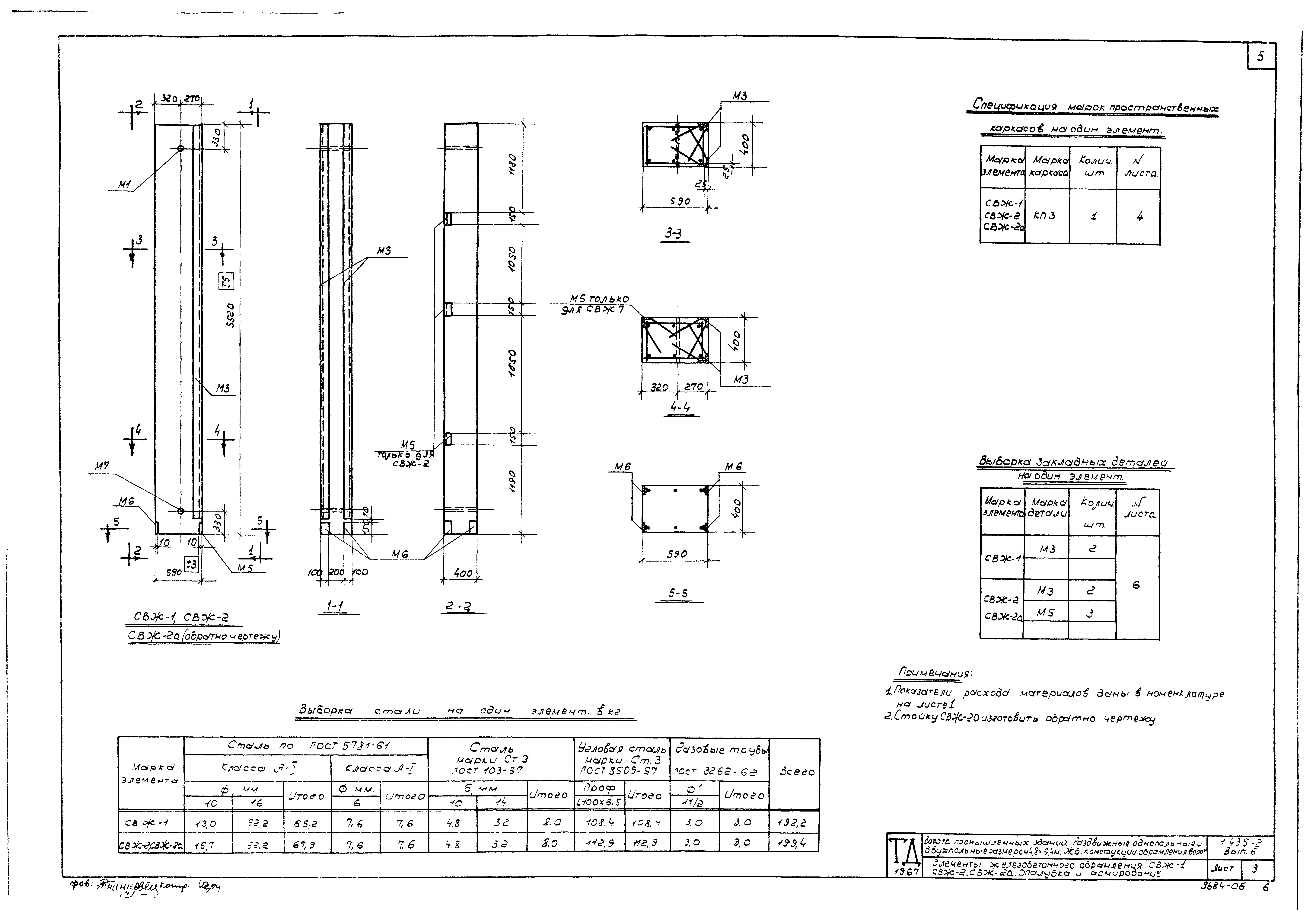
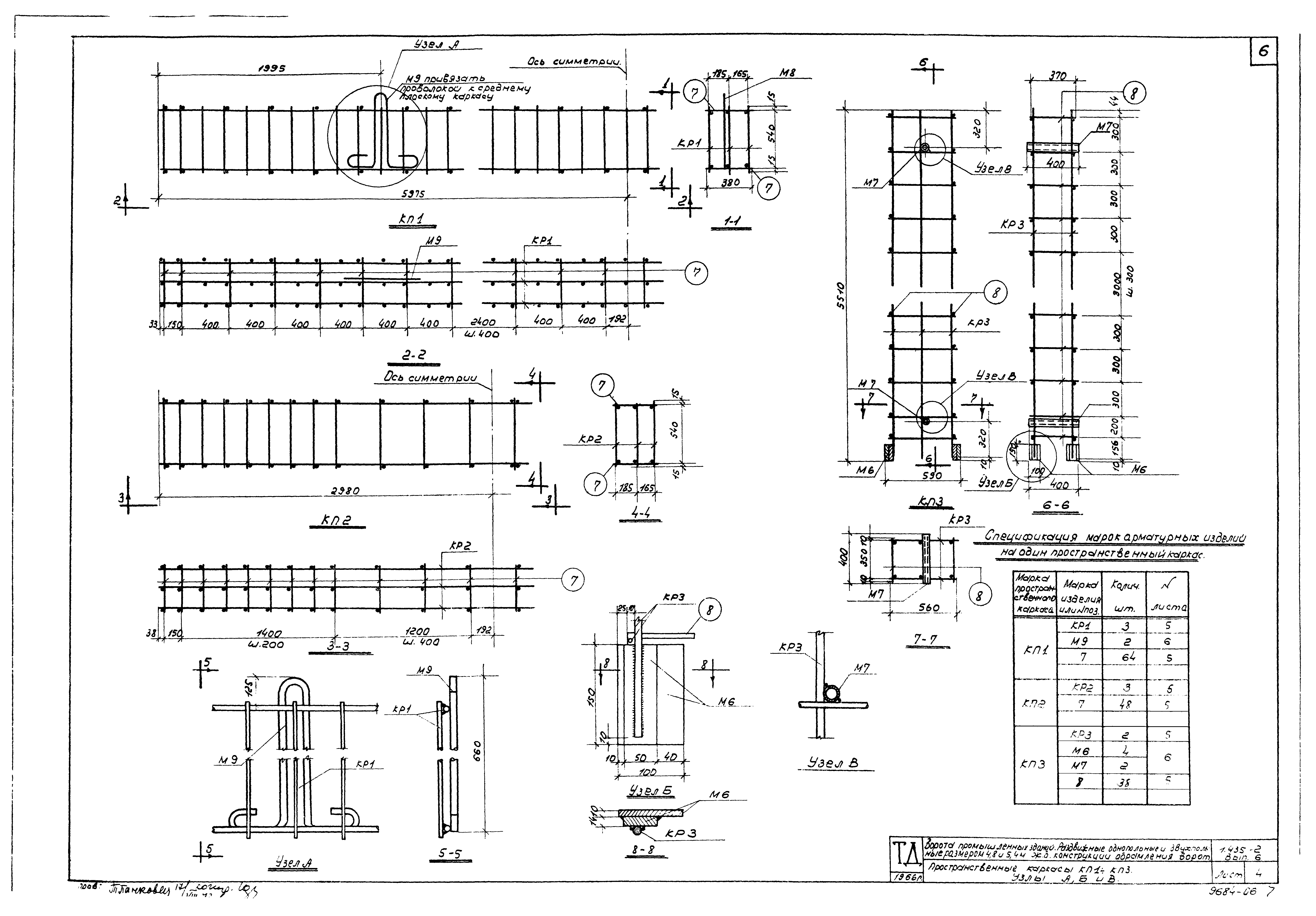
| Оглавление: | Пояснительная записка Номенклатура элементов железобетонного обрамления Элементы железобетонного обрамления РВЖ-1 - РВЖ-4. Опалубка и армирование Элементы железобетонного обрамления СВЖ-1, СВЖ-2, СВЖ-2а. Опалубка и армирование Пространственные каркасы КП1 - КП3. Узлы А, Б и В Плоские каркасы КР1 - КР3. Спецификация стали Закладные детали М1 - М9. Соединительные элементы МС1 - МС3, МС3а |
| Разработан: | ЦНИИпромзданий |
| Утверждён: | 25.04.1969 Госстрой СССР (Государственный комитет Совета Министров СССР по делам строительства) (USSR Gosstroy 55) |









