Скачать Серия 3.407-101 Альбом II. Металлические и железобетонные элементыДата актуализации: 01.01.2021
|
| Обозначение: | Серия 3.407-101 |
| Обозначение англ: | Series 3.407-101 |
| Статус: | не действует |
| Название рус.: | Альбом II. Металлические и железобетонные элементы |
| Дата добавления в базу: | 01.09.2013 |
| Дата актуализации: | 01.01.2021 |
| Дата введения: | 30.01.1975 |
| Дата окончания срока действия: | 01.02.1989 |
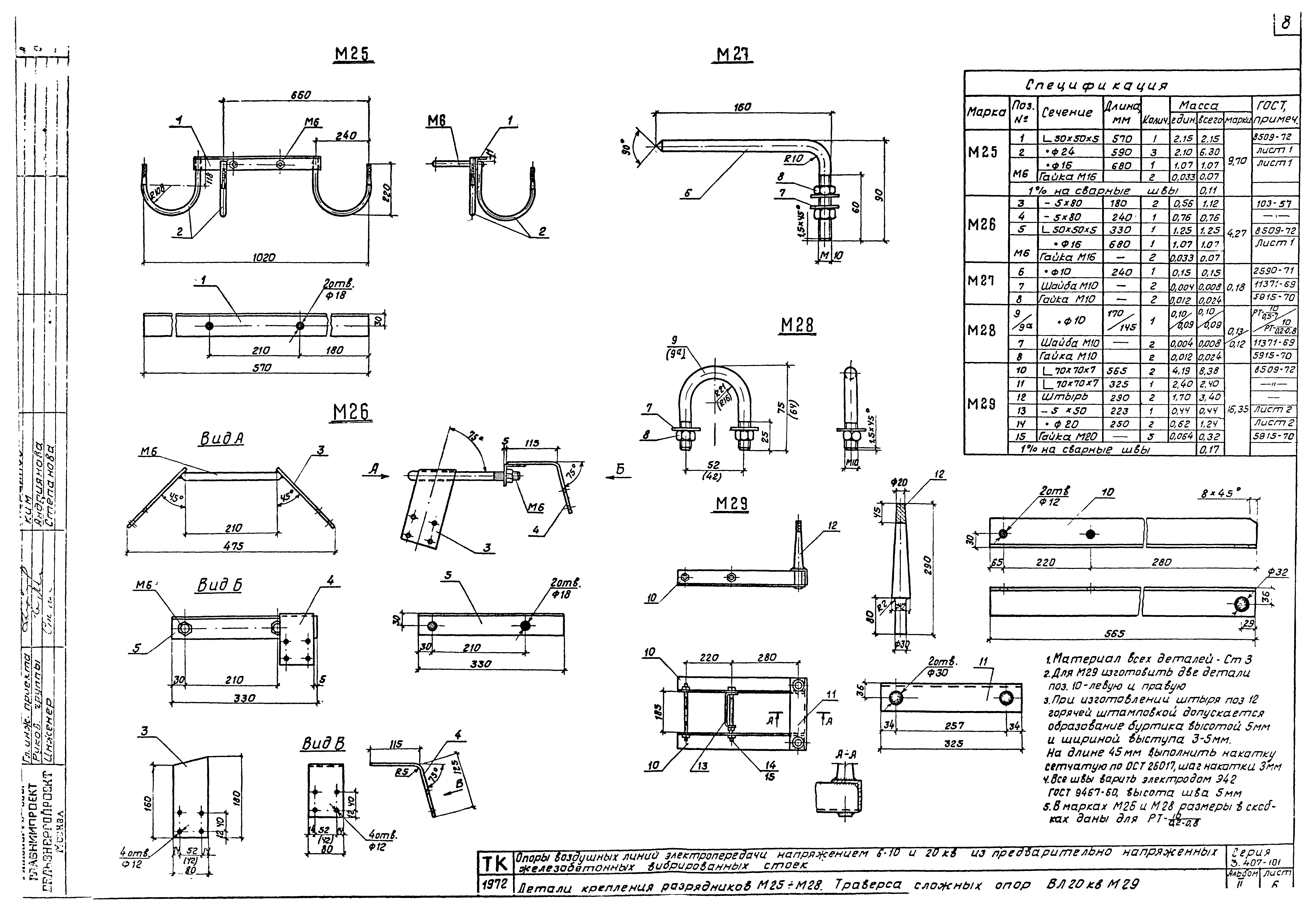
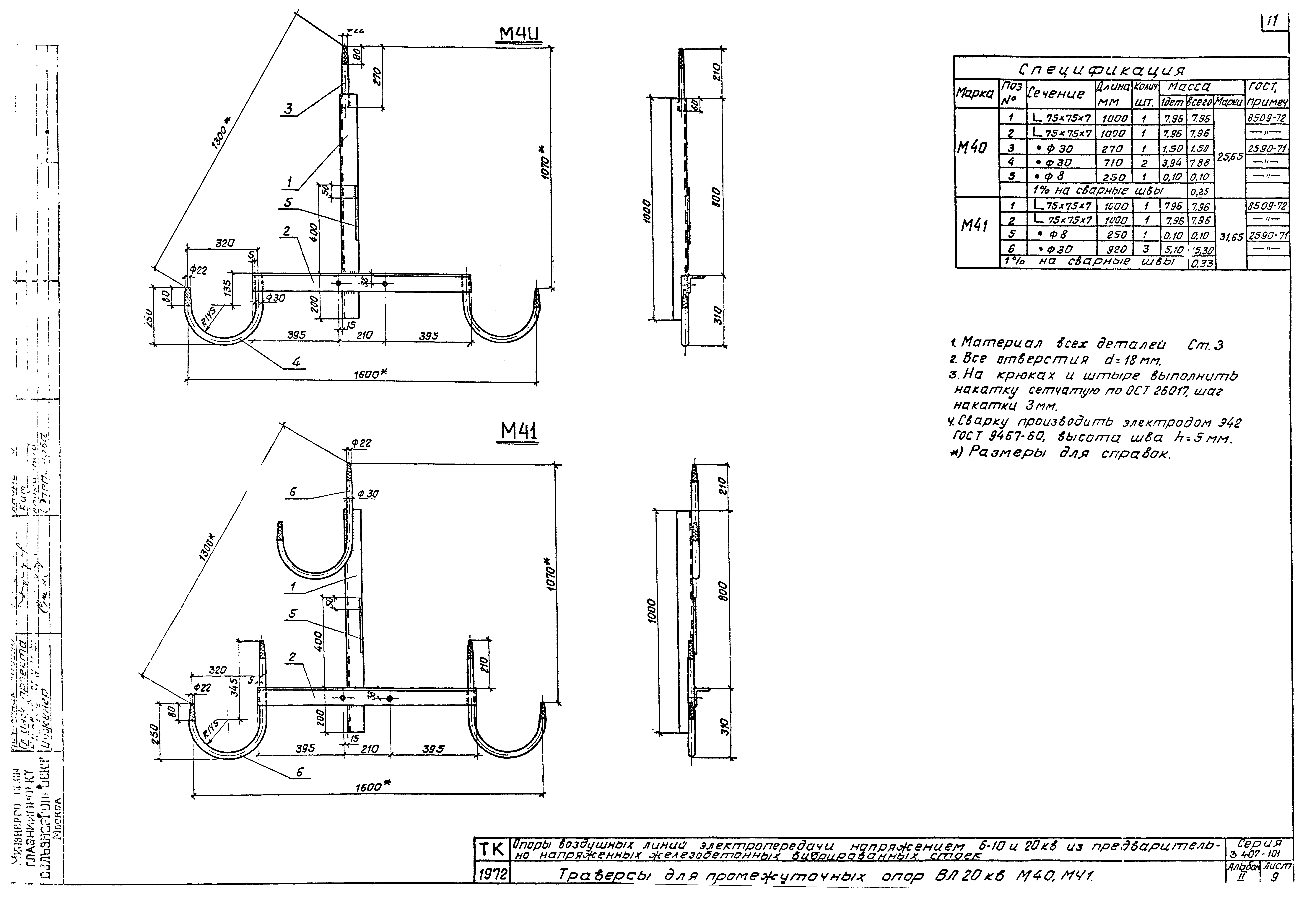
| Оглавление: | Траверсы для промежуточных опор ВЛ10 кВ М1, М2, М3, М4. Стяжки М3, М6 Траверсы для сложных опор М8, М9 Кронштейн М10. Плиточный ригель М11 Кронштейн для ответвлений М12 - М15. Траверсы для промежуточных опор ВЛ20 кВ М16 - М17 Детали крепления кабельной муфты М18 - М21. Стяжка М22. Хомут М23. Кронштейн М24 Детали крепления разрядников М25 - М28. Траверса сложных опор ВЛ20 кВ Детали крепления разрядников М30 - М31 Детали крепления кабельной муфты и разрядников для ВЛ20 кВ М32 - М39 Траверсы для промежуточных опор ВЛ20 кВ М40, М41 Стойка СНВс-2,7-11 Стойка СНВп-2,7-11 Стойка СНВс-3,2-11(I) Стойка СНВс-3,2-11(II) Стойка СНВп-3,2-11 Плита П-4 Плита П-3 |
| Разработан: | Сельэнергопроект |
| Утверждён: | 22.01.1975 Минэнерго СССР (USSR Minenergo 17) |
| Чем заменён: |

















