Скачать Типовой проект 221-1-335 Альбом II. Технологические чертежиДата актуализации: 01.01.2021
|
| Обозначение: | Типовой проект 221-1-335 |
| Обозначение англ: | 221-1-335 |
| Статус: | действует |
| Название рус.: | Альбом II. Технологические чертежи |
| Дата добавления в базу: | 01.09.2013 |
| Дата актуализации: | 01.01.2021 |
| Дата введения: | 13.04.1979 |
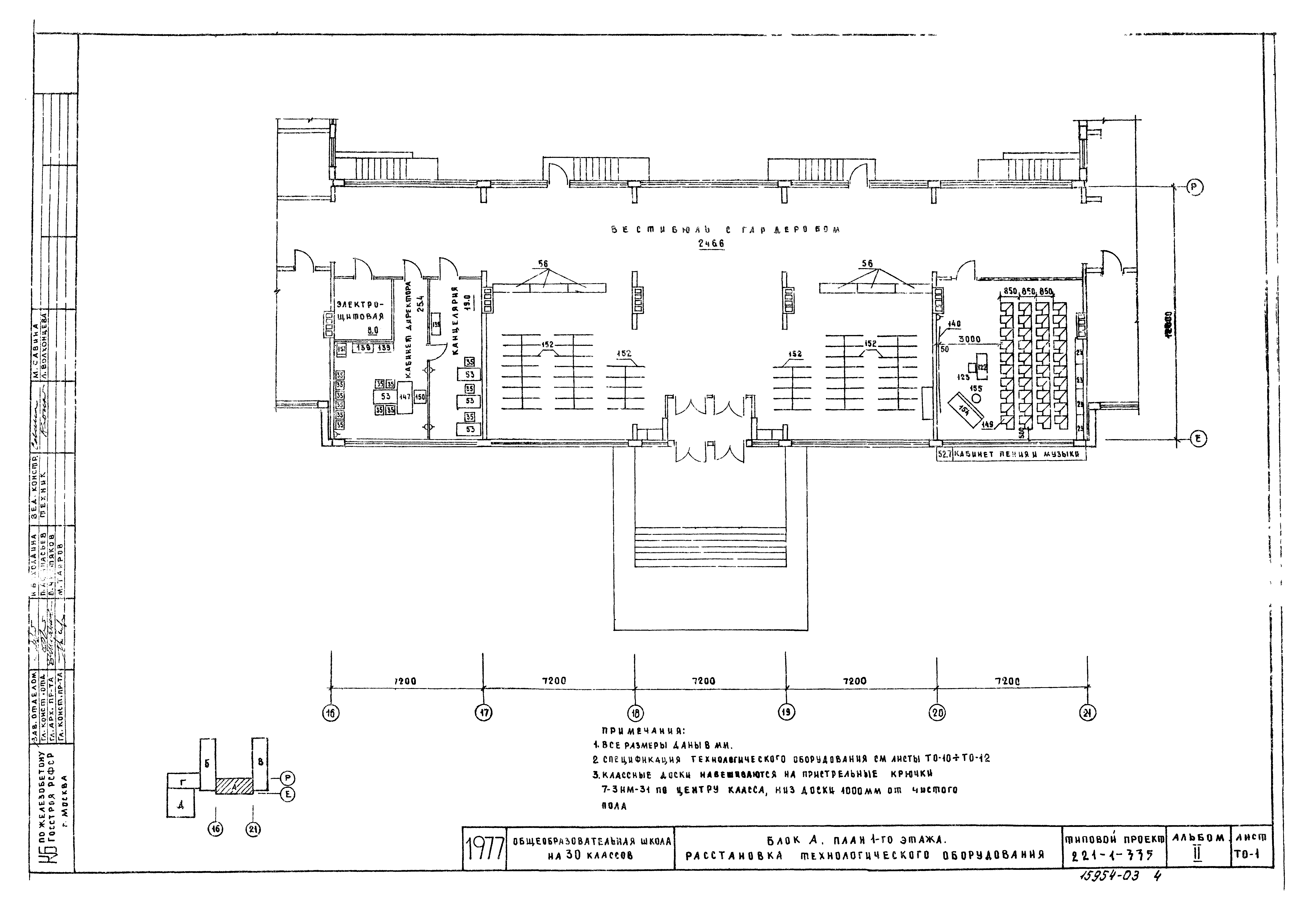
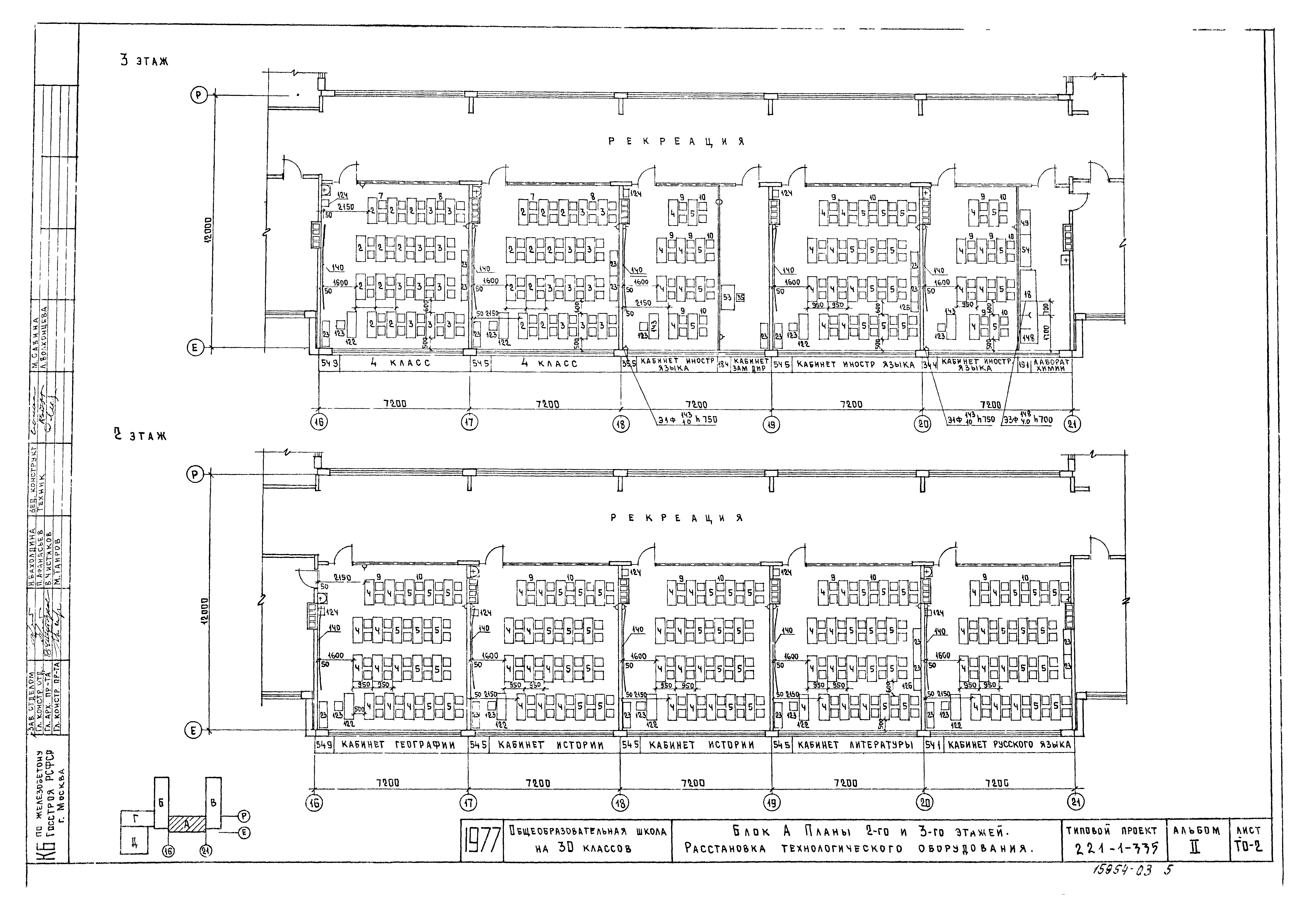
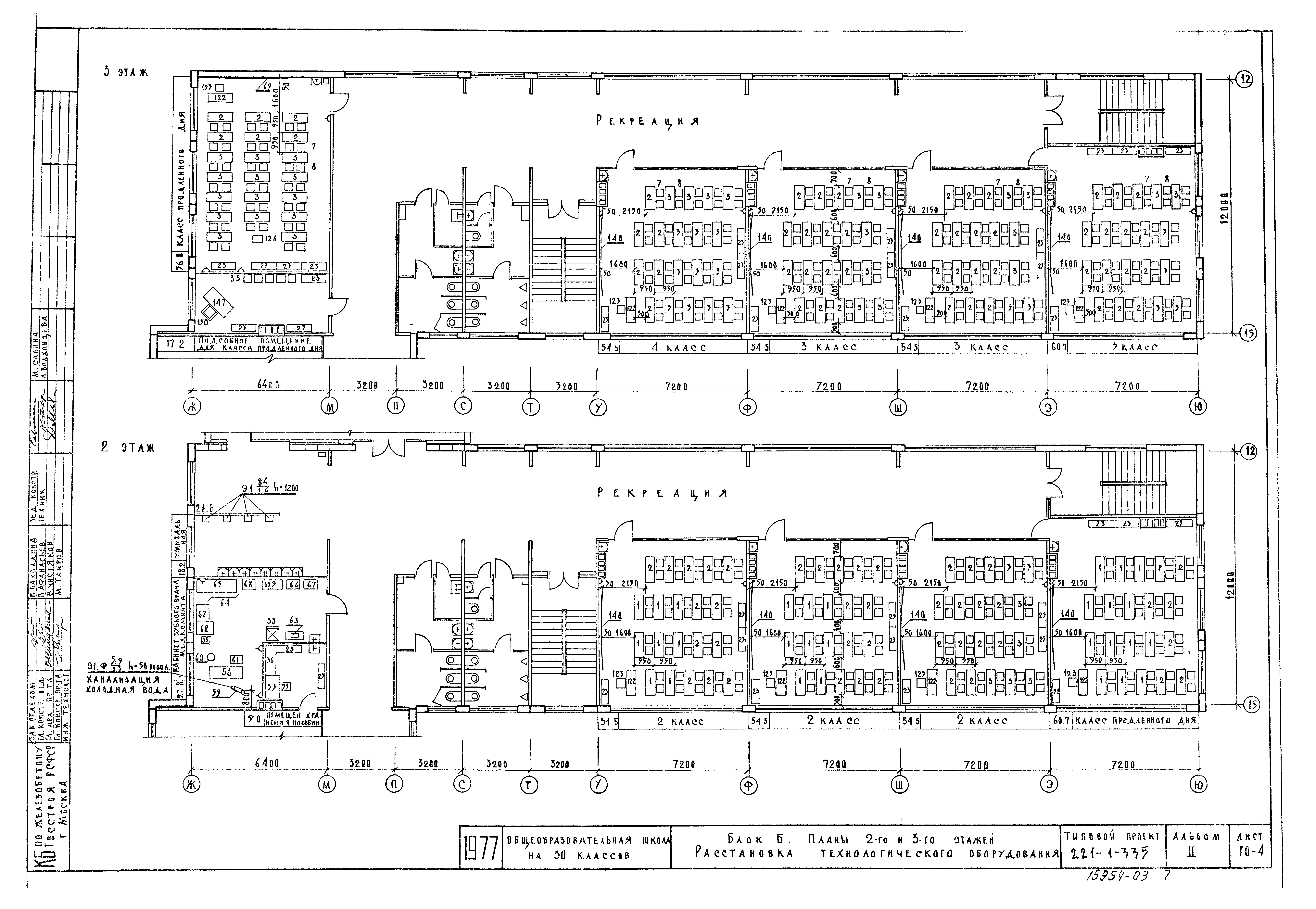
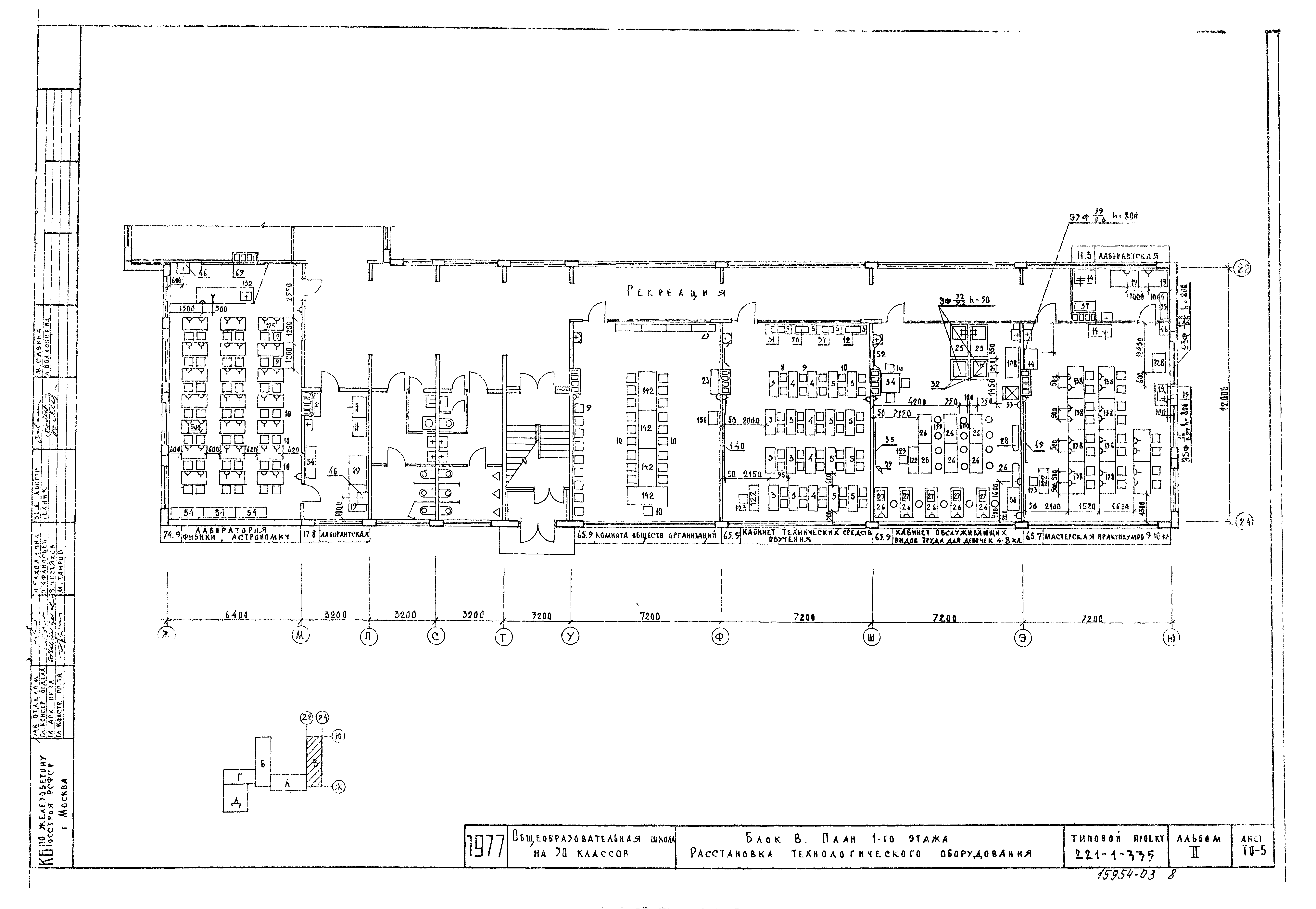
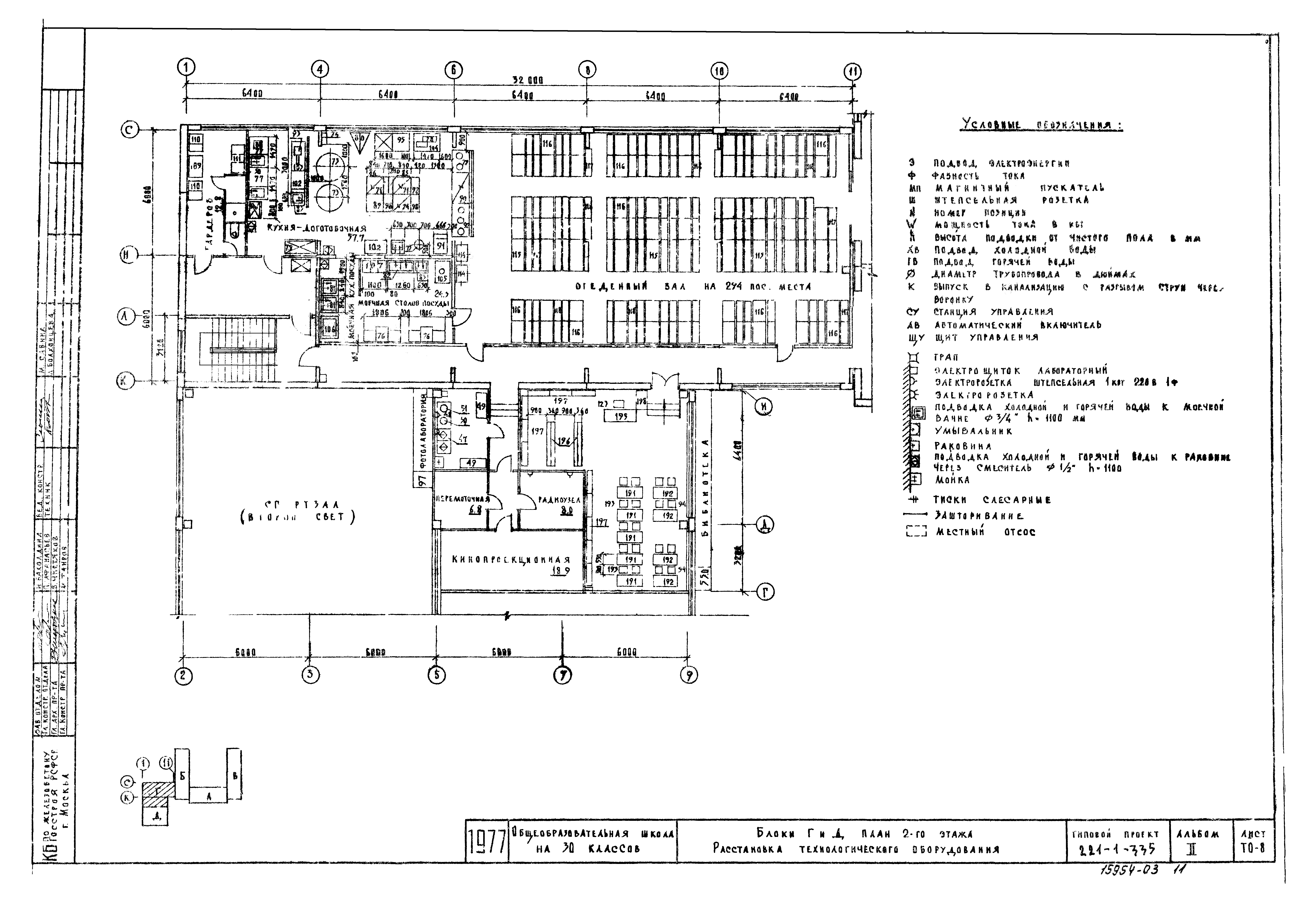
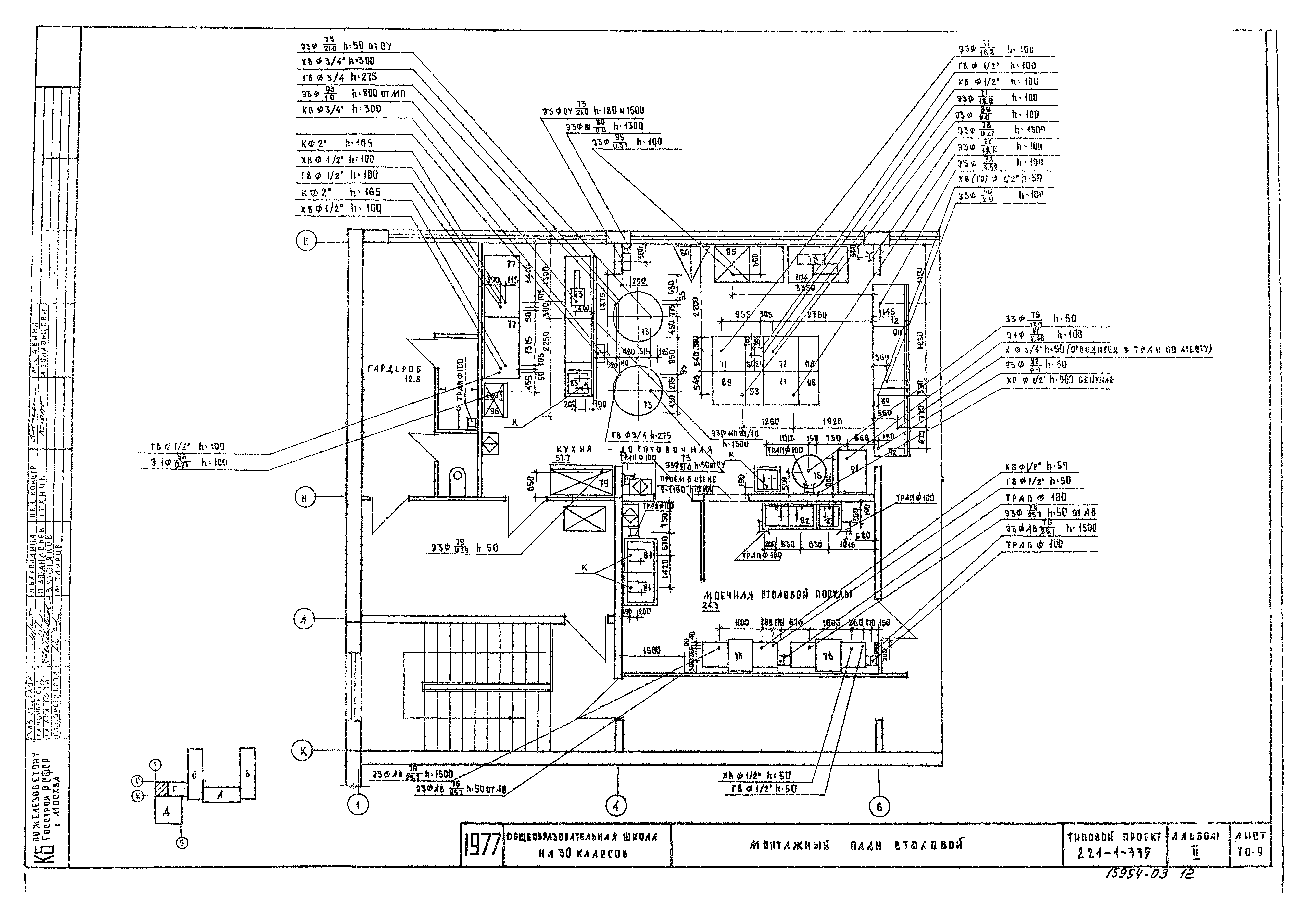
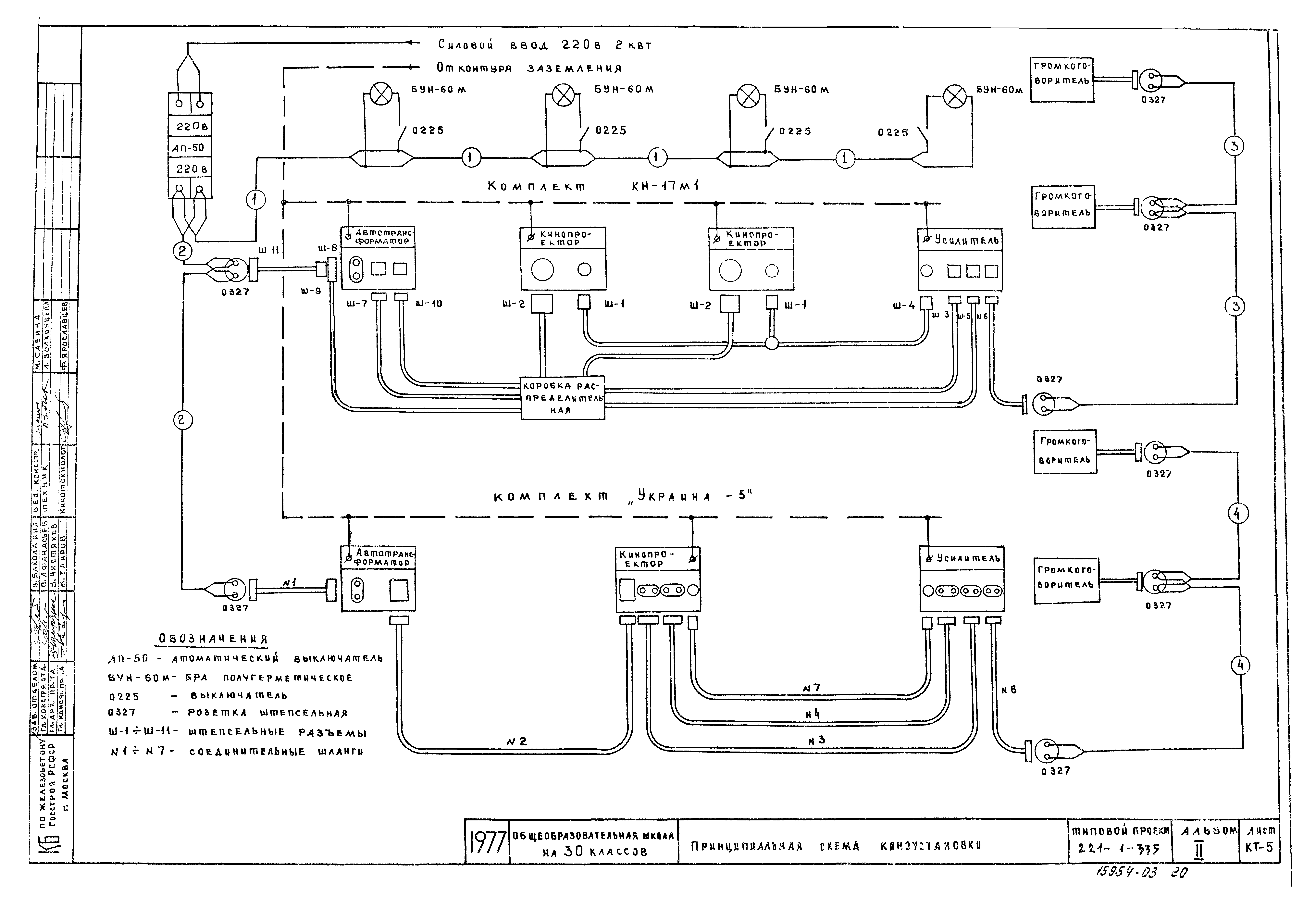
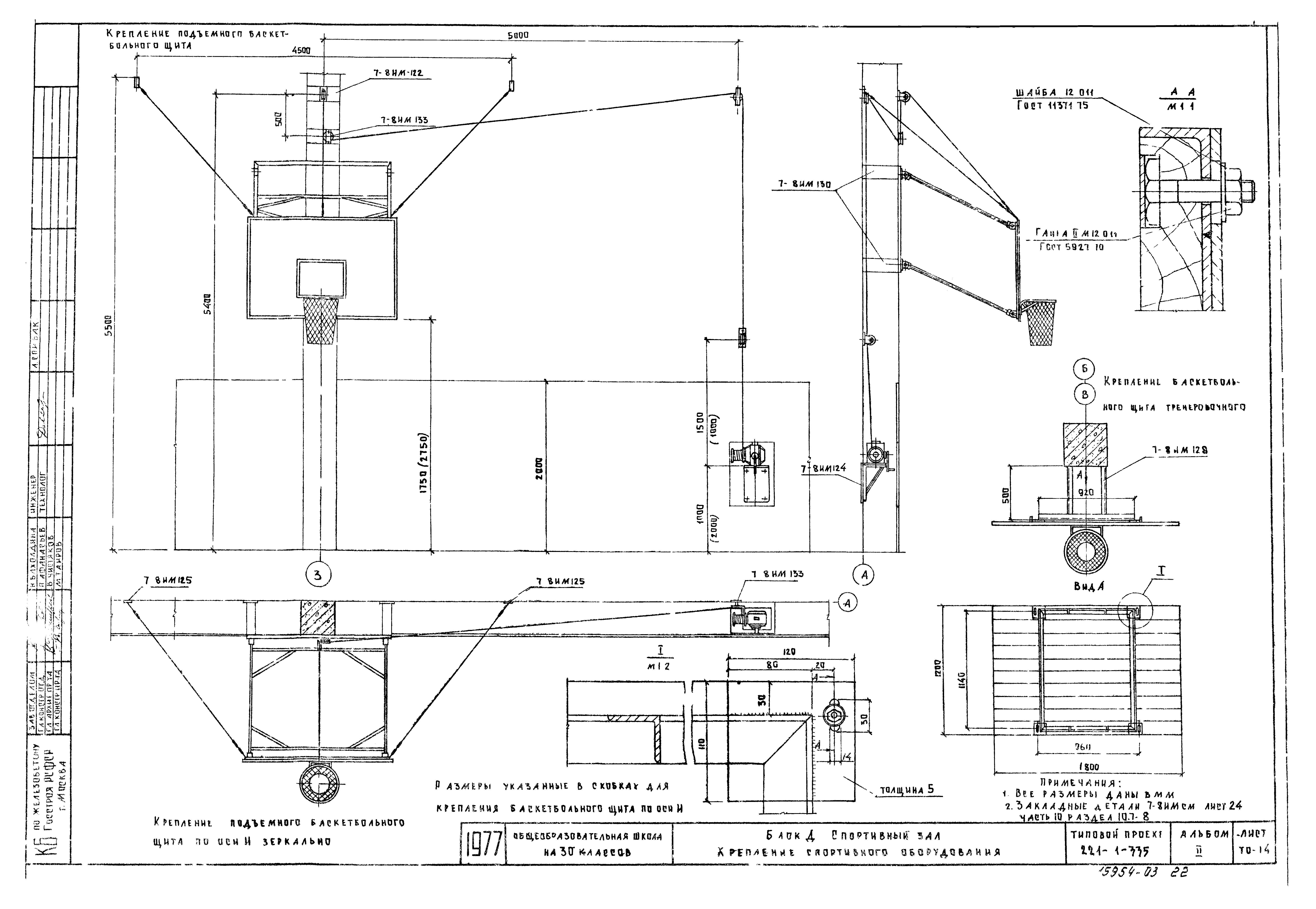
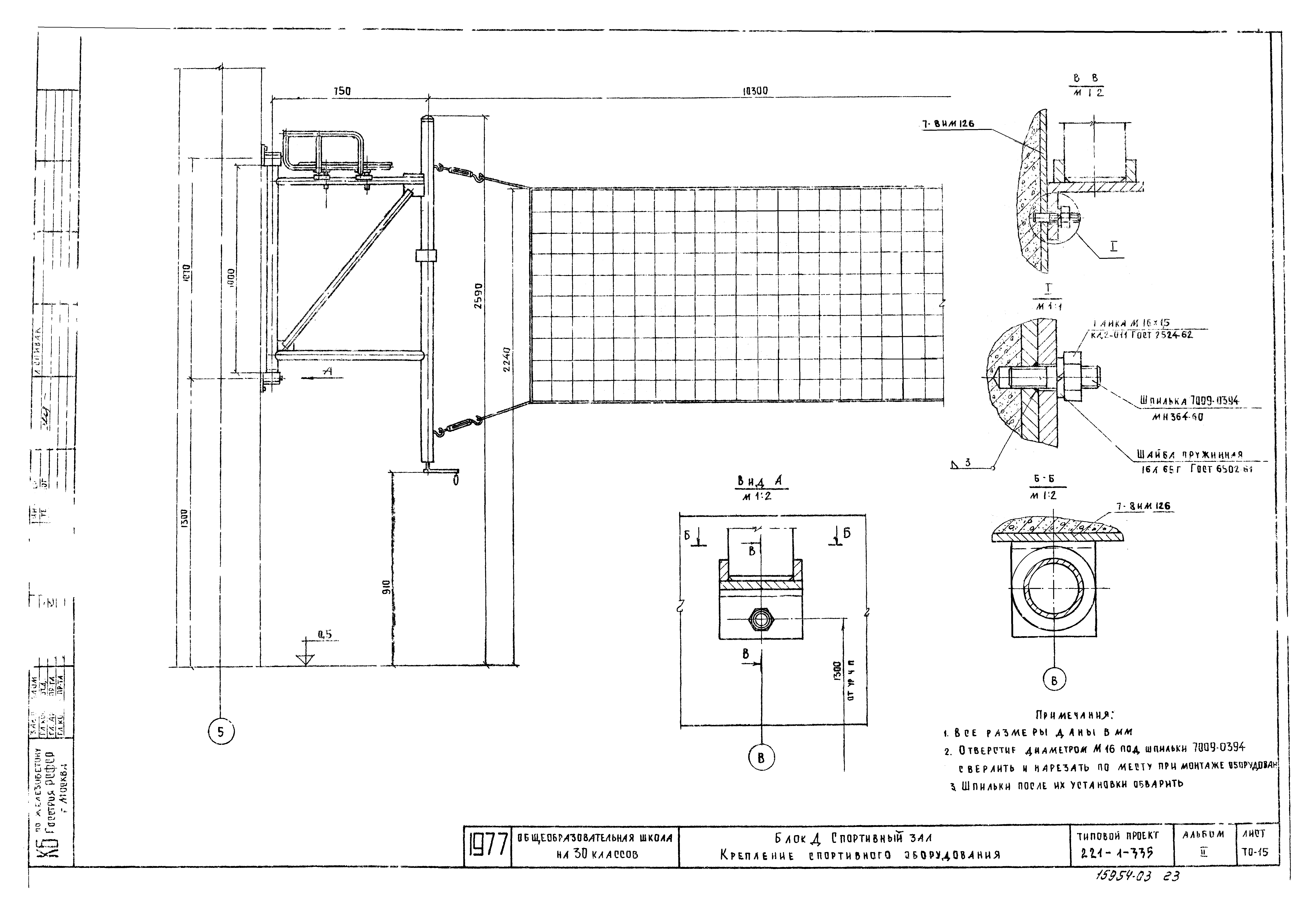
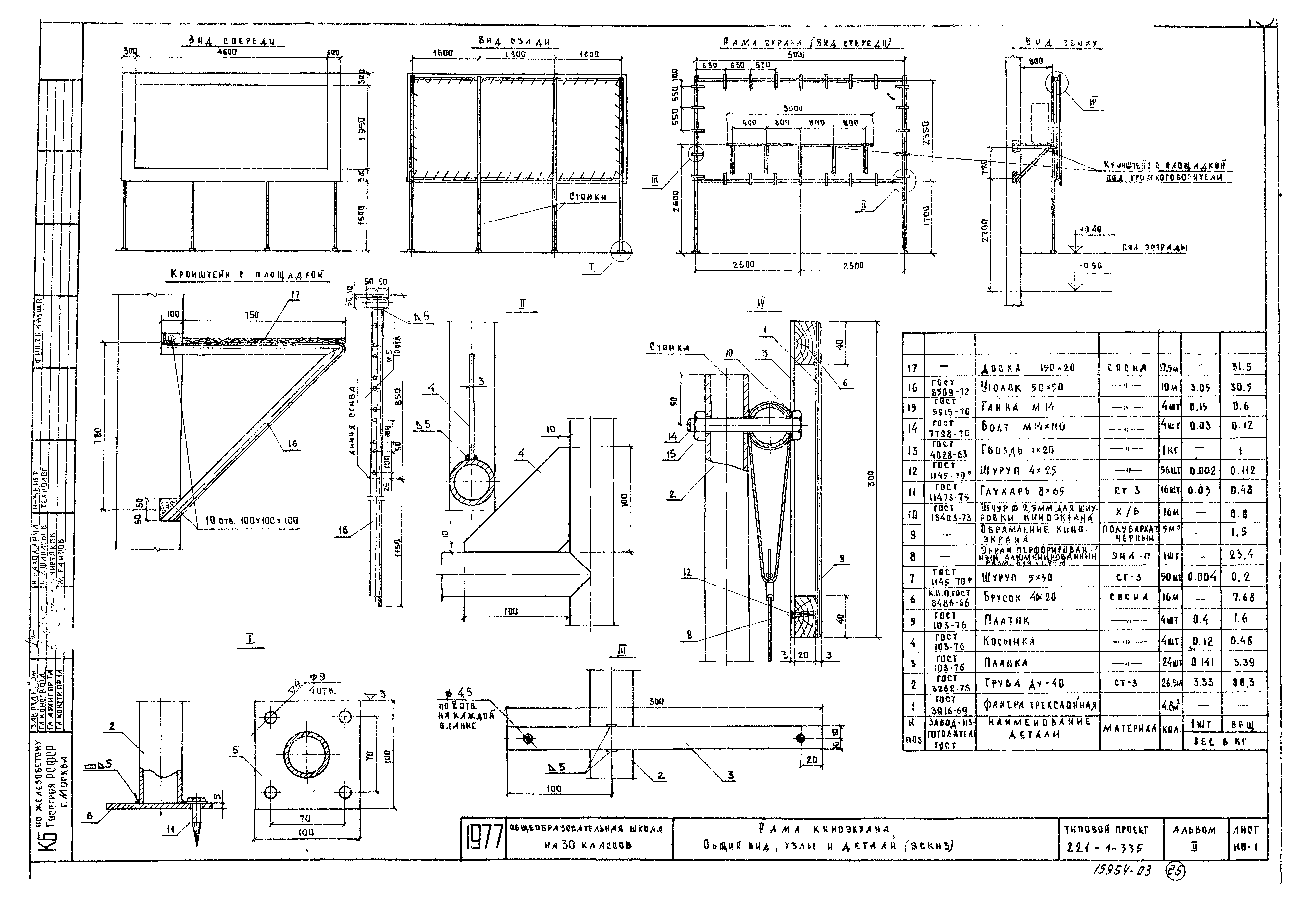
| Оглавление: | Содержание раздела Блок А. План 1-го этажа. Расстановка технологического оборудования Блок А. План 2-го и 3-го этажей. Расстановка технологического оборудования Блок Б. План 1-го этажа. Расстановка технологического оборудования Блок Б. План 2-го и 3-го этажей. Расстановка технологического оборудования Блок В. План 1-го этажа. Расстановка технологического оборудования Блок В. План 2-го и 3-го этажей. Расстановка технологического оборудования Блоки Г и Д. План 1-го этажа. Расстановка технологического оборудования Блоки Г и Д. План 2-го этажа. Расстановка технологического оборудования Монтажный план столовой Сводная спецификация технологического оборудования Пояснительная записка. Спецификация оборудования и материалов. Перечень чертежей проекта (кинотехнология) Планы и разрезы актового зала на 240 мест План кинопроекционной, монтаж киноустановки Разрезы кинопроекционной. Монтаж киноустановки Принципиальная схема киноустановки Блок Д. Спортивный зал. Расстановка технологического оборудования Блок Д. Спортивный зал. Крепление спортивного оборудования Рама киноэкрана. Общий вид, узлы и детали (эскиз) |
| Разработан: | КБ по железобетону Госстроя РСФСР |
| Утверждён: | 29.09.1977 Госстрой РСФСР (Russian Federation Gosstroy 70, 72) |

























