Скачать Типовой проект 221-1-335 Альбом IV. Водоснабжение, канализация, водостоки, газоснабжениеДата актуализации: 01.01.2021
|
| Обозначение: | Типовой проект 221-1-335 |
| Обозначение англ: | 221-1-335 |
| Статус: | действует |
| Название рус.: | Альбом IV. Водоснабжение, канализация, водостоки, газоснабжение |
| Дата добавления в базу: | 01.09.2013 |
| Дата актуализации: | 01.01.2021 |
| Дата введения: | 13.04.1979 |
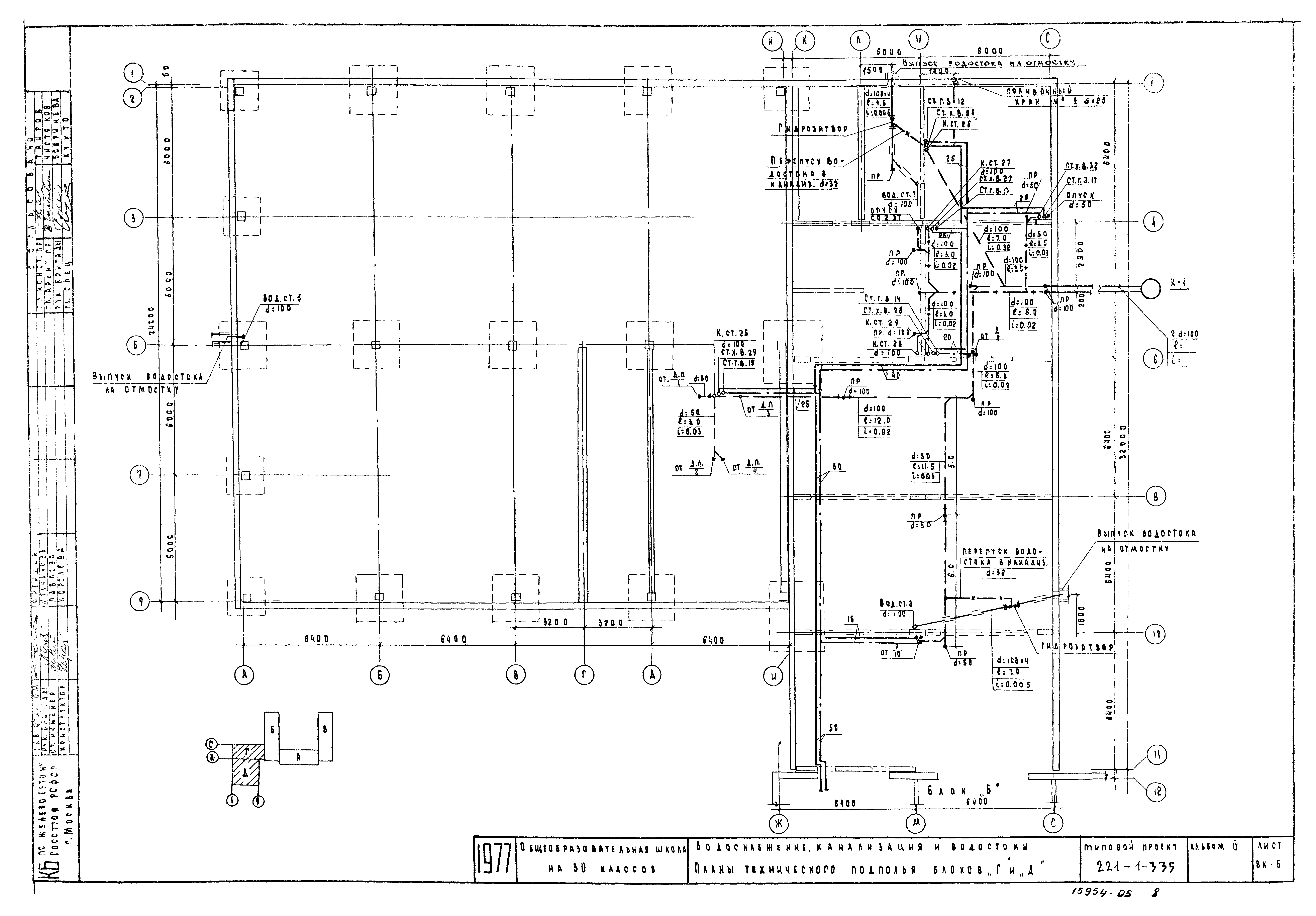
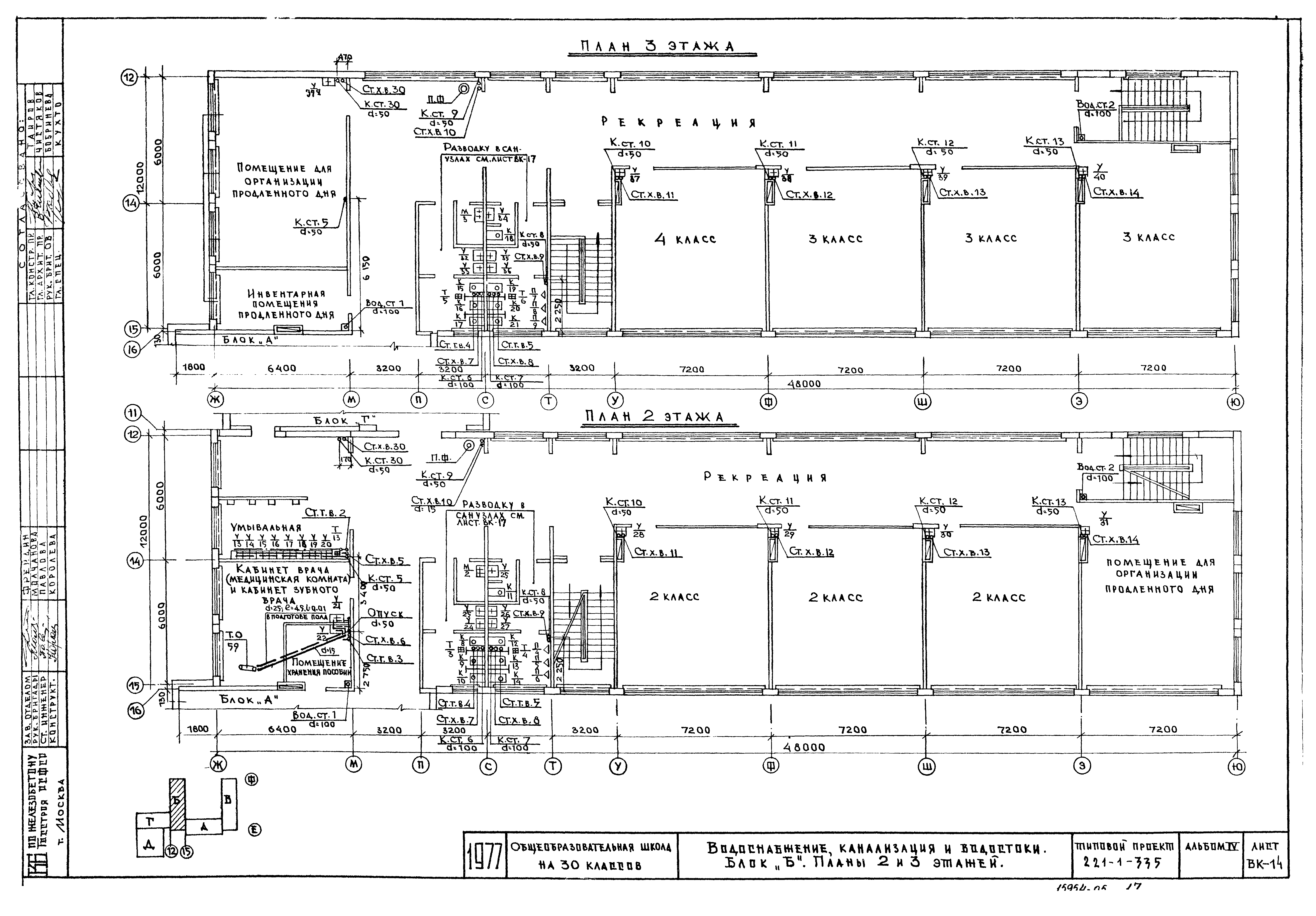
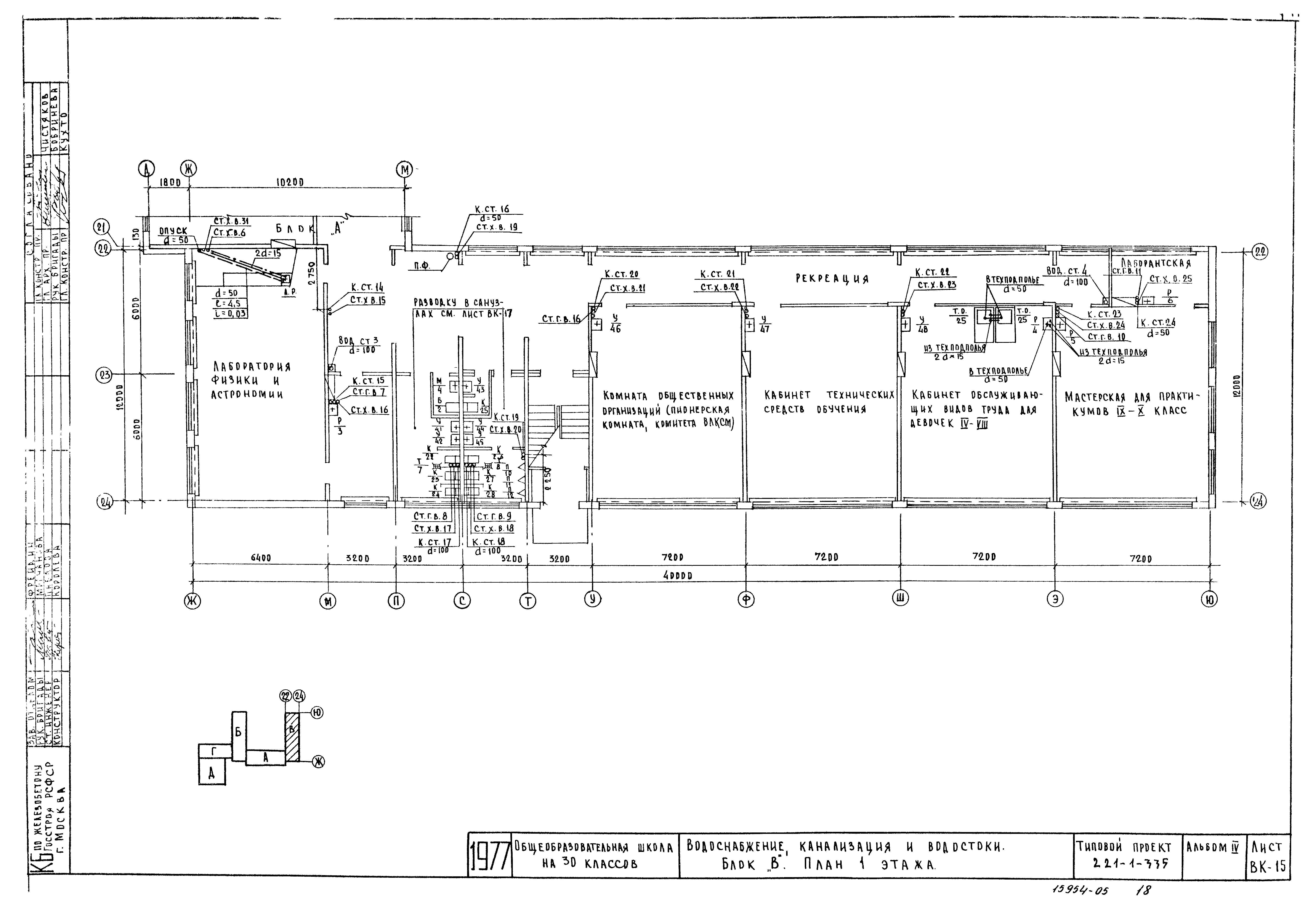
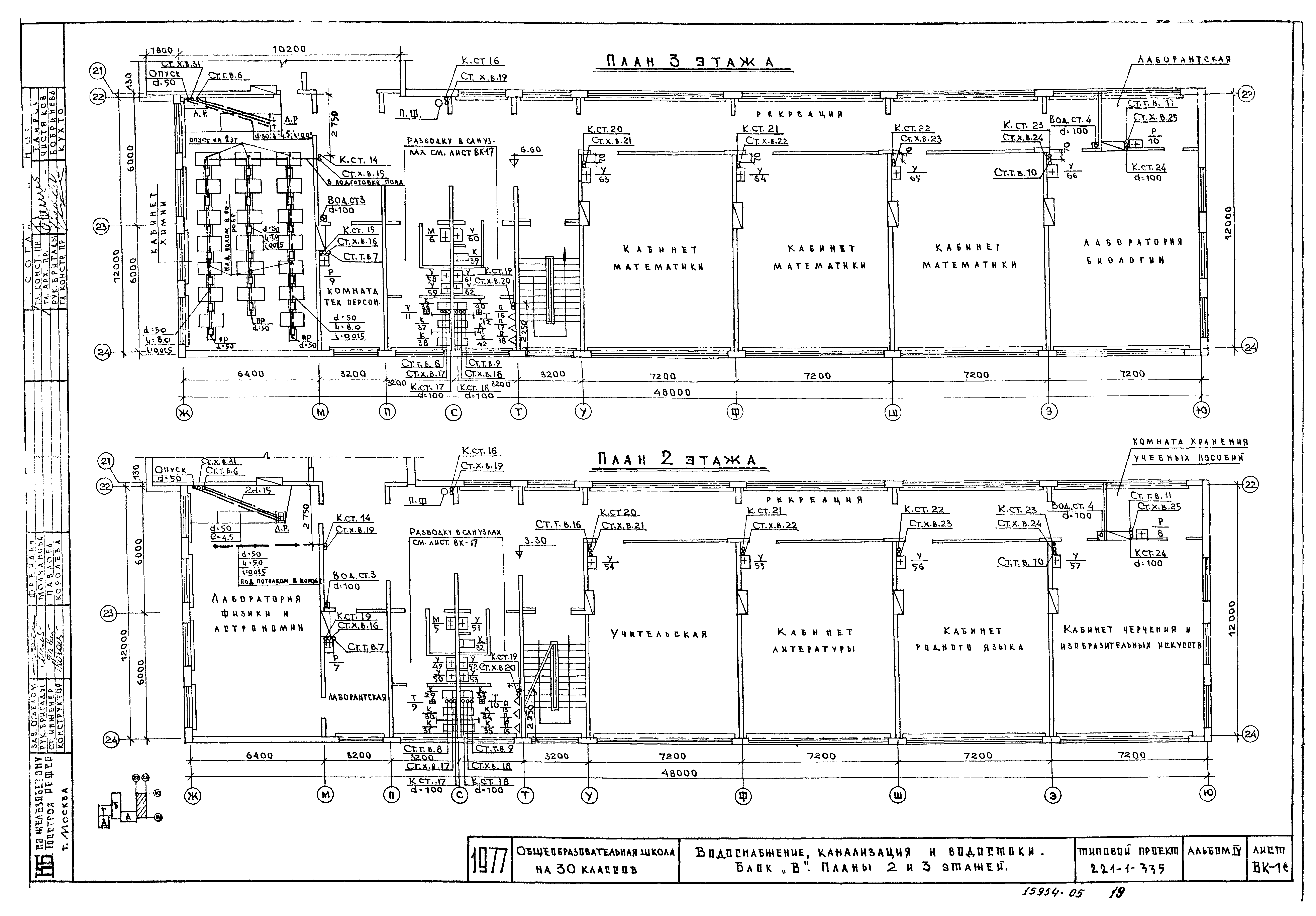
| Оглавление: | Заглавный лист Водоснабжение, канализация и водостоки. Пояснения к проекту Водоснабжение, канализация и водостоки. Спецификация Водоснабжение и канализация. План технического подполья блока "А" Водоснабжение, канализация и водостоки. Планы технического подполья блоков "Б" и "В" Водоснабжение, канализация и водостоки. Планы технического подполья блоков "Г" и "Д" Водоснабжение. Схемы водоснабжения технического подполья блоков "А", "Г" и "Д" Водоснабжение. Схемы водоснабжения технического подполья блоков "Б" и "В" Канализация. Схемы выпусков канализации блоков "А", "Г" и "Д" Канализация. Схемы выпусков канализации блоков "Б" и "В" Водостоки. Схемы выпусков водостоков блоков "Б", "В", "Г" и "Д" Водоснабжение и канализация. Блок "А". План 1 этажа Водоснабжение и канализация. Блок "А". Планы 2 и 3 этажей Водоснабжение, канализация и водостоки. Блок "Б". План 1 этажа Водоснабжение, канализация и водостоки. Блок "Б". Планы 2 и 3 этажей Водоснабжение, канализация и водостоки. Блок "В". План 1 этажа Водоснабжение, канализация и водостоки. Блок "В". Планы 2 и 3 этажей Водоснабжение и канализация. Фрагменты планов корпусов "Б", "В" и "Д" (санузлы) Водоснабжение, канализация и водостоки. План 1 этажа блоков "Г" и "Д" Водоснабжение, канализация и водостоки. План 2 этажа блоков "Г" и "Д" Водоснабжение и канализация. План 2 этажа в осях 1 - 6 блока "Г" (пищеблок) Водоснабжение и канализация. Схемы стояков и разводок водопровода и канализации пищеблока Канализация. Схемы канализационных стояков Водоснабжение. Схемы стояков Газоснабжение. Фрагменты блока "В" в осях Ж - М, схема газопровода. Спецификация |
| Разработан: | КБ по железобетону Госстроя РСФСР |
| Утверждён: | 29.09.1977 Госстрой РСФСР (Russian Federation Gosstroy 70, 72) |



























