Скачать Типовой проект 221-1-335 Альбом VI. Слаботочные устройстваДата актуализации: 01.01.2021
|
| Обозначение: | Типовой проект 221-1-335 |
| Обозначение англ: | 221-1-335 |
| Статус: | действует |
| Название рус.: | Альбом VI. Слаботочные устройства |
| Дата добавления в базу: | 01.09.2013 |
| Дата актуализации: | 01.01.2021 |
| Дата введения: | 13.04.1979 |
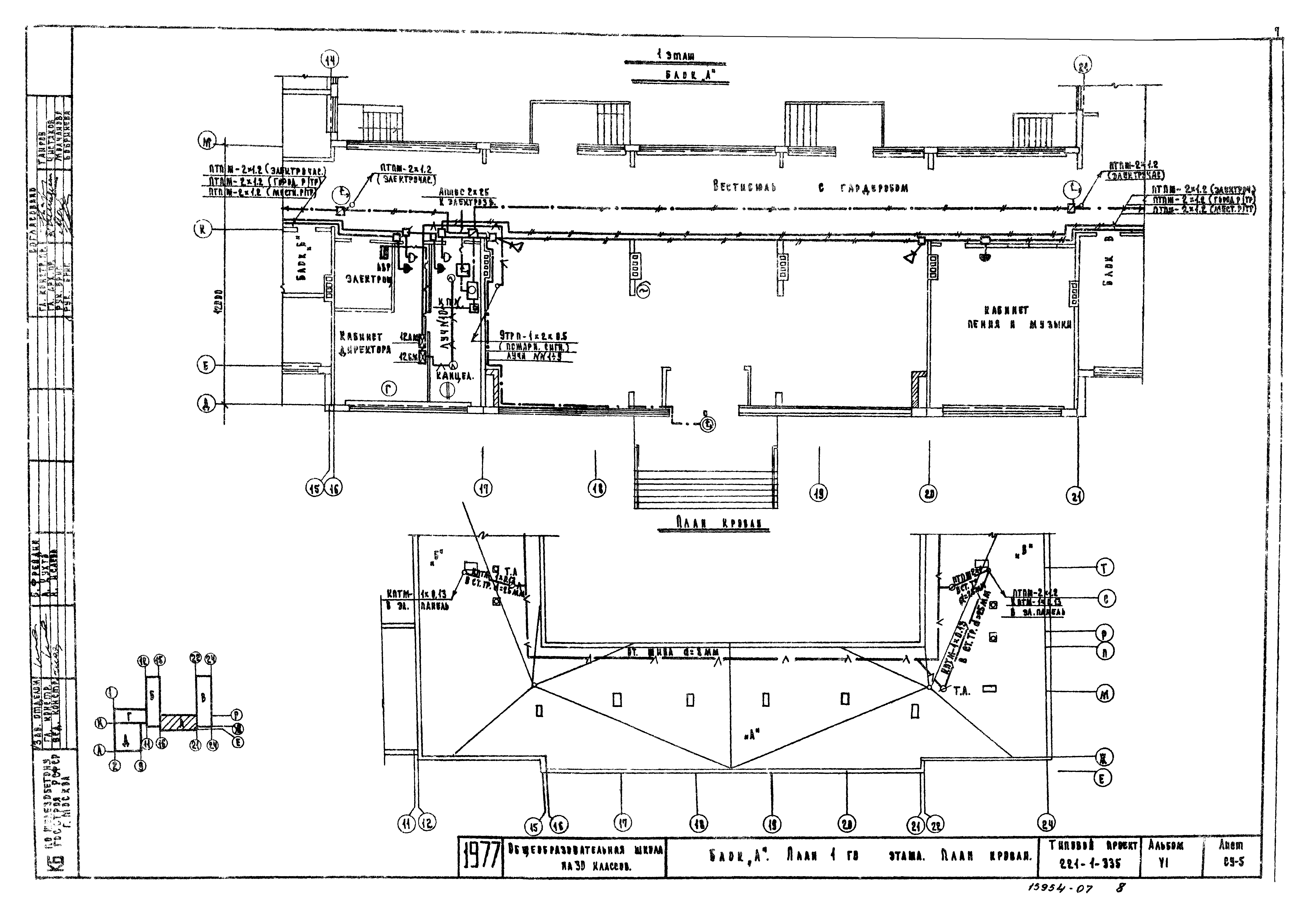
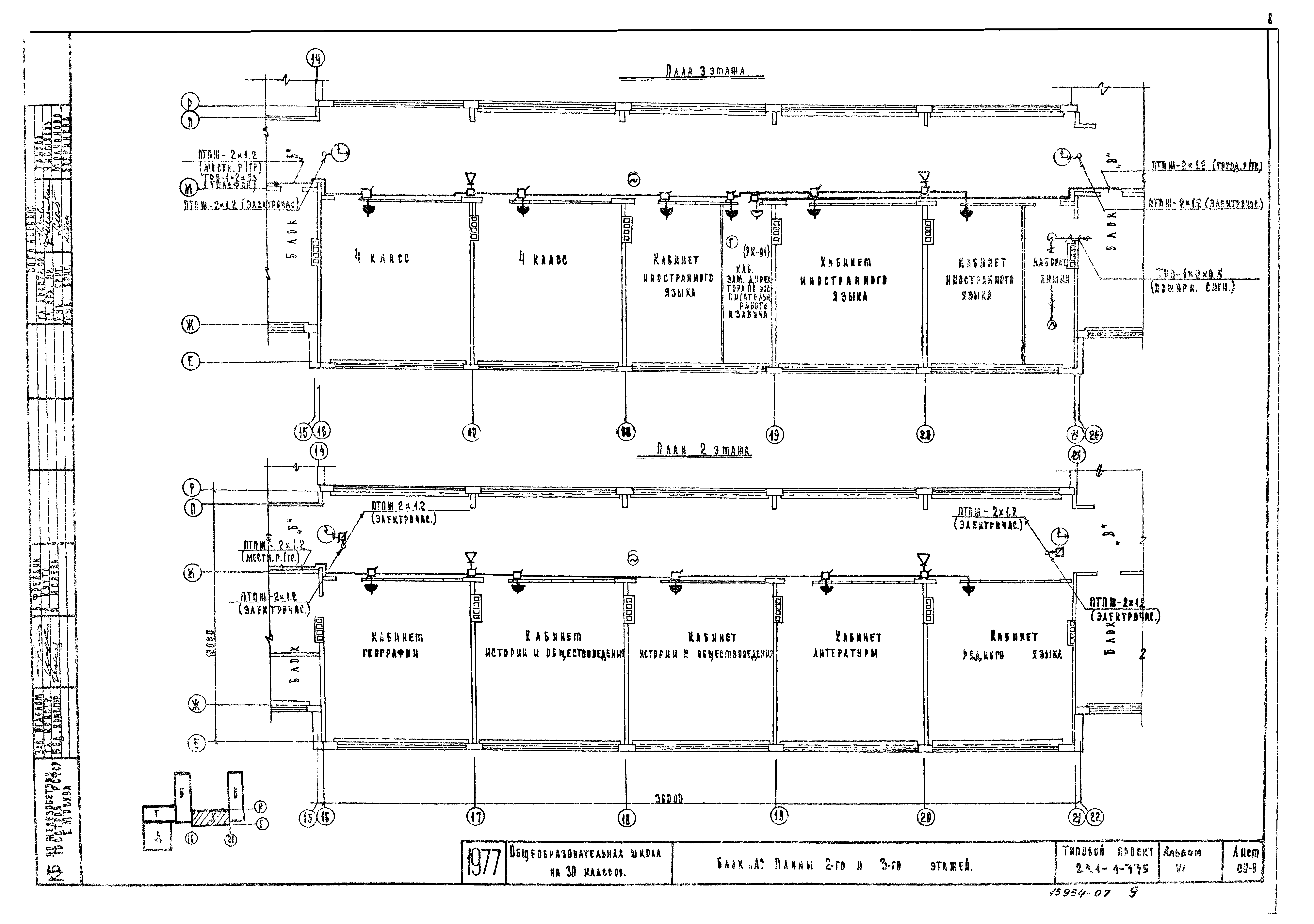
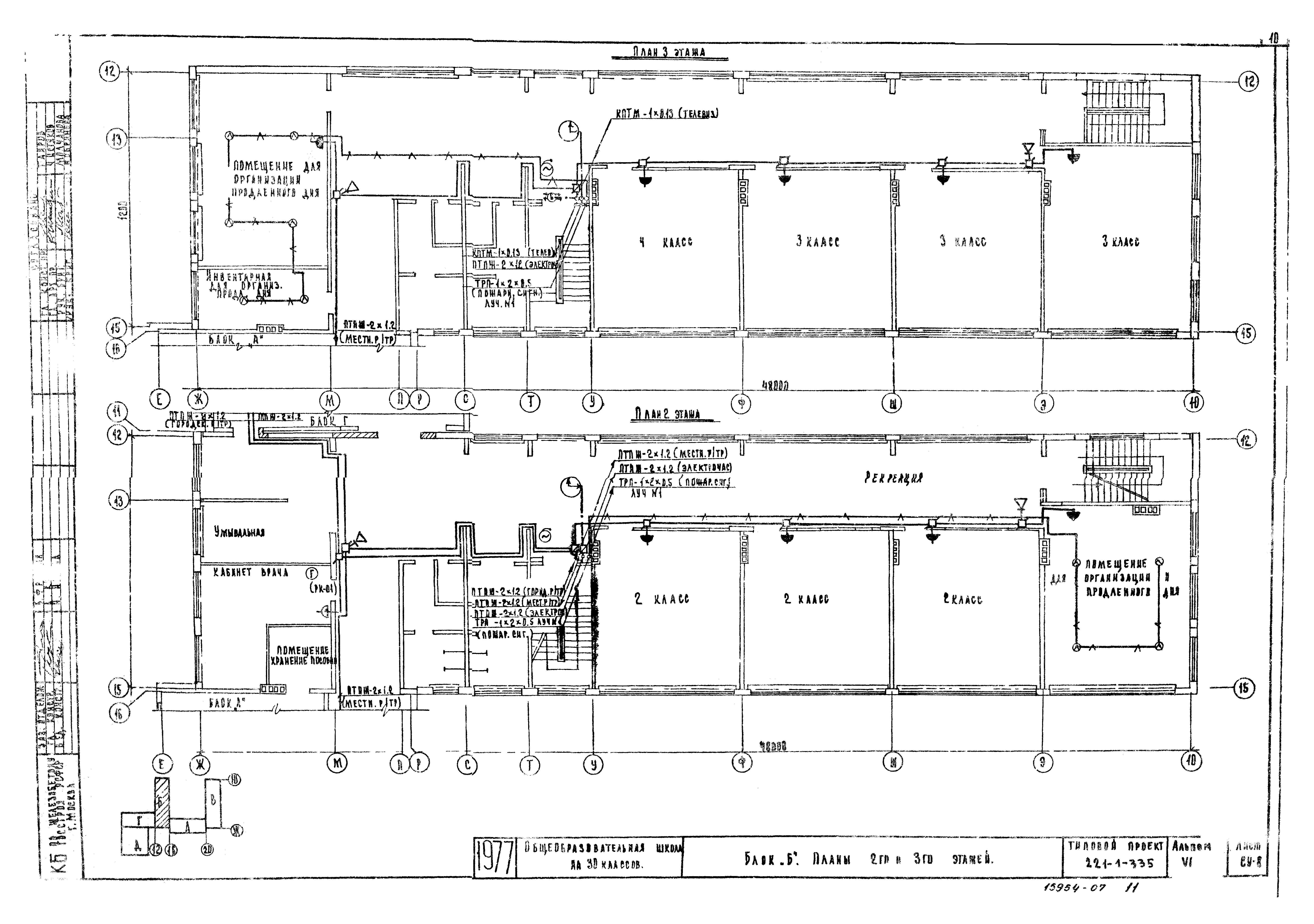
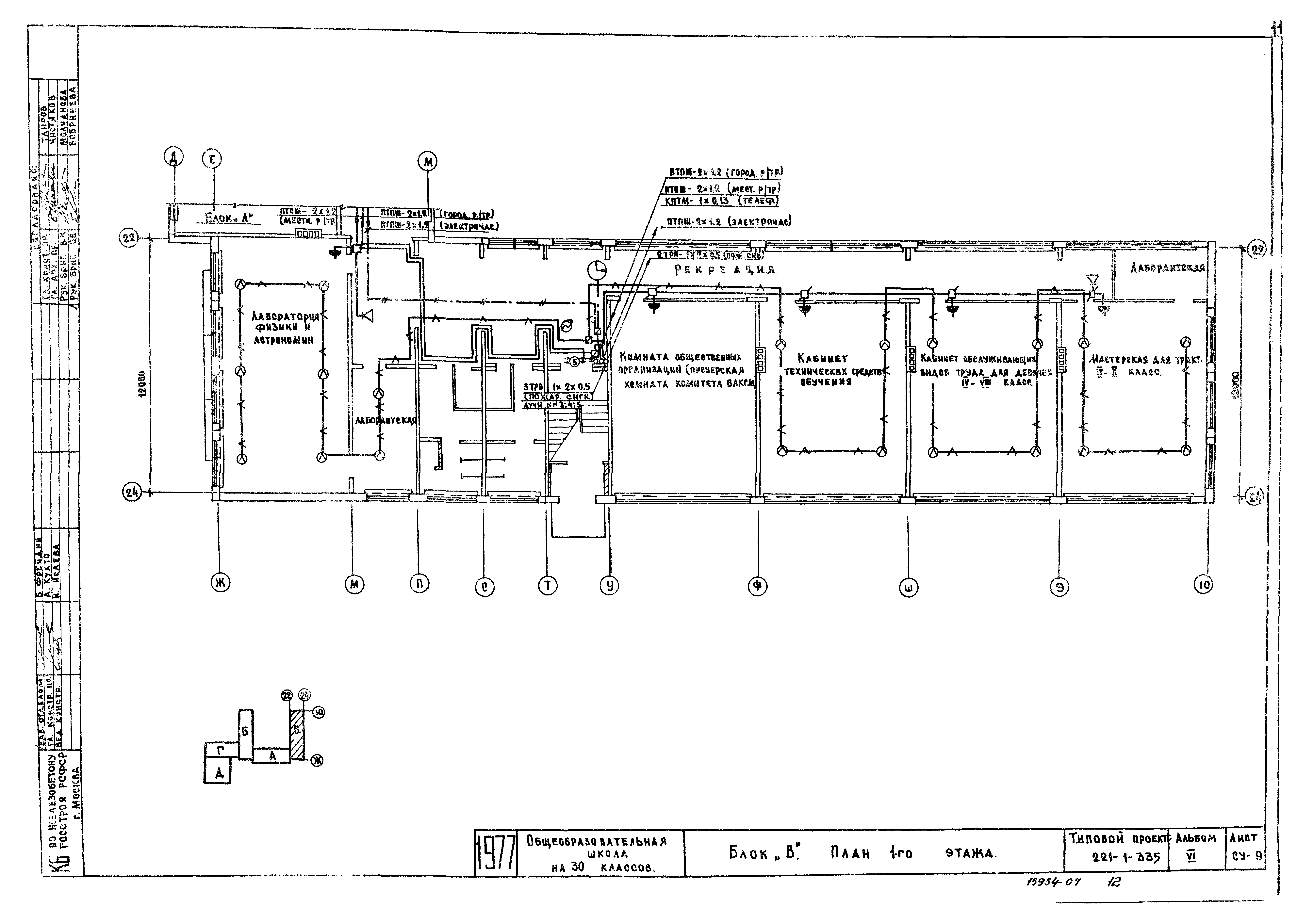
| Оглавление: | Содержание альбома Пояснительная записка Спецификация Схемы соединений слаботочных устройств. Скелетная схема пожарной сигнализации. План радиоузла Скелетные схемы Блок "А". План 1-го этажа. План кровли Блок "А". План 2-го и 3-го этажей Блок "Б". План 1-го этажа Блок "Б". План 2-го и 3-го этажей Блок "В". План 1-го этажа Блок "В". План 2-го и 3-го этажей Блоки "Г" и "Д". План 1-го этажа Блоки "Г" и "Д". План 2-го этажа Трубная разводка по техподполью |
| Разработан: | КБ по железобетону Госстроя РСФСР |
| Утверждён: | 29.09.1977 Госстрой РСФСР (Russian Federation Gosstroy 70, 72) |
















