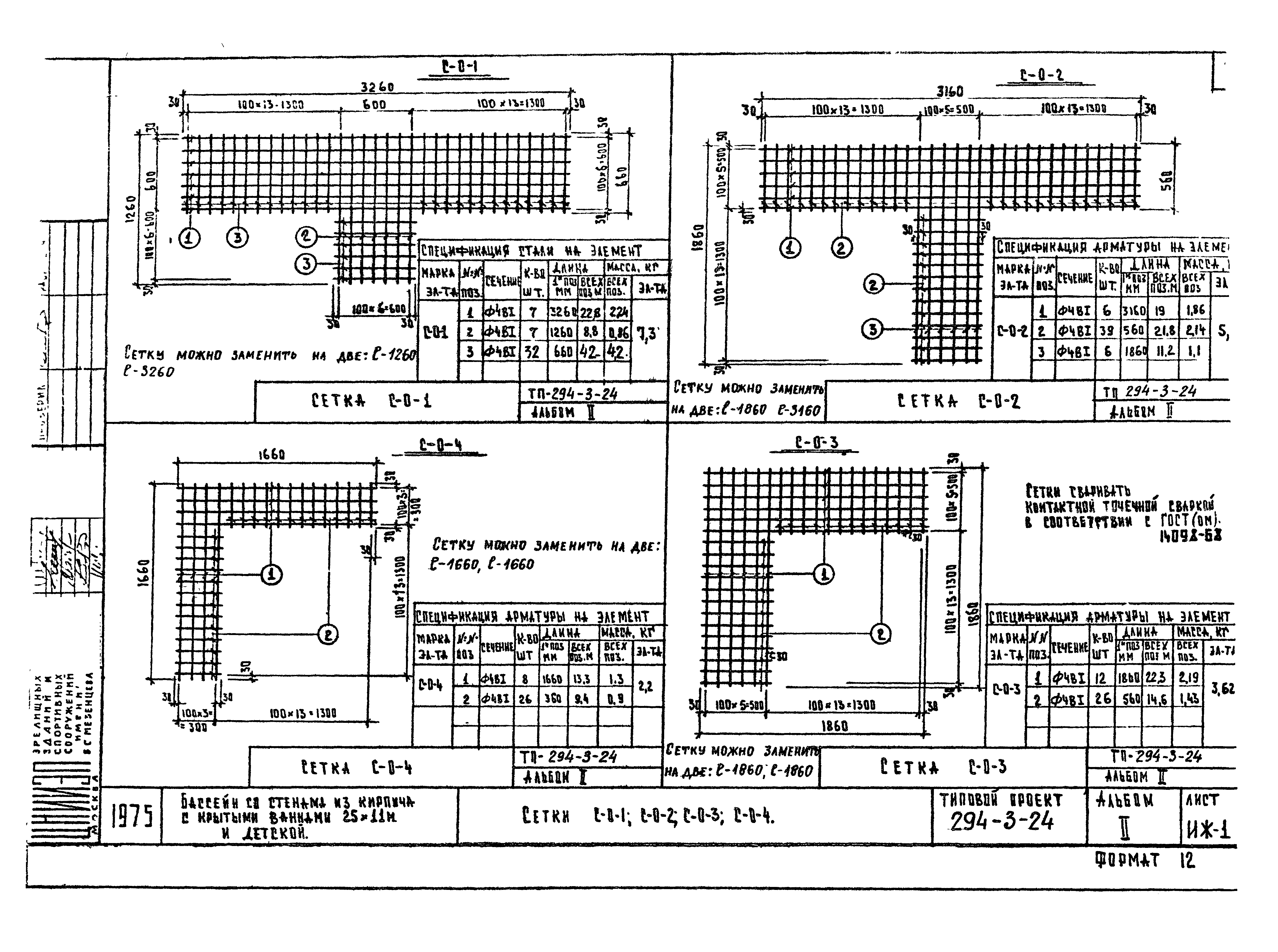
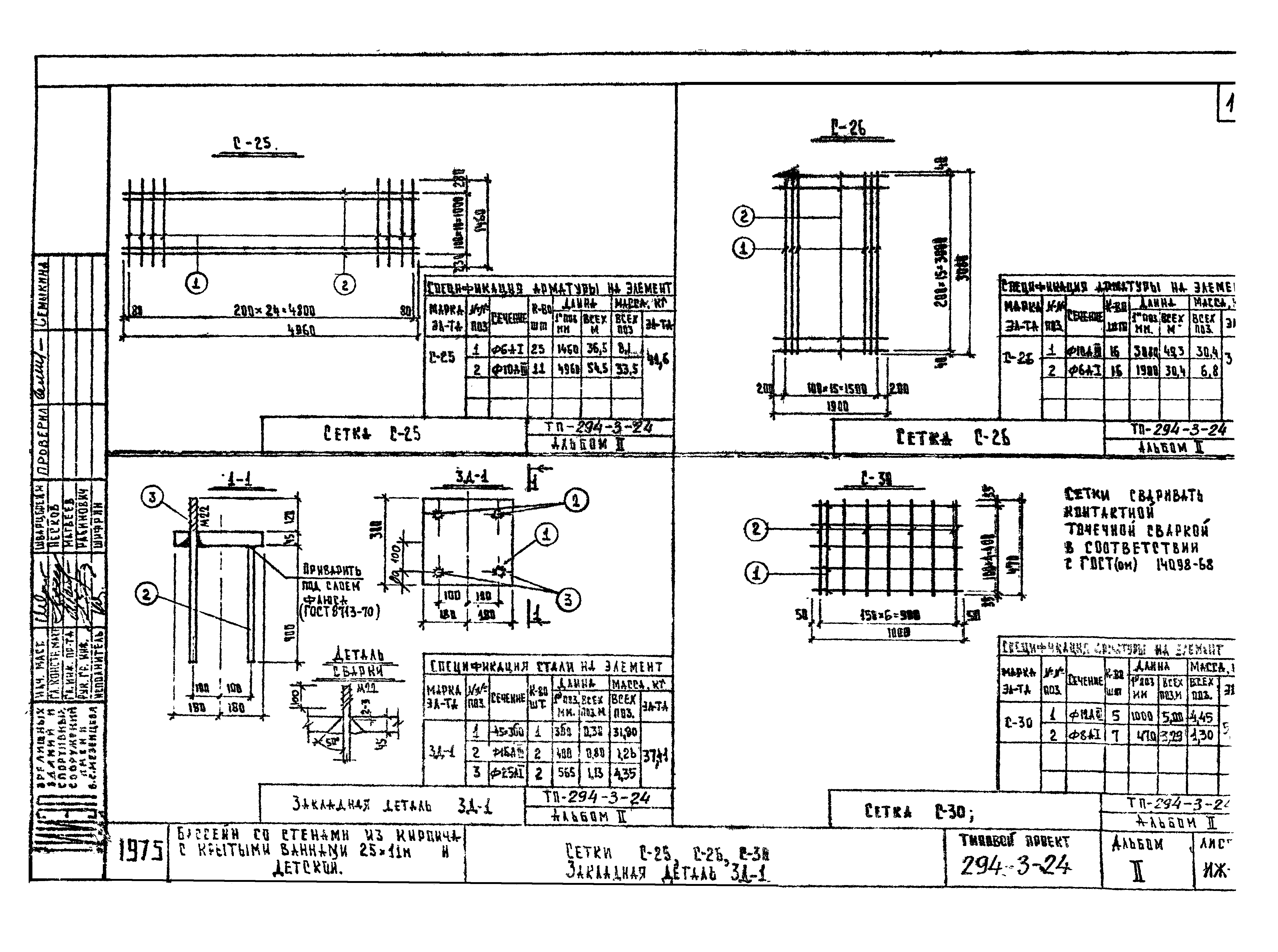
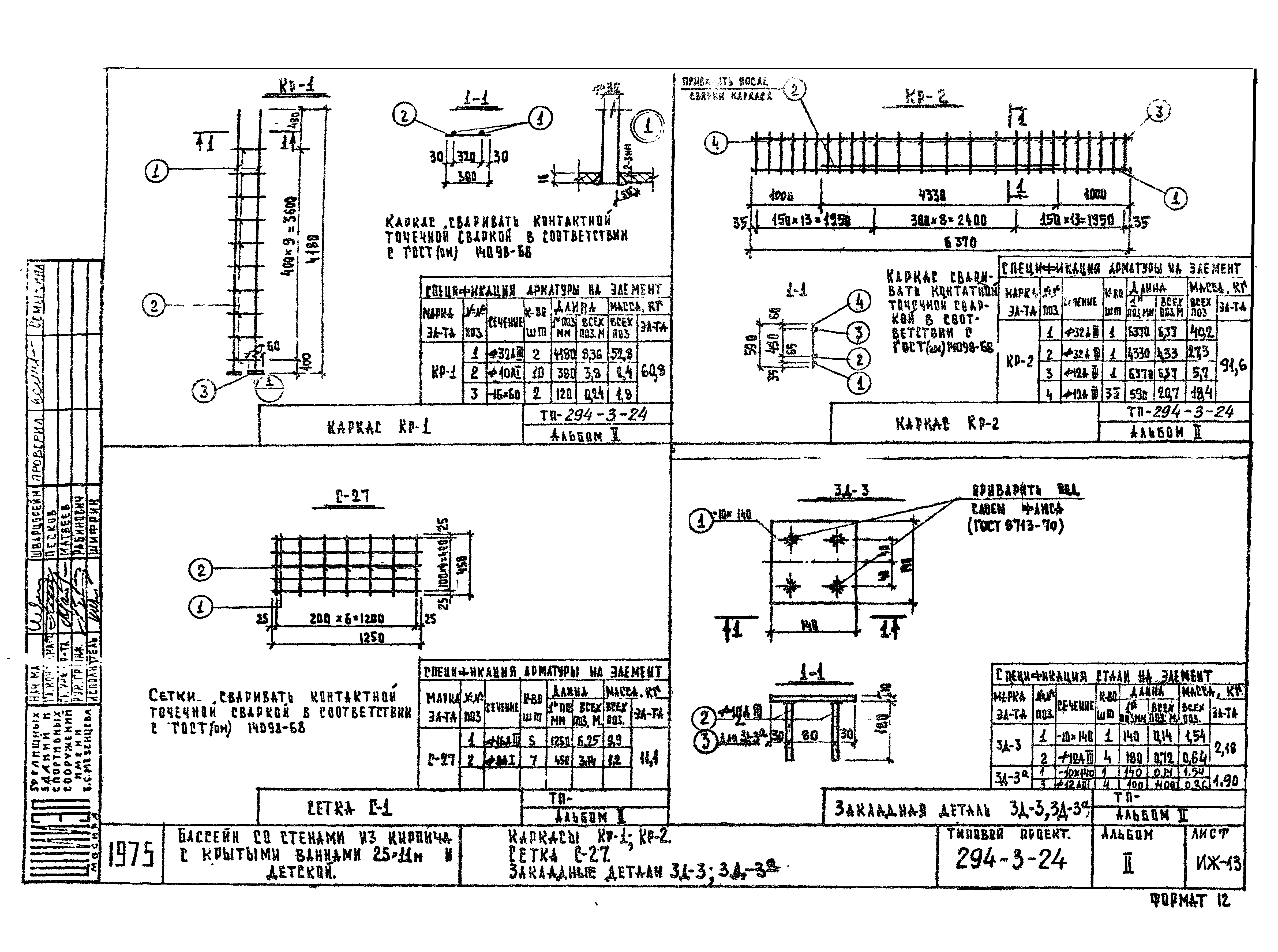
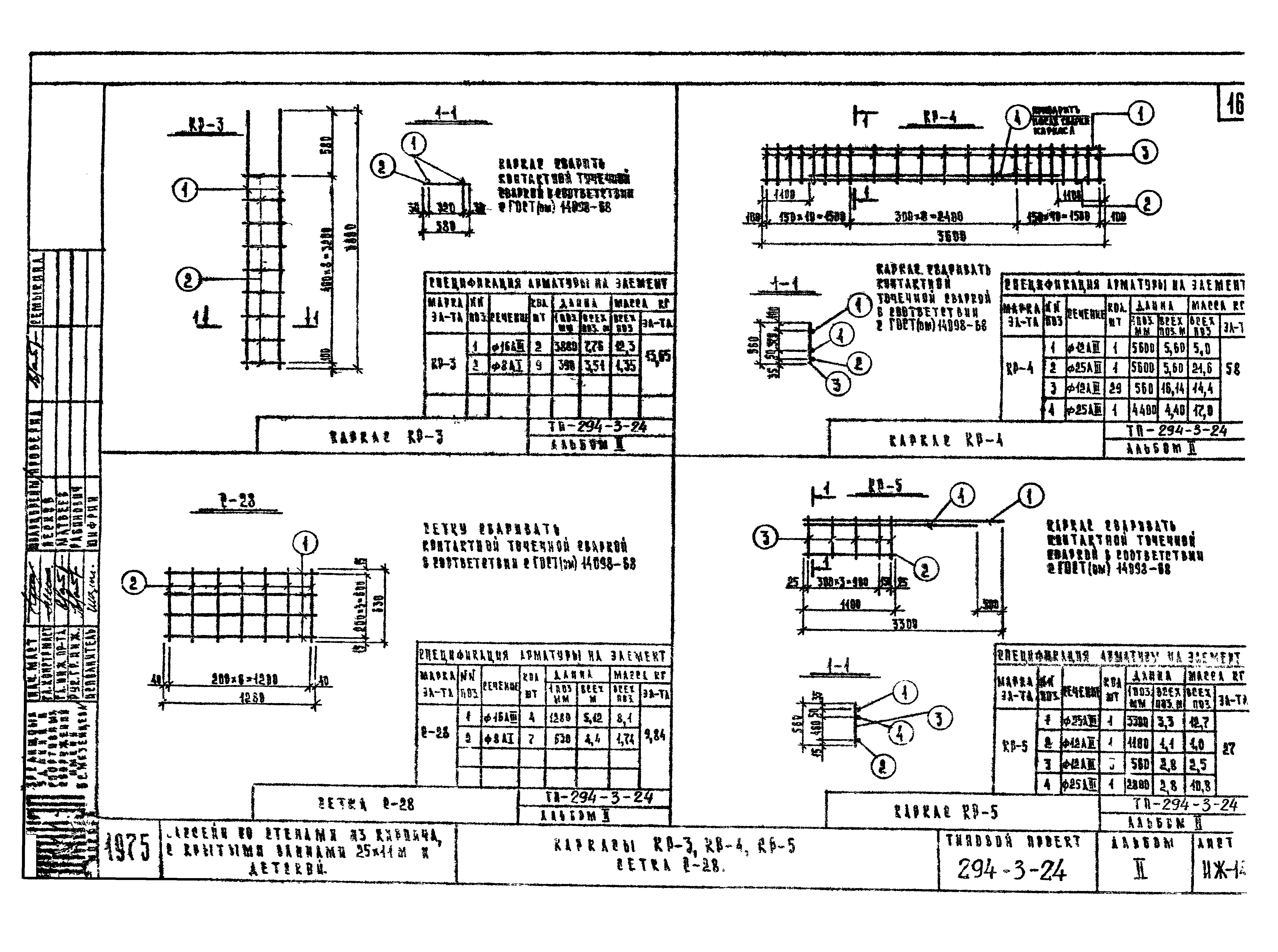
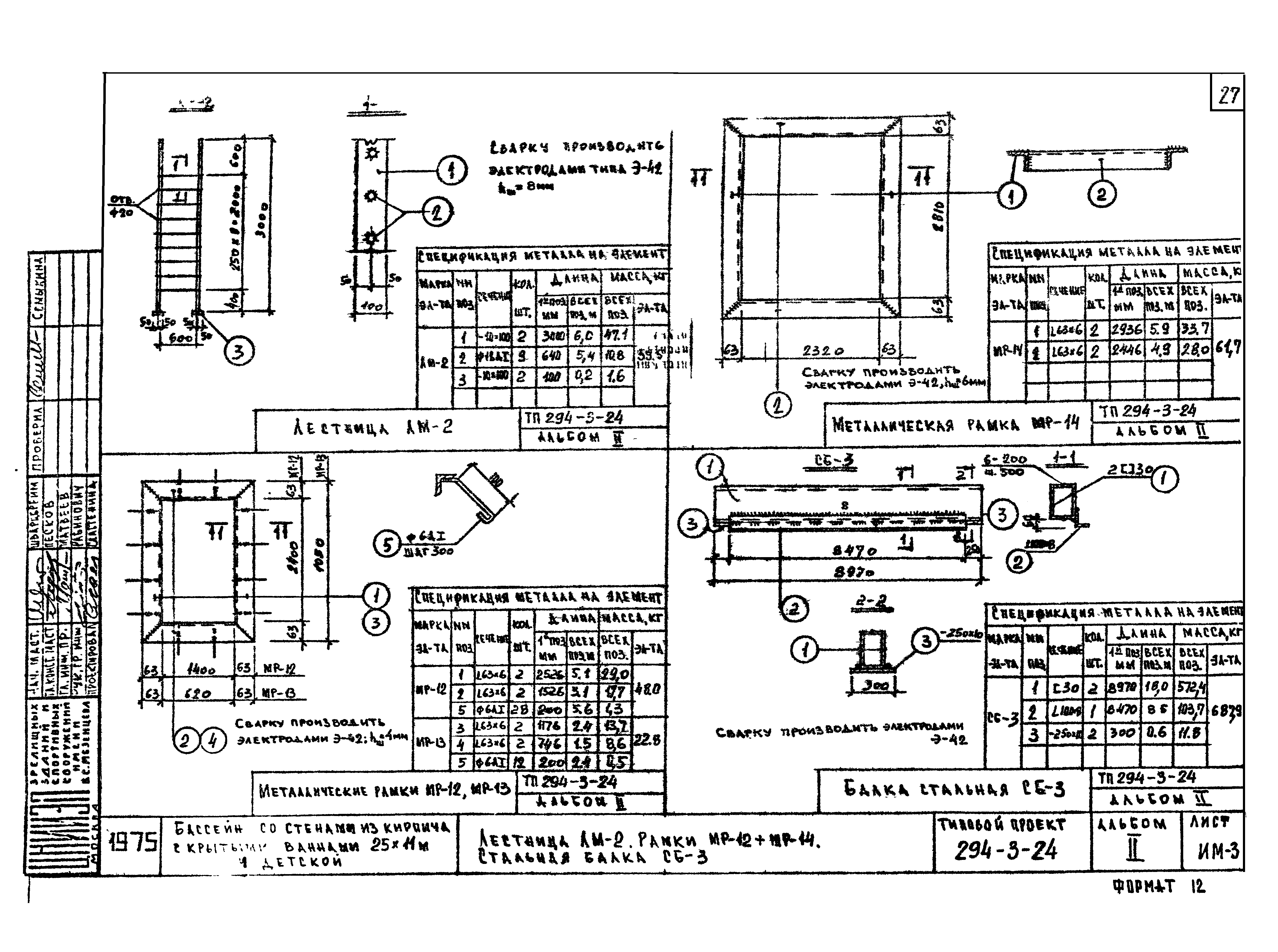
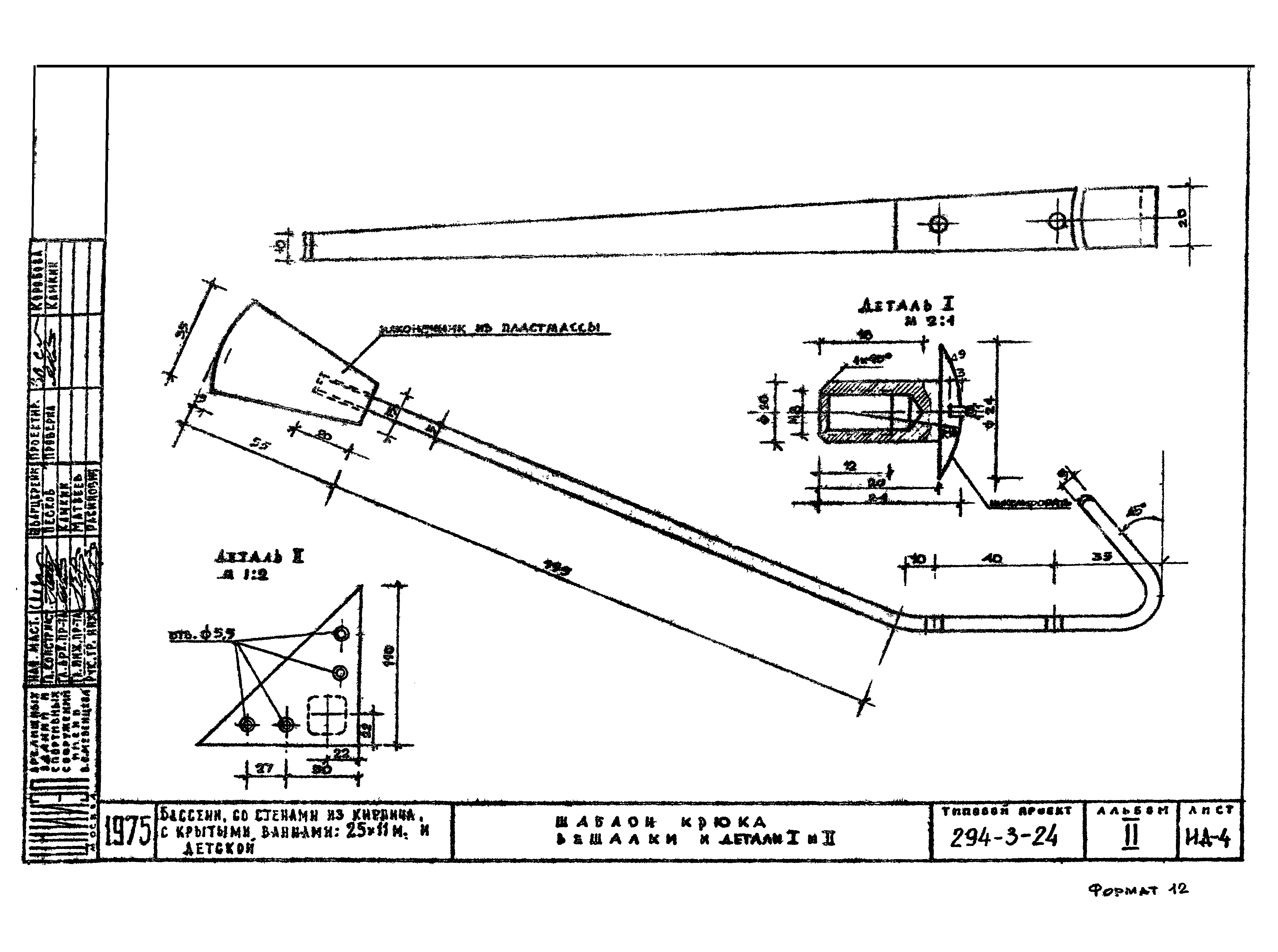
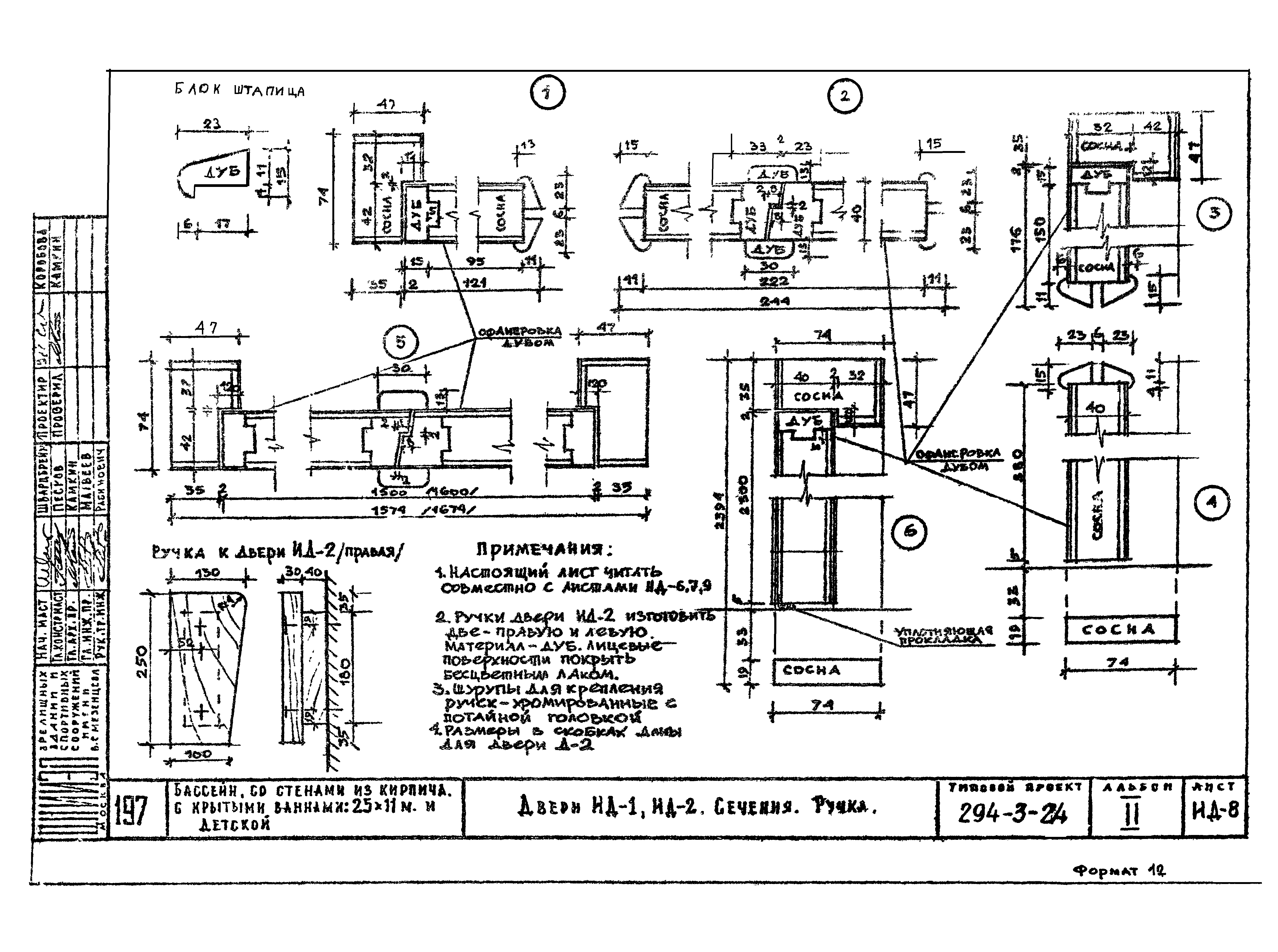
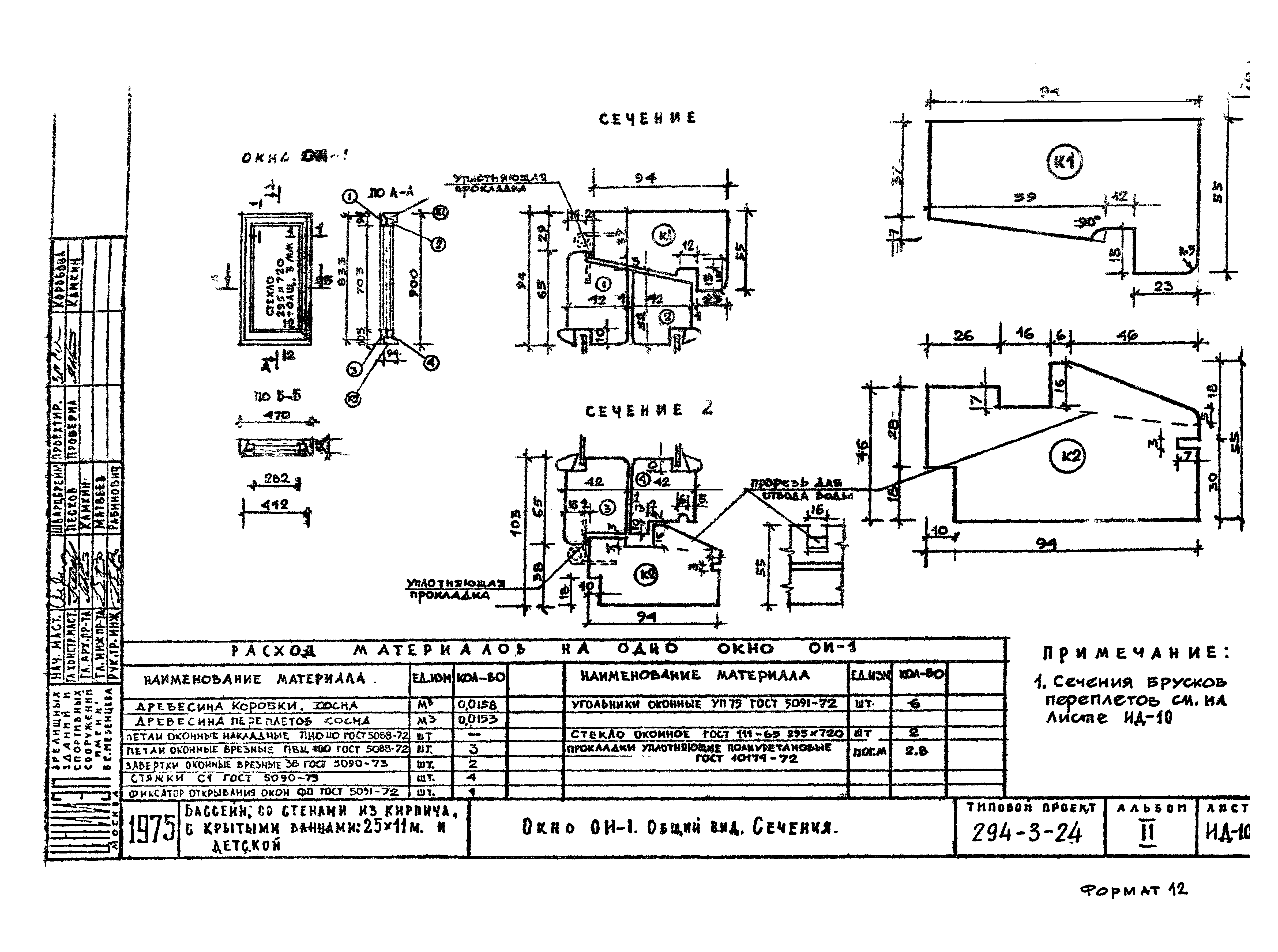
Скачать Типовой проект 294-3-24 Альбом II. Изделия заводского изготовленияДата актуализации: 01.01.2021 Типовой проект 294-3-24
Альбом II. Изделия заводского изготовления| Обозначение: | Типовой проект 294-3-24 | | Обозначение англ: | 294-3-24 | | Статус: | действует | | Название рус.: | Альбом II. Изделия заводского изготовления | | Дата добавления в базу: | 01.09.2013 | | Дата актуализации: | 01.01.2021 | | Дата введения: | 15.10.1975 | | Разработан: | ЦНИИЭП зрелищных зданий и спортивных сооружений Госгражданстроя
| | Утверждён: | 25.10.1974 Госгражданстрой (Gosgrazhdanstroy 237)
|
                                       
|